CONSTRUCTION PORTFOLIO LAM HONG QUANG | ARCHITECT
Professional Project | pages 1 - 17
CONTENTS
Professional Project | pages 18 - 27
1. IXORA 2 CONDOTEL
2. TUAN HOUSE
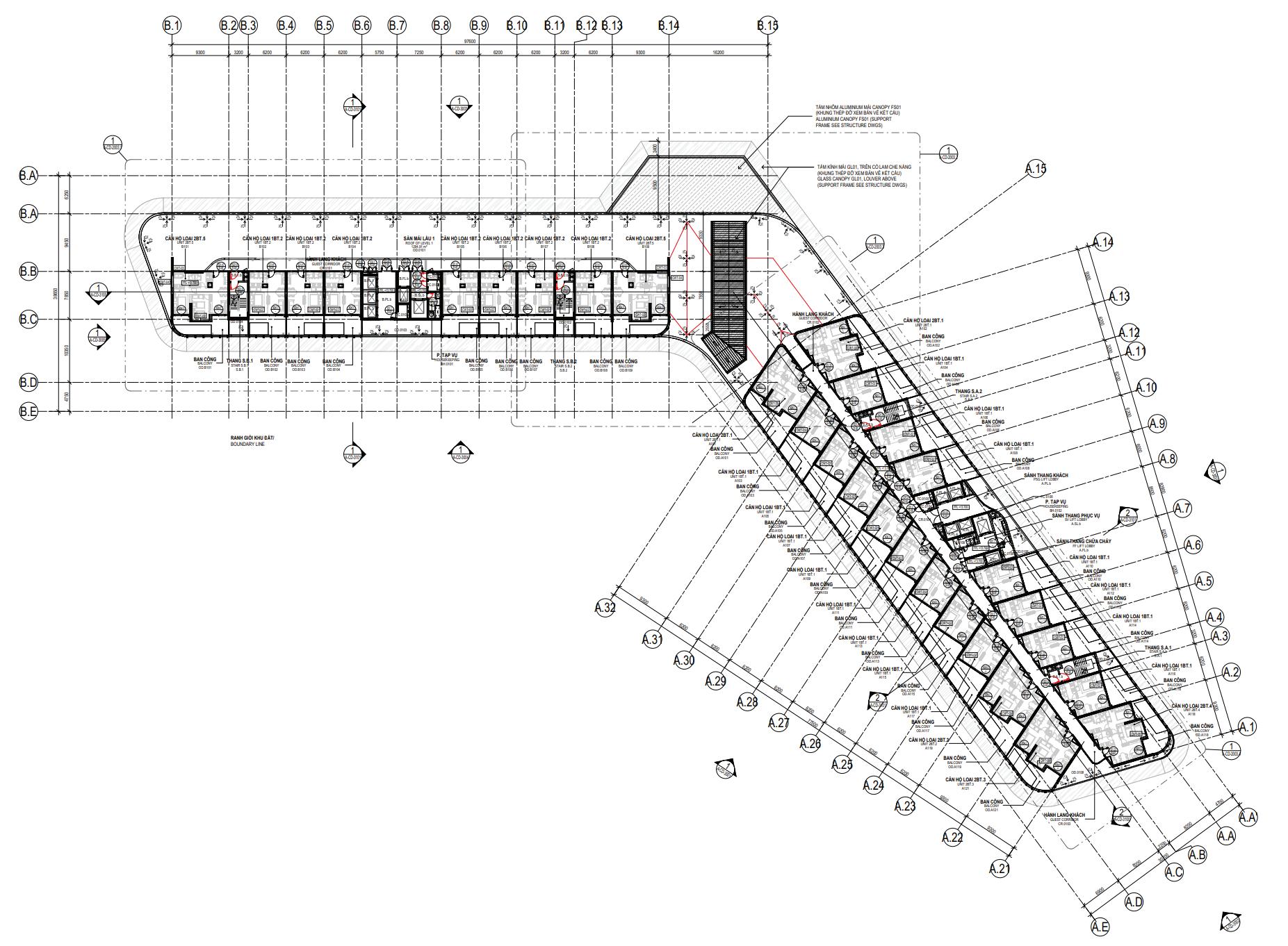
IXORA 2 CONDOTEL
PROFESSIONAL PROJECT
This is a project of Group GSA Vietnam. The condotel was part of the Ixora 2 complex that included villas and a condotel. I was part of the design team for the condotel from the basic design phase. I became the lead modeler of the project in the middle of the basic design phase.





TOWER B’S TERRACE & TOWER A’S LVEL 19 FLOOR PLAN

TOWER B’S ROOF & TOWER A’S TERRACE FLOOR PLAN




BB SECTION
CC SECTION
SECTION DETAILS



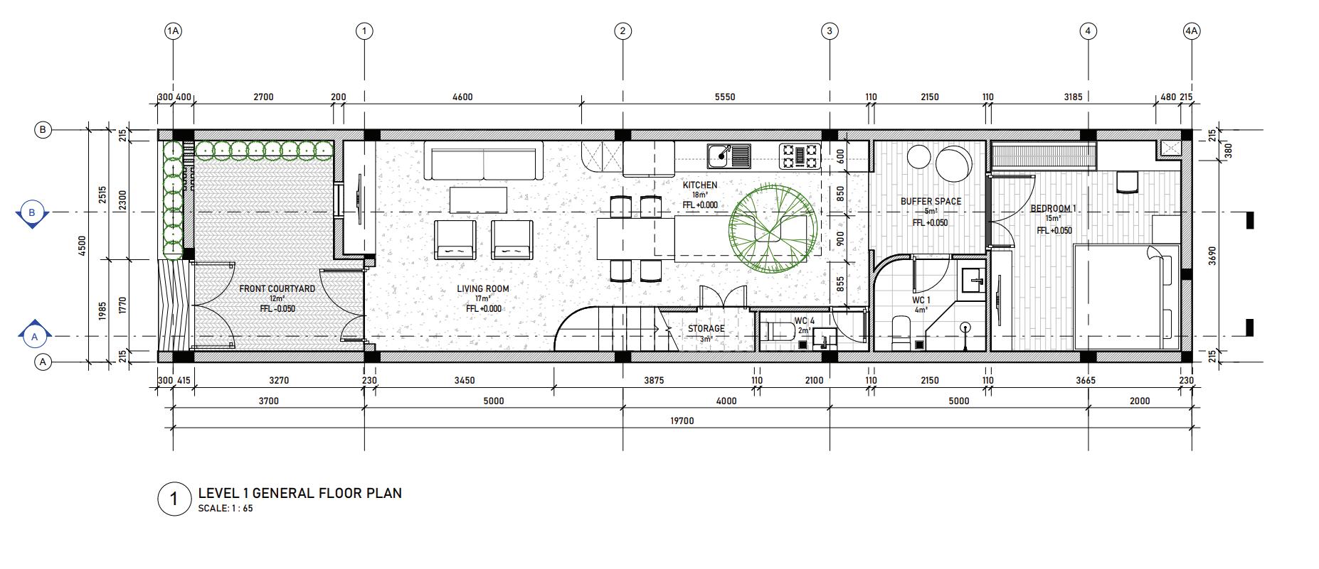
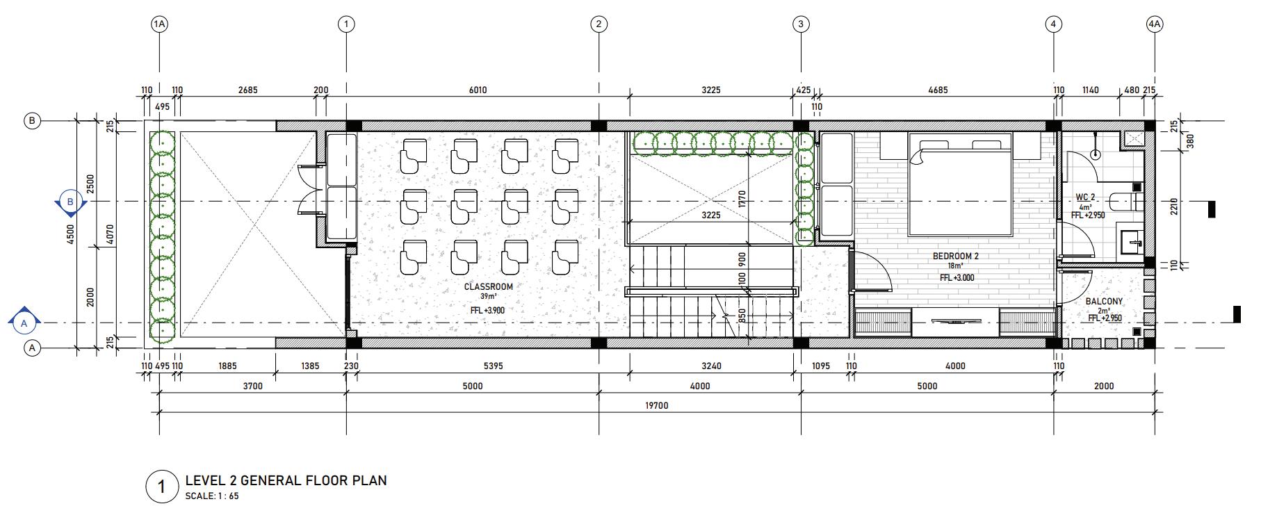
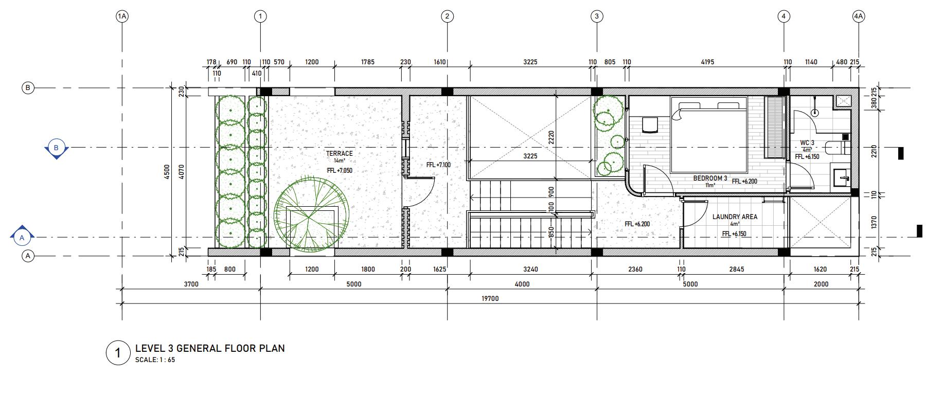
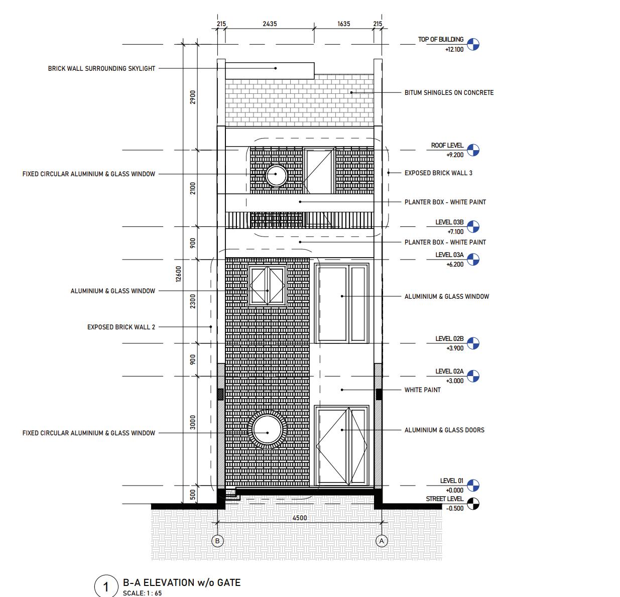
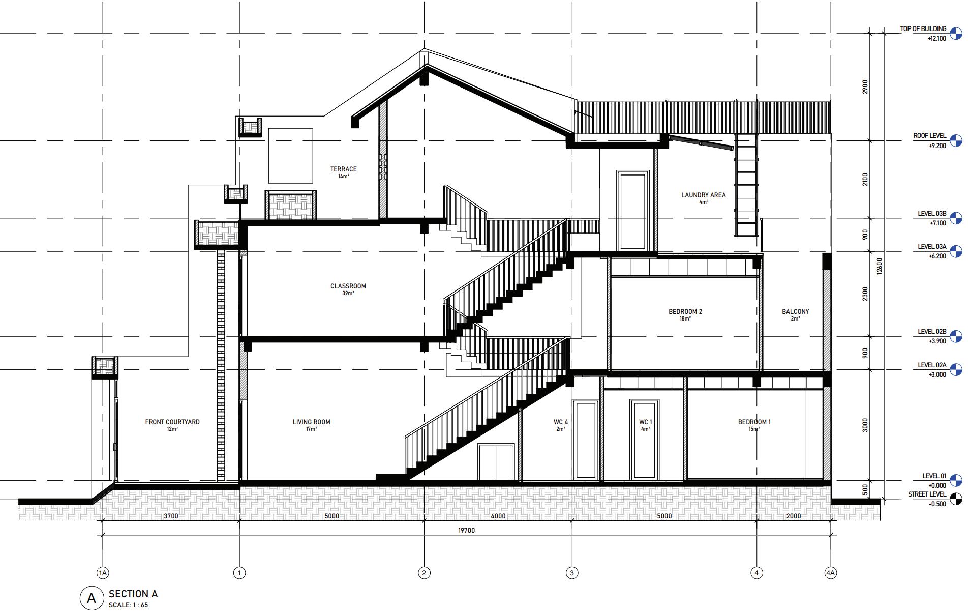
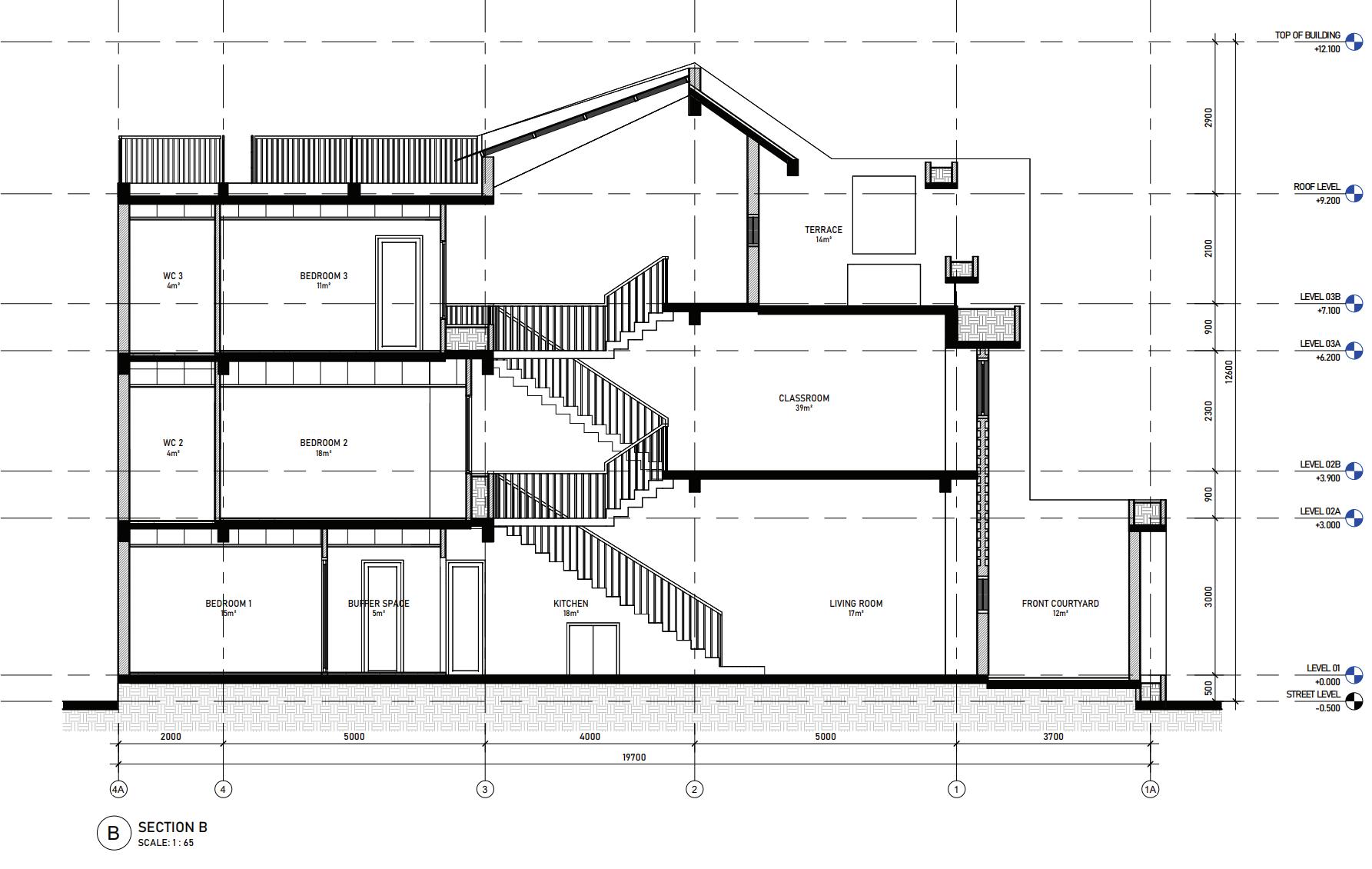
TUAN HOUSE
PROFESSIONAL PROJECT
I was part of a 3-man design team of this building. The team included the lead architect, an interior designer, and I. I was mainly in charge of the forms and facade of the building while the lead architect was handling the spacial design and direction











