Professional Portfolio

Page 1

SACRUM CIRCULO

Srirangapatna, India

Type: Competition, Group

Level: International, Professional

Role: Project design and analysis

Supervisor: Pallavi Shekar (pallavi.interskapez@gmail.com)

Softwares: AutoCAD, Revit, Rhino, 3DS Max, Photoshop

Date: Sep 2020 – Oct 2020

Institution: Interskapez

This is a project that intends to create a secular sacred space for the people of Srirangapatna, a religious city in Karnataka, India. In order to create a space like this we intend to bring in the elements of nature into the built structure, making it blend along with the context of the site as well as allow the users to connect to nature. The idea of the circle represents a complete celestial form that brings in the sense of community and makes the intermittent spaces connected as well as spiritual. By breaking the form at regular intervals, the essence of the circle is superimposed by the function, while retaining the initial spirit of the form. The main structure is of brick to give the space an earthy feeling while the irregular roof is of ferro concrete.

Primary circular form to enclose the space

Breaking up of mass according to function

Introduction of central space that connects with other spaces

Creation of built structure and modulation of spaces

INTEGRATION OF ELEMENTS OF NATURE INTO THE SITE

1. Adoption of central circle

2. Introduction of energy point

3. Dividing space into indoor and outdoor

4. Incorporating natural elements of the site

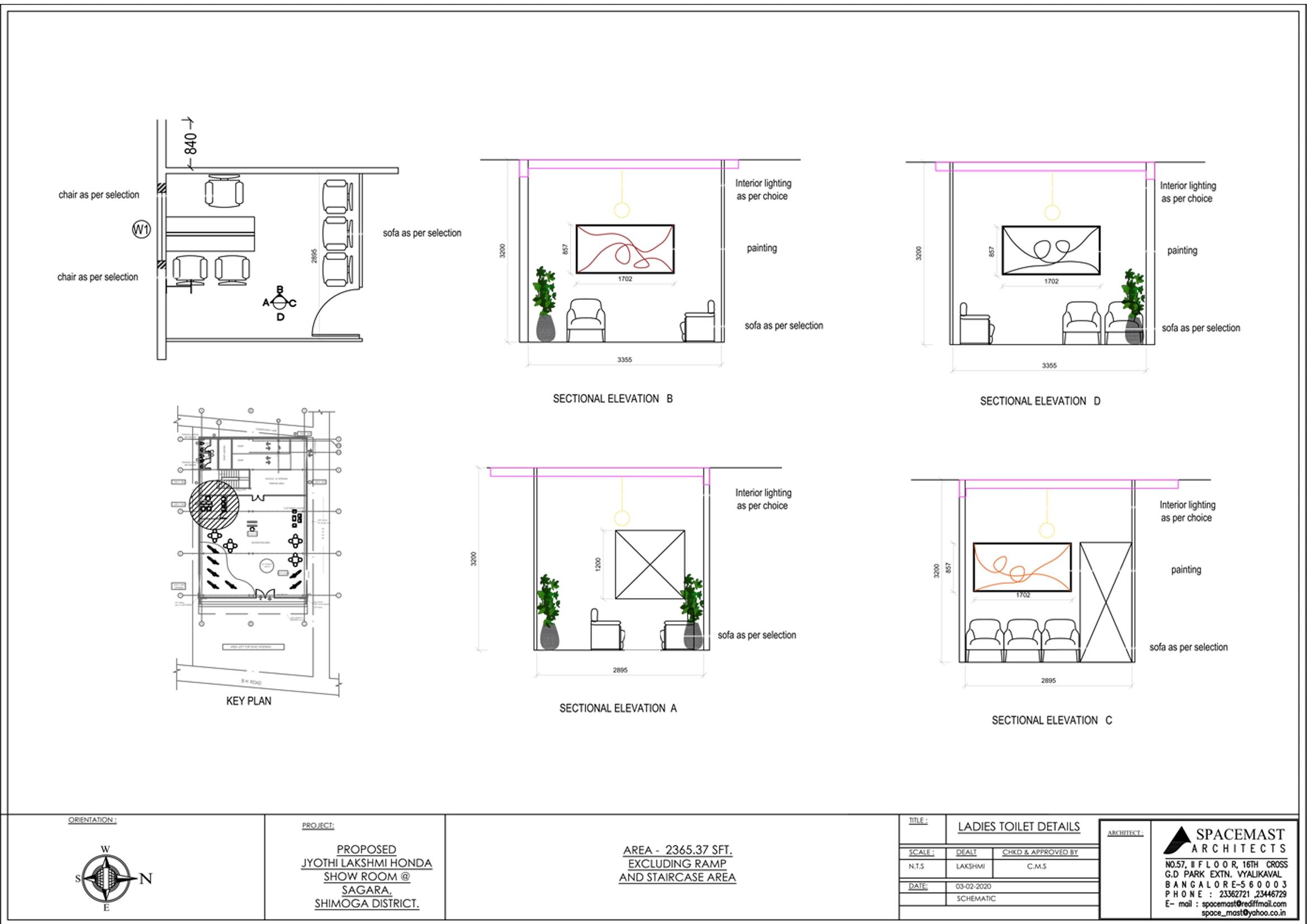
1- ENTRY POINT

ZONE

HALL

Section through central meditation space

3-RECEPTION/ADMIN 4-BUFFER
5-PRAYER
6-WATERBODY 7-CONGREGATION AND DINING 8-KIOSK AND CAFE 9-CONTEMPLATION 10-TERRACED SEATING 11-LEARNING SPACE 12-LIBRARY
2-PARKING
Front elevation of the
building
Meditation center Terraced garden for seating Food kiosk Internal walkway
LAKSHMI SAI PRAKASHINI RAJEASWAR The University of Sheffield, 2021 - 2022 MA Urban Design r_prakashini@yahoo.co.in +447741745182 https://www.linkedin.com/in/lakshmi-sai-prakashini-rajeaswar-436109192/

Turn static files into dynamic content formats.

Create a flipbook
Issuu converts static files into: digital portfolios, online yearbooks, online catalogs, digital photo albums and more. Sign up and create your flipbook.
Professional Portfolio by Lakshmi Sai Prakashini Rajeaswar - Issuu