Conceptual Projects

Page 1

KSENIIA RIASNIANSKAIA
CONCEPTUAL PORTFOLIO

eVolution

Apparel store new experience

The space for connecting, entertaining, creating relationships and getting an experience, for meeting with yourself, understanding who you are, and how you want to express yourself though your outlook.

It’s the gallery for the brand, theater for fashion, customized atelier and jewelry bar, restaurant and public spaces with personal services and assistance.

Hybrid on-line and in-store experience with implementation and development of new technologies.

The new world of fashion retail experience that focuses on:

• Data

• Experience

• Sustainability (Less is more)

• Personalization

• Digitalization

• Simplification (Slow fashion)

VOLUTION E Kseniia Riasnianskaia | MIA 2021 | Thesis Project OFFASHION
IDEA DECISION LOUNGE

Personal development like space opening,unfolding - evolution through volution.

The space leads Guests through the experience naturally and smoothly, elliptical like the circle of Life. Soft light, shadow, mysterious atmosphere arouse the feeling of connection with yourself. Guests get the understanding of what they need.

CONCEPT
DECISION LOUNGE/CAFE MODEL SKETCH
LEVEL 1 LEVEL 2
LEVEL 3
LEVEL 4
1. Concrete gray 2. Acrylic floor grey 3. Concrete pink mat 4. White tile mat 5. Concrete blue mat 6. Carpet 7. Acrylic floor blue
Level 1 Level 2 Level 3 Level 4 Oxford Gray Buxton Blue Thunder First Light W ndm l Wings Wight Heron
Reflective materials - acrylic glossy floor, glass, metal, mirror are balanced with concrete, stucco, natural fabrics. Contrast between fragile and solid materials.

ENTRANCE

RECEPTION/GENERAL VIEW

Performance area for brand promotion, fashion shows, movies, events. Exhibits haut couture pieces In the capsules. The first touch with the brand.

Visits by appointments. Lobby is for waiting your assistant or order. Pick-up, drop-off is automatic, and computer delivers your order to the appropriate station.

PERFORMANCE STAGE

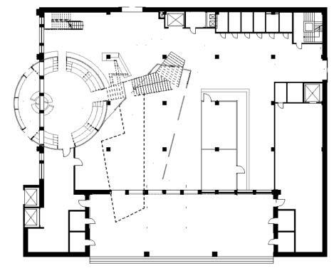
LEVEL 1

PERFORMANCE AREA

LOBBY PICK UP/DROP OFF FITTING ROOMS STAFF/STORAGE RESTROOMS

LEVEL 1 LIGHT CAVE
PERFORMANCE AREA WITH BAR
LIGHT BAR

LEVEL 2 DECISION LOUNGE

CAFE

DIGITAL MIRRORS/ EXHIBITION

CHECKOUT STORAGE

DIGITAL DRESSING ROOMS

Exhibition area is presented by digital mirrors and real merchandize. Guests can fit and choose outlooks digitally on screens Decision lounge combined with the exhibition area. Guests can get stylist assistance and create their best outlook here

EXHIBITION/DECISION AREA
DECISION LOUNGE SITTING AREAK GENERAL VIEW
AND METAL
LEVEL 2 AMPHITHEATER
CAFE PAPER
FURNITURE.

In the Atelier guests can adjust their clothes, create something special or order items for rent.

There is beauty bar on Level 3 where guests can accomplish their outlook. Fitting rooms are made of matt translucent glass so that you can see a slight silhouette. Forth floor for special jewelry.

LEVEL 3

HALLWAY

BEAUTY BAR

ATELIER/RENTAL FITTING ROOMS

STAFF/STORAGE

RESTROOMS

JEWELRY BAR

STAFF/STORAGE

ATELIER GENERAL VIEW
HALLWAY BEAUTY BAR/FITTING ROOMS
LEVEL 3 TRANSFORMATION LEVEL 4 COSMOS
LEVEL 4 JEWELRY BAR

Resort/Spa Hotel

Sustainable Guest Experience

UNTICOVID

The main Unticovid Policy – to Separate Spaces and to make them mostly Outdoor or Opened to Outdoor and to Make Separated and Safe Circulation and interaction.

Touch free Technologies due to the General Automated Hotels’ Smart System. Therefore, the territory is divided on the Public Recreational Building with the Restaurant, Cafes, Library, Fitness and other Public Spaces and Guest Rooms with the Private Access from the Outdoor to secure safety precautions.

Resort/Spa Hotel InsideOut offers highly sustainable, innovative, touch-free and natural/healthy experience to its guests.

Hotel is in the natural area with impressive landscape - United States, California, Malibu.

The site is in the walking distance from the PCH 1 and the Ocean Beach Point Dume The main focuses are:

• Connection with Nature

• Safety

• Healthy and Natural Practices

• Organic Architecture

• Bio design

Architecture is not walling, ceilings, doors and windows. It is the arrangement of the air, light, water, energy, movement to support natural biorhythms, safe interactions, synergy and to continue exterior into interior, outside into the inside.

People tired of being in the industrial environments and want to return to nature staying safe. Hotel InsideOut is about deep connection that goes from inside outside – from people to nature and vice versa.

LEED/WELL

Hotel is Certified Platinum by LEED

• Recycled 87% of the construction debris

• Sourced over 40% of the building materials locally

• Used over 20% recycled content

• 90% Modular construction

• Up to 90% of public spaces are fully or partly in the open air

• Used elaborate energy recovery systems to provide large amounts of fresh outside air to all guests as well as principles of airplane air-condition system in some areas

• Sourced 90% of the furniture locally

• Commissioned local manufactures

• 98% of the area has natural lighting

• 95% of area equipped with the smart technology of climate, lighting and other services control

Hotel is Certified GOLD by WELL

• The Hotel represents the whole complex experience of healthy And wellbeing practices

• Installed Automated Innovative Interactive Trainings and services deliveries through Screenless Video (Displairs) Systems

• 65% On-site food Production in the Greenhouse

• Installed Circadian Rhythms Automated System in the Guests Rooms

• Offers nutrition, fitness, mindset programs to the guests

Concept
Architectural Plan Legend
1. Recreation Bulging
2. Guest Rooms - Houses 3. Greenhouse
1 2 3 4
4. Guest Rooms - Capsules

Café-aquarium

Recreation Building

Design Principles:

interior extends from the outside to the inside, which corresponds to the concept of combining the internal and the external.

large glazing area and partly opened ceiling give a lot of natural light, heating, air flow and unforgettable visual impression.

Front desk and lobby create the first impression. Located in front of the parking lot in Recreation Building.

Recreation Building has many levels that give people the opportunity to disperse.

Play of light and color, glass and iridescent tiles creates a mood of magic and atmosphere of the underwater mysterious world.

and the water wall

Library consists of separated customed “shelve-cabins” that are divided by the glass constructions. Glass Shelves lightened with the LED lights, connected with aquarium on the second floor, so Guests can see aquarium from the Library. Aquarium extends to the water fall in the library and creates magical atmosphere.

reception Lobby Aquarium Library

Restaurant. Wellness zone and Greenhouse

Fitness center with pool and spa is on the roof of Recreation Building.

Fitness experience is presented by screenless video equipment. Each equipment gives access to personal training programs.

Swimming pool is around the glass ceiling. Spa cabins have saunas and massage cabinets.

The main Restaurant is located outside the building.

Design is based on the mix of modern trends and coziness of classics.

Classical arches implement the atmosphere of opulence meanwhile simple modern materials and colors add to the playful mood.

Greenhouse is the functional space for planting and providing local fruits and vegetables.

It is a great natural experience for the Guests as well. The guests can schedule the tour to see and study the plants and the processes.

Elements of bio farms are installed. The tours are made with all the untiCovid Precautions and limited amount of the Guests at a time.

Fitness. Spa Pool Restaurant Greenhouse

Guest rooms are represented by two volumes: Houses and Capsules. Both are located around the Greenhouse and have separated accesses. Each has private pool.

Houses are two leveled spaces with the partly opened ceiling of the second floor and glass Roofs.

Capsules are made with glass modules and have oval shapes.

There are first and second leveled capsules with personal elevators and fitness areas on the roof.

Guest Rooms

Capsules are inspired by the nature itself. natural shapes are curved, oval, circular, streamlined.

People feel more connected in the oval spaces that are visually opened to the spectacular view of the landscape and the ocean.

2 Legend 1. Capsules on Level 1 2. Personal Pools 3. Houses – 1st Level of Guest Rooms 4. Greenhouse 1 4 2 3 Floor Plan. Level 1

Hand drawings – color pencils, markers, watercolor

Turn static files into dynamic content formats.

Create a flipbook
Issuu converts static files into: digital portfolios, online yearbooks, online catalogs, digital photo albums and more. Sign up and create your flipbook.