Krupa Patel_Educational Works

Page 1


Results-driven architectural designer seeking to use proven technical and visualization skills to deliver design excellence to the built space. Accomplished the successful execution of numerous projects spanning multi-use high-rise developments to luxury retail experiences, and presently leading ongoing construction initiatives.

SOFTWARES + SKILLS

AUTODESK

AutoCAD

Maya

Revit

3D MODELING

Rhinoceros

SketchUp

Vectorworks

ADOBE CREATIVE SUITE

After Effects

Illustrator

Indesign

Lightroom

Photoshop

RENDERING

Lumion

Enscape

Maxwell V-Ray

ALGORITHMIC MODELING

Grasshopper

PRODUCTION

3D Printing

CNC Milling

Hand Drafting

Laser Cutting

Model Making

Photography

Research

EDUCATION

PRATT INSTITUTE

Bachelor of Architecture ‘19

NAAB accredited program

Dean’s List (2014-2019)

Spring 2018 Rome Honors- Study Abroad

PUBLICATIONS

InProcess ‘18 - Pratt 2018 Rome Honors Program Imprint

Distinguished Project - Tourist Vortex

InProcess ‘17 - Pratt 2017 Imprint

Distinguished Project - Noguchi Sculpture Garden

(InProcess publishes the work of select graduate and undergraduate architecture students at Pratt who have been awarded the title of “Distinguished Project” for that year.)

Moma PS1 Noguchi Garden

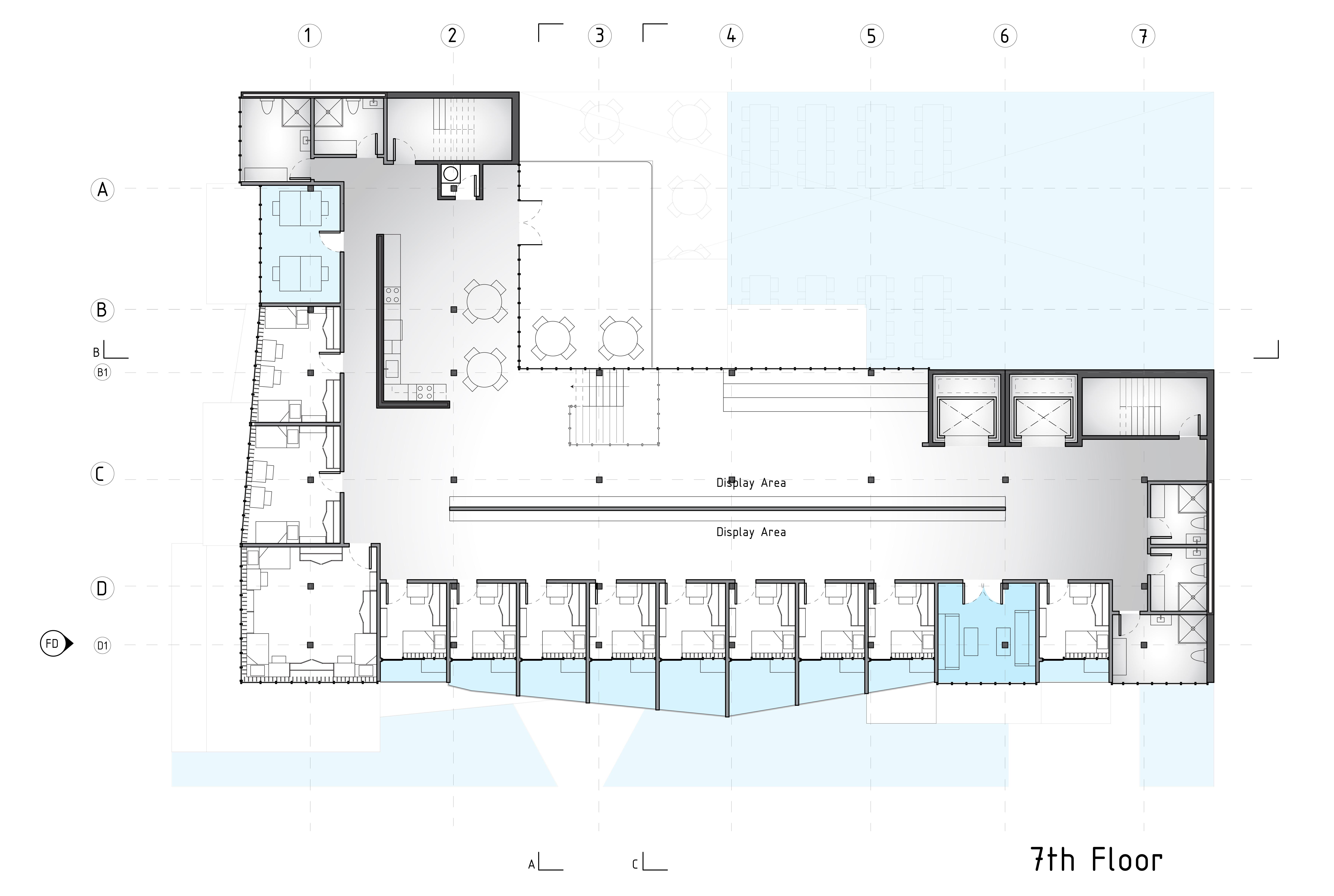
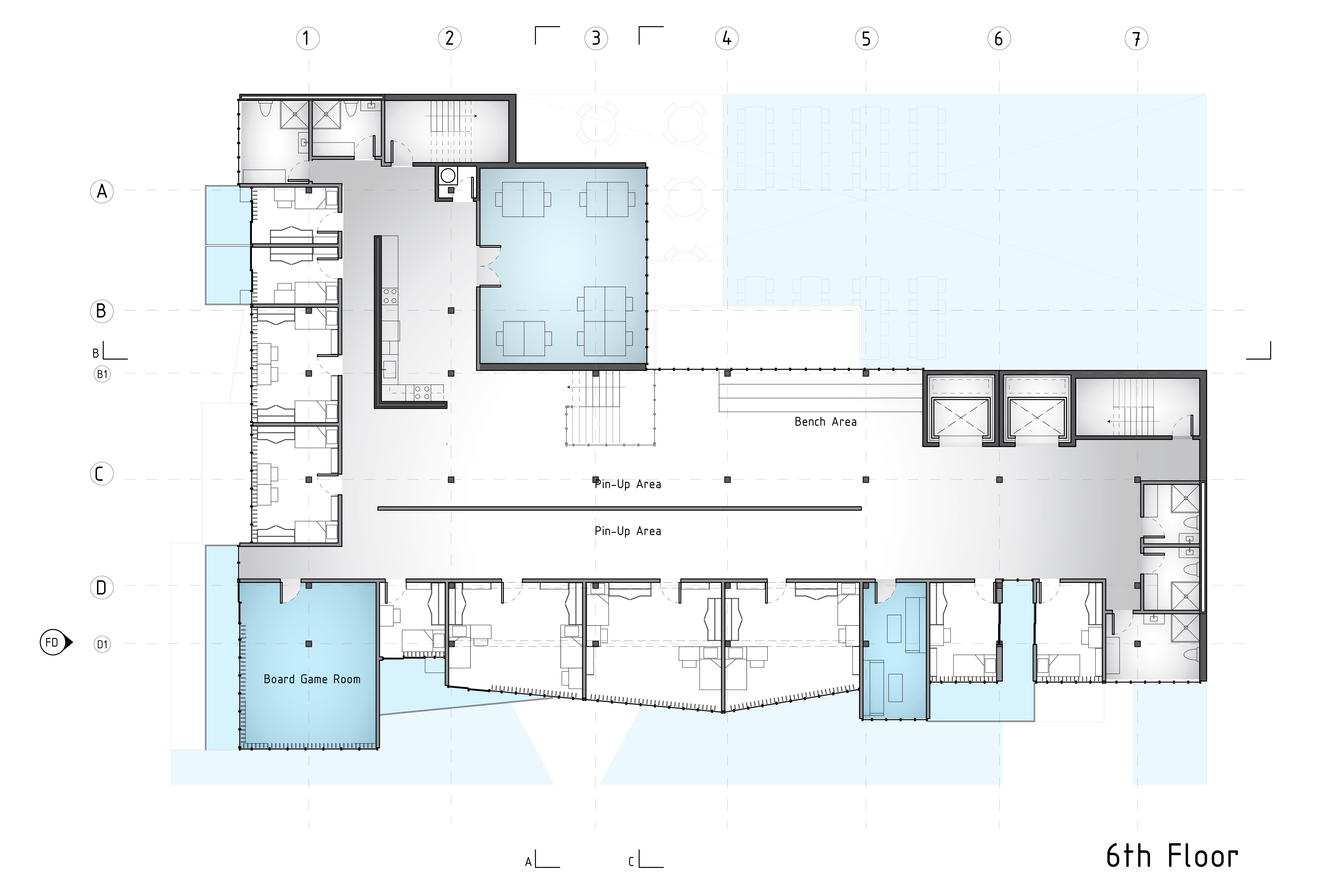
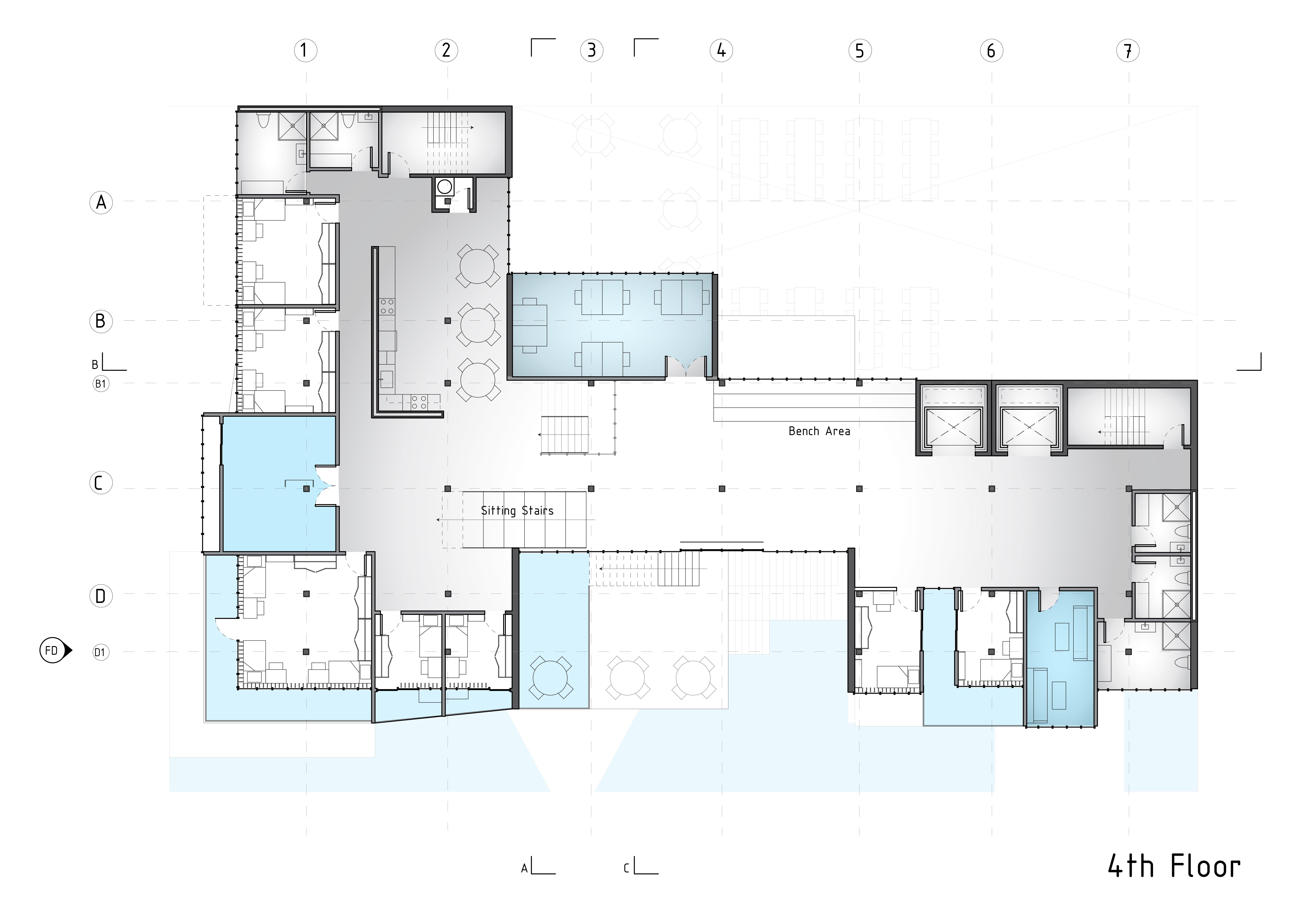
PRATT + COMMUNITY DORMITORY

Myrtle Avenue & Grand Avenue

Clinton Hill, Brooklyn, NY

A coexistence of students and community that expands the street level.

The first floor is a coexistence of an entry for students residing in this building and relief space from the sidewalk for the public.

Working with zoning regulations and building codes, this project is about providing interactive spaces for the students of Pratt within a dormitory. The facade plays on boundaries and as volumes shift inwards and outwards, balconies and outdoor spaces are created. The L-Shaped plan consists of bedroom units along the street edges and rear courtyard, providing light and air to each space. Corridors become spaces for students to pin-up their work and share ideas. Other spaces that protrude out of the facade allow for students to study in more quiet spaces. A large cut into the building is a 5.5 story vertical garden for the community.

1st

Climate:

Mostly cool and cold temperatures that often fall below freezing in the winter. Winter winds come from northwesterly and westerly directions.

Summer: Hot and Humid

Summers are mostly mild, with short hot periods. The extreme annual temperatures can reach 120 degrees. There are periods during the summer where humidity levels are high. Summer winds usually come from the south direction.

Each floor is carefully considered for appropriate space and exposure to light and air for all the occupants, in private units, shared spaces and exterior spaces.

Chart

Psychometric
Wind Rose Diagram
Wind Velocity

Wind Path & Ventilation Analysis

By creating access to exterior balconies in each unit and from interior corridors, air can move through the building in the hottest months of the year.

The building is primarily in sunlight most of the year and so natural light is incorporated as an important feature.

The hallways are mapped for high levels of communal activity such as pin up space, speech areas, nap areas, tv area and bench areas that promote interaction and growth of education.

VATICAN TOURIST VORTEX

Via della Conciliazione Rome, Italy

A convergence of tourist shopping and housing with prisoner housing and rehabilitation.

Program Logo Guide

Logos that describe the several programs dispersed through the site and buildings.

Spectacle / Architectural Representation of Divinity “structures which give us a false sense of security”

The divinity attached to the man-made church becomes a blur, so dense that it is accepted and not further questioned, never held accountable for its actions; untouchable.

What is accepted as all consciousness really is deception and unconsciousness.

So if society is propelled by the spectacle, what if that spectacle shifts to prisons? Where man is held accountable for its actions in hope to be reintegrated to society as a better version of themselves.

PROCESS OF REHABILITATION

Prisoner Employment Program Process of Rehabilitation

SURVIVAL

STABILIZATION SELF-SUFFICIENCY

access to treatment & support groups

access to job network & training access to shelter or family residence

continued access to treatment acquire and maintain a job access to a ordable housing

access to a ordable treatment & prescriptions become an active member of the economy ability to pay and maintain private housing

Buildings on side with integrated Prisoner Programs

Tourist Circulation

Circulation

Locker Room

Souvenirs

These sections exhibit the division of spaces for tourists and prisoners in juxtaposition to the visual connections created in circulation spaces.

Section A
Section B

MOMA PS1 NOGUCHI GARDEN

Jackson Avenue

Long Island City, NY

Inserting a garden space promenade for an Isamu Noguchi sculpture on the edge of Moma PS1, inspired by Steven Holl bike racks.

These bike racks rest outside Pratt Higgins Hall School of architecture, a small scale embodiment of the larger architectural intervention.

The project starts to exhibit how art can inform how the architecture behaves. The art or the noguchi piece influenced the strategy of the architecture and how it is positioned. The details create a passage that partially separates the space from the wall and the rest of the sidewalk, in addition to engaging ground and sky much like the trees on site. There is a tremendous amount of construction occurring around the site so by inserting a waterfall from the tops of the canopies blurs the noise of cars and jackhammers and make the details lively. Along the arbor of details, the noguchi piece rests on a new landscape inside of the existing garden which is across the main entry of the museum. It is tied to the details as another fragment to the whole

Galvanized Metal Supports
Folded Grate Seating
Galvanized Metal
Galvanized Metal Column
Perforated Metal
Sloped Glass
Section B
Section
Section
Section

COLUMBIA UNIVERSITY BOATHOUSE

Baker Athletic Complex

New York, NY

A convergence of tourist shopping and housing with prisoner housing and rehabilitation.

Redesigning a Boathouse for students, faculty and vistors that creates transparency and uses wood to incorporate warmth and nature back to the site.

The project is based on the transparency of community features at the Columbia boathouse. This is achieved by diffusing the border between Columbia and the community in a physical and metaphorical sense. The pre-existing buildings were disconnected and order to achieve a better design the buildings are redesigned, relocated and connected through the exterior circulation and the core which is the boats. The organization of the spaces is based upon the community’s access to the site, wrapped by a warm and natural wood skin.

There is a continuous exterior balcony which serves as circulation and a connection to the environment.

The repeating vertical wood planks on the edge of the building create a different visual experience from the horizontal planks that wrap the interior spaces.

Detail of an in-unit door installation at a NYC office renovation. The doors have concealed door hinges and included the partial demolition of a partition wall intended for the insertion of the door.

PROFESSIONAL WORK

In Collaboration with De-Spec Inc.

High-end residential and office work at a small sized architectural design company. Drawings of Millwork, Detail, Demolition, Construction, Reflected Ceiling, and Elevations on different projects at different phases. Additionally shaping 3D models, physical models, renderings and animations for visual experiences.

Construction Plan of a ground-up home on the Pacific Coast of Mexico. This home is roughly the size of an aircraft carrier and requires the resolution of contours near the edge of a steep cliffside. Duties involved in this project were editing drawings from Schematic Design phase to Bidding and constructing elevation and section drawings. In addition, a Rhinoceros model of the site and home was designed and rendered for many phases of development.

Drawings included plans at multiple elevations as the project is located at a cliffside, dealing with complex terrain and environment. The client required 3 separate buildings; the poolhouse, main house and gate house for guests and staff. The roof is occupiable and spanning over the exterior living room, requiring attention to engineering contraints.

In this renovation, two units are to be combined into one for a family. This drawing is for the Department of Buildings and includes the kitchen elevations. Some of the other tasks executed for DOB drawings were demolition plans, construction plans, typical details, ADA details, and custom radiator cover and cabinets.

These particular drawings were made for radiator covers in the apartment. Each radiator has its own unique cover as each opening was different and required resolution in order to maintain a seamless modern aesthetic. This was achieved from analysis of finger pulls, cleat angles, and widths of panels to ensure that the radiators and AC units would be accessible when in need of maintainence.

Turn static files into dynamic content formats.

Create a flipbook
Issuu converts static files into: digital portfolios, online yearbooks, online catalogs, digital photo albums and more. Sign up and create your flipbook.