Simoneau Portfolio

Page 1


PORTFOLIO

THE SELECTIVE WORKS OF KRISTYN

SIMONEAU

ARCHITECTURE

GRAPHIC DESIGN

SCENIC DESIGN & CONSTRUCTION

THEMED ENTERTAINMENT DESIGN

linkedin.com/in/kristyn-simoneau-0366ba164

krissim10@gmail.com

(603)801- 5687

GET TO KNOW ME

My name is Kristyn Simoneau and I have recently graduated cum laude with a BS in architecture and a BA in graphic design from Keene State College with a focus in theater design and production. I am currently pursuing my masters in Themed Entertainment

Integration from the University of Florida. As a designer, I have a passion for designing stories that have heart at their core and how, through design, we can convey and immerse our guests in these moments.

SKILLS

SOFTWARE

Autodesk Revit

Autodesk AutoCad

Sketchup

Adobe Creative Suite

Microsoft office

Rhino

ADDITIONAL

Free hand

Illustration and drafting

Reading architecture and construction drawings

Theatrical terminology, Documentation, and Show related equipment

Construction materials, Hardware and tools

LANGUAGES

English- Native Italian- Intermediate

LEMURSION

PROJECT TYPE: Fabrication

PROJECT YEAR: 2024

In Univeristy of Florida’s City Lab Fabrication and Execution for Themed Environments class, I designed and fabricated a set piece for a lemur exhibit in a zoo. During this process, I learned different painting techniques, the different fasteners to use to construct and mount the different props, and how to make props and set pieces for themed environments.

Hand drawings were created followed by a more detailed drawing on Photoshop that was then projected and copied onto the final set piece. The drawing for the chalkboard was then copied over with white colored pencil onto a piece of plywood that had been painted over with black paint and a textured roller to create a chalkboard appearance.

Pre-fabricated themed desk and props. All props were expoied and sanded down to take away any shine and then fastned to the desk.

EXPERIMENT 51A

PROJECT TYPE: Blue Sky Concept

PROJECT YEAR: 2024

TEAM MEMBERS: Christopher Rosales, Birttany Benjelloun, Darrin Brown, Kristyn Simoneau

In summer studio for the graduate themed environments program, the class was separated into four groups and tasked to make a theater company. With an established identity and inspiration from The Orlando Fringe Festival, the goal was to create an experience or show that can be transported for performances and installations across the country.

MISSION STATEMENT

Our mission is to craft unforgettable experiences by boldly subverting expectations, delivering unique encounters that transcends the ordinary, and leaving indelible impressions that ignite imagination and redefine possibilities.

As you are meandering through the convention floor at the Orange County Convention Center, you stumble across advertisements to visit Panel Room #51 for an experimental pop-up art installation. With plenty of intrigue, you decide to take a chance and check out the space. After all, Orlando has never had anything weird before! Upon arriving at Panel #51, you notice a classic 50’s-themed American diner as the front of the panel room. As you enter the supposed diner, you notice that the diner feels...off. Your suspicions are confirmed when you find out that no food is being served. There are only a few staff present, but they certainly do not seem to be attending to anyone today, but rather heckling anyone who walks through. You continue to explore the space and all of its strange oddities littered throughout. Obvious passageways and entries encourage you to proceed further into the back of the diner. Interested in seeing what this already strange art installation has in store, you decide to continue by venturing through one of the entries that leads you into the back. On the other side, you find yourself in a series of laboratories that appear to be researching SCARY THINGS. Looking through the windows into the laboratories, you note that these facilities describe a series of environments that the facility has constructed to represent different theories of humanity’s greatest fear: the end of their times. After making it through these fearful environments, you are chosen to partake in a private exit survey. There you identify an alien standing behind a frosted glass window inquiring about your experiences, whether the diner was a convincing front, and other insights into humanity’s weaknesses to prepare them for a future invasion. Will you help the aliens take over Earth? Or will you prove that humans are stronger than they believed?

You find an advertisement for the exhibit.

Upon crawling under the tree you find yourself in the lab room again, but it is different at the end.

You now enter a room filled with screens playing CCTV Footage of the diner and a board with the guests descriptions.

You arrive to a facade of a diner. Enter the suspiciously-placed diner that does not serve any food?!

You peer inside the new laboratory windows and note strange fish in glass bowls and beakers

You are then enter a questioning room where an alien-like creature appears in the window and asks about your experience.

You continue to proceed to the doorway labeled “The Depth of the Oceans.”

Your curiosity guides you to walk through an opening behind the jukebox into the decontamination room.

You emerge into a dark, glowing underwater biome that is home to a large tentacle beast.

You read a sign at the doorway at the end of the hall stating “Harmful Bio-Life Evolves.”

After going under the tentacle, you find yourself back in the lab.

Peering through the windows you note plants in beakers and bowls and science reports.

More laboratory windows show the nuclear chemicals and research on destructive energy sources.

INTENT MEDIUMS

Storyboards provide insight into what the guest will experience while also creating a “scene” that emphasizes certain moments in the overall story.

Hand sketching, Photoshop

You prepare for the exotic environment that awaits on the other side of the door.

You continue to proceed to the doorway labeled “The Fall of Man.”

You emerge into a vibrant and dark forest of what you can imagine only feels like doom.

Again, you enter another large environment. This one feels like the apocalypse has begun and the world is coming to an end as you explore the ruined city from above.

DINER ELEVATIONS

After completing a series of iterations and solidifying an arrangement of spaces, a more detailed plan is created. Each arrow that was utilized as a transition space is incorporated into the plan as a corridor into the next room. With the intent of this being a freeroam experience, there are multiple ways to proceed forwards, and backwards, through the multiple paths from each space. As you proceed to the last rooms, there is only one way to enter which leads into a unique show element. Overall this plan identifies the connection of spaces, transitions, and a scale in respect to each othe

SUPERHERO COMPETITION

PROJECT TYPE: Blue Sky Concept

PROJECT YEAR: 2024

1ST PLACE DESIGN- SWAMP THRILLS 2024 DESIGN COMPETITION

TEAM MEMBERS: Chelseas Trask, Natalia Bourg, Jason Williams, Brynn Barriger, Kristyn Simoneau

For the Swamp Thrills 2024 the design prompt was to create an attraction based around original superhero characters. In creating our “highly themed original storyline”, It was important for us to keep in mind that we as designers would not be able to rely on guests’ familiarity with pre-existing content. We adopted the strategy of combining familiar, nostalgic tropes with our own unique spins. We have a magical school setting, with four different superpower “classes” that guests can align themselves with, each with a representative mentor character. These allegiances serve to offer guests replay-ability, catalyze interaction, and create a sense of attachment and belonging within the story.

I assisted my team with the graphics of the attraction along with the overall story and the implementation of technology including the usage of AR and ride system.

Guests can enjoy browsing merchandise in the University Bookstore before exiting out another portal and returning to Earth.

The ride itself is designed to further encourage guest engagement with the story and set via dynamic ride vehicle movement that allow for competition and collaboration, interactive elements that engage guest throughout the entire attraction, AR goggles that translate hand movements into visual effects, and a sequence of show rooms that aim to fill guests will excitement, adrenaline, and triumph.

THE LAST FIVE YEARS

PROJECT TYPE: Show Set Design and Fabrication

PROJECT YEAR: 2021

In the winter of 2021, the Keene State Theater Department put on a production of The Last Five Years. As part of the design team, I helped build the set for the show. The majority of the set was a circular turn table that could rotate with each side being able to be utilized as different settings for each scene. Behind the main set piece was two large screens that had different images projected on them based on the scene.

AN EVENING OF DANCE

PROJECT TYPE: Show Set Design and Fabrication

PROJECT YEAR: 2021

Every year, towards the end of the spring semester, the Keene State College dance department puts on their annual show titled An Evening of Dance. Each year the scenic department builds sets and props that corresponds with each dance that is showcased. In 2021, one portion of the show was a dystopian 70s styled dance sequence and the other aspect of the show was about depicting nature through dance. For the show I helped design and fabricate the sets and props, as well as working as the fly operator for the production.

The dystopian 70s styled dance sequence featured TV props, and multiple large flats were flown in that had the ability to light up to correspond with the dance. This sequence also included a larger movable dinner table that had a human head at one end and legs at the other.

In the nature portion of the show, a large flat with cloud like shapes had images of nature projected on it while the dances preformed. In another scene large sheets of fabric were draped in the background that was incorporated into the choreography and helped create dramatic shadows

TRANSPORTATION HUB

PROJECT TYPE: Renovation Concept

PROJECT YEAR: 2021

Students were tasked to develop a space that supports the local community while encompassing and overarching theme. After determining the biggest need for the Orlando tourism community, I set forth to design a transportation hub that would not only serve the 10. 1 million Orlando tourist every year, but the local community and work force. The transportation hub would be a gateway for the local theme parks and international airport while simultaneously educating visitors of the Orlando environment in an immersive experience.

FLOOR 1- MAIN HUB
FLOOR 2- CAST SERVICES
FLOOR 1- PLATFORM

All around the Hub lies walking trails that allow guest to walk around the property and take in the surrounding environment. These paths are raised from the ground as not to interfere with the natural environment

YOGA STUDIO

PROJECT TYPE: Blue Sky Concept

PROJECT YEAR: 2020

Students were tasked to design an addition on an exisitng building in the area of their chosing. The original exterior had to remain the same with the additon and interior changes mimicing the original design style. Additionally, students had to include a stuido space somewhere whitin the design. The buidling chosen, Studio in the Trees by Nicholas Waldman located in Martha’s Vineyard, insipired the additon that took on a design natural design that was influenced by the surrourding environments.

Initally sketches were made of the building with the main focus being the roof lines of the builing having taking on different heights and shapes to mimic the mountains in the New England area

Interior Yoga Studio Perspective
North Elevation

WEST KEENE FIRE STATION

PROJECT TYPE: Design Build

PROJECT YEAR: 2021

TEAM MEMBERS: Kristyn Simoneau, Megan Vertigen

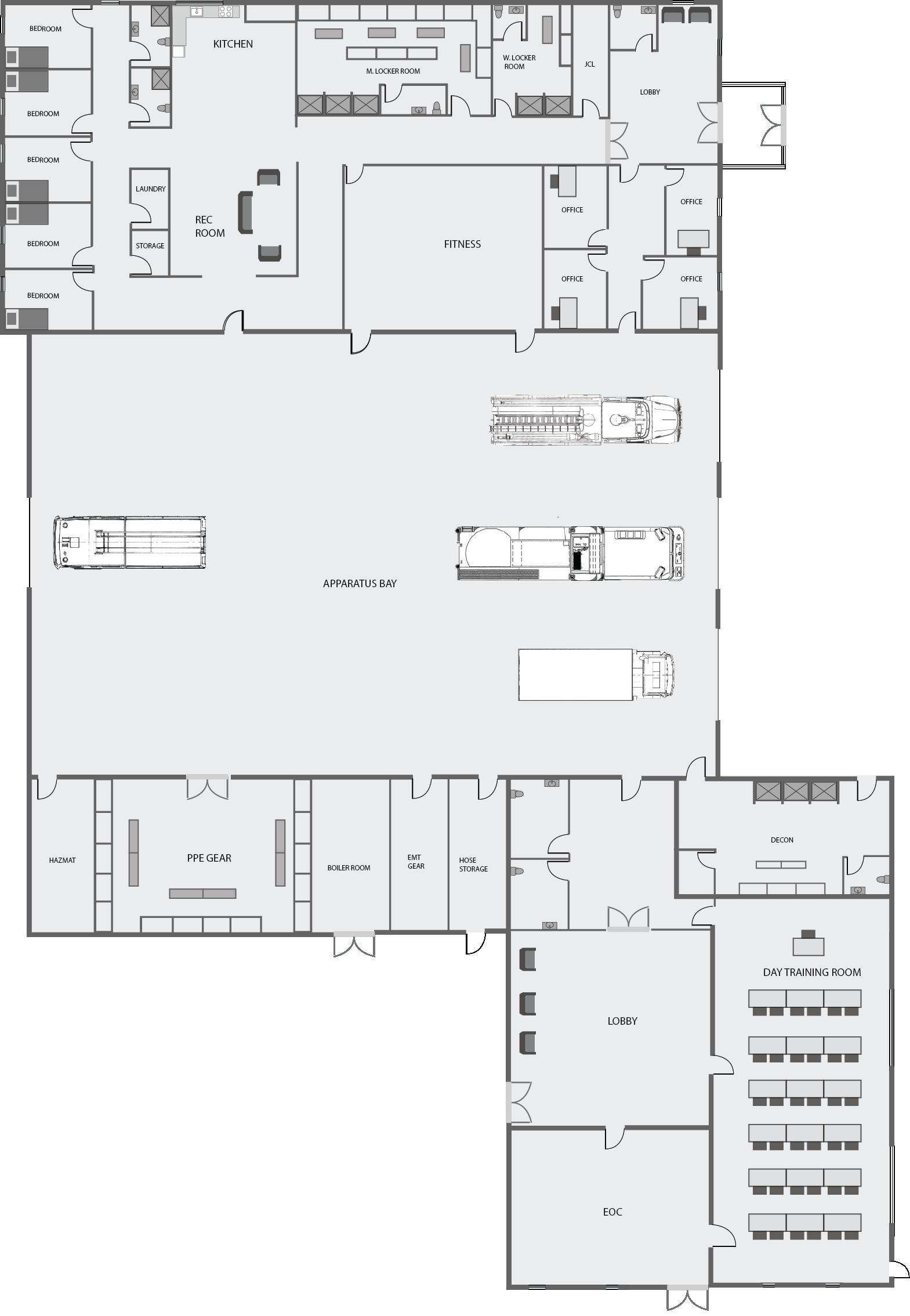
The West Keene Fire Station was a Collaborative Architecture Design project; allowing us to work with real clients to fix the existing building. We had to work in teams to create a solution for an existing building in our area, being given the current West Keene Fire Station to create a more efficient design.

sq

17000

The original fire station had a long rectangular program that covered the entire front of the building and prevented the trucks from exiting immediately onto the main road, instead having to take a longer response time to exit through the back. In the renovated design, part of that front program was removed to create an immediate exit for the trucks onto the main road, as well as a redesign of the entire interior to create a better layout and flow for the station. Arched glass doors were added onto the front of the building to tie in with the architecture of historic downtown area.

SITE MAP

Features including a training room, a newly designed kitchen and recreation room, additional locker rooms and bedrooms, a decon room, and more. All of which has immediate response time to the apparatus floor allowing the newly designed station to have the most functionality .

Recreation Room/Kitchen
Bedroom

Turn static files into dynamic content formats.

Create a flipbook
Issuu converts static files into: digital portfolios, online yearbooks, online catalogs, digital photo albums and more. Sign up and create your flipbook.
Simoneau Portfolio by kristynsimoneau - Issuu