https://shkola.in.ua/2714-hdz-matematyka-5-klas-merzliak-2022.html







































































































































https://shkola.in.ua/2714-hdz-matematyka-5-klas-merzliak-2022.html
1) 48+7=55; 2) 19+9=25; 3) 25+34=59; 4) 52+49=101.
1) 14-6=8; 2) 23-7=16; 3) 32-8=24; 4) 45-19=26.
1) 12·4=48; 2) 5·20=100; 3) 13·6=78; 4) 10·100=1000
1) 36:12=3; 2) 55:11=5; 3) 96:8=12; 4) 160:20=8.
1) 7·3=21(д.) – тополь росте біля школи 2) 21+7=28(д.) – дерев росте біля школи
Вираз: 7·3+7=28(д.)
Відповідь: Біля школи росте 28 дерев.
Оскільки рік має 365 днів, тому
і той самий день.
Вправи
1, 2, 3, 4, 5, 6, 7, 8, 9, 10, 11, 12, 13, 14
1, 2, 3, 4, 5, 6, 7, 8, 9, 10, 11, 12 3.
5, 8, 129, 4128
35, 247, 8298
73, 122, 6460
57, 630, 4499
41, 214, 3239
7+18-1=24
1) 24-6-1=17; 2) 81-18-1=81-1-18=62.
1) 28-13-1=14;
3) 8-2=6(уч.)
https://shkola.in.ua/2714-hdz-matematyka-5-klas-merzliak-2022.html
а-12, а-1, а ,а+1, а+2, а+3.
13.
1) 1,3,5,7,9,11; (кожне
2) 2,5,8,11,14,17,20; (кожне
3) 2,5,7,10,12,15,17,20,22;(кожне наступне
попереднє)
14.
4) 1,1,2,3,5,8,13,21,34,55,89; (кожне наступне
1) 2,4,6,8,10,12,14; (кожне
2) 7,11,15,19,23,27,31; (кожне
3) 5,6,8,9,11,12,14,15,17,18; (кожне




1) 43+24·58-39=43+1392-39=1435-39=1396



2) (43+24)·58-39=67·58-39=3886-39=3847



3) 43+24·(58-39)=43+24·19=43+456=499



4) (43+24)·(58-39)=67·19=1273





18.
https://shkola.in.ua/2714-hdz-matematyka-5-klas-merzliak-2022.html
1) 34 – 18 = 16 (к) – смородини росте на
2) 34 + 16 = 50 (к) – всього кущів.
Відповідь: 50 кущів.
1) 60:12=5(пудів) – маса шаблів;
2) 60+5=65 (пудів) – маса шаблі і палиці. Відповідь: загальна


Перевернувши малюнок, побачимо, що автомобіль
Оскільки суми в кожному стовпці,
число у другому рядку:
1) 10 + 9 + 14 = 33; 2) 33 – 9 – 13 = 11;
3) 33 – 14 – 11 = 8;
4) 33 – 10 – 11 = 12;
5) 33 – 10 – 8 = 15;
6) 33 – 14 – 12 = 7.
Відповідь: замість

1) 18-6=12; 2) 12-4=8. 2.
1) 18:6=3; 2)12:4=3.
1) 12·5+1=60+1=61; 2) 12·5-1=60-1=59; 3) 12·(5+1)= 12·6= 72; 4) 12·(5-1)= 12·4= 48; 5) 12:(5+1)=2; 6) 12:(5-1)=3. 4.
1) 423,424,425,426,427
2) 1658,1659,1660,1661,1662
3) 2997, 2998,2999,3000,3001 5.
1) 358,357,356,355,354
2) 1573,1572,1571,1570,1569
3) 4001, 4000,3999,3998,3997.
6.
1001, 1010, 1100, 2000
7. *4+4*=99, тому шуканими є числа 54 та 45. 8.
22.
https://shkola.in.ua/2714-hdz-matematyka-5-klas-merzliak-2022.html
34 -
473 -
234 642 -
502 013 -
9 145 679 -
105 289 001 -
6 704 917 320
триста двадцять;
72 016 050 400 -
чотириста; 491 872 653 000 -
шістсот п'ятдесят три тисячі; 305 002 800 748 -
вісім.
23.
24.
34 мільйони 384 тисячі 523 = 34 384 523; 85 мільйонів 128 тисяч 23 = 85 128 023; 16 мільйонів 26 тисяч 4 = 16 026 004;
8 мільярдів 801 мільйон 30 тисяч 5 = 8 801 030 005; 22 мільярди 33 мільйони 418 = 22 033 000 418; 251 мільярд 538 = 251 000 000 538;
23
мільйони 275 тисяч 649 = 23 275 649; 12
мільйонів 20 тисяч 21 = 12 020 021; 8 мільйонів 7 тисяч 3 = 8 007 003; 1 мільярд 5 мільйонів 19 тисяч = 1005019000; 8 мільярдів 742 тисячі = 8 000 742 000; 92 мільярди 29 = 92 000 000 029. 25. сорок шість
https://shkola.in.ua/2714-hdz-matematyka-5-klas-merzliak-2022.html
рази - 514 514 514 =
п'ятсот чотирнадцять;
чотири рази - 514 514 514 514 =
29. два рази - 4 848 = чотири
рази - 484 848 = чотириста
1) 846 = 800 + 40 + 6 = 8 • 100 + 4 • 10 + 6 • 1;
2) 2375 = 2 000 + 300 + 70 + 5 = 2
3) 12 619 = 10 000 + 2 000 + 600 + 10 + 9 = = 1 • 10 000 + 2 • 1 000 + 6 • 100 + 1 • 10 + 9 • 1;
4) 791 105 = 700 000 + 90 000 + 1 000 + 100 + 5 = = 7 • 100 000 + 9 • 10 000 + 1 • 1 000 + 1 • 100 + 5 • 1;
5) 32 598 009 = 30 000 000 + 2 000 000 + 500 000 + 90 000 + 8
https://shkola.in.ua/2714-hdz-matematyka-5-klas-merzliak-2022.html
10 000 000 + 7 = 10 000 007. 33. Найбільше
100 000 000,
99 999 998.
34. Найменше
число 1 000 000, тоді наступне за ним 1 000 001, попереднє до нього 999 999.
35.
Нехай маємо двоцифрове число 12, тоді отримане чотирицифрове число 1212. 1212 : 12 = 101 - у стільки разів отримане чотирицифрове
двоцифрове число.
Відповідь: у 101 разів.
122122. 122122 : 122 = 1001 – у
число.
Відповідь: у 1001 разів.
37.
Задамо ряд натуральних чисел 1, 2, 3, …
сторінкам.
9 • 1 = 9 (ц.) - було написано цифр
сторінок від 10 до 99
сторінок від 100 до 172 трицифровим
9 + 180 + 219 = 408 (ц.) –
Відповідь: 408 цифр.
38.
39.
9 чисел - по 1 цифрі (9 цифр).
90 чисел - по 2 цифри (180 цифер).
672 - (180 + 9) = 483 - цифр у 3-цифрових числах, тобто 161 число.
161 + 90 + 9 = 260 - чисел надруковано, відповідно і сторінок у книжці. у книзі 260 сторінок.




https://shkola.in.ua/2714-hdz-matematyka-5-klas-merzliak-2022.html





1) 49 + 26 · (54 – 27);


2) 36 : 9 + 18 • 5 = 94



(801 – 316) • 29 = 14065


4) (488 + 808) : 18 = 72


41.
42.
43.
44.
https://shkola.in.ua/2714-hdz-matematyka-5-klas-merzliak-2022.html
1) 720 : 4 = 180 (км) – пролітає відстань за 1 годину;
2) 180 • 6 = 1080 (км) – пролетить відстань за 6 годин.
Відповідь: 1080 км.
1) 432 : 3 = 144 (п.) – виготовить підків за 1 день;
2) 144 • 5 = 720 (п.) – виготовить підків за 5 днів.
Відповідь: 720 підків.
2022 - 1187 = 835 років
Відповідь: минуло 835 років.
1) 1961 + 8 = 1969 (р.) - на Місяць ступила перша людина;
2) 1969 + 28 = 1997 (р.) - політ першого космонавта.
Відповідь: у 1997 році до космосу полетів перший космонавт незалежної
Леонід Каденюк.
45.
1) Кембриджського університету;
2) Києво - Могилянської академії. Скільки
Львівському університету, найстаршому
452 роки старший за нього?
1215 - 6 = 1209 (р.) - заснування Кембриджського
1215 + 417 = 1632 (р.) -
1209 + 452 = 1661 (р.)
2022 - 1661 = 361 (р.) -
1 спосіб: 7 • 9 – 1 7 • 9 = 63
святкувала день народження у суботу.
2 спосіб: 62 – 7 • 8 62 – 7 • 8 = 6 днів –
субота. Мама святкувала день народження у суботу. Відповідь: у суботу.
Розв’язуємо усно сторінка 24
1. 46+9=55; 72-15=57; 21·7=147; 65:13=5.
2. 60,51,43,33,24,15
3. 9999,10000,10001
4. 998,999,1000
5. 1) 7дм 4см=7 10см+4см=70+4=74 см
2) 4м 1см=4 100см+1см=401см
3) 2м6дм=20+6=26дм=260см
4) 1м 2дм 5см= 100+20+5=125см
6. 1) 72см=70+2=7дм 2см
2) 146см= 14дм 6см
3) 450мм= 4дм 5см
4) 8м 40мм = 80дм 4см
47.
48.
https://shkola.in.ua/2714-hdz-matematyka-5-klas-merzliak-2022.html
a) AB, BC, AC, BK
б) OP, OR, OT, PT, PR, RT
в) AE, EC, CD, AD, AC, ED
г) MN, ME, EQ, QP, MQ, PN, NE, EP
a) BD, BO, OD, AC, AO, OC, AD
б) MP, MK, KN, NP, MN, KP, FE, FK, KE, ES, EN, NS 49.
Утворилось



https://shkola.in.ua/2714-hdz-matematyka-5-klas-merzliak-2022.html
Ланки ламаної: AB, BE, EK, KP, PR.
AB = 20 мм, BE = 19 мм, EK = 17 мм, KP = 12 мм, PR = 12 мм.
ABEKPR = AB + BE + EK + KP + PR = = 20 мм + 19 мм + 17 мм + 12 мм + 12 мм = 80 мм.
61.
Ланки ламаної: ST, TK, KM, MD, DO, OF.
ST = 31 мм, TK = 13 мм, KM = 12 мм, MD = 11 мм, DO = 13 мм, OF = 14 мм
STKMDOF = ST + TK + KM + MD + DO + OF = = 31 мм + 13 мм + 12 мм + 11 мм + 13 мм + 14 мм = 94 мм.
62.

Утворилась ламана АBCDЕ. Ламана має 4
DЕ.
= АВ + ВС + СD + DЕ = 8 см + 14 см + 23 см + 10 см = 55 см = 5 дм 5 см
MNKPEF = MN + NK + KP + PE + EF = = 42 мм + 38 мм + 19 мм + 12 мм + 29 мм = 140 мм = 14 см
= AB + BC + CD = 15 мм + 25
= RS • 3 = 34 см • 3 = 102 см
= RS + SK = 34 см + 102 см = 136 см
https://shkola.in.ua/2714-hdz-matematyka-5-klas-merzliak-2022.html
1 спосіб
МК = АВ – (АМ + КВ) = 28 см – (12 см + 9 см) = 28 см – 21 см = 7 см
2 спосіб МК = АВ – АМ – КВ = 28 см – 12 см – 9 см = 7 см
МF = МТ – FТ
ТК = FК – FТ, оскільки за
– ТК = (МТ – FТ) – (МТ – FТ) = 0

АСDМ = АС + СD + DМ = 15 мм + 24 мм + 32 мм = 71 мм = 7 см

FK = EF – 7 мм = 22
– 7
= 15 мм; CEFK = CE + EF + FK = 8 мм + 22 мм + 15 мм = 45 мм. Відповідь: CEFK = 45 мм.
1 см + 2 см + 3 см + 3 см = 6 см

2 cм + 1 см + 2 см = 5 см 78. АВ = АС – ВС = 8 см – 2 см = 6 см АD = АВ + ВD = 6 см + 6 см = 12 см
АD = 12 см.
МК = МF – КF = 30 см – 22 см = 8 см КЕ = МЕ – МК = 18 см – 8 см = 10 см Відповідь: КЕ = 10 см.
81.
82.
83.
84.
https://shkola.in.ua/2714-hdz-matematyka-5-klas-merzliak-2022.html

ВС = 5 см
а) (5 + 4 + 4 + 3 + 3 + 2 + 2 + 1 + 1) • 5 мм = 25 • 5 мм = 125 мм = 12 см 5 мм
б) (3 + 3 + 5 + 2 + 2 + 3 + 1 + 1 + 1) • 4 мм = 21 • 4 мм = 84 мм = 8 см 4 мм
КЕ = РF = ЕТ = 4 см
КF = РТ = 6 см
1) (7 - 1) • 3 = 18 (см) – довжина першого відрізка.
2) (10 - 1) • 2 = 18 (см) – довжина другого відрізка.
Відповідь: відстань між крайніми точками однакова на двох відрізках.
МК = МС + СК = ВМ + КD = 4 см
ВD = ВМ + МС + СК + КD = (ВМ + КD) + (МС + СК) = 4 см + 4 см = 8 см
АЕ - ВD = 12 см – 8 см = 4 см = AQ + QB + DR + RE
АQ + QВ + DR + RЕ = 2 • АQ + 2 • RЕ = 2 • (АQ + RЕ) = 4 см ,
маємо АQ + RЕ = 4 см : 2 = 2 см
QR = АЕ – (АQ + RЕ) = 12 см – 2 см = 10 см
Відповідь: QR = 10 см.
85.






https://shkola.in.ua/2714-hdz-matematyka-5-klas-merzliak-2022.html
1) 38 • 17 – 4832 : 16 = 344


2) 3596 – 3596 : (2314 – 2256) = 3534

87.


1) 5 • 4 = 20 (кг) – цукерок подарували;
2) 3 • 6 = 18 (кг) – печива подарували; 3) 20 – 18 = 2 (кг) – на стільки кілограмів
Відповідь: цукерок
88.

1) 246 + 354 = 600 (кг) –
2) 600 : 6 = 100 (кг) – фруктів
3) 600 : 5 = (500 + 100) : 5 = 120 (кг) – фруктів
4)100 + 120 = 220 (кг) –
5) 600 – 220 = 380 (кг) –
1) 120 : 10 = 12 (Мб/с) - швидкість
2) 12 + 3 = 15 (Мб/м)
3) 120 : 15 = 8 (с)
1) 312·10=3120; 2) 5·1000=5000; 3) 100·10 000=1 000 000; 4) 720:9=80; 5) 480:4=120; 6) 480:16=30; 7) 1212:12=101; 8) 1010:5=202.
https://shkola.in.ua/2714-hdz-matematyka-5-klas-merzliak-2022.html
26·2=52; 26:2=13; 27·3=81; 27:3=9. 3.
1) 15-10=5(год) – час у дорозі.
2) 60·5=300(км) – буде відстань о 15 год.
Вираз: 60·(15-10)=300(км)
Відповідь: о 15 год відстань буде 300 км.
4.
Нехай х (м)
частини мотузки, а х-3 (м) –
х+3-(х-3)= х+3-х+3 = 6(м)
Відповідь: довжина
MN, NM, MK, KM, MP, PM, NK, KN, NP, PN,

1) правильне;
2) неправильне;
3) правильне; 4) правильне; 5) неправильне; 6) правильне.

https://shkola.in.ua/2714-hdz-matematyka-5-klas-merzliak-2022.html

Розв’язання 2
1) Чотири точки, три з яких не лежать

2) П’ять точок, три з яких не


Точки: M, N
Прямі: AB
Відрізок: MN
Промені: МА, МВ, NA, NB. 101.
a) відрізок: АК.
прямі: NC, MB, MD;
промені: AB, AN, AM, AC, KD, KN, KM, KC.
б) відрізок: AC.
прямі: BD, EK, TB.
промені: AD, CB, CD, FE, FB, FK, FT; 102.

Прямі EF .
Промені DE, DF, DK, AK, CK, BE, BF.
Відрізки AD, AC, AB, BD, BC, DF, DC.
https://shkola.in.ua/2714-hdz-matematyka-5-klas-merzliak-2022.html


1) 4 • 2 = 8 променів.
2) 100 • 2 = 200 променів.

ВС = АС – АВ = 32 см – 24 см = 8см.
ВС = АС + АВ = 32 см + 24 см = 56 см.

KN = MK – MN = 15 см – 6 см = 9 см.
KN = MK + MN = 15 см + 6 см = 21 см. 108.

5 • 4 : 2 = 20 : 2 = 10 (точок).
1) 1; 2) 10.

111.
112.
https://shkola.in.ua/2714-hdz-matematyka-5-klas-merzliak-2022.html
1) 168 : 4 = (160 + 8) : 4 = 42 (д.) ─ беріз росте; 2) 42 + 37 = 79 (д.) ─ кленів росте;
3) 168 + 42 + 79 = 289 (д.) ─ дерев всього в парку.
Відповідь: у парку росте 289 дубів, беріз і кленів.
1) 72 • 5 = (70 + 2) • 5 = 360 (км) ─ відстань проїхала поїздом; 2) 360 ─ 128 = 232 (км) ─ відстань проїхала автобусом;
3) 72 + 360 + 232 = 664 (км) ─ відстань подолали туристи.
Відповідь: туристи подолали 664 км.
1) 276 : 4 = (240 + 36) : 4 = 69 (км/год) ─ швидкість ступи;
2) 156 : 6 = (120 + 36) : 6 = 26 (км/год) ─ швидкість чобіт скороходів;
3) 69 ─ 26 = 43 (км/год) ─ на стільки швидкість ступи більша, ніж чобіт скороходів.
Відповідь: швидкість ступи на 43 км/год більша за швидкість чобіт скороходів. 113.
1) 95 : 5 = (50 + 45) : 5 = 19 (км/год) ─ швидкість за течією річки;
2) 119 : 7 = (70 + 49) : 7 = 17 (км/год) ─ швидкість
3) 19 ─ 17 = 2 (км/год) ─ на стільки швидкість
течією річки.
Відповідь: швидкість
114.
4 • (20 ─ 1) = 4 • 19 = 4 • (9 + 10) = 76 (см) —
Відповідь: 76 см. 115.
1) 45 : 5 = 9 (в.) —
2) 9 + 1 = 10 (т.) — точок позначено.
Відповідь: на прямій було позначено 10 точок. 116.
6 • 3 – 2 = 16

1) 18 + 14 = 18 + 12 + 2 = 32; 2) 180 + 140 = 180 + 120 + 20 = 320; 3) 180 + 14 = 194; 4)
https://shkola.in.ua/2714-hdz-matematyka-5-klas-merzliak-2022.html
7 • 6 = 42 (см) ─ довжина ламаної. Відповідь: довжина
42 см. Вправи 117.
а) 10°С, б) 25°С, в) 18°С, г) 21°С. 118.
1) 18 ─ 6 = 12 (°С); 2) 18 + 4 = 22 (°С). 119.
1) 21 + 3 = 24 (°С); 2) 21 ─ 5 = 16 (°С). 120.
1) Лінійка, 2) Секундомір, 3) Рулетка, 4) Термометр. 121.

122. 65 - 40 = 15 (км/год)
1) у точці А швидкість автомобіля рівна 40 км/год
2) у точці В швидкість
3) у точці С швидкість автомобіля

руху.
руху.

A(1), В(3), С(7), D(8), Е(10) 124. Р(2), К(3), S(6), Т(7), F(11)
125.


https://shkola.in.ua/2714-hdz-matematyka-5-klas-merzliak-2022.html

128.
1) 1, 2, 3, 4, 5, 6, 7, 8, 9, 10, 11; 2) 9, 10, 11, 12, 13, 14, 15, 16, 17. 129.

4, 5, 6
130.
131.
132.
6, 7, 8, 9
1) 133, 134, 135, 136, 137, 138, 139; 2) 488, 489, 490, 491; 3) 2127; 4) нема жодного натурального числа.
1) 235, 236, 237, 238; 2) 1519, 1520, 1521, 1522, 1523; 3) 7565.
133. 134. 135.

1) 6

https://shkola.in.ua/2714-hdz-matematyka-5-klas-merzliak-2022.html
А(10), В(90), С(50), D(140), Е(190), F(125)


М(10), N(80), Р(70) , Т(130), К(180), S(155) 139.





https://shkola.in.ua/2714-hdz-matematyka-5-klas-merzliak-2022.html

82 – 8 = 74
408 + 16 = 424 146.
1) Так, зможе.
1 спосіб
5 + 5 — 3 = 7 (стрибок вправо на 5 одиничних відрізків, стрибок вправо на 5 одиничних відрізків, стрибок вліво на 3 одиничні відрізки).
2 спосіб
5 — 3 + 5 = 7 (стрибок вправо на 5 одиничних відрізків, стрибок
відрізки, стрибок вправо на 5 одиничних відрізків).
2) Так, зможе.
1 спосіб 5 + 5 + 5 + 5 — 3 — 3 — 3 — 3 = 20 — 12 = 8




5.
6.
https://shkola.in.ua/2714-hdz-matematyka-5-klas-merzliak-2022.html
(12 – 4):4 = 2 (°С) - ціна поділки
Відповідь : 2°С.
1) 12 : 4 = 3 (щ.) – щіток треба 1
2) 3 • 5 = 15 (щ.) – щіток
Відповідь: 15 щіток
1) (27 + 13) • 8 = 40 • 8 = 320
2) (56 - 26) • 9 = 30 • 9 = 270
3) (82 - 71) • 6 = 11 • 6 = 66
4) (128 - 53) : 3 = 75 : 3 = 25
5) 63 : (25 - 16) = 63 : 9 = 7
6) 120 : (26 + 14) = 120 : 40 = 3
2 + 1 = 3 (ол.) – найменша кількість
Відповідь: 3 олівці. Вправи
152.
1) 4 менше від 9; 2) 18 більше за 10; 3) 257 менше від 263; 4) 132 більше за 95; 5) 12 більше за 8 , але менше від 20; 6) 30 більше за 29, але менше від 31. 153.
1) 16 > 13; 2) 2516 < 3939; 3) 4 < 5 < 6; 4) 30 < 40 < 50. 154.
1) 326 < 362;
2) 483 > 480; 3) 1999 < 2002; 4) 6235 > 6196; 5) 21 396 > 21 298; 6) 72 168 < 72 170; 7) 5 716 007 > 5 715 465; 8) 3 654 987 < 3 654 991; 9) 4 398 657 436 < 4 398 659 322; 10) 16 000 023 009 < 16 000 032 000 155.
1) 642 > 624; 2) 786 > 779; 3) 4897 < 5010; 4) 4455 < 5444; 5) 1 400 140 < 1 401 400; 6) 224 978 < 224 988; 7) 6 130 852 < 6 130 941; 8) 5 287 746 525 > 5 287 736 638. 156. 479, 591, 701, 846, 894 157. 149, 256, 489, 550, 607, 806.
https://shkola.in.ua/2714-hdz-matematyka-5-klas-merzliak-2022.html
158.
1) 679, 680, 681, 682, 683; 2) 2 934 450, 2 934 451, 2 934 452, 2 934 453; 3) 12 707; 4) немає жодного. 159.
1) 550, 551, 552, 553, 554, 555; 2) 1 823 237, 1 823 238, 1 823 239; 3) 47 247 . 160.

161.
1) 5260 < 5261
2) 4345 > 4308; 4345 > 4318; 4345 > 4328; 4345 > 4338
3) 7286 < 7288; 7286 < 7298
4) 2809 > 2710 ; 2909 > 2710 162.
1) 3218 > 3217; 3219 > 3217
2) 9300 < 9332 ; 9310 < 9332; 9320 < 9332; 9330 < 9332 163.
1) 9994; 2) 1009 164.
550, 551, 552, 553, 554, 555, 556, 557, 558, 559, 650, 651, 652, 653, 654, 655, 656, 657, 658, 659.
165.
Існує 20 таких чисел.
Наприклад,
166. Можна записати
таких чисел (2368, 2378, 2388, 2398, 2408, 2418, 2428), 2368 –

4)
https://shkola.in.ua/2714-hdz-matematyka-5-klas-merzliak-2022.html
цифр більша. 172.
1) 2 км > 1968 м, бо 2 км=2 • 1 км=2 • 1000 м=2000 м, а 2000 м > 1968 м;
2) 4 дм < 4 м, бо 4 м=4 • 1 м=4 • 10 дм=40 дм, а 4 дм < 40 дм;
3) 3 км 94 м < 3126 м, бо 3 км 94 м = 3 • 1 км + 94 м =3 • 1000 м + 94 м = = 3094 м, а 3094 м < 3126 м;
4) 712 кг < 8 ц, бо 8 ц = 8 • 1 ц = 8 • 100 кг = 800 кг, а 712 кг < 8800 кг;
5) 15 т > 35 ц, бо 15 т = 15 • 1 т = 15 • 100 ц = 1500 ц, а 1500 ц > 35 ц;
6) 6 ц 23 кг < 658 кг, бо 6 ц 23 кг = 6 • 1 ц + 23 кг = 6 • 100 кг + 23 кг = = 623 кг, а 623 кг < 658 кг;
7) 4 т 275 кг = 42 ц 75 кг, бо 4 т 275 кг = 4
8) 5 т
10)
+
см=8
10 дм + 3 дм= = 83 дм, а 83 дм 7см > 83 дм. 173.
1) 6892 м < 7 км, бо 7 км = 7 • 1 км = 7
2) 8 см < 8 дм, бо 8
3)
а 4043 < 4210 м;
4)
а 273 см > 270 см;
5) 9 ц > 892 кг, бо 9 ц
1000 м = 7000м, а 6892 м < 7000 м;


175.
https://shkola.in.ua/2714-hdz-matematyka-5-klas-merzliak-2022.html
3) 3000 – (1085 - 833) : 42 = 2994 4) (1248 + 652) • (1423 - 1373) =


1) 420 + 420 = 840 (кг) - використає борошна для приготування 2 порцій; 2) 1000 - 840 = 160 (кг) - залишиться в пакеті.
Відповідь: 160 кг борошна залишиться в кілограмовому
приготує дві порції галушок.
176.
1) 48 : 24 = 2 (р.) – у стільки разів більше суконь
міститься у 48 м.
2) 7 • 2 = 14 (с.) – суконь можна пошити. Відповідь: 14 суконь.
177.
178.
1) 1935 - 1918 = 17 (р) - В. О. Сухомлинський
2) 1970 - 1948 = 22 (р) - В. О. Сухомлинський
3) 1970 - 1935 = 35 (р) - В. О. Сухомлинський
1) 97 - 12 = 85(м) - висота дзвіниці
2) 58 + 18 = 70 (м) - висота
3) 85 - 70 = 15 (м) - різниці
2.
ряду передує числу 5100? А) 5009; Б) 5939; В) 5099; Г) 5199.
Відповідь: В) 5099.
А) 48; Б) 49; В) 50; Г) 51.
Відповідь:
школою;
31 і 82?
32, 33, 34, 35, 36, 37, 38, 39, 40, 41, 42, 43, 44, 45, 46, 47, 48, 49, 50, 51, 52, 53, 54, 55, 56, 57, 58, 59, 60, 61, 62, 63, 64, 65, 66, 67, 68, 69, 70, 71, 72, 73, 74, 75, 76, 77, 78, 79, 80, 81.
82 - 31 = 51
Г) 51
3. Яка цифра записана в розряді десятків класу тисяч числа 243 786?
А) 2; Б) 4; В) 3; Г) 8
Відповідь: Б) 4.
https://shkola.in.ua/2714-hdz-matematyka-5-klas-merzliak-2022.html
А) 2 020 200; В) 2 002 200; Б) 2 200 200; Г) 2 200 020.
Відповідь: В) 2 002 200
5. Чому дорівнює довжина відрізка AD,
на рисунку, якщо AC = 18 см, BD = 20 см, BC = 6 см?
А) 38 см; Б) 32 см; В) 28 см; Г) 26 см.

Відповідь: AD = (AC + BD) - BC = (18 + 20) - 6 = 32 см Б) 32 см.
6. Яка з позначених точок не
BD,
рисунку? А) B; Б) E; В) M; Г) K

Відповідь: В) M Покрокове пояснення:
відноситься до нього. З правого

Відповідь: Б) 6.
А) 70; Б) 75; В) 80;

Відповідь: А) 70. 9.
А) 8; Б) 7; В) 6; Г) 9 Відповідь: В) 6.
15? А) 13; Б) 14; В) 15; Г) безліч
В) 15 (від 0 до 14). 11.
5; Б) 7; В) 8; Г) 9
Г) 9 (2, 12, 20, 21, 22, 23, 24, 25). 12.
6
< 598
2
Б) 7 ц 32 кг > 723 кг.
1. В.
2. В.
3. Б.
4. А.
5. Б.
6. В.
7. Б.
8. А.
9. В.
10. Б.
11. Г.
12. Б.
https://shkola.in.ua/2714-hdz-matematyka-5-klas-merzliak-2022.html
1) 23 + 17 = 40; 2) 230 + 17 = 247; 3) 23 + 170 = 193; 4) 30 – 13 = 17;
90 : 2 = 45 – перше число
45 + 1 = 46 –
число Відповідь: 45, 46
5) 300 – 130 = 170; 6) 300 – 13 = 287; 7) 12 • 4 = 48; 8) 12 • 40 = 480;
9) 120 • 40 = 4800; 10) 72 : 8 = 9; 11) 720 : 8 = 90; 12) 720 : 80 = 9.
Існує 9 таких чисел: 18, 27, 36, 45, 54, 63, 72, 81, 90 4.
1) найбільше з можливих: 8 724 516
2) найменше з можливих: 8 724 516 5.
На кнопку 1. Тому, що




https://shkola.in.ua/2714-hdz-matematyka-5-klas-merzliak-2022.html







184.
185.
1) 26 + 16 = 42 (з.) – розв’язала Наталка;
2) 26 + 42 = 68 (з.) – розв’язали Микола і Наталка разом.
Відповідь: 68 задач.
1) 74 + 24 = 98 (грн) – заплатила Галинка;
2) 74 + 98 = 172 (грн) – заплатили разом.
Відповідь: разом Михайлик і Галинка за
172 грн. 186.
1)(42+37)+58=(42+58)+37=100+37=137
2)29+(98+71)= (29+71)+98=100+98=198
3)(215+818)+785=(215+785)+818=1000+818=1818
4)634+(458+166)=(634+166)+458=800+458=1258
5)183+732+268+317=(183+317)+(732+268)=500+1000=1500
6)339+584+416+661=(339+661)+(584+416)=1000+1000=2000 187.
1)(146+322)+178=146+(322+178)=146+500=646
2) 784+(179+116)=(784+116)+179=900+179=1079
3) 625+481+75+219=(625+75)+(481+219)=700+700=1400
4) 427+88+203+102=(427+203)+(88+102)=630+190=820 188.
1) 38 + 16 = 54 (г.) –
2) 38 + 23 = 61 (г.) – зібрала Сіренька;
3) 38 + 54 + 61 = 153 (г.) –
189.
1) 28 131+1 701=29 832(км2 )
2) 2033+29832=31865(км2 ) –
3) 28131+29832+31865=89828(
1) 17+18=35(кн.)
2) 17+35=52(кн.)
3) 52+6=58(кн.)
4)17+35+58=110(кн.)
192.
https://shkola.in.ua/2714-hdz-matematyka-5-klas-merzliak-2022.html
1) 42+12=54(км) – відстань подолали
2) 42+54=96(км) – відстань
3) 96+4=100 (км) –
4) 42+54+100=196(км) –
1)(74+х)+38=х+(74+38)=х+112
2)238+(а+416)=а+(238+416)=а+654
3)у+324+546=у+(324+546)=у+870
4)2753+m+4199=m+(2753+4199)=m+6952
5)(b+457)+(143+872)=b+(457+143)+872=b+(600+872)=b+1472
6)(2235+c)+(4671+1765)=c+(2235+1765)+4671=c+(4000+4671)=c+8671 193.
1) (56+а)+14=а+(56+14)=а+70
2) 342+(b+58)=b+(342+58)=b+400
3) 805+x+195=x+(805+195)=x+1000
4) m +4563+1837=m+6400 194.
1) збільшиться на 12.
2) збільшиться на 40, бо 23+17=40
3) зменшиться на 34
4) зменшиться на 25, бо 16+9=25
5) збільшиться на 13, бо 28-15=13 195.
14-3=11 196.
1)8-3=5 – другий доданок треба
2)8+5=13 – другий доданок треба зменшити на 13. 197.
1) 76м39см+41м58см=7639см+4158см=11 797см=117м97см
2)4км238м+3км474м=4 238м+3 474м=7 712м=7км712м
3)64м86см+27м45см=6486см+2 745см=9 231см=92м31см
4)16км527м+37км783м=16527м+37 783м=54310м=54км 310м
5) 12ч24хв+9ч18хв=21ч42хв
6) 35хв17с+16хв35с=51хв52с
7) 18год42хв+14год29хв=32год71хв=33год11хв
8) 53 хв32с+44хв56с=97хв88с=98хв28с=1год38хв28с. 198.
1) 4дм6см+5дм8см=46+58см=104см=10дм4см=1м4см
2) 8м5см+6м96см=805см+696см=1 501см=15м1см
3) 12км29м+24км92м=12029м+24092м=36121м=36км121м
4) 2т4ц56кг+9т6ц48кг=2 456кг+9 648кг = 12 104кг= 12т 1ц 4кг
5) 3 год48хв + 2 год26хв=5 год 74хв=6 год 14хв
6) 25хв17с+7хв54с=32хв71с=33хв11с 199.
200.
15год 40хв+3год50хв=18год90хв=19год30хв-
202.
203.
204.
https://shkola.in.ua/2714-hdz-matematyka-5-klas-merzliak-2022.html


1)1+2+3+…+9+10=1+2+3+4+5+6+7+8+9+10= =(1+9)+(2+8)+(3+7)+(4+6)+(5+10)=10+10+10+10+15=55
2)1+2+3+…+99+100=(1+99)+(2+98)+(3+97)+…(49+51)+50= =100 50+50=5000+50=5050
1)2+4+6…+100-(1+3+5+…99)=(2-1)+(4-3)+(6-5)+…+(100-99)=50·1=50
2)1+3+…+2001-(2+4+6+…+2000)=1+(3-2)+(5-4)+(7-6)+…+(2001-2000)= =1+1000·1=1+1000=1001
205. 444+44+4+4+4=500
206. 7,9,4,7,9,4,7,9.
207.

208. 999895,999905,999915,999925,999935,999945,999955,999965,999975, 999985,999995.
209.
1)36:4=9(км/год) – швидкість велосипедиста; 2)9+3=12(км/год) – швидкість
3)36:12=36:6:2=3(год) –
https://shkola.in.ua/2714-hdz-matematyka-5-klas-merzliak-2022.html
1.
(24 + 18) + 36 = (24 + 36) + 18 = 60 + 18 = 78
2.
(418 + 232) · 2 = 650 · 2 = (600 + 50) · 2 = 1200 + 100 = 1300.
3.
(103 + 47) : 3 = 150 : 3 =50.
4.
15 – 9 = 6 (л.) – люди, що вчинили неправильно. Відповідь: 6 людей. 5.
9 – 4 – 4 + 9 – 4 = 1 + 5 = 6 (л.) Нехай у
















https://shkola.in.ua/2714-hdz-matematyka-5-klas-merzliak-2022.html

219. (


1)74-60=14(км/год) –
221.
222.
2)128-80=48(км/год) –
223.
1) 26 – 24 = 2 (км/год) –
2) 26 + 2 = 28 (км/год) –
Відповідь: 28 км/год.
1) 28 – 3 = 25 (км/год) –
2) 25 – 3 = 22 (км/год) – швидкість
річки. Відповідь: 22 км/год.
1) 306-28=278(Мб) –
файлу; 2) 306+278=584(Мб) – обсяг
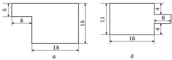
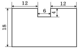
файлів; 3) 600>584
Відповідь: можна.
224.
225.
1) 5624-2931=2693(км)-довжина
2) 5624+2693=8317(км) –
Відповідь: загальна
1)74-16=58(г.) – зібрав
2)74+58=132(г.) –
226.
227.
https://shkola.in.ua/2714-hdz-matematyka-5-klas-merzliak-2022.html
1) 544 000 – 94 000 = 450 000 (км2) площа Швеції; 2) 450 000 + 154 000 = 604 000 (км2) – площа України. Відповідь: площа України становить 604 000 км2
1) (7829 - 5878) – (20 000 – 18 453) = 404;

2) (5689 – 3458 + 1723) - (25 002 – 24 848) + 2967 = 6767





228.
1) 84218-57134+34615=61699


2)(44516-17398)-(14259+12262)=597



229.
230.
1)21-8=13(км)- дорогу побудували
2)21+13=34(км) –
3)34-13=21(км)- дороги
4)21+21+13=55(км) –
відстань між
1)53-15=38(р.) – рибак
2)53+38=91(р.) –
231.
232.
233.
234.
разом;
3)192-91=101(р.) – рибак зловив Сомов; Відповідь: Сомов
1)240-112=128(кг)- персиків зібрав Джин;
2)193-128=65(кг) – персиків зібрала Жасмин;
3)112-65=47(кг) – персиків
1) 124 – 78 = 46 (кв.) – гладіолусів;
2) 46 + 9 = 55 (кв.) – троянд; 3) 78 – 55 = 23 (кв.) – жоржин.
1)128-105=23(км) – довжина ходів
2)23-14=9(км) – довжина
3)9+222=231(км) – довжина ходів
1) 24 017 – 15 035 < 12 386 – 2987 вірно.
https://shkola.in.ua/2714-hdz-matematyka-5-klas-merzliak-2022.html


8982 < 9399
2) 1674 - (673 + 437) > 1885 - (648 + 664) не вірно 235.




6011 – (1539 - 438) < 5791 – (2418 - 1336) не вірно.

4910 > 4709 236.
1)76м39см-41м24см=35м15см
2)64м45см-27м86см=63м145см-27м86см=36м59см
3)22км527м-17км783м=21км1527м-17км783м=4км744м
4)12год24хв-9год18хв=3год6хв
5)35хв17с-15хв35с=34хв77с-15хв35с=19хв42с
6)53год32хв-44год56хв=52год92хв-44год56хв=8год36хв 237.
1)3дм2см-2дм6см=32см-26см=6см
2)4км8м-1км19м=4008-1019м=2989м=2км989м
3)16год26хв-9год52хв=15год86хв-9год52хв=6год34хв
4)10хв4с-5хв40с=9хв64с-5хв40с=4хв24с 238.
9год12хв-7год37хв=8год72хв-7год37хв=1год35хв 239.
Відходить - ?
Рухається – 6 год 48 хв
Прибуває – о 15 год 20 хв 15 год 20 хв
поїзд




15+6=21(п.)


243.
https://shkola.in.ua/2714-hdz-matematyka-5-klas-merzliak-2022.html
1)7+9=16(сл.)- з’їв Євген;
2)14+5=19(сл.) – поклала мама;
3)19-16=3(сл.) – різниця
4)20-3=17(сл.) – було спочатку; 244.
1) 26 – 14 = 12 (ящ.) –
2) 192 : 12 = 16 (кг) – яблук у одному ящику;
3) 16 · 26 = 416 (кг) – яблук зібрав першого дня;
4) 16 · 14 = 224 (кг) – яблук зібрав другого дня. 245.
1)13-7=6(год) – на стільки
2)360:6=60(км/год) – швидкість поїзда;
3)60·7=420(км) – відстань пройшов один поїзд;
4)60·13=60·(10+3)=780(км)-відстань
246.
247.
1)(412+116)-112=(412-112)+116=300+116=416
2)(593+675)-275=(675-275)+593=400+593=993
3)844-(244+318)=844-244-318=600-318=282
4)729-(396+229)=729-229-396=500-396=104
1)(176+343)-243=176+(343-243)=176+100=276
2)(684+915)-484=(684-484)+915=200+915=1115
3)1287-(487+164)=1287-487-164=800-164=636
4)971-(235+371)=971-371-235=600-235=365 248.
1) (35 + х) – 15 = х + 35 – 15 = х + 20;
2) (432 + b) – 265 = 432 – 265 + b = 167 + b;
3) 96 – (m + 48) = 96 – m – 48 = (96 – 48) – m = 48 – m;
4) 516 – (216 + x) = 516 – 216 – x = 300 – x.
249.
1) (a + 546) – 328 = a + 546 – 328 = a + 218;
2) (c + 961) – 592 = c + 961 – 592 = c + 369;
3) 272 – (125 + y) = 272 – 125 – y = 147 – y; 4) 925 – (p + 735) = 925 – p – 735 = (925 - 735) – p = 190 – p. 250.
https://shkola.in.ua/2714-hdz-matematyka-5-klas-merzliak-2022.html
1+2+3-4+5+6+78+9=100 123+45-67+8-9=100 253.

4)690-2944:64·15=0



254. 1 2 AC = 1 2 CB =6 см Отже, АВ = 12 см · 2 = 24 см 255.


256.
1) Або точка К (4) або точка Е(10); 2) F(15) віддалена від
1)2кг400г +1кг140г+1кг70г+700г=4кг1310г=5кг310г 2)5кг<5кг310г Відповідь: не донесе. 257.

https://shkola.in.ua/2714-hdz-matematyka-5-klas-merzliak-2022.html
«+у», потрібно написати «



1)6+4=10(м/хв)
2)6-4=2(м/хв)

1)12+16; 2)39-24; 3)18·19; 4)98:14; 5)(238+124)-95; 6)39·16+48·2; 7)204:6-102:3; 8)(53+38)·(53-38).
263.
3)а:4; 264.
265.
266.
267.
268.
https://shkola.in.ua/2714-hdz-matematyka-5-klas-merzliak-2022.html
1)2а-вартість двох олівців; 2)7b-вартість семи зошитів;
3)5а+3b-вартість п’яти олівців та трьох зошитів;
4)9b-4a-на скільки дев’ять зошитів дорожчі, ніж чотири олівці.
1)56+42:14-7=56+3-7=52
2)(56+42):(14-7)=98:7=14
3)(56+42):14-7=98:14-7=0
4)56+42:(14-7)=56+42:7=56+6=62
1)374-268=106
2)714+569+988=2271
3)836-314+625-442=705
1)894+653=1547
2)2316-1495-569=252
У цьому класі (а+14) учнів.
Формула швидкості V=s:t
Якщо t=8год, то V=s:8(км/год) Відповідь:s:8 км/год-швидкість


1)4·26-7=104-7=97
2)4·15-7=60-7=53
276.
277.
278.
279.
https://shkola.in.ua/2714-hdz-matematyka-5-klas-merzliak-2022.html
1)86-5·17=86-85=1
2)86-5·9=86-45=41


1)(238-149)+506=89+509=595
2)(48+16):(48-16)=64:32=2
3)(124+126) (313-307)=250·6=1500
4)(32 15) – (896:28)=480-32=448

1)b=5195
2318+ b+6682=(2318+6682)+ b=9000+ b=9000+5195=14195
2)m=700
829-329+ m=(829-329)+ m=500+ m=500+700=1200 280.
284.
285.
286.
287.
https://shkola.in.ua/2714-hdz-matematyka-5-klas-merzliak-2022.html

1)Якщо t=4, тоді 712-18· t=712-72=640(т.) – залишилось
2) Якщо t=12, тоді 712-18· t=712-216=496(т.) – залишилось
15+3t(грн) – вартість оренди;
Якщо t=10, то Р=15+3t=15+3·10=45(грн)
Якщо t=25, то Р=15+3t= 15+3·25=90(грн)
Гіпотеза: S=(n+1)·n:2
1) Якщо n=15, то S=(15+1)·15:2=120
1+2+3+…+15=(1+15)+(2+14)+(3+13)+…+(7+9)+8= =7·16+8=112+8=120
Гіпотеза підтверджується.
2) Якщо n=20, то S=(20+1) 20:2=210
1+2+3+…+20=(1+20)+…+(10+11)=10·21=210
Гіпотеза підтверджується.

288.
1)198-126=72(грн) вартість придбаних
2)72:18=4(збірок)
1)25-15=10(кг) –
2)10·2=20(кг)
3)25-20=5(кг)
291.
https://shkola.in.ua/2714-hdz-matematyka-5-klas-merzliak-2022.html


4.
2) a-b=10; 4) a -10=b; 5) b+10=a.
5.
3кг·4=2кг·6
1) х+16=28
х=28-16
х=12
292.
1) 234-у=220
у=234-220
у=14
293.
1) 238+у=416
у=416-238
у=178
3) 895-а=513
а=895-513
294.
2) 4х-5=7
4х=7+5
4х=12
х=3
2) 72:b+13=19
72:b=6
b=72:6 b=12
2) а+157=324
а=324-157
а= 167
4) m-2092=1067
m=2092+1067
а=382 m=3159
1) х+48=94
х=94-48
2) 234+у=452
у=452-234
х=46 у=218
3) х-174=206
х=174+206
4) 378- b=165
b=378-165
х=380 b= 213
296.
https://shkola.in.ua/2714-hdz-matematyka-5-klas-merzliak-2022.html
1) (134+х) – 583=426
134+х=426+583
134+х=1009
х=1009-134
х=875
3) (942-а) – 126=254
942- а = 254+126
а =942-380
а = 562
5) 403-(634-а)=366
634-а=403-366
а = 634-37
а =597
1) (39+х)-84=78
39+х=162
х=162-39
х= 123
3) (600-х)-92=126
600-х=126+92
х=600-218
х=382
297.
298.
2) (х-506)+215=429
х-506=429-215
х-506=214
х=214+506
х=720
4) 475-(х-671)=325
х - 671 = 475-325
х=150+671
х=821
6) 987- (х+364)=519
х+364=987
х=987-364
х=104
2) (х-83) +316=425
х-83=425-316
х=109+83
х=192
4) 253 – (х-459)=138
х-459= 253-138
х=115+459
х=574
5) 502-(217-х)=421 6) 871-(х+157)=385
217-х=502-421 х+157=871-385
х=217-81
х=136
1) 96-(х+43)=25
х=486-157
х=329
2) (74-х)+25=68
74-х=68-25 74-х=68-25
х=74-43 х=74-43
х=31
1) (х+27)-14=36
х=31
2) (60-х)-20=28
х+27=50 60-х=48
х=50-27
299.
х=60-48
х=23 х=12
1) (х+а)-7=42
2) (а-х)+4=15
22+а =49 а-х=11
а=49-22 а=11+3
а=27
300.
а=14
1) (х-7)+а=23 якщо х=9 2) (11+х)+101=а якщо х=5 (9-7)+а=23 (11+5)+101=а
2+а=23
а=23-2=21
а=16+101
а=117
https://shkola.in.ua/2714-hdz-matematyka-5-klas-merzliak-2022.html

303.



1) 2·5-3=7; 7=7
2) 5+20=20+5; 25=25
3) 36-3·5=36-15=21; 21≠20


4) 5·5·5+25=125+25=150;150=150
5)0·5=0; 0≠10
6)5+12=22-5;17=17
Відповідь:
https://shkola.in.ua/2714-hdz-matematyka-5-klas-merzliak-2022.html

Утворилися кути: ∠AOC, ∠MOC, ∠АОM.
308.
Сторону ∠ВОС перетинають промені AK і ST. 309.
Сторону ∠ВОС перетинають промені RP і FE. 310.

Утворилися кути: ∠MNE, ∠MNA, ∠MNC, ∠ANC, ∠ANE, ∠CNE.
311.
312.
313.
314.
∠ABF=∠ABE+∠EBF=∠CBF+∠EBF=∠EBC
Відповідь: ∠ABF=∠EBC.
∠AOC=∠AOB+∠BOC=∠DOE+∠COD=∠COE
∠AOD=∠AOB+∠BOD=∠DOE+∠BOD=∠BOE
Відповідь: ∠AOC=∠COE, ∠AOD=∠BOE
∠FOM = ∠FOK - ∠MOK = ∠MOE - ∠MOK = ∠KOE
Відповідь: ∠FOM = ∠KOE
1) (18+20)·8 = (10+8+20)·8=80+64+160 = 304
2) (128-29):11 = 99:11 = 9
3) (15·6):(15-6) = 90:9 = 10
315.
1 Спосіб:
1) 42-8=34(уч.) – стало
2) 34-8=26 (уч.) –
2 Спосіб:
8=х+8
34=х+8 х=34-8 х=26
317.
318.
319.
https://shkola.in.ua/2714-hdz-matematyka-5-klas-merzliak-2022.html
1)30:15=2(год) – час руху велосипеда.
2) 30·2=60(км) –
Відповідь: птах пролетів 60 км. Розв’язуємо усно Сторінка 98
1) на 27 більше за друге (30-3=27)
2) на 15 менше від другого (45-30=15)
3) у 7 разів менше від другого (42:6=7) 4) у 3 рази більше
10го8хв-10хв=9год68хв-10хв=9год+(68хв-10хв)=9год58хв – година насправді.
16год55хв+7хв=16год62хв=17год2хв-година насправді.
3км=3000м
1) 3000:20=150(в.) – відрізок між деревами на вулиці.
2) 150+1=151(д.) – дерев посаджено.
3) 5-1=4(в.) – відрізків між деревами.
4) 20·4=80(м.) – відстань між першим і
Відповідь: посаджено 150 дерев, відстань між першим
80 м.
а) Прямий ∠А; Гострий ∠С, ∠М; Тупий
б) Прямий ∠О; Гострий ∠Р; Тупі
Гострі: ∠В=84°,∠Е=60°, ∠М=72°.
Тупі: ∠А=96°,∠R=162°,∠Q=100°.
Прямий: ∠D=90°.
Розгорнутий: ∠S=180°.
Бісектриса ділить кут
1) 24°:2=12°
2) 170°:2=85°
320.
∠Q.
321.
322.
Бісектриса
1) 37°·2=74°
2) 75°·2=150°
1) ∠АОВ=40°; 2) ∠АОС=90°; 3) ∠АОЕ=150°; 4) ∠EOF=30°; 5) ∠DOF=70°.
∠FTC=33°(гострий кут); ∠HQR=90°(прямий кут)
∠POB=120°(тупий кут); ∠SNE=125°(тупий кут) 323.
∠BCQ=110°(тупий кут); ∠PRT=134°(тупий кут)
∠EFM=40°(гострий кут); ∠AKS=68°(гострий кут)
https://shkola.in.ua/2714-hdz-matematyka-5-klas-merzliak-2022.html




330.
331.
332.
333.
334.
https://shkola.in.ua/2714-hdz-matematyka-5-klas-merzliak-2022.html
∠AOK=90°, ∠COP=54°,∠COK=180°
∠AOP-?
∠COP+∠AOP+∠AOK=∠COK
∠AOP=∠COK-∠AOK-∠COP=180°-90°-54°=36°
Відповідь: 36°.
∠С – найбільший кут, ∠D – найменший.

∠CDE=152°, ∠CDA=98°
∠ADE-?
∠CDE=∠CDA+∠ADE
∠ADE=∠CDE-∠CDA=152°-98°=54°
Відповідь: 54°.

∠ABC=106°, ∠ABD=34°
∠DBC-?
∠ABC=∠ABD+∠DBC
∠DBC=∠ABC-∠ABD=106°-34°=72°
Відповідь: 72°.
∠BOM=90°, ∠BOC=74°,∠AOM=62°
∠AOC-?
1) ∠AOB=∠BOM-∠AOM=90°-62°=28°
2) ∠AOC=∠BOC-∠AOB=74°-28°=46°
Відповідь: 46°.
∠ACP=180°, ∠ACF=158°,∠TCP=134°
∠TCF-?
1) ∠ACT=∠ACP-∠TCP=180°-134°=46°
2) ∠TCF=∠ACF-∠ACT=158°-46°=112°
Відповідь: 112°.
335.
1)
https://shkola.in.ua/2714-hdz-matematyka-5-klas-merzliak-2022.html
90°.
4)Ні, бо сума
Наприклад, 25°+25°=50°
5)
336.
337.
338.
339.
за 90°.
1) 3год=90°; 2)6год=180°; 3) 4год=120°; 4)11год=30°; 5) 7год=150°.

Розгорнуті кути: ∠OMP, ∠AMB, ∠TMK.
1. Спосіб

∠ АВС=120°, ∠ABD=40°
∠ DBC - ?
∠ DBC=∠ АВС-∠ABD=120° - 40°=80°
Відповідь: 80°
2. Спосіб

∠ DBC=∠ АВС+∠ABD=120° + 40°=160°
Відповідь: 160°.

∠ АВK=146°, ∠СBK=∠KBD
340.
https://shkola.in.ua/2714-hdz-matematyka-5-klas-merzliak-2022.html
341.
∠ DBC - ?
∠ CBK=∠ АВС-∠ABK=180° - 146°=34°
∠ DBC=∠ CВK+∠DBK=34° + 34°=68°
Відповідь: 68°.

∠ СОМ=54°, ∠СОА=∠АОМ
∠ АОВ - ?
∠ АОМ=∠ СОМ: 2 =54°: 2 =27°
∠ АОВ=∠ CОВ-∠АОС=180° - 27°=153°
Відповідь: 153°.
13°·14-180°=182°-180°=2°
Отже, необхідно від будь- якого
342.
19°·19-360°=361°-360°=1°
Провести
шуканим.
7°·13-90°=91°-90°=1°
Провести
343.
344.
1)4см·300=120дм-12дм=108дм:9=12дм+3м=42дм
2)8хв·15=2год+2год=4год:6=40хв-54с=39хв6с.
Якщо в 1
стаканах, тоді: 1200:5=240(г) – молока в 1 стакані. 345.
1) 42·3=126(грн) – заплатив
2) 51·2 = 102(грн)
3) 126+102+45=273(грн) –
4) 300 – 273=27(грн) -
https://shkola.in.ua/2714-hdz-matematyka-5-klas-merzliak-2022.html
3-2=1(м)-відстань за 1 день.
20м.
1.
2.
3.
(24+18)-33=42-33=9
(30-14)·3=16·3=(10+6)·3=30+18=48
(12·5)+19=60+19=79 4.
(189:9):7=21:7=3 5.
5см3мм=5·10мм+3мм=53мм, AB=TQ 2дм8мм=2·100мм+8мм=208мм, MN=EF 349.
Вершини: E,M,N,K,P Сторони: EM,MN,NK,KP,PE.
350.

351.
Р=2см+4см+5см+5мм+6см+7см=24см5мм-периметр п’ятикутника 352.
Р= 8см·3+10см·3=24см+30см=54см-периметр шестикутника 353.

355.
https://shkola.in.ua/2714-hdz-matematyka-5-klas-merzliak-2022.html

1) 8·3=24(см) – довжина другої сторони
2)24-7=17(см) – довжина третьої сторони
3)17-9=8(см) – довжина четвертої сторони
4) 8+24+17+8=57(см)-периметр чотирикутника
Відповідь: периметр чотирикутника 57 см. 356.
1) 4+2=6(см) – довжина другої сторони
2)6+2=8(см) – довжина третьої сторони
3)8+2=10(см) – довжина четвертої сторони
4)10+2=12(см) – довжина п’ятої сторони
5) 4+6+8+10+12=40(см)-периметр п’ятикутника
Відповідь: периметр п’ятикутника 40 см. 357. 1.



358.
https://shkola.in.ua/2714-hdz-matematyka-5-klas-merzliak-2022.html
1) 3986г<4000г 3) 600мм<602мм
2) 600см<712см 4) 999кг<1000кг 359.
1) (636+927)+364=(636+364)+927=1000+927=1927
2)(425+798)+675=(425+675)+798=1100+798=1898
3)212+493+788+807=(212+788)+(493+807)=1000+1300=2300
4)161+455+839+945=(161+839)+(455+945)=1000+1400=2400 360.
Так як бісектриса ділить будь який кут навпіл, то ∠DBC=∠ABC:2= =74°:2=37° 361.
1)1545+477=2022(м)-висота Піп – Іван Чорногорський.
2)2022-86=1936(м)- висота Піп – Іван Мармаровський 3)1936+125=2061(м) – висота гори Говерли.
Відповідь: висота Говерли 2061м. 362.

Так, існує. Наприклад багатокутник,
товщини і

https://shkola.in.ua/2714-hdz-matematyka-5-klas-merzliak-2022.html

а) гострокутний різносторонній
б) прямокутний різносторонній
в)
гострокутний рівнобедренний
г) тупокутний рівнобедренний ґ) тупокутний різносторонній
д) прямокутний рівнобедрений 365.





Р=16см+22см+28см=66см

369.
371.
1) 24+18=42(см) –
2) 42:2=21 (см)
3) 24+42+21=87
1) 12 3=36 (см)
2) 36-8=28(см)
3) 12+36+28=76(см)
1.
1) 39-15=24 (см)
2) 24:2=12(см)
375.
https://shkola.in.ua/2714-hdz-matematyka-5-klas-merzliak-2022.html
1) 10·2=20(см) – сума
2) 28-20=8(см)
Відповідь: основа рівнобедреного трикутника дорівнює 8 см.
Вираз: p-(22+b)
72-(22+26)=24(см)
376.
Вираз: 97-(a+b)
97 – (32+26)=39(см)



https://shkola.in.ua/2714-hdz-matematyka-5-klas-merzliak-2022.html



1) 17год16хв – 16год 48хв = 16год
завдання Михайлик.
2) 18год20хв – 17год53хв = 17год80хв
завдання Наталочка.
3) 28хв – 27хв=1хв Відповідь: Наталочка



1)
2)
3)
https://shkola.in.ua/2714-hdz-matematyka-5-klas-merzliak-2022.html
3х-х=10
2х=10
х=10:2
х=5(см)
Відповідь: сторона рівностороннього
За формулою у=х·х+12, 1) х=1;
Якщо х=1, тоді у = х·х+12=1·1+12=13 2) х=10;
Якщо х=10, тоді у= х·х+12=10·10+12=112


1)
Р=(42см+23см)·2=130см=1м30см
Відповідь: периметр прямокутника 1м 30см. 2)
Р= 8дм·4=32дм Відповідь: периметр квадрата 32 дм. 390.
Р=(13мм+17мм)·2=60мм=6см
Відповідь: периметр прямокутника 6см. 391.
1)14-5=9 (см) – довжина другої сторони. 2)(14+9)·2=46(см) - периметр прямокутника. Відповідь: периметр
46 см.
392.
https://shkola.in.ua/2714-hdz-matematyka-5-klas-merzliak-2022.html
1)12·2=24(см) – сума двох протилежних сторін
2)34 – 24=10 (см) – сума інших
3) 10см:2=5(см) – довжина сусідньої сторони прямокутника.
Відповідь: довжина сусідньої сторони прямокутника дорівнює 5 см. 393.
1)8·4=32(см) – довжина сусідньої сторони.
2)(8+32)·2=80 (см) – периметр прямокутника. Відповідь: периметр прямокутника 80 см. 394.
1)12·4=48(см) – периметр квадрата/ прямокутника.
2)8·2=16(см) – сума двох протилежних сторін прямокутника.
3)48-16=32(см) – сума двох інших протилежних сторін прямокутника.
4)32:2=16(см) – довжина невідомої сторони прямокутника.
Відповідь: довжина невідомої сторони 16 см.
395.
396.
1) 432:4=108(см) – довжина більшої сторони прямокутника.
2) 108:2=54(см) – довжина меншої сторони прямокутника.
3) (108+54)·2=162·2=324 (см) – периметр прямокутника.
Відповідь: периметр прямокутника дорівнює 324 см.
1) (42+14)·2=112(см) –
2) 112:4=28(см) –



https://shkola.in.ua/2714-hdz-matematyka-5-klas-merzliak-2022.html

Сторона найбільшого квадрата 4 см · 3=12см.
AD=BC=12см·2+4см=28см
ВА=CD=CO+OD=28см:4+4см·3=7см+12см=19см 401.

1. варіант
Р=(6см+1см)·2=14см – периметр
2. варіант
Р= (3см+2см)·2=10см –
402.
12:2=6см


https://shkola.in.ua/2714-hdz-matematyka-5-klas-merzliak-2022.html




1) 55+36+34=123(кг) –
2) 740-125=615(кг) –
3) 615:3=205(кг) – фруктів
4) 205+55=260(кг) –
5) 205+36=241(кг) –
6) 205+34=239(кг) –
1)

410.
https://shkola.in.ua/2714-hdz-matematyka-5-klas-merzliak-2022.html

1) (42+14)·2=112(см) – периметр прямокутника
2) 112:4=28(см) – довжина сторони квадрата. 411.
1) 460-(2+2)=456(м) – довжина прямокутної ділянки бігової доріжки.
2) 240-(2+2)=236(м) – ширина прямокутної ділянки бігової доріжки.
3) (456+236)·2=692·2=1384(м) – периметр прямокутної доріжки.
4) 1384·2=2768(м) = 2км768м.
Відповідь: Яринка пробігає 2км768м.
412.
1) (26+14)·2=80(м) – периметр баскетбольного майданчика.
2) (18+9)·2=54(м) – периметр волейбольного майданчика.
3) 80+54=134(м) – довжина усіх ліній.
4) 50·134=6700(г) 6кг700г – потрібно фарби.
Відповідь: для обох майданчиків потрібно 6 кг 700 г фарби. 413.

1) 1хв+1год15хв+5хв=1год30хв – час автобусом.
2) 8хв+56хв+10хв=74хв=1год14хв – час електричкою.
3) 7хв+1год 5хв +8хв= 1год 20хв – час маршрутним таксі.
414.
3+(2+1)-5+3=4(л) 1)
https://shkola.in.ua/2714-hdz-matematyka-5-klas-merzliak-2022.html
Б
1) 20+20+20=20·3=60; 2) 12+12+12+12=12·4=48; 3) 7+7+7+7+7=7·5=35
1) 6+4·3-2=6+12-2=16; 2)(6+4) ·3-2=10·3-2=30-2=28; 3) 6+4·(3-2)=6+4·1=10; 4)( 6+4) ·(3-2)=10·1=10.


12:2=6 (см)
1) 8+12=20(см)
2) 28-20=8 (см)
https://shkola.in.ua/2714-hdz-matematyka-5-klas-merzliak-2022.html
1) 6+6+6+6+6+6+6+6=6·8
2) 9+9+9+9+9=9·5
3) n+n+n+n+n+n+n=n·7
4) 2+2+…+2(всього 101 доданок) = 2·101
5) 5+5+…+5(всього m доданків) = 5·m
6) m+m+…+m (всього k доланків) = m·k 416.



https://shkola.in.ua/2714-hdz-matematyka-5-klas-merzliak-2022.html



1) якщо х=58, тоді 17х+432=17·58+432=1418 2) якщо х = 554, у = 4900, тоді (739-х) ·у = (739-554)·4900=906500
422.
423.
424.
425.
https://shkola.in.ua/2714-hdz-matematyka-5-klas-merzliak-2022.html

1) якщо х = 36, тоді 976 – 24х = 976 - 24·36=112
2) якщо х=367, у=19742, тоді х·63 – у = 367·63-19742=3379


1) 25·12=300(мг) – вітаміну С краде у себе курець.
2) 500-300=200 (мг) – вітаміну надходитиме
Відповідь: 200 мг.
1) 12·34=408 (с.) – заплатив за
організму курця.
по 12 сольдо.
2) 16·18=288 (с.) заплатив за зошити по 16 сольдо.
3) 288+408 = 696 (с.) –
1) 96·42=4032 (к.) –
2) 200 · 16 = 3200 (к.)
3) 4032+3200=7232
1) 44·40=1760(кг) –
2) 28·40 = 1120(кг) –
3) 1760 – 1120=640 (кг) Відповідь: на
1) 8·14=112(км) –
2) 4·23 = 92 (км) –
3) 112 – 92 = 20 (км)
431.
https://shkola.in.ua/2714-hdz-matematyka-5-klas-merzliak-2022.html
1) 27·5=135(км) – шлях річкою.
2) 21·7=147 (км) – шлях
3) 147-135=12(км) – на стільки


432.
https://shkola.in.ua/2714-hdz-matematyka-5-klas-merzliak-2022.html
1) 36-28=8 (км) – на
2) 8·5 = 40 (км) –
433.
1) 12-9=3 (км) –
2) 3·6 = 18(км) –
434.
435.
436.
1) 64+57 = 121(км) –
2) 121 · 9= 1089 (км) – відстань між поїздами через 9 год.
Відповідь: через 9 год
1) 74-8=66 (км/год) – швидкість другого
2) 74+66 = 140 (км) –
3) 140 · 7=980(км) – відстань
1) 11·7=77 (км/год) – швидкість легкового
2) 11+77=88 (км) – на стільки зменшується
автомобілем.
3) 88·4=352(км) – відстань між містами.
Відповідь: відстань між містами 352 км. 437.
1) 3·4=12 (км/год) – швидкість велосипедиста.
2) 3+12 = 15(км) – на стільки зменшується
3) 15·3 = 45 (км) – відстань між селищами.
Відповідь: відстань між селищами 45 км. 438.
1) Ні (1·1<1+1)
2) Так
3) Ні (1=1·1) 439.
1) Добуток збільшиться у 8 разів.
2) Добуток зменшиться у 5 разів.
3) Добуток збільшиться у 36 разів.(6·6=36)
4) Добуток збільшиться у 520 разів (13·40 = 520)
5) Добуток збільшиться у 4 разів. (12:3=4) 440.
1)
2) 4 · 2 =8 (км) -
3) 10 +8 -3 =15 (км) –
між ними щогодини.
442.
443.
444.
445.
https://shkola.in.ua/2714-hdz-matematyka-5-klas-merzliak-2022.html


1, 2, 4 (1+1+2+4=8 і 1·1·2·4=8)
1·(2+3)·4·5=100 або (1·2+3) ·4·5 = 100
1+2·3·4=1+24=25 446.


https://shkola.in.ua/2714-hdz-matematyka-5-klas-merzliak-2022.html
1) b=600;
Якщо b=600, тоді а= b :4 – 6= 600:4-6=150-6=144
2) b=64;
Якщо b=64, тоді а= b :4 – 6= 64: 4 – 6 = 16-6=10
3) b=24;
Якщо b=24, тоді а= b :4 – 6= 24:4-6=6-6=0 449.
1) 33+39+42=114(см) – подвійний периметр трикутника.
2) 114:2=57(см) – периметр трикутника.
Відповідь: периметр трикутника 57 см. 450.
1) 42·96=4032 (коп.) – отримав Матроскін за молоко
2) 16·2 = 32 (грн) – отримав Матроскін за сир
3) 4032 коп. + 32 грн= 40 грн 32 коп. + 32грн=72грн 32коп.
Відповідь: 72грн 32коп. отримав Матроскін за свій товар.




452.
https://shkola.in.ua/2714-hdz-matematyka-5-klas-merzliak-2022.html
1) 2·328 · 5 = (2·5) · 328 = 328· 10 = 3280
2) 125 · 43 · 8 = (125·8) · 43 = 1000 · 43 = 43000
3) 25 · 243 ·4= 243 ·(25·4) = 243 · 100 = 24300
4) 4·36·5=36·(4·5) = 36·20=720
5) 50 · 236 · 2 = 236·(5·2)=236 · 100 = 23600
6) 250 · 3 · 4 = 3 · (250· 4) = 3· 1000 = 3000 453.
1) 4·17·25=17·(4·25) = 17·100=1700
2) 5·673·2=673·(5·2) = 673·10=6730
3) 8·475·125=475·(8·125) = 475·1000=475000
4) 73· 5· 4 = 73 · 20 = 1460
5) 2· 916 ·50 = 916 · (2·50) = 916·100=91600
6) 5 · 9 · 200 = 9 · (200 ·5) = 9· 1000 = 9000 454.
1) 13 · 2а = (13·2)·а = 26а
2) 9х · 8 = (9·8) · х = 72х
3) 23·4b=(23·4)·b = 92b
4) 28 · у · 5 = (14·2 ·5)·у=14·(2·5)·у = (14·10)·у=140у
5) 6а · 8b = (6·8) · (а· b) = 48а b
6) 11х·14у = (11·14)·(х ·у) = 154ху
7) 27m·3n=(27·3)·(m· n) =81m n
8) 4а·8·b·3·с=(4·8·3)·(а· b с) = 96a b c
9) 12х·3у·5z = (12·5·3)·(х· у·z) = (10·18)·( х· у·z) = 180 хуz 455.
1) 12·3х = (12·3) · х = 36х
2) 10х·6= (6·10)·х = 60х
3) 5а·7b = (5·a)·(7·b)=(5·7)·(a·b) = 35ab
4) 8m·12n=(8·m)·(12·n) = (8·12)·(m·n)=96mn
5) 2a · 3b·4c = (2·a)·(3·b)·(4·c) = (2·3·4) · (a·b·c) = 24abc
6) 5x·2y·10z=(5·x)·(2·y)·(10·z)=(5·2·10)·(x·y·z) = 100xyz 456.
1) 318·78+318·22=318·(78+22)=318·100=31800
2) 856·92-853·92=92·(856-853) = 92·3=(90+2)·3=270+6=276
3) 943·268+943·232 = 943· (268+232) = 943·500=(900+40+3) · 500= = 450 000 + 20 000 + 1500=471 500
4) 65·246-65·229-65·17=65·(246-229-17) = 65·0=0 457.
1) 47·632+632·53=632·(47+53) = 632·100=63200
2) 598· 49 - 597·49=49·(598-597) = 49·1=49
3) 754· 324-754·314=754·(324-314) = 754·10 = 7540
4) 37· 46-18·37+37·72=37·(46-18+72) = 37·100=3700 458.
1) 2(а+5) = 2·а+2·5=2а+10
2) 8 (7-х)=8·7-8·х=56-8х
https://shkola.in.ua/2714-hdz-matematyka-5-klas-merzliak-2022.html
3) 12 (х +у) = 12·х +12·у = 12х+12у
4) (с-9)·11= 11·с - 11·9 = 11с - 99
5) (8+у)·16=16·8+16·у = 128+16у
6) 15 (4а - 3) = 15 · 4а - 15·3 = 60а - 45
7) 7(6a+8b)=7·6a+7·8b=42a+56b
8) 10 (2m-3n+4k) = 10·2m-10·3n+10·4k=20m-30n+40k
9) (24x+17y-36z)·4=4·24x+4·17y-4·36z=96x+68y-144z 459.

460.

461.
1) 13b+19b=(13+19)·b = 32b
2) 44d – 37d = (44-37)·d = 7d
3) 34n+n = (34+1)·n = 35n
4) 127q- q = (127-1)·q = 126q
5) 36y-19y+23y=(36-19+23)·y=40y
6) 49а+21а+30= (49+21)·а+30=70а+30 462.
1) Якщо х=12, у=11, тоді 25х·4у=100·х·у=100·(12·11) = 100·132=13200
2) Якщо k = 58,c= 8, тоді 8k ·125c=1000· (k·c) = 1000 · (58·8) =464·1000 = 464000 463.
1) Якщо а=4,b=68, тоді 5а·20b=100·a·b = 100·(68·4)= 100 · 272= 27200
2) Якщо m = 22, n = 34, тоді 4m·50n= 200 m n = 200 (22·34) = 200·748 = 149600 464.
1) Якщо р=14, тоді 13р+37р=50р=50·14=700
2) Якщо х = 678, тоді 38х+17х-54х+х=2х= 2·678= (600+70+8)·2= =1200+140+16+1356
3) Якщо с=47, тоді 86с – 35с – с+296 = 50с+296=50·47 + 296=2350+296= =2646
465.
1) Якщо а =26, тоді 54а-39а=15а = 15·26=390
2) Якщо m = 394, тоді 18m -5m+7m=20m=20 394=(300+90+4) 20= = 6000+1800+80 = 7880
3) Якщо z=82, тоді 19z – 12z+33z – 14 = 40z -192 = 40 · 82 -14 = = 3280 – 14 = 33266 466.
1) 16·25= (4·4)·25 = 4·(4·25) = 4·100 = 400
2) 25·8·5= 25·(4·2)·5 = (25·4)·(2·5) = 100·10 = 1000
3) 15·12= (3·5)·(2·6)=(3·6)·(2·5)=18·10=180
4) 375 · 24= (375·4)·6=1500·6= 9000
467.
https://shkola.in.ua/2714-hdz-matematyka-5-klas-merzliak-2022.html
1) 25·4·6 = 100 · 6 = 600
2) 125 · 25 · 32 = (125·8)·(25·4) = 1000·100 = 100 000
3) 75 ·36 = 75· 4· 9 = 300 · 9 = 2700
4) 96·50 = (90+6) · 50 = 90 · 50 + 6 · 50 = 4500 + 300 = 4800 468.
1) 43·64+43·23 - 87·33=43·(64+23)-87·33=43·87-87·33= = 87·(43-33) = 87·10=870
2) 84 · 53 - 84·28+16·61-16·36=84·(53-28)+16·(61-36) = = 84·25+16·25=25·(84+16)=25·100=2500 469.
1) 93·24-27·24+66·76 = 24 · (93-27) + 66 · 76 = 24 · 66 + 66·76 = = 66 · (24+76) = 66 · 100 = 6600
2) 82· 46 + 82·54+135·18 – 18·35=82·(46+54)+18·(135-35)= = 82·100+18·100=100·(82+18)=100·100=10000 470. 471.


https://shkola.in.ua/2714-hdz-matematyka-5-klas-merzliak-2022.html
1) від 1 до 10 включно; Два нулі (5·2·10=10·10=100)
2) від 15 до 24 включно; Два
(15·18·20=5400)
3) від 10 до 30 включно; Шість нулів (10·20·30·15·12·25·14=378000000
4) від 1 до 100

474.
1. спосіб
1) 38:2=19(г.) – голів у всіх тварин.
2) 19-14=5(г.) – голів припадає на кошенят.
3) 14-5=9(г.) – голів припадає на курчат
2. спосіб
У курчат по 2 ноги, у кошенят
1) 14·2=28(ніг) - мали би тварини
2) 38-28=10 (ніг) – решта ніг кошенят.
3) 10:2=5(к.) – кошенят.
4) 14-5=9(к.) – курчат.
3. спосіб
Нехай х – кошенята, тоді
курчат, тоді складемо рівняння
4х+2·(14-х) = 38
4х+28-2х=38
2х+28=38
2х=38-28
2х=10
х=10:2
х=5-
1) 12·76=936(л) –
2) 936 : 40 = 23 (ост. 16) –
477.
478.
https://shkola.in.ua/2714-hdz-matematyka-5-klas-merzliak-2022.html
1) 870:2=435 (грн.) – ціна квитка
2) 870+435=1305(грн.) – вартість
3) 600:100=6 (разів) – у стільки разів
4) 12·6 = 72(л) – літрів бензину витратять
5) 26· 72 = 1872 (грн.) – вартість
Дмитрик має
Футболіст
1) 432:4=(400+32):4=400:4+32:4=100+8=108
2) 609:3=(600+9):3=600:3+9:3=200+3=203
3) 3600:6=600
4) 1500 : 50 = 30
1) 239·4·25=239·100
2) 239 · 20 ·4 = 239 · 80
3) 10 ·239 · 10=
4)
1) 36:4=9(разів)
2) 3·9=27(г)
1) 103275:243=425; 2) 103275:425=243 480.
1) 96·48=4608; 2) 4608:96=4 481.

https://shkola.in.ua/2714-hdz-matematyka-5-klas-merzliak-2022.html


https://shkola.in.ua/2714-hdz-matematyka-5-klas-merzliak-2022.html


1) 1т і 100 кг; У10 разів (1000 кг : 100 кг = 10)
2) 24ц і 8 кг; У 30 разів (240 кг : 8 кг = 30)
3) 20 см і 1 м; У 10 разів (100 см : 20 см = 5)
4) 10 хв і 2 год? У 12 разів (120хв : 10 хв = 12) 487.
1) 1км і 250м; У 4 рази (1000 м : 250 кг = 4)
2) 4ц і 2т; У 5 разів (20 кг : 4 ц = 5)
3) 3хв і 3 с; У 60 разів (180 с : 3с = 60) 488.

https://shkola.in.ua/2714-hdz-matematyka-5-klas-merzliak-2022.html



1) а:9=0; Існує, а =0
2) а:а=0; Не існує, на 0 ділити не можна!
3) 16:а=0; Не існує, на 0 ділити не можна!
4) 0 : а = 5; не існує. 492.

https://shkola.in.ua/2714-hdz-matematyka-5-klas-merzliak-2022.html


1) 3 · 520=1560 (кг)
2) 1560:60=26
1) 12·5=60 (км)
2) 60:4=(40+20) : 4 =15
1) 72·8 = 576 (грн.)
2) 576 : 48 = 12 (кг)
https://shkola.in.ua/2714-hdz-matematyka-5-klas-merzliak-2022.html



1) 24·8=(20+4)·8 = 192 (кр.) –
2) 408 – 192 = 216 (кр.) –
3) 216:12=216 : 2: 6 = 18(кр.) –
1) 26·6=156(кг) –
2) 324 – 156 = 168(кг) –
3) 168 : 14 = 168:2:7=12(кг)
501.
502.
503.
504.
505.
506.
https://shkola.in.ua/2714-hdz-matematyka-5-klas-merzliak-2022.html
1) 261:9=29 (разів) – у стільки разів більше вершків.
2) 2 · 29 = 58 (кг) – масло можна отримати.
Відповідь: з 261 кг вершків можна отримати 58 кг масла.
1) 328:4=82 (разів) – у стільки разів більше проса.
2) 3·82= 246 (кг) – пшона зможе отримати.
Відповідь: зможе отримати 246 кг пшона.
1) 476:14=34 (км/год) – швидкість катера за течією річки
2) 34 – 3=31 (км/год) – власна швидкість катера.
3) 31-3=28 (км/год) – швидкість катера проти течії річки.
4) 476 : 28 = 17 (год) – часу треба.
Відповідь: проти течії річки катер пройде відстань за 17 годин.
1) 504:21=21(км/год) – швидкість теплохода проти течії річки
2) 24+2=26 (км/год) – власна швидкість теплохода.
3) 26+2=28 (км/год) – швидкість за течією річки.
4) 504 : 28=18(год) – часу треба.
Відповідь: за течією річки

1) 136:4=34 (км/год) – швидкість зближення.
2) 34 – 16 = 18 (км/год) – швидкість
Відповідь: Гострошабенко

1) 1264 : 8=158(милі/год) –
2) 158 – 82 = 76(милі/год) –

1) 58·4 = 232(км) –
2) 232+24=256(км)
3) 256:4=64(км/год)
508.
https://shkola.in.ua/2714-hdz-matematyka-5-klas-merzliak-2022.html

1) 9·3=27 (км) – відстань проїхала верхи Марина.
2) 27-15=12(км) – відстань пройшла Дарина
3) 12:3=4 (км/год) – швидкість Дарини
Відповідь: Дарина йшла зі швидкістю 4 км/ год. 509.

1) 3-1=2 (льє/год) – швидкість зближення
2) 12:2=6 (год) – через стільки годин наздожене.
Відповідь: д’Артаньян наздогнав
510.

1) 18-12=6(миль/год) – швидкість зближення.
2) 48:6=8(год) – через стільки
Відповідь: «Стрімкий»
511.
1) 120·40=4800 (см) = 48(м) –
2) 1200 : 48=25(хв)
3) 8
за 1 хв.
1) 24:6=4(к.)
2) 45:9=5(к.)
3) 4+5=9 (к.) -
4)
1) 960:8=120(л)
2)
3) 120+80=200(л)
4) 800:20=4(дні)
1) 288:4:3=24(с.)
2)
515.
https://shkola.in.ua/2714-hdz-matematyka-5-klas-merzliak-2022.html
1) 672:6:8 = 14 (л) – палива потрібно для роботи 1
2) 98:14=7(год) – на стільки часу.
Відповідь: 98 л палива вистачить на 7 год роботи двигуна. 516.
1) 420+180=600(кг) – груш і яблук привіз.
2) 600:50=12(кг) – маса ящика з фруктами.
3) 420:12=35 (ящ.) – було ящиків з яблуками.
4) 180 : 12 = 15 (ящ.) – було ящиків з грушами.
Відповідь: було 35 ящиків з яблуками, 15 ящиків з грушами. 517.
1) 80+100+120+140=440(кг) – всього золота.
2) 440:22=20(кг) – маса мішка.
3) 80:20=4(м.) – мішків навантажено на першого віслюка.
4) 100: 20 =5(м.) – мішків навантажено на другого віслюка.
5) 120 :20=6(м.) - мішків навантажено на третього віслюка.
6) 140:20=7(м.) - мішків навантажено на четвертого віслюка.
Відповідь: на першого віслюка навантажено – 4 мішка, на другого – 5, на третього –
6, на четвертому – 7 мішків. 518.

https://shkola.in.ua/2714-hdz-matematyka-5-klas-merzliak-2022.html


https://shkola.in.ua/2714-hdz-matematyka-5-klas-merzliak-2022.html



525.
https://shkola.in.ua/2714-hdz-matematyka-5-klas-merzliak-2022.html


Нехай
Складемо рівняння.
х+2х = 108
3х=108
х=108:3
х=(90+18):3
х=36(к.)
Відповідь:
Нехай
х+3х=268
4х=268
х=268:4
х=(240+28):4
х=67(кг)
3·67=201(кг)
Відповідь:
6х=156
х=156:6
х=26(в.)
Відповідь:
4х-х=51
3х=51
х=51:3
х=17(кв.)
4·17=68(кв.)
Відповідь:
528.
529.
Нехай
530.
https://shkola.in.ua/2714-hdz-matematyka-5-klas-merzliak-2022.html
Складемо рівняння.
х+(х+20) = 90
2х+20=90
2х=90-20
2х=70
х=70:2
х=35˚
35+20=55˚
Відповідь: величина першого
Нехай величина одного
Складемо рівняння.
х+(х+50)=180
2х+50=180
2х=180-50
2х=130
х=130 :2
х=65˚
65+50=115˚
Відповідь: величина першого кута 65˚, другого -
Нехай х (кг)
подарував Іа. Складемо рівняння.
х+3х+2х=264
6х=264
х=264:6
х=(240:24):6
х=44 (кг) – меду подарував Кенга.
3х=3·44=132 (кг) – меду подарував Пятачок.
2х = 2·44=88(кг) – меду подарував Іа.
Відповідь: Кенга подарував 44 кг меду, Пятачок – 132кг, Іа-88кг. 531.
Нехай х (миль) – відстань проплив першого дня, 4х (миль) – відстань проплив другого дня, 3х (миль)
https://shkola.in.ua/2714-hdz-matematyka-5-klas-merzliak-2022.html
Попелюшка. Складемо рівняння:
х + 2х + 3х + 4х = 500
10х = 500
х = 500 : 10
х = 50 (в.) –
2х = 2 · 50 = 100 (в.) – вареників зліпив Барвінок;
3х = 3 · 50 = 150 (в.) – вареників зліпив Котигорошко; 4х = 4 · 50 = 200 (в.) – вареників зліпила Попелюшка.
Відповідь: Дюймовочка зліпила 50 вареників, Барвінок
Попелюшка – 200. 534.
–
Нехай х (п.) – пасажирів у другому вагоні, тоді 2х (п.) – пасажирів у першому
х + 78 (п.) –
х+2х+х+78=246
4х+78=246
4х=246-78
4х=168
х=168:4
х=(160+8):4
х=42 (п.) –
2х = 2·42=84 (п.) –
х+78=42 +78=120(п.) –
пасажирів. 535.
Нехай
х+5х+х+25=74
7х+25=74
7х=74-25
7х=49
х=49:7 х=7
537.
https://shkola.in.ua/2714-hdz-matematyka-5-klas-merzliak-2022.html
Нехай х (кг) –
Складемо рівняння.
4х+3=11
4х=11-3
4х=8
х=8:4
х=2(кг) – маса пляшки олії.
Відповідь: маса однієї пляшки олії 2 кг. 538.
(7·9+12) : (3-2) = (63+12):1=75
(7·9+12) : 3 – 2 = (63+12):3-2=(21+4) – 2=25-2=23 539.
4·12+18: (6+3)=48+2=50
4·(12+18: 6+3)= 4 · (12+3+3) = 4·18=72 540.
1) 6·2=12 (см) – довжина сторони ВС.
2) 6+12=18 (см) – довжина сторін АВ і ВС разом.
3) 34-18=16(см) – довжина сторін CD і AD разом.
4)16 : 2 = 8(см) – довжина сторони AD.
Відповідь: довжина сторони AD дорівнює 8 см. 541.
1) 12-8=4(к.) – конвертів іншого кольору.
2) 18+4 = 22 (к.) конвертів всього.
Відповідь: всього купили 22 конверти. 542.
Не можуть. Два зчеплених





https://shkola.in.ua/2714-hdz-matematyka-5-klas-merzliak-2022.html



1) 2) 3) 4) 545. 1) 2) 3) 4) 546.



14 : 5 = 2 (ост. 4)
86 : 5 = 17 (ост. 1)
2658 : 5 = 531 (ост. 3)
687 903 : 5 = 137 580 (ост. 3) 547.
106 : 100 = 1 (ост. 6)
421 : 100 = 4 (ост. 21)


61 : 5 = 12 (ост. 1)
235 : 5 = 47
54 769 : 5 = 10 953 (ост. 4)
202 : 100 = 2 (ост. 2)
836 : 100 = 8 (ост. 36)
2764 : 100 = 27 (ост. 64) 100 098 : 100 = 1000 (ост. 98)
672 305 : 100 = 6723 (ост. 5) 1 306 579 : 100 = 13 065 (ост. 79)
562 400 : 100 = 5624 548.
1) від 1 до 6
2) від 1 до 12
3) від 1 до 23 549.
1) від 1 до 4; 2) від 1 до 18 550.
450 : 76 = 5 (ост. 70)
551.
100 : 7 = 14 (ост. 2)
552.
: 5 = 8 (ост. 2)
553.
176 : 20 = 8 (ост. 16)




554.
https://shkola.in.ua/2714-hdz-matematyka-5-klas-merzliak-2022.html
280 : 64 = 4 (ост. 24)
555.
556.
4 · 18 + 11 = 72 + 11 = 83 557.
31 : 10 = 3 (ост. 1)
53 : 10 = 5 (ост. 3)
1596 : 10 = 159 (ост. 6)
240 750 : 10 = 24 075 558.
5 : 2 = 2 (ост. 1)
47 : 10 = 4 (ост. 7)
148 : 10 = 14 (ост. 8)
67 389 : 10 = 6738 (ост. 9)
8 : 2 = 4
10 : 2 = 5 11 : 2 = 5 (ост. 1)
76 : 2 = 38 101 : 2 = 50 (ост. 1)
118 : 2 = 59 1957 : 2 = 979 (ост. 1)
Парні числа
залишається 1. 559.
a = bq + r
82 : 8 = 10 (ост. 2)
82 = 10 · 8 + 2 560.
a = bq + r
45 : 7 = 6 (ост. 3)
45 = 7 · 6 + 3 561.
1) при а = 6
48 + 6 = 54
54 : 6 = 9 2) при а = 1
65 –
562.
1) при а = 3
53 + 3 = 56
56 : 7 = 8 2) при а = 3 3 + 24 = 27 27 : 5 = 5 (ост. 2) 563.

https://shkola.in.ua/2714-hdz-matematyka-5-klas-merzliak-2022.html
= 111,
111 – 7 = 104. Запишемо число 104 у
104 = 1 · 104 = 2 · 52 = 4 · 26 = 8 · 13.
Враховуючи, що
яке з чисел 8, 13, 26, 52, 104.
Відповідь: 8, 13, 26, 52, 104. 565.
Оскільки
70 – 4 = 66. Запишемо число 66 у
66 = 1 · 66 = 2 · 33 = 6 · 11 = 3 · 22.
Враховуючи, що остача
яке з чисел 6, 11, 33, 66, 22.
Відповідь: 6, 11, 33, 66, 22. 566.
Оскільки в році 365 днів (або 366, якщо рік
Відповідь: 53 понеділка. 567.
Жовтень. Дев’ятнадцяте число буде середа.
то, якщо
почнеться у понеділок, маємо 53 понеділки. Так як 365 : 7 = 52 (остача 1).
569.
Для того, щоб виконувалась умова здачі, субот
п’ятниць – 4. Це можливо лише тоді,
п’ятниця, а днів в місяці – 31. 568.
3n + 1
2 + 5 + 8 = 15.
Відповідь: остачі 2, 5 і 8. 570.
1) 14a · 6b = (14 · 6) · ab = 84ab
Якщо а = 2, b = 3, тоді 84ab = 84 · 2 · 3 = 84 · 6 = 504.
2) 25m · 3n = (25 · 3) · mn = 75mn
Якщо m = 8, n = 1, тоді 75mn = 75 · 1 · 8 = 75 · 8 = 600.
3) 5x + 8x – 3x = 10x
Якщо x = 17, тоді 10x = 10 · 17 = 170.
4) 16y – y + 5y = 20y
Якщо y = 23, тоді 20y = 20 · 23 = 460. 571.
Нехай ширина
54
+ х + 3) · 2 = 54
2х + 2х + 6 = 54
4х + 6 = 54
4х = 54 – 6
4х = 48 х = 48 : 4 х = 12 (см)
+ 3 = 12 + 3 = 15
shkola.in.ua 564.
х + 3 (см).
https://shkola.in.ua/2714-hdz-matematyka-5-klas-merzliak-2022.html
8 (3х – 16) = 208
24х – 128 = 208
24х = 208 + 128
24х = 336
х = 336 : 24
х = 14 573.
(х – 10) : 2 = 20
х – 10 = 20 · 2
х – 10 = 40
х = 40 + 10
х = 50
(х + 10) · 2 = 20
х + 10 =20 : 2
х + 10 = 10
= 10 – 10
= 0
Оскільки остача (20) більша від
(60 – 4) : 8 = 7 (к.) – купок вийшло.
1) 25 – 1 = 24 (км) – відстань
2) 24 : 4 = 6 (км/год)
5.
· 10 – 2 = 8
· 10 = 8 + 2
· 10 = 10
= 10 : 10
= 1
1) 10 + 2 = 12 (к.) –
2) 10 – 2 = 8 (к.) –
Відповідь: на першій
троянд. 574.
1) 48 основа 4, показник степеня 8; 2) 1310 основа 13, показник степеня 10; 3) а9 основа а, показник степеня 9; 4) 6m основа 6, показник степеня m; 5) 239 основа 2, показник степеня 39; 6) 931 основа 93, показник степеня 1. 575.
1) 9 · 9 · 9 · 9 · 9 · 9 · 9 = 97; 2) b · b = b2; 3) 3m · 3m · 3m · 3m · 3m = (3m)5; 4) c · c · … · c = cn. 576.
1) 10 · 10 · 10 = 103; 2) x · x · x · x · x · x · x · x = x8;

: 10 + 2 = 8
: 10 = 8 – 2
: 10 = 6
= 6 · 10
= 60
https://shkola.in.ua/2714-hdz-matematyka-5-klas-merzliak-2022.html
1) 33 = 3 · 3 · 3 = 27;
2) 72 = 7 · 7 = 49;
4) 25 = 2 · 2 · 2 · 2 · 2 = 32; 5) 06 = 0; 6) 112 = 1. 578.
3) 54 = 5 · 5 · 5 · 5 = 625;
1) 93 = 9 · 9 · 9 = 729;
2) 122 = 12 · 12 = 144; 3) 24 = 2 2 2 2 = 16; 4) 1100 = 1; 5) 1001 = 100; 6) 103 = 10 10 10 = 1000. 579.
1) 102 – 72 = 10 10 – 7 7 = 100 – 49 = 51;
2) 53 – 52 = 5 · 5 · 5 – 5 · 5 = 125 – 25 = 100;
3) 422 : 14 – 42 · 6 = 42 · 42 : 14 – 4 · 4 · 6 = 42 · 3 – 16 · 6 = 126 – 96 = 30;
4) 83 : 42 – 23 = 8 · 8 · 8 : 4 · 4 – 2 · 2 · 2 = 8 · 2 · 2 – 2 · 2 · 2 = 32 – 8 = 24;
5) 252 : (242 + 72) = 25 · 25 : (24 · 24 + 7 · 7) = 625 : (576 + 49) = 625 : 625 = 1;
6) 103 – 102 + 93 = 10 · 10 · 10 – 10 · 10 + 9 · 9 · 9 = 1000 – 100 + 729 = 1629.
580.
1) 32 + 42 = 3 · 3 + 4 · 4 = 9 + 16 = 25;
2) 33 + 23 = 3 · 3 · 3 + 2 · 2 · 2 = 27 + 8 = 35;
3) 63 – 2 · 43 – 13 = 6 · 6 · 6 – 2 · 4 · 4 · 4 – 1 = 216 – 128 – 1 = 87;
4) 83 : (42 – 23) = 8 · 8 · 8 : (4 · 4 – 2 · 2 · 2) = 512 : (16 – 8) = 512 : 8 = 64. 581. 582. 583.

1) Якщо с=2, тоді 16 – с3 = 16 - 23 = 16 – 8 = 8
2) Якщо х = 10, тоді х3 – х2 = 103 – 102 = 1000 – 100 = 900
3) Якщо а = 4, тоді 15а2 = 15· 42 = 15 16 = 240 4) Якщо а = 6, b = 10, тоді a2b3 = 62103 = 36 1000 = 36000 5) Якщо х = 4, у = 2, тоді (х2 -у2) : (х-у) = (42 - 22): (4 - 2) = (16-4) : 2 = 6
6) Якщо х = 4, у = 2, тоді (х2 -у2) : х-у = (42 - 22): 4 - 2 = (16-4) : 4 – 2 = 1
7) Якщо х = 4, у = 2,
587.
https://shkola.in.ua/2714-hdz-matematyka-5-klas-merzliak-2022.html
1) Сума куба числа 5 і квадрата числа 8; 53 + 82 = 125 + 64 = 189
2) Різниця квадратів чисел 6 і 2; 62 – 22 = 36 – 4 = 32
3) Квадрат різниці чисел 6 і 2. (6-2)2 = 42 = 16 588.
1) Куб різниці чисел 9 і 8; (9-8)3 = 1
2) Квадрат суми чисел 8 і 7; (8+7)2 = 152 = 225
3) Сума квадратів чисел 8 і 7. 82 + 72 = 64+49 = 113 589. 590.
1) 12 3402; Цифрою 0, бо 02 = 0
2) 93263; Цифрою 6, бо 63 = 216
3) 2543; Цифрою 4, бо 43 = 64 591. 592.

1) 200 : 10 = 20 (г) –
2) 500 : 20 = 25 (п.) –
593. 172
594.
5.
https://shkola.in.ua/2714-hdz-matematyka-5-klas-merzliak-2022.html
1 дм = 10 см
1 м = 100 см
3 дм = 30 см
5 м 2 дм = 520 см
40 мм = 4 см
12 дм 5 см = 125 см
1 км = 1000 м
2 км 418 м = 2418 м
4 км 16 м = 4016 м
800 см = 8 м
20 дм = 2 м
1) 33 + 23 = 27 + 8 = 35; 2) (3 + 2)3 = 53 = 125;
3) 82 – 62 = 64 – 36 = 28; 4) (8 – 6)2 = 22 = 4.
1) 40 : 5 = 8 (км/год) – швидкість човна;
2) 24 : 8 = 3 (год) – треба часу.
1) 450 : 5 = 90 (л) – води качає 1 насос за 6 хв;
2) 90 : 6 = 15 (л) – коди качає насос за 1 хв;
3) 15 · 8 = 120 (л) – води перекачає
17 + 37 + 57 = 111. 595.
1) Скільки квадратних сантиметрів
1дм2 = 10см · 10см = 100 см2
1 м2 = 100 см · 100 см = 10 000 см2
2)
1км2 = 1000м · 1000м = 1000000 м2 596.
1) 1м2 = 100 дм2
2) 1м2 = 10 000 см2
3) 1км2 = 100 га 597. 598.
599.
603.
https://shkola.in.ua/2714-hdz-matematyka-5-klas-merzliak-2022.html
1) 48 : 8 = 6 (см) – сусідня сторона
2) 48 см · 6 см = 288 (см2) – площа прямокутника
Відповідь: площа прямокутника 288 см2 . 604.
1) 162 : 2 = 81 (дм) – півпериметр прямокутника
2) 81 – 47 = 34 (дм) – друга сторона прямокутника
3) S = 47 дм · 34 дм = 1598 (дм2) – площа прямокутника Відповідь: площа прямокутника 1598 дм2 605.
1) 96 : 2 = 48(см) – півпериметр прямокутника
2) 96 : 8 = 12 (см) – одна сторона
3) 48 – 12 = 36 (см) – друга сторона
4) S = 36 см · 12 см = 432 (см2) – площа прямокутника
Відповідь: площа прямокутника 432 см2 . 606.
1) 96 : 4 = 24 (см) – сторона квадрата
2) S = 24 см · 24 см = 576 (см2) – площа квадрата
Відповідь: площа квадрата дорівнює 576 см2 . 607.
Нехай х (дм) – одна сторона, 5х (дм) – друга сторона.
(х+5х) · 2 = 48
6х · 2 = 48
6х = 48 : 2
6х = 24
х = 24 : 6
х= 4 (дм) – одна сторона
5х = 5 · 4 = 20 (дм) – друга сторона
S = 20 дм · 4 дм = 80 (дм2) – площа прямокутника 608.
Нехай х (см) – одна сторона, х+16 (см) – друга сторона. Складемо рівняння.
х + (х+16)·2 = 68
(2х +16) ·2 = 68
2х + 16 = 68 : 2
2х + 16 = 34
2х = 34 – 16
2х = 34 – 16
х = 18 : 2
х = 9 (см) - одна сторона
х + 16 = 9 + 16 = 25 (см) – друга сторона
S = 25 дм · 9 дм = 225 (см2) – площа прямокутника. 609.
1) в арах: 12 га = 1200 а
6 га 28 а = 628 а
2 км2 14 га 5 а = 20 000 а + 1400 а + 5а = 21405 а
32 400 м2 = 324 а
2) у квадратних метрах: 17 а = 1700 м2
https://shkola.in.ua/2714-hdz-matematyka-5-klas-merzliak-2022.html
8 га = 80000 м2
5 га 72 а = 50000 м2 + 7200 м2 = 57200 м2
3) у гектарах і арах :
530 а = 5 га 30 а
1204 а = 12 га 4 а
16 300 м2 = 1 га 63 а 610.
1) у
квадратних сантиметрах:
4м2 = 40 000 см2
16м2 19 дм2 = 160 000 см2 + 1900 см2 = 161900 см2
16 дм2 = 1600 см2
2) у
гектарах:
340 000 м2 = 34 га
14 км2 = 1400 га
5 км2 18 га = 500 га + 18 га = 518 га 611.
56а = 56 · 100 м2 = 5600 м2
1) 5600 : 80 = 70 (м) – ширина поля
2) Р = (80м + 70м) · 2 = 150м · 2 = 300 (м) –
Відповідь: периметр поля 300м. 612.
48а = 48 · 100 м2 = 4800м2
1) 4800 : 150 = 480 : 15 = 32 (м) – довжина
2) Р = (150 м +32 м) · 2 = 364 (м) – периметр
Відповідь: периметр поля 364 м. 613.

Варіант а)
1) Р = 18см + 15 см + (18см + 8см) + 5см + 8см + (15 см – 5см) = = 82 (см) – периметр фігури
2) S = 18см · 15см + 8см · 5см = 270 см2 + 40см2 = 310 (см2) – площа фігури.
Відповідь: периметр дорівнює 82 см, площа дорівнює 310 см2
Варіант б)
1) Р = 16см + 4 см + 6см + (11 см – 4см - 4см) + 6см + 4см + 16см + 11см = 66 (см) – периметр ділянки.
2) S = 11см · 16см + 6 см · (11см – 4см – 4см) = 176 см2 + 18см2 = 194 (см2) – площа ділянки.
Відповідь: периметр дорівнює 66 см, площа дорівнює 194 см2
https://shkola.in.ua/2714-hdz-matematyka-5-klas-merzliak-2022.html

Розв’язання:
1) Р = (12см + 6см + 12см) + 18см + (12см + 4 см + 6см + 4см + 12см) + 18 см = 104(см)
– периметр фігури.
2) S = 18см · 30 см – 6см · 4 см = 540см2 – 24см2 = 516 (см2) – площа ділянки
Відповідь: периметр дорівнює 104 см, площа дорівнює 516 см2 . 615.
1) 5 · 5 = 25 (мм2) – площа одної клітинки.
2) 25 · 12 = 300 (мм2) = 3(см2) – площа фігури.
Відповідь: площа фігури 3см2 616.
1) S = 12см · 12см = 144 (см2) – площа квадрата або прямокутника
2) 144 : 18 = 8 (см) – ширина прямокутника
3) Р = (18см + 8см) · 2 = 52 (см) – периметр прямокутника
Відповідь: периметр прямокутника 52 см. 617.
1) S = 3см· 12 см = 36 см2 – площа прямокутника
6 см – сторона квадрата
2) Р = 6см · 4 = 24 см – периметр квадрата Відповідь: периметр квадрата 24 см. 618.
Нехай х (см)
прямокутника. Відповідь: площа прямокутника збільшиться на 104 см2 . 619.
Нехай х(см) – ширина прямокутника, тоді 32х (см2) – площа прямокутника. Після зменшення х – 5 (см) – нова ширина прямокутника, тоді 32 (х - 5) (см2) – нова
https://shkola.in.ua/2714-hdz-matematyka-5-klas-merzliak-2022.html
у 9 разів. 622.
1 см = 10мм
а) 300 + 150 = 450 (мм2)
б) 300 + 200 = 500 (мм2) = 5 (см2)
в) 800 + 300 = 1100 (мм2) = (11см2)
г) 600 + 600 = 1200 (мм2) = 12 (см2) 623.
1см = 10мм
а) 200 + 200 = 400 (мм2) = 4 (см2)
б) 600 + 300 = 900 (мм2) = 9 (см2)
в) 400 + 400 = 800 (мм2) = 8 (см2)
г) 400 + 400 = 800 (мм2) = 8 (см2)
624.

1) 11 1 см2 = 11 (см2) –
фігури; 2) 24 1 см = 24 (см) –
3) 11 + 2 = 13 (см2) –
фігури;
фігури. 4) 24 см – 4 см = 20 см –
фігури.
625. 1) 10 · 1 см2 = 10 (см2) – площа фігури; 2) 18 · 1 см = 18 см –

фігури; 3) 10 – 1 = 9 см2 –

629.
https://shkola.in.ua/2714-hdz-matematyka-5-klas-merzliak-2022.html

1) 500 · 400 = 200 000 (м2) = 20 (га) –
2) 260 · 20 = 5200 (кг) = 5т 200
5т < 5т 200кг
4 м 50 см = 450см
3м = 300см
–
631.
1) 450 · 300 = 135 000 (см2) – площа стіни.
2) 15 · 15 = 225 (см2) – площа
3) 135 000 : 225 = 600 (п.) – треба плиток.
4) 40 · 15 = 600 (п) – плиток у 15 ящиках
1) S = 6м · 3м = 18(м2) –
2) 180 · 18 = 3240 (г) = 3кг 240г
https://shkola.in.ua/2714-hdz-matematyka-5-klas-merzliak-2022.html
2) 4 · 5 · 78 · 5 = (4 · 5 · 5) · 78 = 100 · 78 = 7800
3) 125 · 943 · 8 = 125 · 8 · 943 = 1000 · 943 = 943 000
1) 3а · 16b = (3 · 16) · ab = 48ab
2) 4m · 9n · 5k = (4 · 5 · 9) · mnk = 180mnk
3) 7a · 2b · 50c · 8d = (7 · 8) · (2 · 50) · abcd = 56 · 100 · fbcd = 5600abcd
1) 2 (a + b) = 2a + 2b
2) (3 – b) 5 = 3 5 – b 5 = 15 – 5b
3) 6m (7n + 8p) = 6 7 mn + 6 8 mp = 42mn + 48mp 4.
1) 28 : 7 = 4 (см) – друга сторона;
2) P = (7 см + 4 см) · 2 = 22 (см) – периметр прямокутника.
6ц : 12 = 600 кг : 12 = 50 (ящ.) – ящиків заповнили яблуками. 633.

1) ребра, які є сторонами грані EFST, EF, FS, ST, TE
2) грані, яким належить вершина K, PTSK, MNKP, NFSK
3) ребра, які дорівнюють ребру NK, MP, ET, FS
4) грані, які мають спільне ребро ME, MEFN, METP
5) грань, яка дорівнює грані PTSK, MEFN 634.
1) Бачите сонечко: а) MNKP, б) AMPD
2) Не бачите його: a) BNKC, б) AMNB 635.
1) 9·5 = 45 см2 – площа грані MNKP
2) 9·6 = 54 см2 – площа грані NFSK
3) (6см ·5см) ·2 + (9см · 5см) · 2 + (9см ·6см)·2 = 60см2+
4) 6см · 4 + 9см · 4 + 5см · 4 = (6см + 9см+5см) · 4 =
2) (7м ·10м) · 2 + (7м·11м)·2 + (10м·11м)·2 = (70м2+77м2+110м2)·2 = = 257м2 · 2 = 514м2 –
2 . 637.
2м = 20дм, 1м = 10 дм (20 дм · 10дм)·2 + (20дм·4дм)·2+(10дм·4дм)·2 =
2
641.
9
https://shkola.in.ua/2714-hdz-matematyka-5-klas-merzliak-2022.html
1) 5·12=60 (см)
2) 5·5 = 25 (см2
3) 25 · 6 = 150 (см2)
1) 7·12=84 (см) – сума
2)7·7 = 49 (см2) – площа
3) 49 · 6 = 294 (см2) – площа
Відповідь: сума

1) АВС; 2) М; 3) АММ, ВМС, АМС; 4) АМ, ВМ, СМ; 5) АВ, ВС, СА. 642.

1) АВСD; 2) S; 3) АBS, ВСS, CDS, DAS; 4) АS, ВS, СS, DS; 5) АВ, ВС, СD, DA 643.

1) з 6 граней; 2) 3 пари рівних
3) (10см·7см)·2 + (7см·3см)·2 + (10см·3см)·2=
розгортки
https://shkola.in.ua/2714-hdz-matematyka-5-klas-merzliak-2022.html

(6см · 4см) · 2 + (6см · 2см) · 2 + (2см · 4см) · 2 = 48см2 + 24см2 + 16см2 = 88см2
Відповідь: площа поверхні розгортки 88 см2 . 645.
Прямокутний паралелепіпед має 4 пари рівних ребер, тому
28 : 4 = 7(см) – сума вимірів трьох ребер, що мають спільну вершину
Відповідь: сума довжин трьох ребер, що виходять з одної вершини, дорівнює 7 см. 646.
Куб має 12 рівних ребер, тому
72:12=6 (см) – довжина кожного ребра.
Відповідь: довжина ребра куба дорівнює 6см. 647.
1) 1001; 2) 2002. 648.
1) 20+1 = 21(шт.) – граней
2) 20·2 = 40 (шт.) – ребер
649.
1) 8·8·6=384 (см2) – площа
2) 12·4·2=96 (см2) –
3) 384 – 96 = 288 (см2) –
4) Нехай х
(4х+12х)·2 = 288
16х = 288 : 2
16х=144
х= 144:16
х= 9(см)
Відповідь: невідомий
1) 18:2=9(м)
2) 18-8=10(м)
3) (18м·9м)·2+(18м·10м)·2+(9м·10м)·2=324м2+360м
4) 864:6=144(см)
https://shkola.in.ua/2714-hdz-matematyka-5-klas-merzliak-2022.html
кубиків на гранях 6+8+12=26, а беручи до уваги, що грані попарно рівні,
52.
Відповідь: 1) 8 кубиків; 2) 36 кубиків; 3) 52 кубики. 652.
Кількість усіх ребер піраміди удвічі більша
основою піраміди. Тому загальна кількість
1) 1000 : 2 =500. Основою є 500-кутник.
2) такої піраміди не існує. 653.
S = v:t = 960:8 = (800 + 160): 8 = 100 + 20 = 120 (с) = 2(хв.) –
654.
655.
656.
50 : 8 = 8 (ост. 2)
Відповідь: для 50 квадратів
1) 24 – 16 = 8 (год) – час у
2) 24 – 19 = 5 (год) – час у
3) 54 · 8 = 432 (км) – відстань
4) 642 – 432 = 210 (км) –
5) 210 : 5 = 42 км/год – швидкість
Відповідь: швидкість 2-
23х – 19х + 5х = 1827
9х = 1827
х = 1827 : 9
х = 203
42
5х + 3 – 47 = 6401
8х – 47 = 6401
8х = 6448
х = 6448 : 8
х = 806 657.
1) 20 + 5 = 25 (см) – довжина
2) 20 · 3 = 60 (см) –
3) (20 см · 25 см) · 2 + (20 см · 60 см) · 2 + (25 см · 60 см) · 2 = = 1000 см2 + 2400 см2 + 3000 см2 = 6400 см2 –
6400 см2 = 64 · 10 см · 10 см = 64 · 1 дм2 · 1 дм2 = 64 (дм2) 4) 4 · 64 = 256 (г) – грамів лаку потрібно. Відповідь: потрібно 256 г лаку.
658.
https://shkola.in.ua/2714-hdz-matematyka-5-klas-merzliak-2022.html
1) 3 · 5 + 3 · 4 = 15 + 12 = 27 (м2) – площа стін з
2) 27 – 3 – 2 · 2 = 20 (м2) – площа стін без
3) 10 · 1 = 10 (м2) – площа рулону шпалер;
4) 20 : 10 = 2 рулонів.
Відповідь: потрібно 2 рулонів шпалер. 659.

60 км/год = 1 км/хв
Зеленим кольором показано,
3 хв · 1 км/хв = 3 (км) – проїхав за 3 хв. Відповідь: водій не порушив
3 см · 4 + 5 см · 4 + 6 см · 4 = 56 (см) – довжина
660.
1) 1 дм3 = 1000 см3; 1 м3 = 1 000 000 см3; 2) 1 м = 10 дм; 1 м2 = 100 дм2; 1 м3 = 1000 дм3 661.
1) м3; 2) см3 або л; 3) мм3 . 662.
1 см · 1 см · 1 см = 1 (см3) – об’єм одного кубика; а) 1 см3 · 3 = 3 см3 – об’єм 1-ї фігури; б) 1 см3 · 6 = 6 см3 – об’єм 2-ї фігури; в) 1 см3 · 12 = 12 см3 – об’єм 3-ї фігури; г) 1 см3 · 10 = 10 см3 – об’єм 4-ї фігури. 663. 1) 1 см3 · 18 = 18 см3 – об’єм 1-ї фігури; 2) 1 см3 · 35 = 35 см3
1080
3 . 665. V = 63 = 6 · 6 · 6 = 216 см3 –
https://shkola.in.ua/2714-hdz-matematyka-5-klas-merzliak-2022.html
667.
V = 15 см · 20 см · 30 см = 9000 см3; V = 45 см · 18 см · 10 см = 8100 см3; 9000 см3 > 8100 см3 . 668.
V = 4 м · 4 м · 3 м = 48 м3 – об’єм кімнати.
Відповідь: об’єм кімнати 48 м3 . 669.
V = S · h = 15 см2 · 6 см = 90 см3 – об’єм паралелепіпеда.
Відповідь: об’єм прямокутного паралелепіпеда 90 см3 670.
1) у кубічних міліметрах 2) у кубічних дециметрах
7 см3 = 7000 мм3;
38 см3 = 38 000 мм3; 12 см3 243 мм3 = 12 243 мм3;
42 см3 68 мм3 =42 068 мм3; 54 см3 4 мм3 = 54 004 мм3; 1 дм3 20 мм3 = 1 000 020 мм3; 18 дм3 172 см3 = 18 172 000 мм3; 35 дм3 67 см3 96 мм3 = 35 067 096 мм3; 4 м3 = 4000 дм3; 264 м3 = 264 000 дм3; 10 м3 857 дм3 = 10 857 дм3; 28 м3 2 дм3 = 28 002 дм3; 44 000 см3 = 44 дм3; 5 430 000 см3 = 5430 дм3 671.
62 дм3 = 62 000 см3; 520 000 мм3 = 520 см3; 78 дм3 325 см3 = 78 325 см3; 56 дм3 14 см3 = 56 014 см3 . 672.
1) 15 + 3 = 18 (дм) – довжина
2) 18 : 3 = 6 (дм) – висота
3) V = 18 дм · 15 дм · 6 дм = 1620 дм3 –
Відповідь: об’єм
1620 дм3 . 673.
1) 20 + 4 = 24 (см) – довжина
паралелепіпеда; 2) 20 : 5 = 4 (см) – ширина прямокутного паралелепіпеда;
3) V = 24 см · 4 см · 20 см = 1920 см3 – об’єм паралелепіпеда.
Відповідь: об’єм прямокутного паралелепіпеда 1920 см3 . 674.
560 : 8 : 14 = 5 (см) висота паралелепіпеда.
Відповідь: 5 см. 675.
b = V : a : h = 3240 см3 : 18 см : 15 см = 12 см – ширина паралелепіпеда.
Відповідь: 12 см. 676.
S = V : h = 144 м3 : 4 м = 36 м2 –
Відповідь: 36 м2 677.
h = V : S = 960 м3 : 192 м2 = 5 м –
Відповідь: 5 м. 678.
1) V1 = 30 см · 20 см · 25 см = 15 000 см3; 2) V2 = 15 см · 20 см · 5 см = 1500 см3;
спортивного
3) V = V1 - V2 = 15 000 см3 – 1500 см3 = 13 500 см3 . Відповідь:
679.
https://shkola.in.ua/2714-hdz-matematyka-5-klas-merzliak-2022.html
1) V1 = 12 см · (8 см + 8 см) · 14 см = 2688 см3;
2) V2 = 8 см · 8 см · (14 см + 8 см) = 1408 см3;
3) V3 = 15 см · (8 см + 8 см) · 14 см = 3360 см3;
4) V = V1 + V2 + V3 = 2688 см3 + 1408 см3 + 3360 см3 = 7456 см3 .
Відповідь: об’єм фігури 7456 см3 . 680.
1) V = 43 = 64 (см3) – об’єм куба; 2) 7 · 64 = 448 (г) – маса куба.
Відповідь: маса куба 448 г. 681.
1) V = 10 дм · 8 дм · 6 дм = 480 дм3 – об’єм відливка;
2) 480 · 9 = 4320 кг = 4 т 320 кг – маса відливка.
Відповідь: маса відливка 4 т 320 кг. 682.
1) V = 4 м · 5 м · 6 м = 120 м3 – об’єм резервуару;
2) 120 м3 = 120 000 л = 120 000 кг = 120 т – вміщує цей резервуар.
Відповідь: резервуар вміщує 120 т води. 683.
1) V = 140 см · 120 см · 50 см = 840 000 см3 – об’єм резервуару;
2) 840 000 см3 = 840 дм3 = 840 л – можна налити в резервуар.
Відповідь: в резервуар можна налити 840 л води. 684.
1) 12 : 2 = 6 (см) – ширина паралелепіпеда;
2) 12 : 4 = 3 (см) – висота паралелепіпеда.
3) V = 12 см · 6 см · 3 см = 216 см3 – об’єм паралелепіпеда або куба.
Об’єми рівні, тому V = 216 см3 = 6 см · 6 см · 6 см;
4) оскільки ребро куба дорівнює 6 см, маємо
6 · 6 = 36 (см2) – площа грані куба;
5) оскільки куб має 6 граней, маємо
36 · 6 = 216 (см2) – площа поверхні куба.
Відповідь: площа поверхні куба 216 см2 . 685.
Vкуба = Vпар.
1) Vкуба = а3 = 103 = 1000 (см
3) Sпар. = 2 (8 25 + 8 5 + 25 5) = 2 (200 + 40 + 125) = 2 365 = 730 (см2)
Відповідь: 730 см2 686. Нехай х
· 4х · 4х = 64х3 –
3 : х3 = 64 (разів) –
688.
https://shkola.in.ua/2714-hdz-matematyka-5-klas-merzliak-2022.html
1) V = a · b · c
V = 2a · 2b · 2c = 8abc
Об’єм збільшився у 8 разів
2) V = a · b · c
V = a:3 · 15b · c:5 = (15:3:5)abc = 1abc
Об’єм не зміниться Відповідь: 1) збільшився у 8 разів; 2) не зміниться. 689.
1) 1 га = 10 000 м2 = 1 000 000 дм2 – площа басейна; 2) 1 000 000 л : 1 000 000 дм2 = 1 000 000 дм3 : 1 000 000 дм2 = 1 дм – глибина
басейні. Плавати в басейні при такій глибині неможливо.
Відповідь: в басейні не можна провести змагання з плавання. 690.
1) 30 · 60 = 1800 (см2) = 18 (дм2) – площа акваріума;
2) 8 · 9 = 72 (дм3) – об’єм води;
3) 72 : 18 = 4 (дм) = 40 (см) – глибина води.
Відповідь: глибина води в акваріумі 40 см. 691.
1) 33 = 27 (см3) – об’єм великого куба;
2) 3 + 2 + 2 = 7 (шт.) – кубиків вирізали;
3) 1 см3 · 7 = 7 (см3) – об’єм трьох наскрізних квадратних отворів;
4) 27 – 7 = 20 (см3) – об’єм фігури.
Відповідь: об’єм частини, що залишилася, 20 см3 . 692.
1) 1200 м : 24 хв = 50 м/хв – при такій швидкості
2) 1200 м : 60 м/хв = 20 хв – час,
3) 24 – 20 = 4 хв – на стільки
693.
1) 28 · 6 = 168 кг –
2) 20 · 8 = 160 кг
Олени
яблук. 694.
1) якщо a + b = 14, то 7 · а + 7 · b = 7 (a + b) = 7 14 = 98; 2) якщо m + n = 1000, то m · 17 + n · 17 = 17 (m + n) = 17 · 1000 = 17 000; 3) якщо k + l = 12, то k · 9 + l · 9 = 9 (k + l) = 9 · 12 = 108; 4) якщо c – d = 125, то 4 · c – 4 · d = 4 (c – d) = 4 · 125 = 500; 5) якщо x – y = 4, то х · 23 – 23 · у = 23 (x – y) = 23 · 4 = 92; 6) якщо p – r = 11, то 56 · p – 56 · r = 56 (p – r) = 56 · 11 = 616. 695.
1) 12 6 4 = 288 (см3) – об’єм шматка мила; 2) (12 : 2) · (6 : 2) · (4 : 2) = 6 · 3 · 2 = 36 (см3) –
3) 288 – 36 = 252 (см3) –
4) 252 : 14 = 18 (см3) –
5) 36 : 18 = 2 (дні) –
4.
https://shkola.in.ua/2714-hdz-matematyka-5-klas-merzliak-2022.html
334, 344, 343, 433, 434, 443.
Перемножимо

Відповідь: ні, не можливо. Розв’язуємо усно
1) 3 · 3 = 9 (дм2) – площа грані куба;
2) 9 · 6 = 36 (дм2) – площа поверхні куба.
Відповідь: витратили 36 дм2 паперу.
1 л води = 1 кг = 1000 г;
1) 1000 г – 75 г = 925 г - маса 1 л соняшникової
2) 1000 г + 450 г = 1450 г – маса 1 л меду;
3) 1450 – 925 = 525 г – на стільки більша.
Відповідь: на 525 г 1 л меду важчий
1) V = 8 м · 2 м · 1 м = 16 м3 – об’єм
2) 8 · 16 = 128 (ц) –
Відповідь: у
1) 6 : 3 = 2
2)
Відповідь:
697.
11, 12, 13, 21, 22, 23, 31, 32, 33. 698.
10, 11, 12, 20, 21, 22. 699. 10,12, 20, 21. 700. 12, 13, 21, 23, 31, 32. 701.
1)
2)
3)
























Відповідь: 6 способів. 702. Місце












2 = 6 способів розподілу Ⅰ і Ⅱ місць серед
Відповідь: 6 способів. 703.
1) 346, 364, 436, 463, 634, 643; 2) 470, 740, 407, 704. 704.
1) 112, 121, 122, 211, 221, 212; 2) 100, 110, 101. 705.
20, 22, 24, 29, 40, 42, 44, 49, 90, 92, 94, 99. 706.
67, 68, 69, 78, 79, 89. 707.
87, 86, 80, 78, 76, 70,76, 70, 68, 67, 60. 708.
14, 23, 32, 41, 50.
Відповідь: існує 5 двоцифрових чисел, сума яких дорівнює 5. 709.
102, 111, 120, 201, 210, 300.
Відповідь: існує 6 трицифрових чисел, сума яких дорівнює 3. 710.
11, 13, 22, 24, 31, 33, 42, 44.
Відповідь: існує 8 двоцифрових чисел,
2, 3, 4).
711.
10, 12, 21, 23, 30, 31.
Відповідь:
712.
713.
Лимонів – 2, апельсинів – 10, мандаринів – 4.
Лимонів – 1, апельсинів – 5, мандаринів – 10. 714.
P = 2(a + b)
24 = 2(a + b)
a + b = 24 : 2
a + b = 12 см
Варіанти:
1) 12 см = 1 см + 11 см; 2) 12 см = 2 см + 10 см; 3) 12 см = 3 см + 9 см; 4) 12 см = 4 см + 8 см; 5) 12 см = 5 см + 7 см; 6) 12 см = 3 см + 3 см.
Відповідь: існує 6 різних прямокутників. 715.
V = abc
Варіанти:
1) 30 = 1 · 1 · 30; 2) 30 = 1 · 2 · 15; 3) 30 = 1 · 3 · 10; 4) 30 = 1 · 6 · 5; 5) 30 = 2 · 3 · 5.
Відповідь: можна скласти 5
716.

AB, BC, CD, DA, DB, AC.
Відповідь: 6 відрізків. 717.
Оскільки
трьома способами
3 · 3 = 9 (маршрутів).
Відповідь: 9 маршрутів. 718.
4 · 2 = 8 (варіантів).
https://shkola.in.ua/2714-hdz-matematyka-5-klas-merzliak-2022.html

https://shkola.in.ua/2714-hdz-matematyka-5-klas-merzliak-2022.html
1) 1376 : (34 – х) = 86
34 – х = 1376 : 86
34 – х = 16
х = 34 – 16
х = 18
3) (х – 57) : 29 = 205
х – 57 = 205 · 29
х – 57 = 5945
х = 5945 + 57
х = 6002
722.
2) 9680 : (х + 219) = 16
х + 219 = 9680 : 16
х + 219 = 605
х = 605 – 219
х = 386
4) (х – 72) · 9 = 927
х – 72 = 927 : 9
х – 72 = 103
х = 103 + 72
х = 175
Нехай х – менший доданок, тоді 14х – більший доданок.
14х + х = 15х
15х : х = 15 (разів)
Відповідь: сума у 15 разів більша від меншого доданку. 723.
Нехай х – різниця, тоді 12х – від’ємник.
12х + х = 13х – зменшуване.
13х : х = 13 (разів).
Відповідь: зменшуване у 13 разів більше
різницю. 724.
1) Частка; 2) Секунда; 3) Градус; 4) Множник; 5) Доданок; 6) Математика. 725.
Кількість
сидить з хлопчиками.
7х + х – 5х = 132
3х = 132
х = 132 : 3
х = 44
Відповідь: Б).
1) 12 – 3 = 9 (км/год) – швидкість
2) 18 : 9 = 2 (год) – велосипедист наздожене пішохода.
Відповідь: Б). 8.
У кожному під’їзді є 9 · 8 = 72 квартири.
173 : 72 = 2 (29 ост.)
Квартира № 173
29 : 8 = 3 (5 ост.)
Отже, квартира № 173 знаходиться на 4-му поверсі.
Відповідь: Б).
9.
2 м 40 см = 240 см; 6 м = 600 см.
1) 240 · 600 = 144 000 (см2) – площа стіни.
2) 15 · 15 = 225 (см2) – площа однієї
3) 225 · 120 = 27 000 (см2) – стіни
4) 144 000 : 27 000 = 5 (9 000 ост.)
Потрібно придбати щонайменше 6
В).
V = abc; c = V : (ab)
c = 120 000 : (60 · 40) = 50 (см) –
Відповідь: В).
1) 56 + 34 = 90 (км/год) –
90 км/год = 90 · 1000 : 3600 м/с = 25 м/с.
2) 15 · 25 = 375 (м) –
Б).
12.
https://shkola.in.ua/2714-hdz-matematyka-5-klas-merzliak-2022.html
1) сантиметр; 2) грам; 3) година; 4) секунда. 2.
1) 1 кг : 5 = 1000 г : 5 = 200 г
2) 1 кг : 10 = 1000 г : 10 = 100 г 3.
1) 1 т : 4 = 1000 кг : 4 = 250 кг 2) 1 ц : 20 = 100 кг : 20 = 5 кг 4.
1) 1 хв : 3 = 60 с : 3 = 20 с 2) 1 год : 9 = 3600 с : 9 = 400 с 5.
1) 8 · 2 = 16 (см) – довжина прямокутника; 2) Р = (16 см + 8 см) · 2 = 48 см – периметр прямокутника.
Відповідь: 48 см. 6.
1) 83 · 1 = 83; 2) 2 · 2 = 4 або 2 + 2 = 4; 3) 58 + 0 = 58; 4) 34 · 0 = 0. Вправи 726.
1/5 – одна п’ята
7/8 – сім восьмих
8/11 – вісім одинадцятих
5/16 – п’ять шістнадцятих
6/13 – шість тринадцятих
21/29 – двадцять одна двадцять дев'ята 727.
1) дві п’ятих; 2/5
2) сім тринадцятих; 7/13
3) двадцять дві шістдесятих; 22/60
4) тридцять чотири сорок третіх; 34/43
5) тридцять дев’ять сотих; 39/100
6) сто двадцять сім тисячних. 127/1000 728.
а) 1/2; б) 1/4; в) 3/8; г) 5/6; ґ) 1/8; д) 2/4 або 1/2. 729.

730.
1) 1 год = 60 хв = 3600 с 1 хв = 1/60 год 1 с = 1/3600 год
731.
732.
https://shkola.in.ua/2714-hdz-matematyka-5-klas-merzliak-2022.html
2) 1 м = 10 дм = 100 см = 1000 мм
1 см = 1/100 м 1 мм = 1/1000 м
1 т = 10 ц = 1000 кг 1 кг = 1/1000 т 3 ц = 3/10 т
1) 1/9 – частина басейну буде заповнена через 1 год.
2) 2/9 – частина басейну буде заповнена через 2 год.
3) 8/9 – частина басейну буде заповнена через 8 год. 733.
1) 1/7 – частину шляху проїде за 1 год.
2) 3/7 – частину шляху проїде за 3 год.
3) 6/7 – частину шляху проїде за 6 год. 734.
23/56 – частину становлять черешні. 735.
7/32 – частину становлять тюльпани жовтого кольору. 736.
1) 19 + 14 = 33 (с.) – сторінок у книжці.
2) 14/33 – частину від усіх сторінок становить
3) 19/33 – частину від усіх сторінок
737.
738.
1) 24 + 28 = 52 (п.) – пиріжків всього.
2) 24/52 – частину
3) 28/52 –
1) 1/3; 36 : 3 • 1 = 12
2) 5/6; 36 : 6 • 5 = 6 • 5 = 30
3) 5/12; 36 : 12 • 5 = 3 • 5 = 15
4) 11/18. 36 : 18 • 11 = 2 • 11 = 22 739.
1) 1/2; 28 : 2 • 1 = 14
2) 3/7; 28 : 7 • 3 = 4 • 3 = 12
3) 9/14; 28 : 14 • 9 = 2 • 9 = 18
4) 19/28. 28 : 28 • 19 = 19 740.
180 : 9 • 4 = 80 (с.) –
741.
742.
72 : 8 • 5 = 45 (в.) –
210 км2 = 210 • 1000 м • 1000 м = 210000000 м2 210000000 : 3000 = 70000 (м2) –
https://shkola.in.ua/2714-hdz-matematyka-5-klas-merzliak-2022.html

В �1 9� , С �2 9� , ���� �49� , Е �59� , ����
9�. 744.

745.
1) 42 : 1 • 2 = 84
2) 42 : 3 • 7 = 14 • 7= 98 3) 42 : 7 • 11 = 6 • 11= 66 4) 42 : 21 • 23 = 2 • 23 = 46 746.
1) 90 : 1 • 9 = 810
2) 90 : 2 • 9 = 45 • 9 = 405 3) 90 : 3 • 10 = 30 • 10= 300 4) 90 : 5 • 6 = (50 +
747.
24 : 2 • 9 = 108 (д.) – дерев у саду.
Відповідь: у саду росте всього 108 дерев. 748.
12 : 4 • 11 = 33 (уч.) – учнів у цьому класі.
Відповідь: у цьому класі 33 учні. 749.
1) 1/4 (усього 4 трикутники, зафарбований
2) 1/8 (усього 4 • 2 = 8 трикутників, зафарбований один трикутник)
3) 1/12 (усього 4 • 3 = 12 трикутників,
трикутник). 750.
а)
1) 8 • 8 = 64 (см2) – площа квадрата.
Оскільки зафарбована частина становить 2/8 від площі
2) 64 : 8 • 2 = 16 (см2) – площа зафарбованих частин
1) 8 • 8 = 64 (см2) –
2)
16 см2 .
https://shkola.in.ua/2714-hdz-matematyka-5-klas-merzliak-2022.html
2) 16 : 8 • 4 = 8 (см2) –
2 . 752.
1) 2/15 величини прямого кута; Оскільки
90° : 15 • 2 = 6° • 2 = 12°
2) 11/20 величини розгорнутого кута?
Оскільки величина розгорнутого кута дорівнює 180°, тому
180° : 20 • 11 = 6° • 11 = 66° 753.
1) 7/18
величини прямого кута;
Оскільки величина прямого кута дорівнює 90°, тому 90° : 18 • 7 = 90° : 9 : 2 • 7 = 5° • 7 = 35° – треба накреслити кут.
2) 5/12 величини розгорнутого кута?
Оскільки величина розгорнутого кута дорівнює 180°, тому 180° : 12 • 5 = 180° : 6 : 2 • 5 = 30° : 2 • 5 = 75° – треба накреслити кут.
754.
755.
1) 168 : 14 • 5 = 12 • 5 = 60 (р.) – риб зловив Щукін.
2) 168 : 21 • 8 = 8 • 8 = 64 (р.) – риб зловив Окунєв.
3) 60 + 64 = 124 (р.) – риб зловили Щукін та
4) 168 – 124 = 44 (р.) – риб зловив Карасьов. Відповідь: Карасьов зловив 44 риби.
1) 624 : 13 • 2 = 48 • 2 = 96 (км) – пройшла
2) 624 : 26 • 5 = 24 • 5 = 120 (км) –
3) 624 : 12 • 5 = 52 • 5 = 260 (км) –
4) 96 + 120 + 260 = 476 (км) – пройшла
5) 624 – 476 = 148 (км) – пройшла
за четвертий
756.
разом.
9 кг 450 г = 9450 г
1) 9450 : 21 • 8 = 450 • 8 = 3600 (г) – сметани
2) 9450 – 3600 = 5850 (г) – решта сметани.
3) 5850 : 13 • 9 = 450 • 9 = 4050 (г) = 4 кг 50 г – сметани з'їв
у чоботях за другий тиждень
сметани. 757.
2 т 1 ц = 21 ц
1) (21 : 7) • 2 = 6 (ц) – вівса
2) 21 – 6 = 15 (ц) – решта вівса.
3) (15 : 5) • 3 = 9 (ц) –
1) 612 : 17 • 5 = 36 • 5 = 180 (т) – ячменю
2) 612 – 180 = 432 (т) –
3) 432 : 16 • 9 = 27 • 9 = 243 (т) –
4) 432 – 243 = 189 (т) –
759.
https://shkola.in.ua/2714-hdz-matematyka-5-klas-merzliak-2022.html
1) 10 240 : 32 • 11 = 32 • 11 = 3520 (грн) – грошей
2) 10 240 – 352 = 6720 (грн) – решта грошей (одержав
3) 6720 : 8 • 5 = 84 • 5 = 4200 (грн) – грошей одержав крокодил Гена.
4) 6720 – 4200 = 2520 (грн) – грошей отримала Шапокляк.
Відповідь: Шапокляк заробила 2520 грн. 760.
1) 245 : 35 • 12 = 7 • 12 = 84 (кг) – маса апельсинів.
2) 84 : 12 • 7 = 7 • 7 = 49 (кг) – маса мандаринів.
3) 84 + 49 = 133 (кг) – маса апельсинів та мандаринів разом.
Відповідь: до санаторію завезли 133 кг апельсинів та мандаринів. 761.
1) 72 : 8 • 7 = 9 • 7 = 63 (км) – проплила за другий тиждень.
2) 63 : 9 • 8 = 7 • 8 = 56 (км) – проплила за третій тиждень.
3) 63 – 56 = 7 (км) – на стільки менше проплила за третій тиждень, ніж за другий. Відповідь: за третій тиждень Софія проплила
тиждень. 762.
1) 210 : 7 • 3 = 90 – деяке число (3/7 частини від 210).
2) 90 : 2 • 3 = 135 – шукане число.
Відповідь: шукане число 135. 763.
1) 160 : 5 • 12 = 32 • 12 = 384 – деяке число.
2) 384 : 8 • 5 = 48 • 5 = 240 – шукане число (5/8 частин від деякого числа).
Відповідь: шукане число 240. 764.
1) 324 : 12 • 25 = 27 • 25 = 675 – сума.
2) 675 – 324 = 351 – другий доданок.
Відповідь: другий доданок дорівнює 351. 765.
1) 658 : 7 • 15 = 94 • 15 = 1410 – зменшуване.
2) 1410 – 658 = 752 – різниця.
Відповідь: різниця двох чисел дорівнює 752. 766.
1) 60 – 50 = 10 (кг) – четверта частина води, що вилили.
2) 10 • 4 = 40 (кг) – маса води.
3) 60 – 40 = 20 (кг) – маса порожньої діжки.
Відповідь: маса порожньої діжки 20 кг. 767.
1) 9х – 4х + 39 = 94
5х + 39 = 94
5х = 94 – 39
5х = 55
х = 55 : 5
х = 11
2) 7у + 2у – 34 = 83.
9у – 34 = 83
9у = 83 + 34
9 у = 117
у = 117 : 9
у = (90 + 27) : 9
у = 13
https://shkola.in.ua/2714-hdz-matematyka-5-klas-merzliak-2022.html
1 спосіб
Нехай х (кг) – яблук зібрав
яблуні. Складемо рівняння
х + (х + 17) = 65
2х + 17 = 65
2х = 65 – 17
2х = 48
х = 48 : 2
х = 24 (кг) – яблук
х + 17 = 24 + 17 = 41 (кг) – яблук
2 спосіб
1) 65 – 17 = 48 (кг) – зібрав порівну.
2) 48 : 2 = 24 (кг) – зібрав з одної яблуні.
3) 24 + 17 = 41 (кг) – зібрав з другої яблуні.
Відповідь: з першої яблуні
яблук. 769.
тоді х + 17 (кг) –
1) 56 – 42 = 14 (км/год) – швидкість зближення.
2) 28 : 14 = 2 (год) – час зустрічі.
Відповідь: через 2 год після
https://shkola.in.ua/2714-hdz-matematyka-5-klas-merzliak-2022.html
2) 28 – 8 = 20 (км) –
Вправи 771.
Правильні дроби: 1 7 , 4 9 , 17 19 , 2 13 ;
Неправильні дроби: 5 3 , 11 11 , 18 17 , 6 6 . 772. 1 8 , 2 8 , 3 8 , 4 8 , 5 8 , 6 8 , 7 8 773. 1 11 , 2 11 , 3 11 , 4 11 , 5 11 , 6 11 , 7 11 , 8 11 , 9 11 , 10 11 774. 8 1 , 8 2 , 8 3 , 8 4 , 8 5 , 8 6 , 8 7 , 8 8 775. 11 1 ,
776. 1) менші від 1; 5 6 , 3 4 , 6 16 2) дорівнюють 1; 4 4
3) більші за 1. 4 3 , 10 7 , 37 36 , 25 24 . 777. 1) 5 13 < 7 13; 2) 37 41 > 34 41;
;
. 779. 24 27 , 20 27 , 9 27 , 8 27 , 4 27 780.
1 20 , 3 20 , 7 20 , 9 22 , 15 20 , 17 20
781.

782.
https://shkola.in.ua/2714-hdz-matematyka-5-klas-merzliak-2022.html

783.
Відповідь: при х = 1, 2, 3, 4, 5, 6, 7, 8 дріб х 9 буде правильним. 784.
Відповідь: при х = 1, 2, 3, 4, 5, 6, 7, 8, 9, 10, 11, 12, 13, 14 дріб х 15 буде правильним. 785.
Відповідь: при х = 1, 2, 3, 4, 5, 6 дріб 6 х буде неправильним. 786.
Відповідь: при х = 1, 2, 3, 4, 5, 6, 7, 8, 9, 10, 11, 12, 13 дріб 13 х буде неправильним. 787.
1) 63 : 7 • 9 = 81 (д.) – деталей
2) 81 – 63 = 18 (д.) – на стільки
зміну.
Відповідь: за
788.
1) 18 : 9 • 20 = 40 (г.) –
2) 40 – 18 = 22 (г.) –
на
порцію. 789.
1) х 14 < 9 14
Відповідь: при х = 1, 2, 3, 4, 5, 6, 7, 8 виконується нерівність.
2) 4 7 < ���� 7 < 10 7
Відповідь: при х = 5, 6, 7, 8, 9 виконується нерівність.
3) 5 ���� >1
Відповідь: при х = 1, 2, 3, 4 виконується нерівність.
4) 9 16 < 9 ����
Відповідь: при х = 1, 2, 3, 4, 5, 6, 7, 8, 9, 10, 11, 12, 13, 14, 15 виконується нерівність. 790.
1) 7 17 > ���� 17
Відповідь: при х = 1, 2, 3, 4, 5, 6 виконується нерівність.
2) 11 16 < ���� 16 < 21 16
Відповідь: при х = 12, 13, 14, 15, 16, 17, 18, 19, 20 виконується нерівність.
3) ���� 6 <1
Відповідь: при х = 1, 2, 3, 4, 5 виконується нерівність.
4) 12 ���� > 12 11
Відповідь: при х = 1, 2, 3, 4, 5, 6, 7, 8, 9, 10 виконується нерівність.
https://shkola.in.ua/2714-hdz-matematyka-5-klas-merzliak-2022.html
791.
1) при 7, 8, 9; 2) при 8, 9. 792.
3b + 2 < 16
3b < 16 – 2
3b < 14
Відповідь: при b = 1, 2, 3, 4 дріб буде правильним. 793.
10 + 4b ≤ 42
4b ≤ 42 – 10
4b ≤ 32
b ≤ 32 : 4
b ≤ 8
Відповідь: при b = 1, 2, 3, 4, 5, 6, 7, 8 дріб буде неправильним. 794.
Дріб, у якого чисельник менший від знаменника, називають правильним.
Дріб, у якого чисельник більший або рівний знаменнику,
1) ���� 12 i 7 ���� при а = 8, 9, 10, 11
2) 3 ���� правильним, а 6 ���� – неправильним при а = 4, 5, 6 795.
1) ���� 8 і 9 ����
при а = 8, 9
2) ���� 13 правильний, а ���� 10 і 15 ���� неправильні при а = 10, 11, 12 796.
V = abc
1) с = 180 : 6 : 15 = 2 (дм) – третій вимір.
2) (6 + 15 + 2) • 4 = 92 (дм) – сума довжин усіх ребер паралелепіпеда.
Відповідь: сума довжин усіх ребер паралелепіпеда дорівнює 92 дм. 797.
1) 48 : 6 • 7 = 56 (км/год) – швидкість другого автомобіля.
2) 48 + 56 = 104 (км/год) – швидкість зближення.
3) 104 • 5 = 520 (км) – відстань проїхали.
4) 520 – 392 = 128 (км) – відстань між ними.
Відповідь: через 5 год відстань між ними дорівнюватиме
23 + 22 = 45. 70 – (22 + 23 + 24) = 1 (б.) –
https://shkola.in.ua/2714-hdz-matematyka-5-klas-merzliak-2022.html
(19 + 23) – 34 =
805.
806.
https://shkola.in.ua/2714-hdz-matematyka-5-klas-merzliak-2022.html
6 19 + 8 19 = 6+8 19 = 14 19 –
Відповідь: дві машини
1) 9 20 + 3 20 = 9+3 20 = 12 20 кг –
2) 9 20 + 12 20 = 9+12 20 = 21 20 кг –
Відповідь: кіт Базиліо
1)
812.
1) 3 16 + 7 16 = 3+7 16 = 10 16 –
2) 240 : 16 • 10 = 15 • 10 = 150 (кг) –
1) 6 23 + 9 23 = 15 23 –
2) 92 : 23 • 15 = 60 (км) –
Відповідь: за два місяці було побудовано
13 ≠ 13 13 (13 13 = 1 — все поле)
Відповідь: бригадир помилився. 813.
3 20 + 4 20 + 6
20 ≠ 20 20 (20 20 = 1 — весь город)
Відповідь: не зможе. 814.
–
39 грн = 3900 к., 63 грн = 6300 к., 1 кг = 1000 г
1) 3900 : 200 • 1000 = 19500 (к.) = 195 (грн) – вартість 1 кг печива.
2) 6300 : 300 • 1000 = 21000 (к.) = 210 (грн) – вартість 1 кг вафель.
3) 210 – 195 = 15 (грн) – на стільки дорожчий 1 кг печива.
Відповідь: на 15 грн дорожчий 1 кг печива, ніж вафель. 815.
Формула а = bq + r, q - неповна частка, r - остача. За умовою r=q=x, тому а = bх + х
а : 7 = х (ост. х), причому х < 7 (остача менша від дільника)
а = 7х + х = 8х, причому х < 7
При х = 1, а = 8 • 1 = 8
При х =2, а = 8 • 2 = 16
При х = 3, а = 8 • 3 = 24
При х = 4, а = 8 • 4 = 32
При х = 5, а = 8 • 5 = 40
При х = 6, а = 8 • 6 = 48
Відповідь: 8, 16, 24, 32, 40, 48.
https://shkola.in.ua/2714-hdz-matematyka-5-klas-merzliak-2022.html
1) 3 кульки одного кольору. 6 + 5 – 4 = 7 (к.) – найменша кількість кульок.
2) кульки всіх трьох кольорів. Якщо витягнути 5 + 6 = 11 кульок, то серед них може не
білої
тому треба витягнути щонайменше 12 кульок.
Розв’язуємо усно сторінка 232 1.
63 : 7 • 2 = 18 (р.) – років онукові.
Відповідь: онуку 18 років. 2.
27 : 3 • 8 = 72 (р.) – років бабусі.
Відповідь: бабусі 72. 3.
Неправильний дріб 6 4 . Вправи 817.
1) 4
820.
1) 7 12 = 7 : 12; 2) 17 584 = 17 : 584; 3) 11 7 = 11 : 7. 821. 1) 5 7 = 5 : 7; 2) 3 10 = 3 : 10; 3) 29 5 = 29 : 5. 822. 4 : 23 = 4 23 (год) Відповідь: потрібно 4 23 годин
823. 12 : 19 = 12 19 (м)
довжина однієї частини 12 19 метра. 824.
1) 6 1; 2) 6 4; 3) 6 19 . 825.
1) 12 1 ; 2) 15 5 ; 3) 12 23 . 826. 1) 10 5 ; 2) 45 5 ; 3) 120 5 . 827.
1) 21 7 ; 2) 56 7 ; 3) 749 7
828.
829.
1) b 7 = 12
b = 12 • 7 b = 84
1) x 4 = 5
х = 5 • 4
х = 20
https://shkola.in.ua/2714-hdz-matematyka-5-klas-merzliak-2022.html
2) 169 m = 13 m = 169 : 13 m = 13 3) 126 8−y = 21
8 – у = 126 : 21 8 – у = 6
у = 8 – 6 у = 2
2) 105 y = 7
у = 105 : 7
у = (70 + 35) : 7 у = 15
830.
831.
3) x+12 6 = 14. х + 12 = 14 • 6 х + 12 = 84
х = 84 – 12 х = 72
4) x+6 6 = 6
х + 6 = 6 • 6
х + 6 = 36
х = 36 – 6 х = 30
4) 9 y−4 = 3 у – 4 = 9 : 3 у – 4 = 3 у = 3 + 4 у = 7
1) m = 972 : 108 = 9, n = 972 – 60 = 912, a = 60 : 12 = 5, b = 12 + 19 = 31, c = 155 : 31 = 5, d = 155 – 108 = 47;
2) m = 100 – 39 = 61, x = 192 – 100 = 92, y = 192 : 16 = 12, z = 16 + 32 = 48, p = 384 : 48 = 8, q = 384 – 61 = 323.
1) 28 : 7 • 4 = 16 (м) – ширина ділянки.
2) S = 28 м • 16 м = 448 (м2) – площа ділянки.
3) 448 : 56 • 30 = 240 (м2) – площа саду.
Відповідь: площа саду 240 м2 . 832.
Відповідь: 542, 524, 452, 425, 254, 245 833.
Назва товару
:
9 =
Підсумок: 915 834.
5 т = 5000 кг
1) 150 • 12 = 1800 (дм2) –
2) 1800 • 350 = 6 300 000 (дм2) –
3) 30 • 6 300 000 = 18 900 000 (г) = 18900
1) 5 : 6 = 5 6 (кг) – цукерок отримав 1 загін.
2) 5 : 6 = 5 6 (км/год) – швидкість пішохода.
3) 6 : 5 = 6 5 (м) – тканини пішло на 1 фартух.
4) 6х = 5 х = 5 : 6 х = 5 6 3. ���� 6 = 3 y : 6 = 3
841.
845.
https://shkola.in.ua/2714-hdz-matematyka-5-klas-merzliak-2022.html
https://shkola.in.ua/2714-hdz-matematyka-5-klas-merzliak-2022.html
1) x + 4 4 19 = 6 2 19 x = 6 2 19 – 4 4 19 = 5 21 19 – 4 4 19 x = 1 17 19
850. 1) 4 5 7 –
6 3 7� = 2 6 7
6 3 7 = 4 5 7 – 2 6 7 = 3 12 7 – 2 6 7
6 3 7 = 1 6 7 ���� = 1 6 7 + 6 3 7
= 7 9 7 = 82 7
1) 7 7 30 – �5 11 30 −����� = 3 19 30 5 11 30 −����
858.
https://shkola.in.ua/2714-hdz-matematyka-5-klas-merzliak-2022.html
1) 2 1 3 < ���� 3 < 3 2 3
2) 1 5 12 < 17 ���� < 2 1 8 17 12 < 17 ���� < 17 8 x = 11, 10, 9. 859.
7 3 < ���� 3 < 11 3 x = 8, 9, 10;
1) 3 11 15 < ���� 15 < 4
56 15 < ���� 15 < 60 15 x = 57, 58, 59; 2) 3 1 8 < 25 ���� < 8 1 3 25 8 < 25 ���� < 25 3 x = 7, 6, 5, 4. 860.
1) 20 ���� < 2 при а = 11, 12, 13, 14, 15, 16, 17, 18, 19, 20. 2) 4 ���� > а при а = 1. 861. 10 ���� < а при а = 1, 2, 3. 862.
Нехай перша сторона трикутника x см, тоді друга
Складемо рівняння:
x + 2x + x + 7 = 39;
4x + 7 = 39;
4x = 39 – 7;
4x = 32;
x = 8 (см) — перша сторона; 2 · 8 = 16 (см) — друга сторона;
8 + 7 = 15 (см) — третя сторона.
Відповідь: 8 см, 16 см, 15 см. 863.
Нехай площа озера Сасик
— (x – 111) км2 .
Складемо рівняння:
x + x – 56 + x – 111 = 448;
3x – 167 = 448;
3x = 448 + 167; 3x = 615;
x = 205 (км2) — площа озера Сасик; 205 – 56 = 149 (км2) —
205 – 111 = 94 (км2) —
864.
https://shkola.in.ua/2714-hdz-matematyka-5-klas-merzliak-2022.html
1. 3 4+3 = 3 7 . Відповідь: А).
2. Б). 3. В).
4. 250 : 5 · 3 = 150 (кг). Відповідь: Г).
5. 280 · 7 : 4 = 490 (учнів). Відповідь: А).
8. 9 – 5 2 7
https://shkola.in.ua/2714-hdz-matematyka-5-klas-merzliak-2022.html
(12 · 5) · (15 · 4) = 60 · 60 = 3600 6.
(90 : 15) : (84 : 14) = (90 : 3 : 5) : (84 : 2 : 7) = 6 : 6 = 1 Вправи 867.
1) 1,6 (одна ціла шість десятих)
2) 12,8 (дванадцять цілих вісім десятих)
3) 5,24 (п’ять цілих двадцять чотири сотих)
4) 6,325 (шість цілих, триста двадцять п’ять тисячних)
5) 17,4192 (сімнадцять цілих чотири тисячі сто дев’яносто два десятитисячних)
6) 0,5 (нуль цілих п’ять десятих)
7) 0,05 (нуль цілих п’ять сотих)
8) 0,005 (нуль цілих п’ять тисячних)
9) 3,04 (три цілих чотири сотих)
10) 0,0304 (нуль цілих триста чотири десятитисячних)
11) 12,098 (дванадцять цілих дев’яносто вісім
12) 0,01012 (нуль цілих одна тисяча дванадцять стотисячних) 868.
1) 8 10 = 0,8 2) 34 100 = 0,34 3) 683 1000 = 0,683
869.
1) 7 10 = 0,7; 2) 27 100 = 0,27; 3) 9 83 100 = 9,83; 4) 18 45 1000 = 18,045; 5) 12 10000 = 0,0012; 6) 1 1 10 = 1,1 ; 7)
=
,001. 870. 1) 23 10 = 2 3 10 = 2,3; 2) 851 100 = 8 51 100 = 8,51; 3) 5273 1000 = 5 273 1000 = 5,273; 4) 3636 100 = 36 36 100 = 36,36; 5) 654321 10000 = 65 4321 10000 = 65,4321. 871. 1) 34 10 = 3 4 10 = 3,4; 2) 3978 1000 = 3 978 1000 = 3,978; 3) 9266
= 92 66
= 92,66; 4) 8448 1000 = 8 448 1000 = 8,448; 5) 2948697 100000 =29 48697 100000 = 29,48697. 872.
1) 28 : 10 = 2,8 2) 7 : 10 = 0,7 3) 456 : 100 = 4,56 4) 8351 : 1000 = 8,351 5) 674 : 1000 = 0,674 6) 4 : 1000 = 0,004 873. 1) 42 : 10 = 4,2 2) 35 : 100 = 0,35 3) 2484 : 100 = 24,84 4) 5876 : 10 000 = 0,5876 5) 26 435 : 10 000 = 2,6435 6) 58 : 1000 = 0,58 874.
1) 2,4 = 2 4 10 2) 3,18 = 3 18 100 3) 1,06 = 1 6 100 4) 9,074 = 9 74 1000 5) 0,9 = 9 10 6) 0,04 = 4
875.
https://shkola.in.ua/2714-hdz-matematyka-5-klas-merzliak-2022.html
1) 4,9 = 4 9 10; 2) 8,95 = 8 95 100; 3) 1,567 = 1 567 1000; 4) 0,2 = 2 10;
5) 0,043 = 43 1000; 6) 0,008 = 8 1000; 7) 5,06 = 5 6 100; 8) 12,018 = 12 18 1000 . 876.
1) три одиниці, чотири десятих, п’ять сотих; 3,45
2) два десятки, вісім одиниць, одна сота, дев’ять тисячних; 28,019
3) вісім сотень, дев’ять одиниць, сім десятих, шість тисячних; 809,076
4) одна тисяча, одна десятитисячна. 1000,0001 877.
1) дві одиниці, сім десятих; 2,7
2) три десятки, дві десятих, вісім сотих; 30,28
3) одна сота, три тисячних. 0,013 878.
1) 64 к. = 64 100 грн = 0,64 грн; 2) 5 к. = 5/100 грн = 0,05 грн;
3) 208 к. = 208 100 грн = 2,08 грн; 4) 4 грн 25 к. = 4 грн + 25 100 грн = 4,25 грн. 879.
1)
3) 64 см 5 мм = 645 мм = 645 100 дм = 6,45 дм;
4) 6 мм = 6 100 дм = 0,06 дм; 5) 3 см = 3 10
= 0,3 дм. 880. 1) 1347 г = 1347 1000 кг
881. 1) 125
58 дм 6 см = 586 см =
5) 2 см = 2 100 м = 0,02 м; 6) 4 м 6 дм 5 см = 4 м + 65 см = 4 м + 65
=
м = 4,65 м. 882.
1) точкам А (0,4), В (0,8), С(1,1), D(1,7), F(1,9), Е(2,2);
2) точкам М (5,9), N (6,3), К(6,6), Р(7,2), R(7,7), S(8,4). 883.
1)
35,6°; на 8 маленьких поділок; 35,8°; на 1,6°С; 35,0°.
2) зміститься праворуч на 2 великих поділки; 38,6°; на 5 маленьких поділок; 37,1°; на 0,9°С? 37,5° 884.
1) зміститься ліворуч на 12 маленьких поділок; 35,6°; на 0,8°С; 36,0°.
2) зміститься праворуч на 10 маленьких поділок; 37,8°. на 1,4°С? 38,2°.
885.
https://shkola.in.ua/2714-hdz-matematyka-5-klas-merzliak-2022.html

A(0.3), B(0.7), C(0.9), D(1.1), E(1.5), F(2.1). 886.

A(0.1), B(0.6), C(0.8), D(1.4), E(1.9), F(2.2). 887.
3 50 3 50 + 13 50 + 11 50 + 19 50 = 3+13+11+19 50 = 46 50 –
50 50 –46 50 = 4 50 – грошей
888.
5 6 хв = 1 хв : 6 • 5 = 60 с : 6 • 5
Відповідь: у 5 разів. 889.
5 год 50 хв = 5 • 60 хв + 50 хв = 350 хв 7 12 год = 60 хв : 12 • 7 = 35 хв
350 хв : 35 хв = 10 (раз) – у
Відповідь: у 10 разів. 890.
1) 346* < 3463; 0, 1, 2; 2) 4*40 > 4735? Будь-яку. 891.
1) 35 *** > 32 *** (у
2) 98* < **52 (у
892. Три яблука
25/100000 = 0,00025
4
1) 3710 > 3709; 2) 43 672 < 43 701.
7 12 год.
https://shkola.in.ua/2714-hdz-matematyka-5-klas-merzliak-2022.html
2) 12,508; 12,50800; 12,5080000
3) 0,98; 0,9800; 0,98000 895.
1) 2,160; 18,500; 0,476; 1,400; 2) 8,1000; 19,6400; 5,3450; 0,9872. 896.
1) 9,4 < 9,6 (в першому числі менша дробова частина)
2) 5,5 > 4,8 (в першому числі більша ціла частина)
3) 6,3 < 6,31 (6,30 < 6,31; в першому числі менша дробова частина)
4) 3,29 < 3,316 (3,290 < 3,316; в першому числі менша дробова частина)
5) 0,3 > 0,08 (0,30 > 0,08; в першому числі більша дробова частина)
6) 7,2 > 7,094 (7,200 > 7,094; в першому числі більша дробова частина) 897.
1) яйце масою 57.8 г належить до першої категорії (С1);
2) яйце масою 74.6 г належить до вищої категорії (СВ);
3) яйце масою 63.1 г належить до відбірної категорії (С0). 898.
1) 16,8 < 17,3 (в першому числі менша ціла частина)
2) 12,7 > 12,5 (в першому
3) 24,92 > 24,9 (24,92 > 24,90; в першому
4) 18,486 < 18,5 (18,486 < 18,500; в першому
5) 0,065 < 0,1 (0,065 < 0,100; в
6) 96,35 > 96,087 (96,350 > 96,087; в
899.
8,61; 8,5; 8,49; 8,4; 8,16; 8,05. 900.
9,02 П, 9,09 Р, 9,2 И, 9,503 М, 9,53 А, 9,6 Ч, 9,613 Е, 9,711 Н, 9,72 К, 9,8 О Прізвище видатної художниці: ПРИМАЧЕНКО 901.
1) 4,45 < х < 7,002, якщо х = 5, 6, 7; 2) 9,8 < х < 13,4, якщо х = 10, 11, 12, 13. 902.
1) 7,4 < х < 8,2, якщо х = 8; 2) 12 < х < 19,65, якщо х = 13, 14, 15, 16, 17, 18, 19. 903.
1) 6 < 6,99 < 7; 2) 12 < 12,79 < 13; 3) 1 < 1,529 < 2; 4) 3 < 3,109 < 4. 904.
1) 5 < 5,32 < 6; 2) 24 < 24,01 < 25. 905.
1) 6,38 < 6,3*, тому 8 < *, якщо замість * цифра 9; 2) 8,1 > 8,*9, тому 1 > *, якщо замість * цифра 0; 3) 16,25 < 1*,32, тому 6 ≤ *, якщо замість * цифри 6, 7, 8, 9. 906.
1) 9,*5 < 9,12, тому * < 1, якщо замість * цифра 0; 2) 12,58 > 12,*4, тому 5 ≥ *, якщо замість * цифри 0, 1, 2, 3, 4, 5; 3) 0,0*3 > 0,064, тому * > 6,
* цифри 7, 8, 9. 907.
1)
1; 0,99; 2)
908.
https://shkola.in.ua/2714-hdz-matematyka-5-klas-merzliak-2022.html
1) з однією цифрою після коми, більший за 1; 1,1;
2) з двома цифрами після коми, більший за 1; 1,01;
3) з трьома цифрами після коми, більший за 4; 4,001; 4) з чотирма цифрами після коми, більший за 10. 10,0001. 909.
1) 3,4 < х < 3,6, якщо х = 3,44; 3,5; 3,59
2) 0,527 < x < 0,528, якщо х = 0,5271; 0,5273; 0,5279
3) 2,003000 < x < 2,003010, якщо x =2,003001; 2,003005; 2,003009 910.
10,53 < х < від 10,55, якщо х = 10,536; 10,54; 10,549 911.
1) 0,*2 > 0,4*, тому х > 4, якщо х = 5, 6, 7, 8, 9
2) 2,5* < 2,*6, тому 5 ≤ х, якщо х = 5, 6, 7, 8, 9
3) 0,7*5 < 0,*69, тому 7 < х, якщо х = 8, 9
4) 0,6* > 0,7*, немає розв'язку
5) 0,*6 < 0,6*, тому х < 6, якщо х = 0, 1, 2, 3, 4, 5
6) 0,*6 > 0,6*, тому х > 6, якщо х = 7, 8, 9 912.
1) (714 : 7 – 100)6 = (102 – 100)6 = 26 = 64
2) (963 : 9 – 618 : б)3 = (107 – 103)3 = 43 = 64 913.
6 км = 6000 м, 1 год = 60 хв
1) 6000 : 60 = 100 (м) – проходить Наталка за 1 хв.
2) 100 • 20 = 2000 (м) = 2 (км) – пройде Наталка
Відповідь: Наталка встигне дійти до школи. 914.
3 дм2 = 300 см2
300 : 1 = 300 (см) – довжина утвореної смужки.
Відповідь: 300 см. 915.
Відповідь: 542, 524, 452, 425, 254, 245. 916.
10,53 < х < від 10,55, якщо х = 10,536; 10,54; 10,549 Відповідь: можна записати
20 хв
тисячними. 917.
Треба
https://shkola.in.ua/2714-hdz-matematyka-5-klas-merzliak-2022.html
99,99 5. 1000,001 6.
20,00340506
Вправи 918.
1) 2,853 ≈ 2,9; Неправильно 2) 3,298 ≈ 3,30; Правильно
3) 6473 ≈ 6000; Правильно 4) 2149 ≈ 2100? Неправильно 919.
1) 9,374 ≈ 9,4; 0,5298 ≈ 0,5; 54,06 ≈ 54,1; 74,95 ≈ 75,0; 2) 13,405 ≈ 13,41; 28,2018 ≈ 28,20; 26,399 ≈ 26,40; 3) 18,25 ≈ 18; 3,099 ≈ 3; 9,73 ≈ 10; 239,81 ≈ 240; 4) 0,5261 ≈ 0,526; 9,9999 ≈ 10,000; 1,58762 ≈ 1,588. 920.
1) 16,88 ≈ 16,9; 4,651 ≈ 4,7; 1,29 ≈ 1,3; 48,23 ≈ 48,2; 36,96 ≈ 37,0 2) 8,636 ≈ 8,64; 2,7848 ≈ 2,78; 0,9996 ≈ 1,00; 104,9438 ≈ 104,94
3) 25,54 ≈ 26; 8,47 ≈ 8; 55,64 ≈ 56; 62,32 ≈ 62
4) 2,3984 ≈ 2,398; 8,55555 ≈ 8,556; 47,7853 ≈ 47,785 921.
1) 459 ≈ 460; 1623 ≈ 1620; 492 685 ≈ 492 690; 999 ≈ 1000
2) 6056 ≈ 6100; 7538 ≈ 7500; 55 555 ≈ 55600; 7988 ≈ 8000
3) 7345 ≈ 7000; 4956 ≈ 5000; 129 808 ≈ 130 000
4) 42 573 468 ≈ 43 000 000; 59 676 657 ≈ 60 000 000
5) 836 ≈ 800; 32 464 ≈ 30 000; 7 145 962 ≈ 7 000 000 922.
1) 534 ≈ 530; 18 357 ≈ 18 360; 4 783 386 ≈ 4 783 390
2) 2223 ≈ 2200; 1374 ≈ 1400
3) 312 864 ≈ 313 000; 67 314 ≈ 67 000
4) 5 032 999 ≈ 5 000 000; 9 821 893 ≈ 10 000 000
5) 4562 ≈ 5000; 583 037 ≈ 600 000; 28 099 897 ≈ 30 000 000 923.
а) 8419,3576
1) 8000 2) 8400 3) 8420 4) 8419 5) 8419,4 6) 8419,36 7) 8419,358
б) 6745,2891
1) 7000 2) 6700 3) 6750 4) 6745 5) 6745,3 6) 6745,29 7) 6745,289 в) 9421,5307
1) 9000 2) 9400 3) 9420 4) 9422
924.
925.
926.
5,8
927.
https://shkola.in.ua/2714-hdz-matematyka-5-klas-merzliak-2022.html
3842 кг ≈ 4000 кг = 4 т
4506 кг ≈ 5000 кг = 5 т
8329 кг ≈ 8000 кг = 8 т 869 кг ≈ 1000 кг = 1 т 928.
1) до десятків кілометрів за годину; 107230 км/год
2) до сотень кілометрів за годину; 107200 км/год
3) до тисяч кілометрів за годину; 107000 км/год
4) до десятків тисяч кілометрів за годину; 110000 км/год
5) до сотень тисяч кілометрів за годину. 100000 км/год 929.
1469 м ≈ 1000 м = 1 км 6823 м ≈ 7000 м = 7 км 18 096 м ≈ 18000 м = 18 км 549 628 м ≈ 550 000 м = 550 км 930.
1) 4,9* ≈ 4,9; при *= 0, 1, 2, 3, 4 2) 63,*5 ≈ 64; при *= 5, 6, 7, 8, 9 3) 13,2*99 ≈ 13,2? При *= 0, 1, 2, 3, 4 931.
1) 5,47*4 ≈ 5,47; при *= 0, 1, 2, 3, 4; 2) 23*1 ≈ 2400? При *= 5, 6, 7, 8, 9 932.
Сашко округлив кількість
933.
102
934.
1) 12 : 6 • 7 = 14 (р.) –
https://shkola.in.ua/2714-hdz-matematyka-5-klas-merzliak-2022.html
Складемо рівняння: 2х – х = 20 х = 20
Вправи 937.
1) 3 + 0,2 = 3,2; 2) 0,4 + 0,5 = 0,9; 3) 0,2 + 0,02 = 0,22; 4) 0,64 + 1 = 1,64; 5) 0,43 + 0,16 = 0,59; 6) 0,37 + 0,6 = 0,97. 938.
1) 0,6 + 0,4 = 1,0; 2) 0,66 + 0,04 = 0,70; 3) 0,666 + 0,004 = 0,670; 4) 0,66 + 0,4 = 1,06; 5) 0,666 + 0,04 = 0,706; 4) 0,66 + 0,34 = 1,00. 939.
1) 12,5 + 23,9 = 36,4; 2) 18,74 + 3,3 = 22,04; 3) 6,6 + 14 = 20,6; 4) 13,72 + 24,318 = 38,038; 5) 4,18 + 7,52 = 11,7; 6) 43,523 + 36,477 = 80. 940.
1) 4,7 + 5,8 = 10,5; 2) 6,9 + 3,45 = 10,35; 3) 16 + 4,2 = 20,2; 4) 0,823 + 0,729 = 1,552; 5) 5,4 + 13,691 = 19,091; 6) 38,246 + 56,254 = 94,500. 941.
1) 9,8 – 0,7 = 9,1; 2) 5,9 – 4 = 1,9; 3) 0,24 – 0,06 = 0,18; 4) 0,1 – 0,01 = 0,09; 5) 3,28 – 2,28 = 1; 6) 9,57 – 6,4 = 3,17. 942.
1) 14,4 – 8,9 = 5,5; 2) 72,28 – 54,46 = 17,82; 3) 43 – 0,451 = 42,549; 4) 10,25 – 5,2974 = 4,9526. 943.
1) 9,2 – 6,7 = 2,5; 2) 29,36 – 19,59 = 9,77; 3) 20 – 5,63 = 14,37; 4) 8,3 – 4,678 = 3,622. 944. 945. 946.








1) х + 4,83 = 9
х = 9,00 – 4,83
х = 4,17 3) х – 14,852 = 15,148 х = 15,148 + 14,852
х = 30
2) 43,78 – х = 5,384
х = 43,780 – 5,384
х = 38,396 4) 2,395 + х = 10 х = 10,000 – 2,395 х = 7,605
947.
https://shkola.in.ua/2714-hdz-matematyka-5-klas-merzliak-2022.html
1) 15,62 + х = 20
х = 20,00 – 15,62
х = 4,38
2) 9,54 – х = 7,268
х = 9,540 – 7,268 х = 2,272
3) х – 36,76 = 19,24
х = 19,24 + 36,76
х = 56
4) х + 0,24 = 8,1
х = 8,10 – 0,24 х = 7,86 948.
135,264 – 128,745 = 6,519 (м3) – води було спожито в жовтні.
143,958 – 135,264 = 8,694 (м3) – води було спожито в листопаді. 8,694 – 6,519 = 2,175 (м3) – на стільки
949.
950.
3,2 – 1,68 = 1,52 (кг) – грибів зібрав Івасик-Телесик. 1,68 – 1,52 = 0,16 (кг) – на стільки
Відповідь:
1) 17,6 + 5,9 = 23,5 (м2) – площа
2) 17,6 + 23,5 = 41,1 (м2) – площа
Відповідь: загальна площа 41,1 м2 . 951.
1) 30,2 – 2,2 = 28 (км/год) – власна
2) 28 – 2,2 = 25,8 (км/год) – швидкість
Відповідь: власна швидкість
952.
1) 20,2 – 18,8 = 1,4 (км/год) –
2) 20,2 + 1,4 = 21,6 (км/год)
Відповідь: швидкість
км/год. 953.
1) 4,6 + 3,42 = 8,02 (г) – маса меду.
2) 8,02 – 0,38 = 7,64 (г) –
ягідок.
3) 7,64 + 2,1 = 9,74 (г) – маса корінців.
4) 4,6 + 8,02 + 7,64 + 9,74 = 25,4 (г) –
954.
955.
1) 2,16 + 0,976 = 3,136 (т) –
2) 2,16 + 3,136 + 3,58 = 8,876 (т) –
1) 1,4 + 0,7 = 2,1 (млн км2) –
2) 2,1 + 2,2 = 4,3 (млн км2) –
3) 2,1 + 10,6 = 12,7 (млн км2)
4) 2,1 + 4,3 = 6,4 (млн км2) –
5) 6,4 + 12,7 = 19,1 (млн. км2) –
6) 19,1 + 1,4 = 20,5 (млн. км2) –
956.
https://shkola.in.ua/2714-hdz-matematyka-5-klas-merzliak-2022.html
1) 1,025 + 0,617= 1,642 (км) –
2) 1,642 – 1,47 = 0,172 (км) – на стільки
3) 1,47 – 1,025 = 0,445 (км) – на
Каспійське море на 0,445 км. 957.
1) 9,2 – 3,5 = 5,7 (см) – довжина другої ланки.
2) 9,2 + 4,9 = 14,1 (см) – довжина третьої ланки.
3) 9,2 + 5,7 + 14,1 = 29 (см) – довжина ламаної.
Відповідь: довжина ламаної 29 см. 958.
1) 12,4 + 3,8 = 16,2 (дм) – довжина другої сторони.
2) 12,4 – 2,6 = 9,8 (дм) – довжина третьої сторони.
3) 12,4 + 16,2 + 9,8 = 38,4 (см) – периметр трикутника.
Відповідь: периметр трикутника дорівнює 38,4 см. 959.
1) 18,61 + 7,54 + 3,4 = 29,55
2) 86,58 + 32,6 + 5,079 = 124,259
3) 26,836 – 7,59 – 12,6 – 3,5801 = 3,0659
4) 489,2 – (164,4 + 92,16 – 138,254) = 370,894 960.
1) 5,68 + 13,27 + 4,9 = 23,85
2) 18,35 + 1,4 + 38,016 = 57,766
3) 14,02 – 10,379 + 5,004 – 7,3245 = 1,3205
4) 642,7 – (365,2 – 41,54 + 125,086) = 193,954 961.
1) (1,34 + х) – 58,3 = 4,26
(1,34 + х) = 4,26 + 58,3
1,34 + х = 62,56
х = 62,56 – 1,34
х = 61,22
2) (94,2 – а) – 1,26 = 3,254
(94,2 – а) = 3,254 + 1,26
94,2 – а = 4,514
а = 94,2 – 4,514
а = 89,686
3) 4,75 – (х – 0,67) = 3,025
(х – 0,67) = 4,75 – 3,025
х – 0,67 = 1,725
х = 1,725 + 0,67
х = 2,395
4) 40,3 – (63,4 – а) = 36,62
63,4 – а = 40,3 – 36,62
63,4 – а = 3,68
а = 63,4 – 3,68
а = 59,72 962.
1) (х – 50,6) + 2,15 = 42,9
х – 50,6 = 42,9 – 2,15
х – 50,6 = 40,75
х = 40,75 + 50,6
х = 91,35
2) 31,28 – (m + 4,2) = 15,093
m + 4,2 = 31,28 – 15,093
m + 4,2 = 16,187
m = 16,187 – 4,2
m = 11,987 963.
1) (2,45 + 0,276) + 4,55 = (2,45 + 4,55) + 0,276 = 7 + 0,276 = 7,276
2) (9,37 + 13,6) + 6,4 = (13,6 + 6,4) + 9,37 = 20 + 9,37 = 29,37
3) 5,12 + 3,75 + 5,25 + 4,88 = (3,75 + 5,25) + (5,12 + 4,88) = 9 + 10 = 19
4) 0,234 + 0,631 + 0,766 + 0,369 = (0,234 + 0,766) + (0,631 + 0,369) = 1 + 1 = 2
964.
https://shkola.in.ua/2714-hdz-matematyka-5-klas-merzliak-2022.html
1) (12,82 + 8,394) + 5,18 = (12,82 + 5,18) + 8,394 = 18 + 8,394 = 26,394
2) 16,528 + 42,5 + 13,472 = (16,528 + 13,472) + 42,5 = 30 + 42,5 = 72,5
3) 2,53 + 15,1 + 4,47 + 14,9 = (2,53 + 4,47) + (15,1 + 14,9) = 7 + 30 = 37
4) 76,1 + 38,83 + 24,9 + 52,17 = (76,1 + 24,9) + (38,83 + 52,17) = 101 + 91 = 192 965.
1) 2,46 + а + 81,139 + 14,8 = 98,399 + а
2) m + 0,47 + 5,062 + m + 43,295 = 2m + 48,827
3) х + 0,3 + 0,9007 + 4,58 + Зх = 4х + 5,7807
4) 7с + 236,7 + 2с + 0,82 + 4,325 = 9с + 241,845 966.
а = 14,36 + 18,54 = 32,9 b = 32,9 – 27,032 = 5,868 5,868 + х = 10 х = 10 – 5,868 х = 4,132 967.
а = 39,8 – 14,48 = 25,32 25,32 + х = 74,123 х = 74,123 – 25,32 х = 48,803
968. 969.

1) 2,34 дм – 18 см
дм – 1,69 дм = 13,91 дм 970.
1) 3 а 82 м2 + 8 а 9 м2 = 3,82 а + 8,09 а = 11,91 а 2) 28 а 7 м
1) 0,4; 1,2; 2; 2,8; 3,6; 4,4; 2) 16,1; 15,8; 15,5; 15,2; 14,9; 14,6.
973.
https://shkola.in.ua/2714-hdz-matematyka-5-klas-merzliak-2022.html
1) 3,1; 4,4; 5,7; 7; 8,3;
2) 20; 17,5; 15; 12,5; 10; 974.
1) (4,12 + 0,116) – 1,12 = (4,12 – 1,12) + 0,116 = 3 + 0,116 = 3,116
2) 0,844 – (0,244 + 0,018) = 0,844 – 0,244 – 0,018 = 0,600 – 0,018 = 0,582 975.
1) (5,93 + 67,5) – 27,5 = (67,5 – 27,5) + 5,93 = 40 + 5,93 = 45,93
2) 7,29 – (3,961 + 2,29) = (7,29 – 2,29) – 3,961 = 5,00 – 3,961 = 1,039 976.
1) 8 : 4 • 5 = 10 (км/год) – швидкість катера.
2) 10 – 8 = 2 (км/год) – швидкість зближення.
3) 24 : 2 = 12 (год) – час зустрічі.
Відповідь: катер наздогнав човен через 12 год. 977.
1) 147 : 49 • 17 = 3 • 17 = 51 (шт.) – прислів'їв і приказок про лисицю.
2) 147 : 3 • 1 = 49 • 1 = 49 (шт.) – прислів'їв і приказок про ворону.
Відповідь: є 51 прислів'їв і приказок про лисицю,
ворону. 978.
1) 250 – 138 = 112 (грн) – вартість 4-х
2) 138 – 112 = 26 (грн) – ціна шоколадки. Відповідь:
979.
8х = 168
х = 168 : 8 х =
8.
https://shkola.in.ua/2714-hdz-matematyka-5-klas-merzliak-2022.html
4 100 + 7 1000 = 0,04 + 0,007 = 0,047.
Відповідь: А).
2400 м – 0,6 км = 2,4 км – 0,6 км = 1,8 км.
Відповідь: Г).
9. Б).
10.
11.
12.
18 км/год – 1,8 км/год – 1,8 км/год = 14,4 км/год – швидкість катера
течії. Відповідь: Г).
12,8 – (х + 4,723) = 1,05;
х + 4,723 = 12,8 – 1,05; х + 4,723 = 11,75;
х = 11,75 – 4,723;
х = 7,027.
Відповідь: Г).
Збільшиться на 3,2 – 2,8 = 0,4.
Відповідь: Б).
1) 13а • 2b = 26ab
2) 5a • 4b • 9c = 180abc
3) 5x – 3x + 4x = (5 – 3 + 4) • x = 6x 4) 7y + 6y – y = (7 + 6 – 1) • y = 12y 5) 10a – 9a + 8 = (10 – 9) • a + 8 = a + 8 6) 8c – 3c + c – 7 = (8 – 3 + 1) • c
2.4 + 2.5 + 2.6 = 7.5 4. 90 : 10 = 9 (разів)
980.
4,2 • 8,14;
9,36 • 19,426;
0,018 • 0,001;
981.
3
5
1) 6,58 • 10 = 65,8 2) 6,58 • 100 = 658 3) 6,58 • 1000 = 6580 4) 6,58 • 10 000 = 65800 982.
1) 9,6 • 10 = 96
2) 0,065 • 100 = 6,5 3) 7,03 • 100 = 703 4) 32,97 • 1000 = 32970 5) 8,1 • 10 000 = 81000 6) 0,028 • 10 000 = 280
983.
https://shkola.in.ua/2714-hdz-matematyka-5-klas-merzliak-2022.html
1) 3,284 • 10 = 32,84
2) 6,3 • 100 = 630 3) 4,125 • 1000 = 4125
4) 924,587 • 100 000 = 92458700 984.
1) 3,6 дм = 3,6 • 10 см = 36 см
2) 0,75 дм = 0,75 • 10 см = 7,5 см 3) 1,23 м = 1,23 • 100 см = 123 см 4) 0,487 м = 0,487 • 100 см = 48,7 см 985.
4,743 кг = 4743 г 0,516 кг = 516 г 0,089 кг = 89 г 986.
1) 4,28 • 76 = 325,28
2) 42,8 • 7,6 = 325,28
4) 42,8 • 0,76 = 32,528 5) 0,428 • 7,6 = 3,2528 6) 0,428 • 0,076 = 0,032528 987.
3) 4,28 • 7,6 = 32,528
1) 5 • 0,3 = 1,5
2) 2,1 • 4 = 8,4 3) 0,5 • 8 = 4 4) 0,04 • 2 = 0,08
5) 0,9 • 0,8 = 0,72 988.
1) 2,4 • 3,6 = 8,64
2) 4,5 • 8,4 = 37,80
3) 2,8 • 5,14 = 14,392
4) 9,16 • 5,5 = 50,38
5) 0,37 • 1,9 = 0,703 6) 42,25 • 6 = 253,50
7) 6,132 • 5,2 = 31,8864
8) 0,018 • 0,65 = 0,01170 9) 2,376 • 0,42 = 0,99792 989.
1) 8,1 • 6,5 = 52,65
2) 5,8 • 2,5 = 14,50 3) 3,02 • 7,3 = 22,046
4) 8,35 • 1,8 = 15,030 5) 4,8 • 0,64 = 3,072 6) 8 • 90,45 = 723,60
7) 1,16 • 0,29 = 0, 3364 8) 0,85 • 0,032 = 0,02720 9) 0,275 • 1,64 = 0,45100 990.
1) 4,6 • 0,1 = 0,46
2) 35,1 • 0,01 = 0,351 3) 436 • 0,001 = 0,436
4) 729 • 0,0001 = 0,0729
5) 6,58 • 0,1 = 0,658 6) 6,58 • 0,001 = 0,00658 991.
1) 57 • 0,1 = 5,7 2) 2,7 • 0,01 = 0,027
3) 38,1 • 0,001 = 0,0381 4) 0,8 • 0,00001 = 0,000008 992.
1) 0,42 = 0,4 • 0,4 = 0,16
2) 0,23 = 0,2 • 0,2 • 0,2 = 0,008
3) 1,62 = 1,6 • 1,6 = 2,56 4) 0,15 = 0,1 • 0,1 • 0,1 • 0,1 • 0,1 = 0,00001 993.
1) 0,82 = 0,8 • 0,8 = 0,64; 2) 0,53 = 0,5 • 0,5 • 0,5 = 0,125
3) 2,42 = 2,4 • 2,4 = 5,76 994.
1) 12,3 • 0,8 – 5,4 • 1,6 = 9,84 – 8,64 = 1,2
2) (3,126 – 1,7) • (0,15 + 7,4) = 1,426 • 7,55 = 10,7663 995.
1) 5,6 • 0,08 + 0,23 • 2,4 = 0,448 + 0,552 = 1 2) (72 – 42,56) • 0,08 = 29,44 • 0,08 = 2,3552 996.
Якщо tC = 25, тоді tF = 1,8tC + 32 = 1,8 • 25 + 32 = 45 + 32 = 77 Відповідь: 770 за
997.
1 кг 700 г = 1,7 кг 1) 35 • 1,7 = 59,5 (грн) – вартість
2) 100 – 59,5 = 40,5 (грн) = 40 грн 50 коп. – решта.
Відповідь: 40 грн 50 коп. 998.
1) 26,5 • 12,6 = 333,9 (км) – подолала у перший день.
2) 10,5 • 28,4 = 298,2 (км) – подолала наступного дня.
3) 333,9 + 298,2 = 632,1 (км) – весь шлях.
Відповідь: яхта подолала 632,1 км за два дні регати. 999.
1) 20,5 • 15,8 = 323,90 (грн) – грошей отримав за вишні.
2) 16 • 20,5 = 328 (грн) – грошей вторгував за сливи.
3) 328 – 323,9 = 4,10 (грн)
Відповідь: за сливи вторгував більше на 4,10 гривень. 1000.
1) 2732 – 2432 = 300 (кВт•год) – споживання електроенергії за березень.
2) 1,44 • 250 = 360 (грн) – вартість спожитої електроенергії по першій шкалі.
3) 1,68 • 50 = 84 (грн) – вартість спожитої електроенергії
4) 360 + 84 = 444 (грн) – має сплатити за спожиту електроенергію.
Відповідь: сім’я має сплатити 168,96 грн
електроенергію. 1001.
1) 325,498 – 317,542 = 7,956 (м3) – спожито
2) 15,79 • 7,956 = 125,625 ≈ 125,63 (грн) – має сплатити за червень за постачання холодної води та водовідведення. Відповідь: сім’я Петренків має сплатити за червень 125,63 грн. 1002.
1) 0,2 • 32,8 • 5 = (0,2 • 5) • 32,8 = 1 • 32,8 = 32,8
2) 0,25 • 24,3 • 0,4 = (0,25 • 0,4) • 24,3 = 0,1 • 24,3 = 2,43
3) 0,8 • 47,5 • 12,5 = (0,8 • 12,5) • 47,5 = 10 • 47,5 = 475
4) 73 • 0,5 • 0,4 = 73 • (0,5 • 0,4) = 73 • 0,2 = 14,6 1003.
1) 0,4 • 17 • 2,5 = (2,5 • 0,4) • 17 = 1 • 17 = 17
2) 0,125 • 4,3 • 80 = (0,125 • 80) • 4,3 = 10 • 4,3 = 43
3) 0,05 • 6,73 • 0,2 = (0,2 • 0,05) • 6,73 = 0,01 • 6,73 = 0,0673 4) 0,4 • 0,36 • 5 = (0,4 • 5) • 0,36 = 2 • 0,36 = 0,72 1004.
1) 1,3 • 0,2a = 0,26а 2) 0,9b • 8 = 7,2b 3) 0,23 • 40b = 0,2b
4) 2,8 • y • 0,5 = 1,4у 5) 0,6a • 0,08b = 0,048аb 6) 1,2x • 0,3y • 5z = 1,8xyz 1005.
1) Якщо a = 4, b = 6,8, тоді 0,5a • 20b = (0,5 • 20)ab = 10ab = 10 • 4 • 6,8 = 272
2) Якщо m = 0,22, n = 100, тоді 4m • 0,5n = (0,5• 4) mn = 2mn = 2 • 0,22 • 100 = 44
3) Якщо k = 0,58, c = 0,1, тоді 0,8k • 12,5c = (0,8• 12,5) kc=10kc=10 • 0,58 • 0,1 = 0,58 1006.
1) 3,18 • 7,8 + 3,18 • 2,2 = 3,18 • (7,8 + 2,2) = 3,18 • 1 = 3,18
2) 59,8 • 4,9 – 59,7 • 4,9 = 4,9 • (59,8 – 59,7) = 4,9 • 0,1 = 0,49
3) 0,946 • 26,8 + 0,946 • 23,2 = 0,946 • (26,8 + 23,2) = 0,946 • 50 = 47,3
4) 7,54 • 3,24 – 7,54 • 3,14 = 7,54 • (3,24 – 3,14) = 7,54 • 0,1 = 0,754 1007.
1) 0,47 • 6,32 + 6,32 • 0,53 = 6,32 • (0,47 + 0,53) = 6,32 • 1 = 6,32
2) 85,6 • 9,2 – 85,3 • 9,2 = 9,2 • (85,6 – 85,3) = 9,2 • 0,3 = 2,76
https://shkola.in.ua/2714-hdz-matematyka-5-klas-merzliak-2022.html
1008.
https://shkola.in.ua/2714-hdz-matematyka-5-klas-merzliak-2022.html
1) 1,36 кг і 589,6 г, 1360 г > 589,6 г
2) 2396,4 г і 2,278 кг; 2396,4 г > 2278 г
3) 28,4 мм і 2,84 см; 28,4 мм = 28,4 мм
4) 92,6 см і 9,24 дм; 92,6 cм > 92,4 см
5) 31,6 кг і 0,432 ц; 31,6 кг < 43,2 кг
6) 85,1 ц і 8,09 т 85,1 ц > 80,9 ц 1009.
1) 6,4 дм і 64,2 см; 64 см < 64,2 см
2) 265,8 см і 2,663 м; 265,8 см < 266,3 см
3) 4,2 ц і 416,5 кг; 420 кг > 416,5 кг
4) 0,8 т і 7,36 ц. 8 ц > 7,36 ц 1010.
1) (8,2 • 0,45 + 14,71) • 3,8 – 49,436 = (3,69 + 14,71) • 3,8 – 49,436 = = 18,4 • 3,8 – 49,436 = 69,92 – 49,436 = 20,484
2) (3,6 • 4,25 – 0,7) • 5,9 + 7,9 • 0,2 = (15,3 – 0,7) • 5,9 + 1,58 = = 14,6 • 5,9 + 1,58 = = 86,14 + 1,58 = 87,72 1011.
1) (2,35 • 6,8 – 6,793) • 0,4 + 1,3252 = (15,98 – 6,793) • 0,4 + 1,3252 = = 9,167 • 0,4 + 1,3252 = 3,6748 + 1,3252 = 5
2) 3,4 • 6,5 – 0,25 • (17,6 • 1,5 + 3,28) = 22,1 – 0,25 • (26,4 + 3,28) = = 22,1 – 0,25 • 29,68 = 22,1 – 7,42 = 14,68 1012.
1) 7,08 • 10 = 70,8; 2) 7,08 • 1000 = 7080; 3) 7,08 • 0,1 = 0,708; 4) 7,08 • 0,001 = 0,000708. 1013.
1) 0,47 • 100 = 47; 2) 0,47 • 100000 = 47 000; 3) 0,47 • 0,1 = 0,047; 4) 0,47 • 0,0001 = 0,000047. 1014.
1) Якщо p = 0,14, тоді 0,13p + 0,47p = (0,13 + 0,47) • p = 0,6 • р = 0,6 • 0,14 = 0,084
2) Якщо x = 0,678, тоді 3,8x + 1,7x – 5,4x + 0,1x = 0,2 • х = 0,2 • 0,678 = 0,1356 3) Якщо c = 0,58, тоді 8,6c – 3,5c – 0,1c + 0,296 = (8,6 – 3,5 – 0,1) • с + 0,296 = = 5 • с + 0,296 = 5 • 0,58 + 0,296 = 2,9 + 0,296 = 3,196 1015.
1) Якщо a = 0,26, тоді 5,4a – 3,9a = 1,5а = 1,5 • 0,26 = 0,39
2) Якщо m = 3,94, тоді 1,8m – 0,5m + 0,7m = (1,8 – 0,5 + 0,7) • m=2 • m=2 • 3,94=7,88
3) Якщо z = 8,2, тоді 0,19z – 0,12z + 0,33z – 1,92 = (0,19 – 0,12 + 0,33) • z – 1,92 = = 0,4 • z – 1,92 = 0,4 • 8,2 – 1,92 = 3,28 – 1,92 = 1,36 1016.
1) 30,8 – 26,3 = 4,5 (км/год) –
2) 4,5 • 5,4 = 24,3 (км) – відстань між теплоходом і катером через 5,4 год. Відповідь: між ними була відстань 24,3 км. 1017.
1) 63,4 + 58,6 = 122 (км/год) – швидкість віддалення.
2) 122 • 9,3 = 1134,6 (км) –
1018.
1) 13,8 • 6,3 = 86,94 (км/год) –
2) 86,94 + 13,8 = 100,74 (км/год) – швидкість
3) 100,74 • 4,5 = 453,33 (км) –
9,3 год.
1019.
https://shkola.in.ua/2714-hdz-matematyka-5-klas-merzliak-2022.html
1) 1,5 • 1,2 = 1,8 (км/год) – швидкість Недоладька.
2) 1,5 + 1,8 = 3,3 (км/год) – швидкість зближення.
3) 3,3 • 0,4 = 1,32 (км) – відстань між містами.
Відповідь: відстань між містами 1,32 км. 1020.
1) 18,9 + 2,4 = 21,3 (км/год) – швидкість за течією річки.
2) 18,9 – 2,4 = 16,5 (км/год) – швидкість проти течії річки.
3) 21,3 • 1,8 = 38,34 (км) – відстань за течією річки.
4) 16,5 • 2,6 = 42,9 (км) – відстань проти течії річки.
5) 38,34 + 42,9 = 81,24 (км)
Відповідь: човен подолав 81,24 км. 1021.
1) 24,6 + 1,8 = 26,4 (км/год) – власна швидкість човна.
2) 26,4 + 1,8 = 28,2 (км/год) – швидкість човна за течією річки.
3) 28,2 • 0,8 = 22,56 (км) – відстань за течією річки.
4) 24,6 • 4,5 = 110,7 (км) – відстань проти течії річки.
5) 22,56 + 110,7 = 133,26 (км)
Відповідь: човен подолав 133,26 км. 1022.
1. 1) 2,3 + 3,4 = 5,7 (м) – довжина другої сторони прямокутника.
2) S = a • b = 2,3 • 5,7 = 13,11 (м2) – площа прямокутника.
3) Р = (a + b) • 2 = (2,3 + 5,7) • 2 = 8 • 2 = 16 (м) – периметр прямокутника.
Відповідь: площа прямокутника 13,11 м2, периметр прямокутника 16 см.
2. 1) S = а • а = 3,2 • 3,2 = 10,24 (м2) – площа квадрата.
2) Р = а • 4 = 3,2 • 4 = 12,8 (м) – периметр квадрата.
Відповідь: площа квадрата 10,24 м2, периметр квадрата 12,8 м. 1023.
1) 5,8 – 1,3 = 4,5 (дм) – довжина другої сторони прямокутника.
2) S = 5,8 • 4,5 = 26,1 (дм2) – площа прямокутника.
3) Р = (5,8 + 4,5) • 2 = 10,3 • 2 = 20,6 (дм) – периметр прямокутника. 1024.
1) суму довжин усіх його ребер; (4,6 + 2,4 + 3,6) • 4 = 10,6 • 4 = 42,4 (см) – сума усіх ребер.
2) площу його поверхні; 4,6 • 2,4 = 11,04 (м2) – площа першої грані.
2,4 • 3,6 = 8,64 (м2) – площа другої грані.
4,6 • 3,6 = 16,56 (м2) – площа третьої грані. (11,04 + 8,64 + 16,56) • 2 = 36,24 • 2 = 72,48 – площа поверхні
3) його об’єм. V = abc = 4,6 см • 2,4 см • 3,6 см = 39,744 (см3) 1025.
1) суму
усіх
ребер; 0,6 • 12 = 7,2 (дм) – сума
2) площу його поверхні; 0,6 • 0,6 = 0,36 (дм2) –
0,36 • 6 = 2,16 (дм2) –
3) його об’єм. V=a3=0,63 = 0,216 (дм3)
1026.
https://shkola.in.ua/2714-hdz-matematyka-5-klas-merzliak-2022.html
1) 12 • 3 = 36 (м.) – становить чверть усіх марок.
2) 36 • 4 = 144 (м.) – усіх марок
3) 12 • 4 = 48 (зн.) – становить третина всіх значків.
4) 48 • 3 = 144 (зн.) – усіх значків
144 = 144
Відповідь: марок і значків порівно. 1027.
Квадрат площею 100 см2 має довжину сторони 10 см.
1) 21 • 50 = 1050 (см2) – площа аркуша.
2) 21 – 10 • 2 = 1 (см) – зайва ширина.
3) 1 • 50 = 50 (см2) – зайва площа
4) 1050 – 50 = 1000 (см2) – площа всіх квадратів
5) 1000 : 100 = 10 (кв.)
Відповідь: можна вирізати 10 квадратів. 1028.
1) 96 • 1,5 = 144 (грн) – вартість печива.
2) 130 • 0,8 = 104 (грн) – вартість вафель.
3) 240 • 0,5 = 120 (грн) – вартість цукерок.
4) 144 + 104 + 120 = 368 (грн) – вартість покупки
360 < 368
Відповідь: не вистачить грошей. 1029.
1. 1) 24 год = 24 • 60 хв = 24 • 3600 с = 86400 (к.) – крапель витече
2) 86400 : 100 • 7 = 6048 (г) ≈ 6000 (г) = 6 (кг) –
Відповідь: 6
2. 1) 24 год = 24 • 60 хв = 24 • 3600 с = 86400
2) 86400 : 100 • 7 = 6048 (г) ≈ 6000 (г) = 6 (кг) –
3) 6 • 120000 = 720 000 (кг) = 720 (т)
3. 1) 24
2) 86400 : 100 • 7 = 6048 (г) ≈ 6000 (г) =
3) 6 • 120000 = 720 000 (кг) –
4) 15 • 1000 = 15 000 (кг) –
5) 720 000 : 15 000 = 48 (дн.)
48
1030.
100 ‒ 10 = 90 (уч.) ‒
90 – 75 = 15 (уч.)
1) 7х = 749
= 749 : 7
https://shkola.in.ua/2714-hdz-matematyka-5-klas-merzliak-2022.html
Якщо a + b = 100, то 1,6a + 1,6b = 1,6 • (a + b) = 1,6 • 100 = 160
2) 2,5х – 2,5у
Якщо х – у = 4, то 2,5х – 2,5у = 2,5 • (х – у) = 2,5 • 4 = 10 3.
1) в 100 разів: 0,05 • 100 = 5
2) в 10000 ризав: 0,05 • 10000 = 500 4.
Залишилося 5 цистерн.
Вправи 1031.
1) 56,87 : 10 = 5,687; 2) 7 : 10 = 0,7; 3) 14,49 : 100 = 0,1449; 4) 12 : 100 = 0,12; 5) 0,04 : 100 = 0,0004; 6) 28 : 1000 = 0,0028. 1032.
1) 256 : 10 = 25,6; 2) 37,5 : 10 = 3,75; 3) 3 : 100 = 0,03; 4) 70,2 : 100 = 0,702; 5) 0,96 : 1000 = 0,00096; 6) 125,7 : 1000 = 0,1257. 1033.
1) 5,5 : 5 = 1,1 2) 2,4 : 8 = 0,3 3) 4,5 : 3 = 1,5





4) 7 : 2 = 3,5 5) 0,8 : 8 = 0,1 6) 0,5 : 2 = 0,25 1034.

1) 8,68 : 7 = 1,24 2) 89,6 : 28 = 3,2 3) 33,28 : 52 = 0,64



4) 9,044 : 38 = 0,238 5) 21 : 14 = 1,5 6) 6 : 12 = 0,5



https://shkola.in.ua/2714-hdz-matematyka-5-klas-merzliak-2022.html

7) 1 : 125 = 0,008 8) 7,982 : 26 = 0,307 9) 0,0432 : 36 = 0,0012 1035.





1) 85,2 : 6 = 14,2 2) 13,8 : 4 = 3,45 3) 78,2 : 34 = 2,3 4) 11,34 : 42 = 0,27 5) 3,198 : 26 = 0,12 6) 48,16 : 16 = 3,01 7) 17 : 5 = 3,4 8) 2 : 8 = 0,25 9) 45 : 6 = 7,5 1036. 1,68 : 4 = 0,42 (дм) – сторона квадрата.







Відповідь: 0,42 дециметри. 1037. 14,22 : 3 = 4,74 (см) – сторона рівностороннього трикутника.

Відповідь: 4,74 сантиметри.
1) 21,6 – 12,6 : 18 + 6 = 21,6 – 0,7 + 6 = 20,9 + 6 = 26,9

2) (21,6 – 12,6) : 18 + 6 = 9 : 18 + 6 = 0,5 + 6 = 6,5
3) (21,6 – 12,6) : (18 + 6) = 9 : (18 + 6) = 9 : 24 = 0,375

4) 21,6 – 12,6 : (18 + 6) = 21,6 – 12,6 : 24 = 21,6 – 0,525 = 21,075 1039.
1) 3,6 : 9 + 0,18 • 5 = 0,4 + 0,9 = 1,3
2) 70,28 : 14 – 32,8 : 10 = 5,02 – 3,28 = 1,74

3) 47,04 – 47,04 : (46 + 38) = 47,04 – 47,04 : 84 = 47,04 – 0,56 = 46,48


1) 3,8 • 1,7 – 36,24 : 12 = 6,46 – 3,02 = 3,44

2) 53,4 : 15 + 224 : 100 – 36 : 8 = 3,56 + 2,24 – 4,5 = 5,8 – 4,5 = 1,3













































































































































































































































































































































