Sistemas de climatización

Page 1

C L I M A T I Z A C I Ó N A R T I F I C I A L

CONFORT 2 - CICLO 2023 -2
CATEDRA: Mg. Arq. Gabriel Maza // Mg. Arq. Andrea Zavala

I N D Í C E

0 1 : Sistema de VMC

SISTEMAS DE CLIMATIZACIÓN - CALIENTE

0 7 : Calderas de Biomasa

0 8 : Cassette Aire acondicionado

0 9 : Sistema geotérmico

1 0 : Suelos radiantes

1 1 : Sistemas de deshumificacion

1 2 : Bomba de calor

0 2 : Minisplit aireacondicionado 0 3 :

SISTEMAS DE CLIMATIZACIÓN - CALIENTE /FRIO

1 3 :

Fancoil

1 4 :

VRF

5 : Aire acondicionado

0
Ventana aireacondicionado 0 4 :
multisplit
Sistema Portátil
Radiador de agua
5
6
Sistema
Sistema
0 6 : Aire acondicionado híbrido S I S T E M A S D E C L I M A T I Z A C I Ó N - F R I O
1
: 1
:
Unidades de tratamiento de aire

I N T R O

El presente trabajo se recolectó información sobre Sistemas de Ventilación Artificial Para ello, se organizo la información en tres grupos. Los sistemas de aire acondicionado, los de calefación y los que contienen ambos sistemas Cada sistema presenta diferentes modelos, para poder definirlos se han presentado sus tipos, funcionamiento, sus ventajas y desventajas,finalmente, un referente con un diseño actual

SISTEMA DE VENTILACIÓN MECÁNICA

es producido por equipos impulsados por motores eléctricos para el proceso de suministro o remoción del aire, con el propósito de disminuir los niveles de contaminación en el ambiente, humedad o temperatura dentro de un área y poder tener un buen confort

T

VMC SIMPLE FLUJO

texto texto texto texto texto texto texto

texto texto texto texto texto texto texto

texto texto texto texto texto texto texto

texto texto texto

VMC DOBLEFLUJO

texto texto texto texto texto texto

texto texto texto texto texto texto

texto texto texto texto texto texto

texto texto texto texto texto texto

Flujo de extracción: aire viciado

Unidad con VMC con recuperado r de calor

Flujo de impulsión:

1

Renovación del aire : extrae olores, dióxido de carbono y elementos contaminantes

Climatización: el intercambio de temperatura natural y climatiza el interior

Ahorro de energía: al producir el intercambio térmico se caliente y enfria sin consumo extra de energía

Aire viciado: se extrae siempre desde las habitaciones húmedas [cocina, baños, aseos]

Aire nuevo: alimenta con aire nuevo las estancias secas. [dormitorio, salón, comedor]

2
3
I P O S
V E N T A J A S I N S T A L A C I Ó N D E L V M C
aire nuevo

Textotexto 3

¿ C O M O F U N C I O N A ?

Funciona con una central de ventilación que fuerza la extracción del aire para renovarlo

Cable potencia

I n t e r i o r E x t e r i o r

Filtro Filtro

Entrada de aire viciado del interior

Control Ventiladores

Aire renovado y calentado al interior

Núcleodel intercambiador

Entrada de aire frio del exterior Salida del aire viciado al exterior que a cedido su calor

01.

POR CONFORT

Un espacio correctamente ventilado aumenta el confort y el rendimiento

POR SALUD

Se evita la proliferación de bacterias, moho y ácaros de polvo

POR EFICIENCIA

Una ventana abierta duplica la demanda de calefacción de una estancia.

POR NORMATIVA

Una ventana abierta duplica la demanda de calefacción de una estancia

NOMBRE / NOMBRE
SISTEMA DE CLIMATIZACION FRÍO / 01
02.
04.
03

MINI SPLIT

AIRE ACONDICIONADO

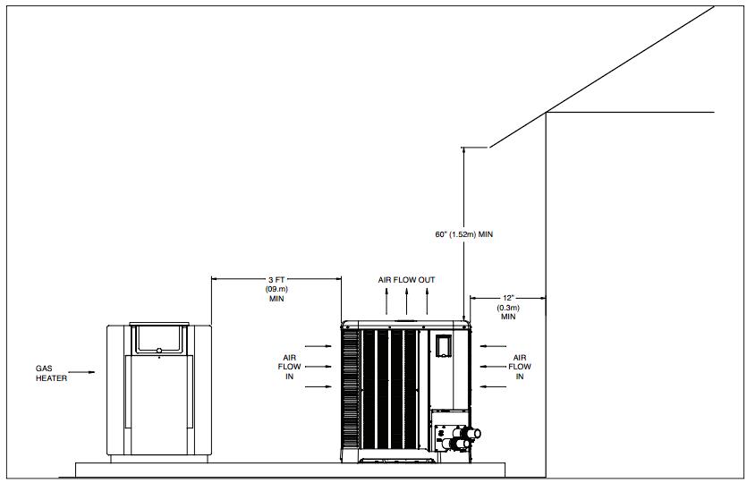
Es un sistema de climatización que se utiliza para enfriar o calentar una habitación o un espacio pequeño También se conoce como aire acondicionado tipo split o split individual Está diseñado para ser una alternativa más eficiente y versátil a los sistemas de aire acondicionado central

T I P O S

Este tipo de sistema se utiliza para enfriar o calentar espacios interiores de era eficiente y suele ser una opción ular para hogares, oficinas y otros cios pequeños o zonas específicas

de disipar ior de un edificio o espacio a través del ciclo de refrigeración, permitiendo así que el aire en el interior se enfríe y se mantenga a la temperatura deseada.

ccion

Durabilidad 2

Bajomantenimiento 3

Menorruido 4

La instalación de un minisplit es un proceso que generalmente debe ser realizado por un técnico o profesional capacitado, ya que involucra manipulación de refrigerante y conexiones eléctricas que requieren conocimientos específicos una instalación incorrecta puede resultar en problemas de rendimiento y seguridad, por lo que se recomienda encarecidamente contratar a un técnico o profesional calificado para llevar a cabo la instalación

U
DAD INTERIOR
R
V E N T A J A S
I N S T A L A C I Ò N

O F U N C I O N A ?

it funciona mediante la transferencia de calor un refrigerante y un ciclo de compresión y Esto permite enfriar o calentar el aire en la terior y luego distribuirlo en el espacio ado

DATO:

Los minisplits fueron inventados por el ingeniero estadounidense Willis Haviland Carrier, conocido como el "padre del aire acondicionado", en 1902. Su invención cambió radicalmente la forma en que las personas controlan la temperatura en sus hogares y lugares de trabajo.

Nicole Alessandra De la cruz Precioalto 1 Necesitas unidades exteriores 2 Rendimiento limitado engrandesespacios 3
SISTEMA DE CLIMATIZACION FRÍO / 02
D E S V E N T A J A S

UTA UNIDADES

DE TRATAMIENTO DE AIRE

Este tipo de equipos pertenece a la familia HVAC y está formado por diversos módulos que albergan los elementos implicados en la limpieza, climatización y restauración del flujo de aire de una estancia determinada El sistema UTA es altamente configurable debido a su composición modular

SOLO OR EL AIRE

T I P O S

Restaurar parte del aire a través de un sistema de aire acondicionado exterior regulado por la propia UTA. Ejemplo: quirófanos.

Al igual que ocurre con los radiadores o los fancoils, el aire del habitáculo no se regenera. El aire se acondiciona en la unidad central de tratamiento de aire del edificio y se distribuye a varios lugares a través de tuberías

1

Regular el flujo de ventilación en relación al dióxido de carbono detectado en el ambiente interior, lo que permite un importante ahorro energético respecto a otros métodos de ventilación

Texto tLos beneficios del ajuste del flujo de aire variable son importantes ahorros de energía en comparación con el flujo de aireconstante.

3

2 Ambos son mecanismos para reducir el consumo y la factura energética

Secciones de conexión: entrada y salida de aire del sistemadeaireacondicionadoseconsigueregulando Secciones de plénums: espacios vacíos entre las secciones de tratamiento de aire que normalizan el flujo deaireantesdeingresaraotrasección

Secciones de mezcla y free cooling: módulo situado detrás del ventilador de impulsión que permiten ajustar el aire de retorno, exterior y escape al porcentaje deseado

Secciones de baterías: más habituales son los acumuladoreshidráulicos

Secciones de filtrado: la sección de filtrado disponedediferentestiposdeprefiltrosyfiltros

Secciones de silenciador: recubiertos para evitar que lasfibrasseseparenalpasodelaire

Secciones de recuperación de energía: intercambio de energíaentreelaireextraídolocalmente

Secciones de ventilación: un motor normalmente trifásico

I R E V E N T A J A S N S A A C Ó N
1 2 3 4 5 6 7 8

Su rendimiento depende de las condiciones atmosféricas delexterior

Es un sistema que causa bastante impacto visual en losedificios

La cantidad económica que hay que invertir para la instalación es bastante más elevada

¿ C O M O F U N C I O N A ?

El sistema de tratamiento de aire de UTA es suministrar aire tratado internamente a su zona de trabajo, su configuración modular permite que el sistema cambie su funcionalidad dependiendo de los componentes que pertenezcan al dispositivo

Existen versiones para montaje en exterior en la cubierta de un edificio y versiones de altura reducida específicas para la instalación en falso techo

LARA/ PALOMINO 2 3
1
SISTEMA DE CLIMATIZACION FRÍO / 03 D E S V E N T A J A S U B I C A C I Ó N E N E L E S P A C I O

AIRE ACONDICIONADO HÍBRIDO

El aire acondicionado solar híbrido es un sistema de climatización que funciona a través de energía solar y eléctrica Dicho sistema se encarga de enfriar o calentar el interior de un espacio

T I P O S

Compuesto por células de un único cristal de silicio, tiene mayor eficiencia, es más duradero y costoso por su complejidad

PLACAS POLICRISTALIN A S

Compuesto por células múltiples de cristal de silicio, su fabricación e instalación es mas sencilla y es más barato

Usaenergíarenovable 1

Ahorro economicamente 2

Es adaptable a otras unidades 3

Primero, dependiendo de área de la edificación, se instalan los paneles empotrados al techo que tienen 2 cables guias y se conectan al Breakers DC Seguidamente, la energía se dirige a la unidad de ventilación externa que condensa el aire y esta lo emite a traves del aparato interno de la casa Si los paneles no producen la energía suficiente, el aire acondicionado utiliza su suministro a la red eléctrica, así la vivienda nunca se queda sin climatizar

P L ACAS
MONOCRISTALINAS
R E F E R E N T E
V E N T A J A S

¿ C O M O F U N C I O N A ?

Los paneles solares captan los rayos del sol y envía esta energía a un control de carga, seguidamente se almacena en una batería Luego pasa por un convertidor de energía, lo cual lo utilizan los aparatos internos y externos que generan el frío La unidad interna también está vinculada con una red eléctrica.

DATO: El aire acondicionado se puede controlar a traves de un mando a distancia o tambien puede ser monitoreado por una aplicación del celular por medio del Wi-Fi incorporado en la unidad interior

NOMBRE / NOMBRE Endíasnubladosnose generamuchaenergía 1 Inversióninicialalto 2 Constante mantenimiento 3
SISTEMA DE CLIMATIZACION FRÍO / 04
D E S V E N T A J A S 1 2 3 4 5 6 7

DE BIOMASA

Las calderas de biomasa son calderas que utilizan combustibles naturales como fuente de energía, como pepitas de aceituna, residuos forestales, cáscaras de nueces y otros Por ello, se consideran los más respetuosos con el medio ambiente del mercado, ya que pueden utilizarse para crear calefacción con radiadores, aire o suelo y producir agua caliente

T

I

P O S

S E G Ú N S U T E C N O L O G Í A

1 2

3 4

Caldera estándar : Disponen de sistemas automáticos

Calderas adaptadas: Preparadas para otros combustibles como carbón o gasóleo

Calderas de condensación: Son pequeñas y están completamente automatizadas

Calderas mixtas: La alimentación del combustible es automática

S E G Ú N E L T I P O D E C O M B U S T I B L E

1 2

Policombustibles: admite varios tipos de biocombustible

Pellet: combustión de pellet Son compactas, pequeñas y muy eficientes

Parilla de Biomasa

Depósito cenizas

Intercambio de Calor

Chimenea

Pantalla de control

Sitema de seguridad

Cámara de combustión

La biomasa se considera una energía renovable porque es respetuosa con el medio ambiente

El combustible puede obtenerse de proveedores locales, lo que reduce el impacto ambiental del turismo y crea empleos locales

Independencia de los precios de los hidrocarburos

Posibilidad de almacenamiento de combustible a largo plazo para su uso cuando sea necesario

1 2 3 4

Caldera de Biomasa: dirige el biocombustible desde el silo hasta la cámara de combustión

Cámara de Combustión: se introduce biocombustible y aire y se produce la combustión liberando energía térmica

Intercambiador de Calor: se transfiere calor al circuito de agua caliente

Sistema de Limpieza: mantiene la eficiencia del sistema

Centralita de Control: regula y optimiza el funcionamiento de la caldera de biomasa

Silo: está diseñado a base de biocombustible alimentado a la caldera

Chimenea: Salida de humos

Sistema Hidráulico: permite transportar el agua desde el lugar de calefacción hasta su destino

CALDERAS 1 2 3 I N S T A L A C I Ó N D E L A C A L D E R A D E B I O M A S A
4 5 6 7 8
Caldera Aislamiento
V E N T A J A S

Los aparatos son muy grandes puesto que necesitan un depósito dondealmacenarelcombustible

Son calderas que tienen un rendimiento más bajo que las calderasconvencionales

Requieren una alta inversión económica

¿ C O M O F U N C I O N A ?

El intercambiador de calor, a su vez, transfiere el calor al agua caliente, que suele denominarse agua caliente Las calderas de biomasa funcionan con tanques que almacenan biocombustible. Un tornillo sin cabeza que sale de este contenedor dirige la biomasa hasta la caldera donde se produce la combustión y la producción de calor.

Cumple la normativa vigente, sino por funcionamiento y seguridad en la vivienda Generar calefacción y agua caliente en las viviendas

LARA / PALOMINO 1 1 2 3 4 5
1
2
3
SISTEMA DE CLIMATIZACION CALIENTE/ 07
D E S V E N T A J A S U B I C A C I Ó N E N E L E S P A C I O
SILO PELLETS 2 CALDERA 3 DEPÓSITO 4 PRODUCCIÓNDECALOR 5

CASETTE AIRE ACONDICIONADO

Es un tipo de unidad diseñada para instalarse en los falsos techos, de manera que tan sólo se vea una consola en el mismo, quedando así una instalación más estética y funcional

DIRECTOS

Los indirectos o hidrónicos tienen la posibilidad de su dimensionamiento en función de la temperatura de agua. Esto permite su instalación también en sistemas de temperatura de agua moderada válidos para district heating/cooling

DIRECTOS

Aquí resaltan los sistemas con soluciones 1X1 o multi Splt, así mismo, los sistemas VRF (Caudal de refrigerante variable).

Ambientagrandesespaciossinningún problema

Mantenimiento sencillo: filtros sencillos de quitar y limpieza muy asequible

Mejora calidad del aire y menos ruido: brinda aire fresco bien distribuido muy silencioso

EDIFICIO DE OFICINAS, RENOVACIÓN, TEHERÁN, IRÁN

Arquitectos: Olgooco

Área: 3000 m²

Año: 2022

Este edificio de oficinas ubicado en iran, cuenta con aires acondicionados casette en cada oficina para mayor confort de los trabajadores

1 2 3
R E F E R E N T E
T I P O S
V E N T A J A S

Elprocesodeestesistemaeselsiguiente:

1.

2

3. 4 5

Absorción de Calor: El sistema absorbe el calor del aire de la habitación mediantelaunidadinterior

TransferenciadeCalor:Elcalorabsorbidosetransfiereaunrefrigerante,quese llevaalaunidadexterior

Expulsión de Calor: La unidad exterior expulsa el calor hacia el exterior, enfriandoelrefrigerante.

Circulación de Aire Fresco: El aire fresco se distribuye uniformemente en la habitaciónmediantelamasqueseinclinanencuatrodirecciones

RegulacióndeTemperatura:Eltermostatoajustalaproduccióndeairefríopara mantenerlatemperaturadeseadaenlahabitación.

Proporciona un ambiente de gran confort y estética, lo que lo convierte en el activo perfecto para un negocio, oficinas

osairesacondicionadotipocassettefuncionan on un sistema termodinámico que permite tilizar eficientemente los cambios de gerante, para producir ente.

Unidad externa condensadora

Tuberias de drenaje de agua

Unidad interna evaporada

Tuberias de cobre

Cables de alimentación y comunicación

SAMANTHA MORALES PALACIOS ¿ C O M O F U N C I O N A ? SISTEMA DE CLIMATIZACION CALIENTE / 08 D E S V E N T A J A S Coste de instalación elevado 1 Requiere de un terreno amplio 2 El equipo debe de estar bien calculado para el espacio a climatizar 3
P A R T E S

SISTEMA GEOTERMICO

Aprovecha la estabilidad térmica del terreno durante cualquier época del año, y junto a la bomba de calor geotérmica, proporciona calefacción, refrigeración y agua caliente sanitaria de la forma más eficiente posible, pues este a unos tres metros de profundidad presenta una temperatura constante de entre 10 y 16 °C, dependiendo de la latitud (norte o sur) del lugar.

SIN BOMBA

DE CALOR

El de baja entalpía se sustenta sobre la base de que el terreno entre 10 de 20 m se mantiene a una temperatura estable de 17º independientemente de la estación del año o de las condiciones meteorológicas, por lo que, si tenemos unas condiciones óptimas, el consumo eléctrico será muy bajo

CON

BOMBA DE CALO

V E N T A J A S

Tiene un bajo costo de funcionamiento y mantenimiento Produce muy bajos residuos y tiene un bajo impacto ambiental Mayor ahorro en comparación con sistemas convencionales: -50% de gasto mensual de climatización

1 2 3
R E F E R E N T E
T I P O S
El de alta entalpía se utiliza una bomba de calor, y es muy similar en concepto a un aire acondicionado que funciona para frío o como calefacción La diferencia es que en vez de expulsar el calor al exterior de la casa, se utiliza el subsuelo como sumidero o como fuente de calor R
Edificio Transoceánica, Santiago de Chile, Chile, 2010
El edificio responde en su diseño a la implementación de un sistema de eficiencia energética orientado a reducir la demanda, mejorar la calidad de los espacios de trabajo y adoptar una postura respetuosa con el medio ambiente, por lo que se decidió implementar la geotermia para poder conservar una temperatura confortable durante todo el año

Funcionamediantelaextraccióndecalordelsueloduranteelinviernoylaliberaciónde caloralsueloduranteelverano.

En invierno, un líquido refrigerante circula a través de tuberías enterradas en el suelo, absorbiendoelcalorgeotérmico.Luego,estecalorsecomprimeyseutilizaparacalentar el aire o el agua en el edificio, proporcionando calefacción. En verano, el proceso se invierte: el calor excesivo del edificio se extrae y se disipa en el suelo más fresco, enfriandoasíelinterior.

B O M B A D E C A L O R

Los sistemas geotérmicos aprovechan la energía térmica de la tierra mediante la instalación de tubos de recolección En la instalación horizontal, se excavan trincheras pocoprofundascontubosa1.5-2metrosde profundidad, mientras que en la vertical se perforan pozos profundos (30-150 metros) con tubos verticales Ambos sistemas utilizan líquido refrigerante para absorber el calor del suelo en invierno y liberarlo en verano La instalación horizontal es más asequible pero requiere más espacio, mientras que la vertical es más eficiente en climasextremosyconespaciolimitadoenla superficie, pero es costosa debido a la perforaciónprofunda

VILLANUEVA ORTIZ DE ZEVALLOS ¿ C O M O F U N C I O N A ? SISTEMA DE CLIMATIZACION CALIENTE / 09 D E S V E N T A J A S
Lainstalaciónescompleja 1 Requieredeunterrenoamplio 2 Estápocodesarrolladoennuestro país,porloquelainversióninicialen materialeseinstalaciónesalta. 3

SUELOS RADIANTES

El suelo radiante es un sistema de calefacción, funcionando mediante la canalización de una fuente de calor debajo del suelo Los conductos pueden transportar varias sustancias, que serán las que permitan aumentar o disminuir la temperatura de la vivienda

T I P O S

Este tipo de suelo se alimenta únicamente de la energía eléctrica y se instala bajo el revestimiento del suelo Lleva una estructura serpenteante que al calentarse traspasa el calor al suelo

Caja de empalmes Termostato Caja de registro

Este tipo de suelo calefactante es el que proporciona un mayor ahorro energético y un menor tiempo de amortización Esto se debe a que su eficiencia es bastante mayor.

La casa se encuentra ubicada en Bolivia Se escogió este suelo por lo que a diferencia de otros sistemas, este es el que mejor se adapta al perfil óptimo de temperaturas del cuerpo humano.

oconsumo
Reparto del calor uniforme 2 Elevadorendimiento 3 Sensacióndeconfort 4
S U E LO RADIANTE
SUELO RADIANTEPOR A G U A V E N T A J A S R E F E R E N T E
ELÉCTRICO
Pavimiento

Cemento

¿ C O M O F U N C I O N A ?

Consiste en una red de tubería plástica que es instalada bajo el pavimento y esto hace circular agua caliente o fría por toda la superficie

Cable calefactor

tAislante érmico

Los tipos de suelos que se pueden utilizar para que sea eficiente el suelo radiante son los cerámicos, mármol

Primero, tienes que preparar la superficie, luego, instalar los colectores y tuberías

Finalmente, se instala la caja de registro y se comprueba la instalación

SILVANA DIAZ QUISPE No es adecuada en lugares con temperaturasbruscas 1 Limita la elección de materiales para el suelo 2 Para la instalación se haceunagranreforma 3
D E S V E N T A J A S I N S T A L A C I O N
SISTEMA DE CLIMATIZACION CALIENTE / 10

Un deshumidificador es un aparato que reduce la humedad del ambiente, mediante un mecanismo de desecación del aire El agua en exceso la deposita en un depósito Los niveles de humedad óptimos para una vivienda se encuentran en torno al 45-55%

T I P O S

UMIDIFICADOR DOMÉSTICO

Son portátiles y basta con enchufarlos a una corriente eléctrica, la descarga del d ó i d agua es manual

También se utilizan deshumidificadores con gel de sílice que se encarga de absorber la humedad

DESHUMIDIFICADORINDUS

-De ambiente: Solo necesitan alimentación eléctrica y un tubo de desagüe

-Conductos: Instalación de conductos para repartir por toda la superficie

Reduce la formación de moho y bacterias Mejora la salud del sistema respiratorio

Evita problemas en la piel Se suprimen malos olores Ahorro en calefacción

Son portátiles y no requieren instalación

Aire viciado: se extrae siempre desde las habitaciones húmedas [cocina, baños, aseos]

Aire nuevo: alimenta con aire nuevo las estancias secas. [dormitorio, salón, comedor]

3 I N S T A L A C I Ó N
T R I A L
D E S H
V E N T A J A S SISTEMAS
1 2
DE DESHUMIDIFICACIÓN
1 2 3

El agua que recolecta el depósito del deshumidificador no es potable.

El aire húmedo pasa por el filtro

Luego por el vaporizador, el vapor de agua pasa a estado líquido

El agua cae al depósito

El aire deshumidificado pasa por el condensador y sube su temperatura

El ventilador expulsa el aire nuevamente al ambiente.

DESHUMIDIFICADOR MIRAY

DM-222W 4 L

Tipo: Doméstico.

Dimensiones: 24 7 x 33 8 x 51 1 cm

Peso: 14 5 kg

Ubicación: Para habitaciones de 30 m² hasta 35 m²

Capacidad: Absorción de hasta 20 litros por día

Cualidades:

-2 velocidades

-Función Wifi

-Indicador de humedad

-Modo dormir, automático y continuo

MARIA FERNANDA VILLANUEVA 1 R E F E R E N T E ¿ C O M O F U N C I O
? SISTEMA DE CLIMATIZACION CALIENTE / 11 1 2 3 P A R T E S
N A
1 2 3 4
A I R E H Ú M E D O A I R E S E C O
5
2 3 4 5 3 4 5 6 Compresor Evaporador Depósito de agua Condensador Tubería de refrigerante Ventilador 4 5 6
51 1 cm 33.8 cm 24.7cm R
E U T I L I Z A C I Ó N D E
L A G U A

BOMBA DE CALOR

¿QUE ES?

Dispositivo dedicado a calentar el interior de un inmobiliario en invierno mediante el uso del calor del aire exterior, agua subterránea o calor subterráneo

T I P O S

HIDROTÉRMICAS

Aire-agua Hidrotérmicas

Geotérmicas Aire- aire

GEOTÉRMICAS

El tipo depende de la fuente de energía térmica y de a qué material se transmite.

V E N T A J A S

Consume poca energía No emiten residuos 2 Instalación sencilla y económica 3

Larga vida útil 4

Esta bomba de calor es de AireAgua, pues transmite el calor del aire exterior para calentar el agua de un hogar

R E F E R E N T E
Bomba de Calor Rheem 5450

¿ C O M O F U N C I O N A ?

Se extrae el calor del aire exterior, agua subterránea o tierra subterránea.

El anticongelante se evapora y un compresor condensa el vapor

El refrigerante se enfría gracias a una válvula de expansión

Tubería de aire

Compresor

Tubería de agua

Válvula de expansión

Tubería de anticongelante

La bomba de calor debe estar preferiblemente en una zona elevada, para evitar el uso de motores externos que bombeen el agua

GUILLERMO PORTUGAL
SISTEMA DE CLIMATIZACION CALIENTE / 12 No funciona igual en todas las condiciones climáticas 1 Su funcionamiento depende de motores electricos 2 Ocupa un espacio considerable en el exterior 3 D E S V E N T A J A S Manual de instalación Rheem
E X T E R I O R I N T E R I O R P A R T E S

SISTEMA FANCOIL

El fancoil o ventiloconvector está compuesto por una batería que actúa como intercambiador de calor y un ventilador Usado para calentar o enfriar el ambiente como aires acondicionados o sistemas de calefacción, sustituyendo a los radiadores de agua tradicionales

T I P O S

2 TUBERIAS

Se utiliza donde hay una única fuente de producción de agua, como la geotermia, que producen agua caliente o fría indistintamente

4 TUBERIAS

Se utilizan cuando hay varias fuentes de producción de agua suelen tener dos baterías, una para el agua caliente y otra para el agua fría

ART-U Canvas de Galletti es el primer fancoil de diseño Tiene una profundidad de 10 cm y se encuentra disponible en 5 modelos. Además, Personalización completa del panel frontal

V E N T A J A S

Es respetuoso con el medio ambiente al no emplear gases refrigerantes Se regulan por zonas a través de termostatos individuales

Cuenta con una instalacion sencilla y es tiene un bajo consumo

Este diseño también redefinió en términos de rendimiento, gracias al uso de simulaciones fluidodinámicas computacionales para la optimización del intercambio térmico dentro de la unidad en combinación con motores eléctricos de imanes permanentes

Motordelventilador Entra Entrada de a Bateria Desagüe 1 2 5 6 7 1 2 3
R E F E R E N T E

Ocupa mas espacio que otros sistemas

La inversión es mayor, por las instalaciones grandes

Se necesita un espacio donde tener los calentadores o los enfriadores

Se pueden colocar en el interior de las casas a nivel del suelo, del techo, falsos techos y en los conductos, siendo el mas ideal colocarlo en el techo.

¿ C O M O F U N C I O N A ?

Recibe agua C/F mediante tuberías y llega al ntercambiador de calor. El aire entra por la parte nferior hacia el filtro, luego empuja el aire hacia la batería Los condensados producidos por el cambio brusco de temperatura son evacuados por un desagüe El aire cruza la batería y absorbe la energía del agua.El aire es expulsado por la parte superior.

GALVEZ / GOÑAS/ VASQUEZ
SISTEMA DE CLIMATIZACION CALIENTE Y FRÍO / 13
U B I C A C I Ó N E N E L E S P A C I O D E S V E N T A J A S 1 2 3

Se denomina Flujo Variable de Refrigerante (VRF, por sus siglas en inglés) a la capacidad que tiene un sistema de climatización para controlar la cantidad de refrigerante que pasa por el serpentín de cada evaporador, el cual cuenta con sensores en su entrada y salida, conectados a un microprocesador

T I P O S

se utiliza un solo circuito de refrigerante que puede ser tanto para calefacción como para refrigeración, pero no simultáneamente Esto significa que todas las unidades interiores pueden funcionar en modo de calefacción o refrigeración, pero no al mismo tiempo.

En este caso, se utilizan tres tuberías de refrigerante: una para la calefacción, otra para la refrigeración y una tercera para el retorno del refrigerante Esto permite que algunas unidades interiores estén en modo de calefacción mientras otras están en modo de refrigeración, lo que proporciona mayor flexibilidad

Dependiendo de la temperatura que se requiere en el edificio, el sistema aumenta o disminuye rápidamente la temperatura de la habitación Una vez alcanzado el clima requerido, se modula la velocidad del compresor, así como el flujo de refrigerante

Diseño del sistema preparación del espacio

de unidades interiores instalación de la unidad exterior conexiones eléctricas y de control carga refrigerante mantenimiento continuo

SISTEMA VRF EficienciaEnergética 1 ControldeZonas 2 CalefacciónyRefrigeración Simultáneas 3 Mantenimiento Simplificado 4 OperaciónSilenciosa 5 MenorEspacioRequerido 6
TSIS E M A D E F LUJODEREFRIGERANTEINDIVI D U A L TSIS E M A D E F L UJODEREFRIGERANTESIMUL T Á N E O
V E N T A J A S R E F E R E N T E I N S T A L A C I O N
1 2 3. 4 5. 6 7.
instalación

¿ C O M O F U N C I O N A ?

Un sistema VRF utiliza un ciclo de refrigeración para transferir calor entre unidades interiores (evaporadoras) y una unidad exterior (condensadora) El refrigerante circula a través de un sistema de tuberías y se ajusta en cantidad y temperatura según las necesidades de calefacción o refrigeración de cada zona del edificio Esto permite controlar individualmente la temperatura en diferentes áreas, lo que mejora la eficiencia energética y el confort

Unidadexterna

unidades interiores

mente estos se ntran en viviendas tipo mentos y oficinias

KARINA RAMÍREZ ALMEYDA
Ruido de las Unidades Exteriores 1 Dependencia de EnergíaEléctrica 2 Complejidad de DiseñoeInstalación 3
árearefrigerada SISTEMA DE CLIMATIZACION CALIENTE Y FRÍO / 14
doble tubería controladorBC tuberíafluido refrigerantes
áreaconcalefacción
D E S V E N T A J A S

CONFORT 2 - CICLO 2023 -2

DI235 - DI51

PERUANA
UNIVERSIDAD
DE CIENCIAS APLICADAS

Turn static files into dynamic content formats.

Create a flipbook
Issuu converts static files into: digital portfolios, online yearbooks, online catalogs, digital photo albums and more. Sign up and create your flipbook.