prueba

Page 1

C L I M A T I Z A C I Ó N A R T I F I C I A L

CONFORT 2 - CICLO 2023 -2
CATEDRA: Mg. Arq. Gabriel Maza // Mg. Arq. Andrea Zavala

I N D Í C E

0 1 : Sistema de VMC 0 2 : Minisplit aireacondicionado 0 3 : Ventana aireacondicionado Aire acondicionado multisplit 0 8 : Sistemas de deshumificacion 0 9 : Bomba de calor 0 6 : Sistema geotérmico 0 7 : Suelos radiantes 0 4 : Calderas de Biomasa 0 5 : Cassette Aire acondicionado 1 0 : Sistema Portátil 1 1 : Radiador de agua 1 2 : 1 3 : Sistema Fancoil Sistema VRF S I S T E M A S D E C L I M A T I Z A C I Ó N - F R I O SISTEMAS DE CLIMATIZACIÓN - CALIENTE SISTEMAS DE CLIMATIZACIÓN - CALIENTE /FRIO Unidades de tratamiento de aire 1 4 : Aire acondicionado híbrido 1 5 : 1 6 :

I N T R O

El presente trabajo se recolectó información sobre Sistemas de Ventilación Artificial Para ello, se organizo la información en tres grupos. Los sistemas de aire acondicionado, los de calefación y los que contienen ambos sistemas Cada sistema presenta diferentes modelos, para poder definirlos se han presentado sus tipos, funcionamiento, sus ventajas y desventajas,finalmente, un referente con un diseño actual

SISTEMA DE VENTILACIÓN MECÁNICA

Es producido por equipos impulsados por motores eléctricos para el proceso de suministro o remoción del aire, con el propósito de disminuir los niveles de contaminación en el ambiente, humedad o temperatura dentro de un área y poder tener un buen confort 1

VMC SIMPLE F LUJO

Se introduce el aire nuevo directamente desde el exterior, lo que provoca un desequilibrio de temperatura en la habitación Estos sistemas pueden ser autorregulables o higrorregulables 2

V E N T A J A S

1 2 3

Renovación del aire Climatización Ahorro de energía

Son unos sistemas más complejos, ya que se recupera una parte de la energía del aire extraído La VMC de doble flujo extrae el aire viciado de la habitación y lo renueva con aire nuevo 2

Unidad con VMC con recuperado r de calor

Flu o de extracción: aire viciado

VMC DOBLEFLUJO

Flujo

Aire viciado: se extrae siempre desde las habitaciones húmedas [cocina, baños, aseos].

Aire nuevo: alimenta con aire nuevo las estancias secas. [dormitorio, salón, comedor] 2

Esto

Tecna (2022) ¿Quéeslaventilaciónmecánicacontroladayenquéconsiste? Recuperadode:https://tecna es/ventilacion-mecanica-controlada/ CaloryFrio (2022) ¿Qué es y cómo funciona la Ventilación mecánica controlada? - Infografía Recuperado de : https://www caloryfrio com/aire-acondicionado/ventilacion/ventilacion-mecanica controladainfografia html#: :text Está%20ubicado%20en%20los%20cuartos,el%20aire%20de%20forma%20continua

T I P O S VMC Simple Flujo Elaboración propia Adaptado a CaloryFrio com de mpulsión: aire nuevo VMC Doble Flujo Elaboración propia Adaptado a CaloryFrio com
1 2
VMC Funcionalidad Elaboración propia Adaptado a E-FiCiencia

Se apagan con la ausencia de oxígeno.

¿ C O M O F U N C I O N A ?

El aire viciado se extrae siempre desde las estancias húmedas, como la cocina, el baño o el aseo Así, evitamos que el aire viciado se expanda por toda la casa En cambio, el flujo de impulsión alimenta con aire nuevo las estancias secas como las habitaciones y el comedor 2

I n t e r i o r E x t e r i o r

Filtro Filtro

Entrada de aire viciado del interior

Control Ventiladores

Aire renovado y calentado al interior

Sistema de VMC Elaboración propia Adaptado a CaloryFrio com

Núcleodel intercambiador

Entrada de aire frio del exterior Salida del aire viciado al exterior que a cedido su calor

POR CONFORT

Un espacio correctamente ventilado aumenta el confort y el rendimiento del espacio

Se evita la proliferación de bacterias, moho y ácaros de polvo

POR EFICIENCIA

Una ventana abierta duplica la demanda de calefacción de una estancia

Las nuevas directivas europeas invitan a emplear este uso de Ventilación para ahorrar energía

OCHICUA/ BRIGITT 2
SISTEMA DE CLIMATIZACION FRÍO / 01
POR SALUD
POR NORMATIVA
01. 02. 03 04. Cable
potencia
Un recuperador de calor de doble flujo marca Siber Proyecto de arrevol Arquitectos

UTA

UNIDADES DE TRATAMIENTO DE AIRE

Este tipo de equipos pertenece a la familia HVAC y está formado por diversos módulos que albergan los elementos implicados en la limpieza, climatización y restauración del flujo de aire de una estancia determinada El sistema UTA es altamente configurable debido a su composición modular

Restaurar parte del aire a través de un sistema de aire acondicionado exterior regulado por la propia UTA Ejemplo: quirófanos

Al igual que ocurre con los radiadores o los fancoils, el aire del habitáculo no se regenera El aire se acondiciona en la unidad central de

1

Regular el flujo de ventilación en relación al dióxido de carbono detectado en el ambiente interior, lo que permite un importante ahorro energético respecto a otros métodos de ventilación.

Texto tLos beneficios del ajuste del flujo de aire variable son importantes ahorros de energía en comparación con el flujo de aireconstante

2 Ambos son mecanismos para reducir el consumo y la factura energética 3

Secciones de conexión: entrada y salida de aire del sistemadeaireacondicionadoseconsigueregulando Secciones de plénums: espacios vacíos entre las secciones de tratamiento de aire que normalizan el flujo deaireantesdeingresaraotrasección

Secciones de mezcla y free cooling: módulo situado detrás del ventilador de impulsión que permiten ajustar el aire de retorno, exterior y escape al porcentaje deseado

Secciones de baterías: más habituales son los acumuladoreshidráulicos

Secciones de filtrado: la sección de filtrado disponedediferentestiposdeprefiltrosyfiltros

Secciones de silenciador: recubiertos para evitar que lasfibrasseseparenalpasodelaire

Secciones de recuperación de energía: intercambio de energíaentreelaireextraídolocalmente

Secciones de ventilación: un motor normalmente trifásico

T I P O S
SOLO OR
I R E
EL AIRE
I N S T A L A C I Ó N
V E N T A J A S
1 2 3 4 5 6 7 8
Silenciador Entrada de aire Batería de refrigeración Intercambiadores Térmicos Plénums Ventilador P A R T E S 1 2 3 4 5 6 7 8 1 2 3 4 5 6 7 2 3 1
Filtro

¿ C O M O F U N C I O N A ?

El sistema de tratamiento de aire de UTA es suministrar aire tratado internamente a su zona de trabajo, su configuración modular permite que el sistema cambie su funcionalidad dependiendo de los componentes que pertenezcan al dispositivo

Su rendimiento depende de las condiciones atmosféricas delexterior

Es un sistema que causa bastante impacto visual en los edificios

La cantidad económica que hay que invertir para la instalaciónesbastantemáselevada

D Ó N D E S E U B I C A N ?

U N I D A D E S C O M P A C T A S

Están formadas por un sólo módulo en el que se incluyen las distintas etapas de tratamiento de aire

U N I D A D E S M O D U L A R E S

En la mayoría de los casos, las UTA modulares son equipos de un tamaño considerable, por lo que suele resultar necesario ubicarlas en la cubierta del edificio o en un local específico

Existen versiones para montaje en exterior en la cubierta de un edificio y versiones de altura reducida específicas para la instalación en falso techo

LARA/ PALOMINO 2 3
1
SISTEMA DE CLIMATIZACION FRÍO / 03 D E S V E N T A J A S U B I C A C I Ó N E N E L E S P A C I O
4 6 7 5

AIRE ACONDICIONADO DE VENTANA

El aire acondicionado de ventana es uno de los aires acondicionado más comúnmente usado puesto que es de gran ayuda para aliviar las grandes olas de calor que se presenta durante la época de verano

I N S T A L A C I Ó N

Su principal ubicación como dice su nombre es en la ventana pero también se puede poner en un hoyo en la pared pero con el tamaño adecuado

Usar bases de metal para su base como soporte Evitar usar madera por qué se desgasta con el tiempo y se daña con la humedad

1

Diseño compacto para su fácil instalaciónyubicación

Es uno de los modelos más económicos 2

Diversidad en tamaño ycapacidades 3

V E N T A J A S R E F E R E N T E 1 2 Rejillas Soplador 3 4 Ventilador Compresor 5 6 Condensador Evaporador 7 8 Filtro Paneldecontrol

A ?

de aire acondicionado al poseer s lo hace por la parte delantera n el calor al interior de la casa. Y e del exterior se transforma en

DATO: Con cuidado y mantenimiento rutinario su vida útil puede ser hasta 15 años, también debe tomarse en cuenta su uso con moderación puesto que su uso desmedido puede reducir su tiempo de vida.

MARIEL LOPEZ Son equipos muy pesados 1 Sonruidosos 2 Noesundiseñomuyvariado 3
SISTEMA DE CLIMATIZACION FRÍO / 05
D E S V E N T A J A S

DE BIOMASA

Las calderas de biomasa son calderas que utilizan combustibles naturales como fuente de energía, como pepitas de aceituna, residuos forestales, cáscaras de nueces y otros Por ello, se consideran los más respetuosos con el medio ambiente del mercado, ya que pueden utilizarse para crear calefacción con radiadores, aire o suelo y producir agua caliente

T I P O S

S E G Ú N S U T E C N O L O G Í A

1 2

3 4

Caldera estándar : Disponen de sistemas automáticos

Calderas adaptadas: Preparadas para otros combustibles como carbón o gasóleo

Calderas de condensación: Son pequeñas y están completamente automatizadas

Calderas mixtas: La alimentación del combustible es automática

S E G Ú N E L T I P O D E C O M B U S T I B L E

1 2

Policombustibles: admite varios tipos de biocombustible

Pellet: combustión de pellet Son compactas, pequeñas y muy eficientes

Parilla de Biomasa

Depósito cenizas

Intercambio de Calor

Chimenea

Caldera Aislamiento

Pantalla de control

Sitema de seguridad

Cámara de combustión

La biomasa se considera una energía renovable porque es respetuosa con el medio ambiente

El combustible puede obtenerse de proveedores locales, lo que reduce el impacto ambiental del turismo y crea empleos locales

Independencia de los precios de los hidrocarburos

Posibilidad de almacenamiento de combustible a largo plazo para su uso cuando sea necesario

Caldera de Biomasa: dirige el biocombustible desde el silo hasta la cámara de combustión

Cámara de Combustión: se introduce biocombustible y aire y se produce la combustión liberando energía térmica

Intercambiador de Calor: se transfiere calor al circuito de agua caliente

Sistema de Limpieza: mantiene la eficiencia del sistema

Centralita de Control: regula y optimiza el funcionamiento de la caldera de biomasa

Silo: está diseñado a base de biocombustible alimentado a la caldera

Chimenea: Salida de humos

Sistema Hidráulico: permite transportar el agua desde el lugar de calefacción hasta su destino

1 2 3 I N S T A L A C I Ó N D E L A C A L D E R A D E B I O M A S A
CALDERAS
4 5 6 7 8
V E N T A J A S
1 2 3 4 P A R T E S 1 2 3 4 5 6 7 8 9 7 4 2 4 8 7 5 3 2

Los aparatos son muy grandes puesto que necesitan un depósito dondealmacenarelcombustible

Son calderas que tienen un rendimiento más bajo que las calderasconvencionales

Requieren una alta inversión económica

¿ C O M O F U N C I O N A ?

El intercambiador de calor, a su vez, transfiere el calor al agua caliente, que suele denominarse agua caliente Las calderas de biomasa funcionan con tanques que almacenan biocombustible. Un tornillo sin cabeza que sale de este contenedor dirige la biomasa hasta la caldera donde se produce la combustión y la producción de calor.

Cumple la normativa vigente, sino por funcionamiento y seguridad en la vivienda. Generar calefacción y agua caliente en las viviendas.

LARA / PALOMINO 1 1 2 3 4 5
1
2
3
SISTEMA DE CLIMATIZACION CALIENTE/ 07
D E S V E N T A J A S U B I C A C I Ó N E N E L E S P A C I O
E L L E T S 7 7 7 7
SILO PELLETS 2 CALDERA 3 DEPÓSITO 4 PRODUCCIÓNDECALOR 5 L O
S P

CASETTE AIRE ACONDICIONADO

Es un tipo de unidad diseñada para instalarse en los falsos techos, de manera que tan sólo se vea una consola en el mismo, quedando así una instalación más estética y funcional

DIRECTOS

Los indirectos o hidrónicos tienen la posibilidad de su dimensionamiento en función de la temperatura de agua. Esto permite su instalación también en sistemas de temperatura de agua moderada válidos para district heating/cooling

DIRECTOS

Aquí resaltan los sistemas con soluciones 1X1 o multi Splt, así mismo, los sistemas VRF (Caudal de refrigerante variable).

Ambientagrandesespaciossinningún problema

Mantenimiento sencillo: filtros sencillos de quitar y limpieza muy asequible

Mejora calidad del aire y menos ruido: brinda aire fresco bien distribuido muy silencioso

EDIFICIO DE OFICINAS, RENOVACIÓN, TEHERÁN, IRÁN

Arquitectos: Olgooco

Área: 3000 m²

Año: 2022

Este edificio de oficinas ubicado en iran, cuenta con aires acondicionados casette en cada oficina para mayor confort de los trabajadores

1 2 3
R E F E R E N T E
T I P O S
V E N T A J A S

Elprocesodeestesistemaeselsiguiente:

1.

2

3. 4 5

Absorción de Calor: El sistema absorbe el calor del aire de la habitación mediantelaunidadinterior

TransferenciadeCalor:Elcalorabsorbidosetransfiereaunrefrigerante,quese llevaalaunidadexterior

Expulsión de Calor: La unidad exterior expulsa el calor hacia el exterior, enfriandoelrefrigerante.

Circulación de Aire Fresco: El aire fresco se distribuye uniformemente en la habitaciónmediantelamasqueseinclinanencuatrodirecciones

RegulacióndeTemperatura:Eltermostatoajustalaproduccióndeairefríopara mantenerlatemperaturadeseadaenlahabitación.

CALOR Refrigerante

Valvuladeexpansion

Generador FRÍO

Elaboración propia recuperada de caloryfrio.com

osairesacondicionadotipocassettefuncionan on un sistema termodinámico que permite tilizar eficientemente los cambios de gerante, para producir ente.

Tuberias de cobre Absorbedor

Unidad externa condensadora

Proporciona un ambiente de gran confort y estética, lo que lo convierte en el activo perfecto para un negocio, oficinas

Unidad interna evaporada

Cables de alimentación y comunicación

SAMANTHA MORALES PALACIOS ¿ C O M O F U N C I O N A ? SISTEMA DE CLIMATIZACION CALIENTE / 08 D E S V E N T A J A S Coste de instalación elevado 1 Requiere de un terreno amplio 2 El equipo debe de estar bien calculado para el espacio a climatizar 3
Tuberias de drenaje de agua P A R T E S

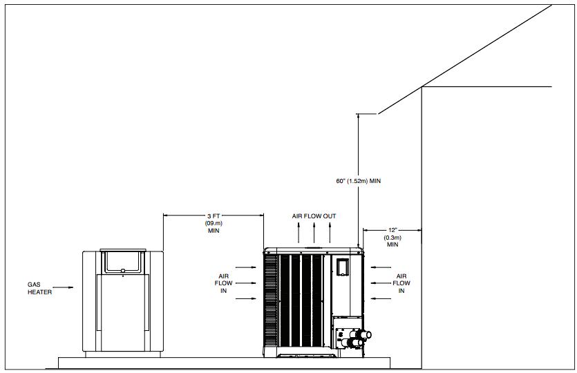
SISTEMA GEOTERMICO

Aprovecha la estabilidad térmica del terreno durante cualquier época del año, y junto a la bomba de calor geotérmica, proporciona calefacción, refrigeración y agua caliente sanitaria de la forma más eficiente posible, pues este a unos tres metros de profundidad presenta una temperatura constante de entre 10 y 16 °C, dependiendo de la latitud (norte o sur) del lugar.

SIN BOMBA

DE CALOR

La energía de baja entalpía aprovecha que el terreno a una profundidad de 10 a 20 metros mantiene una temperatura constante de 17ºC, lo que resulta en un bajo consumo eléctrico cuando se aprovechan estas condiciones

La energía de alta entalpía utiliza una bomba de calor que funciona como un aire acondicionado, pero en lugar de expulsar el calor fuera, utiliza el subsuelo como fuente o sumidero de calor

V E N T A J A S

Tiene un bajo costo de funcionamiento y mantenimiento

Produce muy bajos residuos y tiene un bajo impacto ambiental

Mayor ahorro en comparación con sistemas convencionales: -50% de gasto mensual de climatización

Edificio Transoceánica, Santiago de Chile, Chile, 2010

El edificio responde en su diseño a la implementación de un sistema de eficiencia energética orientado a reducir la demanda, mejorar la calidad de los espacios de trabajo y adoptar una postura respetuosa con el medio ambiente, por lo que se decidió implementar la geotermia para poder conservar una temperatura confortable durante todo el año

1 2 3
R E F E R E N T E
T I P O S
CON BOMBA DE CALO R

Estápocodesarrolladoennuestro país,porloquelainversióninicialen materialeseinstalaciónesalta.

Funcionamediantelaextraccióndecalordelsueloduranteelinviernoylaliberaciónde caloralsueloduranteelverano.

En invierno, un líquido refrigerante circula a través de tuberías enterradas en el suelo, absorbiendoelcalorgeotérmico.Luego,estecalorsecomprimeyseutilizaparacalentar el aire o el agua en el edificio, proporcionando calefacción. En verano, el proceso se invierte: el calor excesivo del edificio se extrae y se disipa en el suelo más fresco, enfriandoasíelinterior.

Se pueden aprovechar las fuentes de energía térmicadelatierramediantedossistemasde instalación: horizontal y vertical El sistema horizontal implica trincheras poco profundas con tubos a 15-2 metros de profundidad, siendo más asequible pero requiriendo más espacio El sistema vertical utiliza pozos profundos (30-150 metros) con tubos verticales, siendo más eficiente en climas extremos y con espacio limitado en la superficie, pero costoso debido a la perforación profunda Ambos sistemas emplean líquido refrigerante para absorber el calordelsueloeninviernoyliberarloenverano

VILLANUEVA ORTIZ DE ZEVALLOS ¿ C O M O F U N C I O N A ? SISTEMA DE CLIMATIZACION CALIENTE / 09 D E S V E N T A J A S
Lainstalaciónescompleja 1 Requieredeunterrenoamplio 2
3
B O M B A D E C A L O R

SUELOS RADIANTES

El suelo radiante es un sistema de calefacción, funcionando mediante la canalización de una fuente de calor debajo del suelo Los conductos pueden transportar varias sustancias, que serán las que permitan aumentar o disminuir la temperatura de la vivienda

RADIANTE ELÉCTRICO

T

I P O S

Este tipo de suelo se alimenta únicamente de la energía eléctrica y se instala bajo el revestimiento del suelo Lleva una estructura serpenteante que al calentarse traspasa el calor al suelo

SUELO RADIANTEPOR

Este tipo de suelo calefactante es el que proporciona un mayor ahorro energético y un menor tiempo de amortización Esto se debe a que su eficiencia es bastante mayor.

Un ejemplo con los suelos radiantes y energías sostenibles es cuando se une un equipo aetotermia como generador para la calefacción, la refrigeración y el agua caliente. La calefacción a través de un sistema de suelo radiante, lo que nos dará el máximo confort durante el invierno y permitirá alcanzar la máxima eficiencia a la aerotermia

oconsumo Reparto del calor uniforme 2 Elevadorendimiento 3 Sensacióndeconfort 4
Pavimiento
S U E LO
A G U A V E N T A J A S R E F E R E N T E Caja de empalmes Termostato Caja de registro
Imagen recuperada de Baxi Imagen recuperada de Ilutop Imagen recuperada de Ilutop

Cemento

¿ C O M O F U N C I O N A ?

Consiste en una red de tubería plástica que es instalada bajo el pavimento y esto hace circular agua caliente o fría por toda la superficie

Cable calefactor

tAislante érmico

Imagen recuperada de Instapro

Los tipos de suelos que se pueden utilizar para que sea eficiente el suelo radiante son los cerámicos, mármol

Primero, tienes que preparar la superficie, luego, instalar los colectores y tuberías

Finalmente, se instala la caja de registro y se comprueba la instalación

SILVANA DIAZ QUISPE No es adecu lugares temperaturasb 1 Limita la elecc materiales p suelo 2 Para la instala haceunagranreforma 3
D E S V E N T A J A S I N S T A L A C I O N
SISTEMA DE CLIMATIZACION CALIENTE / 10
Imagen recuperada de STH

DESHUMIDIFICACIÓN

Un deshumidificador es un aparato que reduce la humedad del ambiente, mediante un mecanismo de desecación del aire El agua en exceso la deposita en un depósito Los niveles de humedad óptimos para una vivienda se encuentran en torno al 45-55%

T I P O S

UMIDIFICADOR DOMÉSTICO

Deshumidificadores con gel de sílice

DESHUMIDIFICADORINDUS

SISTEMA DOMÉSTICO: Son portátiles, basta con enchufarlos a una corriente eléctrica, la descarga del depósito de agua es manual.

Reduce la formación de moho y bacterias

Mejora la salud del sistema respiratorio

Medidas: De 20 a 65cm de altura

Capacidades: De 500ml a 40L

Potencias: De 40W a 700W

Ubicación: Mínimo un metro de distancia entre el equipo y las paredes para no bloquear las entradas y salidas de aire

SISTEMA INDUSTRIAL

Funcionamiento:

Deshumidificador 1

2 Conductos laterales para mayor cobertura de área

4 5 3

Evita problemas en la piel

Se suprimen malos olores

Ahorro en calefacción

Son portátiles y no requieren instalación

Es recomendable el uso de alguna fuente de energía renovable, como la solar

Potencia de un panel solar: 250- 300W

Medidas: De 50 a 80cm de altura

Capacidades: De 40L a 1000L

Usos: Industria alimenticia, armamentística y pirotécnica, almacenamiento de productos químicos y electrónicos, construcción y obras, instalaciones deportivas, etc

Captación de energía

Potencia deshumidificador doméstico: 400W

Reutilización del agua

S C Ó
S O S T E N I B I L I D A D 1 2 3
SISTEMAS DE
T R I A L
D E S H
V E N T A J A S
1 2
1 2 3 4
Conexión
Tubo de
eléctrica
desagüe 3 4

Compresor

El agua que recolecta el depósito del deshumidificador no es potable.

Pero se puede utilizar para regar las plantas.

Otros usos:

Limpiar el patio

Planchar

Llenar el depósito del limpiaparabrisas del carro

Llenar una fuente decorativa

I O N A ?

El aire húmedo pasa por el filtro Luego por el vaporizador, el vapor de agua pasa a estado líquido

El agua cae al depósito

El aire deshumidificado pasa por el condensador y sube su temperatura

El ventilador expulsa el aire nuevamente al ambiente.

Es importante limpiar el depósito de agua y los filtros con regularidad para evitar que partículas de polvo y ácaros contaminen el agua recogida por el deshumidificador

DESHUMIDIFICADOR MIRAY

DM-222W 4 L

Tipo: Doméstico.

Dimensiones: 24 7 x 33 8 x 51 1 cm

Peso: 14 5 kg

Ubicación: Para habitaciones de 30 m² hasta 35 m²

Capacidad: Hasta 20 litros por día.

Potencia: 420W.

Cualidades: 2 velocidades, función Wifi, indicador de humedad, modo dormir

MARIA FERNANDA VILLANUEVA 1 R E F E R E N T E
¿ C O
SISTEMA DE CLIMATIZACION CALIENTE / 11 1 2 3 P A R T E S
M O F U N C
1 2 3 4 5 A I R E H Ú M E D O A I R E S E C O
2
3 4 5 6
3 4 5
Evaporador Depósito de agua Condensador Tubería de refrigerante Ventilador 4 5 6 51 1 cm 33.8 cm 24.7cm

BOMBA DE CALOR

¿QUE ES?

Dispositivo dedicado a calentar el interior de un inmobiliario en invierno mediante el uso del calor del aire exterior, agua subterránea o calor subterráneo

T I P O S

HIDROTÉRMICAS

GEOTÉRMICAS

El tipo depende de la fuente de energía térmica y de a qué material se transmite.

Bomba de Calor Rheem 5450

Esta bomba de calor es de AireAgua, pues transmite el calor del aire exterior para calentar el agua de un hogar

La bomba de calor disminuye el consumo de energía y es la tecnología con menores emisiones de CO₂ en comparación con cualquier caldera de combustible fósil.

Manuel Rabanal, 2022.

No emiten residuos 2 Instalación sencilla
económica 3 Larga vida útil 4 Consume poca energía 1
y
V E N T A J A S R E F E R E N T E
Aire-agua Hidrotérmicas Geotérmicas Aire- aire

F U N C I O N A ?

l calor del aire exterior, agua tierra subterránea ante se evapora y un compresor apor e se enfría gracias a una válvula de

Tubería de aire Válvula de expansión

Tubería de anticongelante agua

O R I N T E R I O R

Imagen de elaboración propia

Bomba de calor para interior

Recuperado de: Gaserveis

La bomba de calor debe estar preferiblemente en una zona elevada, para evitar el uso de motores externos que bombeen el agua

Recuperado de: Manual de instalación Rheem

GUILLERMO PORTUGAL
SISTEMA DE CLIMATIZACION CALIENTE / 12 No funciona igual en todas las condiciones climáticas 1 Su funcionamiento depende de motores electricos 2 Ocupa un espacio considerable en el exterior 3 D E S V E N T A J A S

SISTEMA FANCOIL

El fancoil o ventiloconvector está compuesto por una batería que actúa como intercambiador de calor y un ventilador Usado para calentar o enfriar el ambiente como aires acondicionados o sistemas de calefacción, sustituyendo a los radiadores de agua tradicionales

T I P O S

2 TUBERIAS

Se utiliza donde hay una única fuente de producción de agua, como la geotermia, que producen agua caliente o fría indistintamente

4 TUBERIAS

Se utilizan cuando hay varias fuentes de producción de agua suelen tener dos baterías, una para el agua caliente y otra para el agua fría

ART-U Canvas de Galletti es el primer fancoil de diseño Tiene una profundidad de 10 cm y se encuentra disponible en 5 modelos. Además, Personalización completa del panel frontal

V E N T A J A S

Es respetuoso con el medio ambiente al no emplear gases refrigerantes Se regulan por zonas a través de termostatos individuales

Cuenta con una instalacion sencilla y es tiene un bajo consumo

Este diseño también redefinió en términos de rendimiento, gracias al uso de simulaciones fluidodinámicas computacionales para la optimización del intercambio térmico dentro de la unidad en combinación con motores eléctricos de imanes permanentes

Motordelventilador Entra Entrada de a Bateria Desagüe 1 2 5 6 7 1 2 3
R E F E R E N T E

Ocupa mas espacio que otros sistemas

La inversión es mayor, por las instalaciones grandes

Se necesita un espacio donde tener los calentadores o los enfriadores

Se pueden colocar en el interior de las casas a nivel del suelo, del techo, falsos techos y en los conductos, siendo el mas ideal colocarlo en el techo.

O M O

U N C I O N A ?

Recibe agua C/F mediante tuberías y llega al intercambiador de calor. El aire entra por la parte inferior hacia el filtro, luego empuja el aire hacia la batería Los condensados producidos por el cambio brusco de temperatura son evacuados por un desagüe El aire cruza la batería y absorbe la energía del agua.El aire es expulsado por la parte superior.

Intercambiador de frío

Ventilador

Intercambiador de calor

Salida de aire

Entrada de aire Válvula de agua fría Válvula de agua caliente

F I L T R O
GALVEZ / GOÑAS/ VASQUEZ
¿ C
F
SISTEMA DE CLIMATIZACION CALIENTE Y FRÍO / 13
U B I C A C I Ó N E N E L E S P A C I O D E S V E N T A J A S 1 2 3

Se denomina Flujo Variable de Refrigerante (VRF, por sus siglas en inglés) a la capacidad que tiene un sistema de climatización para controlar la cantidad de refrigerante que pasa por el serpentín de cada evaporador, el cual cuenta con sensores en su entrada y salida, conectados a un microprocesador

T I P O S

se utiliza un solo circuito de refrigerante que puede ser tanto para calefacción como para refrigeración, pero no simultáneamente Esto significa que todas las unidades interiores pueden funcionar en modo de calefacción o refrigeración, pero no al mismo tiempo

En este caso, se utilizan tres tuberías de refrigerante: una para la calefacción, otra para la refrigeración y una tercera para el retorno del refrigerante Esto permite que algunas unidades interiores estén en modo de calefacción mientras otras están en modo de refrigeración, lo que proporciona mayor flexibilidad

Dependiendo de la temperatura que se requiere en el edificio, el sistema aumenta o disminuye rápidamente la temperatura de la habitación Una vez alcanzado el clima requerido, se modula la velocidad del compresor, así como el flujo de refrigerante

EficienciaEnergética 1 ControldeZonas 2 OperaciónSilenciosa 5 CalefacciónyRefrigeración Simultáneas 3 Mantenimiento Simplificado 4 MenorEspacioRequerido 6
SISTEMA VRF
SISTEMA DE FLUJO DE REFRIGERANTE INDIVIDUAL SISTEMA DE FLUJO DE REFRIGERANTE SIMULTÁNEO
V E N T A J A S R E F E R E N T E I N S T A L A C I O N Diseño del sistema preparación del espacio instalación de unidades interiores instalación de la unidad
conexiones eléctricas
carga refrigerante mantenimiento continuo 1 2 3 4 5 6 7 S
de VRF
o E aboración
de S
Sistema
exterior
y de control
stema
fr
propia Adaptado
stema VRF – Rev sta Cero Grados
de VRF ¿Cómo funcionan? magen de www tuaireacond c onadoweb com

C O M

O F

sistema V ón para nsferir eriores ( vaporadoras adora).

El refrigerante circula a través de un sistema de tuberías y se ajusta en cantidad y temperatura según las necesidades de calefacción o refrigeración de cada zona del edificio Esto permite controlar individualmente la temperatura en diferentes áreas, lo que mejora la eficiencia energética y el confort

ALMEYDA
Ruido de las Unidades Exteriores 1 Dependencia de EnergíaEléctrica 2 Complejidad de DiseñoeInstalación 3 unidades interiores Unidad externa doble tubería controlador BC tubería fluido refrigerantes área con calefacción área refrigerada SISTEMA DE CLIMATIZACION CALIENTE Y FRÍO / 14 D E S V E N T A J A S Sistema de VRF E aboración prop a Adaptado a Ca oryFr o com D I A G R A M A D E F U N C I O N A M I E N T O Cable potencia Núcleodel intercambiador Entradadeaire viciadodel interior Entradadeaire friodel exteror Saidadelaire vciadoal exteriorquea cedidosucalor Arerenovadoy calentadoal interior Contro Ventiladores Filtro Filtro Interior Exterior S stema de VMC E aborac ón prop a Adaptado a Ca oryFr o com

PORTATIL

El sistema portátil es un dispositivo diseñado para poder regular las diferentes temperaturas de aire, este aparato como lo dice su nombre, es móvil y se puede desplazar, es cómoda ya que es compacta y fácil des transportar de habitación en habitación

Aire acondicionado

Humidificados

Deshumidificador

Ventiladores

Calefactores

Purificadores

Dyson purifier, es un purificador que ayuda a la circulación del aire, mejorando así la calidad de esta Elimina cualquier bacteria que se encuentra en una casa, como partículas contaminantes y alérgenos También regula la temperatura del hogar

Para más comodidad, esta cuenta con aplicativo móvil Donde se puede tener control completo del sistema, acceder informes, y configurarlo con fecha y hora

Su sistema se basa en filtros, captura cualquier partícula

Tiene dos piezas que son las más importantes, el filtro y el contenedor de agua Ambas piezas se encajan en el aparato con un click

Requiere de mantenimiento cada cierto tiempo

Aumenta la calidad de aire 1 Esmuyfácildeusar 2 No necesita instalación 5 I N S T A L A C I O N
SISTEMA
Sepuedetransportar fácilmente 3 Da una limpieza profundaalhogar 4
V E N T A J A S R E F E R E N T E
T I P O S
Aire acond cionado (2021, junio 10) Branatech https://branatech com/aireacondic onado/

¿ C O M O F U N C I O N A ?

Cubierta exterior Deposito de agua

Menu

humidificación automática Velocidad del flujo de aire

Oscilación

Control de humedad

Dirección del flujo de aire

Temporalizador Modo nocturno

Al ser portátil esta se puede colocar en cualquier lugar de la casa

Puede purificar el aire de un espacio de 81 m3 (testeado y comprobado por la marca) U B I C A C I Ó N E N E L E S P A C I O

Dyson Purif er Cool TP07 Dyson es Recuperado el 6 de septiembre de 2023 de https://www dyson es/cuidado-del-aire/pur ficadores-ventiladores/pur fier-cootp07

LUCERO ULLOA LINARES
es portátil aun se necesita un cable parasuuso 1 Gastamuchaenergía 2 Consume bastante agua 3 que
D E S V E N T A J A S
Aunque
del
Lo único que requiere es una conexión para cable SISTEMA DE CLIMATIZACION CALIENTE Y FRÍO / 14
purificación automática

RADIADOR DE AGUA

¿ Q U E E S ?

Los radiadores de agua un sistema de calefacción que nos permite disfrutar de una temperatura agradable en épocas de frío Para emitir calor al ambiente utilizan el agua proveniente de un generador de calor, ya sea una caldera o una bomba de calor como la usada en aerotermia

T

I P O S

Radiador de agua de baja temperatura Radiador de agua de alta temperatura

Radidador de aluminio

Radiador de acero

Radiador de agua vertical

Caldera de biomasa para radiador

Radiador de hierro fundido

Pasos a seguir 1 2 3 4

Desembala el radiador y verifica el material.

Monta la llave, el purgador y la T de regulación

Toma medidas e instala el radiador de agua caliente

Conecta el radiador y llénalo de agua

Hay diferentes tipos de instalación entre estos están:

Bitubo o instalación en paralelo Monotubo o instalación en serie

U B I C A C I Ó N E N E L E S P A C I O

La ubicación ideal es bajo la ventana de forma que el aire frío se caliente al pasar sobre el radiador

Ya que el aire caliente tiende a subir empujando el aire frío de la zona superior hacia abajo, creándose una convección cíclica que reparte el calor de forma rápida y homogénea

I N S T A L A C I Ó N
15°C 24°C 23°C 20°C 19°C 18°C 30°C

Elcostodelainstalaciónesalto

El uso seguido de este hace que necesitemantenimientoconstante

No es muy resistente a los golpes bruscos, por lo que si ocurre un accidente este seria mas propenso a averiarsequeotros V

C Ó M O F U N C I O N A ?

Los radiadores se calientan gracias al contacto con el agua caliente e irradian ese calor en la estancia donde se encuentran

El agua se va enfriando al ceder su calor y retorna al generador para volver a ser calentada y reiniciar de nuevo el circuito

Los soportes que lo aguantan contra la pared

Las juntas entre elementos, si los tienen

Los tapones en dos de las esquinas

El purgador en uno de los extremos superiores

La válvula de regulación

Calefacción con calor másduradero 1 Calefacciónsinbrisas 2 Calefacción de funcionamiento más silencioso 3 DANIELA ELSNER 1 2 3
E S V E N T A J A S RADIADOR DE AGUA / 13
¿
D
E N T A J A S
bibliografia
C O M P O N E N T E S

MULTISPLIT AIRE ACONDICIONADO

es un sistema que consta de una unidad exterior que logra funcionar hasta 8 unidades internas Logra acondicionar el lugar al mismo tiempo pero también funcionan de forma independiente y se utilizan circuitos de cobre que hacen circular el refrigerante entre la unidad exterior y las interiores

1

Ahorro de energía con solo una unidad externa funcionas las unidades interiores

Ahorro de espacio ya que consta de solo buscar el lugarparalaunidadexterna

3

Elruidodisminuye

2 Perforar la pared en el área de instalación para colocar los soportes o bases La pared debe soportar el peso del equipo. Colocar la unidad en la base y asegurarse de que quede nivelada y bien ajustada

Estas unidades se conectan al compresor ubicado en el exterior

Se canalizan las tuberías para su conexión con el exterior

El compresor debe instalarse en un área que cuente con suficiente espacio, ya que requiere una adecuada ventilación

Sera necesario instalar una placa o base, con aislamiento, que permita una adecuada sujeción del equipo, que minimice las vibraciones

E N
I N S T A L A C I Ò N U N I D A D E S I N T E R N A S C O N D E N S A D O R E X T E R N O C O N J U N T O D E L I N E A S D E C O B R E C A B L E S D E C O M U N I C A C I O N E X T E N S I O N D E D R E N A J E
V
T A J A S

¿ C Ó M O F U N C I O N A ?

El aire acondicionado multisplit funciona mediante la conexión de distintas unidades de interiores a una unidad externa y se puede combinar de distintas formas como las unidades de paredes, techo, cassette o suelo Funciona con la tecnología inverter es lo que logra obtener tanto frío. como calor, cada una de las unidades internas pueden regularse de forma independiente en la temperatura, el encendido, el apagado y la potencia.

ParteInterna:

Filtrodeaire

Deflector

Evaporador

ParteExterna:

Condensador

Compresor

Cableadodelcompresor

Evaporador

Ventilador

JOSHELYN RIVERA INGA Si se malogra la unidad exterior dejandefuncionarlasinteriores 1 El costo de energía es mayor 2 Se disminuye el ruido de las unidades interiores pero incrementaenlaexterior 3
D E S V E N T A J A S UNIDADES INTERNAS UNIDAD EXTERNA SISTEMA DE CLIMATIZACION CALIENTE Y FRÍO / 15

AIRE ACONDICIONADO HÍBRIDO

El aire acondicionado solar híbrido es un sistema de climatización que funciona a través de energía solar y eléctrica Dicho sistema se encarga de enfriar o calentar el interior de un espacio

T I P O S

Compuesto por células de un único cristal de silicio, tiene mayor eficiencia, es más duradero y costoso por su complejidad

PLACAS POLICRISTALIN A S

Compuesto por células múltiples de cristal de silicio, su fabricación e instalación es mas sencilla y es más barato

Primero, dependiendo de área de la edificación, se instalan los paneles empotrados al techo que tienen 2 cables guias y se conectan al Breakers DC Seguidamente, la energía se dirige a la unidad de ventilación externa que condensa el aire y esta lo emite a traves del aparato interno de la casa Si los paneles no producen la energía suficiente, el aire acondicionado utiliza su suministro a la red eléctrica, así la vivienda nunca se queda sin climatizar

Usaenergíarenovable 1 Ahorro economicamente 2 Es adaptable a otras unidades 3
P L ACAS
MONOCRISTALINAS
V E N T A J A S R E F E R E N T E
Pantalla Wi-Fi Display Motor de corriente continua

Controlador de carga solar MPP

Control principal ODU

Motor de ventilador DC

¿ C O M O F U N C I O N A ?

Los paneles solares captan los rayos del sol y envía esta energía a un control de carga, seguidamente se almacena en una batería Luego pasa por un convertidor de energía, lo cual lo utilizan los aparatos internos y externos que generan el frío La unidad interna también está vinculada con una red eléctrica.

6 7

Compresor inverter DC

Adaptado de SOLARKER, creado en el 2019

5

Adaptado de PRECIOGAS, creado en el 2023

DATO: El aire acondicionado se puede controlar a traves de un mando a distancia o tambien puede ser monitoreado por una aplicación del celular por medio del Wi-Fi incorporado en la unidad interior

Preciogas (2023 19 jul o) Aire acondic onado so ar: tipos prec o y funcionamiento preciogas com

https://preciogas com/ nstalac ones/equipamiento/a re-acond cionado/solar

China AC DC h brido 18000BtU proveedores de aire acondicionado solar&Fabr cantes&Fábr ca - hecho en China - Dongshuo (s f )

https://www ds solar com/solar-air-conditioing/ac-dc-hybrid-18000btu-solarair-conditioner html

Preciogas (2023b, ulio 19) Aire acondicionado so ar: tipos, precio y funcionamiento preciogas com

https://preciogas com/ nstalac ones/equipamiento/a re-acond cionado/solar

XIMENA PEREDA Endíasnubladosnose generamuchaenergía 1 Inversióninicialalto 2 Constante mantenimiento 3
SISTEMA DE CLIMATIZACION FRÍO / 04
D E S V E N T A J A S
1 2 3 4

MINI SPLIT AIRE ACONDICIONADO

Es un sistema de climatización que se utiliza para enfriar o calentar una habitación o un espacio pequeño También se conoce como aire acondicionado tipo split o split individual Está diseñado para ser una alternativa más eficiente y versátil a los sistemas de aire acondicionado central

T I P O S

D INTERIOR

Este tipo aparato que permite controlar el funcionamiento del aire acondicionado para espacios interiores de manera eficiente y suele ser una opción para hogares, oficinas y otros espacios pequeños o zonas específicas.

Su función principal es la de disipar el calor absorbido del interior de un edificio o espacio a través del ciclo de refrigeración permitiendo así que e m

Su tamaño compacto se adaptacualquierespacio su motor silencioso generamenosruido Es sencillo su mantenimiento

Menorruido

ación de un minisplit es eso que generalmente realizado por un técnico onal capacitado, ya que manipulación de nte y conexiones s que requieren entos específicos una ón incorrecta puede en problemas de nto y seguridad, por lo se recomienda damente contratar a un o profesional calificado ar a cabo la instalación

I N S T A L A C I Ò N Zaki OMyAbdeaziz O (2023) Evauacióncrtcadealternatvasa R410Aparaaresacondiconadosmn-spitenelmercadoegipcio Energayentornoconstruido
V E N T A J A S

O M O F U N C I O N A ?

El Minisplit Frío-Calor funciona mediante la transferencia de calor utilizando un refrigerante y un ciclo de compresión y expansión Tiene la función adicional de regresar el calor hacia el evaporador, ubicado dentro de la habitación, a través de la bomba de calor, para que el aire se caliente en lugar de enfriarse y regrese hacia el interior.Esto permite enfriar o calentar el aire en la unidad interior y luego distribuirlo en el espacio acondicionado.

DATO:

Parte Interna:

Evaporador Compresor

Parte Externa:

Válvula de expansión

Condensador

Evaporador

Ventilador

Si se ubica en el exterior puede alterareldiseñodelafachada 1 Necesitas unidades exteriores 2 Las paredes de aislantes de yeso puede presentar problemasenlainstalación 3
SISTEMA DE CLIMATIZACION FRÍO / 02
¿ C
D E S V E N T A J A S Apagado y prendido Modo automatico Sin ruido Potencia EVAPORADORA COMPRENSOR EVAPORADORA COMPRENSOR Parte interna Parte externa Elsad AM(2022) Unnovedosodseño mpementacónyevauacóndedesempeñode prmereyectordeexpansóneectróncaparaahorro energéticodeunareacondconadomn spitcontroladoporinverter Conversiónygestióndeenerga 260 115603

CONFORT 2 - CICLO 2023 -2

DI235 - DI51

UNIVERSIDAD PERUANA
CIENCIAS
DE
APLICADAS

Turn static files into dynamic content formats.

Create a flipbook
Issuu converts static files into: digital portfolios, online yearbooks, online catalogs, digital photo albums and more. Sign up and create your flipbook.