Architectural Portfolio-Presentation

Page 1

These selected works explore connections between communities, programs, facades, building systems, and even time. The end goal of these connections is to foster comfort in an unique, aesthetically pleasing way. The projects push the bounds of normality to create sustainable and creative solutions to contemporary problems.

01 04 02 05 03 An Artist’s Playground Gossamer Overlook The Twist Abandoned Beauty Entwined Elements
Table of Contents

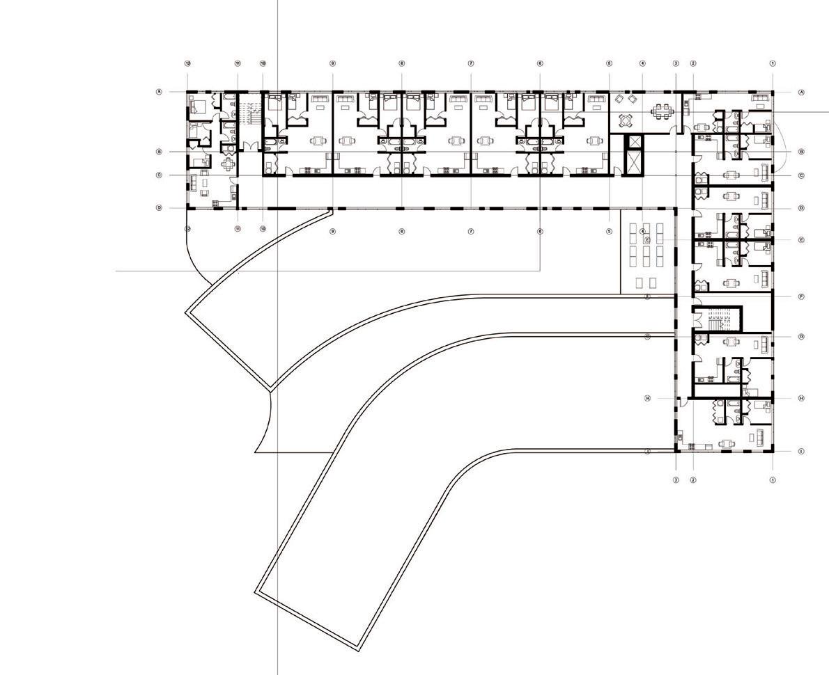
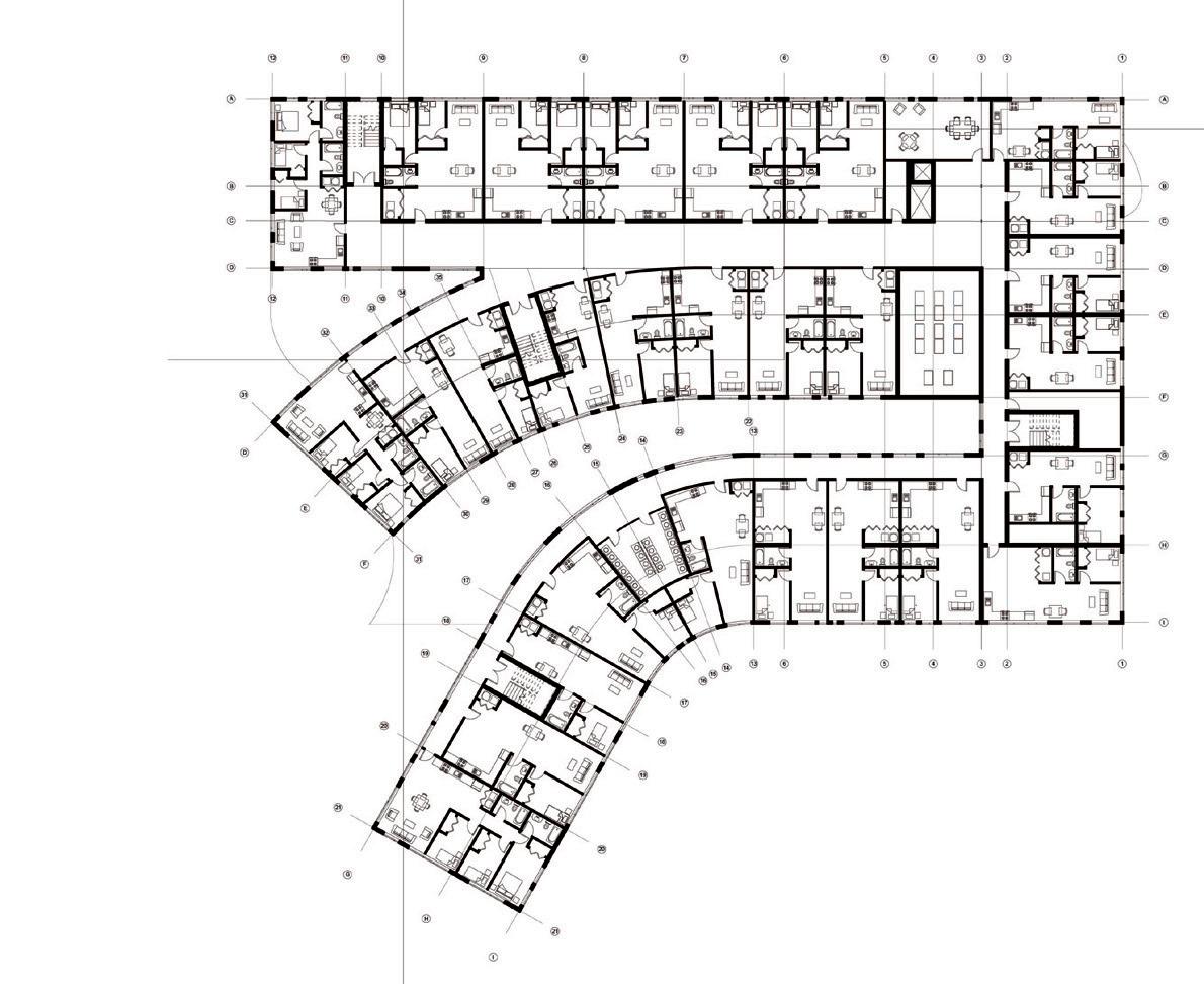
An Artist’s Playground

Professor Name: Jenny Meakins Timeframe: Third Year University: Kent State University Location: Cleveland, Ohio

Through visiting and learning about the East Cleveland community, I developed an adaptive resuse proposal for the old Case Elementary school. I determined that it should benefit the area’s children, the families, and artistic culture. The design transforms the building into a multimedia art center, with areas for both children and professional artists.

01
Level 1 Level 2 Level 3 2 2 2 2 2 7 7 7 14 14 15 16 16 5 5 5 5 5 8 8 9 9 9 10 10 10 13 12 11 11 10 10 1 2 4 4 4 3 3 4 4 4 4 6 6 6 6 5 0 5 10 20 50 0 5 10 20 50 0 5 10 20 50 N N N
Level 1 Level 2 Level 3 1 2 3 4 5 6 7 8 9 10 11 12 13 14 15 16 Cafe Gallery Artists’ Entrance Performing Arts Studio Office Theater/Auxiliary Individual Studio Space Lounge Pottery Studio/ Workshop Children’s Studio Woodworking Studio/Workshop Artists’ Electronic Lab Artists’ Multimedia Studio Digital Design Lab Conference Room Printmaking Studio/Workshop Key: Public Area Professional’s Multimedia Art Center Children’s Multimedia Art Center

Experimental Unfolded Pathway

The drawing depicts a child’s path through the building utilizing the playscape.

1 2 3 4 5 Gallery Individual Studio Space Digital Design Lab Storage Restroom Key: 2 2 4 1 1 3
5 5 5
1 2 3 4 5 6 Theater Gallery Lounge Key: Artists’ Multimedia Studio Pottery Kiln Room Conference Room 1 4 2 3 5 6
Greenhouse FoodTruck Amphitheater
Garden Pavilion Playground

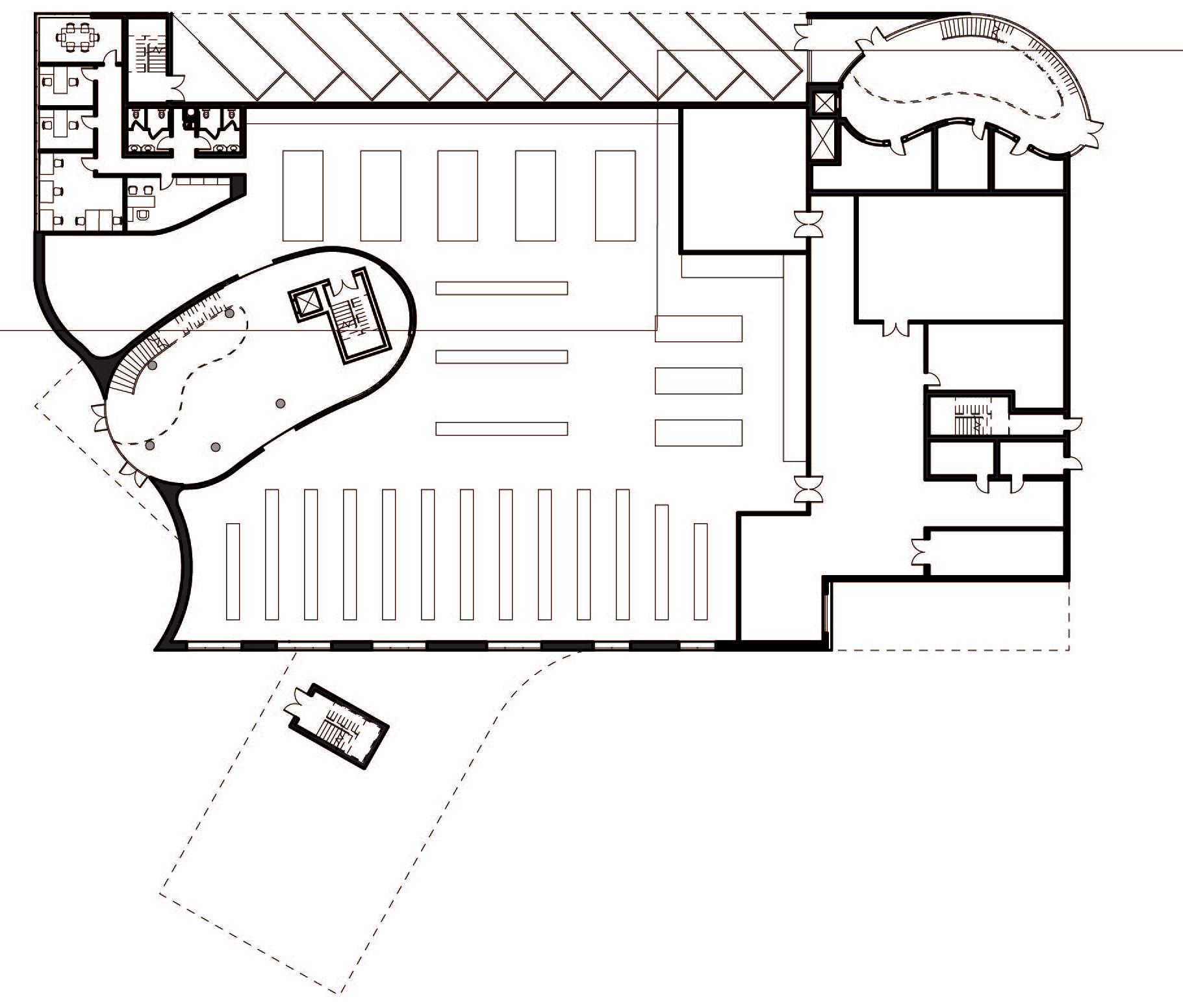
The Twist

Professor Name: Frederick Lucak Timeframe: Fourth Year University: Kent State University Location: San Francisco, California

The design utilized an integrated design approach to resolve various systems in the architectural process. These include structural composition, material assemblies, and aesthetics. The proposed building needed to accommodate a grocery store, as well as an affordable housing development. The design aims to take a holistic approach to the architectural process by consolidating more technical systems with aesthetic considerations early on in the design process.

02
Level 1 1 2 3 4 5 6 Cafe/Grocery Entry Grocery Shelving Grocery Offices Grocery Technical and Storage Residential Entry Residential Offices Key: 0 15 5 20 1 2 4 4 5 6 6 6 3 3 3 3 3 N
Level 2 1 2 3 4 Cafe Cafe Technical Lounge Mechanical *Floors 3-5 are similar Key: 19 16 0 15 5 20 1 2 3 4 N
1 7 6 6 6 6 6 6 6 6 6 6 6 6 6 6 6 6 6 6 6 6 6
1 2 3 4 5 6 7 8 Residential Entry Grocery Shelving Cafe/Grocery Entry Cafe Cafe Kitchen Apartments Lounge Gym
3 2 4 5 8 6 6 6 6 6 6 6 6 6 6 6 6 6 6 6 0 5 20
Key:
0 5 10 0 5 10 0 5 10 One Bedroom Apartment Two Bedroom Apartment Three Bedroom Apartment
Level 3 Level 4 Level 5 Impermeable Liner Concrete Slab Scalant Flashing Window System Aluminum Composite Paneling Rigid Insulation Water Barrier Batt Insulation Gypsum Board Finished Flooring Concrete Slab Floor Precast Concrete Paneling Compacted Rubble N N N

The roof of the grocery store and the roof of cafe amoeba are composed of pre-cast concrete, supported by columns and shear walls.

The upper residential utilize steel columns and beams, with a concrete slab resting on top. Shear walls are placed around the fire stairs and at other key points. The entire structure is reinforced by large cross beams.

Entwined Elements

Professor Name: Paola Giaconia Timeframe: Second Year University: Kent State University Location: Florence, Italy 03

The proposed building is located in the Piazza dei Ciompi, home of the Loggia dei Pesce. The site needed to accommodate four programmatic spaces: a cafe, a gallery, a library, and a kindergarten. The design process rested on three fundamental principles: conserving public space, maximizing views of the Loggia, and separating distinct public space.

The square was originally a public square. To retain public area, the entire building is walkable, creating a flow between interior spaces and the Florentine environment.

This design centered on the four programs being separate, but able to interact at key points.

The glass facade reflects the surrounding Italian buildings and sky during the day, while providing occupants with copious views

Site Axon Cafe Library Kindergarden Gallery
Ground Floor Plan Second Floor Plan Third Floor Plan Fourth Floor Plan (Mezzanine Level) Cafe Loft Plan Elementary Loft Plan 1 4 4 5 4 4 4 5 6 5 2 3 0 m 10 m 20 m Key 1 2 3 4 5 6 7 Cafe Gallery Library Playroom Classroom Event Room Storage N

Children’s Library

The kindergarten has its own entrance into the library. The private vertical circulation corridor opens directly into the Children’s Library.

Multipurpose/Event Room

Kindergarten Classrooms and Playroom Cafe
22

Contained behind the offices on the first level.

Section Cut Line
Main
Gallery Individual Computer Labs

Gossamer Overlook

Professor Name: Paola Giaconia Timeframe: Third Year University: Kent State University Location: Florence, Italy

The proposed project rests on the bank of the Arno River. The site currently contains a cafe and a community center, in a dilapidated structure nested in the side of the Torrino of Santa Rosa. The design aims to revitalize the bank with new structures to house the current programs, while increasing accessibility, and maximizing views of the river.

04

Two bike paths stretch across the site.. These paths join at the ends, creating a looped trail around the site. Two staircases connect the city to the river, along with an amphitheater and canoe drop-off dock.

3. Canoe Storage/Shop 2. Community Classroom Lobby 1. Community Classroom 4. Public Restroom
6 5 3 1 2 4 N
5. Bike Storage 6. Lobby 7. Public Restroom 8. Cafe
Section 8 7 0 10 5 50 N
Cafe

Abandoned Beauty

Professor Name: Andrew Miller Timeframe: Second Year University: Kent State University

The design aim was to utilize the program Grasshopper to create both a structural figure and to populate the surrounding landscape. Then I employed Blender to simulate the passage of time, and postulate what the landscape would look like if the area was deserted.

06

The design aim was to utilize the program Grasshopper to create both a sculptural figure and to populate the surrounding landscape.

Current Landscape

Then I employed Blender to simulate the passage of time, and postulate what the landscape would look like if the area was deserted.

The absence of humans allows new life to be breathed into the area.

The rectangular stone forms are blanketed in a layer of moss. Plant life peeks through the landscape. Trees show the passage of time with new growth. Color and life are breathed into the area.

Aged Landscape

Turn static files into dynamic content formats.

Create a flipbook
Issuu converts static files into: digital portfolios, online yearbooks, online catalogs, digital photo albums and more. Sign up and create your flipbook.