Kevin Buell's Portfolio

Page 1

KEVIN BUELL

Clemson University

TABLE OF CONTENTS

EXPERIENCING...

Transition Space:4-11

Erosion: 12-17

Movement: 18-23

Water: 24-31

Gathering places: 32-39

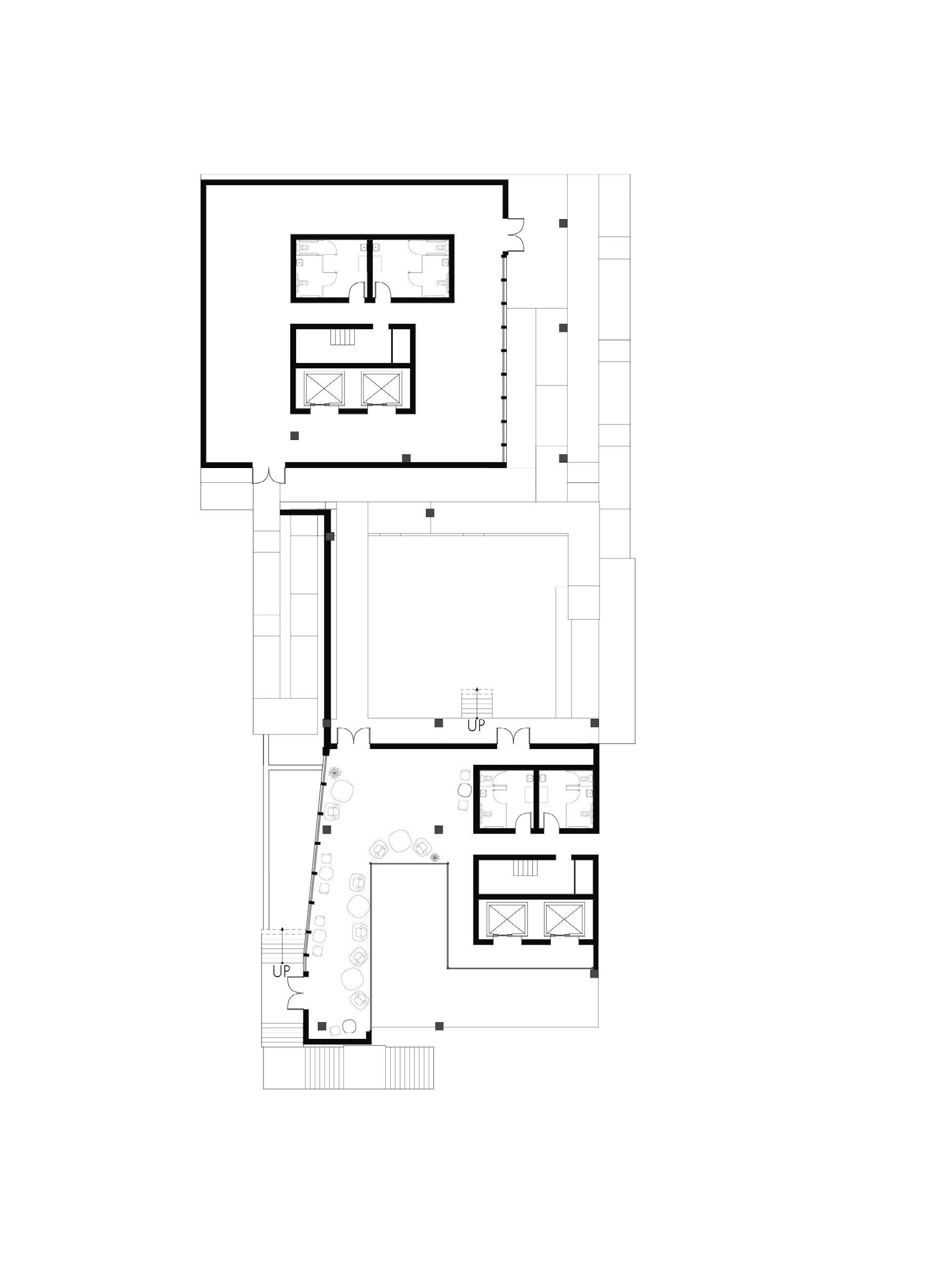
TRANSITION SPACE

This project made in a group effort with Kayla Marinden at clemson university is a study of the effects of different transitional spaces and their affects on the office space.

Second Floor Third Floor
Facade Detail
Exterior Render Interior Office Space

EROSION

Designed as an art and cultural center the curvilinear forms and blank walls represent the effect the people of Cayce, Sc had on their town with their unique art and position. Taking influence from the adjacent quarry and utilizing high walls to insulate from the sound of passing trains this funtions as a hidden gathering place at the heart of Cayce.

Roof Plan Secound Floor
Ground Floor Basement
Ground Floor Galler Interior Courtyard Upward View

MOVEMENT

Originally done as a school assignment, this field house design is created with the goal of pulling visitors from the parking lot towards Y-beach in Clemson, SC. This project used a repetative pattern of wooden rods in order to both create beautiful and compelling shadows but also to study the concept of semipermiability in defined space

Level 1 Level 2

WATER

The bathouse that is supposed to embody how to experience water was created by overlaying a curvelinear roof ontop of a more grid-like system of walls and space. It creates a beautiful experience by using the erosion of a rock in a river as inspiration for concieving a space that is meant to endow its visitors with one simple and continues relaxing experience.

Level 1 Section of interior Courtyard and Levels

Level 2 Movement Through Levels Axon

North Elevation

South Elevation
West Elevation East Elevation Interior Courtyard View Lake Front View

GATHERING SPACE

The project designed as a Bus stop at Y-beach in Clemson, Sc utilized movement to draw its visators into conversaational hubs. By studying the most popular paths during the day I round the point of most activity on the beachsite to create my bustop. The differing heights in the beams create beautiful shadows at any point of the day, convincing the visators to come and stay awhile, either in the sunny and warm amphitheatre, the covered seating or simply to take a look at the beautifully framed beach view

Section Through Amphitheater Seating

West Elevation

South Elevation

Render From Beachside Render of Bustop from the Road, Towards the Beach
KEVIN BUELL (803)476-2120 KevBuell016417@gmail.com

Turn static files into dynamic content formats.

Create a flipbook
Issuu converts static files into: digital portfolios, online yearbooks, online catalogs, digital photo albums and more. Sign up and create your flipbook.
Kevin Buell's Portfolio by Kbuell417 - Issuu