PROYECTO ARQUITECTONICO BIBLIOTECA Y FACULTAD DE ARQUITECTURA EN PIURA

Page 1

BIBLIOTECA Y FACULTAD

UNIVERSIDAD PRIVADA

ANTENOR ORREGO

CATEDRA:

• ARQ. PEREZ SANTA MARIA, LUIS

• ARQ. GARCIA MARTIN, JOHN

F L O R E S C H A V E Z K A T H E R I N M O N T E S C A L D E R O N J E N N I F E R 4
PIURA –PERÚ
PIURA –PERÚ

PLANOS

A.V COUNTRY A.V COUNTRY A.V COUNTRY 1 2 3 6 7 6.006.00 8.10 8.10 4.00 7.50 6.006.00 8.10 8.10 8.104.00 8.10 8.50 4.50 7.50 6.006.00 8.10 8.10 8.104.00 6.006.00 8.10 8.10 8.104.00 6.006.00 8.10 8.10 8.104.00 6.006.00 8.10 8.10 8.104.00 BC D E FG BC D E FG BC D E FG BC D E FG BC D E FG 4 5 A A A A A ABC D E FG ESCALA1:200 ESTRUCTURAGENERAL A B 1 2 3 4 5 6 7 8 9 10.00 10.00 9.00 9.00 9.00 9.00 9.00 9.00 9.00 9.00 B
A.VLUISEGUIGUREN JR.LOSCEIBOS
A.VLUISEGUIGUREN JR.LOSCEIBOS A.V COUNTRY A.V COUNTRY A.V COUNTRY S.H ESCALA1:200 PLANTASÓTANO 2 3 4 5 6 7 A B 2 3 4 5 6 7 A B ABC D E FG ABC D E FG 3 4 5 A A B B C C D D E E N.P.T.-3.35 ALAMEDAPÚBLICA N.P.T.-4.85 ALAMEDAPÚBLICA
A.VLUISEGUIGUREN JR.LOSCEIBOS A.V COUNTRY A.V COUNTRY A.V COUNTRY RECEPCIÓN TELEFONOS N.P.T.-1.50 ESCALA1:200 PLANTA01 A A B B C C D E CAFETERIAESTUDIANTIL N.P.T.-1.50 CENTROESTUDIANTIL N.P.T.+0.00 ALAMEDAPÚBLICA CAFETERIAESTUDIANTIL N.P.T.+0.00 ALAMEDAPÚBLICA N.P.T.+0.00 ALAMEDAPÚBLICA N.P.T.+0.00 HALL PATIOSEMIPUBLICO N.P.T.-1.50 PATIOSEMIPUBLICO N.P.T.+0.00 HALL N.P.T.+0.00 CAFETERIA PUBLICA N.P.T.+0.00 ALAMEDAPÚBLICA N.P.T.+0.00 PATIOSEMIPUBLICO COCINADECAFETERIA SS.HHVARONES D E
A.VLUISEGUIGUREN JR.LOSCEIBOS JR. A.V COUNTRY A.V COUNTRY A.V COUNTRY N.P.T.+4.85 ESCALA1:200 PLANTA02 A A B C C D D E N.P.T.4.85 SALADECOMPUTO N.P.T.+3.35 SALALECTURANIÑOS N.P.T.4.85 SALASDEREUNIONES N.P.T.+3.85 SALADEDOCENTES VESTIBULO ENFERMERIA N.P.T.+3.85 SALADEESTAR N.P.T.+3.85 DECANO N.P.T.+3.85 SECRETARIA SALADEEXPOSICIONES AULASPEDAGOGICAS HALL N.P.T.+3.35 SS.HH PASILLO E N.P.T.4.85 SALADECOMPUTO N.P.T.+3.35 B N.P.T.+3.35 SALADECOMPUTO N.P.T.+3.35 SALALECTURA N.P.T.+3.35 HALL N.P.T.+3.35 SALASLECTURA N.P.T.+3.35 HEMEROTECA N.P.T.+3.35 SALASLECTURA ADULTOSMAYORES
A.VLUISEGUIGUREN JR.LOSCEIBOS A.V COUNTRY A.V COUNTRY A.V COUNTRY ESCALA1:200 PLANTA03 N.P.T.+6.70 A A B B C C D D E SALADEREUNIONES PASILLO N.P.T.+8.20 SALASDELECTURA N.P.T.+6.70 PASILLO SALASDELECTURA SALASDELECTURA HALL N.P.T.+8.20 SS.HH N.P.T.+6.70 SS.HH N.P.T.+6.70 SS.HH E AULASTALLER AULASTALLER AULASTALLER N.P.T.+3.35 SALALECTURANIÑOS N.P.T.+3.35 SALADECOMPUTO N.P.T.+3.35 SALALECTURA N.P.T.+3.35 SALASLECTURA N.P.T.+3.35 HEMEROTECA N.P.T.+3.35 SALASLECTURA ADULTOSMAYORES
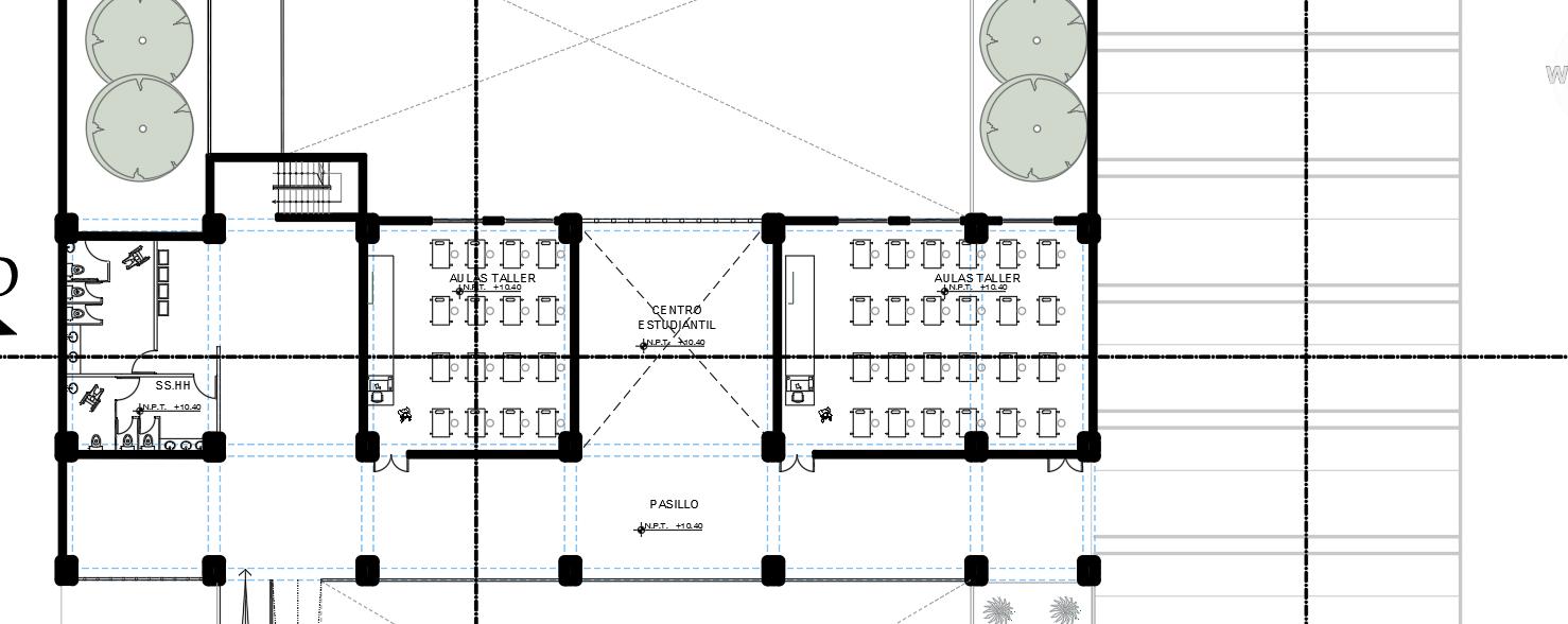
A.VLUISEGUIGUREN JR.LOSCEIBOS A.V COUNTRY A.V COUNTRY A.V COUNTRY ESCALA1:200 PLANTA04 A A B B C C D D E AULASDETALLER SALADEREUNIONES PASILLO PASILLO N.P.T.+7.05 PASILLO AULASTEORICAS SS.HH SS.HH N.P.T.+10.40 SS.HH N.P.T.+10.40 PASILLO N.P.T.+10.40 E AULASTALLER AULASTALLER N.P.T.+7.05 CENTRO ESTUDIANTIL
A.VLUISEGUIGUREN JR.LOSCEIBOS JR. A.V COUNTRY A.V COUNTRY A.V COUNTRY ESCALA1:200 PLANTA05 A A B B C C D D E AULASDETALLER SALADECOMPUTO PASILLO N.P.T.+13.75 AULASTEORICAS N.P.T.+13.75 PASILLO N.P.T.+13.75 SS.HH SS.HH N.P.T.+10.40 SS.HH N.P.T.+13.75 E AULASTALLER AULASTALLER PASILLO CENTRO ESTUDIANTIL N.P.T.+10.40
A.VLUISEGUIGUREN JR.LOSCEIBOS A.V COUNTRY A.V COUNTRY A.V COUNTRY ESCALA1:200 PLANTA06 A A B B C C D D E SS.HH SALADECOMPUTO AULASDETALLER PASILLO SS.HH E AULASTALLER AULASTALLER PASILLO CENTRO ESTUDIANTIL

FACULTAD YBIBLIOTECA

VENTILACIÓN CRUZADA EN FAVOR DE LA DIRECCIÓN DE VIENTOS

FACULTAD YBIBLIOTECA

RECORRIDO DE LA EDIFICACIÓN A TRAVÉS DE UN

PATIO SEMIPUBLICO

CORTES

ESCALA1:200
N.P.T0.00m
CORTEA-A ESCALA1:200 CORTEB-B
S.H. VARONES SALA ESTAR CORTEE-E ESCALA1:200 S.H. VARONES S.H. VARONES S.H. VARONES HALL HALL SALADE ESPERA CORTED-D ESCALA1:200 N.P.T4.80m N.P.T8.50m S.H. VARONES S.H. VARONES S.H. VARONES HALL HALL S.H. VARONES DIRECCIÓN S.H. VARONES HALL HALL N.P.T8.50m AUDITORIO SALADE PROFESORES SALADE ESPERA CORTEC-C ESCALA1:250 S.H. VARONES S.H. VARONES S.H. VARONES HALL HALL N.P.T5.20m S.H. VARONES

DETALLES CONSTRUCTIVOS

CORTEB-BJARDINERA01

f'c=175kg/cm2

ESC.1/25

TIERRAPREPARADA
´´

Cubiertade cementoyarena

Entablamentode ACERO

Bordedemadera pintada

Marcodemadera de2"x2" Rejametálica Tabiquededrywall

1.14

Marcodemadera de2"x2"

TEATINA_CORTE1-1 ESC1:25

V I S T A S E X T E R I O R E S

FACULTAD YBIBLIOTECA

AV LUIS EGUIGUREN

FACULTAD YBIBLIOTECA

AV LUIS EGUIGUREN C/N COUNTRY

FACULTAD YBIBLIOTECA

TERRENO COLINDANTE

JR LOS CEIBOS

FACULTAD YBIBLIOTECA

SE GENERA UNA INTEGRACION AL CONTEXTO CON FACHADAS SOSTENIBLE Y CON

FAVORECIMIENTO DE VENTILACION CRUZADA PARA LAS AULAS

TERRENO COLINDANTE

FACULTAD YBIBLIOTECA

AV COUNTRY

AV LUIS EGUIGUREN

SE GENERA PLANTA LIBRE BUSCANDO EL RECORRIDO CONTINUO PARA EL PÚBLICO; Y ASI

SE GENERA EL SENTIDO DE PERTENCIA JERARQUIZANDO LA PRIVACIDAD Y GENERANDO

CONEXIÓN DE VISUALES

FACULTAD YBIBLIOTECA

F A C H A D A S

FACULTAD YBIBLIOTECA

A V. L U IS EG UIGUR E N

FACULTAD YBIBLIOTECA

AV

COUN TRY

FACULTAD YBIBLIOTECA

JR LOS CEIBOS

V I S T A E N P L A N T A

FACULTAD YBIBLIOTECA

JR LOS CEIBOS

TERRENO COLINDANTE

AV C O UN TRY
AV LUIS EGUIGUREN

A X O N O M E T R Í A

FACULTAD YBIBLIOTECA

CUBIERTAS DE FACULTAD

PLANTA LIBRE DE FACULTAD

CUBIERTAS DE BIBLIOTECA

FACULTAD

BIBLIOTECA

CAFETERÍA DE BIBLIOTECA

PLANTA LIBRE DEBAJO DE BIBLIOTECA

PLAZAS PUBLICAS/ ESPACIO

PUBLICO

MAQUETA

V I S T A S I N T E R I O R E S

FACULTAD YBIBLIOTECA

VISTA DESDE PATIO INTERNO

FACULTAD YBIBLIOTECA

VISTA DESDE PLANTA LIBRE

FACULTAD YBIBLIOTECA

VISTA DESDE

PLANTA BAJA

FACULTAD YBIBLIOTECA

RECORRIDO DE RAMPA

FACULTAD YBIBLIOTECA

VISTA CELOSIA

FACULTAD YBIBLIOTECA

ESPACIOS DOBLE ALTURA Y DE RECORRIDO LIBRE

Turn static files into dynamic content formats.

Create a flipbook
Issuu converts static files into: digital portfolios, online yearbooks, online catalogs, digital photo albums and more. Sign up and create your flipbook.