Professional Work Samples

Page 1


KATARINA MARJANOVIC

PROFESSIONAL WORK SAMPLES

Artist, designer, educator and explorer. Nature’s resiliency has always inspired me, in design and beyond. Forever a curious person, I’m interested in where architecture and construction have been in order to question current standard practices and where they should be going. My work experiences have allowed me a variety of opportunities, and I am excited to push forward and be challenged. What excites me is being present in the early design phases to create meaningful client relationships, as well as foster creative ideas throughout the project.

I am looking for a firm that will allow me to learn and grow into the role of an architect, and push my boundaries as a designer. If you wish to learn more about me and my work, I would be more than happy to meet and discuss the future of research, construction and design in person.

KATARINA MARJANOVIC

EDUCATION

University of Pennsylvania | M.Arch |2020

Ecological Architecture certificate

Paul Philippe Cret Medal

EXPERIENCE

WRT | Designer

April 2021 - May 2024

217.840.2777 |

University of Illinois| B.S. Architectural Studies | 2014

Junior year abroad in Versailles, France | 2012-2013 Chancellor’s scholar |2010-14

∙ Specialized in new construction of low-income, multi-family housing and led renovations, additions, and master planning in education.

∙ Developed strong construction administration skills overseeing housing projects, including reviewing submittals, RFIs, and maintaining logs.

∙ Conducted site visits, wrote detailed field reports, and participated actively in project meetings. Coordinated directly with sub-consultants throughout all project phases.

∙ Recognized for expertise in graphics, modeling, and rendering.

∙ Sole support staff on two education masterplanning projects, involving direct client communication and organizing focus groups.

DIGSAU | Architectural Intern

May 2019 - August 2019

∙ Worked on programmatic, schematic and design development for a new workforce development building at Bucks County Community College.

∙ Participated in client meetings and maintained direct coordination with structural engineer. Responsible fro overseeing digital and physical modeling efforts for various office projects.

RATIO | Designer

March 2016 - July 2017

∙ Developed and documented construction details, FF&E packages, and contributed to programmatic and design development across diverse sectors including education, government, hospitality, and urban planning projects.

∙ Coordinated seamlessly between multiple large-scale projects, engaging at every level to ensure cohesive project execution and client satisfaction.

∙ Actively contributed to RATIO Women in Architecture, coordinating meetings across offices, securing keynote speakers, and participating in mentorship programs to drive personal and professional growth goals.

BAILEY EDWARD | Junior Designer

August 2014 - March 2016

∙ Managed construction documentation, design development, and detailed drawings.

∙ Responsible for reviewing and revising shop drawings and scheduling to ensure project timelines were met. Demonstrated exceptional coordination skills as the sole office intern, effectively managing drawing sets and facilitating seamless communication between consultants.

INVOLVEMENT

UNIVERSITY OF PENNSYLVANIA | Co-Lecturer

Florencia Pita | Fall 2023, Spring 2023, Spring 2022

∙ Karel Klein | Fall 2021

∙ Bryony Roberts | Spring 2021

ARCHITECTURE DESIGN EDUCATION| Center for

Fall 2022 | Spring 2024

Architecture & Design

The ADE volunteer program aims to provide the building blocks necessary to develop young students’ understanding of architecture and the built environment.

SKILLS

GEORGE SCHOOL MASTERPLAN

WRT | 2022

Roles | Masterplanning, site visits, graphics, presentations, focus group meetings, final report

Campus Building Types | 25 total buildings, academic ~97,000 sf, community ~15,000 sf, residential, athletics, maintenance Background |1893, Quaker tradition as its touchstone and academic excellence at its core Site | 265 acres, forest surrounding site, South Lawn, quad cores, proposed South Meadow Areas of focus |academic, dining, facilities, community, dining

Orchestrated over 22 months, this master plan was developed through an iterative and collaborative process led by the campus master plan Steering Committee, supported by stakeholders from George School’s community, board, and administration. Designed to enhance the learning environment for approximately 550 day and boarding students in grades 9 through 12, the plan prioritizes current community needs while emphasizing long-range planning for an optimal educational experience across generations.

Full report available upon request.

Guided by the Campus Master Plan steering committee, the George School community, board, and administration, the following themes emerged:

• Redefine educational areas to accommodate an updated curriculum.

• Enhance sense of community by upgrading communal areas.

• Elevate boarding by improving residential facilities.

• Refocus sustainability efforts throughout campus.

The Campus Shifts serve to direct the community vision and engage with the campus. The objectives defined were:

» refocus campus, academic and community cores

» strengthen educational opportunities

» expand connections to entire campus

» clarify pedestrian and vehicular circulation

» create a landscape framework

MIAMI COUNTRY DAY SCHOOL MASTERPLAN

WRT | 2022

Roles | Masterplanning, site visit, graphic outputs, presentations, focus group meetings, report

Areas of focus | Campus site, new middle, upper, environmental, dining & athletics, renovation of lower school Constraints | 2 stories or 35’ height, setbacks, flood elevation, zoning approval, adjacent parcels, vehicular stacking & circulation Site | Existing 220,000 gsf, Proposed 330,000 gsf

The Campus Master Plan for Miami Country Day School carefully assessed evolving needs and aligns closely with its mission. Integrated with the school’s Strategic Plan, the Campus Master Plan enhances existing buildings, explores renovation and re-purposing opportunities, fosters a stronger school community through improved physical spaces and connections, empowers learners with new state-of-the-art facilities and collaborative learning environments, and promotes access to nature through innovative outdoor learning and collaboration areas. The site presented several challenges including flood elevation requirements, field reduction considerations, accommodating additional square footage for projected student enrollment, and managing vehicular traffic.

Due to the existing conditions and goals of the strategic plan, several buildings on campus were identified as needing new construction. Middle and upper school lack flexible spaces for project-based learning and interdisciplinary collaboration, and class sizes fall short of the school’s target enrollment. The graphics above illustrate plan configurations for connecting outdoor classrooms with circulation and breakout spaces. New dining, support spaces and integrating connections to the outdoors with resilient landscape planning were also crucial design challenges.

The initial proposed Campus Master Plan incorporated comments from many focus group sessions. The new Upper School building includes collaborative hubs, new classroom spaces, dining, administration, and wellness. The new Middle School focused on small group collaboration and breakout spaces, as well as outdoor connections and classrooms. Making every day on campus feel welcoming was a key goal. Introducing the new Spartan Hub at the main campus entrance as a welcome center created that nexus and provided much needed meeting support for staff.

Exterior view between existing arts center and new upper school
Two views of the new dining space that would also serve as a flexible gathering location
Interior view of new upper school collaboration space with views into classrooms

The updated proposed Campus Master Plan was a result of updating the traffic and site plan to reflect the needed stacking and drop off concerns. This master plan continues to reinforce Miami Country Day’s strategic vision and support the school’s goals.

For the Upper School to contribute all necessary programmatic requirements and relationships between spaces, there were many discussions to accommodate this by reducing the field size. This also allowed for landscape to incorporate the minimum flood elevation requirement in Miami-Dade County of 8.0’.

Assumptions were made in the Initial Plan regarding vehicle stacking and turnaround that required reassessment after board approval. The original long driveway on the site meets the city’s stacking requirements but divides the campus, creating a disconnect between the north and south campus. The challenge was to meet the square footage of the new buildings, consider pedestrian traffic, plan for food service, while also gaining traffic plan approval.

Upper School w/ dining

Middle School

Environmental Center

Spartan Hub Athletic addition

Drop off stacking

DROP OFF STACKING

GARAGE BYPASS

Garage bypass

DROP OFF ZONE

Drop off zone

DROP OFF BYPASS / EXIT

Drop off bypass / exit

TRAFFIC COORDINATOR

Traffic coordinators

CONES

Cones

MARSHALL RIDLEY

WRT | Spring 2021 - Spring 2024 Roles | Construction Documentation (50% CDs - Issued for Construction including detail consultant coordination), Construction Administration (site visits and contractor collaboration)

Mixed Use | 3 stories, 41 units, 57,000 gsf, 2 retail spaces, fitness, community room, Townhomes | 14 buildings, 114 units, 133,000 gsf Unit Types| 92 universal design, 17 accessible, 4 hearing /vision Codes | ICC, ANSI A117.1, UFAS, Fair Housing Act, HUD, VHDA, ADAAG Materials | concrete slab on grade foundations, wood framing, brick, fiber cement, metal

After securing a Choice Neighborhood grant from HUD, Newport News collaborated with WRT to master plan the city, identifying multiple key sites to engage the community and catalyze revitalization efforts. Marshall Ridley represents the second housing project in the area, featuring mixed-use facilities such as a community room, fitness center, and laundry amenities.

Emphasizing variety and fostering a sense of ownership was paramount for users, through diverse materials, colors, and architectural forms in the townhomes. Outdoor connectivity was also prioritized, with the majority of units featuring balconies or porches. The landscape design team integrated a trail that spans the site, enhancing the neighborhood with natural elements and promoting community interaction outdoors.

Ground-up construction was a fantastic learning experience. There were many decisions made with the contractor on-site, as well as extensive coordination with consultants.

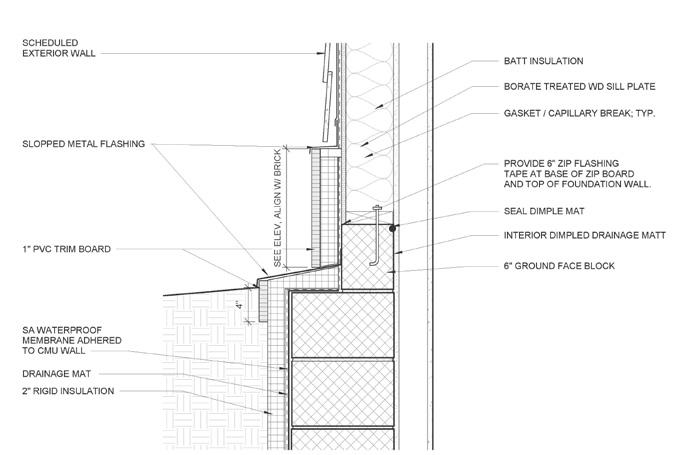
Due to structure and cost, the design team and client decided to transition to thin brick at the roof level to avoid the need for steel at this small section of facade at many of the buildings. The thin brick is the same product as the normal brick but at 0.5-1” thick. The details show the transitions from thin brick to normal brick as well as the thin brick to low roof.

Photo
First iteration brick at low roof detail
First iteration enlarged side elevation at thin brick

UPLANDS II

WRT | Spring 2023 - Spring 2024

Roles | Construction Administration (site visits, submittal & RFI review, contractor collaboration)

Apt Complex | 10 buildings, 150 units, 160,000 gsf

Unit Types| 36 visitable, 16 accessible, 4 hearing /vision

Construction Type | VA 4 stories, VB 3 stories

Materials | concrete slab on grade foundations, wood framing, brick, fiber cement, vinyl siding, composite decking, metal Codes | ICC, ANSI A117.1, UFAS, Fair Housing Act, HUD, ADAAG, Maryland Building Performance Standards, Baltimore City Codes

Comprised of 8 open breezeway-style apartment buildings and 2 townhouse-style buildings, this multi-family housing project is integral to a larger housing development adjacent to the completed Uplands I. My involvement focused on CA, requiring rapid familiarization with project documentation and site complexities. A major site challenge was the topographic change on one side that involved significant challenges, from staircases to the integration of custom metal louvers. As the primary contact for interior issues, I oversaw ADA compliance, kitchen details, and coordinated all sub-consultant conflicts.

3/4"

BUCKS COUNTY COMMUNITY COLLEGE

DIGSAU | Summer 2019

Roles | Schematic Design, Design Development, physical & digital modeling

Buildings | 2 stories, 30,000 gsf

Program | Advanced manufacturing training facility, offices, Construction Type | VB

Materials | concrete slab-on-grade, structural steel framing, composite metal and concrete deck, metal cladding Codes | ICC, ANSI A117.1, IBC, ECC, Wildland-Urban Interface Code

Bucks County Community College is a dynamic institution dedicated to innovative learning and community engagement. The project aimed to expand classroom space and develop a state-of-the-art facility for handson shop and vocational training. The design carefully considered materiality, size, and site constraints, emphasizing physical and visual connections to the existing campus. Inspiration drawn from technology, craftsmanship, and the natural landscape informed the design process throughout. Digital modeling was utilized to assess environmental impacts, while physical models facilitated client visualization. The project progressed seamlessly from schematic design and site planning to detailed Revit drawings, incorporating daylight studies and ongoing client meetings.

Turn static files into dynamic content formats.

Create a flipbook
Issuu converts static files into: digital portfolios, online yearbooks, online catalogs, digital photo albums and more. Sign up and create your flipbook.