Architecture design portfolio

Page 1

PORTFOLIO

KARTHIK H RAO

Email: harishrao20@gmail.com phone: 9481541348 KARTHIK H RAO Reg No: 193701008 Institution: Manipal School of Architecture and Planning, MAHE, Manipal Internship Objective: To gain more experience by working in an architecture firm and to be exposed to more opportunities for me to bring out my full potential as an architecture student. SKILLS AND ABILITIES Computer Knowledge: • AutoCAD 2023 • Autodesk Green Building Studio • Sketchup Pro 2020 • Adobe Photoshop • Revit 2023 • Microsoft Word • Microsoft PowerPoint • Twinmotion • Designbuilder SL.NO CONTENTS PAGE NO. 1 Year 1: 1st Semester: kiosk design 1-2 2 : 2nd Semester Final Design Project: Residence 3 7 3 Year 2: 3rd Semester: Kindergarten Design 8-10 4 : 4th Semester Final Design Project: Resort 11-16 5 Year 3: 5th Semester: Architectural Campus Design 17-22 6 : 6th Semester: Artisans Village: Urban Centre Design 23-26 7 Year 4: 7th Semester: Human Centric Design: Development of Residential High-Rise Towers 27-37
1 SEM 1: DESSERT KIOSK DESIGN
AIM: TO DESIGN A DESSERT/PASTRY KIOSK BESIDE MIT INNOVATION CENTRE, MIT MANIPAL
SITE ALLOTED: 288sqm
KIOSK AREA: 88sqm
PASETRY KIOSK DESIGNED ONLY FOR DISTRIBUTING PASTERIES, AND NOT PREPARING/COOKING THEM • SINCE IT IS A SINGLE USER SPACE, THE USER NEEDS TO MANAGE A GOOD AMOUNT OF CROWD. • ACTIVITIES INCLUDE:
STORING FOOD ITEMS
BILLING THE ORDERS
SERVING THE ORDERS
ENTRY AND EXITING THE KIOSK
GATHERING SPACES • SEATING AREAS FLOOR PLAN FRONT ELEVATION COLD STORAGE DISPLAY CABINETS BILLING COUNTER REQUIREMENTS FOR KIOSK SECTION AA’ A A’ CONCEPT AND FORM DEVELOPMENT: BOOK: • OUTER COVER OF BOOK ACTS AS THE SHEL, AND INNER PAGES AS THE SEATING AREA AND SPACE FOR USER. BROWN THEMEED SHELL TO GIVE A SENSE OF CHOCOLATE PASTERY MATERIALS USED: 1. Concrete slab for exterior shell 2. Granite slab for external seating 3. Curtain walls for covering internal seating

TOP VIEW.

2
KARTHIKS COFFEE ISOMETRIC VIEWS

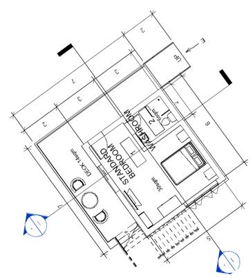
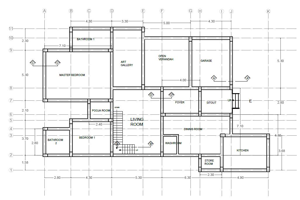
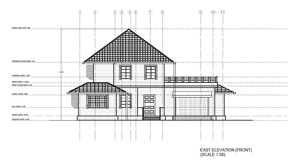
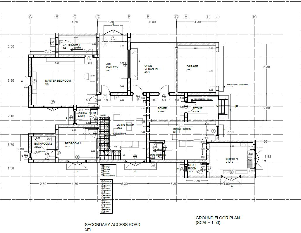
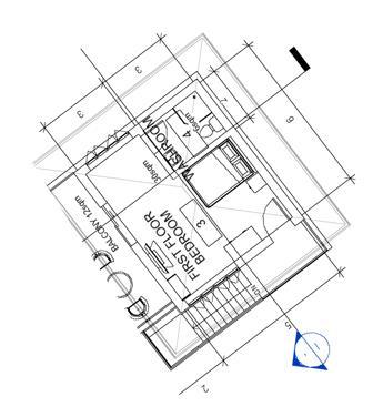
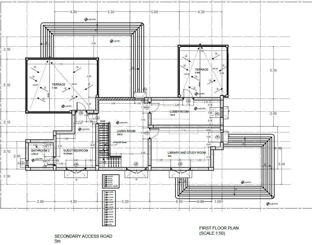
SEM 2: RESIDENTIAL HOUSE DESIGN

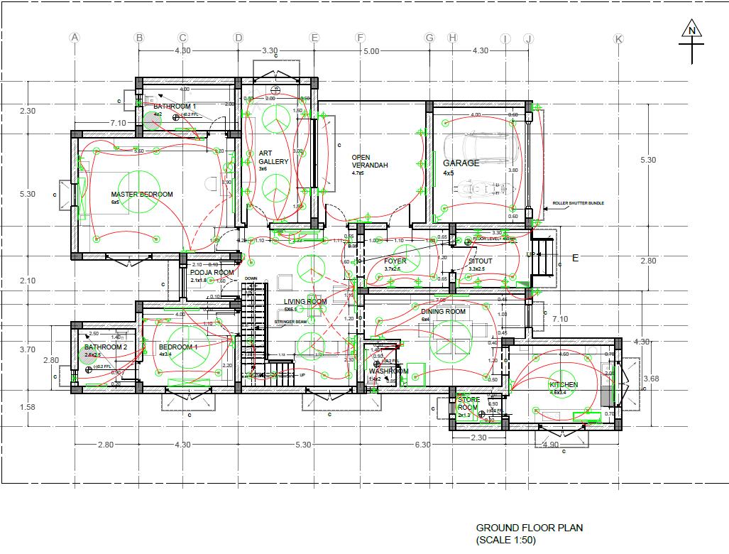
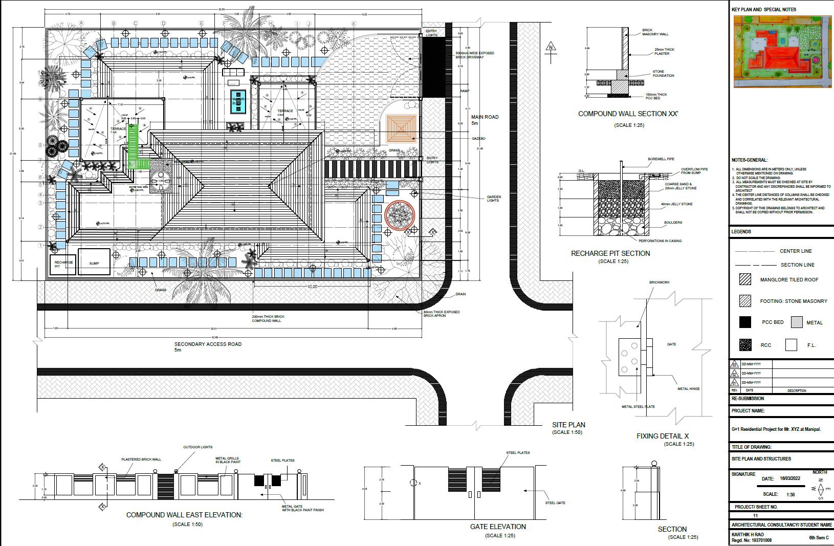
• AIM: TO DESIGN A RESIDENCE HOUSE BESIDE HASTA SHILPA HERITAGE VILLAGE

• LOCATION OF RESIDENCE: NEAR HASTA SHILPA HERITAGE HOUSE CHILDERNS MUSEUM OF TOYS AND PLAYTHINGS, MANIPAL

• SITE AREA: 600sqm

• 60% GROUND COVERAGE

• FAR 1.75

• AREA OF BUILDING DESIGNED: 190.24sqm

• THE CONCEPT THAT WILL BE USED IN THIS DESIGN IS NOT BASED ON THE FORM, BUT MAINLY ON THE SUSTAINABLE AND PASSIVE COOLING STATEGIES INCORPORATED IN THE BUILDING SUCH AS EARTH-AIR TUNNEL.

• CLIMATE: HOT AND HUMID, THE HARSH CONDITIONS HAVE MADE THE SITE A BARREN LAND WITHOUT ANY KIND OF VEGETATION.

EARTH AIR TUNNEL ADVANTAGES:

• THE MAIN ADVANTAGE OF USING EARTH AIR TUNNEL IS THAT IT ACTS AS A NATURAL AIR CONDITION AND THIS WAY, WE CAN BRING ABOUT SUSTAINABILITY OF RESOURCES. (TO REDUCE THE USAGE OF ENERGY RESOUURCES i.e., ELECCTRICITY, THUS IT HELPS TO REDUCE THE COST IN THE ELECTRICITY BILL.

• EASY TO INSTALL

• THERMAL COMFORT IS GUARANTEED, THE COOLING EFFECT IS ENHANCED BY THE USAGE OF MANGLORE TILES ROOF, ANDHRA KADAPPA FLOOR, LARGE WINDOWS, ETC.

• EARTH AIR TUNNELS ARE MORE ADVANTAGEOUS AT THOSE PLACES, WHEN ROOMS THAT ARE DEFICIENT FROM CROSS VENTILATION SINCE THOSE ROOMS MAY BE PRESENT IN THR LEEWARD SIDE OF THE BUILDING.

• EARTH AIR TUNNELS ARE NOT MUCH RECOMMENDED DURING RAINY SEASON AS THE BUILDING ITSELF REMAINS COOLER, HENCE THE AIR INLET AND THE FAN CAN BE CLOSED SO THAT RAINWATER DOES NOT ENTER THE AIR DUCT. LEGENDS:

CONCEPT DEVELOPMENT:

SIT OUT AREA, PROVIDED FROM THE PORCH.

THE WATER POND, IN THE GREEN SPACES HELPS TO BRING IN COOL SURROUNDING AROUND IT.

DINING ROOM GETS BEST VIEW OF THE LANDSCAPE GARDEN.

USE OF PASSIVE COOLING STRATEGIES TO BRING IN THERMAL COMFORT, AND RELEASE THE HOT AIR ACCUMLATED ABOVE THE CEILINGS

EARTH AIR TUNNEL:

• EARTH AIR TUNNEL IS GENERALLY USED IN HOT AND HUMID CLIMATE. FOR COOLING PURPOSES, THE TIUNNEL IS MEANT TO DRAW THE AIR AT LOWER ELEVATIONS (THE AIR PRESENT NEAR THE EARTHS SURFACE) AND DIRECT IT TO THE LIVING SPACE, THIS METHOD HAS BEEN USED FOR CENTURIES IN ASIAN COUNTRIES, FOR NATURAL VENTILATION AND COOLING PURPOSES.

HOW DOES IT WORK?

1. FIRSTLY, WE ALL KNOW BY CONVECTION THAT, THE AIR NEAR THE EARTHS SUFACE AND BELOW IT IS RELATIVELY COOLER THAN THE AIR AT HIGHER LEVELS. SO, IT BEGINS WITH THE AIR INLET AND FILTER.

2. THE AIR INLET DRAWS IN AIR INSIDE AND FILTER TO REMOVE DUST PARTICLES.

3. THEN THE AIR IS DIRECTED TOWARDS THE UNDERGROUND FAN, THAT IS PRESENT 4m BELOW THE GROUND TO BLOW THE GROUND TO BLOW IT FASTER.

4. THE AIR DURING THIS PROCESS, BECOMES COOLER THAT THE AIR PRESENT OUTSIDE, AS IT IS PRESENT BELOW THE EARTHS SURFACE.

5. THEN, THE HIGH SPEED COOL AIR CAN BE RELEASED TO THE WORKING SPACES (ROOMS), WITH THE HELP OF AIR DUCTS AND AIR OUTLETS.

6. NOW, IT IS NECESSARY TO ADD SMALL OPENINGS (VENTILATORS) ON THE OUTER WALLS OF THE BUILDING. THIS IS BECAUSE, THE COOL AIR, THAT COMES OUT OF THEAIR OUTLET BY CONVENTION GETS HEATED UP AND ACCUMULATES ABOVE (NEAR THE CEILING). HENCE, THIS BECOMES A PROBLEM DURING NIGHT TIMES, AS THE HOT AIR BY CONDUCTION HEATS UP THE BUILDING AND THE HEAT GETS DISTRIBUTED EVERYWHERE, ALSO DUE TO HIGH HUMIDITY, THE CLIENT WON'T FEEL COMFORTABLE DURING THE NIGHT TIMES.

3
MERITS: 1.
2.
3.
4.
5.
6.
7.
P: CAR PORCH F: FOYER L: LIVING ROOM D: DINING ROOM K: KITCHEN ST: STORAGE/ UTILITY MB: MASTER BEDROOM B II: BEDROOM II G: GARDEN GS: GREEN SPACE AG: ART GALLERY PR: POOJA ROOM W: WASHROOM MR: MAIN ROAD SAR: SECONDARY ACCESS ROAD
SEPARATE PEDESTRIAN PATHWAY
SMALLER EFFECTIVE DRIVEWAY
DIRECT ENTRY YO FOYER FROM THE PORCH
4
6 5
6
7 VIEWS: INTERIOR, EXTERIOR AND SECTIONS

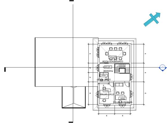
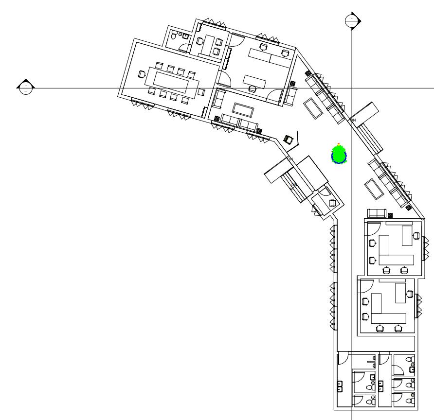
SEM 3: KINDERGARTEN DESIGN

• AIM: TO DESIGN A KINDERGARTEN NEAR MANIPAL LAKE, NEAR CRIKET GROUND, ANANTH NAGAR, MANIPAL.

• TOTAL SITE AREA: 1.17acres (4,734.8sqm)

• CLIMATE: WARM AND HUMID, NEARBY LAKE ADDS MORE HUMIDITY

• THE PROPOSED DESIGN SHOULD BE A LEARNING HABITAT FOR THE YOUNGER CHILDREN, AND FOR ELDER CHILDREN TO GROW UP IN

• THE DESIGN SHOULD FACILITATE A SENSE OF COMMUNITY, WITHIN THE SOCIETY, AND CREATING MORE SOCIAL AND INTERACTION PLACES FOR THE CHILDREN.

• STAKEHOLDERS INCLUDE: TEACHERS, PARENTS, STAFF MEMBERS, PRINCIPAL, KIDS (AGE GROUP 2-5YEARS), VISITORS, ETC.

• STRUCTURE OF EDUCATION: PRECHOOL, LKG, UKG, CRECHE.

8
CONCEPT AND FORM DEVELOPMENT: ELEVATIONS AND SECTIONS: 3D MODEL OF SITE:
9 ROOF DETAILS: ROOF PLAN: LANDSCAPE DETAILS: GROUND FLOOR PLAN:

VIEWS….

10

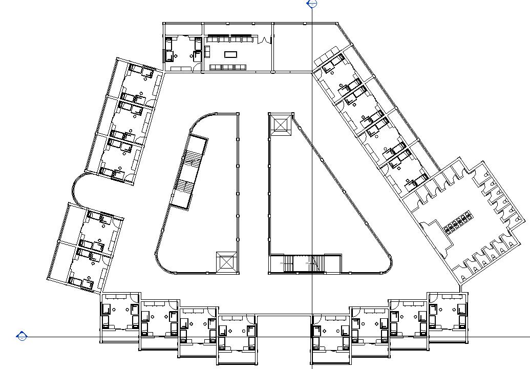
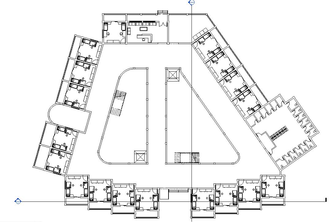
SEM 4: ISLAND RESORT DESIGN

CONCEPT: BIPHILIC DESIGN

Nature in the Space encompasses seven biophilic design patterns:

1.Visual Connection with Nature. A view to elements of nature, living systems and natural processes.

2.Non-Visual Connection with Nature. Auditory, haptic, olfactory, or gustatory stimuli that engender a deliberate and positive reference to nature, living systems or natural processes.

3.Non Rhythmic Sensory Stimuli. Stochastic and ephemeral connections with nature that may be analyzed statistically but may not be predicted precisely.

4.Thermal & Airflow Variability. Subtle changes in air temperature, relative humidity, airflow across the skin, and surface temperatures that mimic natural environments.

5.Presence of Water. A condition that enhances the experience of a place through seeing, hearing or touching water.

6.Dynamic & Diffuse Light. Leverages varying intensities of light and shadow that change over time to create conditions that occur in nature.

7.Connection with Natural Systems. Awareness of natural processes, especially seasonal and temporal changes characteristic of a healthy ecosystem.

11
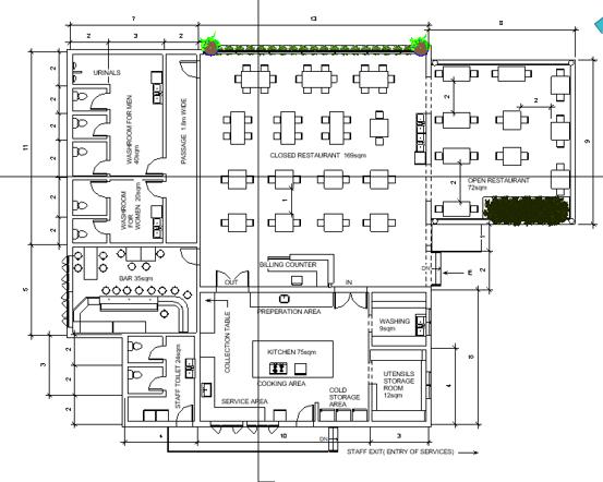
• CONSTRUCTING THE LAYOUT OF A LOBBY, GUEST ROOM, PUBLIC SPACE, AND OVERALL DESIGN BY SELECTING THE COLOUR SCHEME, LIGHTING AND FURNITURE THAT CAN GREATLY AFFECT HOW A GUEST FEELS, AND THE OVERALL AMBIANCE OF THE A SPACE. DESIGNS MUST BE FUNCTIONAL, ATTRACTIVE, AND BENEFICIAL, SATISFYING GREAT EXPERIENCE. • USES: ➢ SOLO ➢ FAMILY ➢ GUESTS ATTENDING FUNCTIONS • PURPOSE: ➢ FOR LEISURE ➢ VACATION ➢ DESTINATION FUNCTION SUCH AS WEDDING ➢ VISITORS THAT ONLY VISIT THE RESTAURANT AS A PART OF THEIR TRIP. SUSTAINABLE PRACTICES: ➢ TRENCHES: ➢ ROOF TOP RAINWATER HARVESTING: ➢ GREY WATER HARVESTING: ➢ MULTCH: ➢ SOLAR PANELS:
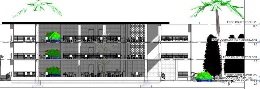
• AIM TO DESIGN A 3 STAR ISLAND RESORT IN KURU ISLAND, MARVANTHE, KUNDAPURA, KARNATAKA LOCATED 60KM AWAY FROM UDUPI • THE CENTRAL PART OF THE ISLAND IS AN AGRICULTURAL LAND, WITH PLENTY OF TREES ACROSS IT. • A PLACE WHERE HISTORY AND ICONIC ELEGANCE MINGLES WITH NEW WORLD SOPHISTICATION • SPREAD ACROSS 4.8 ACRES, AND THE ISLAND OFFERS BREATHTAKING VIEWS OF THE RIVER AND THE BEACH BEYOND ALONG WITH BEAUTIFUL SUNRISES AND SUNSETS. • TYPE: ISLAND RESORT
12 RESORT BUILDING LAYOUTS:
N ADMIN BLOCK INDOOR PLAY: SPA: GYM:
13 RESORT BUILDING LAYOUTS: RESTAURANT AND BAR: STANDARD BEDROOMS: DELUXE BEDROOMS: SUITE BEDROOMS: SWIMMING POOL:
14 STAFF QUARTERS : STANDING CAFE: RESORT BUILDING SECTIONS: ADMIN BLOCK INDOOR PLAY: SPA: GYM: RESTAURANT AND BAR: STANDARD BEDROOMS: DELUXE BEDROOMS: SUITE BEDROOMS: STANDING CAFE: STAFF QUARTERS : SWIMMING POOL:
15 3D MODEL AND INTERIOR VIEW
16
3D MODEL AND VIEWS

• AIM: TO DESIGN AN ARCHITECTURAL SCHOOL/ CAMPUS IN YELAHANKA BANGLORE

• CLIMATE: MODERATE

SITE AREA: 8 ACRES (32,374.8sqm

TOTAL BUILT UP AREA: 11,532sqm

CONCEPT BRIEF: COURTYARD CONCEPT

DUE TO THE USAGE OF COURTYARD IN THE INTERIOR OF BLOCKS, THE STUDENTS CAN USE THE SPACE AS GATHERING SPACES WITHIN

SO, THE ENTIRE CIRCULATION SPACE WITHIN THE BUILDING BLOCKS (MAIN FOCUS ON THE ACADEMIC BLOCK), IN THE EAST WEST DIRECTION, THAT FACILITATES THE PREVALENT SOUTH WEST BREEZE TO VENTILATE IT NATURALLY.

SOUTHERN WALLS OF CLASSROOMS:

• THE PROFILE OF CLASSROOMS CHANGES AT EVERY LEVEL BY BALCONIES TO LEND INDIVIDUALITY TO EACH CLASSROOM CREATING PARTIALLY OPEN TO SKY AND PARTIALLY SHELTERED EXTERNAL SPACES

• GIVES GOOD FOCUS AND VIEW TO THE LAKE

• DUE TO THE USAGE OF COURTYARD IN THE INTERIOR OF BLOCKS, THE

17
SEM 5: ARCHITECTURE CAMPUS DESIGN
:
•TRADITIONAL COURTYARD IN INDIAN ARCHITECTURE,
GIVES PROTECTION FROM EXTREME WEATHER CONDITIONS. •ALSO DESIGNED TO GET INDIRECT SUNLIGHT •AND REDUCE HEAT GAIN AND INCREASE CROSS VENTILATION. •HENCE THESE MAIN ASPECTS WILL BE CONCIDERED FOR THE DESIGN.
•FURTHER TAKING INSPIRATION FROM THE CITY STREETS (CROSSROADS) IN BANGALORE, WHICH HAVE AN ORGANIC NATURE (A SUSTAINED GRID PATTERN)
LOCAL CONSTRUCTION MATERIAL USED:
18

ACADEMIC BLOCK

ADMIN BLOCK

19 CAMPUS BUILDING LAYOUTS:
20
21 STAFF QUARTERS (G+3)
1ST 7TH FLOOR PLAN
HOSTEL BLOCK (G+7) GROUND FLOOR PLAN
INDOOR SPORTS BLOCK:
22
3D MODEL AND VIEWS…….

SEM 6: ARTISAN VILLAGE DESIGN

23
ABOUT THE SITE: Pilikula: • The site is in Mangalore, Karnataka, with a total area of 90131 sq.m or 22.27 acres. Climatic conditions for the site are Hot and Humid.
24
25 3D MODEL AND ISOMETRIC VIEWS
ISOMETRIC
26
3D MODEL AND
VIEWS

SEM 7: MASS HOUSING DESIGN

stone for Exterior

• Very good reflector of heat, making it comfortable to walk on. Also consumes least amount of energy as compared to other flooring material.

• Bioswales are cost effective and more natural solution to traditional drainage construction.

• Bioswales can be part of an area’s natural landscaping, or they can be created to help ensure proper drainage, minimise surface runoff, or capture storm water

Autoclaved Aerated Concrete

Blocks:

• Offers high level of moisture resistance

• These walls give better heat and sound insulations as compared to other wall materials.

27
Kota SITE VIEW:
28
29
11 12 13 16 15 14 17 19 20 21 22 23 24 25 26 32 30 31 11 12 13 16 15 14 17 19 20 21 2 23 24 25 26 32 30 2 31 12 11 13 16 15 14 17 19 20 8 30 DN 11 12 13 16 15 14 17 19 20 21 22 23 24 25 26 32 18 30 27 31 GROUND FLOOR PLAN (SCALE: 1:250) 21 22 23 24 25 26 27 31 32 1 19 FLOOR PLANS: (SCALE ROOF PLAN: (SCALE 1:250) FIRST FLOOR PLAN WITH FURNITURE LAYOUT: (SCALE 1:100) 3BHK TYPE C 3BHK TYPE B 2BHK TYPE A 3BHK TYPE A BEDROOM 3.53*3.41 TOILET 1.52*2.43 TOILET 1.52*2.43 TOILET 2.43*1.52 TOILET 2.43*1.52 TOILET 2.43*1.52 TOILET 2.43*1.52 TOILET 2.3*1.52 TOILET 2.3*1.52 TOILET TOILET 1.52*2.43 TOILET 1.52*2.43 BEDROOM 3.53*3.41 BEDROOM 3.93*3.35 BEDROOM 2.99*6.03 BEDROOM 2.99*5.09 BEDROOM 3.41*4.96 BEDROOM 2.99*4.96 BEDROOM 3.41*4.96 BEDROOM 3.65*3.35 BEDROOM 3.65*3.35 BEDROOM 4.72*3.41 DINING 6*2.49 KITCHEN 4.2*2.42 UTILITY 2.42*1 LOBBY 1.43*3.41 1.52*2.43 LOBBY 1.43*3.41 LOBBY 1.43*3.41 LOBBY 1.43*3.41 LIVIN ROOM 3.41*4.91 LIVING ROOM 7.98*3.41 LIVIN ROOM 3.41*5.79 LIVIN ROOM 3.41*7.49 DINING 6.52*3.23 DINING 5.18*3.23 DINING 4.96*2.49 KITCHEN 2.49*3.29 KITCHEN 3.23*3.29 KITCHEN CUM UTILITY 2.43*4.38 UTILITY 3.29*1,21 UTILITY 2.56*1.46 STAIRCASE 1.2 WIDE LIFT BALCONY 1.5 WIDE DUCT NORTH ELEVATION: FRONT FACADE: SCALE 1:250 FRONT FACADE DETAILS FACADE DETAILS: BRICK JALI WALLS DN 1 1 1 1 36 1 1 1 2 2 45 7 2 1 1 2 1 BASEMENT 1 PLAN: (SCALE 1:250) RAMP GOING DOWN TO BASEMENT 4 3 5 36 7 8 149 2 2 3 4 0 1480 3501 2479 3512 BASEMENT 2 PLAN: (SCALE 1:250) BASEMENT AREA STATEMENTS OF EACH HOUSING TYPES: VERTICAL GARDENS: IVY PLANT ON OUTER WALLS BRICK JALI WALLS 3D MODEL MATERIAL PALLETTE A A ’ 30
10 C F G M P R V 10 D K N Q UP UP UP 1 2 3 4 5 9 10 A B C D E F G H I J K L M N O P Q R S T U V 8 GROUND FLOOR PLAN (SCALE: 1:250) 1 19 FLOOR PLANS: (SCALE 1:250) ROOF PLAN: (SCALE 1:250) FIRST FLOOR PLAN WITH FURNITURE LAYOUT: (SCALE 1:100) 3.35*4.41 DININ ROOM 4.08*2.92 3.35*5.48 LOBBY 2.4*1.5 BEDROO 3.048*4.35 1.4*1.4 2.62*3.048 2.46*1.52 4.45*3,23 .6*1. TOILET 1.4*2.6 TOILET 1.4*2.6 TOILET 1.4*2.6 1.4*2.6 2.46*1.52 UTILITY UTILITY 2.46*1.52 KITCHEN 2.62*3.048 KITCHEN 2.62*3.048 KITCHEN 2.62*3.048 1.4*1.4 1.4*1.4 1.4*1.4 MASTER 3.35*4.41 3.35*4.41 MASTER BED 3.35*4.41 LIVIN ROOM 3.35*5.48 LIVIN ROOM 3.35*5.48 LIVIN ROOM 3.35*5.48 BALCONY BALCONY 1.5*3.26 BALCONY 1.5*3.26 LOBBY 2.4*1.5 LOBBY 2.4*1.5 LOBBY 2.4*1.5 DININ ROOM DININ ROOM 4.08*2.92 DININ ROOM BEDROOM 4.45*3,23 BEDROOM 4.45*3,23 BEDROOM 4.45*3,23 BEDROO 3.048*4.35 BEDROO 3.048*4.35 BEDROO 2.6*1.4 2.6*1.4 TOILET 2.6*1.4 BEDROOM 3*4.5 BEDROOM 3*4.5 BEDROOM 3*4.5 BEDROOM 3*4.5 3*4.5 BEDROOM 3*4.5 BEDROOM BEDROOM 3*4.5 UTILITY 3*1.5 UTILITY 3*1.5 UTILITY 3*1.5 KITCHEN 3*2.4 KITCHEN 3*2.4 3*2.4 KITCHEN 3*2.4 DINING 3*3 DINING 3*3 3*3 DINING LIVIN ROOM 3.35*5.6 LIVIN ROOM 3.35*5.6 3.35*5.6 LIVIN ROOM 3.35*5.6 LOBBY LOBBY 1.98*1.73 1.98*1.73 LOBBY 1.98*1.73 TOILET 1.4*2 TOILET 1.4*2.6 TOILET TOILET 1.4*2.6 TOILET 2.1*1.2 TOILET 2.1*1.2 TOILET TOILET .2 FIRE TOWER 3.2*6.48 1.6 WIDE STAIRS STAIRCASE STAIRCASE 1.4 WIDE STAIRS LIF SHAFT LIF SHAFT 1.4M WIDE STAIRS DUCT TOILET TOILET DUCT TOILET DUCT PODIUM PODIUM PODIUM PODIUM NORTH ELEVATION: FRONT FACADE: SCALE 1:250 FACADE DETAILS: BRICK JALI WALLS 10 3C G O R U V BASEMENT 1 PLAN: (SCALE 1:250) 10 B E G O Q U BASEMENT 2 PLAN: (SCALE 1:250) AREA STATEMENTS OF EACH HOUSING TYPES: MATERIAL PALLETTE A A’ 31
DN KIDS INDOOR PLAY AREA WITH FURNITURE LAYOUT (SCALE 1:100) CLUBHOUSE, WITH FURNITURE LAYOUT (SCALE 1:100) iNDOOR PLAY 100 SQM CLUBHOUSE 300 SQM OUTDOOR PLAY TT COURT TOILETS DRESSIN ROOMS WASHROOMS LOBBY CUM CAROM PLA ROOM BADMINTON COURT POOL EQUIPMENT ROOM TOILETS WOMENS DRESSIN ROOM WOMEN SHOWER ROOM MENS SHOWER ROOM MENS DRESSIN ROOM FRONT ELEVATION: SOUTH: (SCALE 1:250) FRONT ELEVATION: SOUTH: (SCALE 1:250) DN KIDS INDOOR PLAY AREA WITH FURNITURE LAYOUT (SCALE 1:100) 1 2 3 C A B 2 B C 1 2 3 3 A B D CLUBHOUSE, WITH FURNITURE LAYOUT (SCALE 1:100) 1 A C B D 3D MODEL 3D MODEL MATERIAL PALLETTE MATERIAL PALLETTE B B’ A A’ A A’ B B’ 32

COMMERCIAL BLOCK

GROUND FLOOR: SUPERMARKET (SCALE 1:100)

COMMERCIAL FIRST FLOOR: COURT (SCALE 1:100)

COMMERCIAL BLOCK

SECOND FLOOR: OFFICE SPACE (SCALE 1:100)

COMMERCIAL BLOCK ROOF PLAN (SCALE 1:100)

DN
PRODUCT STOR ROOM WOMEN WASHROOM SUPERMARKET 500 TROLLEY STORAGE AREA SEAT IN TOTAL BILLING COUNTER STOR ROOM WASHROOM ENTRANCE LOBBY ENTRANCE LOBBY WASHROOM OFFICE WORKSTATIO AREA OFFICE CAFE ROOM OFFICE CONFERENCE ROOM DIRECTORS CABIN WAITIN AREA COMMERCIAL BLOCK GROUND FLOOR: SUPERMARKET (SCALE 1:100) 4 3 1 2 A D C B 4 3 1 2 A D C B 4 3 1 2 A D C B 2 FRONT ELEVATION: COMMERCIAL BLOCK: SCALE: 1:250 DN
3D MODEL PARAMETRIC EXTRUDED BALCONY, SUPPORTED BY COLUMNS PERFORATIONS INTEGRATED IN ROOF TO PROVIDE SHADE MATERIAL PALLETTE A B A A A’ A’ A’ B B B’ B’ B’ 33
CLUBHOUSE, WITH FURNITURE LAYOUT (SCALE 1:100) FIRSTFLOOR PLINTH LVL GROUND LV SECOND FLOOR ROOF LVL 10 COMMERCIAL BLOCK SECTION AA': SCALE 1:100 0 FIRSTFLOOR PLINTH LVL 1 GROUND LVL SECOND FLOOR ROOF LVL 10 COMMERCIAL BLOCK SECTION BB': SCALE 1:100 0 PLINTH LEVEL GROUDLEVEL CLUBHOUSE SECTION AA':SCALE 1:100 GROUD LEVEL 0 PLINTH LEVEL CLUBHOUSE SECTION BB': SCALE 1:100 GROUND LEVEL KIDS PLAY SECTION AA':SCALE 1:100 GROUND LEVEL 0 KIDS PLAY SECTION BB': SCALE 1:100 0.00 PLINTH LEVEL GROUND LEV 0 5L FIRSTFLOOR 3.50 SECOND FLOOR 6.50 THIRD FLOOR 9.50 FORTH FLOOR 12.50 FIFTHFLOOR 15.50 SIXTH FLOOR 18.50 SEVENTH FLOOR 21.50 EIGTH FLOOR 24.50 NINTH FLOOR 27.50 TENTH FLOOR 30.50 ELEVENTH FLOOR 33.50 TWELTH FLOOR 36.50 THIRTEENTH FLOOR 39.50 FORTEENTH FLOOR 42.50 FIFTEENTH FLOOR 45.50 SIXTEENTH FLOOR 48.50 SEVENTEENTH FLOOR 51.50 EIGTHEENTH FLOOR 54.50 NINETEENTH FLOOR 57.50 PARAPET LVL 20TH F O1O4R 60.50 ROOF LEVEL 63.50 17 19 20 21 22 23 24 25 26 32 18 30 27 31 BASEMENT LEVE 1 2.75 FOOTING 25.00 BASEMENT LEVE 5.50 39 41 42 43 44 45 46 47 48 50 40 51 49 52 COMMERCIAL BLOCK GROUND FLOOR: SUPERMARKET (SCALE 1:100) 4 UNITBUILDING SECTION BB': SCALE 1:100 KIDS INDOOR PLAY AREA WITH FURNITURE LAYOUT (SCALE 1:100) 19 22 23 32 18 30 27 31 12 11 13 16 GROUND FLOOR PLAN (SCALE: 1:250) 1 19 FLOOR PLANS: (SCALE 1:250) ROOF PLAN: (SCALE 1:250) CURTAIN WALL DETAILS SCALE: 1:50 SKYLIGHT DETAILS (SCALE 1:100) PILE FOUNDATION DETAILS: (SCALE 1:50) 34

ROOF LEVEL 63.50

PARAPET LVL 20TH LO1O4R 60.50

NINETEENTH FLOOR 57.50

EIGTHEENTH FLOOR 54.50

SEVENTEENTH FLOOR 51.50

SIXTEENTH FLOOR 48.50

FIFTEENTH FLOOR 45.50

FORTEENTH FLOOR 42.50

THIRTEENTH FLOOR 39.50

TWELTH FLOOR 36.50

ELEVENTH FLOOR 33.50

TENTH FLOOR 30.50

NINTH FLOOR 27.50

EIGTH FLOOR 24.50

SEVENTH FLOOR 21.50

SIXTH FLOOR 18.50

FIFTHFLOOR 15.50

FORTH FLOOR 12.50

THIRD FLOOR 9.50

SECOND FLOOR 6.50

FIRSTFLOOR 3.50

GROUND LEVEL 0.00

PLINTH LEVEL 0.50

A B C D E F G H J K L M N O P Q R S T U V BASEMENT LVL 2.75 FOOTING 25.00 BASEMENT LVL 5.50 33 34 35 36 37 38 39 40 41 42 43 44 45 46 47 48 49 50 51 52 53 54 8 UNITBUILDING SECTION BB': SCALE 1:100 PILE FOUNDATION DETAILS (SCALE 1:50) TIMBER DOOR DETAILS (SCALE 1:50) TIMBER WINDOW DETAILS: (SCALE 1:50) BRICK JALI WALL PATTERN TIMBER WINDOW ISOMETRIC DETAILS: SLOPED PITCH ROOF WITH MANGLORE TILE DETAILS (SCALE 1:50) RAIN WATER MANAGEMENT: ROOF DRAIN PIPE DETAILS: (SCALE 1:20) 35
KARTHIK H RAO 193701008 VII SEM C 02-11-2022 ADD VII SITE: DIGITAL 3D MODEL, SECTION AND ELEVATIONS PAGE NO. 10 3D FRONT VIEW: N SIDE OF SITE 3D SIDE VIEW: E SIDE OF SITE 3D BACK VIEW: S SIDE OF SITE 3D SIDE VIEW: W SIDE OF SITE SITE ELEVATION: S SIDE OF SITE (SCALE 1:500) SITE ELEVATION: W SIDE OF SITE (SCALE 1:500) SITE SECTION AA’: N S SIDE OF SITE (SCALE 1:500) SITE SECTION BB’: W E SIDE OF SITE (SCALE 1:500) 4 UNIT LAYOUT FRONT FAÇADE AESTHETICS SITE AND SURROUNDING 3D VIEW SITE MODEL 36
KARTHIK H RAO 193701008 VII SEM C 02-11-2022 ADD VII BUILDING VIEWS: INTERIOR AND EXTERIOR PAGE NO. 3D VIEWS OF 4 UNIT BUILDING: 3D VIEWS OF COMMERCIAL BLOCK: 3D VIEWS OF 8 UNIT BUILDING AND KIDS PLAYSCHOOL: 3D VIEWS OF CLUBHOUSE: THANK YOU…… 11 Exterior views of tower 1: 4 unit layout Interior: kitchen view Interior living room view 3D model Interior: Passage View Exterior: View of Jali Wall Exterior: Commercial Block Front View Interior: Restaurant View Interior: Gym Room Interior: Office view Interior: Supermarket View Exterior: Clubhouse View Exterior: Swimming Pool View Interior: Indoor Sports Arena Interior: Supermarket View Interior: Badminton Court View 3D model 3D model 3D model Exterior: Jali wall Interior: Kids Indoor Play room Interior: Kids Indoor Play room Exterior: Kids Indoor Play room Exterior: Kids Indoor Play room Exterior: Kids Indoor Play room 37
Semester Projects 2019 2022 harishrao20@gmail.com / 9481541348

Turn static files into dynamic content formats.

Create a flipbook
Issuu converts static files into: digital portfolios, online yearbooks, online catalogs, digital photo albums and more. Sign up and create your flipbook.