LIBRETO INTERIORISMO

Page 1

14. ANTEPROYECTO

CORTE LONGITUDINAL

CORTE TRANSVERSAL

14. ANTEPROYECTO

PLANTA DE CONJUNTO

15. INTERIORISMO

RECEPCION

CONCEPTO

La recepción es el primer encuentro que tiene el usuario al proyecto, por lo que se debe proyectar cierta elegancia y transmitir conformidad y tranquilidad. El color café al ser un tono cálido, transmite cierta conformidad y tranquilidad, ser recibido por este tipo de ambiente hace que se pueda disfrutar como un ambiente muy hogareño. En Co-Living NabiMara hacerte sentir como en casa es nuestra prioridad

나비 ຜເສືອ ततली co-living nabimara
ACENTOS

LAMPARA SPOT DIRIGIBLE |

ILLUX 1 FOCO

ILUMINACION Y MOBILIARIO

Proveedor: Home Depot

11cm X 5cm

SILLA DE OFICINA CON BRAZOS Y BASE CON RUEDAS METÁLICAS

Proveedor: Minima

A:54cm L:61cm H: 119cm

RECEPCION CIRCULAR

Proveedor: Soluciones

empresariales regiomontanas A.60cm L.300cm H.110cm

1 2 3 나비 ຜເສືອ ततली co-living nabimara

ACABADOS

Marca: AGT

Color: 00391

Superficie: STMT

Espesor: 18 mm

Largo: 2800 mm

Ancho: 1220 mm

MARCA: CASAMIA

PISO PIETRA GRANITO SPC CALIZA

BEIGE: acabado de aspecto natural con vetas de granito beige.

TAMAÑO PIEZA: 810 x 400 x 6.5mm / /

1200 x 600 x 7.5

(INCLUYE 1 MM DE BAJO PISO)

CAPA DE DESGASTE: 0,55 MM, IDEAL PARA USO RESIDENCIAL, TIENDAS

COMERCIALES O DEPARTAMENTALES

CON CAPA PROTECTORA RESISTENTE A LOS RAYOS UV

MARCA: CUBRICA

Formato1.22 x 2.44m (4ft x 8ft)

Espesores de línea

6 mm , 15 mm y 18 mm. *

Herreria revestido con pintura acabado de madera

Marca: Varathane

Tamaño:946 ml (Paquete de 1)

Dimensiones del artículo

Largo x ancho x alto

10 x 6 x 13 centimeters

Peso del producto

1,5 Kilogramos

B PISO CALIZA BEIGE C A MURO MATT STONE BEIGE D
MADERA NOGAL IRLANDES HERRERIA ACABADO MADERA

PLANTA ARQUITECTONICA

2 3 1 A B
나비 ຜເສືອ ततली co-living nabimara 1 1 1 1 1 1 1 A

ELEVACION

A 3 B 1 1 1 나비 ຜເສືອ ततली co-living nabimara

ELEVACION

3 A B 나비 ຜເສືອ ततली co-living nabimara

AXONOMETRIA

RECEPCION CIRCULAR

SILLA DE OFICINA PLAFÓN CELOSIA DE MADERA
A A B 3 2 2 나비 ຜເສືອ ततली co-living nabimara
CELOSIA DE METAL

RENDERS

1077 41 M2 OR ENTAC ON: LOCALIZACION CROQU S DE UB CACION FRAY LU S DE LEÓN 734 ANÁHUAC, 66450 SAN NICOLÁS DE LOS GARZA, N L AREA: S MBOLOGIA: NOMENCLATURA PROYECTO ARQUITECTONICO CO-HOUSING MULTIIFAMILIAR PROYECTO CO-LIVING NABIMARA ESTUD ANTES KARLA EL ZABETH GARZA SALAS GLOR A ILEANA MENDOZA MONS VAIS CATEDRATICO ARQ JONATHAN ENR QUE FLORES PONZ O F RMA DE ENTREGA FECHA: ESCALA: INTERIORISMO IN-01 02 No PLANO 29 ABR L/2024 ESC 1 200 REV S ONES CR TICA 1 26/04 24 RECEPC ÓN ENTREGA 29/04 24 나비 ຜເສືອ ततली co-living nabimara

COMEDOR

CONCEPTO

El comedor es un espacio de convivencia entre los alumnos. En el Co-Living NabiMara, buscamos ofrecer una experiencia de confort al usuario, utilizando tonos neutros con un toque de color que represente la universidad Esto con el fin de que el ambiente se sienta como en su propio hogar

나비 ຜເສືອ ततली co-living nabimara
ACENTOS

CANDIL DE TECHO

QUOR | SAKURA 1 FOCO

Proveedor:

Galeria Comfort

70cm

ILUMINACION Y MOBILIARIO

CANDIL DE TECHO QUOR | SAKURA 8 LUCES

Proveedor:

Galeria Comfort 134cm

SILLA BRUM TORONTO

Proveedor: Liverpool

Marca Brum

A.57cm L.62cm H.83cm

BANCO DE BAR TELA AZUL OSCURO LAO

Proveedor: Tamarindo

H:97 cm L: 47 cm A: 53 cm

MESA DE COMEDOR A LA ALTURA DE MOSTRADOR TORJIN MESA TAMARINDO GOVE DE MADERA

Proveedor: Ashley Furniture Homestore

A.183cm L.40cm H.91cm

PREELABORADO DE EUCALIPTO BLUEBELL & CO ESPLENDA

Proveedor: Liverpool

Proveedor: Home Depot 11cm X 5cm

Proveedor: Liverpool

Marca Tamarindo

A. 120cm L.240cm H. 75cm

1
2 3 4 5 6 8 LAMPARA SPOT DIRIGIBLE | ILLUX 1 FOCO
7 나비 ຜເສືອ ततली co-living nabimara

ACABADOS

Marca: AGT

Color: 00391

Superficie: STMT

Espesor: 18 mm

Largo: 2800 mm

Ancho: 1220 mm

MARCA: CASAMIA

PISO PIETRA GRANITO SPC CALIZA

BEIGE: acabado de aspecto natural con vetas de granito beige.

TAMAÑO PIEZA: 810 x 400 x 6.5mm

/ / 1200 x 600 x 7.5

(INCLUYE 1 MM DE BAJO PISO)

CAPA DE DESGASTE: 0,55 MM, IDEAL PARA USO RESIDENCIAL, TIENDAS COMERCIALES O DEPARTAMENTALES

CON CAPA PROTECTORA

RESISTENTE A LOS RAYOS UV.

MARCA: CUBRICA

Formato1.22 x 2.44m (4ft x 8ft)

Espesores de línea

6 mm , 15 mm y 18 mm. *

HERRERIA REVESTIDO

CON PINTURA ACABADO DE MADERA

Marca: Varathane

Tamaño:946 ml (Paquete de 1)

Dimensiones del artículo

Largo x ancho x alto

10 x 6 x 13 centimeters

Peso del producto

1,5 Kilogramos

MARCA: CASAMIA

TAPIZ

COMPOSICIÓN: 100% VISCOSA. HECHO A MANO HECHO EN LA INDIA

B PISO CALIZA BEIGE C A MURO MATT STONE BEIGE D MADERA NOGAL IRLANDES
HERRERIA ACABADO MADERA
E TAPIZ VELVET TWILIGHT

PLANTA ARQUITECTONICA

5 6 4 3 2 1 8 B 나비 ຜເສືອ ततली co-living nabimara

ELEVACION

3 8 6 2 7 A B 나비 ຜເສືອ ततली co-living nabimara

ELEVACION

C 4 5 1 7 B 8 3 6 나비 ຜເສືອ ततली co-living nabimara

AXONOMETRIA

LOSA DE ENTREPISO

SPOT DIRIGIBLE
MURO REVESTIDO DE LINOLEO MURO CON ARCOS DECORATIVOS
SPOT EMPOTRABLE DE PISO 1 8 2 6 4 5 3 7 C 나비 ຜເສືອ ततली co-living nabimara
CELOSIA DECORATIVA DE MADERA

RENDERS

INTERIORISMO 1077 41 M2 OR ENTAC ON: LOCAL ZAC ON: CROQU S DE UB CAC ON FRAY LU S DE LEÓN 734, ANÁHUAC 66450 SAN N COLÁS DE LOS GARZA, N L AREA: SIMBOLOG A: NOMENCLATURA: PROYECTO ARQUITECTON CO CO-HOUSING MULTIIFAMILIAR PROYECTO CO-LIVING NABIMARA ESTUDIANTES: KARLA ELIZABETH GARZA SALAS GLORIA ILEANA MENDOZA MONSIVAIS CATEDRAT CO: ARQ JONATHAN ENR QUE FLORES PONZIO FIRMA DE ENTREGA FECHA ESCALA: IN-01 01 CLAVE No PLANO 26 ABRIL/2024 ESC: 1:200 REVIS ONES CRITICA 1 26 04 24 COC NA ENTREGA 29 04 24 나비 ຜເສືອ ततली co-living nabimara

COCINA

CONCEPTO

La cocina es un espacio de convivencia entre los alumnos. En el Co-Living NabiMara, buscamos ofrecer una experiencia de confort al usuario, utilizando tonos neutros con un toque de color que represente universidad. Esto con el fin de el ambiente se sienta como propio hogar.

나비 ຜເສືອ ततली co-living nabimara
ACENTOS

ESTUFA DUAL | SMEG

Proveedor: Kitch

A.90cm L.60cm

ILUMINACION Y MOBILIARIO

REFRIGERADOR FRENCH DOOR |

Proveedor: Palacio de Hierro

L.92cm A.90cm H.177cm

Proveedor: Kitch

Proveedor: Tamarindo

Proveedor: Liverpool Marca Brandtrendy

A.75cm L.45cm H.22cm

LAMPARA SPOT DIRIGIBLE | ILLUX 1 FOCO

Proveedor: Home Depot 11cm X 5cm

1
LG
BRANDTRENDY 2 3
TARJA UNA TINA |
8
O
QUOR | SAKURA 1 FOCO Proveedor:
AZUL
6
Galeria Comfort 70cm
BANCO DE BAR TELA
OSCURO LAO
LÁMPARA LINEAL TIRA LED 7
H:97 cm L: 47 cm A: 53 cm
LAVAVAJILLAS | SMEG
L.60cm
5 나비 ຜເສືອ ततली co-living nabimara
H.86cm
A.60cm

GABINETE SUPERIOR DE

CARPINTERIA

GABINETE SUPERIOR CON

MUEBLE PARA

A B C D

DOS PUERTAS |

ESTRUCTURA DE MDP

Medidas:

H.66cm L.70cm A.56cm

UNA PUERTA ABATIBLE | ESTRUCTURA DE MDP

REFRIGERADOR |

ESTRUCTURA DE MDP

Medidas: H.66cm L.96cm A.56cm

ESTANTE DE COCINA |

ESTRUCTURA DE MDP

Medidas:

H.66cm L.262cm A.56cm

ISLA DE COCINA |

ESTRUCTURA DE MDP, CUBIERTA DE GRANITO

Medidas: H.225cm L.90cm A.92cm

Medidas: H.108cm L.2.50cm A.100cm

GABINETE BAJO DE DOS

PUERTAS | ESTRUCTURA DE MDP, CUBIERTA DE GRANITO

Medidas: H.90cm L.100cm A.60cm

GABINETE BAJO DE DOS

PUERTAS | ESTRUCTURA DE MDP, CUBIERTA DE GRANITO

Medidas: H.90cm L.100cm A.60cm

E F F
나비 ຜເສືອ ततली co-living nabimara

PLANTA ARQUITECTONICA

나비 ຜເສືອ ततली co-living nabimara 6 6 3 4 2 1 D D 8 9

ELEVACION

1 2 4 5 7 8 D C 나비 ຜເສືອ ततली co-living nabimara A

LOSA DE ENTREPISO

AXONOMETRIA

MURO REVESTIDO DE LINOLEO

TIRAS LED PARA GABINETES

MUEBLE PARA REFRIGERADOR

CANDIL SINGULAR PARA ISLA

ESTANTE DE COCINA

GABINETE SUPERIOR DE UNA PUERTA

GABINETE BAJO DE DOS PUERTAS

SPOT DIRIGIBLE

SUELO REVESTIDO CON PORCELANATO

1 2 3 4 7 9 8 6 5
ISLA DE COCINA
나비 ຜເສືອ ततली co-living nabimara

RENDERS

ACABADOS

Marca: AGT

Color: 00391

Superficie: STMT

Espesor: 18 mm

Largo: 2800 mm

Ancho: 1220 mm

MARCA: CASAMIA

PISO PIETRA GRANITO SPC CALIZA

BEIGE: acabado de aspecto natural con vetas de granito beige.

TAMAÑO PIEZA: 810 x 400 x 6.5mm / /

1200 x 600 x 7.5

(INCLUYE 1 MM DE BAJO PISO)

CAPA DE DESGASTE: 0,55 MM, IDEAL PARA USO RESIDENCIAL, TIENDAS

COMERCIALES O DEPARTAMENTALES

CON CAPA PROTECTORA RESISTENTE A LOS RAYOS UV

MARCA: CUBRICA

Formato1.22 x 2.44m (4ft x 8ft)

Espesores de línea

6 mm , 15 mm y 18 mm. *

MARCA: GRANITO & CUARZO

Dimensiones de la placa (variable)

Altura: 2.90mts

Ancho: 1.90mts

Espesor: 2cms

B PISO CALIZA BEIGE C A MURO MATT STONE BEIGE D
MADERA NOGAL IRLANDES GRANITO BLUE PEARL
INTERIORISMO 1077 41 M2 OR ENTAC ON: LOCAL ZAC ON: CROQU S DE UB CAC ON FRAY LU S DE LEÓN 734, ANÁHUAC 66450 SAN N COLÁS DE LOS GARZA, N L AREA: SIMBOLOG A: NOMENCLATURA: PROYECTO ARQUITECTON CO CO-HOUSING MULTIIFAMILIAR PROYECTO CO-LIVING NABIMARA ESTUDIANTES: KARLA ELIZABETH GARZA SALAS GLORIA ILEANA MENDOZA MONSIVAIS CATEDRAT CO: ARQ JONATHAN ENR QUE FLORES PONZIO FIRMA DE ENTREGA FECHA ESCALA: IN-02 02 CLAVE No PLANO 03 MAYO/2024 ESC: 1:200 REVIS ONES COC NA ENTREGA 03 05 2024 나비 ຜເສືອ ततली co-living nabimara

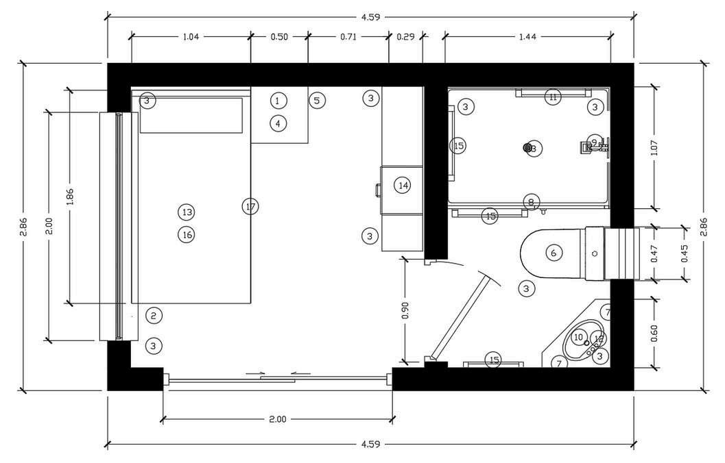
RECAMARA TIPO A

CONCEPTO

Nuestros dormitorios de tipo A están diseñados como espacios de relajación y accesibilidad para los alumnos. En Co-Living NabiMara, nos esforzamos por brindar una experiencia de confort excepcional, utilizando tonos neutros realzados con toques de color que reflejan la identidad de la universidad. Todo esto está pensado para que nuestros residentes se sientan verdaderamente como en casa.

나비 ຜເສືອ ततली co-living nabimara
ACENTOS

SKRUVBY | MESA LATERAL

Medidas:

H 58cm L 40cm A 32cm

Ikea

SANITARIO ONE PIECE FERRARA |

Medidas:

H.68.5cm L.69cm

A.39cm

Sodimac

ILUMINACION Y MOBILIARIO

PREELABORADO DE SYNGONIUM

Medidas:

H.43cm A.16cm Liverpool

LETTAN ESPEJO |

Medidas: H.94cm A.61cm

Ikea

SPOT LED EMPOTRABLE

CIRCULAR | JUST HOME COLLECTION

Medidas: H 9cm L 4 5cm A 16 9cm

Sodimac

MAMPARA BAÑO DESLIZABLE |

Medidas:

H.190cm L.8mm A.150cm

Sodimac

REGADERA CIRCULAR |

LÁMPARA DE MESA | JUST HOME COLLECTION

Medidas:

H 30cm L 55cm A 30cm

Sodimac

LAVABO ESQUINERO EMPOTRABLE |

BARRA CURVA CON JABONERA CROMO |

REPISA FLOTANTE |

Medidas:

H.25cm L.5mm A.25cm

Sodimac

Medidas: H 16 5cm L 55cm

A.40cm

Flowell

Medidas:

H.3.6cm L.23cm

A.60cm

Sodimac

Medidas: H 40cm L 55cm

A.60cm

Sodimac

MEZCLADORA PARA LAVABO MONOMANDO |

Medidas: H 5cm L 18 5cm A 12cm

Rugo

1 2 3 4 5 6 7 8 9 10 11 12
나비 ຜເສືອ ततली co-living nabimara

DEANLOW PLATFORM BED |

Medidas:

H.38cm L.197cm A.104cm

Ashley Furniture Homestore

ILUMINACION Y MOBILIARIO

BASE PARA CAMA INDIVIDUAL Medidas: H.28cm L.190cm A.100cm

PAX / GRIMO | CLOSET

Medidas:

H.236cm L.200cm A.66cm Ikea

16

COLCHÓN AMÉRICA

INVICTUS |

17

VENTILADOR DE TECHO | SPRINT

Medidas: H.36cm L.76.2cm A.76.2cm Sodimac

|

Medidas:

L.70cm

Helvex

나비 ຜເສືອ ततली co-living nabimara 14 15
Liverpool
BARRA DE SEGURIDAD HELVEX B-700-S
13

ACABADOS

Marca: AGT

Color: 00391

Superficie: STMT

Espesor: 18 mm

Largo: 2800 mm

Ancho: 1220 mm

MARCA: CASAMIA

PISO PIETRA GRANITO SPC CALIZA

BEIGE: acabado de aspecto natural con vetas de granito beige.

TAMAÑO PIEZA: 810 x 400 x 6.5mm / /

1200 x 600 x 7.5

(INCLUYE 1 MM DE BAJO PISO)

CAPA DE DESGASTE: 0,55 MM, IDEAL PARA USO RESIDENCIAL, TIENDAS

COMERCIALES O DEPARTAMENTALES

CON CAPA PROTECTORA RESISTENTE A LOS RAYOS UV

MARCA: GIZIR

Formato118 x 18

Espesores de línea

18 mm , 118 mm y 2800 mm.

MARCA: INTERCERAMIC

Acabado brillante en formato

7.5x30 cms, estilo solido, color azul. Para uso en pared

B PISO CALIZA BEIGE C A MURO MATT STONE BEIGE D
LAMBRIN AZULEJO

PLANTA ARQUITECTONICA

나비 ຜເສືອ ततली co-living nabimara 1 2 4 5 6 8 9 10 11 11 13 14 15 15

ELEVACION

나비 ຜເສືອ ततली co-living nabimara 1 2 4 5 6 8 10 11 13 14

RENDERS

나비 ຜເສືອ ततली co-living nabimara

AXONOMETRIA

LOSA DE ENTREPISO ENTRADA

나비 ຜເສືອ ततली co-living nabimara 1 2 3 5 6 7 8 9 10 11 12 15 13 14 16
AL BAÑO COMPLETO
A RECAMARA CAMA INDIVIDUAL REVESTIMIENTO LAMBRIN DE MADERA SPOT DIRIGIBLE 4 17
ENTRADA
INTERIORISMO 1077 41 M2 나비 ຜເສືອ ततली co-living nabimara OR ENTAC ON: LOCAL ZAC ON: CROQU S DE UB CAC ON FRAY LU S DE LEÓN 734, ANÁHUAC 66450 SAN N COLÁS DE LOS GARZA, N L AREA: SIMBOLOG A: NOMENCLATURA: PROYECTO ARQUITECTON CO CO-HOUSING MULTIIFAMILIAR PROYECTO CO-LIVING NABIMARA ESTUDIANTES: KARLA ELIZABETH GARZA SALAS GLORIA ILEANA MENDOZA MONSIVAIS CATEDRAT CO: ARQ JONATHAN ENR QUE FLORES PONZIO FIRMA DE ENTREGA FECHA ESCALA: IN-03 02 CLAVE No PLANO 06 MAYO/2024 ESC: 1:200 REVIS ONES RECÁMARA T PO 1 CRÍTICA 2 08 05 2024

CARPINTERIA MUEBLE DE LAVABO ESQUINERO

CARPINTERIA PARA REVESTIMIENTO DE RECAMRA LAMBRIN CON MADERA NOGAL CLARA

INTERIORISMO 나비 1077 41 M2 ຜເສືອ ततली co-living nabimara OR ENTAC ON: LOCAL ZAC ON: CROQU S DE UB CAC ON FRAY LU S DE LEÓN 734, ANÁHUAC 66450 SAN N COLÁS DE LOS AREA: ARQ JONATHAN ENR QUE FLORES PONZIO FIRMA DE ENTREGA FECHA ESCALA: IN-03 03 CLAVE No PLANO 06 MAYO/2024 ESC: 1:200 REVIS ONES RECÁMARA T PO 1 CRÍTICA 2 08 05 2024
MADERA NOGAL CLARO

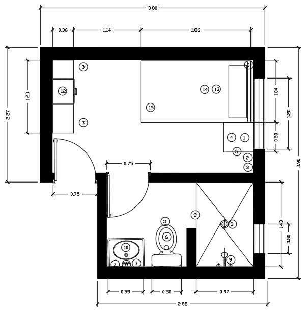
RECAMARA TIPO B

CONCEPTO

Nuestros dormitorios de tipo B están diseñados como espacios de relajación para los alumnos. En CoLiving NabiMara, nos esforzamos por brindar una experiencia de confort excepcional, utilizando tonos neutros realzados con toques de color que reflejan la identidad de la universidad. Todo esto está pensado para que nuestros residentes se sientan verdaderamente como en casa.

나비 ຜເສືອ ततली co-living nabimara
ACENTOS

Medidas:

H.58cm L.40cm A.32cm Ikea SKRUVBY | MESA LATERAL

SANITARIO ONE PIECE FERRARA |

Medidas:

H.68.5cm L.69cm A.39cm

Sodimac

ILUMINACION Y MOBILIARIO

Medidas: H 43cm A 16cm Liverpool

LETTAN ESPEJO |

Medidas: H.94cm A.61cm Ikea

Medidas: H.25cm L.5mm A.25cm Sodimac PREELABORADO DE SYNGONIUM

SPOT LED EMPOTRABLE CIRCULAR | JUST HOME COLLECTION

Medidas:

H.9cm L.4.5cm A.16.9cm Sodimac

MAMPARA BAÑO DESLIZABLE |

Medidas: H.190cm L.8mm A.150cm Sodimac

REGADERA CIRCULAR |

LÁMPARA DE MESA | JUST HOME COLLECTION

Medidas: H.30cm L.55cm A.30cm

Sodimac

REPISA FLOTANTE |

MUEBLE DE BAÑO FIONA|

Medidas: H.3.6cm L.23cm A.60cm Sodimac

Medidas:

H.3.6cm L.23cm A 60cm

Sodimac

MEZCLADORA PARA LAVABO MONOMANDO |

Medidas:

H.5cm L.18.5cm A.12cm

Rugo

1 2 3 4 5 6 7 8 9 10 11
나비 ຜເສືອ ततली
co-living nabimara

ILUMINACION Y MOBILIARIO

DEANLOW PLATFORM BED |

BASE PARA CAMA INDIVIDUAL

Medidas:

H.38cm L.197cm A.104cm

Ashley Furniture Homestore

COLCHÓN AMÉRICA

INVICTUS |

Medidas:

H.28cm L.190cm A.100cm

Liverpool

PAX / GRIMO | CLOSET

Medidas:

H.236cm L.200cm A.66cm

Ikea

VENTILADOR DE TECHO | SPRINT

Medidas:

H.36cm L.76.2cm A.76.2cm

Sodimac

13 14 15
12 나비 ຜເສືອ ततली co-living nabimara

ACABADOS

Marca: AGT

Color: 00391

Superficie: STMT

Espesor: 18 mm

Largo: 2800 mm

Ancho: 1220 mm

MARCA: CASAMIA

PISO PIETRA GRANITO SPC CALIZA

BEIGE: acabado de aspecto natural con vetas de granito beige.

TAMAÑO PIEZA: 810 x 400 x 6.5mm / /

1200 x 600 x 7.5

(INCLUYE 1 MM DE BAJO PISO)

CAPA DE DESGASTE: 0,55 MM, IDEAL PARA USO RESIDENCIAL, TIENDAS

COMERCIALES O DEPARTAMENTALES

CON CAPA PROTECTORA RESISTENTE A LOS RAYOS UV

MARCA: GIZIR

Formato118 x 18

Espesores de línea

18 mm , 118 mm y 2800 mm.

MARCA: INTERCERAMIC

Acabado brillante en formato

7.5x30 cms, estilo solido, color azul. Para uso en pared

B PISO CALIZA BEIGE C A MURO MATT STONE BEIGE D
LAMBRIN AZULEJO

PLANTA ARQUITECTONICA

나비 ຜເສືອ ततली co-living nabimara 1 2 4 5 5 5 6 8 10 12 13

ELEVACION

나비 ຜເສືອ ततली co-living nabimara 12 1 2 4 5 5 6 8 10

AXONOMETRIA

ENTRADA A RECAMARA ENTRADA A BAÑO COMPLETO

나비 ຜເສືອ ततली co-living nabimara 1 2 3 4 6 7 8 9 10 11 12 13 14 15
RESPALDO CAMA INDIVIDUAL CLOSET
LOSA DE AZOTEA
SPOT DIRIGIBLE

RENDERS

INTERIORISMO 나비 1077 41 M2 ຜເສືອ ततली co-living nabimara OR ENTAC ON: LOCAL ZAC ON: CROQU S DE UB CAC ON FRAY LU S DE LEÓN 734, ANÁHUAC 66450 SAN N COLÁS DE LOS GARZA, N L AREA: SIMBOLOG A: NOMENCLATURA: PROYECTO ARQUITECTON CO CO-HOUSING MULTIIFAMILIAR PROYECTO CO-LIVING NABIMARA ESTUDIANTES: KARLA ELIZABETH GARZA SALAS GLORIA ILEANA MENDOZA MONSIVAIS CATEDRAT CO: ARQ JONATHAN ENR QUE FLORES PONZIO FIRMA DE ENTREGA FECHA ESCALA: IN-04 04 CLAVE No PLANO 08 MAYO/2024 ESC: 1:200 REVIS ONES RECÁMARA T PO 2 CRÍTICA 1 08 05 2024

BIBLIOGRAFIA

Plan de desarrollo urbano de San Nicolas

— https://sn.gob.mx/plan-de-desarrollo-urbano/ https://sn.gob.mx/plan-de-desarrollo-urbano/

—https://www.inpladem.gob.mx/municipio_san_nicolas/PMD15-18.pdf

http://eprints.uanl.mx/3839/1/1080258066.pdf

https://www.inegi.org.mx/contenidos/productos/prod serv/contenidos/espanol/bvinegi/productos/nueva estruc/702825197926.pdf

https://www.nl.gob.mx/paginas-especiales/municipios-del-estado-de-nuevo-leon-region-metropolitana

https://www.inegi.org.mx/contenidos/productos/prod serv/contenidos/espanol/bvinegi/productos/nueva estruc/702825197926.pdf

https://www.meteoblue.com/es/tiempo/historyclimate/climatemodelled/san-nicol%c3%a1s-de los garza_m%c3%a9xico_3985241

https://www.economia.gob.mx/datamexico/es/profile/geo/san-nicolas-de-los-garza? occupationSelectorGender1=gender0

http://www.conapo.gob.mx/work/models/CO

Luco, A. (2023, 1 enero). Coliving interlomas / A-001 Taller de Arquitectura. ArchDaily México. . -

https://www.archdaily.mx/mx/971970/coliving-interlomas-a-001-taller-de-arquitectura

Over the rainbow. (s. f.). Financial Times. https://www.ft.com/content/091e540a-baf5-11e1-81e0-00144feabdc0

- Redacción. (2023, March 17). 10 tendencias de arquitectura y diseño sustentable - Greentology. Greentology.

https://greentology.life/2023/03/17/10-tendencias-de-arquitectura-y-diseno-sustentable/

- Slow Studio. (2023, May 30). BIOMATERIALES EN ARQUITECTURA | Slow Studio.

https://www.slowstudio.es/research/biomateriales-en-arquitectura

- Team, C. (2022, May 23). Arquitectura modular: concepto, ejemplos y ventajas | Calaminon. Calaminon.

https://www.calaminon.com/blog/arquitectura-modular/

- Ochoa, A. (2022, May 10). Arquitectura reciclable, ¿qué es esta nueva tendencia? Architectural Digest.

https://www.admagazine.com/articulos/que-es-la-arquitectura-de-reciclaje

- Arqzon. (2022, August 27). ¿Qué es la domótica en la arquitectura? - ARQZON. ARQZON.

https://arqzon.com.mx/2022/08/27/que-es-la-domotica-en-la-arquitectura/

- Materials. (2023, December 4). ¿Qué es la domótica en la arquitectura? ArchDaily México.

https://www.archdaily.mx/mx/903363/que-es-la-domotica-y-cual-es-el-impacto-de-la-automatizacion-en-la-arquitectura

- Ingenieros, U. a. E. (2023, May 23). 5 tendencias de arquitectura de los Centros de Salud más modernos del mundo.

https://es.linkedin.com/pulse/5-tendencias-de-arquitectura-los-centros-salud-m%C3%A1s-modernos-del

ली

ເສ ອ ຜ त

Libreto de Investigacion

Proyecto: Co-Living NabiMara

Por Karla Garza Salas e Ileana Mendoza Monsiváis

나비 ຜເສືອ ततली
비 ອ
co-living nabimara
나 ເສ

Turn static files into dynamic content formats.

Create a flipbook
Issuu converts static files into: digital portfolios, online yearbooks, online catalogs, digital photo albums and more. Sign up and create your flipbook.