Kamryn Brown | Professional Portfolio

Page 1


Fall 2023

Design 6.1

Type: Observation Tower Covering

Location: Shark Valley Tower, Florida

Everglades

Programs: Rhino, Illustrator, InDesign

Reimagining the Shark Valley Observation Tower by adding a covering to the sun exposed structure.

Designed to mimic the scales of the Everglade alligators, offering tourists with the point-of-view of an apex predator. Consisting of a series of apertures letting in just slivers of light to guide you to the view.

SCALING

Designed to resemble the pattern of alligator skin

CEDAR WOOD

2x4 planks to mesh with the environment and be easy to transport on site. Spaced out in different variations to create illusions for the viewer inside, creating different lighting and shading

LONGITUDINAL SECTION

1/4”=1’

EAST ELEVATION

1/8”=1’

LATITUDINAL SECTION

1/8”=1’

NORTH ELEVATION

1/4”=1’

Fall 2023

Design 6.1

Type: Eco-Hub

Location: Sewell Park, Miami, Florida

Programs: Revit, Rhino, and Grasshopper, InDesign, Illustrator, Photoshop, Fresco

Faced with the increasing impact of flooding that continues to damage the site, The Resilience is designed to withstand these adversities. This six-story building aims to honor and preserve E.G. Sewell Park through community outreach, providing the surrounding neighborhood with the resources they need to understand what’s happening and what they can do to prepare and mitigate further trauma.

Resources include a museum of the park’s history, research labs and co-working spaces focused on flood prevention, as well as a lecture hall for productive conversations and spread of information. The building also features a zip-lining course and a buffet-style cafeteria that serves food made with ingredients from the in-house herb garden.

CONSTRAINTS AND OPPORTUNITIES

DEMOGRAPHIC

The 10.33 acre park is located in the Allapattah neighborhood, one of the lowest income neighborhoods in North America. The park offers the residents a place to get outside and be in nature. it consists of a playground, picnic seating, and green lawns to occupy space in

HISTORY

FLOOD ZONING

E. G. Sewell Park is a riverfront park in Miami, Florida, that was named after former Miami mayor E. G. Sewell, who served three consecutive years. The park was once the site of a tropical garden owned by General Samuel Crocker Lawrence, who bought the land in 1897 and planted royal palms as well as built a guest house and a boat slip on the property. The park still has the royal palms, the boat slip, and the ruins of the guest house

HIGH FLOOD RISK MODERATE FLOOD

FLOODING

High Flood Risk

Moderate Flood Risk

CONCEPTUAL SEQUENCE

PRESERVE

EAST ELEVATION

1/32”=1’

Choosing to place the building on the preexisting parking lot to eliminate removal of trees and be situated as far as possible from the high risk flood zone

OBSERVE

Building up to the tree line within and above

OBSERVE

line to offer occupants views above the trees

SUBMERGE

Carving out areas to play with being in and outside of the building. Letting occupants feel like they are outside even with they are not

TREE BARK PATTERN

To symbolize growth and withstanding the test of time as well as pay homage to the existence and legacy of the park

For the natural color and protective rust layer resists further corrosion, making it more water-resistant than regular steel

GRASSHOPPER

Used to create the change in variation of slants in the panels as well as the width and length

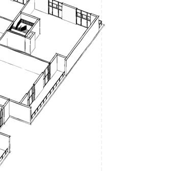
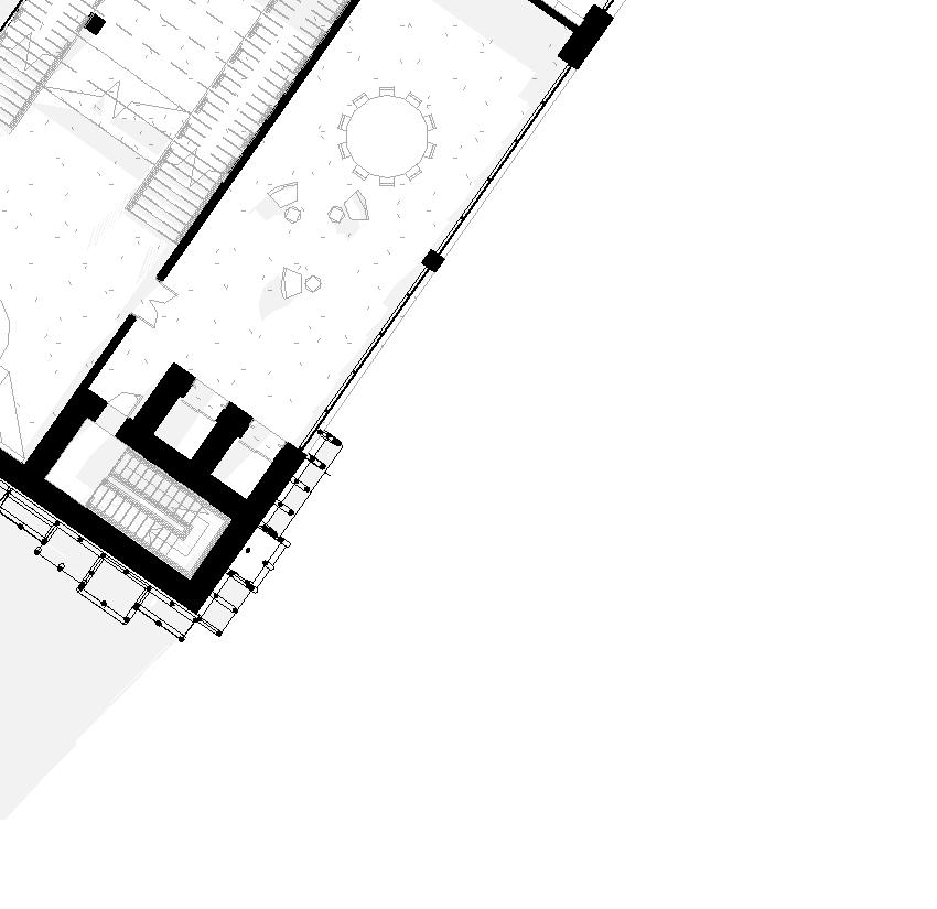
FLOOR PLANS

1. Elevators

2. Stairs

3. Parking Garage

4. Zip-Lining Start

5. Lobby Entrance

6. Multipurpose Room

7. Restrooms

8. Storage

9. Mechanical

10. Electrical

11. Museum

12. Lecture Hall

Multipurpose Room

Restrooms

Storage

Electrical

Museum 12. Lecture Hall

Co-Working Spaces 14. Small Offices

15. Curator’s Office

16. Research Labs

17. Conference Room

18. Cafeteria

19. Kitchen

20. Roof Terrace & Herb Garden

LECTURE HALL

LATITUDINAL SECTION

1/16”=1’

CAFETERIA
LOBBY ENTRANCE CAFETERIA

Spring 2024 Design 6.2

Type: Mixed-Use Affordable Housing

Location: 400 11th Avenue, New York, New York Programs: Revit, InDesign, Illustrator

What does the city of New York need?

New York City is facing a serious problem of poverty and housing affordability, especially for low-income households and people of color.

While The High Line is a remarkable project that has reshaped the urban landscape of New York City, it also poses some challenges and questions about how to balance economic development, environmental sustainability, cultural expression, and social justice in the city.

The project has raised some concerns about gentrification, displacement, and inequality in the city and has been criticized for catering to affluent tourists and residents, while excluding or displacing low-income and minority communities that live nearby. The park’s founders have acknowledged their failure to address these issues and have launched a network to help other cities create more inclusive and equitable public spaces.

In support of this effort, a 20-story affordable housing apartment was built near the High Line to unite all city residents.

CONSTRAINTS AND OPPORTUNITIES

There are only five places of low-income housing near the High Line. As seen in the map above, all five are far from the High Line. This displacement of low-income citizens cuts off their resources to the park and can make them feel unwanted or out of place in their own city. Here is an analysis of a site that is located much closer to the High Line:

SITE AND HIGH LINE

VEHICULAR MOVEMENT

VEHICULAR MOVEMENT DIRECTION

Double way streets can slow down traffic and offer a safe environment for pedestrians to cross the road. The one way street can be used as the entry for service access of the building.

SIGNIFICANT/ PUBLIC SPACE

PUBLIC PARKING

GREEN SPACE

STREET BLOCK

EXISTING BUILDING

BUS STOP

SUBWAY STATION

PEDESTRIAN MOVEMENT

1. Jacob Javits Convention Center
2. The Vessel 3. The Shed 4. Hudson Yards Shopping Mall
1” = 200’

CONSTRAI

BUILDING CODE

1. Occupancy Classification

Assembly Group A-3, Mercantile Group M, and Residential Group R-2

2. Building Height & Size - Construction Type

Unlimited height and size - Type 1-A sprinkled

3. Construction Component Ratings

Following Type 1-A guidelines

4. Enclosure Ratings

UL v 471; 3 hour rating: 0-2ft. minimum fire separation

5. Parti Wall, Exit Enclosure, Wall & Floor / Ceiling Assembly

UL Ratings and Construction

6. Total # of Occupants

1,284 people

Assembly

Cafeteria: 453

Kitchens: 12, 7, 15

Daycare: 60

Kitchen: 6

Mercantile

6 Stores for Leasing. From left to right: 22, 35, 32, 31, 50, 24

General Store: 102

Residential

Gym: 154

Locker Rooms(2): 13 each

Studio/ 1-Bed (122): 122

2-Bed (59): 118

3-Bed: (27): 81

7. Means of Egress

2 exits per floor with a 75ft distance from at least one at all times

8. Bathroom Fixture Requirements:

Assembly

Cafeteria: 2 bathrooms with 5 bathroom fixtures in each

Daycare: 1 single occupancy bathroom per classroom

Mercantile

2 single occupancy bathrooms in each

ACCESSIBILITY CODE

Area of refuge is required on levels 7 and 14

All restrooms are in ADA compliance

In compliance with the Fair Housing Act standards

Accessible to all primary spaces with doors at an 18” pull and a 12” push

STRUCTURAL SEQUENCE DIAGRAM

ZONING

The map shows the current zoning diagram for the neighborhood. The chosen site is located in zone C6-4.

C2-8: Local retail needs within residential neighborhoods

M2-3: Occupies the middle ground between light and heavy industrial areas

C6-4: The General Central Commercial Zoning District

- Permitted build types: Commercial building uses, community facilities, and residential buildings.

- Initial setback: 20 feet on narrow street and 15 on wide street

- Building height within initial setback: 85 feet

C6-4
M2-3
C6-4
C2-8

CONCEPTUAL SEQUENCE

SLICE

To create a direct line of sight between the High Line and the Bella Abzug Park

STACK

To communicate the same architectural language as the adjacent buildings

SHIFT

To offer a unique twist that the adjacent buildings do not have as well as give the building life and movement

EXPLODED AXONOMETRIC

1/32”=1’

- 6

- 4

MATERIALITY

Turn static files into dynamic content formats.

Create a flipbook
Issuu converts static files into: digital portfolios, online yearbooks, online catalogs, digital photo albums and more. Sign up and create your flipbook.