



![]()






C O N T E N I D O




PERFIL DE CURSO
Sección, competencias generales y específicas, docente
TRABAJO DE INVESTIGACIÓN 01 Exposición Grupal: Partidas / Objetivos






01 02 03 04 05 06 07 08
PRÁCTICA N°1 (CONCRETO SIMPLE)
Planos, Partida OE 2, Estructuras
PRÁCTICA N°2 (CONCRETO ARMADO)
Planos, Partida OE 2 Concreto armado y acero
PRÁCTICA N°3 (ARQUITECTURA)
Planos, Partida OE 3 (ARQUITECTURA)
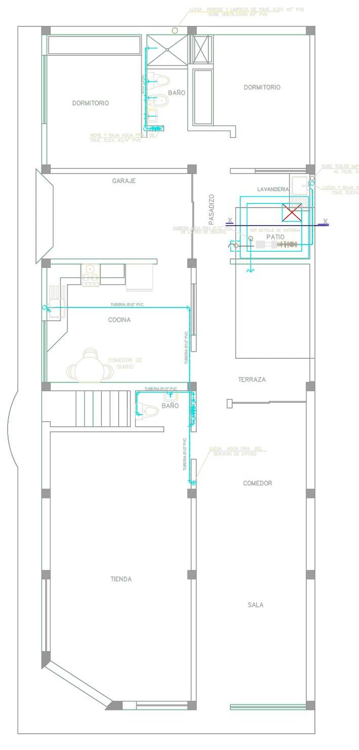
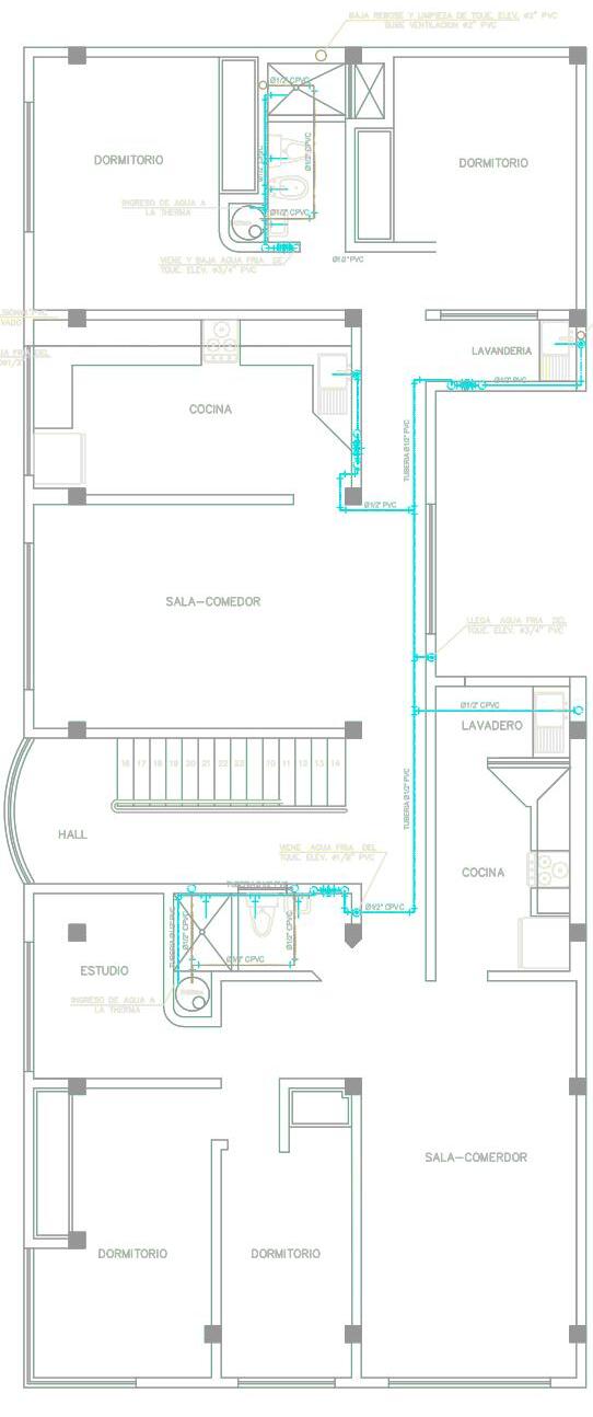
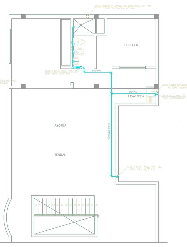
PRÁCTICA N°4 (SANITARIAS)
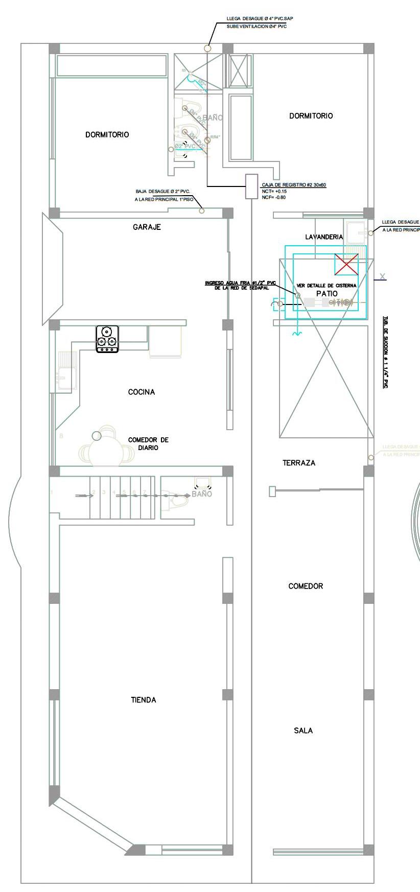
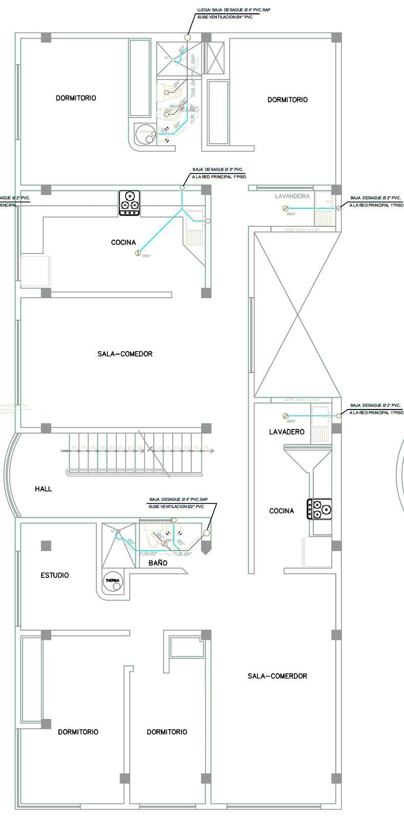
Planos, Partida OE 4 (SANITARIAS)
PRÁCTICA N°5 (ELÉCTRICAS Y COMUNICACIONES)
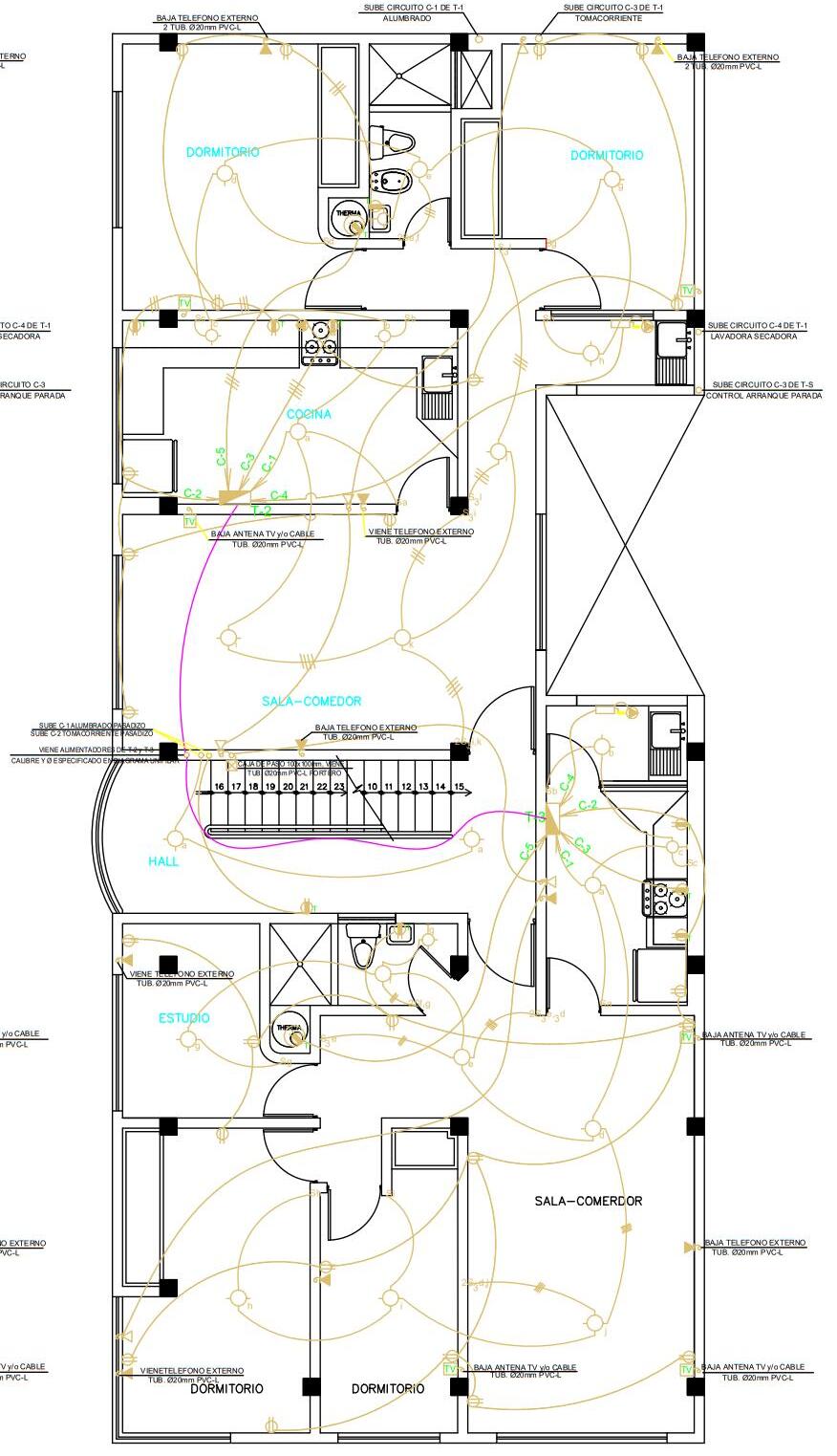
PLANOS, PARTIDA OE 5 (ELÉCTRICAS) OE 6 (COMUNICACIONES)
PERFIL DEL ESTUDIANTE
Datos básicos, formación académica, idiomas y habilidades técnicas


"Las
ciudades necesitan ser reparadas y curadas, no demolidas y construidas desde cero”

El portafolio es una herramienta esencial en el ámbito académico, ya que compila de manera sistemática y organizada las evidencias o productos desarrollados en la unidad. En el presente documento, se abordarán de manera integral los metrados de estructuras, arquitectura, instalaciones sanitarias e instalaciones eléctricas y de comunicaciones, con el objetivo de proporcionar una visión clara y precisa que facilite la ejecución y gestión del proyecto
Cada sección del portafolio se ha estructurado para ofrecer información detallada, incluyendo las dimensiones, características de los materiales y normas aplicables, lo que garantiza que todos los aspectos del proyecto se alineen con los estándares de calidad requeridos
OBJETIVO GENERAL
Elaborar un portafolio de metrados que compile y organice de manera clara y precisa las cantidades y especificaciones de materiales necesarios para la ejecución de estructuras, arquitectura, instalaciones sanitarias e instalaciones eléctricas
OBJETIVO ESPECIFICO
Mostrar un desglose detallado de los metrados para cada disciplina, asegurando que la información sea fácilmente accesible y comprensible

Sumilla y competencias
SECCIÓN
B
DOCENTE:
Arq Carolina A Mendoza Mamani
SUMILLA:
Pertenece a estudios de especialidad de formación técnico profesional, área de Investigación, de naturaleza práctica, obligatoria, con el propósito organizar la planificación de obra a través de la ejecución de los metrados para determinar el presupuesto en una edificación de menor complejidad. Su contenido temático comprende: Unidad I Planilla de Metrados; Reglamento de metrados. Unidad II Presupuesto y Cronograma de ejecución de obra.
COMPETENCIAS GENERALES:
Sustenta de manera crítica, respetuosa y autocrítica posturas personales integrándose al trabajo en equipo e interdisciplinar
COMPETENCIAS ESPECIFICAS:
-Gestiona proyectos de su especialidad, con ética y liderazgo en equipos multidisciplinarios de trabajo en el contexto de la globalización.
-Demuestra habilidad para realizar trabajo en equipo.
-Es hábil en la gestión de información y manejo de la TIC.
RESULTADO DE APRENDIZAJE
El alumno elabora metrados de edificaciones menores basado en normativa vigente y con el uso de herramientas digitales.

Exposición Grupal: Partidas / Objetivos
OBJETIVO:
Conocer y aprender sobre los tipos de partidas existentes para hacer una documentación de metrados.
CONOCIMIENTOS PREVIOS:
Para realizar el trabajo se debía de conocer y leer detenidamente la norma de metrados; a su vez reforzar los aprendido en clase.
VALORACIÓN DEL TEMA:
DIFICULTAD
EXIGENCIA
MOTIVACIÓN
APORTE EN MI FORMACIÓN
AGRADO
LOGRO ESPERADO:
Conocer y repasar el procedimiento de metrados, sus unidades y su clasificación
PROCESO DE APRENDIZAJE:
Se busco complementar y unir el trabajo propio con el de nuestros compañeros.



PROYECTO: UBICACIÓN: VIVIENDA UNIFAMILIAR CORONEL MENDOZA 1914
EJECUTADO POR: ANNEL MENDOZA QUILLE Y JESMINE CRUZ ARTEAGA SEPT-24 FECHA:
Planos, Partida OE 2 (CONCRETO SIMPLE), Estructuras
OBJETIVO:
Conocer y aprender sobre la partida de Estructuras, más específicamente Concreto
Simple y Preparación del Terreno.
CONOCIMIENTOS PREVIOS:
Para realizar el trabajo nos basamos en las clases teóricas de la docente, de manera de reforzamiento recurrimos a videos explicativos.
VALORACIÓN DEL TEMA:
DIFICULTAD
EXIGENCIA
MOTIVACIÓN
APORTE EN MI FORMACIÓN
AGRADO
LOGRO ESPERADO:
Realizar de manera eficiente y correcta la partida designada.
PROCESO DE APRENDIZAJE:
Se busco complementar y trabajar de manera igual





CORTE A-A
ESCALA : 1 /75

CORTE B-B
ESCALA : 1 / 75

ELEVACIÓN PRINCIPAL
ESCALA : 1 / 75

CIMENTACIÓN
ESCALA : 1 /75



DETALLES DE CIMENTACIÓN
ESCALA : 1 / 25

DETALLES DE ZAPATA
ESCALA : 1 / 25

Planos, Partida OE 2 Concreto armado y acero
VALORACIÓN DEL TEMA:
DIFICULTAD
EXIGENCIA
MOTIVACIÓN
APORTE EN MI FORMACIÓN
AGRADO
OBJETIVO:
Aprender y poner en practica lo aprendido en clase, metrando acero y concreto.
CONOCIMIENTOS PREVIOS:
Para realizar el trabajo nos basamos en las clases teóricas de la docente, de manera de reforzamiento recurrimos a videos explicativos.
LOGRO ESPERADO:
Desarrollar de manera correcta el metrado de concreto armado.
PROCESO DE APRENDIZAJE:
Se busco complementar y trabajar de manera igual.
PROYECTO:
UBICACIÓN: VIVIENDAUNIFAMILIAR CORONELMENDOZA1914
EJECUTADOPOR: AnnelMendozaQuilleyJesmineCruzArteaga sept-24 FECHA:








: 1 / 25




DETALLE
: 1 / 25



PROYECTO: UBICACIÓN: VIVIENDA UNIFAMILIAR CORONEL MENDOZA 1914
EJECUTADO POR: ANNEL MENDOZA QUILLE Y JESMINE CRUZ ARTEAGA SEPT-24 FECHA:
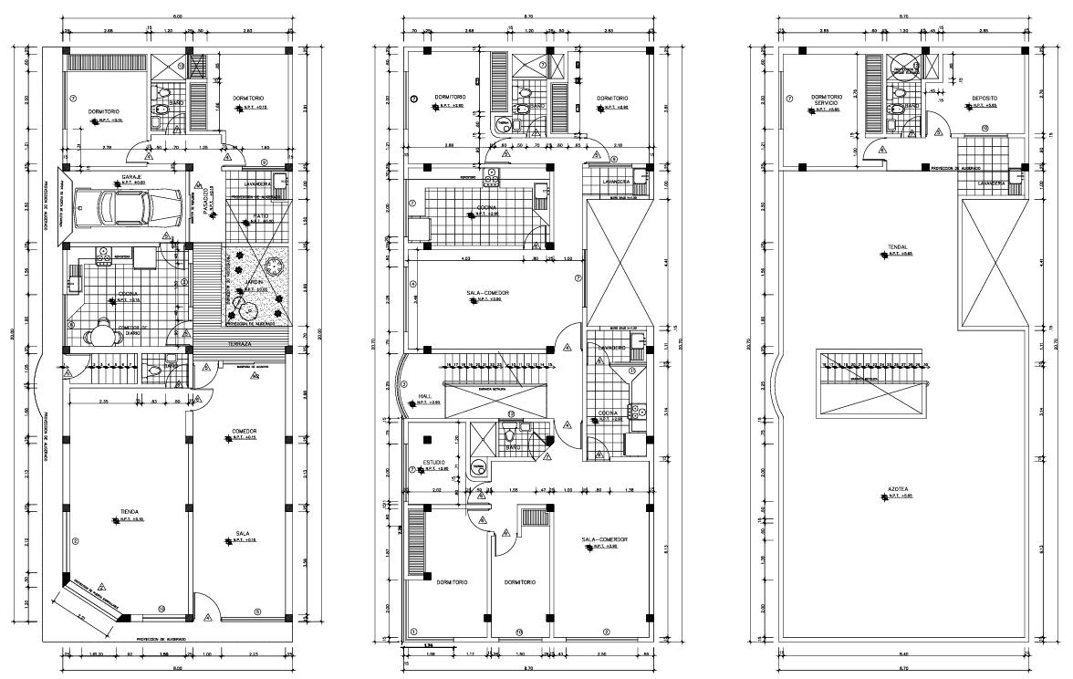
Planos, Partida OE 3 (ARQUITECTURA)
OBJETIVO:
Comprender y desarrollar correctamente la partida de Arquitectura.
CONOCIMIENTOS PREVIOS:
Para realizar el trabajo tuvimos que prestar atención a las clases teóricas - prácticas de la docente
VALORACIÓN DEL TEMA:
DIFICULTAD
EXIGENCIA
MOTIVACIÓN
APORTE EN MI FORMACIÓN
AGRADO
LOGRO ESPERADO:
Lograr desarrollar de manera eficiente el partido evitando errores
PROCESO DE APRENDIZAJE:
Se busco complementar y trabajar de manera igual


PRIMERA PLANTA
ESCALA : 1 /75


Piso Antideslizante
60x60 cm 12x30 cm

Piso Grass Natural

Pintura de color Blanco


Puertas de madera

Ventanas de Aluminio













PROYECTO:
Partida
OBJETIVO:
Comprender y desarrollar correctamente la partida de Instalaciones Sanitarias
CONOCIMIENTOS PREVIOS:
Para realizar el trabajo tuvimos que prestar atención a las clases teóricas - prácticas de la docente
VALORACIÓN DEL TEMA:
DIFICULTAD
EXIGENCIA
MOTIVACIÓN
APORTE EN MI FORMACIÓN
AGRADO
LOGRO ESPERADO:
Lograr desarrollar de manera eficiente el partido evitando errores
PROCESO DE APRENDIZAJE:
Se busco complementar y trabajar de manera igual

PRIMERA PLANTA
ESCALA : 1 /75

VIVIENDA MULTIFAMILIAR

DETALLE DE COMPONENTE
ESCALA : 1 / 25


DETALLES DE TAPA DE CISTERNA
ESCALA : 1 / 25


SEGUNDA PLANTA
ESCALA : 1 /75


TERCERA PLANTA
ESCALA : 1 /75


TECHO AZOTEA
ESCALA : 1 /75


DETALLE DE COMPONENTE
ESCALA : 1 / 25


PRIMERA PLANTA
ESCALA : 1 /75

VIVIENDA MULTIFAMILIAR

DETALLE DE COMPONENTE
ESCALA : 1 / 25

DETALLE DE COMPONENTE
ESCALA : 1 / 25









PROYECTO: UBICACIÓN: VIVIENDA UNIFAMILIAR CORONEL MENDOZA 1914
EJECUTADO
Planos, Partida OE 5 (ELECTRICAS) OE 6 (COMUNICACIONES)
OBJETIVO:
Comprender y desarrollar correctamente las partidas correspondientes a Instalaciones eléctricas e instalaciones de comunicaciones
CONOCIMIENTOS PREVIOS:
Para realizar el trabajo tuvimos que prestar atención a las clases teóricas - prácticas de la docente
VALORACIÓN DEL TEMA:
DIFICULTAD
EXIGENCIA
MOTIVACIÓN
APORTE EN MI FORMACIÓN
AGRADO
LOGRO ESPERADO:
Lograr desarrollar de manera eficiente el partido evitando errores
PROCESO DE APRENDIZAJE:
Se busco complementar y trabajar de manera igual

PRIMERA PLANTA
ESCALA : 1 /75

VIVIENDA MULTIFAMILIAR


DETALLE DE INSTALACIÓN
ESCALA : 1 / 25

DETALLES DE PUESTA A TIERRA
ESCALA : 1 / 25


SEGUNDA PLANTA
ESCALA : 1 /75


: 1 /75

: 1 / 25






Datos generales
DATOS BÁSICOS
Correo Electrónico
annelmendozaq@gmail.com
Número de celular
967315844
FORMACIÓN
Universidad
Universidad Nacional Jorge Basadre Grohmann
Escuela
Escuela Profesional de Arquitectura
Centro de Estudios
Centro de Idiomas - Inglés (Intermedio)
HABILIDADES TÉCNICAS




PARTICIPACIÓN
Carátula
Perfil del Curso
Tema 01
OE 2. Estructuras
OE 3 Arquitectura
OE.4. Instalaciones Sanitarias
Datos generales
DATOS BÁSICOS
Correo Electrónico
Número de celular
952704687
FORMACIÓN ACADÉMICA
Universidad Universidad Nacional Jorge Basadre Grohmann
Escuela jcruzart@unjbg.edu.pe
Escuela Profesional de Arquitectura
Centro de Estudios
Centro de Idiomas - Inglés (Intermedio)
Centro de Idiomas - Francés (Básico)
HABILIDADES TÉCNICAS


PARTICIPACIÓN
Memoria descriptiva
OE 2. Estructuras
OE 3 Arquitectura


OE 5. Instalaciones Eléctricas
OE 6 Instalaciones de Comunicaciones

I L
jcruzart@unjbg.edu.pe amendozaqui@unjbg.edu,pe