JUDEA HAMILTON INTERIOR DESIGN

Page 1

JUDEA HAMILTON

INTERIOR DESIGN

PORTFOLIO

ABOUT ME

Greetings! My name is Judea Hamilton and i’m currently an Interior Design student at The University of Texas at San Antonio. Here I have had the oppurtunity of designing in an independent and collaborative way to meet the needs of the people in an innovative way. It has been amazing to challenge myself to think outside the box to problem solve through shaping and molding an idea structurally to respond to its necessity to provide a specific service(s).

I have responded to these experiences by expanding my views and perspectives when it comes to offering my ideas to real people, that have real needs and real responses. Even when it comes to selecting materials, equipment, and furniture...asking myself ‘How would this benefit a consumer? What are the psychological results of these selections?’ It brings me joy to contribute to the changes and trends of design and most importantly, how the world is changing.

Having an artistic upbringing, with Artists/Painters/Architects in the family, aesthetics has always appealed to me. Combining this with my duty to the community, I find that Commercial, Cultural, and Historical Preservation/Renovation projects are very inviting to me ideally but am excited to be challenged by anything.

2 A B O U T M E

MODA: FASHION EXPERIENCE

PROMOTE. DISPLAY. ENGAGE.

Moda, or fashion in its noun form can attest to many definitions; however, its verbal definition is defined as “to give shape or form to: to make, construct, or create (something) usually with careful attention or by the use of imagination and ingenuity” (source: Merriam Webster).

Our target is a universal audience that will be catered to by a fashionbased company whose focus will be to promote and host progressive designers of greater San Antonio.

This concept will not only generate a connection to the community of San Antonio but will create an environment in which to incubate cultural identity.

“Connecting to the community of San Antonio in order to incubate cultural identity.”

*Existing building on Dolorosa St. San Antonio, TX

*Drawings using Revit Conceptual development/space programming

3 M O D A: F A S H I O N Introduction

Versatility in select spaces.

Mobius Strip Runway.

Depending on the event/time of day the Runway, Open bar, and Gallery area have a dual use.

The purpose of the Mobius strip is to connect the full surface of a strip into one continuous side, which inspired the runway of our structure to be a continuous connection.

Our interior will be influenced by the nature of a runway. Unbreaking and fluid, it can be translated into defining the negative space in between work zones. Doing so means that there will always be a direct, consistent relation to the five linear stages of eudemonia- the library, the salon, the gallery, the deep space, and the chamber.

4 M O D A: F A S H I O N Concept Diagrams
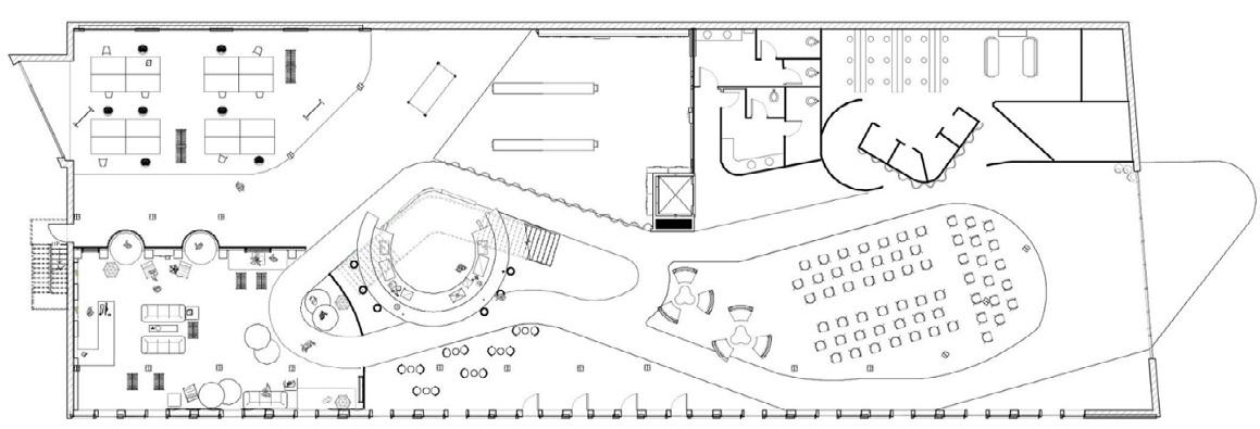
5 M O D A: F A S H I O N Floor Plans/Furniture catalog/Materials
A. Studio
B. Showcase Store
C. Cafe/ Bar D. Material Library E. Gallery/ Main Runway
F. Elevator Lobby and Bathrooms
G. Backstage
H. Virtual Office
I. Mini Runway/ Conference Room
J. Marketing Office
K. Showcase Lounge
3/32”= 1’-0”
1
L. Photography Studio Scale:
FLOOR
FLOOR 2 A. K. I. H. J. G. F. E. D. C. B. L. FLOOR PLANS

CONTEMPORARY CONVENT

ABROAD PROJECT: ITALY FALL 23

Returning to the orginal machine of the monastery, we navigate through imagining a modern facility that allows university and community “pilgrimmage” by honoring its importance through the language of design.

In 1650, when the baptistery was consecrated each space served a purpose to the monks living and working there. Now in 2023, each space in the structure is the modern version of the original program for teachers and visitors who will live and work on the university campus. Different centuries, but the purpose remains the same.

*Existing building on Colle dei Cappuccini hill located in Urbino, Italy

*Drawings using Revit Conceptual development/space programming

6 C O N T E M P O R A R Y C O N V E N T Introduction

Conceptual plans/Condition responses/Perspectives

CAFE RENDERING

RENDERING CAFETERIA

COURTYARD RENDERING

RENDERING CORTILE CENTRALE

Returning to the original machine of the monastery, we navigate through designing a modern faculty that allows university and community by honoring its importance

Returning to the original machine of the monastery, we navigate through designing a modern faculty that allows university and community by honoring its importance

Ritornando alla funzione originale del monastero, una struttura moderna che permetta un “pellegrinaggio” e della comunità onorando la sua importanza linguaggio del design.

LIBRARY/NOOK RENDERING

Outlying granges (exterior farms)

RENDERING LO STUDIO E BIBLIOTECA

In 1650 when the baptistery was consecrated each purpose to the monks living and working there. space in the structure is the modern version of teachers and visitors who will live and work on Different centuries, but the purpose remains the

Nel 1650 quando il battistero è stato consacrato, scopo ben preciso per i monaci che vi vivevano e 2023, ogni spazio della struttura rappresenta la versione spazio originale per gli insegnanti e i visitatori che nel campus dell’università. Secoli diversi ma la funzione

Teacher residence w/ direct access to central spaces

Covered exterior walkways for open circulation

Exterior gardens

CLOISTER

CHIOSTRO

DORMS

DORMITORY

MATERIALS

CLOISTER

CHIOSTRO

-Dark oak

-Stone

-Terracotta

-Stucco/Plaster

DORMS

DORMITORY

-Greenery

-Black Metal Framing

CONVENT
7 C O N T E M P O R A R Y C O N V E N T
DN UP
PIANO 1

LEVEL -1: RESIDENTIAL & AUDITORIUM

LEVEL 0: COMMUNAL & RECEPTION

LEVEL 1: RESIDENTIAL

UP UP UP UPDN DN ----
8 C O N T E M P O R A R Y C O N V E N T Floor Plans *not to scale

THE RAND:

THAT ENABLES US.

The Rand is a community that is designed strategically to refurbish an already existent identity in Dowtown San Antonio, Texas. Despite the influx of tourists, this version of the Rand will welcome those from other places but will serve those who call “SA” home. Providing spaces for interest, focus, support and enjoyment. As well as creating shared spaces that encourage individuality and unity as the new and rising face of San Antonio.

The Rand is an amenity for the community itself. I believe my Rand will further represent that idea, by catering to the concept of the People, and what we provide to the Rand.

*14.3% of the dowtown population are foreign born, and over 10% are non-citizens, while the dominating age demographics are Millennials and older Generation Z.

9 T H E R A N D Introduction

Basement Level: Night Club

Gathering space functional by night.

Separated by floors Street through second, the residents will have a buffer between to filter activity and noise levels after hours.

Street Level: Restaurant

Open to public and pedestrians as well, this street level restaurant is purposed to provide quality meals to residents returning from work within close proximity to their rooms.

Retail/Grocery Shop

Also accessible to street pedestrians, this quick-stop grocery was design to house essential produce and products.

Level 2: Study Spaces

Different space typologies for different study styles. Open to residents and public.

Wellness/Legal Couseling

Offered primarily for residents to have mental/emotional assiatance on hand and within reach. Based on research of this demographic, accessibility is its greatest roadblock.

Levels 3-8: Residential

Single and doubles suites purposed for young adults and couples, looking for community and amenity within the heart of the city of San Antonio.

20’-0” AFF 33' - 6" AFF 47' - 0" AFF -13' - 6" AFF 10 T H E R A N D Program/Spaces Info

Street Level

*not

11 T H E R A N D Plans/Materials/Drawings
to scale
2 1 3 4 5

Second Floor

*not to scale

12 T H E R A N D
Plans/Materials/Drawings

LAW FIRM:

REDESIGN

What is this new concept that is emerging? A place to work that will also give back to its occupants. A place that promotes both wellness and work. Researchers are calling it “third space”, WSJ reporters Katie Bindley and Konrad Putzier talk about this in detail in a short film The Office of the Future Might Not Be an Office. Several new projects are taking the place of former buildings like old department stores and turning them into “third spaces”. The purpose is for colleagues to prioritize productivity and connection both with themselves and each other. It is important to note that the new “workspace” is psychological. As designers, we should be working to create spaces that mentally affect people in a positive way.

*In this project we were given a pre-existing firm plan with several challenges unresolved. Including the need for “third spaces”, circulation, and rooms required with unconventional spacing available. Our job was to resolve these issues without adding any footage to the plan

13 L A W F I R M Introduction
MEN WOMEN T E STAIR 1 S P MECHANICAL ROOM ELECTRICAL ROOM ELEVATOR LOBBY TELECOM CLOSET FIRE SERVICE LOBBY PE-F PE-D PE-B GE1 JAN STAIR 2 S P O A PE-E PE-C PE-A SE1 B C D E F G A H 1 2 3 4 5.1 6 5.8 4.1 3.1 2.1 5 ART WALL FIRE RATED CORRIDOR COFFEE BAR COFFEE BAR RECEPTION KITCHEN/LOUNGE SCALE: 1 8"- 1'-0" 14 L A W F I R M Finishes& Materials catalog
15 L A W F I R M Furniture & Finishes
16 D R A W I N G S - h a n d - d r a w n
Thank You. Get connected with me! judeahamilton10@gmail.com (832)993-0964 www.linkedin.com/in/judeahamilton

Turn static files into dynamic content formats.

Create a flipbook
Issuu converts static files into: digital portfolios, online yearbooks, online catalogs, digital photo albums and more. Sign up and create your flipbook.
JUDEA HAMILTON INTERIOR DESIGN by Judea Hamilton - Issuu