
Semestre 8/ Intercambio en España
Juan José Villegas Arboleda ID: 000364021


SALÓN DE ACTOS Y CAVA DE VINOS
Escuela de Viticultura y Enología Félix Jiménez Requena, VLC, España

Semestre 8/ Intercambio en España
Juan José Villegas Arboleda ID: 000364021
SALÓN DE ACTOS Y CAVA DE VINOS
Escuela de Viticultura y Enología Félix Jiménez Requena, VLC, España
El complejo se encuentra ocupado por siete edificaciones. Esta nave de aparcamientos tiene una planta prácticamente rectangular, con una estructura metálica y cerramientos simples de bloques de hormigón hueco de 20 cm de espesor enfoscado, una altura libre variable entre 7,10 y 9,40 m, con una cubierta de chapa metálica grecada sin aislamiento térmico. Cuenta con un acceso a nivel de calle por la planta inferior de la cancha (nivel aproximado + 698,65m) siendo ese su único acceso.
Para darle una continuidad lógica al diseño de este espacio y basado en la disposición académica de la escuela, en vez de hacer usodeestaplantabajacomoparqueadero(según elprogramadel profesor) la propuesta cambia a una cava de vinos. Así le brinda al resto del proyecto cierta independencia en relación a los demás edificios del complejo, interactuando como un espacio transitivo multifuncional.
Los espacios con formas estrechas permiten ondas de sonido directo y reflejado, al ser un espacio reducido el tiempo en el que la onda viaja es corto y muyaudible.
Para influir significativamente en la percepcióndeloyentesobreeltamañodel auditorio, y disminuir la brecha de la onda de retardo el diseño de los materiales del salón de actos cumplen a su vez con el mismoperfildelacubiertadeeste.
Diseño de sección esquemática
Sección estudio del sonido
gradería telescópica empotrada retráctil
Sección esquemática estudio del sonido
CI M
donde el sonido no llega y a la vez evita que la reverberación se quede atrapada en el espacio, restándole claridad y definición a la acústica
Espacio de actividad múltiple sencillo
Sección esquemática estudio del sonido
El perfil del techo es una mezcla entre reflectores inclinados, convexos y cóncavos, la energía del sonido reflejadadelassuperficiesconvexaspuedesermásefectiva por la forma en la que la onda de sonido se distribuye de manera más uniforme en una amplia gama de frecuencias, estasediverge,mejorandoladifusiónylaclaridad.
Respondiendo a la identidad de la escuela, la cava de vinos resulta como un laboratorio del sabor,allímismosecultivalauva,seprocesa,sealmacena,sedisponeparasuconsumo Según el tipodevino cambia lacomidaqueloacompañaes porestoqueseimplementaunpequeño restobar,ademáscuandosoloesparacatarlosvinosladisposición delespacioy delmobiliario cambia, esta practica se realiza estando de pie en un espacio amplio en mesas altas donde mínimo quepan 9 copas en la mesa por persona Finalizando con una zonas a puertas cerradas donde se preserva el vino mas delicado por su exclusividad o por la temperatura que este requiera,permitiéndoleversatilidadalacavaparapoderconservarcualquiertipodevino.
El recubrimiento exterior del salón de actos es de lamas verticales de madera, al tener dobles alturasyespaciosconsideradamenteestrechos en los vacíos, la posibilidad del “eco Aleteo” proveniente de la cava de vinos es alta, este eco es causado por la interreflexión repetitiva entre superficies opuestas paralelas. En este caso los paneles de vidrio de las ventanas con la pared exterior del salón de actos lo producirían,por lo tanto estas lamas absorben paraquenorepercuta,reboteosediafragme
Aislamiento térmico
Cámara de aire Revestimiento de madera de Teca
Aislamiento térmico
Madera blanda
Casetones a al vista, hueco forma chaflan
Viga de hormigón a al vista 55*35 cm
ColumnaP6
Columna de hormigón a la vista texturizado 40*70 cm
DETALLE MUROS EXTERIORES Acabado en piedra natural Aislamiento térmico Muro de fábrica Acabado en piedra natural
Lamas verticales de madera
Revestimiento de madera de Teca Aislamiento térmico Muro en ladrillo hueco Cámara de aire Aislamiento térmico Drywall yeso Acabado en paneles acústicos de madera
Lucernario doble ventana con cámara de aire y de vidrio de baja emisividad
DETALLE SUELO VERDE
Deck Impermeabilizante Aislamiento Membrana de impermeabilización Drenaje y barrera de raíces Capa de filtrado Tierra
DETALLE CUBIERTA INCLINADA INVERTIDA NO TRANSITABLE
Base estructural Capa separadora Impermeabilización Capa separadora Base soporte. Capa de regularización de mortero Cámara de aire Aislamiento térmico Impermeabilización Protección. Tejado en piedra pizarraDETA-
PATRIMONIO CASA BONO CASA HOGAR
Buscando rescatar algunas características de la fachada patrimonial, en la propuesta se decidió utilizar dos de sus colores en líneas verticales que le dan continuidadal diseño del patio Además seabrieron mas vanos eimplementaron ventanas cajónqueextiendenelinterior como unespacio estancia/mueblehacia elexterior.
En el interior se conserva y restaura la escalera original, con sus balaustres y pasamanos. La mayoría se lograron recuperar y restaurar por lo cual es un valor importante a mantener en la planta baja El resto de circulación vertical en el puntofijofueconstruidadespuésenladrilloyaunseconservaenobranegra,por lo cual, se tomo la decisión de remplazarlas por una estructura visualmente mas ligeraqueledeamplitudalespacio.
En las dos platas superiores, se disponen algunos vacíos en el centro del edificio para iluminar y ventilar, puesto que este sector del edifico no tiene relación directa con ninguna fachada la mejor manera de brindarle confort y calidad espacialesatravésdelucernariosenlacubierta.
Se diseñó el patio interior pensando en una forma de juego más versátil para los niños y menos monótona, proporcionándolesunespacio recreativo y seguro dentro de laCasaHogar.
La terraza (parte habitable de la cubierta) es otro espacio de esparcimiento y exploración, que actúa como una huerta, un mini taller y un lugar de soporteparaelcomedor
El salón lúdico, es un área que secomplementaconelpatio. Funciona como salón de música, arte y demás dinámicas relacionadas con el aprendizaje.
Para los niños de la Casa Hogar, el playground exterior funciona como un área de desarrollo motriz e interacción social.
Diferentes texturas y variedad de superficies blandas yduras.
Juan José Villegas Arboleda ID: 000364021
Semestre 7/ Mención de honor centro de convenciones cinematográfico de espacios efímeros
Dentro de la diversa actividad que permanece en el cerro, se planteautilizar el métodode la peregrinación para conformar un centro de convenciones de espaciosefímeros,pueselacto deserun “cerro pelón” yserun “lienzo en blanco” representa la recursividad en el habitar y en la forma en que es habituado, configura lo perecedero y lo fugaz que puede ser la relación del usuario con el lugar. Además de potenciar oportunidad del lugar, que se establece como un espacio diurno a también tener un uso nocturno que fortaleza las debilidades del sector.
premisas________ ilustraciones
Dentro de la diversa actividad que permanece en el cerro, se planteautilizar el métodode la peregrinación para conformar un centro de convenciones de espaciosefímeros,pueselacto deserun “cerro pelón” yserun “lienzo en blanco” representa la recursividad en el habitar y en la forma en que es habituado, configura lo perecedero y lo fugaz que puede ser la relación del usuario con el lugar Además de potenciar oportunidad del lugar, que se establece como un espacio diurno a también tener un uso nocturno que fortaleza las debilidades del sector.
el género de la película, de
y expresar con arte los deseos,lostemoresylarealidad Ubicándolo en el contexto nacional, no hay nada más contundente
el cine colombiano para contarsupropiahistoria Vestigio,arraigoy apropiación de
que una vez pasó, está pasandoypasará Pordichasrazones,centro de convenciones cinematográfico de espacios efímeros busca apoyar, difundir y hacer perdurar la historia y la memoria a travésdelarte. “No
Boston es un barrio tradicional de clase media, ubicado en el costado centro oriental del valle de Aburrá El primer asentamiento se dio en 1908, donde fueron los propietarios quienes cedieron una porción de sus terrenos para la construcción del parque principal (lugares colectivos) y a partir de este punto el barrio se comenzó a desarrollar constructivamente Un año después, fue el arzobispo quien ordenó el inicio de la construcción de la iglesia (religión), el barrio se estabilizó y continuo el estructuramiento espacial de un estilo republicano (arquitectónico) y la infraestructura del sector, siendo parcialmente limitado por la topografía hasta que la invasión llegó al barrio, evadiendo de esta manera las limitaciones del entorno (normativa)
El proyecto plantea esta relación con la calle a través de un pasaje que desarrolla el zócalo urbano con las dinámicas encontradas en el barrio, tratando de crear un punto integral que se vincule con el entorno y las demás zonas de fluencia del sector, como lo son el parque principal, la casa de la memoria y el resto del tejido urbano que vincula estos lugares Para que finalmente este termine siendo un apoyo y fortalezca las limitaciones del sector por medio de las oportunidadesdel contexto
“Los espacios intermedios surgen como aquellos espacios que están al otro lado de la puerta de la vivienda y que no son la calle”
Los Umbrales trabajan como espacios intermedios, son unos gradientes espaciales, interludios que permiten una transición entre la puerta de la vivienda y el exterior de esta, ya sea con otras viviendas dentro del proyecto o con el proyecto y la calle Estos son espacios de usos predominante y normalmente muy activos que trabaja como una expansión de la vivienda y el espacio público
Además, la calidad de una vivienda se resuelve tanto en su interior, como en su contacto con el espacio exterior (público) Cuando las viviendas no responden a las necesidades reales y se despliegan de su entorno, comienzan a ser nuevos limitantes y obstructores de las relaciones entre usuario usuario y entre usuario espacio
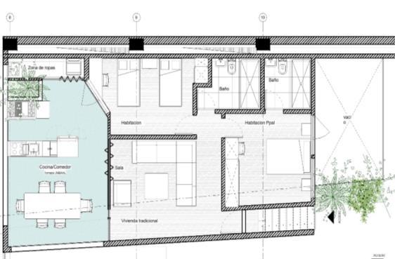
Módulos habitacionales
Las viviendas se posan y la circulación baja, cando umbrales en altura
Son las sustracciones en las masas las que crean umbrales
Estos son escenarios de ciudad que se encuentran embebidos dentro de lo construido (privado) pero están integrado a lo colectivo
Las visuales son dirigidas por la masa, se abren al exterior y parten desde el centro