Jordan Vonderbrink Portfolio

Page 1

Jordan Vonderbrink Selected Works 2018-2022
1

01 Truman Sports Complex Transportation Hub

02 Museum of Endurance Sports and Athletes

03 Makerspace

2
Table of Contents
3
4
01
Truman Sports Complex Transportation Hub Kansas City, MO

Project Intro

roject Intro

The main purpose of this studio was to design transportation hubs along a subway/metro system in Kansas City. We explored the possibility of creating a metro system in Kansas City and came up with the metro line system in the graphic shown. We made an inner city loop (pink), outer loop (red), North/South line (yellow), two East/ West lines (green and orange), and other lines connection key areas of the city (purple, blue, and gray). My partner and I chose the Truman Sports Complex as our site which comes at a crossing of the red outer lopp and the green line.

e studio transportion hubs a City. e explored the possibility of creating a metro system Kansas and came up with the metro line the city ter est y d the mes at a outer green e.

7
Truman Sports Complex Transportation Hub
8 Kansas City, MO

Design Concepts

9 Truman Sports Complex Transportation Hub
10 Kansas City, MO
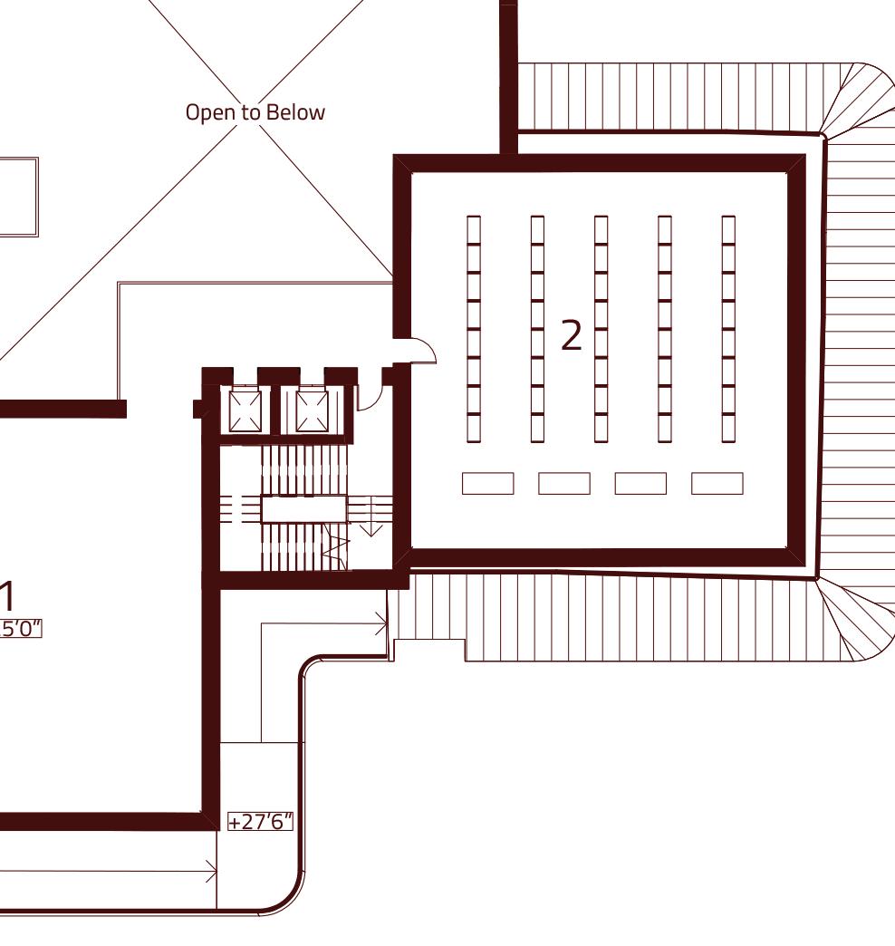
Site Plan Scale: 1”=100’ Legend 1- Hub 2- Vertical Circulation 3- Fire Escape 4- Children’s Play Area 5- Underground Tunnel Entrance
16
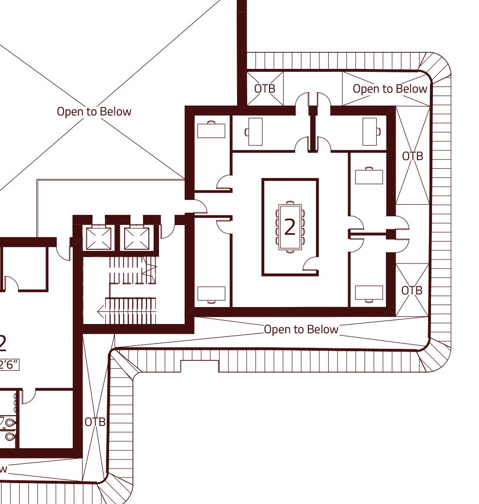
17 Truman Sports Complex Transportation Hub Hub Level
1”=20’ Legend 1- Restaurant 2- Retail 3- Bathroom
Scale:
18 Kansas City, MO
19 Truman Sports Complex Transportation Hub Hub Level Scale: 1”=20’ Legend 1- VIP Area 2- Bathroom
20 Kansas City, MO

Hub Longitudinal Section

Scale: 1”=30’

Tranverse Section A

Scale: 1”=30’

25 Truman Sports Complex Transportation Hub
26 Kansas City, MO

Transverse Section B

Scale: 1”=30’

Tranverse Section C

Scale: 1”=30’

27
28
29 Truman Sports Complex Transportation Hub Truman Sports Transportation Hub ub
30 Kansas City, MO
Tr Truman Sports s Complex Transpor o taati t on Hub
Kanssas Citty, y MO
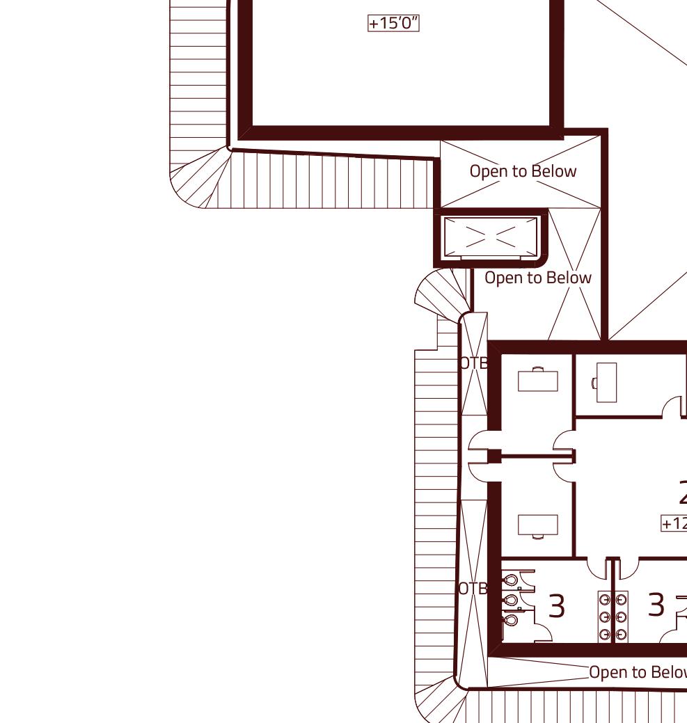
35 Truman Sports Complex Transportation Hub Hub Level Scale: 1”=50’ Legend 1- Free Area 2- Paid Area 3- Ticket Booth 4- Concourse Market
36 Kansas City, MO

Platform Level Scale: 1”=50’

37 Truman Sports Complex Transportation Hub
38 Kansas City, MO
39 Tr T umman n Sports Complex Transpoortaattiion Hub
40 Ka K ns n as City, y MO
41 Tr T umman an Spoportrts s Co Compmplelex x Transporrtatatition o Hub
42 Kansas City, , MO
Truman Sports Comppleex Transporrta t tion Hub b
44 Kansas City, MO
5 02
6
Sports and Athletes
Museum of Endurance
Dallas, TX

Museum of Endurance Sports and Athletes

Museum on Endurance Athletes

In this studio our project was to create a museum for a specific american sub-culture of our choice. I chose to do my museum over the subculture of endurance athletes. My main concept is a journey constantly going up through the museum to mimic the life of an endurance athlete as they are always fighting an uphill battle to reach their goals. There are also four cores that house my galleries and other programatic functions of the museum. These four cores also act as mountainous forms which leave a valley-like space between them. The placement of these cores accentuate an axis created by the sculpture park across the street and the entrance also gestures towards the Wyly Theatre, which is located to the north of the site. Another key element is the landscape outside the building. It is formed so the public can use it for exercise and the museum itself can use it to host various events and activities.

47

Forming the Landscape

Create mounds around site and cores

48 Dallas, TX
51 Basement Floor Plan Scale: 1”=10’0” Legend 1-Mechanical Room 2-Preservation Studio 3-Prep Area 4-Storage 5-Underground Parking Garage Museum of Endurance Sports and Athletes
52 Ground Floor Plan Scale: 1/64”=1’0” Legend 1-Lobby 2-Gift Shop 3-Temporary Gallery 4-Cafe 5-Kitchen 6-Classroom 7-Restroom Dallas, TX

Second/Third Floor Plan Scale: 1/32”=1’0”

53
Legend 1-Gallery 2-Office Area 3-Restroom Museum of Endurance Sports and Athletes

Fourth

54
Floor Plan
1/32”=1’0”
1-Gallery 2-Research Archive Dallas, TX
Scale:
Legend

Fifth Floor Plan

Scale: 1/32”=1’0”

55
Museum of Endurance Sports and Athletes
Legend 1-Gallery 2-Netting Walkway
34

Wall Section

Scale: 1/16”=1’0”

Museum of Endurance Sports and Athletes

57 1 4 2 3 5 Versa -Seam Metal Panel Vertical Panel 4" Fastener 3" Rigid Insulation Control Layers 1 1/2" Fastener 1/2" Plywood Sheathing 3" Concrete on Metal Decking W Flange Steel Beam #10 1" Wafer Head Fastener Horizontal Subgirt Steel Plate Head Trim Rubber Thermal Break Welded Steel Tube w/ Pin Connection Versa Seam Metal Panel #10 1" Wafer Head Fastener Horizontal Subgirt Steel Connection Plate Rubber Thermal Break Vertical Panel 3" Rigid Insulation Control Layers 1/2" Plywood Sheathing 4" Light - Gauge Steel Wall Stud 4" Fastener 1 1/2" Fastener Welded Steel Tube w/ Pin Connection 1/2" Concrete Panel Horizontal Subgirt #10 1" Wafer Head Fastener Vertical Panel 3" Rigid Insulation Control Layers 1/2" Plywood Sheathing C.I.P Conrete Wall Return Air Duct 4" Light -Gauge Steel Support 4" Fastener 1 1/2" Fastener 4" Light -Gauge Steel Support 2 3
1

12" Cast In Place Concrete Foundation Wall

1" Cork Expansion Joint

6" Slab on Grade Floor

Versa -Seam Panel

4" Light Gauge Steel Wall Stud

1/2" Plywood Sheathing

Control Layers

3" Rigid Insulation

Vertical Panel

Flashing #10 x 1" Wafer Head Fastener

Horizontal Subgirt

Base Trim

Flashing Fastener

2" Diameter Drainage Tile

6" CIP Retaining Wall

1" Rubber Expansion Joint Control Layers

4" Rigid Insulation

3" Gravel

6" Slab on Grade Floor

3" Gravel

Air Supply Vent

1" Expansion Joint

5" Concrete on Metal Decking

Wide Flange Steel Beam

1/2" Plywood Sheathing

1 1/2" Fastener

Control Layers

3" Rigid Insulation

Bolted Steel Plate

Versa -Seam Metal Panel

Horizontal Subgirt

#10 1" Wafer Head Fastener

Vertical Panel

4" Light -Gauge Steel Wall Stud

58
4 5 Dallas,
TX
59
Section AA Scale: 1/32”=1’0”
Museum of Endurance Sports and Athletes
60 Dallas, TX
61
6 22 2
03
Makerspace Kansas City, MO

Makerspace

In this second year studio project we were tasked with designing a makerspace in a struggling area of Kanas City, Mo. The makerspace would mainly be used to teach job skills, mainly for manual labor occupations. The form was derived using stereotomy which is where you subtract forms from a block. The cutouts were derived from various site elements. This created an open first floor for the heavy machinery and a more closed and quiet work environment above.

High density of churches, mental health facilities, and other positive bulidings.

65
Bringing both communities together Bus stops on 27th Street Site juxtaposition to crime lab
Makerspace
66 Kansas City, MO
67 Makerspace
68
Level 2 Scale: 1”=20’0” Level 1
1-Classroom 2-Studio 3-Open Workspace 4-Office 5-Lounge 6-Deck 7-Restroom 1 1 2 3 2 2 4 4 5 6 7 7 1-Enclosed Workspace 2-Dust Room 3-Storage 4-Loading Dock/Storage 5-Restroom 12 3 4 5 5 AA AA BB BB Kansas City, MO
Scale: 1”=20’0”

North Elevation

Scale: 1/16”=1’0”

West Elevation

Scale: 1/16”=1’0”

69 Makerspace

Section AA

Scale: 1/16”=1’0”

Section BB

Scale: 1/16”=1’0”

70 Kansas City, MO
75
76 Jordan Vonderbrink jtvondy@gmail.com 785-393-7599

Turn static files into dynamic content formats.

Create a flipbook
Issuu converts static files into: digital portfolios, online yearbooks, online catalogs, digital photo albums and more. Sign up and create your flipbook.