Joshua Patrick | Sophomore Portfolio - PX4

Page 1

JOSHUA PATRICK
2 J oshua P atrick

Contents

APARTMENT COMPLEX

SOLAR PARK DORRIS FARM RESEARCH STUDIO

MODERN HOUSE COLLECTION

COMMUNITY CENTER

JJ’S PLAYHOUSE CHILDREN’S MUSEUM

MORRIS HALL LIBRARY RENOVATION

P. 06 P. 10 P. 14 P. 22 P. 46 P. 52 P. 56 P. 62

3 PX4

STUDIO PROJECTS

APX1

APARTMENT COMPLEX FRESHMAN STUDIO - 2021

PROJECT BRIEF

This project consists of the observation and experimentation of shared spaces through the conversion of a parking lot into a public plaza and garden. Dividing the plaza and garden is an apartment complex for two residents.

This structure utilizes eco-friendly features including natural light and a green roof. The structure’s appearance also displays the illusion of floating on the second level; allowing the space between the two floors to be another source of natural light for the first floor.

Half of the site is a private space blocked off from the public while the other is faced towards the city and plaza, making the space more interactive. Both residents will share a covered atrium at the entrance of the structure.

6 J oshua P atrick
7 S tudio P roject S

SPATIAL DESIGN

This design explores the possible use of spaces shared between two individuals. The plans below explore the use of space and placement of walls for each floor. The plan also displays the entrance to the structure, which is designated as a shared space for its users. Beyond this entrance, the spaces are divided, giving the most privacy to the first floor as it faces towards a backyard garden, and the second having a balcony facing a public plaza.

FIRST FLOOR

SECOND FLOOR

8 J oshua P atrick
Section B
Section A
9 S tudio P roject S

SPX1

PROJECT BRIEF

This model was created utilizing cardboard material as well as using any excavated material as part of the site. There is a primary and secondary entrance to the site from the sides, a large gathering space, and two smaller spaces for its users.

This project took a great amount of planning in order to determine where excavated pieces would go and what type of structure would be formed around the site. As a result, I decided to make the site open and accessible from multiple areas by utilizing underground spaces.

10 J oshua P atrick
11 S tudio P roject S
12 J oshua P atrick
Section B Section A SITE LAYOUT
13 S tudio P roject S

SCX1

350 SQ. FT. COTTAGE SEMESTER PROJECT:

FARM FRESHMAN STUDIO - 2021

PROJECT BRIEF

This project entails the construction of a 250 sq. ft. and 350 sq. ft. cottage for Doris Farm, an agritourism site located in middle Georgia in America’s historic Black Belt, that explores the agricultural heritage of the birthplace of Black America.

Inspired by micro-housing and modern vernacular architecture, this design focuses on wheelchair accessibility, access to the environment, as well as maximizing its potential indoor and outdoor spaces. This contributes to the client’s goal of creating a place where visitors can relax in nature and enjoy scenic farmland.

14 J oshua P atrick
15 S tudio P roject S

GREEN ROOF DIAGRAM

Both structures utilize a green roof to assist in the absorption of heat, carbon dioxide, and precipitation, as well as provide insulation during hot summers. This also replaces environmental features that are displaced during construction, allowing each structure to blend into the environment while emphasizing its extension from the ground. Plants utilized on the green roof may consist of succulents, stress-tolerant grasses, mosses, and herbs. In addition to these features, the roof may also house solar panels.

CONCEPT DIAGRAM

A B C
A 16 J oshua P atrick
B C
LARGE COTTAGE - FLOOR PLAN
17 S tudio P roject S
Section A Section B Section C

SPX2

250 SQ. FT. COTTAGE

SEMESTER PROJECT: DORRIS FARM

FRESHMAN STUDIO - 2021

1 2 - 250 SQ. FT. COTTAGE - 350 SQ. FT. COTTAGE 18 J oshua P atrick

PROJECT BRIEF

This project entails the construction of a 250 sq. ft. and 350 sq. ft. cottage for Doris Farm, an agritourism site located in middle Georgia in America’s historic Black Belt, that explores the agricultural heritage of the birthplace of Black America.

Inspired by micro-housing and modern vernacular architecture, this design focuses on wheelchair accessibility, access to the environment, as well as maximizing its potential indoor and outdoor spaces. This contributes to the client’s goal of creating a place where visitors can relax in nature and enjoy scenic farmland.

2 N

1
19 S tudio P roject S

WALL STORAGE DIAGRAM

This diagram was created to explore the process of enlarging a space through the extension of its walls. To acquire this, some elements were integrated into the structure’s walls to reduce the amount of space taken up by beds, cabinets, etc. The diagram below depicts the steps involved in constructing this wall as well as the various storage options available. Interior wooden panels are used to cover the wall’s surface, concealing the elements within.

A B C B C A = 20 J oshua P atrick
- EXTERIOR PANELS - EXTERIOR WALL - INTERIOR WALL FRAME - STORAGE
- INTERIOR
- FINAL
CABINET
PANELS
PRODUCT
21 S tudio P roject S
Section A Section B Section C

RESEARCH PROJECTS

CC Foundation

22,350 SQ. FT. STRUCTURE

SOPHOMORE STUDIO - 2022

PROJECT TEAM: Sanju Rajesh & Marc Washington

ROLE

Angel Knot Configuration

Carpetwork Variations

Final Renderings

Final Screens & Orientation

Shadow & Program Analysis

PROJECT BRIEF

This studio project focused on the process of  “Figuration and Deep Decoration” as we focused on the study of Celtic knotwork, its history, and the dissection of figural elements in Celtic ornaments. Through this process, we created a conceptual structure designed to be “A House of the People.”

24 J oshua P atrick
COMMUNITY-CENTERED FOUNDATION
25 R esea R ch s tudio

CONFIGURATION

Analyzing x and c figures, we used the configuration to create our own variation of a Celtic knotwork. This knotwork, named the “Angel Knot” (seen above), was then configured into a carpetwork as we analyzed its interwoven connections. This knot was then used to create other configurations through the manipulation of its components and geometry, creating new carpetwork variations. This process was continued to create a series of screens that could then be explored in the orientation phase.

KNOT |
26 J oshua P atrick
ANGEL
CONFIGURATION PROCESS
CARPET-WORK
27 R esea R ch s tudio
VARIATIONS
28 J oshua P atrick ORIENTATION 3

ORIENTATION

Through simplifying, thickening, thinning, and layering, these variations were used to understand how their geometries respond to each other. In this phase, multiple screens are laminated together to create density. We then used the process of cutting and bending the laminated layers to create a series of spaces that will be separated into eight levels.

ORIENTATION 4 29 R esea R ch s tudio
FINAL ORIENTATION 30 J oshua P atrick
31 R esea R ch s tudio

FINAL ORIENTATION OF LAMINATED SCREENS

32 J oshua P atrick
33 R esea R ch s tudio

SITE ANALYSIS

This project is located in Rocinha, Rio de Janeiro, a city located in the Southeastern Region of Brazil. Rocinha sits in a valley within the hilltops that line the coast of Rio. It is a very densely populated city and is known as the largest favela in Rio de Janeiro. Rocinha gets this recognition because of its large collection of makeshift housing, which is the result of the population’s exponential growth and the need to retain the family unit. The purpose of building in Rocinha was to create “A House Of The People,” which would accommodate both the local climate, culture, and housing infrastructure.

PRECIPITATION DATA RIO RIO ROCINHA RIO DE JANERIO BRAZIL
34 J oshua P atrick
ROCINHA
SITE OPTION B
SITE OPTION A MORNING MORNING NOON NOON EVENING EVENING 35 R esea R ch s tudio
SHADOW STUDY

FUNCTION

This structure was organized as a Community-Centered Foundation, which invites all the families and people within the city to relax, learn, and connect together outside of the bustling energy of the favelas. Family unity is really important. Therefore, we wanted to make sure there was a space where they could congregate and socialize. In order to create a calm setting away from the busy streets, we chose the site nestled among the wooded slopes (Site B) for this reason.

SPATIAL DIAGRAM 36 J oshua P atrick
PROGRAM DISTRIBUTION 37 R esea R ch s tudio LEVEL 1 LEVEL 2 LEVEL 3 LEVEL 4 LEVEL 5 LEVEL 6 LEVEL 7 LEVEL 8
38 J oshua P atrick

FLOOR 8: LIVING SPACE

FLOOR 7: LIBRARY & STUDY SPACE

FLOOR 6: LOBBY & LOUNGING SPACE

PERFORMING SPACE

FLOOR 5: LOBBY

FLOOR 4: LOBBY & DINING SPACE

FLOOR 3: LARGE EVENT SPACE

FLOOR 2: ATRIUM AND DINING SPACE

FLOOR 1: PLAYING FIELD & LOUNGING

SERVICE SPACE DINING SPACE

CONNECTING SPACE

LIVING SPACE EDUCATION SPACE

39 R esea R ch s tudio
40 J oshua P atrick
LEVEL
LEVEL 1 LEVEL 3 LEVEL 2
4
41 R esea R ch s tudio
LEVEL 8
LEVEL 5 LEVEL 7 LEVEL 6
42 J oshua P atrick
43 R esea R ch s tudio

VISUALIZATION PROJECTS

GA-MHX3

PROJECT BRIEF

This project entails the construction modern home located in the desert. There are various areas accessing natural light as well as solar panels located on the roof. The shape of the roof extends over the front and back entrances, providing shade from the sunlight. The roof also covers a small portion of the driveway to provide shaded parking.

This design is surrounded by a large amount of vegetation as it is made for a secluded location for connection to the environment. The concrete exterior provides assists in heating and cooling the structure with less energy. It also provides a low-maintenance and durable exterior to the home.

46 J oshua P atrick
47 V isualization P rojects

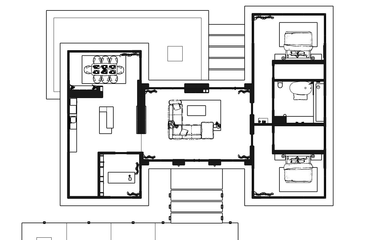
FLOOR PLAN

48 J oshua P atrick
Section B 49 V isualization P rojects
Section A

GA-MHX3

STRUCTURE

This home consists of two bedrooms and personal bathrooms, living room, kitchen, dining room, and a office. Each room has their individual areas of access to natural light. Other than concrete, a wooden material is also used through out the interior and underneath the exterior ceiling.

50 J oshua P atrick
MODERN HOUSE COLLECTION PERSONAL PROJECT - 2022
51 V isualization P rojects

PROJECT BRIEF

The goal of this project was to create a community center, replacing warehouses located next to the BeltLine, to further connect the community. My design utilizes circles and arcs throughout the site to represent a connection to the neighborhoods surrounding the site. The structure formed as an arc facing towards the BeltLine and neighborhoods, symbolizing its connection to its environment to form a whole.

This design was created in the midst of racial problems occurring in America. Taking this in consideration, I wanted to focus on the importance of connection and challenge this through where the structure is facing and how it is approached by its users. This design connects the community to the building, making it a place where various people can connect.

52 J oshua P atrick
CCX1 COMMUNITY CENTER AIA HIGH SCHOOL COMPETITION - 2021
53 V isualization P rojects

STRUCTURE

This design utilizes an abstract exterior with certain areas designated for vegetation. This design was created to house up to four vendors and library on the first floor. Both floors provide a staircase to access a gym, multiple offices, bathrooms, and rooftop garden.

Exterior areas of the structure provide seating for its users as well as space for bikers passing through. In addition to this, the size of the structure itself, provides shade tin certain areas, such as the waiting area for the buss stop. The back of the structure provides access to the BeltLine, providing direct access to its community.

54 J oshua P atrick
COMMUNITY
CCX1
CENTER AIA HIGH SCHOOL COMPETITION - 2021
55 V isualization P rojects

JJPX2

PROJECT BRIEF

For this project, I was asked by the owner of JJ’s Playhouse to create a concept design for their children’s museum. Creating the structure, I utilized the colors and shape of their logo to create the form of the structure. Being a children’s museum, I wanted to create a space that appears fun and inviting. Keeping this in mind, I utilize colorful vegetation around the site and highlight the bright colors of the exterior.

Another element I wanted to add to this structure was a sense of creativity. For this element, I utilize an abstract design for the roof. There are two abstract forms placed on the front corners of the structure, while the rest of the roof extends out towards the back, pointing towards the sky.

56 J oshua P atrick
57 V isualization P rojects

STRUCTURE

This design provides a space for multiple exhibits that will be featured in the museum, as well as multiple gathering spaces. These spaces will be used for classes, parties, and other small events. The back of the structure was also designed as an outdoor space for people to gather. In addition, the impact of COVID has encouraged the inclusion of outdoor spaces for events and activities.

Renderings are featured on the organization’s website: www.jjsplayhouse.org

58 J oshua P atrick
JJPX2
59 V isualization P rojects

COMPLETED PROJECTS

RX1

MORRIS HALL LIBRARY RENOVATION

PROJECT BRIEF

During my Sophomore year, I was asked to design the Morris Hall Library at my school. When my principal entrusted me with redesigning my school’s library, I was able to serve my student body by improving their learning environment and using the power of innovation to inspire more creativity. From old and frumpy furniture to its boring color, the dull space discouraged students from studying there. After I surveyed my student body for opinions and connected with the librarian, I started drafting my designs and considered some student-friendly additions for the space.

62 J oshua P atrick
63 C ompleted p roje C ts

CLIENT PROJECT - 2019

BEFORE Library Design Article:

“In the past, the library was housed in a modular building. Faculty members who have been here for a number of years remember it as a dark and cloistered space. The furniture and bookshelves were dark, heavy, and did not allow for true collaboration. Eventually, the library moved out of the mod and into the new Upper School building. This allowed for a larger space, but the same furniture was utilized from the original location. The space was available; however, the functionality was not. Within the last two years (2017–2019), it became apparent that the library space could be better utilized”.

64 J oshua P atrick
RX1
65 C ompleted p roje C ts

RX1

AFTER

The transformation changed my school’s dynamic and encouraged more frequent fellowship among students. Daily meetings were held there afterward, and teachers started using this area to teach their classes. If anyone wanted their personal space away from everyone else, they now had the space to do so. Since then, the library has always been full of students. Anyone who wanted to read, study, or just relax, retreated to the library. The library was changed from a dull and avoidable space to an enjoyable common ground for all the students.

66 J oshua P atrick
67 C ompleted p roje C ts

JPPATRICK2702@GMAIL.COM 404.513.7900

FOR MORE WORK: FOLLOW @GUARDIAN_X1 ON INSTAGRAM

THANK YOU
Contact
PORTFOLIO - PX4

Turn static files into dynamic content formats.

Create a flipbook
Issuu converts static files into: digital portfolios, online yearbooks, online catalogs, digital photo albums and more. Sign up and create your flipbook.
Joshua Patrick | Sophomore Portfolio - PX4 by JP Patrick - Issuu