Joy C Arch Portfolio - April 2023

Page 1

JOY CHRISTENSEN ARCHITECTURE

(253) 284-6475

joyech@uw.edu

JOY C

WORK

2018 - current server, management support / The Cheesecake Factory

summer 2022 digital design intern / Seattle Public Library

2015 - 2017 senior lifeguard / City of Pasadena

SCHOOL

2019 - 2023 bachelor of arts in architectural design with a minor in classical studies / University of Washington, Seattle

2013 - 2017 Pasadena High School

COMMUNITY

2022 - current professional outreach director, liaison / American Institute of Architecture Students (AIAS)

2022 - current education committee / Natl. Organization of Minority Architecture Students (NOMAS)

2022 - 2023 mentor / Mentorship Program by AIAS

RECOGNITION

spring 2023 exhibited in UW Architecture Hall

fall 2023 featured in the CBE Student Work Archive

2020 - 2023 dean’s list

winter 2022 featured in the CBE Student Work Archive

SKILLS

Adobe Photoshop

Rhinoceros 3D

Adobe InDesign

Adobe Illustrator

Lumion

Revit

DIALux Evo

Autocad

CONTENTS

01 02 03

REFUGE

temporary accomodations for those seeking asylum from the southern border

CANYON

an embedded shellhouse reaching out to the duwamish river

GLOW

a gallery balancing natural and artificial light to create uncanniness

PATINA

an urban food center creating community space and fresh produce

04

01 REFUGE

PROF ELIZABETH GOLDEN / WINTER 2023

In a collaboration with Arizona State University and the City of Scottsdale’s Brick by Brick program, this refuge uses compressed earth blocks (CEP) to create a safe and welcoming place to shower and sleep for asylum seekers coming from the southern border. This proposal is one of many for the Iglesia Cristiana El Buen Pastor in Mesa, Arizona and is looking to begin construction in 2024.

In collaboration with Megan Sun. Submitted to the Holcim Awards competition. Exhibited in Architecture Hall for a 10-week period.

002
003
004
005
site photo 1 site photo 2 early iterations meeting with Pastor Hector existing accomodations area 3 Mesa, Arizona
006 b b a a
007
008
section a
ventilation solar
section b

north garden and sitting areas

009
public mural on street-facing wall
010
south garden and sitting areas corridor between bathrooms and sleeping area CEP tree bench
011
012

PROF DAN STETTLER / FALL 2022

As a redesign for South Park’s Duwamish Rowing Club, this boathouse responds to the topography of the site and the inherent linearity of sculls and shells. The boat shelves direct visitors and teammates onto the 400-foot long dock and out onto the Duwamish River. This design focuses on giving public space back to the community, whether or not they are rowers.

Featured in the College of Built Environment’s Student Archive.

02
CANYON
014
015

concept sketches

016
1/2” = 1’-0” model of boat canyon
017
area 1 area 2 area 3
1 2 3 4
area 4 South Park, Seattle
018
019 b b a a section a
020
section b
1
1. Patio 2. Lobby 3. Meeting Room 4. Training Room 5. Locker Room 1 6. Locker Room 2
2 3 4 5 6 7 c c section c 021
7. Public Viewing Platform
022
clubhouse patio viewing platform concept section 2 concept section 1

PROF SHAUN DARRAGH / AUTUMN 2022

PROF KIM PHAM AND JULIA REEVES / WINTER 2022

This is an art gallery to display the photography of Thomas Weinberger with a design inspired by his specific, uncanny style. The gallery uses polycarbonate to allow daylight and internal, artificial light after dark. This project was reinvented to incorporate lighting design techniques and specifically uses change in color tones and intensity to give movement to visitors.

03
GLOW
Featured in the College of Built Environment’s Student Archive.
024
025
026
lighting design concept sketches
027
Ballard, Seattle site overview site photo 1

LUMINAIRE L6

EASYLINK FROSTED LENS

LUMINAIRE L2 SPREDLITE HI DL/12

LUMINAIRE L5

EMPATIA 36 SUSPENSION 2-WIRE DIMMING

LUMINAIRE L4

EMPATIA 16 SUSPENSION EXT LENGTH

LUMINAIRE L3

STACKLITE CZE-OBM

LUMINAIRE L1

EASYLINK FROSTED LENS

LIGHTING PLAN 1:150

028
A
B B
A
A 029 1
LONGITUDINAL SECTION AA 1:150
1. Lobby
2
2. Gallery Room

MIN DEPTH INTO CEILING

MIN DISTANCE FROM WALL

SURFACE TO BE ILLUMINATED

DETAIL 1A 1:50

NEIGHBORING BUILDING

DETAIL 2 1:30

BUILDING

030
TRANSVERSE SECTION BB
LUMINAIRE L1
3/32” = 1’-0”
2"
15"
16"
5.5" 8.25"
SPREDLITE HI DL/12
NEIGHBORING
1B 1A 3 35'-7" SIDEWALK 6'-0" 24'-7" 15'-10" 13'-5" 2
SINGLE-SIDED POLYCARBONATE WALL DOUBLE-SIDED POLYCARBONATE WALL
032
light placement under stair
STAIR AXONOMETRIC 1:125
stair and wall illumination

MIN DEPTH INTO CEILING

MIN DISTANCE FROM WALL

SURFACE TO BE ILLUMINATED

DETAIL

DOUBLE-SIDED POLYCARBONATE WALL

SINGLE-SIDED POLYCARBONATE WALL

NEIGHBORING BUILDING

DETAIL 2 1:30

NEIGHBORING BUILDING

033
POLYCARBONATE EXTERIOR SHEATH MULLIONS
13'-7"
GYPSUM INTERIOR SHEATH LUMINAIRE L1
3" 1.5" 4"
1A 1:50 LUMINAIRE L1 EASYLINK HONEYCOMB LOUVRE
2" 16" 15"
DETAIL 1B 1:10
5.5" 8.25"
LUMINAIRE L2 SPREDLITE HI DL/12
1A SIDEWALK 24'-7" 2

PROF DAN STETTLER AND BECKY ROBERTS / SPRING 2022

Responding to the explosive development of Seattle’s Columbia City neighborhood, this urban food center fulfills the needs of the community with a public indoor/outdoor market space, vertical indoor gardening, outdoor gardening, a library, small classrooms, and a restaurant and bar on the top floor. The use of the copper screen, and its eventual patina, mirrors the growth of its neighborhood.

04
PATINA
035
036
037
1
area
area 3 area 4
1 2 3 038
Columbia City, Seattle
039
1 b b c c a a 040
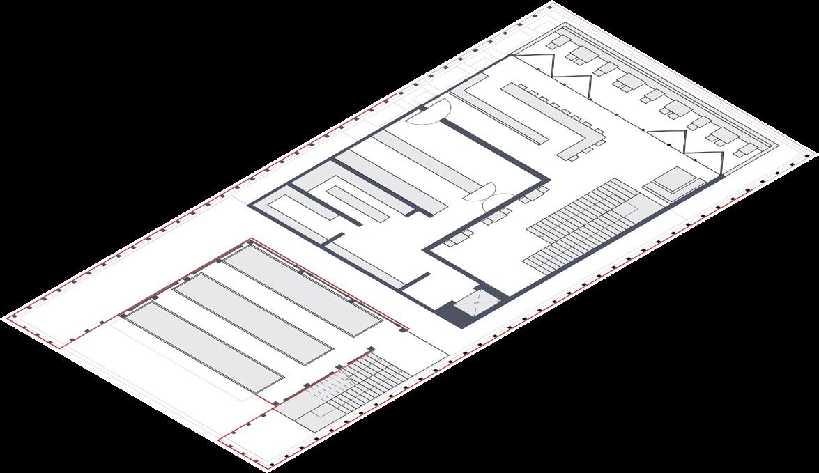
2 3 4 5 6 7 8 9 10 1
1. market space 2. composting facilities 3. vertical indoor farming 4. gardening 5. library 6. classrooms 7. outdoor reading space 8. teaching kitchens 9. office
041
10. Good Thymes kitchen and bar
042
section a section b section c
043
early concept model of indoor market space progress picture of final model final copper model with site context
044 outdoor reading area public gardens market space Good Thymes bar
045
thank you for reading joyech@uw.edu (253) 284 - 6475

Turn static files into dynamic content formats.

Create a flipbook
Issuu converts static files into: digital portfolios, online yearbooks, online catalogs, digital photo albums and more. Sign up and create your flipbook.