PORTAFOLIO ARQUITECTURA JCF

Page 1

PORTAFOLIO ARQUITECTÓNICO 2024

JONATHAN CRUZ FEREGRINO

“Nuestra arquitectura es el reflejo de lo que somos”
1
EDIFICIO DE USOS MIXTOS 3 5 8 10 12 14 16 20 22 25 2 YUGEN PROYECTOS INTERVENCIÓN URBANA C A M I N O R E A L ARQUITECTURA DE PAISAJE C O R R E D O R U R B A N O V E R D E ARQUITECTURA DE PAISAJE KUA´HL CABAÑA | ESTUDIO NEJNI HOTEL BOUTIQUE B’IPA VIVIENDAS JM VIVIENDA RESIDENCIAL CS DEPARTAMENTOS JF HOTEL BOUTTIQUE M E S Ó N D E L A U N I Ó N 27 REPRESENTACIÓN GRÁFICA ANEXOS

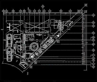
YUGEN

EDIFICIO USOS MIXTOS

SAN JUAN DEL RÍO, QRO, MÉXICO

El proyecto se sitúa en el estado de Querétaro (México), uno de los estados con mayor crecimiento en la industria. Concretamente en el municipio de San Juan del Río, lugar clave en la historia del País.

La zona de intervención tiene accesibilidad desde los diferentes puntos de la ciudad, dentro de los puntos de interés se encuentran escuelas, plazas comerciales, edificios gubernamentales, parques públicos, viviendas y servicios básicos que potencian el espacio de intervención.

Yugen es el núcleo de la apreciación de la belleza y el arte. Valora el poder de evocar, más que la capacidad de decirlo directamente. El principio de Yūgen muestra que la belleza real existe cuando, a través de su sugestividad, solo unas pocas palabras, o algunas pinceladas, pueden sugerir lo que no se ha dicho o mostrado y, por lo tanto, despertar muchos pensamientos y sentimientos más íntimos.

Lic. Fernando Díaz Ramírez, Nuevo San Juan, San Juan del Río. Querétaro, México. Fernando Díaz Ramiréz Mercedes Camacho Manuel Gómez Morin N Zona de impacto Zona de alcance Colinda zona centro 3

PROCESO

El proyecto se sitúa en el estado de Querétaro (México), uno de los estados con mayor crecimiento en la industrial. Concretamente, en el municipio de San Juan del Río, lugar clave en la historia del País.

La zona de intervención tiene accesibilidad desde los diferentes puntos de la ciudad, dentro de los puntos de interés se encuentran escuelas, plazas comerciales, edificios gubernamentales, parques públicos, viviendas, servicios básicos que ayudan a potencializar el espacio a intervenir.

En su contexto inmediato no existe otro proyecto con caracteríscas similares, lo que beneficiaría el aspecto social y urbano.

CONCEPTO

Yugen es el núcleo de la apreciación de la belleza y el arte. Valora el poder de evocar, más que la capacidad de decirlo directamente. El principio de Yūgen muestra que la belleza real existe cuando, a través de su sugestividad, solo unas pocas palabras, o algunas pinceladas, pueden sugerir lo que no se ha dicho o mostrado y, por lo tanto, despertar muchos pensamientos y sentimientos más íntimos.

-blico y avenidas principales.
Habitacional
conectarvolumetríasvólumenesVolumenes
los
Zona
Emplazamiento
Disposición cios diato multisensorial. Patios Espacialidad contemplación atmosferica los espaciosdo y cobijo de
usuarios Visuales Cuatro mentos contemplación que usuario desde diferentes puntos de la zona.
D I F I C I O D E U S O S M I X T O S 4
Y U G E N 01E

CAMINO REAL

INTERVENCIÓN URBANA

SAN JUAN DEL RÍO, QRO, MÉXICO

El proyecto se situa en el estado de Querétaro (México) uno de los estados con mayor crecimiento en la industría. Concretamente en el municipio de San Juan del Río, lugar clave en la história del País por su Camino Real de Tierra Adentro (Activa desde mediados del siglo XVI), la calle real era la forma de denominar la parte urbana del Camino Real, cuando entraba a las poblaciones, y era a lo largo de ella que se establecían los Mesones, los Paradores, las Casas de Diligencias y uno que otro Fogón que daban servicio de alimento y hospedaje a los cansados viajeros.

Permeabilidad social “El peatón va primero”. Pretende no romper con la membrana urbana definitva, sino, colarce, generar espacios en donde antes no había, buscando no ser definido su uso por una población en particular, mas bien, que cada individuo lo utilice de acuerdo a sus necesidades y capacidades.

Av. Benito Juárez, Centro Histórico, San Juan del Río. Querétaro, México. 5

de transporte

a la central

20|9|5|7|9|11|43|28|32|38|39|47

general

Área de impacto

3 min. (Población 1271 hab.)

6 min. (Población 3958 hab.)

9 min. (Población 7850 hab.)

6 1 A B 2 3 4 5 0 1000 2000 3000 N E O S S-A S-A S-B S-B S-C S-C S-D S-D CULTURA, SOCIEDAD E IDENTIDAD SITUACIÓN ACTUAL FIESTAS POPULARES Y DANZAS TRADICIONALES S I M B O L O G Í A 1 2 3 4 5 A R D N N D P E N D E N C A A D N DE LA FAMILIA J A R D N DEL ARTE Y LA MUJER ANTIGUO PORTAL DE LA UNIÓN RÍO SAN JUAN Estacionamiento Centro
Servicios
Edificio
Plaza
Templo
Banco Hotel Eduación Plazas
Parada
Rutas
público 4|11|14|16|23|7|24|R-1|R-31|28| 43|25|9|17|2|5|8|20|9|39 Sitio
A
de Salud
Municipales
Emblematico
Comercial
Católico
y Jardines
de autobus
de transporte
de Taxis Circulación transporte público Nodos conflicitivos
Rutas
público
B
Fue donde habitaron los primeros pobladores del municipio, están los grupos ‘Danza del Rey Saúl’, ‘Chichimeca Techimacit’ y ‘Danza Guadalupana’. LAS DANZAS DEL BARRIO DE LA CRUZ. SECCIÓN A AV. JUÁREZ SECCIÓN B SECCIÓN C SECCIÓN D Este grupo de danza es originario de San Isidro en San Juan del Río. Esta danza de moros y cristianos y de la conquista son expresiones populares que siguen vigentes después de más de 400 años. DANZA DE CONQUISTA DE MOROS Y CRISTIANOS. Grupo de huapango ntegrado por sanjuanenses, fue creado en el año 1985. Mecehualtin Mitotiani significa en náhuatl "Gente del pueblo danzando"; como un arte, ha sido transmitida de generación en generación. Amaranto Adoquín cuadrado de cantera Adoquín rectangular de cantera Loseta de Barro Azulejo de Talavera Azulejo de concreto Amaranto Árbol trueno Se celebra en el Templo parroquial de San Juan Bautista. Festividad católica que celebra la presentación del Niño Jesús en el Templo. Se celebra en el Templo parroquial de San Juan Bautista. Festividad católica que celebra la presentación del Niño Jesús en el Templo. DANZA FOLCLÓRICA "MECEHUALTIN MITOTIANI". Es una danza tradicional desde hace muchos años. Los shitaces tradicionales son personajes ataviados de máscaras, anteriormente pañuelos para cubrir sus rostros aportando un poco de humor a las tradiciones del municipio. DANZA SHITA O XITA. 2 DE FEBRERO "DÍA DE LA CANDELARÍA". GRITO DE INDEPENDENCIA. USOS DE SUELO MATERIALIDAD EXISTENTE VEGETACIÓN Y FAUNA DIAGRAMA DE PROBLEMÁTICAS VIALIDADES E e Urbano ejE ocsíF E e -oicos ócoce m c E esocio-cultu a C n e o m e n a J qu a d e au b e pea ó D mo v có n d e or e e Cen H F o vehcua e poco en endbe Viaidadespacialmen e n eice te AbandonopacaldePlazasMaa p ctica co sru tva Epac sdehabtado despue de as900pm F t de lumbradopúbic B a d nsdadhab ac na (us co er a p ncpa) pac pú co c us T o púb c d f c e G s deta poteal o Fuentesdetabajondutia De motivacóndeunadinámicaeconómca Maa ubcacón d come o amb De va o ac ón de a b c c a o p o M n u v a S e g e g c ó n d e mov dad Ter o odvdo Sevco concen adosene cenro Maa one óncon ío F d ma e me ourba o And d e dm ne C uda o ada F agm nt có d e paco púb co Cudaddedía nseguidadno tuna Nuladv ricacióndec mecios De aorzació delpatm nohsórco Nua mo vacón de hab a e espaco Poca p a ic p a ón en ev n tos a cu u a e o a p m e b d d o No hay relación con la vegetación, un sistema aislado que interrumpe la continuidad visual y espacial. Árbol trueno Paloma15.28% 16.61% 68.11% 16.04% 50.23% 16.66% 14.85% 14.85% 70.30% 20.80% 15.70% 14.87% 69.43%
Flujo vehícular
PARADAS OFICIALES TRANSPORTE PÚBLICO ALCANCE MOVILIDAD A PIE

Usuario espectador con espacios de movilidad reducida, no existen espacios contundentes.

Se analizan puertas abiertas que permiten entrar y ver el momento. Simulación del río inhato del municipio que se penetra la mancha urbana generando espacios

MAYOR PERMEABILIDAD AL EJE MAYOR MACROMANZANA Y MOVILIDAD

7
SECCIÓN A SECCIÓN B PROPUESTA
VIALIDAD 38.28% 23.60% 28.72% 9.40% 30.74% 35.51% 25.45% 8.30% CAMINO REAL SECCIÓN A CAMINO REAL SECCIÓN B
PROCESOS
DE

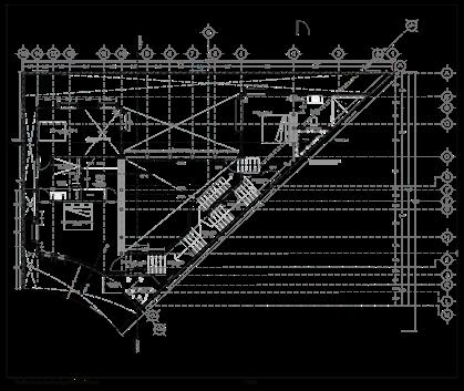
MESÓN DE LA UNIÓN HOTEL

SAN JUAN DEL RÍO, QRO, MÉXICO

El proyecto se situa en el estado de Querétaro (México) uno de los estados con mayor crecimiento en la industría. Concretamente en el municipio de San Juan del Río, lugar clave en la história del País por su Camino Real de Tierra Adentro (Activa desde mediados del siglo XVI), la calle real era la forma de denominar la parte urbana del Camino Real, cuando entraba a las poblaciones, y era a lo largo de ella que se establecían los Mesones, los Paradores, las Casas de Diligencias y uno que otro Fogón que daban servicio de alimento y hospedaje a los cansados viajeros.

Permeabilidad social “El peatón va primero”. Pretende no romper con la membrana urbana definitva, sino, colarce, generar espacios en donde antes no había, buscando no ser definido su uso por una población en particular, mas bien, que cada individuo lo utilice de acuerdo a sus necesidades y capacidades.

8
Av. Benito Juárez, Centro Histórico, San Juan del Río. Querétaro, México.
9

CORREDOR URBANO VERDE ARQUITECTURA

DE PAISAJE

SAN JUAN DEL RÍO, QRO, MÉXICO

El proyecto se sitúa en el estado de Querétaro (México), es una Planificación Medioambiental que rige el Plan de Espacios Multifuncionales e Intervenciones para el Control de los Cursos del Agua dentro del Municipio de San Juan del Río.

El plan de ordenamiento presenta mediante estructuras formales y espaciales la modificación del territorio del Municipio, generando dentro de areas Potenciales detectadas un retraso en la escorrentía de los cursos del Agua.

Así mismo, se busca modificar la ribera del río de manera estimulante y dinámica, buscando generar una infraestructura verde, que sustenta el desarrollo del tejido urbano, garantizando a la ciudadanía una red de Espacios Verdes que incluyen Redes de flujo peatonal y ciclismo.

Av. Río Moctezuma Dr. Ponciano Herrera Prof. Mercedes Prof. Mercedes Camacho Lic. Manuel O S UAQ | ARQUITECTURA | TALLER
Nuevo Parque industrial, San Juan del Río. Querétaro, México. 10
TALLER PLAN DE ESPACIOS MULTIFUNCIONALES E INTERVENCIONES PARA EL CONTROL DE LOS CURSOS DEL AGUA DENTRO DEL MUNICIPIO DE SAN JUAN DEL RÍO E S T A D O A C T U A L PROPUESTA 11 R EFERENCIAS V ISUALES P R O Y E C T O S C O N S T R U D O S R IVER -S PACE -D ESIGN E S T R A E G AS PROCESOS THE HIGH LINE NUEVA YORK, EUA PARQUE LIANJIANG CHANGSHA, CHINA CORREDOR VERDE BARCELONA, ESPAÑA N ATURE -B ASE -S OLUTIONS F O R U R B A N R E S L E N C E TÉCNICAS FUNCIONES BENEFICIOS DETALLES BOSQUE URBANO TÉCNICAS FUNCIONES BENEFICIOS DETALLES ESPACIOS VERDES ABIERTOS TÉCNICAS FUNCIONES BENEFICIOS DETALLES PROCESOS CORREDORES VERDES PROCESOS N ATURE -B ASE -S OLUTIONS F O R U R B A N R E S L E N C E TÉCNICAS FUNCIONES BENEFICIOS DETALLES BOSQUE URBANO TÉCNICAS FUNCIONES BENEFICIOS DETALLES PROCESOS CORREDORES VERDES PROCESOS R IVER -S PACE -D ESIGN E S T R A E G AS R EFERENCIAS V ISUALES P R O Y E C T O S C O N S T R U D O S THE HIGH LINE NUEVA YORK, EUA CORREDOR VERDE BARCELONA, ESPAÑA

KUA´HL

ARQUITECTURA DE PAISAJE

HÉROES DE LA INDEPENDENCIA, B.C, MÉXICO

El proyecto se situa en el estado de Baja California (México) y se desarrolla atraves de la descripción de un cuento indigena retomado de 68 voces.

“Hace muchos años antes la gente vivía en cuevas.

Dormían en el monte, iban y venían, ellos eran dueños de todo. La tierra era de ellos. Han pasado muchos años.

Desde que andaban ahí Quedan pocos, pero aquí siguen to davía

Y van a seguir hablando. Ellos con todo el corazón nunca van a dejar la lengua Kuahl.”

Muestra una reflexión en cómo se rela ciona la capacidad creativa del ser humano y de la naturaleza para gen eran una simbiosis entre ambos, permi tiendo una apropiación del paisaje En contraposición, transmite que hoy en día no es así, pues la ambición del hombre y la privatización de las tierras a generado una transfiguración cultur al , generando una degradación cul tural y de identidad, la relación entre naturaleza y humanidad cada vez se degrada más y lo que debemos hacer es a prevalecer con el corazón.

12
San Felipe-Ensenada, Héroes de la Independencia. Baja California, México.

APROPIACIÓN DEL PEATÓN EN EL PAISAJE

CORAZÓN KUA´HL GENIUS LOCI|ASOLEAMIENTO|VIENTOS

“Uso del terreno para desplazar a tres nodos de interés en la comunidad” “Respetar la escencia natural del sitio, los árboles llegaron primero”

CALLE

JARDÍN

SIMBIOSIS

“Un núcleo central que funge como el corazón del proyecto” “Relación mutua entre naturaleza y humanidad”

DEGRADACIÓN ENTRE EXTERIOR E INTERIOR

13
Centro de salud Templo Mercado

NEJNI CABAÑA|ESTUDIO

SAN JUAN DEL RÍO, QRO, MÉXICO

El proyecto se situa en el estado de Querétaro (México), concretamente en la comunidad de Dolores Cuadrilla de Enmedio, en el municipio de San Juan del Río.

Nejni se concibe a partir de escuchar los sutiles murmullos que un entorno como este susurraba, así como la busqueda de protección y serenidad experimentada en el sitio.

La cabaña funge como el níucleo de apreciación de la belleza, por lo que la arquitectura busca narrar el poema de su cotexto, dado por los mezquites, la tierra, el camino, la barranca y sus rocas emergiendo de ella, el murmullo del río en corriente.

Los acentos del poema se forman a partir de dos muros del sitio, que emergen del paisaje y entre ellos contienen la tierra del sitio, mostrando que la belleza real existe cuando através de la sugestividad, solo unas pocas palabras o algunas pinceladas pueden sugerir lo que no se ha dicho o mostrado y, por lo tanto, despertar muchos pensamientos y sentimientos mas íntimos.

14
Dolores Cuadrilla de Enmedio, San Juan del Río. Querétaro, México.
15
Murmullo del Río Se enfatiza el agua como elemento que sirve de costura entre el hombre y la naturaleza. Barranca La cabaña se sienta paciente sobre la ladera de un barranco esperando que a que el sol se oculte detrás del cerro.
TRABAJO MIRADOR PSICINA PATIO INTERIOR COCINETA BAÑO RECÁMARA S-A S-A S-B S-B SECCIÓN A FACHADA SECCIÓN B
Engawa Se genera un núcleo de apreciación del paisaje que provoca una transición suave entre interior y exterior. Vistas Se busca una relación visual entre el área de trabajo con la inspiración de la naturaleza.
ÁREA

B’IPA HOTEL BOUTIQUE

SAN JUAN DEL RÍO, QRO, MÉXICO

El proyecto se sitúa en el estado de Querétaro (México), dentro del Centro Histórico de San Juan del Río.

B’ipa nace a partir de crear un Hotel Boutique Bioclimático capaz de generar atmosferas y dinámicas vivenciales diferentes, generando experiencias gastronómicas, contemplativas e interactivas dentro del proyecto.

Así mismo, el proyecto se funde con su contexto, respectando la tipología existente y potenciandola con la manera de pensar contemporanea para generar un vínculo de lo existente con lo construido.

16
16 de Septiembre, Centro Histórico, San Juan del Río. Querétaro, México.

Bancos

Lugares de Culto

Alimentación

Farmacias

Gimnasios

Oficina de correros

Educación pública

Biblioteca

Mercado

Centro de Salud

Área de impacto

PARADAS OFICIALES TRANSPORTE PÚBLICO

Parada de autobus

Rutas de transporte público 4|11|14|16|23|7|24|R-1|R-31|28| 43|25|9|17|2|5|8|20|9|39

Circulación transporte público

3 min. (Población 1271 hab.)

6 min. (Población 3958 hab.)

9 min. (Población 7850 hab.)

Residuos peligrosos.

de Residuos sólidos no aprovechables.

de Residuos reciclables.

Almacenamiento de agua.

Disposición entrega de material.

Disposición material en uso.

Árboles existentes.

Área de circulación.

17 I M P A C T O S A M B I E N T A L E S
FACHADA FACHADA
INTERIOR INTERIOR
A
DIVERSIDAD DE USOS Y/O SERVICIOS
Se conservaron los arboles sanos de mas de 10 cm de diametro y las especies que se encuentran bajo régimen de protección. La fachada vista a la calle se encuentra en orientación Sur-Este, al contar con tres colindantes, se buscó captar la incidencia solar del Sur. Se realizó un informe que establece planeamientos para la conservación del medio natural de acuerdo a evaluaciones topográficas, climáticas, vegetación y suelo y apartir de ello se toparon decisiones para el planteamiento en sitio. Dentro de los siguientes diagramas se realizaron planteamientos en sitio en donde se protegen especies bajo régimen de protección ubicados en el terreno, así mismo se esquematizan las intenciones de diseño que buscan generar ese vínculo entre el la escencia natural del sitio con diferente tipo de actividades como: alimentación, actividad física, observación de flora, relajación y paseos peatonales. Debido a la restricción límitantes es muy poca la efectividad de ventilación cruzada, sin embargo, se tomaron patios interiores en algunas zonas para ayudar en dicho aspecto. Debido a la relación largo-altura, no se presenta un desnivel pronunciado en el terreno, contando con una pendiente del 3.8%. Por otro lado se análiza la precipitación del mes pico, esto con la intención de aprovechar los recursos naturales y potenciarlos dentro del proyecto. S I M B O L O G Í A 7 928 M2/Ha 4 258 M2/Ha 5 110 M2/Ha 9 885 M2/Ha 2 948 M2/Ha 2 948 M2/Ha 10 584 M2/Ha 8 576 M2/Ha 12 572 M2/Ha 16 774 M2/Ha 1 100 M2/Ha 8 815 M2/Ha 1 504 M2/Ha 7 692 M2/Ha 9 674 M2/Ha 7 819 M2/Ha 6 414 M2/Ha 7 293 M2/Ha 7 201 M2/Ha 6 580 M2/Ha 1 574 M2/Ha 5 019 M2/Ha 10 854 M2/Ha 7 634 M2/Ha 10 666 M2/Ha 9 257 M2/Ha 7 290 M2/Ha 4 383 M2/Ha 13 187 M2/Ha 15 538 M2/Ha 8 245 M2/Ha 7 993 M2/Ha 7 241 M2/Ha 11 083 M2/Ha 12 795 M2/Ha 6 360 M2/Ha 5 498 M2/Ha 5 385 M2/Ha 6 961 M2/Ha 4 349 M2/Ha 7 492 M2/Ha 13 596 M2/Ha 13 255 M2/Ha 16 252 M2/Ha 15 820 M2/Ha 12 980 M2/Ha 2 317 M2/Ha 6 162 M2/Ha 9 512 M2/Ha 5 480 M2/Ha 6 440 M2/Ha 10 687 M2/Ha 14 972 M2/Ha 3 294 M2/Ha 2 198 M2/Ha 8 168 M2/Ha 11 154 M2/Ha 10 060 M2/Ha 4 552 M2/Ha 1 100 M2/Ha Parques Peluquerías 1 2 3 4 T O P O G R A F Í A Y V E G E T A C I Ó N PLANTEAMIENTO PARA EL DESARROLLO DE LA OBRA DURANTE EL PROCESO DE CONSTRUCCIÓN PROTECCIÓN DE LA BIODIVERSIDAD DEL SITIO 1922 1921.75m 1921.50 1921 ASOLEAMIENTO VENTILACIÓN DATOS MEZQUITE MEZQUITE VELOCIDAD DE VIENTOS PERFIL DE ELEVACIÓN PRECIPITACIÓN|TEMPERATURA 1922 m 10 m 20 m 30 m 38 m 1921 m Almacenamiento
Recolección
ALCANCE MOVILIDAD A PIE
Recolección
P L A N T A B A J A P L A N T A A L T A Alimentación Actividad física Observatorio de flora Relajación Edificado Paseos peatonales Especies bajo régimen de protección y árboles sanos de más de 10 cm de diámetro P L A N T A B A J A MEZQUITE EUCALIPTO MEZQUITE MEZQUITE MEZQUITE P L A N T A B A J A Área de estacionamiento Área de construcción Circulación servicio Circulación emergencia Servicio | Descarga | Emergencia
18 PLANTA ALTA PLANTA BAJA PLANTA BAJA PLANTA BAJA PLANTA BAJA PLANTA ALTA PLANTA ALTA PLANTA ALTA El análisis energético del hotel se obtuvo un consumo energético de 353 kWh/m2/yr, con lo que representa una reducción del 14.32% respecto a un “edifico de referencia” de acuerdo a lo CONSUMO DE ENERGÍA Y RECURSOS NATURALES FACHADA PRINCIPAL SECCIÓN A ESQUEMA DISTRIBUCIÓN DE MATERIALES PREFABRICADOS ESQUEMA DISTRIBUCIÓN DE MATERIALES Piso GRATO Ávila Roble - Recubrimiento piedra para jardín Puertas WKS de chapa Pintura interior exterior en Pandora SIMBOLOGÍA Recubrimiento en muros piedra andesita Recubrimiento de piedra cantera negra en fachada Muro QUALYPANEL COVINTEC C C C C C C C C C C C C ESQUEMA DISTRIBUCIÓN DE CONSUMO Y APROVECHAMIENTO DE AGUA ANÁLISIS DE EFICIENCIA ENERGÉTICA Y CONTROL SOLAR MOBILIARIO VEGETACIÓN INODORO MONITOREO RIEGO Captación de agua pluvial (Uso de riego) Reutilización de aguas grises (Reuso en wc) Abastecimiento lavamanos, regaderas, lavadoras Captación de agua pluvial SIMBOLOGÍA SIMBOLOGÍA ESTACIÓN: INVIERNO HORA: 10:00 AM ESTACIÓN: INVIERNO HORA: 12:00 PM P L A N A ALTA A N A ALTA P L A N T A ALTA ESTACIÓN: INVIERNO HORA: 02:00 PM ESTACIÓN: INVIERNO HORA: 10:00 AM ESTACIÓN: INVIERNO HORA: 12:00 PM ESTACIÓN: INVIERNO HORA: 02:00 PM P A N T A B A A P L A N T A B A J A P A N A B A J A COCINA | BAR RECÁMARA VII VESTÍBULO VESTÍBULO JARDÍN
19 RECÁMARA III RECÁMARA V
PATIO INTERIOR ACCESO LOBBY

JM VIVIENDAS

SAN JUAN DEL RÍO, QRO, MÉXICO

El proyecto se desarrolla dentro del Municipio de San Juan del Río. Dicho proyecto surge de la necesidad de un cliente que cuenta con dos terrenos continuos y el cual se pretendieron fusionar para solucionar las neceisdades de crear un patrimonio y herencia a sus familiares.

Las viviendas en serie se distribuyen de manera eficiente en el conjunto a partir de un eje central que delimita restricciónes como nodo de distribución peatonal y vehícular para cada uno de las viviendas.

Cada unidad cuenta con su propio espacio privado y al mismo tiempo comparte áreas comunes como el articulador central.

Las viviendas cuentan con: Sala, Comedor, Cocina, Almacen de despensa, Bañi de visitas, Dos recámaras con baño propio y cuarto de lavado.

20
Nuevo San Isidro, San Juan del Río. Querétaro, México.
21

CASA SANTUARIA VIVIENDA RESIDENCIAL

SAN JUAN DEL RÍO, QRO, MÉXICO

El proyecto se desarrolla dentro del Municipio de San Juan del Río en colaboración con Immanente Biocasas. Dicho proyecto parte de la idea de revalorizar la vivienda capaz de sustentarse por sí misma que mejore la calidad de vida y las experiencias sensoriales del usuario.

La vivienda es planeada para un matrimonio de 50 años de edad y sus hijos adultos de 27 a 30 años interesados por revalorizar el patrimonio natural y generar una simbiosis entre arquitectura y naturaleza.

El proyecto utiliza estrategias pasivas como: techos verdes para reducir el calor absorbido durante el verano, ventilación cruzada, así mismo, se utilizan muros de BTC fabricados con tierra del sitio como aprovechamiento de la tierra asi como muros de tapial con el fin de captar la incidencia solar durante la tarde y calentar la vivienda durante la noche, ademas, se reutilizan las aguas pluviales para la biopiscina.

22
Fracc. Santuaria Residencial Vital, San Juan del Río. Querétaro, México.
23 ACUMULACIÓN GANANCIA TÉRMICA ESQUEMA 1 DURANTE EL INVIERNO EL MURO DE TIERRA COMPACTADA AL SOBRESALIR A LA INTERPERIE ACUMULA LA GANANCIA TÉRMICA DESDE ESQUEMA 3 DURANTE LA NOCHE, LA INERCIA TÉRMICA DEL MURO DE TIERRA COMPACTADA, PERMITE CALENTAR LA VIVIENDA. INTERIOR INTERIOR INTERIOR
24

SAN JUAN DEL RÍO, QRO, MÉXICO

El proyecto conceptual se situa en una colonia cercana a la Autopista Mexico-Querétaro dentro del Municipio de San Juan del Río. Dicho proyecto se desarrolla a partir de la necesidad y demanda de espacios habitables en renta para parejas y familias de hasta cuatro integrantes.

El proyecto se desplanta en un terreno de 10x25 metros, respetando una restricción vegetal existente de dos metros del lado norte como aprovechamiento de ventilación de vientos dominantes y accesibilidad a los departamentos, así mismo, el conjunto se divide en dos con circulación vertical de escaleras a partir de un árbol existente del lado sur.

El conjunto cuenta en planta baja con cochera para tres autos y dos departamentos con: Dos recámaras, baño compartido, sala-comedor, cocina y área de lavado. En planta alta se cuenta con un departamento con las mismas carácteristicas y dos para una pareja el cual cuenta con: Recámara compartida, cocineta, baño completo y área de lavado.

25
JF DEPARTAMENTOS
Col. Lazaro Cárdenas, San Juan del Río. Querétaro, México.
26

REPRESENTACIÓN GRÁFICA

TECNICAS MIXTAS

27
28
29
30
31
JONATHAN CRUZ FEREGRINO

Turn static files into dynamic content formats.

Create a flipbook
Issuu converts static files into: digital portfolios, online yearbooks, online catalogs, digital photo albums and more. Sign up and create your flipbook.
PORTAFOLIO ARQUITECTURA JCF by Jonathan Cruz Feregrino - Issuu