

![]()


OFFICE NUMBER: 07-554 8930
OFFICE EMAIL: leemarchitect@yahoo.com
OFFICE ADDRESS: No. 32B, Jalan Sutera Tanjung 8/4, Taman Sutera Utama, 81300 Skudai, Johor Bahru.

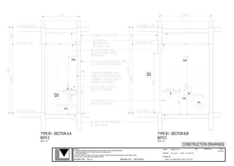
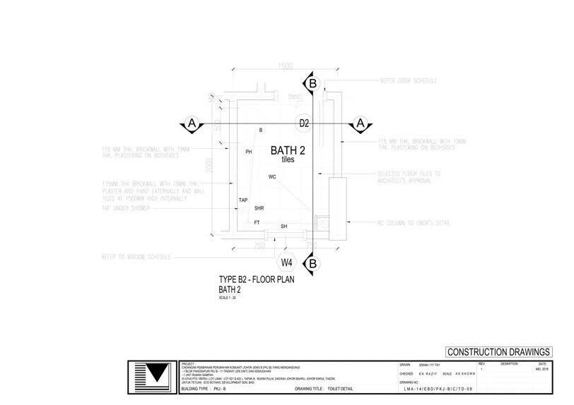
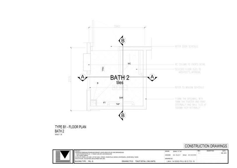
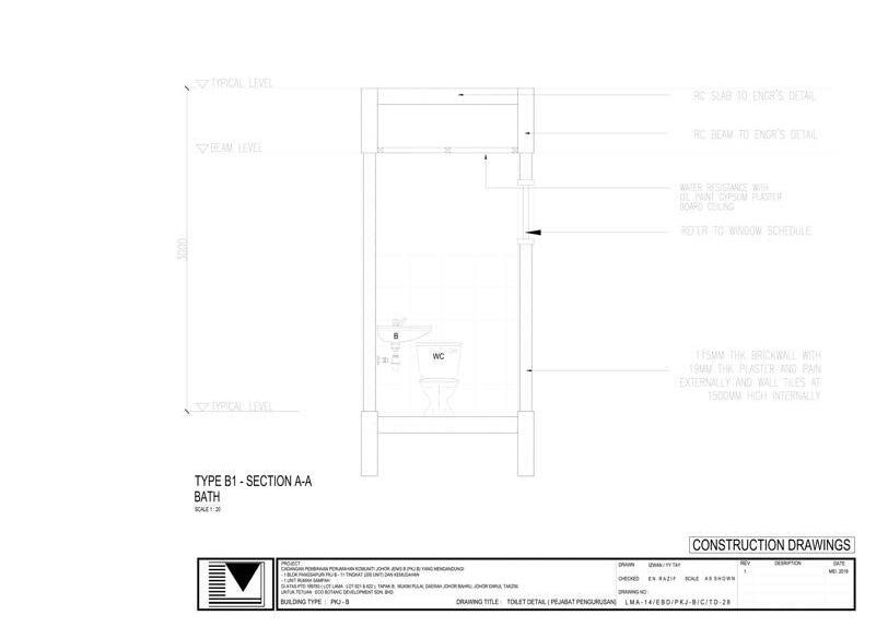
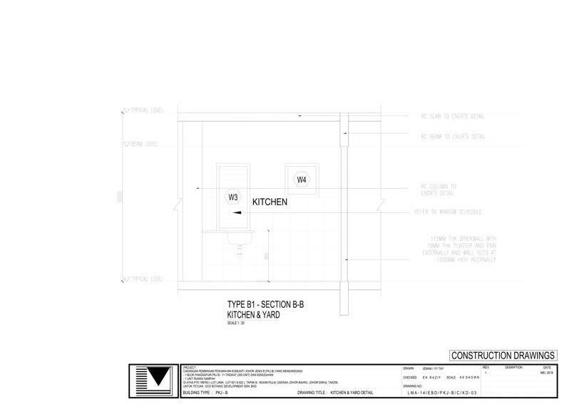
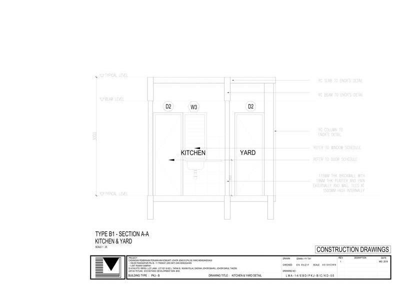
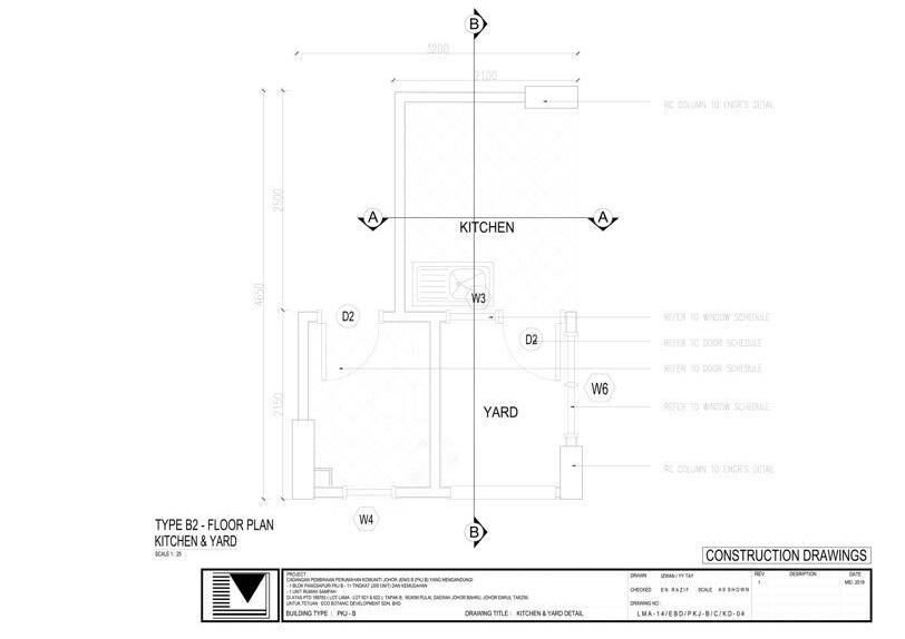
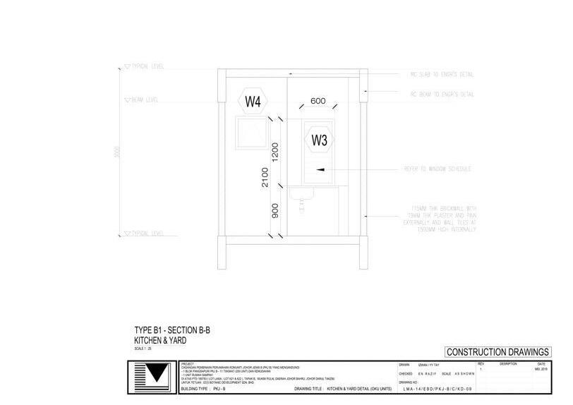
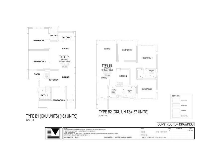
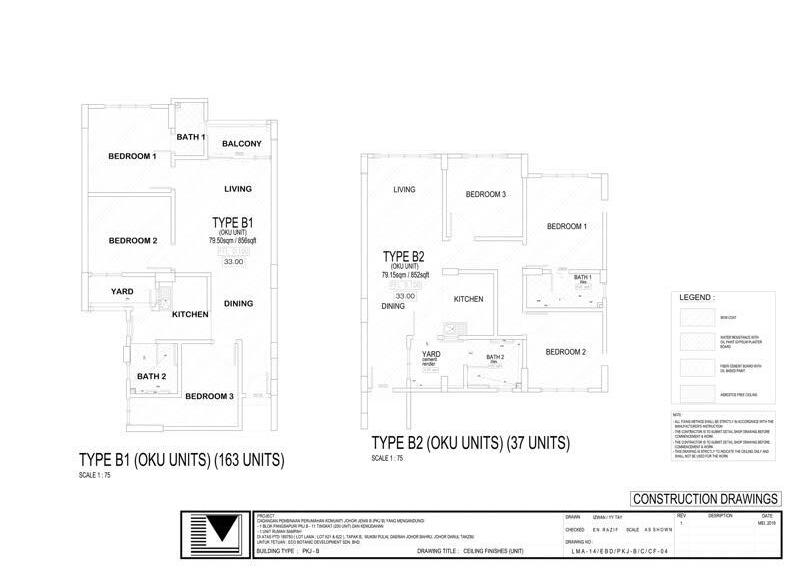
THIS PROJECT IS AN BUILDING PLAN DRAWING. PKJ-B IS A LOW-COST
APARTMENT, REQUIRED BY THE GOVERNMENT. THIS PROJECT WAS ORIGINALLY COMPLETED BY TWO OF MY SENIORS, BUT ONE OF THE SENIORS RESIGNED ON THE WAY. SO, IT'S UP TO ME TO DO THE NEXT PART.
HANDOVER DRAWING
DRAWING





































































THIS PROJECT BELONGS TO DECORATION DRAWING. THIS PROJECT IS MAINLY FOR INSTALLING AWNING. IN THIS PROJECT, I AM RESPONSIBLE FOR AMENDING AND CHECKING THE DRAWN DRAWINGS.
HANDOVER DRAWING ADMENDMENT




THIS PROJECT BELONGS TO TEMPORARY PERMIT. THIS IS BECAUSE THE OWNER'S ORIGINAL PERMISSION HAS EXPIRED, SO IT NEEDS TO RESUBMIT AGAIN. I AM FULLY RESPONSIBLE FOR THIS PROJECT, FROM MEET OWNER, MEASURE, DRAW CAD DRAWING, PRE-CONSULT, AND SUBMISSION. THE SITE IS AN OPEN STRUCTURE FACTORY, LOCATED AT SKUDAI, JOHOR BAHRU. THIS FACTORY IS MAINLY FOR SELLING SECOND-HAND LORRY AND NEW LORRY.
MEET OWNER DETAIL DRAWING AMENDMENT






PERMIT
THIS PROJECT BELONGS TO TEMPORARY PERMIT. THIS IS BECAUSE THE OWNER'S ORIGINAL PERMISSION HAS EXPIRED, SO IT NEEDS TO RESUBMIT AGAIN. I AM FULLY RESPONSIBLE FOR THIS PROJECT, FROM MEET OWNER, MEASURE, DRAW CAD DRAWING PRE-CONSULT, AND SUBMISSION. THE SITE IS AN OPEN STRUCTURE FACTORY, LOCATED AT MUKIM TERBAU, JOHOR BAHRU. THIS FACTORY IS MAINLY FOR STORES CONTAINERS.
MEET OWNER DETAIL DRAWING AMENDMENT




