PORTAFOLIO

J h u l i u s A . A l b u r q u e q u e M o s c o l
“CENTRO
DE EDUCACIÓN COMUNITARIA
APLICANDO LOS PRINCIPIOS DE LA
NEUROARQUITECTURA PARA JÓVENES EN EL
DISTRITO DE CATACAOS, PIURA, 2024”
Portafolio ISSUU
![]()

J h u l i u s A . A l b u r q u e q u e M o s c o l
“CENTRO
DISTRITO DE CATACAOS, PIURA, 2024”
Portafolio ISSUU

El Centro de educación comunitaria Juvenil de Catacaos, basado en neuroarquitectura es un espacio que fomenta la reintegración social y el desarrollo integral de jóvenes. Con diseño natural y adaptable, ofrece programas educativos y talleres vocacionales para adquirir


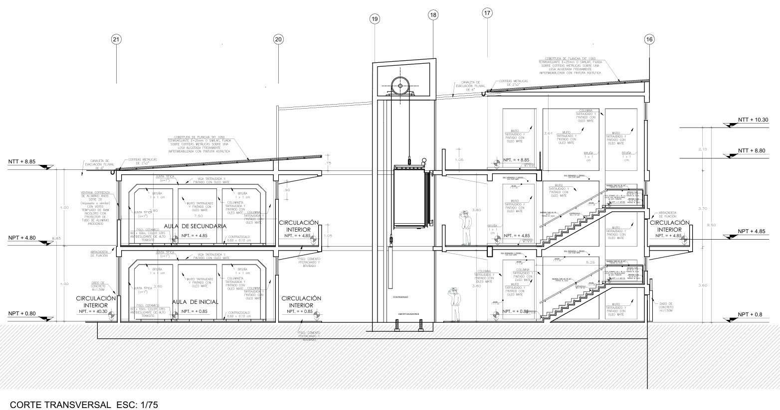
El proyecto arquitectónico propuesto toma como referencia el emblemático Templo de Narihuala en Catacaos, Perú, reinterpretando sus líneas rectas contundentes, la disposición de volúmenes en diferentes escalas que crean una secuencia espacial jerárquica, La configuración volumétrica responde a un diseño que integra de manera armónica formas geométricas puras y volúmenes escalonados. Estos volúmenes están organizados en torno a patios y circulaciones perimetrales, permitiendo una fluida conexión entre los espacios interiores y exteriores. no solo responde a la funcionalidad del programa arquitectónico, sino que también fomenta la percepción de amplitud y confort.


Identificación de formas y volúmenes en base a una zona del templo separación de volúmenes

Ubicación de volúmenes


Secuencia espacial jerárquica, transmite la grandeza y la fortaeza

Volúmenes escalonados, y el uso estratégico de planos horizontales y verticales sustracción y adición de formas geométricas puras
Diseñar un “Centro de educación comunitaria aplicando los principios de la neuroarquitectura para jóvenes en el distrito de Catacaos, Piura, 2024”
Identificar y proponer elementos de la neuroarquitectura que fomenten el desarrollo cognitivo PROBLEMASESPECIFICOS

CRITEROSDELANEUROARQUITECTURA
ESPACIALIDAD







PERCEPCIÓNDEDOBLEALTURA


E contacto de ser humanocon aszonas verdesayudaaabrirla mene, aumenta la concentracón


La actual demanda atendida conocida como oferta.
CETPROJOSÉ CAYETANOHEREDIA

INSTITUTOTECNICO PARTICULAR

CEBAJOSÉ CAYETANOHEREDIA

Oferta total abastecida de 772 esT.


2.4.1.2. DEMANDA
2.4.1.2.1. Demanda Referencial
Población analfabeta Total en Catacaos:
4,084 = 7.7% del total
Población (15 a 29 años): 20,855 al 2024
2.4.1.2.2. Demanda Específica al 2024
Sin Nivel (Analfabeta): 231 jóvenes
Inicial: 24 jóvenes
Primaria: 2,723 jóvenes
Secundaria: 11,030 jóvenes
TOTAL : 14 008 Jóvenes
OFERTA2024
OFERTA EQUIPAMIENTO PROPUESTO
2.4.1.2.3. Demanda Objetivo
1343 + 4 070 (Ceba + Cetpro)
= 5413 - 772 (oferta) = 4 640 Jóvenes
2.4.1.2.4. Demanda Atendida:
Para el proyecto se toma el 20% de la brecha : 928
1°Crt.deexclusión: 36.9% que tiene interés en continuar sus estudios en instituciones técnicas o vocacionales (4,070).
2°Crt. deexclusión: A 2,978 jóvenes Se excluye la población joven que actualmente asiste un 54 92% del total (1343)
Horizonte de expansión: Deserción escolar anual del INEI en la Educación Básica Regular
con un 2.7% resultando al 2034 en 6100 cuyo
20% atendido sería 1220 estudiantes








