PRODUCTO ENTREGABLE 1 - GRUPO 08 - ACONDICIONAMIENTO II

Page 1

UNIVERSIDAD NACIONAL PEDRO RUÍZ GALLO

FACULTAD DE INGENIERÍA CIVIL, SISTEMAS Y ARQUITECTURA

ESCUELA PROFESIONAL DE ARQUITECTURA

ACONDICIONAMINETO AMBIENTALII

PRODUCTO ENTREGABLE 1

CÁTEDRA:

ARQ.DanielSamillanRodriguez

JUAREZ BRICEÑO MARLON

MENA CABRERA TATIANA

NECIOSUP CHANCAFE ANGEL JESUS

VELAZQUEZ ANGELES LEANDRO MARCOS

VENTURA ZEÑA JHORDY

INTEGRANTES: PORCENTAJES: 100% 100% 100% 100% 100%

CICLO 2022 - II

PRODUCTO

ENTREGABLE 01

INDICE

3. OBJETIVOS

2. PROBLEMATICA INTRODUCCIÓN1. GENERAL ESPECIFICOS

4. ANÁLISIS DE REFERENTES

UBICACIÓN ANALISIS FUNCIONAL ANALISIS FORMAL ANALISIS CONSTRUCTIVO

5. ANÁLISIS DEL SITIO

6. ANÁLISIS DE PARÁMETROS

NORMAS

NORMA A.090

NORMA A.100

ESTRATEGIAS PROYECTUALES CONTROL SOLAR CONTROL EOLICO CONTROL HIDRICO CONFART ACUSTICO CONFORT TERMICO

7. SISTEMA CONSTRUCTIVO

9. ANÁLISIS DEL TERRENO (A)

10.ANÁLISIS DEL TERRENO (B)

18. CRITERIOS BIOCLIMATICOS

ANALISIS DE FORMA Y ENVOLVENTE SISTEMA ENERGIA RENOVABLE

19. CRITERIOS TECNOLOGICOS

SISTEMA DE ACONDI. TERMICO MATERIALIDAD

21. CONCLUSIONES

PANELES ACÚSTICOS PUERTAS VENTANAS PISOS
8. CAPAS PERMEABLES
TERMOACÚSTICOS
UBICACIÓN MEDIDAS ACCESIBILIDAD TOPOGRAFIA ENTORNO URBANO
11. CUADRO COMPARATIVO 12. MATER PLAN
UBICACIÓN MEDIDAS ACCESIBILIDAD TOPOGRAFIA ENTORNO
URBANO
13. IDEA RECTORA 14. PROCESO VOLUMETRICO
VOLUMETRIA PROCESO
2D

INTRODUCCION 01

Con el transcurrir del tiempo, las salas de conciertos se han convertido en edificios culturales icónicos que representan ejes de expansión urbanainmersasengrandesmetrópolisociudadesendesarrollo.

Por esta razón en este proyecto planteamos un nuevo centro cultural, específicamente una sala de conciertos ubicada en uno de los ejes de expansión urbana, en el distrito de Oyotun debido a que es un notorio puntodeconexiónquearticulaconelentornourbano.

PROBLEMATICA

02

EldistritodeOyotunsehadesarrolladoycrecidoconeltiempo.

A pesar de ser conocido por su riqueza cultural, no cuentan con la infraestructura adecuada y el equipo técnico y de sonido, haciendo que una obra artista expuesta sea degradada y no disfrutada por el público en general. Adicionalmente, para eventos que requieran servicios adicionales, estas actividades no siempre se pueden realizar en el mismo recinto, siendo necesario el traslado del público. Por lo tanto, la falta de edificios culturales, como salas de conciertos en el distrito de Oyotun exige una solución para garantizar que más amantesdelamúsicatenganunlugarapropiadoparasudisfrute.

OBJETIVOS

03

GENERAL:

Desarrollar una sala de conciertos en Oyotún - Chiclayo, que tendrá diversos ambientes como la sala de música, anfiteatro, talleres, etc, además de contar con espacios públicos para actividadesdeocioysocialización.

ESPECÍFICO:

Analizar tipos de referente ligados al tema para entender las características funcionales, formales, ambientales y tecnológicas de dicho equipamiento, consiguiendo un optimo aprendizajedeestas.

Conocer las diferentes estrategias proyectuales para entender un mejor control solar, eólico, hídrico,acústicoytérmico.

Conocer los diferentes sistemas estructurales empleados para dicho equipamiento y los tipos de paneles termo acústicos para facilitar una escucha determinada empleando parámetros y la normacorrespondiente.

ANALISIS REFERENTES

FOROBOCA CENTROXIQU

FORO BOCA

ESPACIOS DE CONCIERTO / BOCA DEL RÍO

ARQUITECTOS: Rojkind Arquitectos.

ÁREA: 5410 m2.

AÑO: 2017.

UBICACIÓN

El proyecto se encuentra ubicado en la la ciudad de BOCA DEL RÍO, Veracruz - Mexico, orientado al Este frente al mar del atlantico.

ACCESIBILIDAD

POR EL NORTE: Vicente Fox Quesada.

POR EL OESTE: Av. Independencia.

PLAN MAESTRO

La localización del Foro Boca tiene la intención de articular las dinámicas del centro de Boca del Río con la avenida costera, tiene la finalidad de ser un detonador urbano capaz de incitar la modernización de esta zona, y es un instrumento que ha permitido construir y renovar la infraestructura e imagen urbana de esa parte de la ciudad.

ANALISÍS FUNCIONAL

El proyecto contempla una sala de conciertos de música clásica, tradicional y popular para 966 espectadores, que también tiene la capacidad de presentar espectáculos de teatro y danza, así

Adicionalmenteelrecintocontaráconunasalade ensayos,quetambiénpermitirálapresentaciónal público de conciertos de cámara, funciones de teatrodepiso,decineydanzacontemporánea,y tienelacapacidaddeofrecerestosespectáculosa

LEYENDA PLAZA PRINCIPAL INGRESO PRINCIPAL

3. SALA DE CONCIERTOS

4. CAMARA DE ENSAYO

5. CAFETERÍA

6. BACKSTAGE

7. TAQUILLAS

1. 2.

PLANIMETRIA

PLAZA ESCOLLERA ACCESO PRINCIPAL ACCESO ORQUESTA ANDEN VESTIBULO TAQUILLAS ROPERIA CAFETERIA SALA PRINCIPAL ESCLUSA SALON DE ENSAYOS CABINA DE CONTROL CONTROL DE ACCESO. SUBESTACIÓN ELECT. BASURA CAMERINOS CAMERINOS SOLISTAS CAMERINO DIRECTOS BACKSTAGE CUARTO VERDE SALA DE MUSICOS ENSAYO GRABACIÓN SANITARIOS ADMINISTRACIÓN TECNICOS BODEGA MAQUINAS DULCERIA BAR FORO TERRAZA AUDIO DIMMER ILUMINACIÓN JARDÍN 1. 2. 3. 4. 5. 6. 7. 8. 9. 10. 11. 12. 13. 14. 15. 16. 17. 18. 19. 20. 21. 22. 23. 24. 25. 26. 27. 28. 29. 30. 31. 32. 33. 34. 35. 36. 37.
1 L 1 L 1 T 1 T 2 L 2 L 2 T 2 T 3L 3L 3 T 3 T 4L 4L

PLANIMETRIA

PLAZA ESCOLLERA ACCESO PRINCIPAL ACCESO ORQUESTA ANDEN VESTIBULO TAQUILLAS ROPERIA CAFETERIA SALA PRINCIPAL ESCLUSA SALON DE ENSAYOS CABINA DE CONTROL CONTROL DE ACCESO. SUBESTACIÓN ELECT. BASURA CAMERINOS CAMERINOS SOLISTAS CAMERINO DIRECTOS BACKSTAGE CUARTO VERDE SALA DE MUSICOS ENSAYO GRABACIÓN SANITARIOS ADMINISTRACIÓN TECNICOS BODEGA MAQUINAS DULCERIA BAR FORO TERRAZA AUDIO DIMMER ILUMINACIÓN JARDÍN 1. 2. 3. 4. 5. 6. 7. 8. 9. 10. 11. 12. 13. 14. 15. 16. 17. 18. 19. 20. 21. 22. 23. 24. 25. 26. 27. 28. 29. 30. 31. 32. 33. 34. 35. 36. 37. 2 L 2 L 1 L 1 L 3L 3L 4 L 4 L 1 T 1 T 2 T 2 T 3 T 3 T

PLANIMETRIA

PLAZA ESCOLLERA ACCESO PRINCIPAL ACCESO ORQUESTA ANDEN VESTIBULO TAQUILLAS ROPERIA CAFETERIA SALA PRINCIPAL ESCLUSA SALON DE ENSAYOS CABINA DE CONTROL CONTROL DE ACCESO. SUBESTACIÓN ELECT. BASURA CAMERINOS CAMERINOS SOLISTAS CAMERINO DIRECTOS BACKSTAGE CUARTO VERDE SALA DE MUSICOS ENSAYO GRABACIÓN SANITARIOS ADMINISTRACIÓN TECNICOS BODEGA MAQUINAS DULCERIA BAR FORO TERRAZA AUDIO DIMMER ILUMINACIÓN JARDÍN 1. 2. 3. 4. 5. 6. 7. 8. 9. 10. 11. 12. 13. 14. 15. 16. 17. 18. 19. 20. 21. 22. 23. 24. 25. 26. 27. 28. 29. 30. 31. 32. 33. 34. 35. 36. 37.
1 L 1 L 2 L 2 L 3L 3L 4 L 4 L 1 T 1 T 2 T 2 T 3 T 3 T

PLANIMETRIA

PLANIMETRIA

PLAZA

ESCOLLERA

ACCESO PRINCIPAL

ACCESO ORQUESTA ANDEN

CAFETERIA

SALA PRINCIPAL

ESCLUSA

SALON DE ENSAYOS

CABINA DE CONTROL CONTROL DE ACCESO.

SUBESTACIÓN ELECT. BASURA

CAMERINOS

VESTIBULO TAQUILLAS ROPERIA
BACKSTAGE
SALA DE MUSICOS ENSAYO GRABACIÓN SANITARIOS ADMINISTRACIÓN TECNICOS BODEGA MAQUINAS DULCERIA BAR FORO TERRAZA AUDIO DIMMER ILUMINACIÓN JARDÍN 1. 2. 3. 4. 5. 6. 7. 8. 9. 10. 11. 12. 13. 14. 15. 16. 17. 18. 19. 20. 21. 22. 23. 24. 25. 26. 27. 28. 29. 30. 31. 32. 33. 34. 35. 36. 37.
CAMERINOS SOLISTAS CAMERINO DIRECTOS
CUARTO VERDE

PLANIMETRIA

PLAZA ESCOLLERA

ACCESO PRINCIPAL ACCESO ORQUESTA ANDEN

SALA PRINCIPAL ESCLUSA

SALON DE ENSAYOS

CABINA DE CONTROL CONTROL DE ACCESO.

ELECT.

VESTIBULO TAQUILLAS ROPERIA CAFETERIA
BACKSTAGE
SALA
ENSAYO GRABACIÓN SANITARIOS ADMINISTRACIÓN TECNICOS BODEGA MAQUINAS DULCERIA BAR FORO TERRAZA AUDIO DIMMER ILUMINACIÓN JARDÍN 1. 2. 3. 4. 5. 6. 7. 8. 9. 10. 11. 12. 13. 14. 15. 16. 17. 18. 19. 20. 21. 22. 23. 24. 25. 26. 27. 28. 29. 30. 31. 32. 33. 34. 35. 36. 37.
SUBESTACIÓN
BASURA CAMERINOS CAMERINOS SOLISTAS CAMERINO DIRECTOS
CUARTO VERDE
DE MUSICOS

PLANIMETRIA

ACCESO PRINCIPAL ACCESO ORQUESTA

SALA PRINCIPAL ESCLUSA

SALON DE ENSAYOS

CABINA DE CONTROL CONTROL DE ACCESO. SUBESTACIÓN ELECT.

PLAZA ESCOLLERA
ANDEN
VESTIBULO TAQUILLAS ROPERIA CAFETERIA
BASURA CAMERINOS
CAMERINO
BACKSTAGE CUARTO
SALA DE MUSICOS ENSAYO GRABACIÓN SANITARIOS ADMINISTRACIÓN TECNICOS BODEGA MAQUINAS DULCERIA BAR FORO TERRAZA AUDIO DIMMER ILUMINACIÓN JARDÍN 1. 2. 3. 4. 5. 6. 7. 8. 9. 10. 11. 12. 13. 14. 15. 16. 17. 18. 19. 20. 21. 22. 23. 24. 25. 26. 27. 28. 29. 30. 31. 32. 33. 34. 35. 36. 37.
CAMERINOS SOLISTAS
DIRECTOS
VERDE

PLANIMETRIA

PLAZA

ESCOLLERA

ACCESO PRINCIPAL

ACCESO ORQUESTA

ANDEN

VESTIBULO

TAQUILLAS

ROPERIA

CAFETERIA

SALA PRINCIPAL

ESCLUSA

SALON DE ENSAYOS

CABINA DE CONTROL CONTROL DE ACCESO.

SUBESTACIÓN ELECT.

BASURA

CAMERINOS

CAMERINOS SOLISTAS

CAMERINO DIRECTOS

BACKSTAGE

CUARTO VERDE

SALA DE MUSICOS

ENSAYO
SANITARIOS ADMINISTRACIÓN TECNICOS BODEGA MAQUINAS DULCERIA BAR FORO TERRAZA AUDIO DIMMER ILUMINACIÓN JARDÍN 1. 2. 3. 4. 5. 6. 7. 8. 9. 10. 11. 12. 13. 14. 15. 16. 17. 18. 19. 20. 21. 22. 23. 24. 25. 26. 27. 28. 29. 30. 31. 32. 33. 34. 35. 36. 37.
GRABACIÓN

ANALISÍS FORMAL

El edificio retoma la expresión atemporal de los cubos de concreto que forman las escolleras, las asimila como su origenylasreinterpretaenun edificio de concreto aparente, formado por diversos volúmenes que se organizan en forma aleatoria para contener a la sala de conciertos.

El edificio del Foro Boca introduce una nueva imagen, moderna e innovadora, que transforma la visión de esa zona de la ciudad, pretendiendo ser, también, el catalizador de la renovación culturalysocialdelentorno.

FACHADA

La imagen exterior de la edificación destaca por su carácter masivo. Las superficies cerradas, sin apenas vanos, muestran forman prismáticas variadas, de aspecto poliédrico de carácter mineral o rocoso. El volumen facetado presenta perfiles quebrados, con aristas muy marcadas, introduciendo cambios volumétricos precisos y sombraspronunciadas.

El característico volado de la construcciónenelaccesoprincipal, genera un área de convivencia protegidadelosfuertesvientosdel norte. Este gran volado de 15m integraloexteriorylointerior.

El tratamiento exterior del volumendejavistoelhormigóny eldespiecedesuencofrado.Los listonesquelohanconformado siguen ángulos de inclinación diferente en cada una de sus caras. Además, cada listón presenta una posición relativa diferenteconrespectoalplano de fachada, sobresaliendo o retranqueándoseconrespectoa losadyacentes.

SISTEMA CONSTRUCTIVO

El hormigón es el elemento principal también domina la imagen interior, empleando el mismo tipo de superficies quebradas y poliédricas, con acabados similares en cuanto a los resaltes y al despiece del encofrado. Como contrapuntoalhormigón,tambiénsehan empleado superficies blancas y elementos de madera (en ciertos revestimientos,barandillas,antepechosy

MATERIALIDAD

CONCRETO CON DETALLES DE SIMBRA

MADERA (REVESTIMIENTO, TECHOS)

GRANITO TIRA LED IMPERMEABLE

EL CENTRO XIQU

TEATRO DE OPERA / HONG KONG

ARQUITECTOS: Revery Arquitectos.

ÁREA: 28.164 m2.

AÑO:

2018.

UBICACIÓN

Ubicado en el extremo este del distrito cultural de West Kowloon (WKCD), es un nuevo desarrollo en las artes y la cultura de China Hong Kong.

ACCESIBILIDAD

POR EL NORTE: Austin Rd W

POR EL ESTE: Canton Rd.

Xiqu Center es uno de los 7 trabajos de construcción en la primera fase del Área

Cultural de West Kowloon, que incluye:

LEYENDA

Parque Cultural al aire libre (Freespace)

Xiqu Center (Centro Xiqu)

Centro de Performance Contemporánea

Teatro Lírico (Lyric Theatre)

Teatro de Hong Kong

Centro de Música Centro de Música

Centro de cooperación, intercambio y desarrollo de empresas locales de arte

1. 2. 3. 4. 5. 6. 7.
Mapa de ubicación del Centro Xiqu en el Área Cultural de West Kowloon

RIQUEZA CULTURAL DE ORIENTE Y OCCIDENTE

Xiqu Center es el nuevo y prestigioso hogar de Hong Kong para la ópera tradicional china. Concebido como un santuario cultural, que combina teatro, arte y espacio público para la celebración y la contemplación,

Todos los espacios exteriores e interiores del edificio están diseñados en asociación con las funciones y actividades relacionadas con el arte tradicional de la ópera china de Pekín.

ANALISÍS FUNCIONAL

Xiqu Center es un edificio de 8 plantas (y2sótanos)conunasuperficietotalde 28.164 m2, que incluye: Teatro Principal con capacidad para 1.100 butacas;PequeñoTeatroconcapacidad para 400 butacas; Tea Room tiene una capacidad de 200 asientos, 8 estudios profesionales, salas de conferencias, salas administrativas y áreas comerciales, como también áreas de cargadebajodelniveldelsuelo.

El diseño abierto permite a los visitantes acceder al edificio desde 4 lados ofreciendo un viaje de transición de un sitio urbanoaunpaisajecultural. queinvitaapersonasdetodos losámbitosdelavidaareunirseydisfrutardelricoarteyla cultura. Un jardín urbano al aire libre permiten que el edificio se aleje delacalleruidosa y con mucho tráfico.

TEATROPRINCIPAL INSTALACIONES DEEDUCACIÓN ARTÍSTICA PLAZACUBIERTA TEAROOM
INSTALACIONES COMERCIALES

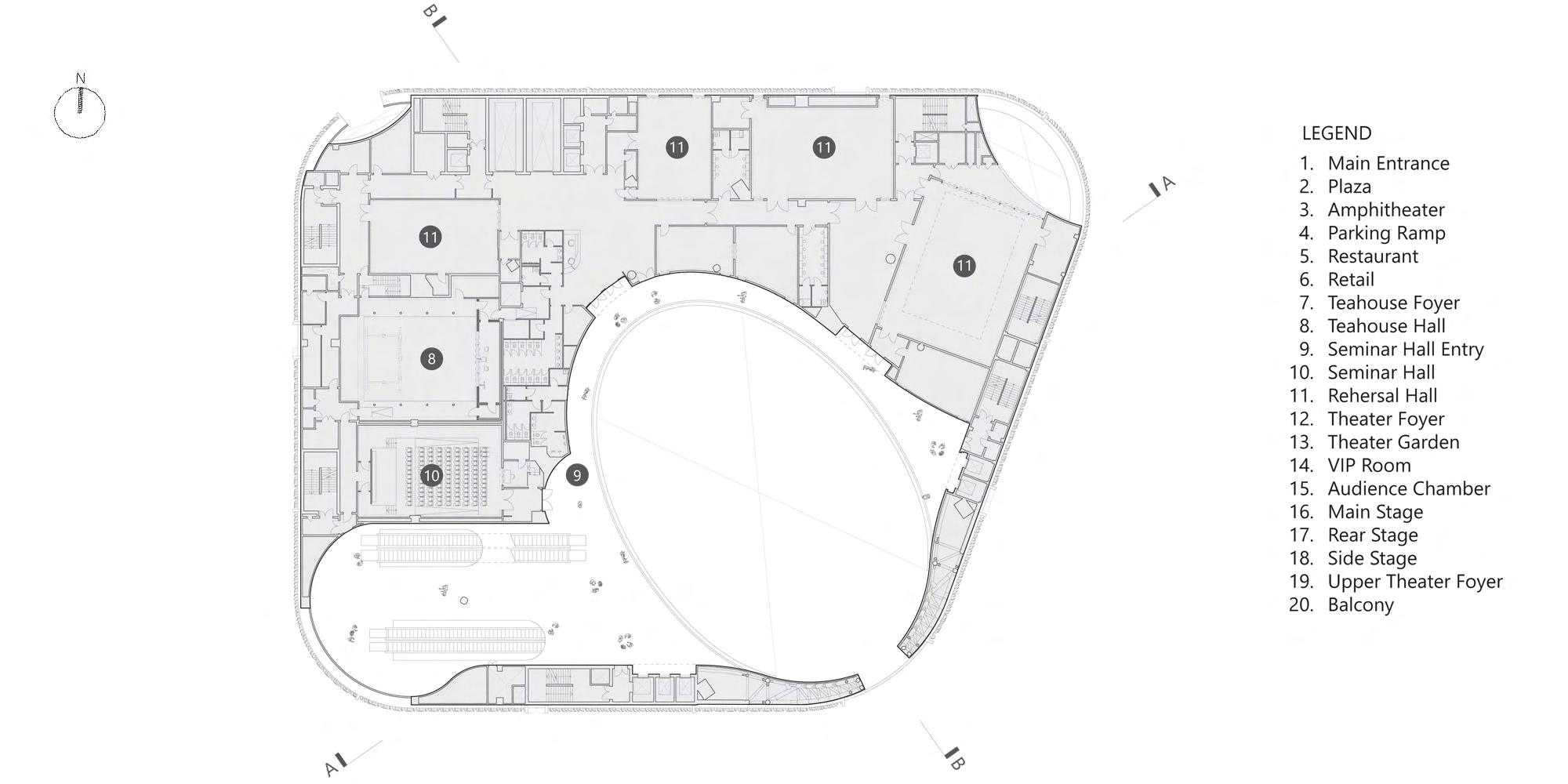
PLANIMETRIA

PLANTA PRIMER NIVEL

PLANIMETRIA

LEYENDA

Entrada principal Plaza

Anfiteatro

Rampa de estacionamiento Restaurante Minorista

Vestíbulo de la casa de té Salón de la casa de té Entrada al salón de seminarios

Sala de seminarios sala de ensayo vestíbulo del teatro Jardín del Teatro

Habitacion VIP Sala de audiencias

Escenario principal Etapa trasera escenario lateral Vestíbulo superior del teatro Balcón

PLANTA SEGUNDO NIVEL

1. 2. 3. 4. 5. 6. 7. 8. 9.
10. 11. 12. 13. 14. 15. 16. 17. 18. 19. 20.

PLANIMETRIA

LEYENDA

Entrada principal Plaza

Anfiteatro

Rampa de estacionamiento Restaurante Minorista

Vestíbulo de la casa de té Salón de la casa de té Entrada al salón de seminarios

Sala de seminarios sala de ensayo vestíbulo del teatro Jardín del Teatro

Habitacion VIP Sala de audiencias

Escenario principal Etapa trasera escenario lateral Vestíbulo superior del teatro Balcón

PLANTA TERCER NIVEL

1. 2. 3. 4. 5. 6. 7. 8. 9.
10. 11. 12. 13. 14. 15. 16. 17. 18. 19. 20.

PLANIMETRIA

LEYENDA

Entrada principal Plaza

Anfiteatro

Rampa de estacionamiento Restaurante Minorista

Vestíbulo de la casa de té Salón de la casa de té Entrada al salón de seminarios

Sala de seminarios sala de ensayo vestíbulo del teatro Jardín del Teatro

Habitacion VIP Sala de audiencias

Escenario principal Etapa trasera escenario lateral Vestíbulo superior del teatro Balcón

PLANTA CUARTO NIVEL

1. 2. 3. 4. 5. 6. 7. 8. 9.
10. 11. 12. 13. 14. 15. 16. 17. 18. 19. 20.

PLANIMETRIA

LEYENDA

Entrada principal Plaza

Anfiteatro

Rampa de estacionamiento Restaurante Minorista

Vestíbulo de la casa de té Salón de la casa de té Entrada al salón de seminarios

Sala de seminarios sala de ensayo vestíbulo del teatro Jardín del Teatro

Habitacion VIP Sala de audiencias

Escenario principal Etapa trasera escenario lateral Vestíbulo superior del teatro Balcón

PLANTA QUINTO NIVEL
1. 2. 3. 4. 5. 6. 7. 8. 9.
10. 11. 12. 13. 14. 15. 16. 17. 18. 19. 20.
CORTE A-A LEYENDA Plaza 2 Anfiteatro 3 sala de ensayo vestíbulo del teatro Jardín del Teatro 11 12 13 Sala de audiencias 15
PLANIMETRIA

La sala de espectaculos principal, se encuentra ubicado a 27 metros del suelo creando un atrio espacioso y una plaza de patio con ventilación natural.

suspender el teatro principal, aísla estratégicamente el auditorio de la vibración y losaltosnivelesderuidoambientaldelcontexto urbano circundante del edificio y la extensa infraestructuradelaciudad.

Crea un impresionante atrio y una plaza interior abierta debajo para que el público disfrute de exposiciones,tiendas,músicaydemostracionesde arte.

MECÁNICA MECÁNICA SALADE ACTORES SALADE ENSAYOMEDIA CALENTAMIENTO ENSALA PEQUEÑA VESTIDOR PERSONA ESCENARIO TRASERO PEQUEÑOTEATRO (400BUTACAS) RESTAURANTE JARDÍNDETECHO OFICINADE GESTIÓNDE ESCENARIO GRANSALADE ENSAYO COCINA SALÓNDETÉ1 VESTÍBULODE TEATROPEQUEÑO BAMBÚBOSQUEDEMADERA MECÁNICA MINORISTA MINORISTA MINORISTA CARGADE TEATRO CARGANDOY RECIBIENDO ESTACIONAMIENTO MINORISTA FOSODE ESCENARIO ALMACEN TEATROPRINCIPAL SALÓN SALACINE CENTRODE GRABACIÓNY TRANSMISIÓN ESCENARIODEL PABELLONDE EXHIBICIONES GRANSALADE ENSAYO2 GRANSALADE ENSAYO1 VESTIBULODEL CIELO SALADEESTAR

ANALISÍS FORMAL

Desde lejos, parece el dosel de una cama con doselconcortinasgruesas.

Decerca,pareceseruntúnelcolosal.

Han tenido muy en cuenta sobre la edificación en la cual,está expresadoentodoelcomplejoconcaminos y formas curvilíneas y entradas arqueadas diseñadas alrededor de un fascinante atrio circular de varios niveles.

Este movimiento de diseño inventivo fue enormemente beneficioso al permitir que la construcción ocurra simultáneamente de manera seguradentroydebajodelteatro,loqueminimizóel tiempodeconstrucción.

SISTEMA CONSTRUCTIVO

La estructura del edificio está sostenida por seis gigantescas columnas de hormigón de 45 m de altura, que llegan casi hasta la parte superior del edificio.

La estructura del techo que se levantó pesaba unas extraordinarias 1.800 toneladas, más de la mitad del peso de la Torre Eiffel. Una estructura de armadura de acero secundaria más pequeña está ubicada en la base del teatro principal y proporciona un techo para el espacio público, así como también fuerza de carga adicional y estabilidad para el marco estructural.

Con paredes curvilíneas en todas partes, tanto el diseño interior como el exterior

El edificio está revestido con un muro cortina de aluminio oculto detrás de un velo formado por una serie de aletas de aluminio curvadas de 2,5 m de largo.

La fachada de aluminio está unida en la parte superior del teatro por una viga de anillo que recorretodoelperímetrodeledificio.

En cada esquina curva del edificio, las aletas de aluminio se separan para formar una abertura, queactúacomoentradaalaplazapública.

La cúpula es una solución visual que oculta la planta y elflytowerubicadosenlapartesuperiordeledificio.

La estructura principal del edificio es un refuerzo sistema de estructura de hormigónydeacero.

ANÁLISIS DEL SITIO

ELDISTRITOLIMITACON:

UBICACIÓN

El Distrito de Oyotún es uno de los veinte distritos de la Provincia de Chiclayo, ubicada en el Departamento de Lambayeque, bajo la administración del Gobierno RegionaldeLambayeque,enelnortedePerú.

Norte: con el distrito de Chongoyape y la provincia de SantaCruz(dpto.deCajamarca)

Sur: con el distrito de Nueva Arica y la provincia de San Miguel(dpto.deCajamarca)

Este: con la provincia de Santa Cruz (dpto. de Cajamarca)

Oeste: con los distritos de Cayaltí, Pucalá y Chongoyape.

ANALISIS FISICO LAMBAYEQUE
CHICLAYO DISTRITODE OYOTÚN

TOPOGRAFIA

La topografía en un radio de 3 kilómetros de Oyotún tiene variaciones muy grandes de altitud, con un cambio máximo de altitud de 407 metros y una altitud promedio sobre el nivel del mar de 257 metros. En un radio de 16 kilómetros contiene variaciones muygrandesdealtitud(2,146metros).Enunradiode80kilómetros tambiéncontienevariacionesextremasdealtitud(4,153metros).

RELIEVE

Presentaunterritorioenpartellanoyaccidentado,conpresenciade laderas, quebradas, pequeños cañones, precipicios y crestas. Parte deldistritoseencuentraenlaregiónnaturaldelaChalayotraparte enlaregiónYunga.

219m 215m 210m 206m 0km 0.5km 1km 1.5km 2km 2.5km 3km 3.5km 4.10km
236m 225m 202m 195m 0.10km 0.25km 1.10km 1.39km 210m 218m 0.30km 0.40km 0.50km 0.60km 0.80km 0.90km 1.00km 1.20km
ANALISIS FISICO

ACCESIBILIDAD

ElaccesosedaatravésdeldesviodelaPanemaricana Norte a la altura del distrito Nuevo Mocupe dando incioalacarreteraZaña-Cayalti-Oyotun,lacualnos llevarahaciaeldistritodeOyotun.

CARRETERAZAÑA-CAYALTI-OYOTUN

TEMPERATURA 1.

FUENTE : Weather Spark

Escálidotemplado,caluroso, conesporádicasprecipitacionesenverano.

Latemporadacalurosadura3.0meses,conunatemperaturadiariaamásde33°C.

Latemporadafrescadura5.2meses,conunatemperaturadiariaamenosde31°C.

ElmesmásfríodelañoenOyotúnesJulio,conunatemperaturamínimade19°Cy máximade30°C.

ANALISIS CLIMATICO

2. NUBOSIDAD

FUENTE : Weather Spark

En Oyotún, el promedio del porcentaje del cielo cubierto con nubes varía extremadamenteeneltranscursodelaño.

Lapartemásdespejadadelañodura5.4meses,siendoelmesmasdespejadoJulio.

Lapartemásnubladadelañodura6.7meses,siendoelmesmasnubladoFebrero, durante el cual en promedio el cielo está nublado o mayormente nublado el 79 % deltiempo.

3. VIENTOS

FUENTE : Weather Spark

LavelocidadpromediodelvientoporhoraenOyotúnnovaríaconsiderablemente durante el año y permanece en un margen de más o menos 0.6 kilómetros por horade8.5kilómetrosporhora.

ANALISIS
CLIMATICO

4. PRECIPITACIONES

FUENTE : Weather Spark

LaprobabilidaddedíasmojadosenOyotúnvaríaduranteelaño.

Latemporadamásmojadadura4.1meses,elmesconmásdíasmojadosesMarzo, conunpromediode5.5díasconporlomenos1milímetrodeprecipitación. En base a esta categorización, el tipo más común de precipitación durante el año essololluvia,conunaprobabilidadmáximadel19%el19demarzo.

MAPA DE RIESGOS Y VULNERABILIDAD

ANALISIS CLIMATICO

MAPA DE RIESGOS Y VULNERABILIDAD

ANALISIS DE

PARAMETROS

ANÁLISIS DE PARÁMETROS

I.CONDICIONESURBANISTICAS

02. PARAMETROS DE IMPLANTACIÓN

debeconsultarla normaespecificaen dondeselocaliceel

04. PARAMETROS DE LOCALIZACIÓN / ACCESIBILIDAD

P.O.T

zonascomerciO cualificado zonasdeequipamiento colectivo zonasdeservicio urbanosbásicos

05. ESTACIONAMIENTOS

ESTANDARPORCAPACIDAD#DEPERSONAS

LINEAMIENTOS ACCESIBILIDAD

Ubicadoenunrangono superiora200m.

ubicadoenunrangono superiora50m.

ESCALA CUPOSMINIMOSPERSONAL PERMANENTE VISITANTE

METROPOLITANA 1Xcada20m2deareaadministrativa. 1xcada20localidades

URBANA 1Xcada25m2deareaadministrativa. 1xcada30localidades

ZONAL 1Xcada20m2deareaadministrativa. 1xcada40localidades

ÁREA NODOSDE INTEGRACION PROPUESTOS ESCALAACTUAL P.O.T ESCLA PROPUESTAS CAPACIDAD RANGON° DE PERSONAS INDICEDE IMPACTODE MITIGACION URBANISTICA ÁREADE LOTEMÍNIMA AUDIOVISUALES INTERNACIONALY NACIONAL METROPOLITANA METROPOLITANA 2000-< 2.75m2 3500m2 MUSICA INTERNACIONALY NACIONAL METROPOLITANA URBANA 1000-2000 2.75m2 2750m2 ARTEDRAMATICO INTERNACIONALY NACIONAL METROPOLITANA URBANA 500-1000 2.75m2 1375m2
NORMATIVA
ESCALAS
01.
ESCALA INDICEDEOCUPACION SOBREEL70% METROPOLITANA 3850m2 URBANA 1925m2 URBANA 967.5m2 ESCALA AISLAMIENTO se
03. AFORO SUBZONA CANT. AFORO m2 ÁREATOTAL SALADECONVECIONES 1 60PERS. 3.0m2 90m2 SALADEEVENTOS 1 100 PERS. 3.0m2 300m2 AUDITORIO 1 500PERS. 3.0m2 1500m2
equipamiento
ESCALA METROPOLITANA URBANA ZONAL LOCALIZACION

NORMA A. 100: Recreación y deportes

Cap.1:Aspectosgenerales

Art. 2 Tipo de edificación

Salasdeespectáculos:

Teatros

Cines

Salas de concierto

Art. 4 Ubicación - Según PDU, y considerando lo siguiente.

a) Facilidad de acceso y evacuacióndelaspersonas.

b) Factibilidad de los servicios deaguayenergía.

c) Orientación del terreno, teniendo en cuenta el asoleamiento y los vientos predominantes.

d) Facilidad de acceso a los mediosdetransporte.

Cap.2:Condicionesdediseño

Art. 5

Se deberá diferenciar los acceso y circulaciones de acuerdoalusoycapacidad.

Art. 7

Sedeberátomarencuentaelnumerode ocupantes para una edificación de edificaciónpararecreaciónydeportes.

Art. 15

Las escaleras para público deberán tener un paso mínimode0.30mdeancho.

Art. 23

El numero de estacionamientos será provistodentrodelterrenode la edificación, a razón de un puestocada50espectadores.

Art. 12

a) Permitir una visión óptima del espectáculo

b) Longitud máxima desde la ultima fila hastalabocadelescenarioseráde30m.

c) La distancia mínima entre 2 asientos defilascontiguasserde:

0.90cm-anchoaejes0.60cm

1.00cm-anchoaejes0.70cm

Art. 24

Se debera proveer un espacio para personas en silladeruedasporcada205 espectadores.

ESTRATEGIAS PROYECTUALES

SE DEBE TOMAR EN CUENTA:

A) ILUMINACIÓN

Primer requisito para que los usuariosdeseeningresar

B) VENTILACIÓN

Segundo requisito para que los usuariosdeseenpermanecer.

CONTROL SOLAR 1.

Tener en cuenta en condiciones de calor , o para edificaciones con altas cargas internas, se usa para minimizar el aumento de calor solar al rechazar la radiacion solar y ayudaracontrolarelbrillo.

COMPACIDAD ESBELTEZ PERMEABILIDAD Conseguiruna edificación integral
BASARSE:
CONTROLSOLAR CONTROLEOLICO CONTROLHIDRICO CONFARTACUSTICO CONFORTTERMICO

ESTRATEGIA 1 ESTRATEGIA 2

Seutilizarácomoprimera estrategia la disposición de vanos en los bloques, para asi controlar la incidenciadirectadelsol.

Escoger zonas especificas, para infiltrarlas en el terreno, de esta manera controlamos el ingreso solar a los ambientesasignados.

ESTRATEGIA 3

Comotercerestrategia empleamos paneles, para controlar la temperatura interna del recinto, tanto en invierno como en verano.

El uso de cerramiento transparente, para generar visuales con el entorno externo del lugar,

Laincidenciaderayossolarescaedirectamente sobrelacubierta,porendeserecomiendausar estructurasdedoblepielcomoelCLT.

No presentar vanos en direccióndirectaaestey oeste de esta manera evita la radiación directa a cualquier ambiente interior

ESTRATEGIA 1

Utilizar las formas y orientacion de los techos para estimular la circulación de los vientosdentrodelaedificación.

ESTRATEGIA 2

Utilizar masas de vegetación para orientarlascorrientesdevientos.

2. CONTROL EOLICO

ESTRATEGIA 3

Separar la edificacion del suelo para estimular la citculacion de los vientos alrededorydentrodelosambientes.

ESTRATEGIA 4

Utilizarlavolumetriadelaedificacionpara estimularlacirculaciondelosvientosenel interiordelosambientes.

3. CONTROL HIDRICO

Paraasegurarelconfortacústico

Como estrategia aprovechamos la napa freática para la creación de los huachaques, para la termorregulación externadelrecinto.

4. CONTROL ACUSTICO

Paraasegurarladistribuciónadecuadadelsonido

REVERBERACION

Prolongacióndelsonidoquerealizamos, producto de la reflexión sonora, percibidocomounestimulolargo.

Mientras mas lejos se encuentre el sonido será percibido como una señal ininteligible.

ABSORCION DEL SONIDO

Los materiales y acabados de los ambientes interiores acostumbran a ser reflectoresalsonido.

Debida a la evaporación producida por el impacto solar directo, además de servir como espejo para las ondas sonorificasdelexterior.

Los materiales porosos absorben mejor el sonido mientras que los compactos tiendenapropagarlo.

1. MATERIALES ABSORVENTES

MATERIAL POROSO

OBJETIVOS:

Reducir el nivel del campo reverberante, en ambientes excesivamenteruidosos. Eliminar o prevenir la aparicióndeecos.

2. MATERIALES REFLECTORES

MATERIAL LISO

OBJETIVOS:

Su coeficiente de absorción esmínimo.

Aumentar la presencia de reflexiones útiles destinadas alpublico.

3. MATERIALES DIFUSOR

MATERIAL IRREGULAR

OBJETIVOS:

elsonidoproducidoserefleja enmúltiplesdirecciones Redirigirlasondasdelsonido a diferentes lugares, esto sirve para que el sonido sea masenvolvente

5. CONTROL TERMICO

Paraasegurarlaregulaciondelatemperatura

El usuario debe tener la posibilidad de encontrarespaciosadecuadosporloquela zona de confort térmica se determinará mediantediagramasclimáticos DOBLE FACHADA

La prevención del efecto de sobrecalentamiento,alventilarel aire almacenado dentro de la doble piel, permitirá que el aire caliente dentro de la doble piel semantengafueradeledificio.

ANALISIS DE SISTEMA

CONSTRUCTIVO

SISTEMA CONSTRUCTIVO

SISTEMA ESTRUCTURAL DE MADERA LAMINADA CRUZADA (CLT)

Estructura con patrón modular

Soportedeacerofijadoal suelo.

Destaca por su resistencia, apariencia, versatilidadysostenibilidad.

Uniones

Platinasdeacero galvanizado en formadeL

Escuadra estructural

FICHA TECNICA - CLT

CARACTERÍSTICAS

Tienelacapacidadparaamortiguarlasvibraciones sonoras.

Suestructuracelularporosatransformalaenergía sonoraenenergíacalóricadebidoalroce. Absorbeelsonidoyreducelatransmisióndelas vibracionesagrandesdistancias.

INFRAESTRUCTURA

Soporte en grandes obras de construcción, como formas para hormigonado de puentes o incluso como bases para tractores en terrenos inestables, en la construccióndepresas,porejemplo.

Supotencialparaconstruccionespequeñasahoraseha notado debido a su aspecto interesante y buena resistenciaestructural.

Generalmente,lospaneleshechosdeCLTseensamblan ycortanensuproducción,yyaprevénlasjuntas,las aberturasylasperforacionesespecificadoseneldiseño. Laspartessetransportanalsitioyelensamblajese llevaacaboahí.

VENTAJAS

Autoportante(sesostienesobresimismo)

Permitegrandesdistanciassinpilares. Reguladeformanaturallashumedadesyevita condensaciones. Materialnatural.

Aplicaciónenseco,limpiayfácildeinstalar. Sistemademontajemodular. Granrigidez. Granarriostramiento.

Actualmente, incluso hay rascacielos construidos con algunaspartesenCLT.

Esunmaterialsostenibleporqueestácompuesto demadera,unrecursorenovable(generalmente reforestación) y no requiere la quema de combustiblesfósilesdurantesuproducción.

INTERIORES

Los paneles pueden funcionar como paredes, pisos, muebles,revestimientosytechos,ysugrosorylongitud puedenadaptarsealasdemandasdecadaproyecto.

EnproyectosconCLT,laconstrucciónenelsitiono duramásdeunospocosdías.Untrabajosecoyrápido, conmuypocageneraciónderesiduos.Porsupuesto,el proyectodeberíasermáscuidadoso.

Aunqueelcostodelmaterialesalto,factorescomoun menortiempodeconstrucción,unmayorcontrolde calidadydelimpieza,permitenquesepuedateneren cuentaalmomentodelaelección.

APLICACIONES INSTALACION
PRODUCCIÓN PRINCIPALES
TheTreet(Noruega)

CAPAS PERMEABLES (ACÚSTICA

TÉRMICA)

PANELES ACÚSTICOS

CARACTERÍSTICAS

Los paneles de absorción acústica tratan de eliminar las reverberaciones del sonido. Esto limita la cantidadderuido.

Los paneles acústicos funcionan bien en pequeños espacios donde el eco es un problema. En auditorios,salasdeconciertos,etc.

Lospanelesacústicosayudanareducirfrecuenciasgravesmuyprofundaseindeseables.

VENTAJAS

Es100%ecológicoyacústicamenteultraefectivo contexturavisualúnica.

Creainfinitasvariacionesdematices

Buenarelaciónentrecalidadyprecio.

Fácilinstalación.

Resistenciaalfuego

Los paneles acústicos absorben las ondas sonoras que viajan de un lugar a otro; es decir, que ingresen los ruidos y vibraciones que emiten maquinas de trabajo, tractores, equipo médico, música, o las voces de los vecinos,etc

TIPOS DE PANELES ACÚSTICOS

Los paneles acústicos se distinguen por el material absorbente del que están hechos, y por la forma que tienen, sisonpanelesdetechoodepared.

Entreellosseencuentran:

Panelesacústicosdecorativos.

Panelesacústicosexteriores.

Panelesacústicosindustriales.

Panelesacústicosparaventanas.

Panelesacústicosdemadera.

Panelesacústicosdeespuma.

Panelesacústicosfibradevidrio.

Panelesacústicosgeotextiles.

Los coeficientes de absorción de los asientos contribuyen también significativamente a la acústica delauditorio.Losparámetrosacústicosincluyenladensidaddelasespumasqueabsorbenelsonido, lacalidaddeltejidodelatapicería,losorificiosdeventilaciónylaestructuradelasiento.

POR SU USO

PANEL ACUSTICO DE YESO

PANELACÚSTICOSOUNDREY

Panel de yeso acústico, de 12.7 mm con un excelente acabadoenblancoyperforacionescuadrada

El dorso del panel lleva incorporado un velo acústico con el demejorarlaabsorciónacústicaycrearunabarreracontrael polvoypartículas.

Satisfacelosestándaresmásexigentesdeacondicionamiento acústico y diseño de interiores, convirtiéndolo en la mejor opciónparatodotipodeproyectos

UTILIDAD

Particularmenteconvenienteparalosteatros,auditoriosylassalasdeconferencias

PANEL ACUSTICO MYWALL

Sistema modular que abarca los paneles en tres diversos tamañosytiposnumerososdeperforaciónodemoler.

Los diversos ángulos permiten crear una composición única, jugandoenelfuncionamientoacústicoconlamezclacorrecta delospanelessonido-absorbentesysonido-reflectores.

Mywall es ideal para todos los espacios donde de largo, las superficies planas piden las soluciones que crean un sentido del movimientoymodificanformaspararequisitosparticulares.

UTILIDAD

Particularmenteconvenienteparalosauditoriosylassalasdeconferencias

AUDITORIOS SALAS DE CONFERENCIAS

PANEL ACUSTICO MYWALL CON PATRONES TRIANGULARES.

Mikodam desarrolla paneles que absorben adecuadamente la energíadelsonido,creandoespaciosinterioreselegantespara proyectosarquitectónicos.

Las variaciones de estos paneles pueden proporcionar una dispersión de sonido efectiva para el rango de frecuencia entre250Hzy2000Hz.

Su función es la de panel difusor del sonido, debido a las diferencias en profundidad y longitud de cada elemento, dentrodelosmódulos.

ELEVACIÓN IZQUIERDA ELEVACIÓN DERECHA ELEVACIÓN FRONTAL 2.40 cm

INSTALACION

Los paneles acústicos se instalan de manera limpia y fácil en paredes, tienen una excelente absorción acústicatantoparaespaciospúblicoscomoprivados.

Su versatilidad permite su adaptación en cualquier tipo de ambiente y decoración, formando cuadros, rectángulos, distintas formas o llenando paredes completas.

Los paneles acústicos se pueden instalar en muros, techos, pisos, ventanas, de lugares como hospitales, hoteles, condominios, corporativos, fábricas, aeropuertos,áreasdetrabajo,auditorios,cines,salas dejuntas,restaurantes…

Básicamente cualquier lugar donde se necesite el control de ruido para dar confort, cumplir con las normatividadesdesaludycontaminaciónsonora.

PUERTAS, VENTANAS

CERRAMIENTOS

PUERTASACUSTICASOISOFONICAS

Están formadas por un marco de madera maciza y una hoja o dos hojas rellenas con un núcleo de componentesfonoaislantesyfonoabsorbentes.

ACÚSTICAMENTE ESTÉTICOS

Aporta calidez, elegancia y distinción.

Garantizan la estanqueidad sonora del espacio que encierra. Esto ayuda al aislamientoacústicode una estancia en dos sentidos:

Impidenquesonidosnodeseadosdelexteriordela salalleguenalinteriordificultandolaaudiciónde músicaodiscursos.

Frenanlatransmisióndesonidosdesdeelinterior delasalaalexterior

BENEFICIOS VISORESACUSTICOS

Ventanasquenopermitenaperturasocierres.

Minimizanelniveldelsonidoquesetransmitea travésdelasparedesevitandoqueelruidoque lasatraviesasetransmitaalambienteinterior.

ESTRUCTURA

Estructurasdeaceroamododemarco

Dichas estructuras soportan una luna pulida mediantejuntasdeneoprenodealtadensidady perfilesdealuminio

MADERA GOMAISOFONICA

CONFORT ACUSTICO PREMARCODE MADERA

BANDEJAINTERIOR ABSORVENTE

BISAGRA

ESTRUCTURAS INDEPENDIENTES

CRISTALMONOLITICO

Deformaestándarseinstalaunvidriomonolítico de10mmdeespesor. MARCO
JAMBA
PERFILYJUNTADE AJUSTEYCIERRE

PUERTAS, VENTANAS

CONFORT TERMICO

CERRAMIENTOS

PUERTASTERMICAS

Contribuyen a mejorar el aislamiento de una edificación encuantoalcaloryalfrío.Sobretodoenlosingresos.

PVC

Ofrecen el mayor nivel de aislamiento térmico, Especialmenteenzonasfríasohúmedas.

BENEFICIOS

Estos tipos de puertas tienen beneficios medibles en comparación con las ventanas tradicionales, son determinantes para mejorar la calidad de vida de las personasensuentorno

Incrementaeldescanso.

Incrementaestadosdeconcentraciónyaprendizaje.

Embellecelaestéticadelespacio

Previenefuturasenfermedadesauditivasyrespiratorias.

Evitayprevienehurtosyrobos.

Disminuyeestadosestrés,ansiedadydepresión.

Reflexiónenergética

Transmisión deenergía

CERRAMIENTOS

VENTANASTERMICAS

Ofrecenunbuenniveldeaislamientotérmico,debenserherméticas. estoquieredecirquecuandosecierrennotenganniunporo quedejeescaparoentrarcalor.

CRISTALES

Radiaciónincidente

perdidasenergéticas

Existen diversos factores que intervendrán en el grado de conforttérmicodeloscristales.Porejemplo: elgrosorque tenga.Cuantomáslosea,másbarreraspondránalaentradade caloryfríodesdeelexterior.

BENEFICIOS

Ahorrodeenergía

Estándirigidasasolventarcondicionesqueafectanlasaludyel normaldesempeñodeactividadescotidianasdeunapersona, principalmente exposición de ruido y cambios drásticos de temperaturaenelambiente.

Minimizarpuntualmentelatransmisióntérmica

Minimizarlafiltracióndelaire

Minimizarlapermeabilidaddelagua

Minimizarlaatenuaciónacústica

.Maximizarlaseguridaddelusuario

EXTERIOR INTERIOR

Domodesalade conciertos

Tirantesdeacerogalvanizados

CIELO RAZO

PANELES ACÚSTICOS

Perfileríaocultadeacero galvanizadoe=3mm

GALVANIZADO

Lospanelesacústicosseinstalanentechos para reducir la reflexión del sonido y así reducir la reverberación, aumentando la calidadacústicadecualquiertipodesala.Los diferentespatronesdotanalospanelesde diferentesnivelesdeabsorciónadiferentes frecuencias.

AISLAMIENTO ACÚSTICO

Creaambientes templados:cálidosen inviernoymásfrescos enverano.

Porsuporosidadabsorbelas ondasdelsonido,que transportanenergíamecánicay setransformanencalorporel rozamiento.

LANA DE VIDRIO

Láminasdelana devidrio 25mm

Basedepanel15mm

Panelesacústicos demaderanatural aglomerada

Altaresistencia

térmicayunabaja

conductividad,porlo

quedificultaelflujo delcalor.

Esunmaterialaislanteformadoapartirdela combinaciónentrearenayvidrioreciclado fundidoaaltastemperaturas.Esresistente, elásticoyreciclable

AISLAMIENTO ACÚSTICO

Poseeunabuenaabsorción acústica,sucualidadabsorbente ysuelasticidadproducenun efectodiscipantedelruido.

C A D B E F E F A B C D
AISLAMIENTO TÉRMICO
AISLAMIENTO TÉRMICO

PISOS

Elpisovinílico flotanteevita quelas vibraciones producidaspor frecuenciasbajas delexterior, afectenel interior.

Placadepisooriginal Fijacióncondiscosdeneopreno

Estructuradelistonesde maderade40mmx40mm

Panelsandwich

Membranaacústica3mm

Membranaacústica3mm

Laminadelanadevidrio25mm

LáminadeSUPERBOARD15mm

Membranaacústica3mm

LáminadeSUPERBOARD15mm

Pisovinílico

Capasuperiordedesgaste

Capagrabadaacolores

Soportedeespuma

Superboard es una placa plana, mezcla de cemento, fibra celulosa, sílice, agua y agregadosnaturalesyfabricadamedianteun proceso de autoclave (alta presión, temperaturayhumedad)quelebrindauna granestabilidaddimensionalyaltaresistencia.

AISLAMIENTO TÉRMICO

Lassolucionesconplacasde Superboardpermitenla incorporacióndeaislantestérmicos, enelinteriordecerramientos, cielorrasosyrevestimientos

AISLAMIENTO ACÚSTICO

Susistemademasa-resortemasa(requierelautilizaciónde materialaislante)ofreceun excelenteaislamientoacústico.

MEMBRANA ACÚSTICA

Lámina fabricada con base en asfalto modificado con polímeros, copolímeros y elastómeros, tratado con aceite plastificante y llenantes minerales, reforzada con armadura centralenfibradevidrioconcaracterísticasde resistencia a impactos sonoros y de aislamientoacústico.

AISLAMIENTO

Transformalaenergíaacústicaen

dinámicamejorandoelaislamientoa

TÉRMICO Combinadoconpanelesde lanadevidriose incrementaelaislamiento globaldeltratamiento, aumentandosueficiencia.

bajasfrecuencias,reduciendoelruido

delimpactoinstaladobajoacabados duroscomotabletascerámicaso madera.

Sistema:masa-resortemasa.

D B C E
H C B
A D E
F G H
SUPERBOARD
F G

ANÁLISIS (TERRE

DELSITIO RENO 1)

El Distrito de Oyotún es uno de los veinte distritos de la Provincia de Chiclayo, ubicada en el Departamento de Lambayeque, bajo la administración del Gobierno RegionaldeLambayeque,enelnortedePerú.

CALLE SAN MATIN

:

236m 232m 58m 70m
UBICACIÓN
LAMBAYEQUE CHICLAYO DISTRITODE OYOTÚN ÁREA
14 600 M2
:
PERIMETRO
596 M

TOPOGRAFIA

La topografía en un radio de 3 kilómetros de Oyotún tiene variaciones muy grandes de altitud, con un cambio máximo dealtitudde407metrosyuna altitud promedio sobre el nivel del mar de 257 metros. En un radio de 16 kilómetros contiene variaciones muy grandes de altitud (2,146 metros). En un radio de 80 kilómetros también contiene variacionesextremasdealtitud (4,153metros).

CORTE A-A

ALTURAMAXIMA:222msnm

ALTURAMINIMA:220msnm

CORTE B-B

ALTURAMAXIMA:225msnm

ALTURAMINIMA:217msnm

A A B B
ACCESIBILIDAD CALLE SAN MARTIN CALLEN°10 CALLESANJUANII PROLOG.CALLEN°10 CALLES.N CALLE SAN MARTIN CALLE N° 10 PROL. CALLE N° 10

ENTORNO URBANO

1 2 3
Dentrodelentornourbanoquepresentaelterrenopodemos encontrarsobretodoviviendasyequipamientorecreativo. 1
Parque Genaro Silva Cotrina
2 3
Viviendas comercio CC.PP Yanacancha Baja
4 4
Viviendas comercio

ANÁLISIS (TERRE

DELSITIO ENO 2)

El Distrito de Oyotún es uno de los veinte distritos de la Provincia de Chiclayo, ubicada en el de Lambayeque, bajo la administración del Gobierno RegionaldeLambayeque,enelnortedePerú.

CALLE CHICLAYO

UBICACIÓN
LAMBAYEQUE CHICLAYO DISTRITODE OYOTÚN ÁREA : 12 060 m2. PERIMETRO : 525 m. 157m 410m 400m 79m
CALLE PROGRESO

CORTE A-A

ALTURAMAXIMA:224msnm

ALTURAMINIMA:222msnm

CORTE B-B

La topografía en un radio de 3 kilómetros de Oyotún tiene variaciones muy grandes de altitud, con un cambio máximo dealtitudde407metrosyuna altitud promedio sobre el nivel del mar de 257 metros. En un radio de 16 kilómetros contiene variaciones muy grandes de altitud (2,146 metros). En un radio de 80 kilómetros también contiene variacionesextremasdealtitud (4,153metros).

ALTURAMAXIMA:226msnm

ALTURAMINIMA:222msnm

A A B B
ACCESIBILIDAD CALLETARAPACÁ CALLECHICLAYO CALLES.N1 CALLES.N2 CALLEPROGRESO CALLE CHICLAYO CALLE PROGRESO

ENTORNO URBANO

Dentro del entorno urbano que presenta el terreno podemos encontrar equipamientos de educacion como son los colegios

Jorge Basadre e Inca Garcilazo de la Vega pero tambien equipamientorecreativocomoparquesyelestadiomunicipal.

1 2 3 4 5
1
2 3
PARQUE VISTA ALEGRE I.E. 10040 JORGE BASADRE
4
PARQUE LAS FLORES
5
I.E. 10045 INCA GARCILAZO DE LA VEGA ESTADIO MINICIPAL

CUADRO COMPARATIVO

ESCALADEVALORIZACION

PORQUÉSEELIGIOELTERRENO?

Elterrenoelegidoesel1yaquenosproporcionaunaubicación estratégicaenlaperiferiadelaciudaddeOyotún,ademásque tiene un área prudente para la realización de una sala de conciertos.

Comomedioaccesible,seobservaqueseencuentracercanoaleje de la carretera Zaña - Cayaltí - Oyotún, también cuenta con equipamientoscomercialesydeespaciosrecreativoscercanos.

Presentatodoslosserviciosbásicoscomoagua,alcantarilladoy energíaeléctrica.

PROPUESTA DE SALA DE CONCIERTOS CARACTERISTICAS TERRENO 01 TERRENO 2 UBICACION 2 3 ÁREA 4 3 ACCESIBILIDAD 4 2 RADIO DE INFLUENCIA 2 3 VULNERABILIDAD 3 1 TOTAL 15 12
REGULAR MALO 3 2 1 EXCELENTE
BUENO
4

TERRENO 2

TERRENO 1

ACREDITACION DEL TERRENO

PLANOCATASTRALDEOYOTUN

Para acreditar la valoración de los terrenos elejidos hemos tomado en cuenta el plano catastral de Oyotun, ya que no cuenta conunPDUdelaciudad.

El plano cuenta con la lotización de manzanas y terrenos, ejecutadoporlamunicipalidaddistritaldeOyotun,enelaño2010, siendoelplanomasactualizadoqueposeelamunicipalidad.

TERRENO 1

TERRENO 1 ( PLANO CATASTRAL)

TERRENO 1 ( VISTA SATELITAL)

TERRENO 2

TERRENO 2 ( PLANO CATASTRAL)

TERRENO 2 (VISTA SATELITAL)

CAYALTÍ
CULPÓN
ZAÑA
LAVIÑA
NUEVA
LA LIBERTAD

Oyotún se convierte en un gran punto de conexión ya que articula con muchos distritos y caseriosentrelosmascercanos;NuevaArica,Las delicias y el caserio pan de azucar, que cuenta con diversas actividades relacionadas a la música yfestividadesculturales.

LEYENDA

VIA PRINCIPAL DEPARTAMENTOS ADYACENTES

NUEVAARICA OYOTÚN PANDEAZUCAR LASDELICIAS

IDEAR VOLUM

DELSITIO RENO 1) ECTORA METRIA

IDEA RECTORA

ESCUDO DEL DISTRITO DE OYOTÚN

AGUILA MILENARIA

EXTRACCIÓN DE LA ALA DE LA AVE

PARA LA CUBIERTA

OYOTÚN ES CONOCIDO COMO TIERRA DE LA AGUILA MILENARIA ES POR ESO QUE LA IDEA

RECTORA PARA ESTE PROYECTO SE BASA EN LA PARTE DE UNA DE SUS ALAS, TENIENDO UN

VOLUMEN DEFORMASCURVEADASPARALACUBIERTA

PROCESO VOLUMETRICO

SE CREA UNA COBERTURA UNIENDO

VOLUMENES SOLIDOS EN FORMAS

CURVADAS, PARA DAR LA FORMA

DESEADA DE NUESTRA IDEA RECTORA

NIVEL SUPERIOR: VOLUMEN ESFERICO

ULTIMA CAPA DE LA COBERTURA

NIVEL INTERMEDIO: VOLUMEN ESFERICO

REDUCIENDO SU FORMA DEL NIVEL ANTER

NIVEL INTERMEDIO: VOLUMEN ESFERICO

FORMADO EN FORMA DE

CAPARZAZON QUE SE COLOCA

COMO CAPA SUPERIOR COBRE

EL NIVEL INFERIOR.

NIVEL INFERIOR: VOLUMEN EN FORMA ALADA

VISTA EN PLANTA VISTA FRONTAL VISTA LATERAL

EMPLAZA

DELSITIO RENO 1) AMIENTO

EMPLAZAMIENTO

UBICAMOS NUESTRO VOLUMEN EN LA PARTE CENTRAL DE NUESTRO TERRENO, GENERANDO UN INGRESO POR LOS DOS LATERALES.

CALLE SAN MARTIN

CALLE N° 10

PROLOG. CALLE N° 10

ASOLEAMIENTO

(VIA PRINCIPAL)

(ACCESO PRINCIPAL)

(ACCESO SECUNDARIO)

EN UN ESTUDIO DE UNA GRAFICA SOLAR SE DETERMINA LA POSICION DEL VOLUMEN, EL CUAL SERA UBICADO EN LA PARTE NORTE, GENERANDO UNA ILUMINACION NATURAL A LOS AMBIENTES INTERIORES USANDO LA LUZ SOLAR DE LA MAÑANA Y MEDIO DIA. HORA

HORA : 12:00 PM

9:00 AM HORA : 6:00 PM
:

VIENTOS

LA VELOCIDAD PROMEDIO DEL VIENTO POR HORA EN OYOTÚN NO VARÍA CONSIDERABLEMENTE DURANTE EL AÑO Y PERMANECE EN UN MARGEN DE MÁS O MENOS 0.6 KILÓMETROS POR HORA DE 8.5 KILÓMETROS POR HORA.

PLAN

DELSITIO RENO 1) IMETRIA

NIVEL SUPERIOR - FINAL

ENVOLVENTE-TIPOPIEL

ESTRUCTURAMODULARCLT

NIVEL INTERMEDIO

ENVOLVENTE-TIPOPIEL

ESTRUCTURAMODULARCLT

NIVEL INTERMEDIO

ENVOLVENTE-TIPOPIEL

ESTRUCTURAMODULARCLT

NIVEL INICIAL

ENVOLVENTE-TIPOPIEL

ESTRUCTURAMODULARCLT

ISOMETRIA

PLANTA ELEVACIÓN POSTERIOR

ELEVACION FRONTAL ELEVACION LATERAL

ZONIFIC

DELSITIO RENO 1) CACION

PROGRAMA ARQUITECTONICO

USUARIOS ZONA

PRIVADO ESPECTADORES ADMINISTRACION ARTISTAS SERVICIO SEMIPUBLICO PUBLICO
PUBLICA HALL FOYER BOLETERIA SSHH -VARONES SSHH- MUJERES SSHH-DISCAPACITADOS RECEPTIVA CANTIDAD AFORO AREA SUB AREA TOTAL PORCENTAJE INDICE AREAS VERDES AREA LIBRE CANTIDAD TOTAL AREA PAISAJISTA ( 60% DEL AREA CONSTRUIDA) 3201 m2 SUB ZONA AREA LIBRE: 3 201 m2 SUB ZONA RECEPTIVA: 527 m2 1 1 1 1 1 1 20 pers. 650 pers. 10 pers. 15 pers. 15 pers. 3 pers. 12 m2. 390 m2. 10 m2. 55 m2. 48 m2. 12 m2. 12 m2. 390m2. 10m2. 55 m2. 48 m2. 12 m2. 12 m2. 390 m2. 10 m2. 55 m2. 48 m2. 12 m2. 0.6 m2/pers. 0.6 m2/pers. 1 m2/pers. 5l, 10u, 10i 5l, 10u 2l, 2u 24%
COCINA ZONA DE ATENCION ALMACEN GENERAL AREA DE MESA SSHH SSHH-DISCAPACITADOS
CANTIDAD AFORO AREA SUB AREA TOTAL PORCENTAJE INDICE SUB ZONA RECEPTIVA: 104 m2 1 1 1 1 1 1 10 pers. 5 pers. 2 pers. 30 pers. 3 pers. 1 pers. 30 m2. 5 m2. 6.0 m2. 60. m2. 15m2. 4 m2. 3m2/pers. 1 m2/pers. 3.00 m2/pers. 2.0 m2/pers. 2l, 3I,3u 1l, 1u 30 m2. 5 m2. 6.0 m2. 60. m2. 15m2. 4 m2. 30 m2. 5 m2. 6.0 m2. 60. m2. 15m2. 4 m2. AUDITORIO PLATEA MEZZANINIE PALCO SALON CANTIDAD AFORO AREA SUB AREA TOTAL PORCENTAJE INDICE SUB ZONA RECEPTIVA: 1 327.5 m2 1 1 1 3 1000 pers. 100pers. 150 pers. 10 pers. 750 m2. 60 m2. 112.5 m2. 10 m2. 750 m2. 60 m2. 112.5m2. 30 m2. 750 m2. 60 m2. 112.5 m2. 30m2. 0.75 m2/pers. 0.6 m2/pers. 0.75 m2/pers. 1m2/pers. TOTAL 2128.5 m2 13% 63%
CAFETERIA

ZONA SEMI PUBLICA

HALL SECRETARIA ARCHIVO DIRECCION ADMINISTRACION ADMINISTRACION CANTIDAD AFORO AREA SUB AREA TOTAL PORCENTAJE INDICE 1 1 1 1 1 5 pers. 2 pers. 3 pers. 3 pers. 2 pers. 3 m2. 10 m2. 6 m2. 20 m2. 15 m2. 0.6 m2/pers. 5 m2/pers. 2 m2/pers. 6.6 m2/pers. 7.5 m2/pers. SALA DE REUNIONES TOTAL
SS.HH. MUJERES SS.HH. HOMBRES 1 1 1 10 pers. 1 pers. 1 pers. 4 m2/pers. 1l, 1u, 1i 1l, 1i 40 m2 3 m2 3 m2 3 m2. 10 m2. 6 m2. 20 m2. 15 m2. 40 m2 3m2 3 m2 3 m2. 10 m2. 6 m2. 15 m2. 12 m2. 30 m2 3 m2 3 m2 100%
82 m2

ZONA PRIVADA

ESCENARIO ANTE-ESCENARIO SALA DE ESTAR CAMERIN PRIVADO CAMERIN VARONES AREA ARTISTICA CANTIDAD AFORO AREA SUB AREA TOTAL PORCENTAJE INDICE CAMERIN MUJERES ALM.DEVESTUARIO 1 1 1 2 1 1 200 pers. 100 pers. 50 pers. 2 pers. 35 pers. 35 pers. 160 m2. 80 m2. 30 m2. 15 m2. 55 m2. 55 m2. 0.8 m2/pers. 0.8 m2/pers. 0.6 m2/pers. 7.5 m2/pers. 1.55 m2/pers. 1.55 m2/pers. SALA DE ENSAYO SS.HH. HOMBRES SS.HH. MUJERES 1 1 1 1 1 20 pers. 80 pers. 3 pers. 4 pers. 4 pers. 2 m2/pers. 1.25 m2/pers. 5 m2/pers. 2l, 4u, 4i 2l, 4i 40 m2 100 m2 15 m2 30 m2 25 m2 160 m2. 80 m2. 30 m2. 30 m2. 55 m2. 55 m2. 40 m2 100 m2 15 m2 30 m2 25 m2 160 m2. 80 m2. 30 m2. 30 m2. 55 m2. 55 m2. 40 m2 100 m2 15 m2 30 m2 25 m2
TOPICO 36%
SUB ZONA RAREA ARTISTICA: 620 m2
CUARTO DE BASURA ALMACEN GENERAL CUARTO DE LIMPIEZA GRUPO ELECTROGENO SERVICIOS CANTIDAD AFORO AREA SUB AREA TOTAL PORCENTAJE INDICE CUARTO DE BOMBAS 1 1 1 1 1 4 pers. 2 pers. 3 pers. 3 pers. 2 pers. 12 m2. 20 m2. 15 m2. 20 m2. 25 m2. 3. m2/pers. 5 m2/pers. 5 m2/pers. 6.6 m2/pers. 7.5 m2/pers. SS.HH. HOMBRES SS.HH. MUJERES ESTAC. PRIVADOS ESTAC. DE DISCAPACITADOS ESTAC.DEESPECTADORES 1 1 5 30 3 4 pers. 4 pers. 2l, 4u, 4i 2l, 4i 20 m2 15 m2 12 m2. 20 m2. 15 m2. 20 m2. 25 m2. 20 m2 15 m2 12 m2. 20 m2. 15 m2. 20 m2. 25 m2. 20 m2 15 m2 SUB ZONA
5 autos 30 autos. 3 autos. 12.5 m2/aut. 12.5 m2/aut. 15 m2/pers. 62.5 m2 375 m2 45 m2 62.5 m2 375 m2 45 m2 62.5 m2 375 m2 45 m2 64%
SERVICIOS: 127 m2 TOTAL 1692.5 m2

TOTAL DE AREAS

CONCLUSIONES

% POR ZONAS:

47.60 %

12.00 %

39.40 %

AREA TOTAL CONSTRUIDA: 5 335.20 M2

AREA DEL TERRENO: 15 214.99 M2

AREA LIBRE (40%): 6 086.10 M2

236m 232m 58m 70m ZONA PUBLICA: 2 128.50 M2 ZONA SEMI PUBLICA: 283.00 M2 ZONA PRIVADA: 1 692.50 M2 TOTAL: 4 104.00 M2
SUB TOTAL AREA CONSTRUIDA AREA TOTAL CONSTRUIDA 5 335.20 M2 4 104.00 M2 30 % ( CIRCULACIONES Y MUROS) 1231.20 M2
PUBLICA:
SEMI
PUBLICA:
PRIVADA:

DISTRIBUCION DE ESPACIOS

ZONA RECEPTIVA

VESTIBULO

HALL

FOLLER

BOLETERÍA

SS.HH

ZONA PUBLICA

AREA DE MESA

COCINA

ALMACEN GENERAL

ZONA DE ATENCIÓN

SS.HH

ZONA ADMINISTRATIVA

DIRECCIÓN

HALL

SECRETARÍA

ADMINISTRATIVA

SALA DE REUNIONES

ARCHIVO

BAÑOS

ZONA CONCIERTO

AUDITORIO

ESCENOGRAFÍA

ESCENARIO

VESTUARIO

ZONA BREAK

SS.HH

VESTIDORES

ZONA SERVICIOS

CUARTO DE BASURA

ALMACEN GENERAL

GRUPO ELECTROGENO

CUARTO DE BOMBAS

CUARTO DE LIMPIEZA

SS.HH

PRIMER NIVEL

DISTRIBUCION DE ESPACIOS

ZONA ADMINISTRATIVA

SALA ESPERA

RECEPCIÓN

ZONA CONCIERTO

PLATEA

ZONA SERVICIOS

SS.HH DAMAS

SS.HH CABALLEROS

SEGUNDO NIVEL

PLANIM

DELSITIO RENO 1) METRIA

PRIMER NIVEL PLANTA GENERAL
SEGUNDO NIVEL

CORTES

CORTE
LONGITUDINAL

CORTE TRASVERSAL

ELEVACIONES

ELEVACION LATERAL 1 ELEVACION LATERAL 2

ELEVACION FRONTAL

ELEVACION POSTERIOR

CRIT BIOCLIM

DELSITIO RENO 1) ERIOS MATICOS

1 Debido a la forma central que presenta, tiene un comportamientotérmico regular

COMPORTAMIENTO TÉRMICO

2 Espacios exteriores protegidosdevientoscon microclimasagradables.

3 Protección de la parte Este y Oeste con obstrucciones térmicas mássólidas.

4 Presenta una barrera de protección contra los vientos.

COMPORTAMIENTO ACÚSTICO

5 La sala de conciertos presenta formas ondulatorias para que el rebotedelsonidovayaa diferentesdirecciones.

6 Presenta aberturas laterales para la renovación y ventilación delambiente.

ANÁLISISDEFORMAYENVOLVENTE

ANÁLISISDEFORMAYENVOLVENTE

ANÁLISIS TÉRMICO - ACÚSTICO

Elairefluyeatravésdelacavidadintermediaquese genera en el envolvente, que ayudara a mejorar la eficienciatérmicadeledificioenclimasfríosycálidos.

TRANSPARENCIA

Presenta un buen comportamiento del edificio frente a los rayos delsol.

PERFORACIÓN

Estarelacionadoconla permeabilidad de la pielfrentealpasodel aire, presenta una perforaciónmedia.

COBERTURA CURVA DOBLE

Garantiza un aislamiento térmicoacústico y una mayor resistencia y rentabilidadenlaconstrucción.

AISLAMIENTO

Resistencia de la piel del edificio al paso del calor porconducción.

TERSURA

Referido a la existenciadesalientes yentrantesrespectoa la fachada, tersura baja.

ENVOLVENTE

SISTEMA ENERGIA RENOVABLE

PANELES SOLARES

Los paneles solares se componen de células fotovoltaicas (PV), que convierten la luz solar en electricidad de corriente continua (DC) durante las horas del día. Este dispositivo es el que convierte la electricidad generada por los paneles solares en la electricidad de corriente alterna (AC).

Losrayosdesolincidenenlospanelesfotovoltaicos.Estos paneles, gracias al efecto fotoeléctrico, convierte esa energíaencorrientecontinuaqueserecogeenelinversor.

El inversor convierte la corriente continua en corriente alterna, que es como se consume normalmente la electricidad

Cuando los paneles solares producen mas electricidad de la demandada, el exceso de energía es enviada al sistema eléctrico.

Los sistemas fotovoltaicos producen una electricidad de alta calidad que reduce las fluctuaciones y el ruido que podría dañarloselectrodomésticosylaelectrónica.

Cuando la demanda de energía supera la energía generada por los paneles, el sistema eléctrico proporciona la energía necesariahastacubrirlasnecesidades.

DIMENSIONES POTENCIA PESO 1030x525x3(mm) 100W 1.8Kg TEMPERATURA 45°C TIPO DE CELULA Policristalina

PANELES SOLARES

CRIT TECNOL

DELSITIO RENO 1) ERIOS LOGICOS

SISTEMA DE ACONDICIONAMIENTO TERMICO

Envolvente exterior, que propocionará aislacion termicoacustica y su principal propiedad es que sera Hidrogufo resistente

Permitirá mejor las condiciones acusticas en el interior.

Actua como un "colchon termico", tanto en verano como en invierno.

SISTEMA
ESTRUCTURAL

ENVOLVENTE

Consiste en una piel que recubre el exoesqueloto estructural y cuyo tratamiento presenta una textura escamosa , ademas de ser un cholchon acustico termico.

TEXTURA

CLT
ENVOLVENTE DE ESTRUCTURA ESTRUCTURA MODULAR

SISTEMA MYWALL

Sistema modular que abarca los paneles en tres diversos tamaños y tipos numerosos de perforación.

PANEL ACUSTICO MYWALL

Paneles sonido absorbentes y sonido reflectantes.

La disposicion de estos en diversos ángulos permiten crear una composición única, jugando en el funcionamiento acústico con la mezcla correcta de los paneles sonidoabsorbentes y sonido-reflectores.

Permite el correcto funcionamien to acustico.

PISO FLOTANTE

El piso vinílico flotante evita que las vibraciones producidas por frecuencias bajas del exterior, afecten el interior.

SISTEMA TERMICO ACUSTICO

PANEL ACUSTICO NANOFOR

Paneles

fonoabsorbentes de alta calidad. compuesto por un tablero de MDF acoplado a una hoja de laminado Microslim.

SISTEMA NANOFOR

Sistema con una elevada calidad de absorción acústica y de gran esencialidad estética.

CONTRACHAPADO DE TABIQUERIA

Revestimiento exterior. Aspecto rugoso que otorga relieve al acabado.

El sistema de nanoperforaciones obtenidas mediante punzonado crean una "piel" de aspecto continuo, a la vez que forman una barrera eficaz para el sonido.

MATERIALIDAD DE MUROS

PLACAS DE YESO QUE COMBINAN MÚLTIPLES CAPAS DE YESO Y OTRO

MATERIAL PERMITE AISLAR ACÚSTICAMENTE CON MAYOR

EFICACIA

Material ligero y expresivo.

Conductividad térmica: Bajo debido a su porosidad.

Absorbe energía mecánica.

COEF.DE ABSORCION 0.6(2000Hz)

Desacopladores

Estructura en listones de madera de 30 x50 mm

Fibra de vidrio de alta densidad de 25mm

Banda de Neopreno de 3mm

Lamina de placa de yeso de 13mm

MATERIAL
original SUPERFICIE VOLUMEN Placadeyeso 2292.62m2 52338.96m3
Muro

MATERIALIDAD DE CIELO RASO

GENERALMENTE, SE USA PARA CUBRIR INSTALACIONES ELÉCTRICAS, SANITARIAS O DE AIRE ACONDICIONADO EN LOS TECHOS. TAMBIÉN, PARA REVESTIR DESNIVELES U OTROS DETALLES DE LA ESTRUCTURA QUE NO APORTEN A SU AMBIENTACIÓN.

Material ligero y expresivo.

Conductividad térmica: Bajo debido a su porosidad.

Absorbe energía mecánica.

Perfil omega dilatados 90mm

Lamina de fibra de vidrio aglomerado de 25mm

Membrana acústica e=3mm

Cielo raso: Drywall e=6mm madera

MATERIAL
de entrepiso SUPERFICIE VOLUMEN Drywall 6885.89m2 52338.96m3 COEF.DE ABSORCION 0.6(2000Hz)
Losa

MATERIALIDAD DE PUERTAS

LAS PUERTAS SON SUPERFICIES POR

LAS CUALES SE FILTRA CON MAYOR

DENSIDAD EL RUIDO EXTERNO

COEF.DE ABSORCION 0.03(2000Hz)

Poliuretano inyectado e=5mm

Pre marco en madera, listones de 40x150 mm

Bandas en neopreno e=3mm para apoyo

Bisagras en acero inoxidable

Frescasa

Marco en madera, listones de 70x40 mm

Contrachapado en madera e=10cm

Membrana acustica e= 3mm para alma de puerta

Fibra de vidrio de alta densidad e=38mm

Estructura en madera de 40x70mm para puerta

Cerradura para puerta

MATERIAL
original SUPERFICIE VOLUMEN Puertademadera 55.43m2 52338.96m3
Muro

MATERIALIDAD DE PISO

EL PISO FLOTANTE EVITA QUE LAS VIBRACIONES PRODUCIDAD POR

FRECUENCIAS BAJAS DEL EXTERIOR AFECTEN AL INTERIOR.

COEF.DE ABSORCION

0.10(2000Hz)

Placa de piso original

Disco de Neopreno de 40 y 19 mm de alto

Estructura de listones de madera de 40x40 mm

Panel sándwich de lamina de fibra de vidrio de alta densidad de 25mm entre dos capas de membrana acústica de 3mm.

Lamina de Superboard de 20mm

Membrana acústica de 3mm

Lamina de MDF o Superboard de 10mm

Piso de madera laminado (incluye alistado de Jumbolo y Neopreno de 12mm)

MATERIAL SUPERFICIE VOLUMEN Maderalaminada 5092.60m2 52338.96m3

REN

DELSITIO RENO 1) DERS

CONCLUSIÓN

Los referentes analizados presentan una arquitectura contemporánea única sobre la aplicación de tecnología moderna en la construcción que serán importantes a tenerencuentaennuestroproyecto.

En arquitectura , este tipo de proyectos es una virtud del espacio, ya que permite gran cantidad de diseños, y permite adaptarse a distintas necesidades: cantidad de aforo, preferencias geométricas personales, forma del solar, acabados, visuales, etc.

El contar con un optimo recubrimiento es importante ya que garantiza lograr la calidad optima del sonido y térmico. La información presentada sirve para poder obtener un diseño innovador con ambientes estéticos y elegantes que aprovechenlacalidaddelaaudiciónsonora.

El contar con los pasos fundamentales para la realización del presente trabajo nos ha permitido lograr el diseño y la distribución correcta de ambientes estéticos y elegantes de la sala de conciertos garantizando su calidad y buen uso en el Distrito de Oyotún, acorde con el desarrollo poblacional y urbanistico de este puebloenplenodesarrollosocial.

Turn static files into dynamic content formats.

Create a flipbook
Issuu converts static files into: digital portfolios, online yearbooks, online catalogs, digital photo albums and more. Sign up and create your flipbook.