PROYECTO COMERCIAL

Page 1

D'CALLE

PROYECTOCOMERCIAL

Arlén Peña Cedeño nifer Durán Zelaya enisse Monterrosa

DISEÑOARQUITECTÓNICO4

GRUPO1-3

PRESENTA:

DURÁNZELAYA,JENNIFERGERALDINE(201901808)

MONTERROSAMERCADILLO,AMELIADENISSE(202000521)

PEÑACEDEÑO,ARLÉN(202000888)

DOCENTE:

ARQ.RAFAELANTONIOTOBARCASTAÑEDA

UBICACIÓN

MonumentoalaConstitución,Blvd. Constitución,(6,36kmPasoadesnivel

delRedondelMonumentoala Constitución;pasajeEliseo)

CONCEPTODEDISEÑO

D

Lazonaenlaqueseubicaelproyectosecaracterizaporser unespaciollenodeexpresionesartísticasymuchacultura, claroejemplodeestosonlosgrafitosyelmonumentoala constitucióndelarepública.EsporestoqueD'callenospareció unconceptomuyadecuadoalcualestaráadaptadonuestro centrocomercial.

' C A L L E

MEMORIADEDISEÑO

MOODBOARD STYLEBOARD

ZONIFICACIÓN

ZONACALIENTE/ZONAFRÍA

CALLE MARGINAL-BULEVARD CONSTITUCIÓN C A L L E L O S E L I S E O S
NIVEL 1
ZonaCaliente ZonaFría CirculaciónPeatonal CirculaciónVehicular C A L L E L O S E L I S E O S CALLE MARGINAL-BULEVARD CONSTITUCIÓN
NIVEL 2

AGRUPACIONES/ANCLAS

C A L L E L O S E L I S E O S CALLE MARGINAL-BULEVARD CONSTITUCIÓN
NIVEL 1
CV Sanitarios Z.Servicios Padsites Plaza Anclas Agrupaciones C A L L E L O S E L I S E O S CALLE MARGINAL-BULEVARD CONSTITUCIÓN NIVEL
2

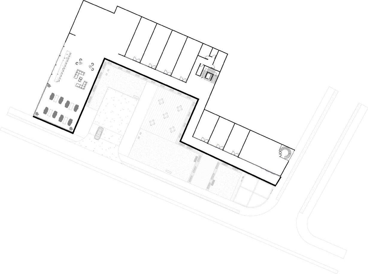
PLANTASARQUITECTÓNICAS

PLANTAARQUITECTÓNICA

PRIMERNIVEL

ESPACIOS

ACCESOVEHICULAR

ACCESOPEATONAL

PLAZA

LECAFÉ(PADSITE)

RETAILS

GIMNASIO(ANCLA)

ASCENSOR

ESCALERAS

S.SHOMBRES

S.SFAMILIAR

S.SMUJERES

Z.SERVICIOS

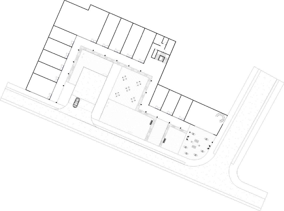
PLANTAARQUITECTÓNICA

SEGUNDONIVEL

ESPACIOS

ASCENSOR

ESCALERAS

S.SHOMBRES

S.SFAMILIAR

S.SMUJERES

Z.SERVICIOS

BAR(ANCLA)

RETAILS

LECAFÉ(PADSITE)

DELIMITACIÓN

PLANTAARQUITECTÓNICA

TECHOS

MATERIALES

TECHODEMADERA

PÉRGOLADEACEROCON

POLICARBONATO

PÉRGOLADEMADERACON

POLICARBONATO

LOSADECONCRETO

TRAGALUZDE

POLICARBONATO

SECCIONES

BAR(ANCLA)

ACCESOASÓTANO

ROTULOSCOLGANTES

CIRCULACIÓNVERTICAL

SECCIÓN LONGITUDINAL A-A

COMERCIOS

LECAFÉ(PADSITE) ROTULOS

SECCIÓN TRANSVERSAL B-B

COMERCIOS ROTULOS BAR(ANCLA)

ROTULOSCOLGANTES

SOTANO

ESCAPARATES/ROTULOS

FACHADA PRINCIPAL

ROTULOS
ESCAPARATE VISTAROTULOSCOL

VISTAROTULOSCOLGANTESSEGUNDONIVEL

GANTESPRIMERNIVEL

ESCAPARATESURDELECAFÉ

VISTAENPLANTA

ESCAPARATES RETAILS

VISTAFRONTAL

RÓTULOSCOLGANTES

ESCAPARATES

VISTAS

B A R

PÉRGOLADEACEROCON

POLICARBONATO

PAREDVERDE

ESCAPARATE

INTERIORDELBAR

E C
L
A F É PÉRGOLADEMADERA YPOLICARBONATO
ACCE SEGU
MUROCORTINA MURAL

ACCESOPEATONAL ACCESOPEATONAL ACCESOVEHICULAR

P L A Z A D ' C A L L E

TERRAZADEMADERA

Turn static files into dynamic content formats.

Create a flipbook
Issuu converts static files into: digital portfolios, online yearbooks, online catalogs, digital photo albums and more. Sign up and create your flipbook.