T8-Análisis de Casos

Page 1

ANÁLISIS DE CASOS ANÁLISIS DE CASOS

G-06 G-06 G-06 I N T E G R A N T E S :
KIMBERLY SANCHEZ TRINIDAD MELA RICALDI PERALES LESLIE GRANDA ALACOTE JEAN PIERRE TICSE GAYOSO JEAN PIERRE HUAMAN DE LA CRUZ 1. 2. 3. 4. 5. 100% 100% 100% 100% 100%
INDICE Análisis de casos VII. Análisis contextual 1. Analisis del Usuario 02. Analisis formal volumetrico 03. Herramientas estratégicas de contenido 04. Análisis técnico constructivo 05 Agosto de 2023 Definición de proyectos comerciales y empresariales I. Introducion II. Problematica del Tema III. Objetivo de investigacion IV. Justificacion del Tema V. Marco Conceptual VI. DOCENTES: INTEGRANTES: Arq. Javier Alfredo Caballero Garriazo Arq Omar Angelo Wincho Chi quillo Sanchez T. Kimberly Granda Alacote, Leslie Ticse Jean Pierre Huamán Jean Pierre Ricaldi P. Mela TALLER DE ARQUITECTURA VIII ANÁLISIS DE CASOS REFERENTES L-01

DEFINICIÓN DE PROYECTOS COMERCIALES Y EMPRESARIALES

EDIFICACIÓN - COMERCIAL

Restaurantes

Centros médicos

Minoristas y tiendas de comestibles

es un construccion que costan de varias edificaciones por lo general de grn tamaño que constan de locales y oficinas comerciales juntas en un espacio determinado.

EDIFICACIÓN EMPRESARIAL

DEFINICIÓN

El concepto de arquitectura empresarial. identifica los componentes principales de la organización y su relación para conseguir los objetivos de negocio. actúa como fuerza integradora entre aspectos de planificación del negocio, aspectos de operación de negocio y aspectos tecnológicos

Centros comerciales

Alojamientos como hoteles, apartamentos, Estructuras industriales como fábricas, almacenes

Edificios institucionales Instalaciones deportivas

TIPOS

oficinas

cooporativos

bancos

DOCENTES:

DEFINICIÓN TIPOS
1. 2. 3. 4. 5. 6. 7. 8. 1. 2. 3. INTEGRANTES: Arq. Javier Alfredo Caballero Garriazo Arq Omar Angelo Wincho Chi quillo Sanchez T. Kimberly Granda Alacote, Leslie
DE ARQUITECTURA VIII ANÁLISIS DE CASOS REFERENTES L-02
Ticse Jean Pierre Huamán Jean Pierre Ricaldi P. Mela
TALLER

INTRODUCCIÓN

Esta presentación se enfoca en analizar proyectos nacionales e internacionales en este ámbito.

Exploraremos cómo el diseño y la innovación convergen para crear entornos significativos y productivos. A través

de esta investigación, desentrañaremos tendencias

emergentes y mejores prácticas que informarán futuros

proyectos, impulsando la transformación sostenible de estos espacios y su impacto en nuestras ciudades.

DOCENTES:

Arq. Javier Alfredo Caballero Garriazo

Arq Omar Angelo Wincho Chi quillo

INTEGRANTES:

Sanchez T. Kimberly Granda Alacote, Leslie
TALLER DE ARQUITECTURA VIII ANÁLISIS DE CASOS REFERENTES L-03
Ticse Jean Pierre Huamán Jean Pierre Ricaldi P. Mela

DOCENTES:

INTEGRANTES:

PROBLEMATICA DEL TEMA

LA PROBLEMÁTICA DEL TEMA RADICA EN LA

NECESIDAD DE COMPRENDER CÓMO LOS

PROYECTOS ARQUITECTÓNICOS COMERCIALES Y EMPRESARIALES PUEDEN OPTIMIZARSE PARA

SATISFACER LAS DEMANDAS CAMBIANTES DE FUNCIONALIDAD, SOSTENIBILIDAD Y ESTÉTICA.

ADEMÁS, ES CRUCIAL ABORDAR LOS DESAFÍOS DE ADAPTAR ESTOS ESPACIOS A LAS TENDENCIAS

ACTUALES DEL MERCADO Y LAS EXPECTATIVAS DE LOS USUARIOS, MIENTRAS SE MANTIENEN

ESTÁNDARES DE EFICIENCIA Y EFECTIVIDAD EN SU

DISEÑO Y EJECUCIÓN.

Arq. Javier Alfredo Caballero Garriazo

Arq Omar Angelo Wincho Chi quillo

Sanchez T. Kimberly

Granda Alacote, Leslie

Ticse Jean Pierre

Huamán Jean Pierre

TALLER DE ARQUITECTURA VIII ANÁLISIS DE CASOS REFERENTES L-04

Ricaldi P. Mela

OBJETIVO DE LA INVESTIGACION

El objetivo de esta investigación es analizar y comparar tres proyectos arquitectónicos comerciales y empresariales de referencia nacional e internacional, con el fin de identificar tendencias, enfoques innovadores y mejores prácticas en el diseño y desarrollo de espacios comerciales y empresariales.

DOCENTES:

Arq. Javier Alfredo Caballero Garriazo

Arq Omar Angelo Wincho Chi quillo

INTEGRANTES:

Sanchez T. Kimberly Granda Alacote, Leslie
TALLER DE ARQUITECTURA VIII ANÁLISIS DE CASOS REFERENTES L-05
Ticse Jean Pierre Huamán Jean Pierre Ricaldi P. Mela

DOCENTES:

Arq. Javier Alfredo Caballero Garriazo

Arq Omar Angelo Wincho Chi quillo

JUSTIFICACION DEL TEMA

Estudiar y comparar proyectos nacionales e internacionales permitirá obtener conocimientos valiosos para mejorar el diseño, funcionalidad y impacto de estos espacios en términos de eficiencia energética, innovación arquitectónica y satisfacción del usuario. Además, esta investigación contribuirá al enriquecimiento del conocimiento en el campo de la arquitectura comercial y empresarial, impulsando la evolución de prácticas y estándares en la industria.

INTEGRANTES:

Sanchez T. Kimberly

Granda Alacote, Leslie

Ticse Jean Pierre

Huamán Jean Pierre

Ricaldi P. Mela

TALLER DE ARQUITECTURA VIII ANÁLISIS DE CASOS REFERENTES L-06

REFERENTES NACIONALES REFERENTES NACIONALES

G-06 G-06 G-06

PRISMA BUSINESS TOWER PRISMA BUSINESS TOWER

G-06 G-06 G-06

Pais: Peru

Emplazamiento

Distrito: Magdalena del Mar

Departamento: Lima

Posicionamiento

Entre las avenidas

Antonio Miro

Quesada y el Jirón

Felix Dibos

Área: 64 536 m²

Año: 2013

TALLER

Provincia: Lima

Distrito: Magdalena del Mar

Jirón Feliz Dibos

Vias vehiculares - peatonales

Av. Antonio Miro Quesada

Accesibilidad

DOCENTES:

Arq. Javier Alfredo Caballero Garriazo

Arq Omar Angelo Wincho Chi quillo

Vías principales: Av. Juan De Aliaga y Javier prado

Vías Secundarias

INTEGRANTES:

Sanchez T. Kimberly

Granda Alacote, Leslie

Sección de Jirón Félix Dibós

Ticse Jean Pierre

Huamán Jean Pierre

L-07

Ricaldi P. Mela DE ARQUITECTURA VIII ANÁLISIS DE CASOS REFERENTES
ANÁLISIS CONTEXTUAL
Ubicación
Sección de Av. Juan De Aliaga

Equipamiento Topografia

Leyenda

1.grifo

2.centro de salud

3.cepreuni

4.I.E. jacaranda

5.Nido Días Felices

6.centro medico

7.Parque Acosta

8.Alameda Orrantia del mar

9.Parque Juan Pablo II

10.Parque Jacaranda

11.restaurante

Clima

-Suele ser caluroso, húmedo y durante todo el año.

-La temperatura media anual en Magdalena es 23

-La precipitación media anual es 16 mm.

-La humedad media es del 77% y -Índice UV es 6.

Visuales

-Ligera pendiente que se eleva en dirección al noreste.

-Las variaciones en el relieve son mínimas, lo que resulta en un terreno mayormente uniforme y con una pendiente gradual en una dirección específica.

DOCENTES:

Arq. Javier Alfredo Caballero Garriazo

Arq Omar Angelo Wincho Chi quillo

Orientación

INTEGRANTES:

Sanchez T. Kimberly Granda Alacote, Leslie
TALLER DE ARQUITECTURA VIII ANÁLISIS DE CASOS REFERENTES
Ticse Jean Pierre Huamán Jean Pierre Ricaldi P. Mela
L-08
Visual frente a al Jirón Félix Dibós con la calle Baca Flor Visual frente a Av. Juan de Aliaga Visual en intersección de la av. Juan de Aliaga y el Jirón Félix Dibós
1 2 3 4 5 6 7 8 9 10 1 11 11 11 11 11 11
Visual frente a Av. Juan de Aliaga -Fachada principal esta orientada al Sureste.
ANÁLISIS CONTEXTUAL

ANÁLISIS DEL USUARIO

arquitectos

estudio: Pragma arquitectos

arquitecto: Ricardo Martin De Rossi

areas comunes de uso interno sala de reuniones directorios oficinas

caracteristicas

area: 6,453m2

año del proyecto: 2013

edifico empresarial

pisos: 18

areas comunes

hall de ascensores

foyer y sala de usos multiples

zonas de comercio con depositos

rampas de ingreso

estacionamientos

caseta de control

antropometria

dimensiones del usuarios en los ambientes

areas de recreacion

gimnasio comedor

terrazas y jardines

bar

ergonometrica

diseño de ambientes

Arq. Jav er
Caballero Garriazo Arq
Wincho Chilquillo
DOCENTES: INTEGRANTES:
Alfredo
Omar Angelo
Sanchez T Kimberly Granda Alacote, Leslie
TALLER DE ARQUITECTURA VIII ANÁLISIS DE CASOS REFERENTES L-09
Ticse Jean Pierre Huamán Jean Pierre Ricaldi P. Mela

ANÁLISIS FORMAL VOLUMÉTRICO

FACHADA

FORMA Y VOLUMEN

prisma cuadrangular con detajos.

Volumen sin

destajos

destajos

CONCEPTO Y IDEA RECTORA

idea incial proyectual.

utilizacion de un nucleo como circulación vertical en el centro del proyecto,genera orden a los ambientes.

Uso de modulacion y proporcion para generar un orden y coherencia proporcional al edificio.

uso de la sustraccion para generar dinamismo,asi tambien iluminacion y ventilacion.

DOCENTES:

TALLER

Arq. Javier Alfredo Caballero Garriazo

Arq Omar Angelo Wincho Chi quillo

Los arquitectos buscan generar movimiento en la fachada con un voladizo y balcon donde ingresa iluminacion artificial directa

INTEGRANTES:

Sanchez T. Kimberly Granda Alacote, Leslie Ticse Jean Pierre Huamán Jean Pierre Ricaldi P. Mela
DE ARQUITECTURA VIII ANÁLISIS DE CASOS REFERENTES L-10

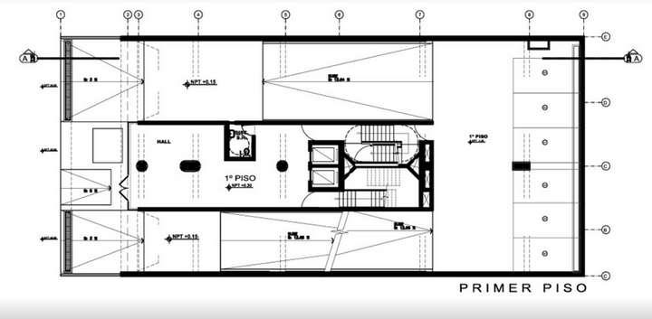
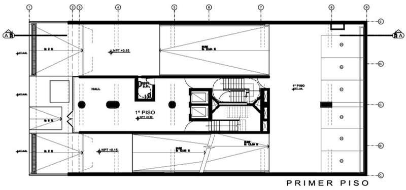
ANÁLISIS FUNCIONAL - ESPACIAL

TALLER

PLANTA 1

DOCENTES:

Arq. Javier Alfredo Caballero Garriazo

Arq Omar Angelo Wincho Chi quillo

ZONIFICACIÓN

zona de comercio

zona administrativa

zona de servicios complementario

zona de servicios generales

circulación horizontal circulación vertical

INTEGRANTES:

Sanchez T. Kimberly

Granda Alacote, Leslie Ticse Jean Pierre Huamán Jean Pierre Ricaldi P. Mela
DE
VIII
L-11
ARQUITECTURA
ANÁLISIS DE CASOS REFERENTES

ANÁLISIS FUNCIONAL - ESPACIAL

DOCENTES:

Arq. Javier Alfredo Caballero Garriazo

Arq Omar Angelo Wincho Chi quillo

ZONIFICACIÓN

zona de comercio

zona administrativa

zona de servicios complementario

zona de servicios generales

circulación horizontal circulación vertical

INTEGRANTES:

Sanchez T. Kimberly Granda Alacote, Leslie
DE ARQUITECTURA VIII ANÁLISIS DE CASOS REFERENTES L-01 SOTANO
Ticse Jean Pierre Huamán Jean Pierre Ricaldi P. Mela
TALLER

ANÁLISIS FUNCIONAL - ESPACIAL

DOCENTES:

Arq. Javier Alfredo Caballero Garriazo

Arq Omar Angelo Wincho Chi quillo

ZONIFICACIÓN

zona de comercio

zona administrativa

zona de servicios complementario

zona de servicios generales circulación horizontal circulación vertical

INTEGRANTES:

Sanchez T. Kimberly

Granda Alacote, Leslie
DE ARQUITECTURA VIII ANÁLISIS DE CASOS REFERENTES L-01
Ticse Jean Pierre Huamán Jean Pierre Ricaldi P. Mela
TALLER
PLANTA 8-11

ANÁLISIS FUNCIONAL - ESPACIAL

DOCENTES:

Arq. Javier Alfredo Caballero Garriazo

Arq Omar Angelo Wincho Chi quillo

ZONIFICACIÓN

zona de comercio

zona administrativa

zona de servicios complementario zona de servicios generales circulación horizontal circulación vertical

INTEGRANTES:

Sanchez T. Kimberly Granda Alacote, Leslie
DE ARQUITECTURA VIII ANÁLISIS DE CASOS REFERENTES L-01
Ticse Jean Pierre Huamán Jean Pierre Ricaldi P. Mela
TALLER
TERRAZA

ANÁLISIS TÉCNICO CONSTRUCTIVO

iluminación y ventilación

Elevación principal de la edificación

modulación estructural

TALLER

Sistema Estructural : Muros y pórticos de concreto armado

Iluminación natural

Piso

porcelanato

maderado

Acero

galvanizado

DOCENTES:

Arq. Javier Alfredo Caballero Garriazo

Arq Omar Angelo Wincho Chi quillo

Pared color

blanco

humo

Vidrio

Templado

con Granito Negro Absoluto.

INTEGRANTES:

Falso techo

Sanchez T. Kimberly Granda Alacote, Leslie Ticse Jean Pierre Huamán Jean Pierre Ricaldi P. Mela
L-13
DE ARQUITECTURA VIII ANÁLISIS DE CASOS REFERENTES
M A T E R I A L I D A D
Piso
EXTERIOR INTERIOR

EDIFICIO METRÓPOLIS EDIFICIO METRÓPOLIS

G-06 G-06 G-06

ANÁLISIS CONTEXTUAL

UBICACION

Pais: Peru

EMPLAZAMIENTO

Distrito: Santiago de Surco

Departamento: Lima

POCISIONAMIENTO

En la calle el boulevard Área: 702 m²

Año: 2010

TALLER

Provincia: Lima

Distrito: Santiago de Surco

ACCESIBILIDAD VIAS VEHICULARESPEATONALES

DOCENTES:

Arq. Javier Alfredo Caballero Garriazo

Arq Omar Angelo Wincho Chi quillo

Trafico intenso

Trafico moderado

INTEGRANTES:

Sanchez T. Kimberly

Calle el boulevard -Vía altamente concurrida, tanto por vehículos como por personas.

Sección de Avenida La encalada

Granda Alacote, Leslie Ticse Jean Pierre Huamán Jean Pierre Ricaldi P. Mela
DE ARQUITECTURA VIII ANÁLISIS DE CASOS REFERENTES L-14

ANÁLISIS CONTEXTUAL

EQUIPAMIENTO TOPOGRAFIA

LEYENDA

1.Mirador Catalina

CLIMA

TALLER

ORIENTACION

Terreno regularmente plano

Sin elevaciones de áreas prominentes

-La temperatura durante el día es de cálida

-La temperatura media es 25°

-Precipitación media anual es 89 mm.

-La humedad media es del 82%

-Índice UV es 5.

VISUALES

DOCENTES:

Arq. Javier Alfredo Caballero Garriazo

Arq Omar Angelo Wincho Chi quillo

-Fachada principal esta orientada al Norte.

INTEGRANTES:

Sanchez T. Kimberly Granda Alacote, Leslie Ticse Jean Pierre Huamán Jean Pierre Ricaldi P. Mela
DE ARQUITECTURA VIII ANÁLISIS DE CASOS REFERENTES L-15
Visual Av. La encalada
5 1 2 5 4 6 6 6 6
Visual en Calle el boulevard

ANÁLISIS DEL USUARIO

arquitectos arquitecto: Jose Orrego

areas comunes de uso interno

sala de reuniones directorios oficinas

antropometria

caracteristicas

area: 7200 m²

año del proyecto: 2010

edifico empresarial- oficinas

pisos: 13

areas comunes

hall de ascensores lobby

foyer y sala de usos multiples estacionamientos

DOCENTES:

Arq. Javier Alfredo Caballero Garriazo

Arq Omar Angelo Wincho Chi quillo

Dimensiones del usuarios en los ambientes

ergonometrica

Diseño de ambientes

INTEGRANTES:

Sanchez T. Kimberly Granda Alacote, Leslie
DE ARQUITECTURA VIII ANÁLISIS DE CASOS REFERENTES L-16
Ticse Jean Pierre Huamán Jean Pierre Ricaldi P. Mela
TALLER

ANÁLISIS FUNCIONAL - ESPACIAL

DOCENTES:

Arq. Javier Alfredo Caballero Garriazo

Arq Omar Angelo Wincho Chi quillo

ZONIFICACIÓN

zona de comercio

zona administrativa

zona de servicios complementario

zona de servicios generales circulación horizontal circulación vertical

INTEGRANTES:

Sanchez T. Kimberly Granda Alacote, Leslie
DE ARQUITECTURA VIII ANÁLISIS DE CASOS REFERENTES L-17
Ticse Jean Pierre Huamán Jean Pierre Ricaldi P. Mela
TALLER
PLANTA 1

ANÁLISIS FUNCIONAL - ESPACIAL

DOCENTES:

Arq. Javier Alfredo Caballero Garriazo

Arq Omar Angelo Wincho Chi quillo

ZONIFICACIÓN

zona de comercio zona administrativa zona de servicios complementario zona de servicios generales circulación horizontal circulación vertical

INTEGRANTES:

Sanchez T. Kimberly Granda Alacote, Leslie
DE ARQUITECTURA VIII ANÁLISIS DE CASOS REFERENTES L-18
Ticse Jean Pierre Huamán Jean Pierre Ricaldi P. Mela
TALLER

ANÁLISIS FUNCIONAL - ESPACIAL

DOCENTES:

Arq. Javier Alfredo Caballero Garriazo

Arq Omar Angelo Wincho Chi quillo

ZONIFICACIÓN

zona de comercio zona administrativa zona de servicios complementario zona de servicios generales circulación horizontal circulación vertical

INTEGRANTES:

Sanchez T. Kimberly

Granda Alacote, Leslie
DE ARQUITECTURA VIII ANÁLISIS DE CASOS REFERENTES L-19
Ticse Jean Pierre Huamán Jean Pierre Ricaldi P. Mela
TALLER

Forma y volumen

prisma cuadrangular. Variación en la masa del edificio en diferentes niveles, lo que crea dinamismo.

Diseño y concepto Transición y Contexto

Se hace hincapié en la transición entre el edificio Metropolis y los edificios circundantes.

La forma y el volumen se enfocan en hacer que el edificio sea único y distintivo en el entorno urbano.

Idea rectora

Diseño de fachada distintivo.

Uso de materiales innovadores.

Armonía con el entorno. Individualidad de las oficinas.

Dinámica en la fachada.

Esto sugiere una apariencia dinámica y no uniforme en la fachada del edificio.

DOCENTES:

INTEGRANTES:

Esto indica una consideración consciente del contexto urbano y la armonía con los edificios vecinos.

Arq Omar Angelo Wincho Chi quillo Sanchez T. Kimberly Granda Alacote, Leslie

Arq. Javier Alfredo Caballero Garriazo

DE ARQUITECTURA VIII
L-20
Ticse Jean Pierre Huamán Jean Pierre Ricaldi P. Mela
TALLER
ANÁLISIS DE CASOS REFERENTES
ANÁLISIS FORMAL VOLUMÉTRICO
Se hace referencia a una "discontinuidad de franjas de diferentes anchos".

ANÁLISIS TÉCNICO CONSTRUCTIVO

iluminación y ventilación

Fachada

Fachada apunta al Norte

modulación estructural

Modulación estructural reticular.

La discontinuidad de las franjas, convierte a la elevación en una composición artística y diferenciada de las fachadas

Plancha de aluminio

Vidrio

laminado negro

Persianas de aluminio

Pared color

blanco tiza

DOCENTES:

DOCENTES:

Sistema estructural aporticado.

INTEGRANTES:

INTEGRANTES:

Plancha de aluminio

Arq. Javier Alfredo Caballero Garriazo

TALLER DE ARQUITECTURA VIII ANÁLISIS DE CASOS REFERENTES L-20 M A

Arq. Javier Alfredo Cabal ero Garriazo

Arq Omar Angelo Wincho Chi quillo

TALLER DE ARQUITECTURA VIII ANÁLISIS DE CASOS REFERENTES L-21

Arq Omar Ange o W ncho Chilqui lo

Sanchez T. Kimberly Granda Alacote, Leslie Ticse Jean Pierre Huamán Jean Pierre Ricaldi P. Mela
T E R I A L I D A D
Pared color rojizo
Sanchez T. Kimberly Granda Alacote, Leslie Ticse Jean Pierre Huamán Jean Pierre Ricaldi P. Mela
INTERIOR
EXTERIOR

EDIFICIO MORPHOLOGY EDIFICIO MORPHOLOGY

G-06 G-06 G-06

ANÁLISIS CONTEXTUAL UBICACION

POCISIONAMIENTO

Pais: Peru Departamento: Lima Provincia: Lima

Distrito: Miraflores

EMPLAZAMIENTO

Distrito: Miraflores

ACCESIBILIDAD VIAS VEHICULARESPEATONALES

Sección de Av. Mariscal de la Mar (10.8m.)

-Vía con dos carriles y veredas de 1.20 m de ancho, tiene estacionamientos.

Ubicado en la avenida Mariscal de la mar

Área: 2400 m²

Año: 2016

TALLER

Sección de Av. Jose Domingo Choquehuanca

o Garriazo Chi quillo

Trafico medio

Trafico moderado

INTEGRANTES:

Sanchez T. Kimberly Granda Alacote, Leslie

-Vía de dos carriles y una vereda de 1.20m.

Ticse Jean Pierre

Huamán Jean Pierre

L-22

Ricaldi P. Mela DE ARQUITECTURA VIII A

LEYENDA

1. Policlínico

2. Parque Belén

3. Playa estacionamiento

4. Restaurante

5. Clínica

6. Parque Libertadora

7. Colegio

8. Comisaria

9. Mercado municipal

-Suele ser caluroso, húmedo durante todo el año.

-La temperatura media anual es 23°

-La precipitación media anual es 16 mm.

-La humedad media es del 77%

-El Índice UV es 6.

-Fachada principal esta orientada al Suroeste.

A pesar de la elevación pronunciada del acantilado, el espacio designado para el proyecto exhibe un terreno mayormente nivelado, lo cual simplifica las labores de construcción y desarrollo.

DOCENTES:

Arq. Javier Alfredo Caballero Garriazo

Arq Omar Angelo Wincho Chi quillo

INTEGRANTES:

Sanchez T. Kimberly Granda Alacote, Leslie Ticse Jean Pierre Huamán Jean Pierre Ricaldi P. Mela
VIII
L-23
TALLER DE ARQUITECTURA
ANÁLISIS DE CASOS REFERENTES
ANÁLISIS CONTEXTUAL EQUIPAMIENTO TOPOGRAFIA CLIMA ORIENTACION VISUALES
Visual en a av. Marisca la Mar Visua en intersección de la av Mariscal a Mar con José Dom ngo Choquehuanca
1 2 3 4 4 4 4 4 4 5 6 7 8 9

ARQUITECTOS

ESTUDIO: NOMENA ARQUITECTOS

ARQUITECTO:

TALIA VALDEZ

AREAS COMUNES DE USO

INTERNO

LOCALES DE COMERCIO

CARACTERISTICAS

AREA: 2400M2

AÑO DEL PROYECTO: 2016

EDIFICO COOMERCIAL, OFICINAS Y CAFETERIA

PISOS: 5 NIVELES

AREAS COMUNES

HALL

ESTACIONAMIENTOS

CASETA DE CONTROL

AREAS DE RECREACION

CAFETERIA

COMEDOR

EXTERIOR

TALLER DE ARQUITECTURA VIII ANÁLISIS DE CASOS REFERENTES

DOCENTES:

Arq. Javier Alfredo Caballero Garriazo

Arq Omar Angelo Wincho Chi quillo

INTEGRANTES:

Sanchez T. Kimberly Granda Alacote, Leslie

DIMENSIONES DEL USUARIOS EN LOS AMBIENTES

ANTROPOMETRIA ERGONOMETRICA

DISEÑO DE AMBIENTES

Ticse Jean Pierre Huamán Jean Pierre Ricaldi P. Mela
L-24
ANÁLISIS DEL USUARIO

ANÁLISIS FUNCIONAL - ESPACIAL

ZONIFICACIÓN

zona de comercio zona administrativa zona de servicios complementario zona de servicios generales circulación horizontal circulación vertical

PLANTA 1

T ARQ L-25
cse Jean Pierre uamán Jean Pierre icaldi P. Mela

PLANTA 2 y 3

DOCENTES:

Arq. Javier Alfredo Caballero Garriazo

Arq Omar Angelo Wincho Chi quillo

ZONIFICACIÓN

zona de comercio

zona administrativa

zona de servicios complementario

zona de servicios generales circulación horizontal circulación vertical

INTEGRANTES:

Sanchez T. Kimberly Granda Alacote, Leslie
TALLER DE ARQUITECTURA VIII ANÁLISIS DE CASOS REFERENTES L-26
Ticse Jean Pierre Huamán Jean Pierre Ricaldi P. Mela

ANÁLISIS FUNCIONAL - ESPACIAL

PLANTA 4

DOCENTES:

Arq. Javier Alfredo Caballero Garriazo

Arq Omar Angelo Wincho Chi quillo

ZONIFICACIÓN

zona de comercio zona administrativa zona de servicios complementario zona de servicios generales circulación horizontal circulación vertical

INTEGRANTES:

Sanchez T. Kimberly Granda Alacote, Leslie
DE ARQUITECTURA VIII ANÁLISIS DE CASOS REFERENTES L-27
Ticse Jean Pierre Huamán Jean Pierre Ricaldi P. Mela
TALLER

ANÁLISIS FORMAL VOLUMÉTRICO

principios ordenadores y organizadores

principios compositivos

FORMA Y VOLUMEN

Paralelepípedo alargado. volumen alargado horizontal de 5 pisos.

concepto y idea rectora

geometría urbana : utilización de estrategias para una integración y relaciona con su entorno urbano.

Umbral de dos rutas: permite dos opciones de acceso y circulación en un espacio.

simetria en fachada. utiliza un eje lineal esta misma se usa para circulacion del edificio.

DOCENTES:

Arq. Javier Alfredo Caballero Garriazo

Arq Omar Angelo Wincho Chi quillo

PARASOL

INTEGRANTES:

Sanchez T. Kimberly Granda Alacote, Leslie
DE ARQUITECTURA VIII ANÁLISIS DE CASOS REFERENTES L-28
Ticse Jean Pierre Huamán Jean Pierre Ricaldi P. Mela
TALLER
PIEL
ZOCALO
ARQUITECTONICA

ANÁLISIS TÉCNICO CONSTRUCTIVO

iluminación y ventilación

Fachada principal

Cortes y elevaciones

Sistema aporticado mixto y en la parte posterior con una abertura que comunica a todos los niveles.

12 pm

TALLER

10 pm

La iluminación natural ingresa por la parte superior de la edificación por medio de celosías que conectan todos los niveles.

Pieles

Pared con ladrillo blanco

Celosía de concreto expuesto

Vidrio

templado

ELEVACIÓN PRINCIPAL

DOCENTES:

Arq. Javier Alfredo Caballero Garriazo

Arq Omar Angelo Wincho Chi quillo

Pieles que contribuyen a controlar la temperatura e incidencia solar.

INTEGRANTES:

Sanchez T. Kimberly

Granda Alacote, Leslie

Piso de madera

Muro con revestimiento de ladrillo blanco

Pared color negro

Ticse Jean Pierre Huamán Jean Pierre Ricaldi P. Mela
DE ARQUITECTURA VIII ANÁLISIS DE CASOS REFERENTES L-29
A T E R I A L I D A D
M
INTERIOR
EXTERIOR

REFERENTES REFERENTES

IINTERNACIONALES NTERNACIONALES

G-06 G-06 G-06

SEDE ASI REISEN SEDE ASI REISEN

G-06 G-06 G-06

Pais: Austria

EMPLAZAMIENTO

Estado: Tirol

Localidad: Natters

POCISIONAMIENTO

Área: 1548 m²

ACCESIBILIDAD VIAS VEHICULARESPEATONALES

Año: 2019

DOCENTES:

Arq. Javier Alfredo Caballero Garriazo

Arq Omar Angelo Wincho Chi quillo

Vías Principales

Vías Secundarias

INTEGRANTES:

Sección de Av. Tschurtschentalerhof

-Vía con dos carriles y una berma lateral de 1,5m.

Sanchez T. Kimberly Granda Alacote, Leslie
DE ARQUITECTURA VIII ANÁLISIS DE CASOS REFERENTES L-30
Ticse Jean Pierre Huamán Jean Pierre Ricaldi P. Mela
TALLER
ANÁLISIS CONTEXTUAL UBICACION

LEYENDA

1. Hospital

2. Restaurante

3.Tienda

4.Hotel

5.Cementerio

6.Supermercado

-Veranos cómodos y mojados, inviernos fríos y nevados, parcialmente nublado durante todo el año.

-Variación de temperatura: -6 °C a 23 °C.

-Mayo a septiembre, con junio como el mes más lluvioso.

VISUALES

El área en cuestión está situada en una posición elevada en relación al entorno circundante, y está enclavada entre estas dos formaciones montañosas.

DOCENTES:

Arq. Javier Alfredo Caballero Garriazo

Arq Omar Angelo Wincho Chi quillo

-Fachada principal esta orientada al Sureste.

Visual en la Av. Tschurtschentalerhof

INTEGRANTES:

Granda Alacote, Leslie Tic

Sanchez T. Kimberly

Ri
DE ARQUITECTURA VIII ANÁLISIS DE CASOS REFERENTES
Hu
TALLER
ANÁLISIS CONTEXTUAL EQUIPAMIENTO TOPOGRAFIA CLIMA ORIENTACION
1
2 3 3 4 5 5

ANÁLISIS DEL USUARIO

arquitectos

estudio: snohetta

arquitecto:

Thorsen,- NATTERS

caracteristicas

area: 1,548m2

año del proyecto: 2019

edifico empresarial - oficina

pisos: 4 niveles

areas comunes de uso interno locales oficinas galeria

areas de recreacion

jardin exterior

antropometria

dimensiones del usuarios en los ambientes

areas comunes

hall lobby sotano

ergonometrica

diseño de ambientes

DOCENTES:

Arq. Javier Alfredo Caballero Garriazo

Arq Omar Angelo Wincho Chi quillo

INTEGRANTES:

Sanchez T. Kimberly Granda Alacote, Leslie
DE ARQUITECTURA VIII ANÁLISIS DE CASOS REFERENTES L-32
Ticse Jean Pierre Huamán Jean Pierre Ricaldi P. Mela
TALLER

ANÁLISIS FUNCIONAL - ESPACIAL

PLANTA 1

DOCENTES:

Arq. Javier Alfredo Caballero Garriazo

Arq Omar Angelo Wincho Chi quillo

ZONIFICACIÓN

zona de comercio

zona administrativa

zona de servicios complementario

zona de servicios generales circulación horizontal circulación vertical

INTEGRANTES:

Sanchez T. Kimberly Granda Alacote, Leslie
DE ARQUITECTURA VIII ANÁLISIS DE CASOS REFERENTES L-33
Ticse Jean Pierre Huamán Jean Pierre Ricaldi P. Mela
TALLER

ANÁLISIS FUNCIONAL - ESPACIAL

DOCENTES:

Arq. Javier Alfredo Caballero Garriazo

Arq Omar Angelo Wincho Chi quillo

ZONIFICACIÓN

zona de comercio

zona administrativa

zona de servicios complementario

zona de servicios generales circulación horizontal circulación vertical

INTEGRANTES:

Sanchez T. Kimberly Granda Alacote, Leslie
DE ARQUITECTURA VIII ANÁLISIS DE CASOS REFERENTES L-34
Ticse Jean Pierre Huamán Jean Pierre Ricaldi P. Mela
TALLER
PLANTA TIPICA 3Y 4

ANÁLISIS FORMAL VOLUMÉTRICO

FORMA Y VOLUMEN

forma irregular.

volumen alargado horizontal de 3 pisos.

PRINCIPIOS ORDENADORES Y ORGANIZADORES

HOJAS PERENNES ( ESPECIES )

PRINCIPIOS COMPOSITIVOS

TECHO CON SISTEMA DE RIEGO

CONCEPTO Y IDEA RECTORA

Un concepto energético optimizado. Para lograr un resultado óptimo, el concepto energético se probó y adaptó mediante una simulación de edificio termodinámica.

TALLER DE ARQUITECTURA VIII ANÁLISIS DE CASOS REFERENTES

eje central como estrategia de para definir espacios.

Uso de ritmo/repeticion para generar vanos con distinta medida y proporcion.

DOCENTES:

Arq. Javier Alfredo Caballero Garriazo

Arq Omar Angelo Wincho Chi quillo

INTEGRANTES:

Sanchez T. Kimberly Granda Alacote, Leslie

CORTINA VERDE CON MALLAS

METALICAS

VEGETACION

Ticse Jean Pierre Huamán Jean Pierre Ricaldi P. Mela
L-35

Cielo raso con acabado de madera

Paredes con acabado rugoso Piso porcelanato

modulación estructural

Ingreso principal

Modulación estructural reticular.

Al ser una edificación que no colinda con otras viviendas, la iluminación natural rodea al edificio.

12
10
pm
pm
M A T E R I A L I D A D
Acero
templado EXTERIOR INTERIOR iluminación y ventilación ANÁLISIS TÉCNICO CONSTRUCTIVO
Revestimiento de madera Vidrio
Sanchez
Granda
TALLER DE ARQUITECTURA VIII ANÁLISIS DE CASOS REFERENTES L-36
DOCENTES: INTEGRANTES: Arq. Javier Alfredo Caballero Garriazo Arq Omar Angelo Wincho Chi quillo
T. Kimberly
Alacote, Leslie Ticse Jean Pierre Huamán Jean Pierre Ricaldi P. Mela

CASA DE CRISTAL EN SINDHORN CASA DE CRISTAL EN SINDHORN

G-06 G-06 G-06

ANÁLISIS CONTEXTUAL

UBICACION

Pais: Tailandia

EMPLAZAMIENTO

Ciudad: Bangkok

POCISIONAMIENTO

Área: 1650 m²

VIAS VEHICULARES -

ACCESIBILIDAD

Año: 2015

DOCENTES:

Arq. Javier Alfredo Caballero Garriazo

Arq Omar Angelo Wincho Chi quillo

Vías Principales

Vías Secundarias

INTEGRANTES:

Sección de Av. Thanon Witthayu (24m.)

-Vía con 2 carriles centrales bidireccionales.

-Bermas de 1 metro a los lados de los carriles centrales.

-2 carriles adicionales a cada lado, totalizando 6 carriles.

-Veredas amplias de 2 metros a lo largo de la vía.

Sanchez T. Kimberly Granda Alacote, Leslie
TALLER DE ARQUITECTURA VIII ANÁLISIS DE CASOS REFERENTES L-37
Ticse Jean Pierre Huamán Jean Pierre Ricaldi P. Mela

ANÁLISIS CONTEXTUAL

EQUIPAMIENTO

LEYENDA

1.Embajada EEUU.

2.Embajada Irlanda

3.Embajada Paises Bajos

CLIMA

ORIENTACION

4.Restaurante

5.Lumphini Park 1

-Calor constante

-Temperaturas: Variación de 22 °C a 35 °C.

-Temporada calurosa: Marzo a mayo, máx. 34 °C.

-Temporada más lluviosa: Mayo a octubre, mayor probabilidad de días lluviosos en septiembre.

VISUALES

-Fachada principal esta orientada al Este, frente a la av. principal.

TOPOGRAFIA

Este plano representa un terreno casi plano con una pendiente hacia el norte y algunas pequeñas montañas cercanas.

DOCENTES:

Arq. Javier Alfredo Caballero Garriazo

Arq Omar Angelo Wincho Chi quillo

INTEGRANTES:

Sanchez T. Kimberly Granda Alacote, Leslie
DE ARQUITECTURA VIII ANÁLISIS DE CASOS REFERENTES L-38
Ticse Jean Pierre Huamán Jean Pierre Ricaldi P. Mela
TALLER
Visual en la Av. Thanon Witthayu
2 3 4 4 4 4 4 4 4 4 5 5 5

ANÁLISIS DEL USUARIO

ARQUITECTOS

ESTUDIO: OFFICE AT

AREAS COMUNES DE USO INTERNO RESTAURANTES BAR CAFETERIA

CARACTERISTICAS

AREA: 1,650M2

AÑO DEL PROYECTO: 2015

EDIFICO COMERCIAL -

RESTAURANTE

PISOS: 2 NIVELES

AREAS COMUNES

HALL

LOBBY

ANTROPOMETRIA

DIMENSIONES DEL USUARIOS EN LOS AMBIENTES

AREAS DE RECREACION

JARDIN ( PLAZA)

EXTERIOR

ERGONOMETRICA

DISEÑO DE AMBIENTES

TALLER

DOCENTES:

Arq. Javier Alfredo Caballero Garriazo

Arq Omar Angelo Wincho Chi quillo

INTEGRANTES:

Sanchez T. Kimberly

Granda Alacote, Leslie

Ticse Jean Pierre Huamán Jean Pierre Ricaldi P. Mela
L-39
DE ARQUITECTURA VIII ANÁLISIS DE CASOS REFERENTES

ANÁLISIS FUNCIONAL - ESPACIAL

DOCENTES:

Arq. Javier Alfredo Caballero Garriazo

Arq Omar Angelo Wincho Chi quillo

ZONIFICACIÓN

zona de comercio zona administrativa zona de servicios complementario zona de servicios generales circulación horizontal circulación vertical

INTEGRANTES:

Sanchez T. Kimberly Granda Alacote, Leslie
DE ARQUITECTURA VIII ANÁLISIS DE CASOS REFERENTES L-40
Ticse Jean Pierre Huamán Jean Pierre Ricaldi P. Mela
TALLER
PLANTA 1

Turn static files into dynamic content formats.

Create a flipbook
Issuu converts static files into: digital portfolios, online yearbooks, online catalogs, digital photo albums and more. Sign up and create your flipbook.