2 CENTROS CULTURALES

Page 1

CENTROS DE ARTES ESCÉNICAS Y PLÁSTICAS
Jennifer Jazmín Pérez Campos Ana Paula Pérez Pérez Carlos Joe Flo

AGrandez

l Fernández ores

FACULTAD: Arquitecturay urbanismo

ASIGNATURA: Hombreysu contexto

DATOS

CÁTEDRA:

CICLO:

Arq.Mg.LuisaEnithChafloquePinedo
IV

Un edificio tiene dos vidas. La que imagina y la vida que tiene. Y no siempre son iguales.

Koolhaas

Rem
1 2 3 4 Definición Tiposde centros culturales R E V I S I Ó N T E Ó R I C A A P R O X I M A C I Ó N P R O Y E C T U A L A N Á L I S I S R E F E R E N T E S 0 1 R E F E R E N T E S 0 2 A N Á L I S I S INDICE
6 5 7 C O N C L U C I O N E S P R O G R A M A C I Ó N A R Q U I T E C T Ó N I C A P R O Y E C T U A L E S E S T R A T E G I A S

INTRODUCCIÓN

Elcentrocultural,eselespacioquenospermitiráparticipar de actividadesculturales.

Elpresentetrabajotienecomofinalidadanalizar2centros culturales:CentrodeArtesEscénicasWagnerNoël/Bora Architects+RhotenberryWellenArchitectsy“L’Atlàntida”, CentroDeArtesEscénicasdeOsona.

Esporelloquesurgenloscentrosculturalesporloquese realiza un análisis detallado tanto artísticos como plásticos, abarcando dos centros internacionales siendo previamente analizadoporelentornoquelosrodeayhastalafunciónque conectansusespacios.

Asímismo,eltrabajoconsiste,acercadelcontextourbano según los centros culturales que estamos trabajando en equipo,suestructura,sistemasconstructivos,yfinalmentela reglamentaciónylanormativa.

REVISIÓN TEÓRICA 01

DEFINICIÓN DE CENTROS CULTURALES

UnCentroCulturalesunespaciocreadoconlaintensiónde servircomomedioparaladifusióndedistintasexpresiones artísticas,fisiologicasyeducativas.

Porlogeneral,lasactividadesqueserealizanencentros culturalessirvenparafortaleceralascomunidades;así comofomentarlacreatividad,elaprendizajeyelsano esparcimiento.

Laestructuradeuncentroculturalpuedevariarsegúnel caso.

Los centros más grandes tienen auditorios con escenarios,bibliotecasyotrosespacios.

Bailes

Acción de movimiento del cuerpo normalmente con música

DTeatro anza Performance

Forma de bailar generalmente siguiendo elritmodeunamúsica.

Disciplina artística creada a travésdeaccionesrealizadas por el artista u otros participantes,pudiendoseren vivo.

artedecrearyorganizarsonidos ysilenciosrespetandolos principiosfundamentalesdela melodía artesescénicasrelacionada conlaactuación.

Música Circo Espectáculo artístico

TIPOS DE CENTROS CULTURALES

CENTRO DE DESARROLLO COMUNITARIO

TEATRO

El teatro es un espacio artístico de contemplación,esunadelasartesescénicas másreconocidasmundialmente.Consisteen unapuestaenescenafrenteaespectadores,en la cual se presenta una historia donde se conjugandiferenteselementos:losactores,el guión,elsonido,laescenografíaysobretodo la gestualidad a la hora de interpretar cualquieremoción.

AUDIOVISUAL

Lo audiovisual remite a una serie de tecnologíasqueposibilitaronlatransmisión

o la reproducción diferida de contenido pasibledeservistoyoído.Elcontenidode carácteraudiovisualnotardóenconvertirse en una gran industria relativa a diversos procesosdeinnovación,comoasimismose convirtió en una nueva fuente de producciónartística.

CINEMATOGRAFÍA

Eselarteylatecnologíadelafotografía cinematográfica,esunatécnicaqueencierra diferentes técnicas como por ejemplo la composición general de una escena; la iluminación de todo el conjunto o la ubicación;lacorrectaseleccióndecámaras, lentes,filtrosypelículas;elánguloadecuado parausarenlacámaraylosmovimientos, así como la integración de efectos especiales.

CENTRO

ARTES ESCÉNICAS, AUDIOVISUALES Y PLÁSTICAS

ARTE A MANO

ESCENOGRAFÍA MÚSICA

Es una disciplina que permite presentarunadecoraciónescénica.

Setratadeunconjuntodeelementos plásticos y pictóricos conjugados armoniosamente con el fin de organizarelespacioescénicodeuna obrateatralodecualquierotrotipo deespectáculo.

Escrearalgodesdecero,algonuevo sin la ayuda de máquinas o de procesos automatizados, es una actividad útil y provechosa. Generalmente se considera, como aquellaslaboresenlasquesebusca una realización de expresión autónoma y proyección de la creatividad.

Eslacombinaciónordenadaderitmo, melodía y armonía que transmite efectos sonoros, armoniosos y estéticamenteválidos,loscualesson generadosatravésdelavozode instrumentosmusicales.

FOTOGRAFÍA

Es el arte y la técnica de obtener imágenesduraderasdebidoalaacción delaluz. Eselprocesodeproyectar

imágenes, capturarlas y plasmarlas bien por medio del fijado en un medio sensible a la luz o por la conversiónenseñaleselectrónicas.

DE

LITERATURA

EsunadelasBellasArtesyunadelasmás antiguas formas de expresión artística, caracterizada,segúnelDiccionariodelaReal AcademiaEspañola,porla“expresiónverbal”.

Es decir que alcanza sus fines estéticos mediante la palabra, tanto oral como mayormenteescrita.

CENTROS DE PATRIMONIO

BIBLIOTECA

Esellugardestinadoalacolecciónorganizada dediferenteslibrosy/oaudiovisualesconelfin deprestarlosaundeterminadopúblico.A diferencia de una librería, los usuarios no puedencomprarlosejemplares;aunque,enla mayoría de los casos, pueden acceder gratuitamente a las instalaciones de la bibliotecayasumaterial

Esunainstituciónpermanente,sinfinesde lucro,alserviciodelasociedadyabiertaal público, que adquiere, conserva, estudia, exponeydifundeelpatrimoniomateriale inmaterial de la humanidad con fines de estudio,educaciónyrecreo.

MUSEO
APROXIMACIÓN PROYECTUAL 02
CENTRO DE ARTES ESCÉNICAS WAGNER NOËL

RESUMEN BREVE DEL PROYECTO

ElNoëlWagnerPerformingArtsCenteresun centrodeartesescénicasdelaregiónoestede Texas.

Estecentrode109.000m2eselresultadodeuna colaboraciónentrelaUniversidaddeTexasylas comunidadesdeMidlandyOdessa.

Eldiseñoarquitectónicosebasaenelpaisajedel oeste de Texas, inspirado en sus estratos geológicos, el paisaje desértico y sus cielos interminables.

Eledificiopareceemergerapartirdeunaserie deplanosplegados

BoraArchitects, RhotenberryWellenArchitects

CONTEXTO URBANO

NORTEAMERICA

ESTADOS UNIDOS

TEXAS

El Noël Wagner Performing Arts Center se encuentra en el País de estados unidos, en Norteamérica, específicamenteenlaregiónoestedeTexas;cercaaestepodemosencontraruncentroeducativo,estese encuentrauntantoaleadodelaciudad,enunlugarconambienteunpocomasdesertico.

RELACIÓN CON EL ENTORNO
Wagner Noël Performing Arts Center La Hacienda Event SCenter carborough Spec a ties, Inc. P Travel Center American Home Improvement Ye lowhouse Machinery Co 2455 Amer ca s SBDC at UT Permian Bas nCEED Building Butch's Rathole And Anchor Service
lot
Stripes

C E S O S V E H I C U L A R E

CONTEXTO URBANO-ACCESIBILIDAD A C
S

OestedeTexas,US

ESTACIONAMIENTO

Elproyectocuentaconunsoloaccesoprincipal queseconforma claramente en la fachada principal el cual nos conduce a un hall distribuidoryescaleras.

ENTRADA PRINCIPAL ESQUINA DEL ESTACIONAMIENTO ENTRADA PRINCIPAL DEL CENTRO CULTURAL ENTRADA SECUNDARIA NoëlWagnerPerforming
ANÁLISIS FUNCIONAL-CIRCULACIÓN EldiseñoarquitectónicoestáarraigadoenelpaisajedeloestedeTexas,inspiradoensus estratosgeológicos,elpaisajedesérticoderepuestoyloscielosinfinitos. Lasaladerecitalescuentaconasientoselevadorestelescópicosycortinasacústicasque conviertenlasaladeunespacioparaeventosparaunarecepciónenunespaciode espectáculos.Unaampliaescaleraconectalastreshistoriasconvistasfluidasentreniveles. VESTÍBULO SALADE ESPECTÁCULOS SALADERECITALES SALADEENSAYO PATIO BAÑO 1. 2. 3. 4. 5. 6. AMBIENTE 1RA PLANTA LEYENDA FlujoAltodeCirculación FlujoBajodeCirculación

Enambosplanossepuedeobservareltipodecirculaciónquetienecadauna deellas;laazulesunacirculaciónbajayaquesonmuypocaspersonasque circulanporahíylarojaes quehaybastantecirculacióndepersonas;cada unadeellastieneunadiferentefunción.

1RA PLANTA 2DA PLANTA

espaciosquevanlaspersonas;sepuededistinguir eselvestíbulo-1eselambienteinicialquevapasa sondeazulquesonsaladeespectaculos-2,salade

Acásepuedemostrarlaelevaciónconlaintensid

daddelosflujosdeacuerdosalos queloqueestaresaltadodeverde arporlosdemásambientesyaque ensayos-3ysalasderecitales-4.

EldiseñoarquitectónicosebasaenelpaisajedeloestedeTexas,inspiradoensusestratos geológicos,elpaisajedesérticoysuscielosinterminables.

Enelinteriordelvestíbulo,tienenparedesgruesasquesugierenespaciosescultóricos talladosenrocasólida.Unaampliaescaleraqueconectalastresplantasconvistasentre losniveles.

ZONA DE
PROYECCIÓN ZONA DE ESPARCIMIENTO ZONA DE SERVICIO ZONA AL AIRE LIBRE ANÁLISIS FUNCIONAL-ZONIFICACIÓN INGRESO PRINCIPAL
AMBIENTES SALA DE RECITALES VESTIBULO SALA DE ESPECTÁCULOS PATIO PROGRAMACIÓN 1ER PLANTA/ZONAS Saladeespectáculos Saladerecitales Saladeensayo Baño Patio Vestíbulo-lobby Camerinos
Sala de espectáculos VESTÍBULO SALADEESPECTÁCULOS SALADERECITALES SALADEENSAYO PATIO BAÑOYCAMERINOS 1. 2. 3. 4. 5. 6. 6 LEYENDA ZONA DEESPARCIMIENTO ZONADESERVICIO ZONAALAIRELIBRE ZONADEPROYECCIÓN Ingreso Sala de recitales Sala de ensayo Patio V e s t í b u l o AMBIENTES Baño Baño y camerinos
ZONA DE ESPARCIMIENTO Elementos acústicos variables incluyen una cáscara de orquesta desmontable, un toldo retráctil acústico y cortinasacústicasajustables. PROGRAMACIÓN 2DA PLANTA/ZONAS ZONA DE PROYECCIÓN Balcón Vestíbulo-lobby ANÁLISIS FUNCIONAL-ZONIFICACIÓN INGRESOPRINCIPAL AMBIENTES BALCÓN VESTIBULO
ZONA DE PROYECCIÓN V e s t í b u l o B a l c ó n VESTÍBULO BALCÓN 1. 2. ZONA DE ESPARCIMIENTO AMBIENTES LEYENDA
Zona de proyección Sala de espectáculos Sala de recitales Sala de ensayo Zona de aire libre Patio Zona de servicio Baño Zona de esparcimiento Vestíbulo SALA DE SRECITALES ALA DE ENSAYO VESTIBULO Ingreso SALA DE ESPECTACULOS 1RA PLANTA VESTÍBULO SALADEESPECTÁCULOS SALADERECITALES SALADEENSAYO PATIO BAÑO 1. 2. 3. 4. 5. 6. PROGRAMACIÓN ARQUITECTÓNICA BAÑO Y CAMERINOS Programación Arquitectónica Centro de Artes Escénicas Wagner Noel PATIO
2DA PLANTAVESTÍBULO BALCÓN 1. 2. PROGRAMACIÓN ARQUITECTÓNICA VESTIBULO BALCÓN Zona de proyección Sala de espectáculos Sala de recitales Sala de ensayo Zona de aire libre Patio Zona de servicio Baño Zona de esparcimiento Vestíbulo Programación Arquitectónica Centro de Artes Escénicas Wagner Noel
Ingreso V e s t í b u l o Sala de espectáculos SPatio ala de ensayo Sala de recitales Baño En los planos podemos diferentesespaciosyfuncio deactividadesenelCentro

que cada uno tiene nes;queserealizandiferentestipos

V e s t í b u l o B a l c ó n diferenciar
Cultural

Elproyectopresentaáreasdeairelibreque sonespaciosvacíosdestinadosalaszonas libresderecreación,dondelaspersonas puede pasar el rato o realizar alguna actividadquelesguste. Tambiénpresentavolúmenesqueforman partedelcentrocultural.

MASA Y VACÍO x MASA VACÍO
Sonespaciosabiertosovacíosquenoestán construidos,formanpartedelcentrocultural

ELEMENTOS FORMALES

Seimplantounavolumetríacompuestaporelementos puros, algunossometidosauntrabajosustracciónafin degenerarespaciosflexiblesyasuvezmaximizandola oportunidaddeobtenervistaspreferenciales.

SUSTRACCIÓN

RITMO

lasventanasperforanrepetidamentelasuperficiedel proyectopermitiendoelingresodelaluzycreando ritmovisual

Las lineas rectas están en su mayoría destacadas por lineas verticales y en su minoríalineashorizontales

LINEAS RECTAS

Eledificiopareceemergerapartirde unaseriedeplanosplegados.Lasformas más altas del edificio están revestidas con paneles de acero inoxidable. Combinandoconelentornoduranteel día,eledificioesunfarobrillanteenla noche,visibledesdevarioskilómetros.

MODULACIÓN

Estecentroculturalestácompuestopor4volúmenes,todos módulossimples,unodeellosesunparalelepípedomuy notorioqueactúacomounamasaenormellamandola atención y gobernando en la estructura del proyecto, además cabe recalcar que todos estos elementos están acondicionadosalterrenonatural.

VOLUMEN 1 VOLUMEN 4 VOLUMEN 3 VOLUMEN 2

CARACTERÍSTICAS DE LA

COMPOSICIÓN COMBINANDOCONEL ENTORNODURANTEEL DÍA,ELEDIFICIOESUN FAROBRILLANTEENLA NOCHE,VISIBLEDESDE VARIOSKILÓMETROS. BASADOENELPAISAJEDEL OESTEDETEXAS,INSPIRADO ENSUSESTRATOS GEOLÓGICOS,ELPAISAJE DESÉRTICOYSUSCIELOS INTERMINABLES. INSPIRACIÓN COMOREFLEJODELENORME CIELODETEXAS,LASFORMAS MÁSALTASDELEDIFICIO ESTÁNREVESTIDASCON PANELESDEACERO INOXIDABLE.
ESTE PROYECTO ESTA COMPUESTO POR UNA SERIE DE PLANOS QUE EMERGEN DESDE ABAJO, CREANDO FORMAS ALTAS EN EL EDIFICIO, HACIENDO QUE EL PROYECTO SE COMBINE CON EL ENTORNO DURANTE EL DÍA, Y QUE DURANTE DE LA NOCHE RESALTE COMO COMPOSICIÓN

ESTRUCTURA

Elsistemadediseñotanto como en sistema de construcción están optimizadosparaelclima de la región. Orientado haciaelnorte,lasventanas yclaraboyasestánsituadas paraevitarlaacumulación de calor. Las Plantas nativasayudanaconservar elagua,mientrasquelos sistemas innovadores de controldeluzreducenel consumodeenergía.

Estas formas volumétricas mas altas del edificio se encuentran revestidas con diversos paneles de acero inoxidable, haciendoqueestenosoloayudedemanera estructural, sino también haciendo que el proyecto llegue a combinarse con el entornoduranteeldía.

Lagrancubiertaexteriordela fachadase encuentraconstruidadeconcretoarmado juntoaestructurasdefierroque generan unagranresistenciaparapoderdaresta formainclinadaenlafachadadelproyecto. Tambiénpodemosinstruirlapresenciade vigas y dinteles por la cantidad de ventanasenlafachada.

SISTEMA CONSTRUCTIVO

Barandademadera

GRILLA CONSTRUCTIVA

Eledificiocuentaconunsistemaconstructivode concretoarmado,endondeselehadadousoalas placasparamantenerlaestabilidaddeledificioenla zonadelteatrojuntoconlamallaespacialeneltecho deeseambiente,ylazonapúblicadedobleytriple altura.Laslosasdeledificiosonlosasaligeradas.

Artículo 2: Estándentrode los alcances de la presente normalossiguientestiposde edificaciones:Servicios Culturales:MuseosGaleríade arte-Bibliotecas-Salones comunales

Artículo 8: Lasedificaciones para servicios comunales deberán contar con iluminaciónnaturaloartificial suficiente para garantizar la visibilidaddelosbienesyla presentacióndelosservicios.

Artículo 10: Lasedificaciones para servicios comunales deberán cumplir con las condiciones de seguridad establecidas en la Norma A.130 ''Requisitos de seguridad"

Artículo 17:Lasedificaciones de servicios comunales se deberán proveer estacionamientosdevehículos dentroelprediosobreelque seedifica.

A.090

Elcentroculturalestá enesta regladebidoa que ofrece varios servicioscomunales

Elcentroculturalcuentacon monumentales ventanales y una idónea iluminación artificialporloquesicumple laregla.

Estecentroculturalcuentay cumple con este articulo debido a que se respeta y cumplelareglaA.130

NORMA A.090

Si cumple conforme con la regla el estacionamiento está dentrodelpredio

Artículo 1:Se den edificaciones para f recreaciónydeportes destinadas alasac de espacimiento,re activaopasivayapr deportes Sicumple debidoa actividade hacenen son de r esparcimie

NORM A.10

NORMATIVA :A.090-A.100-A.140 NORMA A.090
NORMA
NORMA A.090

enominan fines de esaquellas ctividades recreación rácticade

Artículo 4:Las edificaciones pararecreaciónydeportesse ubicaran en los lugares establecidosenelplanurbano, quecuentenconfacilidadde acceso y evacuación de personas

Artículo 5:Se deberá diferenciar los accesos y circulaciones de acuerdo al uso y capacidad.Deberán existiraccesosseparadospara público, personal, actores, deportistas, jueces y periodistas.

Artículo 16:Lavolumetríade las construcciones debe adaptarsealatopografíadela zonanodebealterarelmedio físico(naturalyartificial)del ambientemonumental

Artículo 36:Los profesionales,contratistas u otros,ejecutoresdelasobras estánobligadosacumplirlo que disponga el Instituto NacionaldeCultura.

conlaregla

quemuchas

s que se estecentro ecreación y ento

NORMA A.100 NORMA A.100 NORMA A.140 NORMA A.140 Sicumpleconlaregla yaqueserespetaala disposicióndelINC

el centro está e un espacio predeterminado por elproyectourbanode cusco, tiene una simpleaccesibilidady evacuación

el centro cultural cuenta accesos de carácter único para ciertaspersonas.

La volumetría si cumple ya que se ajustaalatopografía delsitio.

MA 00
APROXIMACIÓN PROYECTUAL 02
CENTRO DE ARTES ESCÉNICAS DE OSONA

RESUMEN BREVE DEL PROYECTO

EsunCentrodeArtesescénicasqueseencuentraubicadoenlaciudaddeBarcelona enEspaña,esobradelarquitectoJosepLlinàsyseinauguróel23deabrilde2010.

ElAtlàntida,CentrodeArtesEscénicasdeOsonaeslaequipaciónculturaldemás relevanciadelaciudaddeVicydelacomarca,quetienecomomisióncontribuiral ocioyalaformacióndelosciudadanosenelámbitodelamúsicaylasartes escénicas.

ElnuevoCentrodeArtesEscénicasdeOsona,LaAtlántida,sustituyealantiguoteatro delmismonombrequecerróen2002porcausadelaaluminosis.

CONTEXTO URBANO

BARCELONA

ElAtlàntida,CentrodeArtesEscénicas deOsonase ubicadoenlaciudadde

Barcelona,enEspaña.

OSONA

Osonaesunacomarcaespañola, situada mayoritariamente en la provinciadeBarcelona,Cataluña, salvolosmunicipiosdeViladrau, Vidrá y Espinelvas, que pertenecen a la provincia de Gerona. Se engloba dentro del ámbitodelaCataluñaCentralyel AltoTer

Barcelonaesunaciudad española, capital de la comunidadautónomade Cataluña,delaprovincia homónima y de la comarcadelBarcelonés. Conunapoblaciónde1 636732habitantes.

ESPAÑA

Es un país soberano transcontinental, miembro de la Unión EuropeaydelaOTAN, constituido en Estado socialydemocrático de derechoycuyaformade gobiernoeslamonarquía parlamentaria.

RELACIÓN CON EL ENTORNO

Orange Tienda de móviles

BeCuteVic Salón de belleza

Adoberies Lugar de interés histórico

Clínica Sant Josep

La Cuina de les Delícies restaurante

Iglesia de Santa Teresa

Escuela De Música Municipal

Parque de San Julián de Auvernia

01 02 03 01 02 03 04 05 06 07 08
04 05 0607 08 03 07 08 02 05 01 04 06
ACCESOS VEHICULARES CONTEXTO URBANO-ACCESIBILIDAD

PEATONAL

ESTACIONAMIENTO ESTACIONAMIENTO INGRESO
PRINCIPAL INGRESO VEHICULAR PRINCIPAL V Í A P R I N C I P A L V Í A S E C U N D A R I A

ANÁLISIS

FUNCIONAL-CIRCULACIÓN

LEYENDA

FlujoAltodeCirculación

FlujoBajodeCirculación

Ingreso Ingreso

Primera Planta

Salida

Tercera SPlanta egunda Planta

ANÁLISIS

FUNCIONAL-ZONIFICACIÓN

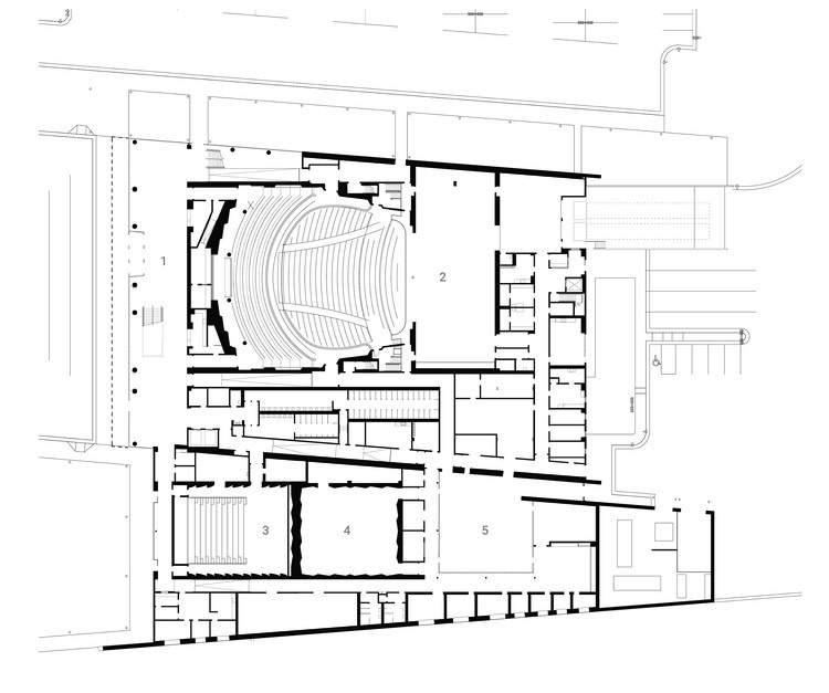
Estáformadobásicamenteporpartesdemuydiferenteconstitución:Teatro,Auditorio,Servicios,Escuelade MúsicayRestaurante.SielTeatroyelAuditoriosonpiezasdegranescalaquenonecesitanluznatural,la EscueladeMúsicaes,alcontrario,laagregaciónrepetitivadepequeñasunidadesquesínecesitanluzy ventilaciónnatural.EnelcasodelTeatro,hayquedestacarlaalturainevitabledelacajaescénicaqueporsu volumenseráunareferenciavisualdelconjuntoenrelaciónalaciudadyasuentornopróximo.

INGRESOPRINCIPAL AUDITORIO
VESTIBULO
TEATRO VISTAEXTERIOR

AMBIENTES PRIMER NIVEL

Conservatorio y la escuela cota+0 60

E1.4 Sala de espera E1 5 Servicios sanitarios

E2.1 Cabinas de estudio E2.2

E2 3 Aulas de piano E2.12

E1.1 Vestíbulo acceso superior E1 2 Mostrador de recepción y control

E1.3 Anexo Magatzem

E1 4 Taquil es E2.8 Aula informática

Espacios Exteriores Anexos

Ex1 1 Espacio exterior cubierta

Planta cota +0.00

Planta cota +0.60 terraza de la escuela planta cota +1.00

Ex2.1 Espacio exterior descubierta

planta cota -0.40 planta cota +0.00

Ramoa cota 0 40 a +0 80 planta cota +0.80

Rampa cota+0.80 a +1.00 planta cota +1 00

P Auditorio cota+0.00

PS Área de recepc ón de decoraciones

PS 5 Vestidores y servicios san tarios personales

PS 6 Manten miento local general Teatro T cota+0.00

TS.3 despacho de proximidad

17 2 Sala gran d assaig

17.3 Sala petita d'assaig

17.4 Anexos de almacenes

17 5 Anexos de servicio sanitario

T8.7 Bugaderia

T8.9 Mantenimiento general

78 10 Vest dores personales de mantenim ento

1 Espacios de instalaciones

planta cota 1.00

ZONA DEESPARCIMIENTO

ZONADEPROYECCIÓN

ZONADESERVICIO

ZONAALAIRELIBRE

SEGUNDO NIVEL

ZONA DEESPARCIMIENTO

ZONADEPROYECCIÓN

ZONADESERVICIO

ZONAALAIRELIBRE

Servicios transversales

cota 2.50

S1.1 Vestíbulo general

S1.2 Mostrador información

S1.3 Anexo almacén

S1.4 Servicios sanitarios

S1.5 Cancelaciones de entrada

S3.1 Central de seguridad local

S3.2 Local de descanso seguridad

S3.3 Enfermería

cota 3.00

S2. Acceso

S2.1 Bar

S2.2 Sala de restaurante

S2.3 Servicios sanitarios

S2.4 Oficina

S2.5 Cocina

S2.6 Despensa y cámara fotográfica

S2.10 Contenidos locales residuales cota-4.00

S1.8 Vestíbulo superior

Conservatorio y escuela de Musica

cota 2.50

E1.7 Vestibulo acceso inferior cota 3.00

E1.5 Servicios sanitarios

E2.1 Cabinas de estudio

T Teatro cota -2.00

T.8.1 Área de recepción de decoraciones cota-2.50

T1.3 Mostrador de información y billetes cota-2.65

T2.3 Anfiteatro cota-3.15

T5.4 Servicios sanitarios de proximidad

T5.6 vestidores de los técnicos

T6.1 camerinos particulares (4)

T6.2 camareros de grupo (4)

T6.3 Servicios sanitarios y duchas(4)

T6.4 Almacenes adjuntos (4) cota-3.00

T5.6 Vestidores de los tecnicos

T8.1 Área de recepcion decorada

T8.9 Espacio disponible

I Espacio de instalaciones planta cota -3.00

E2.1 Aula de instrumentos de cuerda o viento

E2.4 Aula de canto

E2.6 Aula de lenguaje/ teóricas

E2.9 Aulas de cámara

E2.12 Aulas de cámara y corazón

E2.14 Reparticiones de almacenes

Anexoos exteriores espacios cota-2.50

Ex1.1 Espacio exterior cubierta

EX1.1 Rampa des de 0.40 a 2.50

Ex1.1 Espacio exterior cubierta

Ex1.1 Rampa des de 3.00 a 2.50

Ex2.1 Espacio exterior descubierta cota -3.00

Ex2.1 Espacio exterior descubierta

ZONA DEESPARCIMIENTO

ZONADEPROYECCIÓN

ZONADESERVICIO

ZONAALAIRELIBRE

E Conservatorio y la escuela de musica cota -6.60

E2.1 Cabinas de estudio

E2.1.1 Aula de percusión cota-6.10

E1.5 Servicios sanitarios (3)

E1.6 Vestibulo de sala polivalente

E2.10 Aula combo/percusión

E2.13 Sala polivalente

E2.15 Almacén de grandes instrumentos cota-6.35

E2.1 Cabinas de estudio

Espacios exteriores cota-6.10

Ex1.1 Exterior del vestibulo cota-7.50

Ex1.1 Exterior del vestibulo

S Servicios transversales

cota -8.00

S2.7 Despacho

S2.8 Vestuarios personales (2)

S2.9 Servicios sanitarios personales

-T Teatro cota-10.80

T3.6 Fosado de músicas

T3.7 Fosado de escenario

T5.7 Vestíbulo de musica

P Auditorio cota-7.50

P1.2 Vestíbulo auditorio

P1.4 Almacén vestíbulo 2

P1.5 Servicios sanitarios (2) cota -8.30

P1.2 Vestíbulo Auditorio

T Teatro

cota -8.00

T1.2 Vestíbulo principal de teatro

T1.4 Servicio bar

T1.5 Servicio de guardarropa

T1.6 Almacén bar

T1.7 Servicios sanitarios al publico (3)

T2.1 Cancelaciones de acceso del publico (2) cota-8.30

T3.1 Cancelaciones de accesos personales y artistas T3.2 Corbata

T3.3 Escenario

T3.4 Laterales escenario (2)

T3.2 Ultimo escenario

T4.8 Audio (AV) Teatro

T5.1 Vestíbulo de artistas

T5.2 Camerino cambio rápido (1)

T5.4 Servicios sanitarios de proximidad (2)

T5.5 Vestíbulo técnicos

T8.3 Almacén de sonido

T8.4 Almacén de iluminación

T8.5 Almacén de maquinaria

T8.6 Almacén de material diverso

T8.8 Local de basura

T8.9 Espacio disponible

T8.10 Almacén vestíbulo (1) cota -7.85 a cota -9.40

T2.2 Plata (534 espectadores)

P1.3 Tablero de información y guardarropa

P2.1 Cancelaciones de acceso a la sala (2)

P2.2 Espacio espectador

P2.3 Escenario integrado amovible

P2.2 Grados de almacén

P2.6 Audio (AV) Auditorio

P4.1 Artistas de vestíbulo

P5.3 Almacenes auditorio

P5.5 Almacenes específicos

P5.6 Almacenes disponibles

P5.7 Contenedores locales de basura

TERCER NIVEL

cota

LEYENDA

Servicios transversales cota-2.50

T Teatro cota -2.00

T.8.1 Área de recepción de decoraciones cota-2.50

T1.3 Mostrador de información y billetes cota-2.65

Anfiteatro cota-3.15

T5.4 Servicios sanitarios de proximidad T5.6 vestidores de los técnicos

T6.1 camerinos particulares (4)

T6.2 camareros de grupo (4)

T6.3 Servicios sanitarios y duchas(4)

T6.4 Almacenes adjuntos (4) cota-3.00

T5.6 Vestidores de los tecnicos

T8.1 Área de recepcion decorada

T8.9 Espacio disponible

Espacio de instalaciones planta cota -3.00

cota

SEGUNDO NIVEL LEYENDA
PRIMER NIVEL PROGRAMACIÓN ARQUITECTÓNICA Conservatorio y la escuela cota+0.60 E1.4 Sala de espera E1.5 Servicios sanitarios E2.1 Cabinas de estudio E2.2 E2.3 Aulas de piano E2.12 E1.1 Vestíbulo acceso superior E1.2 Mostrador de recepción y control E1.3 Anexo Magatzem E1.4 Taquilles E2.8 Aula informática Espacios Exteriores Anexos Ex1.1 Espacio exterior cubierta Planta cota +0.00 Planta cota +0.60 terraza de la escuela planta cota +1.00 Ex2.1 Espacio exterior descubierta planta cota -0.40 planta cota +0.00 Ramoa cota -0.40 a +0.80 planta cota +0.80 Rampa cota+0.80 a +1.00 planta cota +1.00 P Auditorio cota+0.00 PS. Área de recepción de decoraciones PS.5 Vestidores y servicios sanitarios personales PS.6 Mantenimiento local general Teatro T cota+0.00 TS.3 despacho de proximidad 17.2 Sala gran d' assaig 17.3 Sala petita d'assaig 17.4 Anexos de almacenes 17.5 Anexos del servicio sanitario T8.7 Bugaderia T8.9 Mantenimiento general 78.10 Vestidores personales de mantenimiento 1 Espacios de instalaciones planta cota -1.00 Conservatorio y escuela de Musica
2 50 E1.7 Vestibulo acceso inferior cota 3.00 E1.5 Servicios sanitarios E2.1 Cabinas de estudio E2.1 Aula de instrumentos de cuerd E2 4 Aula de canto E2 6 Aula de lenguaje/ teóricas E2.9 Aulas de cámara E2.12 Aulas de cámara y corazón E2.14 Reparticiones de a macenes Anexoos exter ores espacios cota 2.50 Ex1 1 Espacio exterior cubierta EX1 1 Rampa des de 0 40 a 2 50 Ex1.1 Espacio exterior cubierta Ex1.1 Rampa des de 3.00 a 2 50 Ex2.1 Espacio exterior descubierta
3.00 Ex2.1 Espacio exterior descubierta
T2.3
I
14.00m2 28.70m2 125.40m2 43.20m2 117.00m2 78.70m2 54.50m2 8.80m2 13.40m2 34.50m2 36.80m2 46.60m2 22.90m2 48.60m2 6.80m2 14.00m2 137.90m2 13.13m2 57.10m2 13.70m2

Teatro cota-8.00

Vestíbuloprincipaldeteatro

Servicio

Serviciodeguardarropa

185.80m2 30.70m2 35.00m22 19.20m2 74.00m2 21.80m2 19.20m2 19.10m2 145.60m2 68.80m2 129.70m2 8.20m2 22.60m2 8.50m2 14.40m2 91.70m2 25.30m2 123.80m2 61.60m2 20.80m2 7.60m2 37.90m2 441.30m2.

Aloja en su interior un programamuycomplejo, consistenteenunteatro, unauditorio,unaescuela de música y un bar restaurante,dandocabida deestemodoatodaslas artesescénicas. Tambiéncuentaconun

área de estacionamiento subterráneo

LEYENDA TERCER NIVEL
E Conservatorio y la escuela de musica cota -6.60 E2.1 Cabinas de estudio E2.1.1 Aula de percusión cota-6.10 E1.5 Servicios sanitarios (3) E1.6 Vestibulo de sala polivalente E2.10 Aula combo/percusión E2.13 Sala polivalente E2.15 Almacén de grandes instrumentos cota-6.35 E2.1 Cabinas de estudio Espacios exteriores cota-6.10 Ex1.1 Exterior del vestibulo cota-7.50 Ex1.1 Exterior del vestibulo PAuditorio cota-7.50 P1.2 Vestíbuloauditorio P1.4Almacénvestíbulo2 P1.5Serviciossanitarios(2) cota-8.30 P1.2VestíbuloAuditorio P1.3 Tablerodeinformación yguardarropa P2.1Cancelacionesdeaccesoalasala(2) P2.2Espacioespectador P2.3Escenariointegradoamovible P2.2Gradosdealmacén P2.6Audio(AV)Auditorio P4.1Artistasdevestíbulo P5.3Almacenesauditorio P5.5Almacenesespecíficos P5.6Almacenesdisponibles P5.7Contenedoreslocalesdebasura SServiciostransversales cota-8.00 S2.7Despacho S2.8Vestuariospersonales(2) S2.9Serviciossanitariospersonales -TTeatro cota-10.80 T3.6Fosadodemúsicas T3.7Fosadodeescenario T5.7Vestíbulodemusica T
T1.2
T1.4
bar T1.5
T1.6Almacénbar T1.7Serviciossanitariosalpublico(3) T2.1Cancelacionesdeaccesodelpublico(2) cota-8.30 T3.1Cancelacionesdeaccesospersonalesyartistas T3.2Corbata T3.3Escenario T3.4 Lateralesescenario(2) T3.2Ultimoescenario T4.8Audio(AV)Teatro T5.1Vestíbulodeartistas T5.2Camerinocambiorápido(1) T5.4 Serviciossanitariosdeproximidad(2) T5.5Vestíbulotécnicos T8.3Almacéndesonido T8.4Almacéndeiluminación T8.5Almacéndemaquinaria T8.6Almacéndematerialdiverso T8.8Localdebasura T8.9Espaciodisponible T8.10Almacénvestíbulo(1) cota-7.85acota-9.40 T2.2Plata(534espectadores) 15.00m2 55.90m2 15.30m2 104.70m2 27.50m2 140.80m2 35.60m2 8.2m2 221.00m2 2113.10m2 84.20m2 5.80m2 (iniciosenT1.7) 135.50M2 31.70M2 18.30M2 270.80m2 157.90m2 27.80m2 8.60m2 146.60m2 (iniciosenP5.3) 8.90m2 (iniciosenT8.8) 9.40m2 12.10m2 3.70m2 56.30m2 189.70m2 24.20m2

Con una superficie de 10.500 m2 construidos, el programa incluye prácticamente 3 partes:

1er nivel (Teatro)

-TEATRO -AUDITORIO -ESCUELA DE MÚSICA

1. 2. 3. todas ellas se organizan bajo una excelente cubierta que las unifica.

1 2 3
2do nivel ( Escuela de música) 3er nivel (Auditorio)

MASA Y VACÍO

VACÍO

Elcentroculturalpresenteungranespaciodevacío,enlosexteriores delproyecto,estossinusadosparaelingresoyunaparteparael estacionamiento,tambiénpodemosobservarlapresenciadevacíosenel interior,estosayudanalaventilacióneiluminaciónenlaparteinterna delproyecto.

Elproyectopresentaáreasdeairelibrequesonespaciosvacíos destinadosalaszonaslibresderecreación,dondelaspersonaspuede pasarelratoorealizaralgunaactividadquelesguste. Tambiénpresentavolúmenesqueformanpartedelcentrocultural.

ASA

ELEMENTOS FORMALES

ASIMETRÍA

Se puede observar disparidad en la formas y volúmenes dentro del proyecto los diversos plieguesdelacubierta,másintrovertidasydeuna alturamayorquelasanteriores

El proyecto de L’Atlàntida es irregular,enformadeespiral, con un espectacular juego de cubiertas y con diversas conexiones interiores que simulanlaestructuraurbanade uncascoantiguo.

JERARQUÍA

En la fachada se puede observar un elementoJerárquicoquepredominaenla composición,convirtiendoseenlomás llamativodentrodeella.

PROPORCIÓN

Tieneunbuenefectovisualgraciasalasformasy espaciosbienproporcionadosqueconformansu estructura,loqueayudaaunificarlavisualmente.

LINEAS RECTAS

Las líneas rectas son en su mayoriadestacadasporlineas verticalesyensuminoríase

pueden apreciar lineas horizontales.

MODULACIÓN

Está formado por tres espacios: el Teatro Ramón Montanya, con una capacidad para 800 personas, el Auditorio Joaquim Maideu, con un máximo de 384 butacas y una sala polivalente con una capacidad para 100 personas.

También se ubica en el edificio la Escuela de Música y el Conservatorio de Vic, que cuenta con más de 1.000 alumnos.

El edificio posee una forma singular y una geometría muy compleja.

Se observan formas sinuosas pero conectadas correctamente.

En este proyecto se evidencia como característica la jerarquía .

Es irregular, en forma de espiral, con un espectacular juego de cubiertas y con diversas conexiones interiores

CARACTERÍSTICAS DE LA COMPOSICIÓN

Las fachadas del proyecto quedan minimizadas a medida que se dirigen a los edificios ya construidos y se usan para ventilar e iluminar aquellas partes del programa que así lo requieren, como la Escuela de Música o el restaurante.

Entre los materiales utilizados hormigón visto, basalto, aluminio lacado, etc.

Se ha introducido en las partes más altas de la caja escénica y de la Escuela de Música, un revestimiento metálico

Las fachadas interiores están recubiertas con chapas de latón en color oro y con piedra negra las que miran al exterior, ambas combinan con las cubiertas terminadas en cinc.

Un edificio peculiar que deslumbra con su acabado de cobre, especialmente atractivo cuando se presenta matizado por la luz del atardecer.

Gran parte del volumen se ha enterrado para armonizar la altura requerida por el edificio con la que puede soportar el entorno.

ESTRUCTURA

Estructuralmente la forma del edifico es increíble, por las formas que tiene no solo en el techo, sino en toda su composición. Este esta principalmente hecho de concreto visto con armazón de varillás de fierro corrugado para mayor resistencia.

La parte sobresaliente del centro cultural, esta compuesto de concreto visto cubierto de un revestimiento metálico compuesto de una aleación de cobre aluminio.

El juego de cubierta del proyecto es bastante interesante y peculiar teniendo varios desniveles que genera, haciendo que el proyecto desarrolle una enriquecida composición, aportando de manera compositiva y funcional al centro de artes escénicas.

La estructura de techos del proyecto esta hecha de vigas de metal de diferentes tamaños que forman un armazón resistente para los techos

ecto es bastante interesante y eles que genera, haciendo que a enriquecida composición, sitiva y funcional al centro de

Para realizar estas aberturas que permiten en ingreso de luz al centro cultural, generaron muros de concreto visto recubierto de laminas de aluminio y con marcos también de aluminio.

SISTEMA CONSTRUCTIVO

En el anfiteatro se colocaron elementos fonoabsorbentes y se tuvo en cuenta la adecuada inclinación de los diferentes tramos del falso techo artesonado a fin de conseguir una buena sonoridad. Con el objeto de conseguir los niveles de aislamiento acústico requeridos, en todas las aulas se ha diseñado una losa flotante, un falso techo aislante y trasdosados autoportantes de placa de yeso laminar en paredes.

VENTANAS Y PUERTAS PARA AISLAMIENTO ACÚSTICO

Las paredes laterales y posteriores de las plateras en las diferentes salas fueron cubiertas con elementos difusores con el objeto de obtener una impresión espacial del sonido óptima y evitar la aparición del eco flotante.

Durante la fase de construcción del edificio, se ha efectuado un minucioso seguimiento de obra que ha permitido asegurar una correcta implantación de las soluciones relativas al acondicionamiento acústico, aislamiento acústico, control de ruido y vibraciones de las instalaciones e impacto acústico en los edificios vecinos.

El proyecto posee un control de humos y esto debido a singular geometría, específicamente en la caja escénica, la zona de foyer y el patio.

Las fachadas interiores están recubiertas con chapas de latón de color oro y con piedra negra las que miran al exterior, ambas combinan con las cubiertas terminadas en cinc.

NORMATIVA

Elcentroculturalestá enesta regladebidoa que ofrece varios servicioscomunales

Elcentroculturalcuentacon monumentales ventanales y una idónea iluminación artificialporloquesicumple laregla.

Estecentroculturalcuentay cumple con este articulo debido a que se respeta y cumplelareglaA.130

Si cumple conforme con la regla el estacionamiento está dentrodelpredio

Sicumplecon debidoaque actividades haceneneste son de recre esparcimiento

Artículo 2: Estándentrode los alcances de la presente normalossiguientestiposde edificaciones:Servicios Culturales:MuseosGaleríade arteBibliotecasSalones comunales

Artículo 8: Lasedificaciones para servicios comunales deberán contar con iluminaciónnaturaloartificial suficiente para garantizar la visibilidaddelosbienesyla presentacióndelosservicios.

Artículo 10: Lasedificaciones para servicios comunales deberán cumplir con las condiciones de seguridad establecidas en la Norma A.130 ''Requisitos de seguridad"

Artículo 17:Lasedificaciones de servicios comunales se deberán proveer estacionamientosdevehículos dentroelprediosobreelque seedifica.

Artículo edificacio recreació destinada de esp activaop deportes

NORMA A.090 NORMA A.090 NORMA A.090 NORMA A.090 NORM A.10
:A.090-A.100-A.140

MA 00 onlaregla emuchas que se tecentro reación y to

el centro está e un espacio predeterminado por elproyectourbanode cusco, tiene una simpleaccesibilidady evacuación

el centro cultural cuenta accesos de carácter único para ciertaspersonas.

La volumetría si cumple ya que se ajustaalatopografía delsitio.

Sicumpleconlaregla yaqueserespetaala disposicióndelINC

NORMA A.100

1:Se denominan s para fines de ydeportesaquellas alasactividades miento,recreación ivayaprácticade

Artículo 4:Las edificaciones pararecreaciónydeportesse ubicaran en los lugares establecidosenelplanurbano, quecuentenconfacilidadde acceso y evacuación de personas

Artículo 5:Se deberá diferenciar los accesos y circulaciones de acuerdo al uso y capacidad.Deberán existiraccesosseparadospara público, personal, actores, deportistas, jueces y periodistas.

A.140

A.140

Artículo 16:Lavolumetríade las construcciones debe adaptarsealatopografíadela zonanodebealterarelmedio físico(naturalyartificial)del ambientemonumental

Artículo 36:Los profesionales,contratistas uotros,ejecutoresdelas obras están obligados a cumplirloquedisponga elInstitutoNacional de Cultura.

NORMA A.100 NORMA
NORMA

PROYECTUALES

ESTRATEGIAS
03

EXTRATEGIAS PROYECTUALES GENERALES

Despuésdehaberestudiadoyanalizadoamboscasosde centrosculturalesseencontróalgunas deficiencias,talescomo:

TERRAZAS

Ninguno de los proyectos cuenta con terrazas, estas son importantes para la recreación y permiten tener contacto directo con el exterior.

ESPACIOS AL AIRE LIBRE

No se aprecian más espacios abiertos o al aire libre, sería una buena idea implementar zonas lúdicas en las cuales las personas puedan pasar momentos de recreación.

ESPACIOS INCLUSIVOS

Dar inclusión a las personas discapacitadas, tratando de generar más accesibilidad en todos los espacios para poder satisfacer sus necesidades y que puedan desplazarse sin problema alguno.

ÁREAS VERDES

El centro cultural cuenta con muy poca área verde, necesita tener mayor relación con el ambiente en el que se incluyan mas áreas verdes para una mejor estética para el publico.

PROGRAMA

ARQUITECTÓNICO 04
CENTRO CULTURAL

PROGRAMACIÓN

-Vestíbulo

-Teatro

-Auditorio

-Terraza

-Terraza

-Camerinos

-Galería de exposiciones

-Almacenamiento

-SS.HH

-Sala de esculturas

-Sala de música

-Biblioteca

-Taller de artes manuales

-Salón de danza

-Taller de fotografía

-Sala audiovisual

-Taller de ballet

Para realizar la propuesta volumétrica del centro cultural tuvimos en cuenta la estrategias proyectuales, las cuales hacen que este tipo de proyectos sean aprovechados al máximo, ya que estos son espacios que las personas visitan constantemente y debe ser un lugar agradable para ellos, también añadimos las deficiencias que tenían los 2 casos antes analizados.

Existe una buena circulación, espacios amplios, terrazas y en el exterior hay muchas áreas verdes y zonas en las cuales las personas pueden sentarse a disfrutar el aire libre y platicar, todo esto con la finalidad de que los usuarios puedan crear experiencias agradables.

Acceso principal Acceso secundario

CONCLUSIONES

05

Luego de analizar los proyectos culturales anteriores podemos decir que los centros culturales no solo nacen a raíz de la necesidad de crear espacios para el encuentro y la participación del público, no solo son espacios en los que los usuarios puedan relajarse y pasar un rato tranquilos fuera de la ciudad y el bullicio si no también pueden empaparse de diversos conocimientos ya que estos centros no solo se encuentran ligados al arte sino también a la educación.

L'Atlàntida (Centro de Artes Escénicas de Osona) es un centro cultural muy creativo, nos damos cuenta que los arquitectos encargados tuvieron en cuenta desde un inicio los materiales y hasta el final que vendría a ser su construcción y acabados, ya que al ubicarse en una zona céntrica y que el entorno son diversos edificios, capturaron aquella esencia de combinar y resaltar el arte.

El carácter permanente de la arquitectura se mantiene en la creación de nuevos espacios culturales, el centro cultural Wagner Noel y el L'Atlàntida de Osona son proyectos con una edificación increíble y muy llamativa, dentro de ellos se tuvo en cuenta la iluminación, la ventilación, la accesibilidad y el diseño de todos los espacios, que es algo que caracteriza a todos los centros culturales para así poder resaltar las obras, garantizar la conservación de las piezas artísticas y guiar a los usuarios por el recorrido expositivo de una forma más interactiva.

el Centro cultural Wagner Noel es un proyecto totalmente novedoso, pues su diseño está basado al entorno y emplazamiento en el que se encuentra, entre ello el color y textura utilizado en él. Al tratarse de una zona desértica se tuvo en cuenta la roca sólida y el acero inoxidable para reflejarse el cielo y por las noches el brillo de las estrellas. Este complejo cumple con las expectativas de muchos, pero se consideraría algún otro lugar añadido, como zona de descanso, o de recreación externa.

En ambos proyectos podemos ver la estética y diversos espacios que hacen que resulten mucho más atractivos, también nos muestra como es que podemos hacer parte del mundo y la historia un centro cultural, diseñado desde lo más mínimo hasta lo excepcional con dar juego a las formas y creando ambientes que resulten más placenteros para los habitantes.

Turn static files into dynamic content formats.

Create a flipbook
Issuu converts static files into: digital portfolios, online yearbooks, online catalogs, digital photo albums and more. Sign up and create your flipbook.