
master of architecture ‘25
![]()

master of architecture ‘25
undergraduate 2019-2023 graduate 2023-2025








2024
In
They say the third time is a charm, and in my third bout with the Solar Decathlon, that proved to be the case! Our team worked for nearly two semesters on our multifamily design for the competition, partnering with industry professionals and faculty to create a comprehensive sustainable and equitable project based in Columbia, MO.
My role in this project was oversee and review the construction documents, assist in the completion of the design communication drawings and diagrams, and ensure the building science was both feasable and proven throughout the delivery of the project.



University of Missouri Campus
- Student dorms
- Dorm rent: $800-$1000/month
- International students required to live on campus for 3 years

The site we chose for this project is currently a vacant brown-field in northern downtown Columbia. The site is surrounded by resources for low-income students, and is entirely walking-dependent; fitting into the 15-minute city model

Current Int. Student Concentration
- Off-campus housing
- Resource desert
- Rent: $600-$700/month
- Limited transportation access
Proposed Project Site
- Walking distance of campus
- Low-energy strategies allow lower rent in downtown market

Typical non-international student housing
- Resource-rich area
- Walking distance of campus
- Rent: $800-$1200/month


Two volumes
- Residential (red)
- Commercial (blue)
Shear volumes
- Residential is set back from street
- Commercial sheared closer to street for pedestrian interaction
Stretch and Pinch
- Residential is altered to increase privacy and reduce proximity to noise
- Commercial stretched to extentuate entrance and market
Carve and Add
- Increases light permeation and curtain wall ventilation.
- Reduces overall total space in need of conditioning
Carve Atrium Space - Creates semiconditioned atriums -increases light permeation

The building’s total square footage is 179,483 square feet. This includes seven floors of residential units, two floors of commercial and community spaces, and a mixture of conditioned and semiconditioned spaces.

The building’s commercial area includes an international market, which features locally-grown produce and goods available to both the residents of the building and the community.

The lot features an agrovoltaic garden in the northeast poriton of the site. In the over 17,000 square foot space, 204 panels blanket a “nomow” garden which helps offset the carbon impact of the project.

The building’s superstructure is comprised of steel columns and beams with short spans to allow for shallow plenum spaces for HVAC and plumbing. We planned to source the steel for this project from a local manufacturer that uses an electric-arc furnace in order to offset the carbon impact of typical steel production.
For the envelope, we learned from our industry partners at HOK that for most commercial buildings in our climate, it is wise to put the insulation on the outside of the building to force the dew point of the wall composition to




To most accurately model the energy useage of the building, we employed the “Shoebox Method,” which is creating a simplified mass model of the building in Rhino, and created a custom Grasshopper script to read the information given from the BIM model to generate a hyper-accurate EUI figure. For our project, our EUI was 0 with the use of photovoltaics


ARCHST 8840 | GRADUATE DESIGN STUDIO | LYRIA BARTLETT | 2024
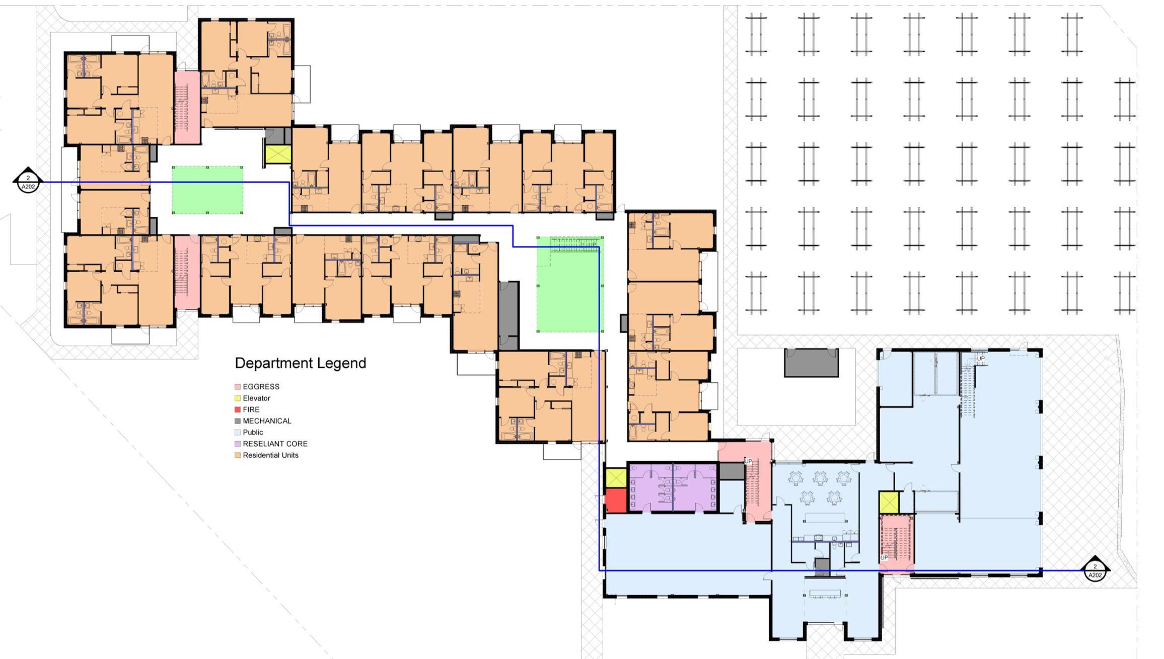
The final studio of my graduate degree was formatted around the ACSA’s CMU design competition. Our studio decided to do a firestation in Southeast Columbia. My design uses CMU as an innovative structural system that doubles as a water collection system.






SKYLIGHT SYSTEM

CLERESTORY WINDOWS


BUTTRESSED CMU STRUCTURE
CENTRAL COMMUNITY SPACES
DUAL-ENTRY ENGINE BAY





ARCH 4815 ARCHITECTURE STUDIO IV | 2022 | NASH WATERS, AIA
was able to take my fourth studio with a visiting professor from Lambertville, NJ, and would subsequently get my first exposure to designing in a different city. Nash Waters is a Mizzou and Washington University alum who brought fantastic insight to the way I design, and his guidance produced probably my favorite project in my portfolio.













Lambertville, NJ is an artist town through and through. It encourages walkability with its zero lot line condition, so the concept for this project was to create a contemporary, but non-intru sive addition to an already pedestrian-dense neighborhood.
After a brief study of pedestiran movement patterns, found that there were no sharp-angle turns, but instead slight curves to move throughout the space. The massing and plan were influenced heavily by this idea.








My undergraduate thesis was no easy feat. The project site was open choice, and decided to use the site of an old mall that used to be the hub for a small city in St. Louis County, Missouri. Crestwood saw a housing collapse as a result of the pandemic, and is currently dominated by outdated 1950s and 60s gable front and wing homes. My solution was to embrace the live-work community idea that presented itself during the pandemic and create a multiphase masterplan to allow low-income families and small business owners to prosper. This project is only phase 1.





After researching the area, I found that an alarming majority of Crestwood’s population was below the poverty line, and was facing a severe lack of housing. The town is in desparate need of a solution to serve nearly half of it’s population.

What’s shown is my proposed solution to reoccupy the site and transform it into a sustainable, live-work community









ARCHST 2811 ARCHITECTURE STUDIO DR. LAURA COLE | 2020
Upon my acceptance into the professional program at Mizzou, Studio was my introduction into architectural design. Our project was to design a shelter or pavillion to be located in Columbia’s largest park Grindstone Nature Area. I incorporated my love for music into the design by abstracting the musical symbol for crescendo to create the massing for this design.





2022 U.S. D.O.E. Solar Decathlon Finalist Submission - Multifamily Division
In collaboration with Emily Kaphengst, Zander Sohl, Brandon Johnston, Isaac Ricklefs, Calvin Johnson, Hanbin Kim, Cam Kendall, and Aidan Kurtz
The USDOE Solar Decathlon is a architecture and engineering competition put on by the Department of Energy, hosted in Golden, CO. There are anywhere from 4-6 categories each year, and over 100 teams enter the competition. To make it to the finals, you must beat over half of the entries in your division, and then you will get the opportunity to compete in Golden. I’ve been fortunate to do this competition twice in my undergraduate, and step in as a graduate mentor during my master’s degree.
My role in this team was to assist with some of the diagrams, and help complete the construction details and drawings.


The first step was to complete a full climate analysis of Columbia, MO. Through this we performed temperature studies, wind rose analysis, and surveyed the existing energy code R-value requirements. After this, we had our baseline for future energy modeling and envelope goals.
C imate Zone: 4A Mixed-hum d


Coo o co d win ers 4800 hea ing degree days) Long, hot and hum d summers (1550 coo ing degree days)



































2023
Historic rehabilitation and adaptive reuse are my favorite type of project. It helps tremendously when your clients are on board with the design decisions and sustainability choices. This project was no exception. My role was to assist in the preliminary structural analyses, complete conceptual designs, and assist in the completion of the construction documents.

The challenge of this rehabilitation was to fit the requested residential programming in a 35’ x 50’ shell. We were able to work with the clients to come up with a comfortable, but not totally dense layout that accommodated their bedroom and bathroom needs. The basement of the barn was left almost to its original condition to house a woodshop.


Aesthetically, we chose to rejuvinate the original red color of the siding, and for effeciency’s sake, we equipped the roof with 10kw photovoltaic panels. The barn was also treated with an updated building envelope to ensure thermal comfort and overall building performance. To do this, we imposed a 2x6 insulated wall around the perimiter, and blew cellulose insulation into the new roof cavity.


The existing diagonal bracing was removed in the living area, and the true 2-by roof trusses were sistered with treated lumber, coupled with a dynamic tongue and groove ceiling to combat racking. Low-E windows line the exterior.

The west-facing view was enhanced with a new patio, facing a breathetaking view of the family’s massive property. The new barn home currenlt sits on a compoundesque plot of land shared with the client’s parents, and serves as the centerpiece of the property.

Peckham Architecture, LLC Spring 2022 In collaboration with Nick Peckham and Ted Mengers
Two tenured university professors asked us to complete an addition to their home in the woods in Southern Columbia. The original house was designed by a local architect and was full of character, so designing its pair was no easy task. However after months of design and problem solving, we came up with an elloquent design that captures the aesthetic of the original design, while giving it it’s own identity.
My involvement in this project includes assisting in the design development, completing the construction documents, and assisting in the construction administration phase.

To match the existing vernacular of the home, we opted for a simple massing and varying roof heights for interior height variation, and an updated rhythm of the roofline.



Per the Owners’ request, we included two feature-stairs. One made from reclaimed wood and a simple black steel stringer, and another spiral staircase as an homage to the original one found in the existing home
Another feature added to the design is a protected entrance. The original entrance was awkwardly placed in an alcove of the front facade (currently the kitchen area.)



Thank you for taking the time to explore the past six years of my architectural education. I’ve been so fortunate to have learned about an industry that is ever-changing and brings so much to the public. I will never forget those met, worked with, argued with, and learned from; it is them who have shaped my future in this field, and for that