PM portfolio

Page 1


JAVIER PINAZO MORENO - Portfolio --

ACADEMIC EDUCATION

• 2023-2024_Master in Project Management (PMP).

• 2023-2024_Specialization Diploma in Project Administration.

• 2015-2016_Architecture Master, Polytechnic University of Valencia.

• 2010-2015_Graduated in Architecture, Polytechnic University of Valencia.

• 2014-2015_Architecture in Mimar Sinan Architecture and Fine arts University, Istanbul, Turkey.

EXPERIENCE

• 2023-Present_Project leader, TERROIR Architects. Sydney, Australia.

• 2023_Turner Studio. Sydney, Australia.

• 2018-2023_Jo Coenen Architects and Urbanists. Amsterdam, The Netherlands.

• 2018_Interior renovation,Valencia.

• 2017_FabLab,Perú.

• 2017_Development Cooperation Project at the Cultural Center of Spain in Lima, Spanish Agency of International Cooperation for Development (AECID), Spanish Embassy, Peru.

• 2016 - _Villa housing in Torrente (Valencia).

OTHER COURSES

• 2016_Final Master thesis in Direction and Management Plan of the Construction of a Pergola.

• 2016_Final Master thesis in Urban Regeneration.

• 2016_Architectural digital drawing. Agraph Studio.

• 2016_Technologies for Development. Permanent Formation Center, UPV.

• 2016_Professional Energy Skills. Permanent Formation Center, UPV.

• 2016_Safe sustainable and intelligent cities. Permanent Formation Center, UPV.

• 2015_Soil Mechanics. Istanbul Technic University, Istanbul.

• 2015_Earthquake Resistances. Mimar Sinan University, Istanbul.

• 2015_Final bachelor thesis in “Constructive solutions for the seismic reinforcement of a building”.

• 2014_Landscaping & architecture. Mimar Sinan University, Istanbul.

CONTACT

Address_ Sydney, Australia. Phone number_ +61 458 662 395 Email_ javipinazo92@gmail.com

CONTENTS CONTENIDOS

PHS

DESIGN AND CONSTRUCTION OF APERGOLA/ Melbourne 2024

HSC

DESIGN AND SUPERVISION IN HAARLEM SCHALKWIJK/ Haarlem 2018-

AMARE

EDUCATION AND CULTURAL COMPLEX/ The Hague 2018-

LRC-KLR

SOCIAL HOUSING IN LEIDSCHE RIJN/ Utrecht, 2018

OBA

INTERIOR RENOVATIONS IN OBA LIBRARY/ Amsterdam,2018

RIDDERHOF

HOUSING TOP UP - SHOPPING CENTER RIDDERHOF 1 & 2 / Ridderkerk, 2022

CCE

LIBRARY IN CULTURAL CENTER / Lima, 2017

Million

SCOPE IN THIS PROJECT: Design and construction of a Pergola in Peninsula Hot Springs complex (in collaboration with Moonah)

CLIENT: Peninsula Hot Springs

ROLE IN THIS PROJECT :

- Project leader.

- Manage project schedules, aligning timelines with objectives and milestones.

- Managing construction phase support, including RFIs management and resolving on-site issues.

- Coordination with consultants and stakeholders and manage program schedules to ensure project integration.

- Manage decision-making through external meetings and third-party consultations.

- Client relationship management.

- Maintain direct communication with suppliers, advisors, and clients.

- Development and review of construction documentation.

- Supervision ensuring image quality project standards throughout the design process.

- Facilitate the building permit process, ensuring compliance with regulations.

- Decision-making & problem-solving.

To get to know more about the project, please visit : https://www.peninsulahotsprings.com/

*project developed alongside TERROIR

PHS Pergola

SPA COMPLEX / Melbourne, 2023-2024

COMPLEJO DE SPA / Melbourne, 2023-2024

The objective of this project was to construct a pergola in the restaurant area of the PHS Complex, enhancing the facilities and providing a more attractive and comfortable outdoor environment for customers. This improvement significantly increased customer satisfaction and strengthened the complex’s position in the market. The project development included preliminary studies, the hiring of specialists and consultants, the design of the spaces, the preparation of relevant documentation, and finally, its approval. The main goals of providing additional shade, improving the aesthetics of the location, and creating a more pleasant environment for customers were successfully achieved.

PROJECT BUDGET: 250,000,000 - 380,000,000 €

SCOPE IN THIS PROJECT: Master Plan housing development. Phase 1&2 (1,150 apartments) + Rest (2,190 apartments).

CLIENT: Haarlem City Council

ROLE IN THIS PROJECT

:

- Project leader.

- Lead the design and strategic development of the Master Plan.

- Collaborated with city council members and clerks to support municipal operations.

- Working in the Council offices during project deadlines.

- Manage project schedules, aligning timelines with objectives and milestones.

- Conduct volume, public space, and feasibility studies, including GFA and FSR requirements, to ensure client goals.

- Preparation and cost estimates.

- Supervision ensuring image quality project standards throughout the design process.

- Coordination with consultants and stakeholders and manage program schedules to ensure project integration.

- Manage decision-making through external meetings and third-party consultations.

- Client relationship management.

- Maintain direct communication with suppliers, advisors, and clients.

- Decision-making & problem-solving.

To get to know more about the project, please visit : https://www.jcau.nl/portfolio/haarlem-schalkwijk-haarlem/

*project developed alongside

Status: Phase 1 Built Phase 2 in construction

MASTER PLAN IN SCHALKWIJK/ Haarlem, 2003-present

MASTER PLAN EN SCHALKWIJK / Haarlem, 2003-presente

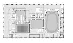
Schalkwijk shopping center was built, outside the main cores of the cities. It was a time in which cars were given much importance and shopping centers acted as main atractors for shopping in a whole region.

Haarlem´s Schalkwijk plan started in the early 2000´s by Jo Coenen´s team. In 2018, a new system was thought in which 50% of the commercial space in the shopping center it has been reduced.The MasterPlan includes a diversity of new functions such as sports facilities, housing, cinema, shops, culture and a new market.

This implementation will help to make this neighborhood become a new atractor of the city and make it lively again.

Master Plan system Studies
Schalkwijk future vision
*images provided by Koschuch architects, INBO, LEVS and Groosman architects

PROJECT BUDGET: 520,000,000 €

SCOPE IN THIS PROJECT: Master Plan, design and construction of a multicultural space in the City Centre of The Hague.

ROLE IN THIS PROJECT

:

- Design and project development.

- Overseeinging interior design implementation.

- Exercise direct control and decision-making through external meetings and consultations.

- Maintain direct communication with suppliers, contractors, and clients.

- Coordination with consultants and stakeholders.

- Management and coordination of Authority Approvals.

- Conduct site visits to monitor progress and ensure alignment with project expectations.

- Decision-making & problem-solving.

To get to know more about the project, please visit : https://www.jcau.nl/portfolio/amare-the-hague/

*project developed alongside

AMARE

CULTURAL COMPLEX/ The Hague, 2015-2019

COMPLEJO CULTURAL / La Haya, 2015-2019

AMARE is the new cultural building for the city of The Hague. The new building will provide accommodation for the ‘Nederlans Dans Theater’ (NDT), ‘Het Residentieorkest’ and ‘Stichting Dans- en Muziekcentrum Den Haag’ (DMC) and the Royal Conservatoire.

Amare has been built by Boele & Van Eesteren i.c.w. Visser and Smit Bouw. The new building replaced the current Lucent Dance Theatre and Dr. Anton Philipszaal. The typology is based on an arrangement of the venues next to each other, surrounded by a ring of music studios and classrooms. The ground floor and the first floor contain the main public spaces. These are accessible from all sides. AMARE is designed in conjunction with a new urban plan containing also apartments and hotels.

Groundfloor
Second floor
First floor
Third floor

with subtructions)

Studies for concert hall - skin and lighting

Concert

SCOPE IN THIS PROJECT: Housing development: 454 apartments

CLIENT: Wonam, Mitros and Portaal

ROLE IN THIS PROJECT :

- Design and project development.

- Overseeinginterior design implementation.

- Exercise direct control and decision-making through external meetings and consultations.

- Maintain direct communication with suppliers, contractors, and clients.

- Client relationship management.

- Coordination with consultants and stakeholders.

- Conducting site visits to monitor progress and ensure alignment with project expectations.

- Supervision post-execution phase to ensure project delivery and quality.

- Management and coordination of Authority Approvals.

To get to know more about the project, please visit : https://www.eracontour.nl/projecten/buur PROJECT BUDGET: 106,760,938 €

*project developed

SOCIAL HOUSING IN KLEIN LEIDSCHE RIJN / Utrecht, 2018-2019

VIVIENDA SOCIAL EN KLEIN LEIDSCHE RIJN / Utrecht, 2018-2019

Leidsche Rijn Centre (Centrum) is located on the border of the Vinex housing estate Leidsche Rijn on the side of the historical city centre. It constitutes the link between the new housing estates to the west of the A2 and the Amsterdam-Rhine Canal to the east, which runs north-south past the city centre.

One of the ambitions in the Leidsche Rijn Centre master plan has been its pronounced urban character, which creates a contrast with the surrounding housing estates. The basis of this was established in the form of a grid pattern. The urban character is expressed in relatively high, dense building development. The centre is surrounded by landscaped, clearly delineated zones such as boulevards and parks. This clarifies the identity and recognisability of the Centre. Three aspects make Leidsche Rijn Centre unique: its central location, its diversity and variation of functions, and its height differences.

KLR is only a small part of the Masterplan development which offers 454 new, affordable, and sustainable rental homes in Leidsche Rijn Centrum, with two-thirds of them classified as social housing.

Leidsche Rijn center inauguration

PROJECT BUDGET: 12.5 Million €

SCOPE IN THIS PROJECT: Library interior renovation (Kids reading spaces, Restaurant, Cafeteria, World library, teaching Hall, Offices)

CLIENT: Amsterdam Public Library (OBA)

ROLE IN THIS PROJECT

:

- Design and project development.

- Oversee interior design implementation.

- Maintain direct communication with suppliers, contractors, and clients.

- Exercise direct control and decision-making through external meetings and consultations.

- Coordination with consultants and stakeholders.

- Conduct site visits to monitor progress and ensure alignment with project expectations.

- Client relationship management.

- Supervise post-execution phase to ensure project delivery and quality.

- Management of construction phase support, including RFIs management and resolving on-site issues.

To get to know more about the project, please visit : https://www.jcau.nl/portfolio/oba-amsterdam-public-library-renovations/

*project developed alongside JCAU team

Status: Built

INTERIOR RENOVATIONS IN OBA LIBRARY/ Amsterdam, 2015-2018

REFORMA INTERIOR EN BIBLIOTECA PUBLICA, OBA / Amsterdam, 2015-2018

It has been 10 years since the central Public Library of Amsterdam at the Oosterdokseiland opened. Due to the changing context of modern society, an intense renovation of the building was required. A few factors that contribute to this changing context are the fact that Amsterdam has the enormous amount of 180 nationalities living in the city, its municipality has a policy to keep young families with children in the city, there is a growing demand for study places, less subsidy is coming from (local) governments, therefore more income needs to be generated by the rental of meeting rooms and the sale of food and drinks, and there are more joint initiatives with other (cultural) institutes of Amsterdam such as the Volks Universiteit, the Eye cinema and the Maison Descartes.

Execution pictures

PROJECT BUDGET: 60,642,500 €

SCOPE IN THIS PROJECT: Housing development on top of a existing shopping centre.

CLIENT: BAVA Winkelbeleggingen.

ROLE IN THIS PROJECT :

- Lead in design and project development.

- Coordination with consultants and stakeholders.

- Provide regular updates and compliance reports to the municipality and beauty commission.

- Maintain consistent reporting to client and relationship management.

- Management and coordination of Authority Approvals.

- Client relationship management.

- Management of third-party consultations.

- Maintain direct communication with suppliers, advisors, and client.

- Decision-making & problem-solving.

*project developed alongside

Status: in development

RIDDERHOF

HOUSING TOP UP - SHOPPING CENTER RIDDERHOF 1 & 2 / Ridderkerk, 2022

RECARGA DE VIVIENDA EN EL CENTRO COMERCIAL RIDDERHOF/ Ridderkerk, 2022

Upon request of the city council JCAU team was responsible for the regenaration of the urban context and architecture of Ridderhof, the main shopping center in the city of Ridderkerk.

The project consists on housing top up of two existing shopping centers and the urban develepment of its surrounding such the pedestrians areas around the buildings, landscape, and public squares, as Sint Jorisplein and Lagendijk.

The new two buildings will be built enterely on wood on top of the existing construction. They will bring space quality through urban and architectural elements such as green public zones, new commercial areas, private parking, 49 appartments in Ridderhof 1 and 128 in Ridderhof 2.

BVO RIDDERHOF

PROJECT BUDGET: USD $1,053,000

SCOPE IN THIS PROJECT: Implementation of a new library in a Cultural centre.

CLIENT: Spanish Agency for International Development Cooperation (AECID)

ROLE IN THIS PROJECT :

- Design and project development.

- Overseeinging design implementation.

- Provide centralized control, coordination, analysis and reporting of scope, time, cost, change, and risks.

- Exercise direct control and decision-making through external meetings and consultations.

- Maintain direct communication with suppliers, contractors, and clients.

- Project coordination.

- Regular control and site visits.

- Manage the building permit process, ensuring compliance with local regulations.

- Decision-making & problem-solving.

To get to know more about the project, please visit : https://www.exteriores.gob.es/en/Ministerio/Sedes/Paginas/AECID.aspx

*project developed alongside Spanish Embassy in Peru

Status: Built

LIBRARY IN CULTURAL CENTER / Lima, 2017 BIBLIOTECA EN EL CENTRO CULTURAL DE ESPAÑA EN LIMA / Lima, 2017

New library view
Groundfloor
First floor
Second floor
Main facade
Design main facade

Turn static files into dynamic content formats.

Create a flipbook
Issuu converts static files into: digital portfolios, online yearbooks, online catalogs, digital photo albums and more. Sign up and create your flipbook.