Protocolo de Investigación Javier de la Garza

Page 1

MERCADO PÚBLICO ALTERNATIVO DE PRODUCTOS ORGÁNICOS Y ECOLÓGICOS

EN EL MUNICIPIO DE ZAPOPAN, JALISCO

PROTOCOLO DE TESIS PARALAOBTENCIÓN DE LALICENCIATURADEARQUITECTURA

Sustenta: JavierDelaGarzaTorres

UniversidaddeGuadalajaraCentroUniversitariodeArte,ArquitecturayDiseño Diciembre2022

PROTOCOLO DE TESIS PARALAOBTENCIÓN DE LALICENCIATURADEARQUITECTURA JAVIER DE LA GARZA TORRES 217919946

DIRECTOR DE TESIS:

Claudia Penélope Herrera Navarro

PROFESORES DE TALLER:

Juan Carlos Ortiz Tabarez

Giancarlo Gómez Sánchez

Jesús Mora Mora

Guadalajara, Jalisco

CAPITULOIDEFINICIÓNDELPROBLEMA

•Antecedentes

•Justificación

•Preguntageneral

•Preguntasparticulares

•Objetivogeneral

•Objetivosparticulares

•Tablaobjetivos,preguntas,capítuloymétodo

•Hipótesis

CAPITULOIIINVESTIGACIÓN

•Método(textoydiagramadocumentalydecampo)

•MarcoTeórico

oDefinicióndelosconceptosclavedela investigación

oDesarrollodetemáticasrelacionadasconel proyectoadesarrollar

oDefinicióndelgéneroarquitectónico oTipologíasdelgéneroarquitectónico oAntecedenteshistóricos

oAnálisisdeejemplosAnálogos -Internacionales -Nacionales -Locales

oTablacomparativadeejemplosanálogos oDependencias(tablacomparativadede pendencias) oConclusiones

•Resultadosinvestigacióndecampo(opcional)

•Conclusionesinvestigacióndecampo(opcional)

CAPITULOIIIMARCOCONTEXTUAL

•Método(textoydiagrama)

•Localización

•MarcoNormativo

•Definicióndeusuarios

•Propuestadepredios

•Matrizdeseleccióndelpredio

•Predioseleccionado

•Marcohistórico

•Mediofísiconatural oTopografía oSeccióndependientedeterreno oSubsuelo oHidrografía oAsoleamiento oVegetación oClima -Tipodeclima(Köppen) -Temperatura -Humedadrelativa -Precipitaciones -Vientosdominantes -Radiación oImplicacionesenelproyecto

•Mediofísicotransformado

oUsosdesuelodelentornoinmediato oMorfologíaurbana oInfraestructura oMovilidad -Vialidadesysistemadetransporte oColindancias

•Evaluacióndeimpactoambiental oDatosgeneralesdelproyecto oInvolucradosclave oContexto/antecedentes oDescripcióndelaobraoactividadproyectada oObjetivos

oIdentificacióndelosimpactosambientales oMedidasdeprevenciónymitigacióndelosimpactos identificados oConclusiones. oMatrizdeindicadoreso

INDICE

INDICE

CAPITULOIVPROPUESTACONCEPTUAL

•Método(textoydiagrama)

•Función

oProgramaarquitectónico oDiagramadevinculaciones oDimensionamiento(tablaenanexos)

•Análisisderequerimientosbioclimáticos oCartaGivoni

oEjemplosdeestrategiasbioclimáticas(de acuerdoconrequerimientos)

•Criteriosproyectualesdediseñosustentable

•Forma

•Espacio

•Envolvente

•Estructura

•Simbolismo

CAPITULOVPROYECTO

•Método(textoydiagrama)

•Partidoarquitectónico

•Volumetría

•Plantadeconjunto

•Perspectivas

ANEXOS

•Mapasmentales oResultadoscompletos oMarconormativo oNormativacompletayfiguras

BIBLIOGRAFIA

BibliografíaenChicago

INTRODUCCIÓN

Resumen:

(Neruda, 1998, pág. 157)

El presente proyecto de Tesis propone la construcción de un mercado para el municipio de Zapopan, para el desarrollo competente de la economía local y la implementación de mejoras en la infraestructura de la zona, así como la imagen urbana trayendo beneficios en materia de seguridad y salud. La novedad del presente proyecto de Tesis es el desarrollo de un diseño arquitectónico mejorando el entorno social, con la finalidad de crear así espacios aptos para el desarrollo de las actividades que se realizan en un mercado pensando en un futuro y en un presente promoviendo nuevas tecnologías de construcción, criterios bioclimáticos y el mayor aprovechamiento del espacio público.

CAPÍTULOIDEFINICIÓN DELPROBLEMA

ANTECEDENTES:

El mercado municipal siempre ha tenido una importancia en las ciudades antiguas ya que este fungía como espacio conector de lo urbano y rural a través del intercambio de bienes alimentarios y económico (Cordero, 2017). Los mercados públicos son tan antiguos como la civilización. Durante milenios, las ciudades han moldeado y han sido moldeadas por la actividad del mercado público. Pero, ¿qué significa un mercado público en el siglo XXI? El término “mercado público” cubre todo tipo de mercados, incluidos los mercados al aire libre, los mercados cubiertos, los mercados permanentes, e incluso los mercados informales de vendedores ambulantes. Según el tipo de mercado público, los vendedores pueden vender alimentos frescos y preparados o artículos no alimentarios, como artículos para el hogar, artesanías y antigüedades. Los populares zocos del Medio Oriente, los grandes mercados europeos, los mercados callejeros africanos informales, los vibrantes mercados de América Central y del Sur y los encantadores mercados de agricultores de América del Norte son todos tipos de mercados públicos y todos contribuyen de manera única a la cultura y al sentido de pertenencia (Ayús Reyes, 1999). Sin embargo, los mercados públicos no son solo lugares de comercio. Lo que diferencia a los mercados públicos de otras ubicaciones minoristas es que operan en espacios públicos, sirven a empresas, operación local y tienen objetivos públicos. Este enfoque en el bien público es lo que hace que los mercados exitosos crezcan y conecten las economías urbanas y rurales. Fomentan el desarrollo comunitario y económico al mantener el dinero en el vecindario local (Cordero, 2017). Los beneficios indirectos de los mercados públicos son numerosos. Pero quizás lo más importante es que los mercados públicos sirven como lugares públicos de reunión para personas de diferentes comunidades étnicas, culturales y socio económicas.

IMAGEN 02 Chen, X. (2011). Maqueta del mercadodeTlatelolcoenelmuseo Nacional de Antropología. (Foto) Recuperado de https://blogs.ua.es/losaztecas/2011/12/30/el-mercado-de-tlatelolco/

10

IMAGEN03,04,05Flaticon (2022) (Icono) Recuperado de:Flaticon.es

PLANTEAMIENTO DEL PROBLEMA:

En la arquitectura el mercado público ha representado un edificio muy importante en el desarrollo de las ciudades, sin embargo, hoy en día se encuentra como un equipamiento que ha dejado de tener la importancia que tenía debido a la sociedad moderna y el cambio de paradigma. En México varios historiadores pueden afirmar que los mercados siempre han sido un punto destacado dentro de la urbe y funcionado como centros de intercambio económico e interacción social. Sin embargo, en las últimas décadas han quedado desplazados por lugares con administración privada como supermercados, plazas, o centros comerciales, que ha se popularizado en cuanto a comercio e interacción social se refiere. (Ayús Reyes, 1999).

Problematicas Identificadas al Equipamiento

• Los mercados actuales tienen deficiencias en la construcción e instalaciones del inmueble ya que fueron construidos con materiales que no pasan la prueba del tiempo en muchos casos ya caducaron y siguen siendo inseguros para las personas que los visitan (Solano A. , 2019).

• A partir de 1970 Llegan a las ciudades nuevas tipologías comerciales como los centros comerciales prototipo replicado de Estados Unidos. Estos grandes almacenes dan respuesta a los problemas de seguridad y función a los consumidores abarcando un 80% de la venta de comestibles en la Ciudad de México consecuencia de ello disminuyeron las ventas al menudeo y el Mercado Público pierde fuerza y se enfrenta a su desaparición. (Ahuactzin, 2004)

• Los mercados presentan problemas de Sanidad e Higiene ya que estos fueron creados en otro contexto y con otras normas de salubridad, pero también se ha visto un descuido en el equipamiento por parte de las autoridades, como suciedad en los locales y sin un espacio formal para la correcta separación y categorización de los residuos. Consecuencia de esto los mercados han quedado en el desinterés y desaprobación de la sociedad. (Solano A. , 2019) y que quedaron evidenciados a raíz de la Pandemia del Coronavirus en el 2020.

En la actualidad nos podemos dar cuenta que el Mercado Público se encuentra dentro de un contexto muy distinto al que fue concebido y que la tipología de mercado debe de cambiar otorgando a la población nuevos espacios, comercios y funciones que respondan a las necesidades de la población.

11

Problematicas Identificadas en Zapopan

• El abastecimiento comercial es insuficiente en comparación a la demanda poblacional, es decir los espacios específicos destinados a este género es muy bajo; en Zapopan se cuenta con una población de 1,476,491 personas y actualmente hay 24 mercados públicos de acuerdo al Instituto de información, estadística y geografía de Jalisco. (IIEG, 2021) Sedesol nos indica un mercado para poblaciones mayores a 5000 habitantes por lo que los mercados existentes no dan abasto a la población actual ni futura de Zapopan así generando nuevas tipologías comerciales que promuevan una economía desequilibrada al consumidor. (SEDESOL, 1999)

• La falta de mercados en el municipio es un problema que afecta a los ciudadanos de Zapopan se buscan espacios que vinculen las áreas rurales con la zonas centro del municipio o barrialidades para que respondan a las necesidades de los habitantes como lo propone la estrategia para la prosperidad territorial al 2030 en Zapopan. (Gobierno de Zapopan, 2016)

• De acuerdo al programa municipal para la acción ante el cambio climático Zapopan se ha puesto un programa para disminuir la huella de carbono, reducir los riesgos ambientales, sociales y económicos derivados del cambio climático un problema que es global pero el gobierno de Zapopan se ha propuesto adaptarse y mitigar este problema. (Gobierno de Zapopan, 2020)

• Consolidar los vacíos urbanos existentes en la región urbana consolidada y abastecidas, con el fin de evitar la expansión urbana hacia la periferia. (Gobierno de Zapopan, 2012)

IMAGEN05,06,07Flaticon (2022) (Icono) Recuperado de:Flaticon.es

Tabla 01 Elaboración Propia(2022).TablacomparativadeMercadosenZapopan contra Población (Tabla)Con datosde:Zapopan.gob

12

IMAGEN08

Vive Oaxaca (2022) Mercado de las Carnes (Foto) Recuperadode:https://www. viveoaxaca.org/2011/01/ mercado-20-de-noviembre-de-oaxaca.html

JUSTIFICACIÓN:

El mercado Público es un lugar muy importante en la cultura mexicana en el cual ocurre el intercambio de bienes y servicios y es uno de los lugares más relevantes de las ciudades puesto que también ocurre un intercambio social donde las personas convienen y se da una dinámica social muy interesante. Actualmente en Zapopan se carece un modelo de Mercado que responda a las necesidades de los consumidores ya que en los últimos años los mercados han pasado a un segundo plano siendo desplazados por la gran cantidad de cadenas comerciales, supertiendas y tiendas de conveniencia como lo son Wal-Mart, Soriana, La Comer, Superama, etc. todas estas tiendas han significado una competencia en materia de precios y productos que los mercados si bien sí pueden competir se ven rebasados por la cantidad de supermercados privados que hay. Estas tiendas tienen productos importados del extranjero ofreciendo una gran variedad y comodidad para los habitantes de Zapopan que al final optan por ir a este tipo de lugar incluso llegando a pagar extra por los mismos productos que hay en el mercado. Se quiere que los consumidores en Zapopan tengan opciones más justas y más asequibles para los ciudadanos.

El propósito de esta investigación es demostrar que se puede proponer un prototipo de mercado que responda a las necesidades de los consumidores locales y ayude a un comercio local justo además de generar empleos.

La investigación que se presenta en esta Tesis tiene como objetivo principal proponer un nuevo modelo de mercado público, que con nuevas tecnologías y criterios bioclimáticos actué como un medio de regeneración urbana, otorgando espacio público, así como áreas verdes a Zapopan basado en una perspectiva humana y proponiendo soluciones dentro de un esquema de venta de productos orgánicos y ecológicos.

13

PREGUNTA GENERAL

¿Cuál sería la solución arquitectónica óptima para un mercado Público en Zapopan?

PREGUNTA PARTICULARES

1. ¿Cómo ha evolucionado el género arquitectónico de los mercados en México?

2. ¿Cómo sería un programa arquitectónico actual que responda a las necesidades de un Mercado para la población actual y futura en Zapopan?

3. ¿A cuántas personas podría beneficiar el mercado público en Zapopan?

4. ¿Qué nuevas tecnologías y criterios bioclimáticos para la construcción y desarrollo del mercado se podrían usar?

5. ¿Cómo son los proyectos que resuelven una problemática similar?

6. ¿Cuáles son los requerimientos espaciales para el proyecto?

OBJETIVO GENERAL

Desarrollar una propuesta de un mercado público alternativo de productos orgánicos y ecológicos en el municipio de Zapopan.

OBJETIVOS PARTICULARES

1. Conocer la evolución histórica del género arquitectónico de los mercados en México.

2. Determinar un programa arquitectónico actual que responda a las necesidades de un Mercado para la población actual y futura en Zapopan.

3. Determinar la cantidad de personas que se beneficiarían con el Mercado Público en Zapopan.

4. Identificar nuevas tecnologías, así como criterios bioclimáticos para la construcción y desarrollo del mismo género arquitectónico.

5. Analizar e identificar proyectos que resuelvan una problemática similar.

6. Conocer y describir los requerimientos espaciales de un Mercado Público

14

TABLA OBJETIVOS, PREGUNTAS, CAPÍTULO Y MÉTODO :

Fuente: elaboración propia

En la tabla 02 se muestra de manera sintetizada como se responden las preguntas planteadas y en que parte del mismo documento, así como el método usado

15

HIPÓTESIS:

El proyecto del mercado público alternativo de productos orgánicos y ecológicos en el municipio de Zapopan. trae beneficios en tres ámbitos importantes para la ciudad y el desarrollo de la misma: Urbano, Socio económico y Ambiental.

Por lo que en primer lugar trajo beneficios urbanos porque mejoró la infraestructura de la zona, así como la imagen urbana trayendo beneficios en materia de seguridad y salud. Por otro lado, benefició a los habitantes de Zapopan puesto que generó nuevos empleos, un comercio local justo e incentivo a pequeños negocios. Por último, una mejora al ambiente con nuevas tecnologías y criterios bioclimáticos aplicados al proyecto arquitectónico, así como un incremento en los metros cuadrados de áreas verdes en la ciudad.

CONCLUSIONES DEL CAPITULO

De acuerdo a la investigación realizada en los distintos apartados de este capítulo podemos concluir que Zapopan es una ciudad que ha tenido un desarrollo importante en las últimas décadas y su crecimiento económico como poblacional ha sido uno de los más importantes del país por lo que la demanda de equipamiento ha ido en aumento y los centros de abasto públicos se han mantenido. Por lo que los abastecimientos de alimentos han sido únicamente abastecimientos de carácter privado así dejando de lado los mercados públicos como equipamiento y espacios inter-dimensional que ofrezca espacio público y áreas verdes.

IMAGEN 09 Palomar J. , Pliego J., Kalach A. (2022). Imagen propuesta para el concurso para la reconstruccióndelMercadoCorona (Imagen) Recuperado de https://www.archdaily.mx/mx/624992/ las-30-propuestas-del-concurso-para-la-reconstruccion-del-mercado-corona?ad_medium=gallery

TABLA 02 Elaboración Propia (2022). Tabla objetivos,preguntas,capítuloymétodo.(Tabla)

16

CAPÍTULOIIINVESTIGACIÓN

METODO:

En el desarrollo del siguiente capítulo se utilizó un método el cual se denomina el: documental, del cual se trata de poder ejecutar cada una de las etapas en este método para poder llegar al fin de aplicarlos en un trabajo de investigación como lo es esta tesis (Maradiaga, 2015).

1. Planeación de la investigación documental

2. Recolección y selección de la información

3. Análisis e interpretación de la información

4. Redacción y presentación del trabajo de investigación

Planeación

Recolección

Análisis

Redacción

IMAGEN 10 Revista. ArquitecturaMéxico80(2015). MercadoAlcalde(Foto) Recuperado de: www.momogdl.com

IMAGEN11 MaradiagaR. (2015). Gráfico de las fases y técnicas de la investigacióndocumentalRecuperado de: https://repositorio.unan. edu.ni/12168/1/100795.pd-

Seleccionar, plantear y delimitar el tema; elaborar plan, esquema y agenda de trabajo.

Lectura de documentos, acopio de información, elaboración de fichas.

Clasificación de la información, de acuerdo con el esquema de trabajo.

Utilizar técnicas de redacción y estructura del trabajo.

18

MARCO TEÓRICO:

Definición de los conceptos clave de la investigación:

PÚBLICO

MERCADO:

1. m. Contratación pública en lugar destinado al efecto y en días señalados. (Diccionario de la lengua Española I RAE - ASALE, 2014)

2. m. Sitio público destinado permanentemente, o en días señalados, para vender, comprar o permutar bienes o servicios. (Diccionario de la lengua Española I RAE - ASALE, 2014)

3. (Del lat. mercatus, comercio.) s. m. Reunión o asistencia de gente a un lugar determinado, y en días señalados, para comprar y vender mercancías (RED LAROUSSE, 2022)

Según el reglamento de comercio y servicios se entiende por Mercado Municipal “el servicio público por el cual el Ayuntamiento destina un inmueble edificado para reunir un grupo de comerciantes proveedores de satisfactores de consumo básico que se venden al menudeo con los consumidores de una comunidad, y en donde la superficie del inmueble bajo cubierta se divide en locales o puestos que se concesionan individualmente a los proveedores” (Ayuntamiento de Zapopan, 2016).

PÚBLICO:

1. adj. Perteneciente o relativo al Estado o a otra Administración. (Diccionario de la lengua Española I RAE - ASALE, 2014)

2. Que está bajo la administración del estado (RED LAROUSSE, 2022)

MUNICIPAL:

1. adj. Perteneciente o relativo al municipio. (Diccionario de la lengua Española I RAE - ASALE, 2014)

2. adj. Que tiene relación con los municipios en general o uno determinado (RED LAROUSSE, 2022)

MERCADO ORGANICO

Los mercados orgánicos son lugares en donde se busca promover la cultura del consumo responsable, la producción agroecológica de alimentos y el comercio justo. Además, estos lugares rescatan las relaciones entre productores y consumidores (Secretaría de Agricultura y Desarrollo Rural, 2017)

19 •
MERCADO
• MUNICIPAL • MERCADO ORGÁNICO

Comercio y Abasto en el mundo

El cambio de el comercio internacional al comercio global ha sido uno de los pasos más importantes para el hombre hablando unicamente en el aspecto económico (Trujillo G., 1995).

El comercio internacional comenzo con el intercambio de piedras preciosas, oro y plata desde que existen los mercaderes remontandonos a tiempos muy antiguos pero cuando realmente se revolucionó fue con la revolución industrial que impulsó los medios de transporte así aportando una velocidad en el intercambio de bienes. Esto trajó el motor a vapor los medios de transporte y la producción masiva, logrando una escala continental e intercontinental, los sistemas de producción en cada país y en la interdependencia de los mismos paises (Trujillo G., 1995).

Actualmente el mercado satisface dos necesidades primordiales hacía su comunidad la primera siendo un punto de abastecimiento e intercambio de productos al responder a la necesidad de abastecer de productos en su mayoría comestibles a la población y en un aspecto secundario el ser un punto de encuentro para los ciudadanos, cuestión que quedaba cada vez más relegada, pero en la actualidad se ha visto cobrar una mayor importancia (ADARCH, 2019).

Los mercados municipales siempre cuentan con algo en común y hablando a nivel internacional siempre han surgido de una tradición histórica de siglos que ha evolucionado, donde en un inicio se disponían espacios como las plazas, ahí se celebraban las ferias e intercambios hasta realmente consolidar estos espacios comerciales gestionados por autoridades de carácter público. Medida tomada desde finales del siglo XVIII se desarrolla de mejor manera en el siglo XIX convirtiendo estos espacios en equipamientos municipales. Se empiezan a abordar de mejor manera cuestiones higiénicas, reglamentos de regulación y acciones urbanísticas que dotaran de mejores servicios a estos equipamientos (ADARCH, 2019).

En los últimos años los mercados ha sido un equipamiento que ha ido en decadencia y han ocasionado que este edificio quede obsoleto, en algunos casos por las necesidades insatisfechas de los consumidores, actualmente los mercados a nivel global han intentado nuevas maneras para seguir operando, así como la especialización de productos que se ha visto como una buena opción para mantener a los consumidores hasta poder transformarlos en espacios orientados al turismo, denominados mercados-gourmet. (ADARCH, 2019)

IMAGEN 12 S/A. (2022) Mercado Gastronómico de Madrid San Miguel (FOTO). Recuperadode: https://www. nochesdelbotanico.com/ planes-en-madrid/mercados-gastronomicos-en-madridcio-exterior/%7BDB41A

IMAGEN13S/A.(2022)El MercadodePikePlaceenSeattle.Recuperadode:https://sobreturismo.es/2008/06/22/ el-mercado-de-pike-place-en-seattle/

20

IMAGEN 14 S/A. (S.F.)

El mercado Jáuregui, en el XalapaAntiguo.(FOTO)Recuperado de: https://cronicadelpoder.com/2022/01/19/ el-mercado-jauregui-en-el-xalapa-antiguo/

Comercio y Abasto en México

En México los mercados han representado y representan la basta tradición comercial del país, así como la capital cuenta con la red de mercados más grande del mundo con 335 mercados en las 16 alcaldías y tiene 72 mil locales con más de 90 giros distintos que otorgan un trabajo a cerca de 200 mil personas (Excelsior, 2021).

Los datos de la fundación de los mercados aseveran que aproximadamente el 63% de los existentes en la ciudad de México tienen una antigüedad de 50 años o más puesto que muchos mercados requieren de un mantenimiento mayor en las instalaciones de los inmuebles ya que los sistemas constructivos utilizados en esas épocas no garantizan un correcto funcionamiento hoy en día. La falta de mantenimiento tanto estructuralmente como de instalaciones hidráulicas, eléctricas, sanitarias y de gas es de suma importancia para que los mismos sigan funcionando ya que el Gobierno de la Ciudad de México sabe que estos tienen un valor económico, cultural, gastronómico y social en la capital. (Excelsior, 2021).

IMAGEN 15 S/A . (2022)

.El mercado Medellín, en Ciudad de México.(FOTO)

Recuperado de: https:// foodandtravel.mx/mercados-la-ciudad-mexico/

IMAGEN 16 S/A. (2022).

El mercado San Juan, en Ciudad de México.(FOTO)

Recuperado de: https:// foodandtravel.mx/mercados-la-ciudad-mexico/

El Gobierno de la Ciudad de México a través de la Secretaria de Desarrollo Económico (Sedeco) tiene por objetivo implementar un programa para la Acción Institucional para el Fomento y Mejoramiento de Mercados Públicos de la Ciudad de México 2019-2024. A traves de este programa busca solucionar todos los vicios que han tenido estos equipamientos en cuestión de funcionamiento y revitalizar estos espacios públicos para así en un futuro evitar catastrofes en estos establecimientos. La Dra. Claudia Sheinbaum, en coordinación con los gobiernos de las alcaldías, buscan destinar una inversión de más de 1,327 millones de pesos entre 2019 y 2022. (Excelsior, 2021) A traves de este programa tambien buscan impulsar a otros gobiernos a crear la misma estrategía economica, social y cultural en los mercados y centros de abasto. Finalmente, el mercado está expuesto a otras actividades. Por ejemplo, algunos mercados están instalando paneles solares para tener una mayor eficiencia energética y promover la transformación digital, teniendo convenios con empresas como Mercado Pago y Mi Mercado en Casa para ofrecer una opción más cómoda al consumidor y al vendedor, así como gestión del inventario utilizando solo una aplicación. De esta manera quieren asegurarse que este tipo de equipamiento siga vigente ante los nuevos retos de la globalización así manteniendo la tradición de los mismos mercados, pero pudiendo revivir su esencia única y especial que solo obtienes al ir a los mercados. (Secretaria de Desarrollo Económico de la Ciudad de México, 2020)

21

Comercio y Abasto en Zapopan

Zapopan es el municipio con la mayor importancia económica del estado de Jalisco y el municipio con la mayor extensión así como crecimiento de la zona metropolitana de Guadalajara (Gobierno de Zapopan, 2019). También ha demostrado que por una parte su crecimiento se ha dado de una manera dispersa e informal, pero por otro lado cuenta con una zona totalmente funcional y confortable. Gran progreso en una tierra dispersa el reto de la distribución equitativa de la infraestructura como redes, educación y salud, cultura, ocio y deporte, ha sido uno de los principales problemas que se ha encontrado en el municipio de Zapopan (Gobierno de Zapopan, 2020) a pesar de esto los programas y acciones pertinentes se han puesto en marcha el Presidente Municipal de Zapopan, Juan José Frangie, a través de los programas “Chulada de Mercado” y “¡Ánimo Zapopan!” ha intentado reactivar los mercados y el comercio local, así como los pequeños negocios con incentivos como la renovación y mejoramiento de los mercados en Ciudad Granja, La Constitución, Las Fuentes, Francisco Sarabia, Santa Ana Tepatitlán, Lázaro Cárdenas y el Mercado Municipal de Abastos en la colonia El Vigía (Gobierno de Zapopan, 2020). A través de estas iniciativas y la estrategia territorial de Zapopan para el año 2030 que tiene por objeto la mejora de los mercados ya que es una excelente área de oportunidad para implementar las TIC (Tecnologías de la Información y la Comunicación) así como la creación de nuevos mercados que sean un nexo entre las partes rurales de Zapopan y las centralidades barriales, así como el correcto vinculo de lo rural con lo urbano a través de mercados que otorguen una identidad además de crear redes de comercio. (Gobierno de Zapopan, 2020)

IMAGEN17S/A.(2020)El mercado del Mar en Zapopan.(FOTO).Recuperadode: portal.zapopan.gob.mx

22

Futuro del Comercio y Abasto

El comercio y abasto se ha visto en la necesidad de dar un giro a los productos con nuevas tendencias, en la alimentación y la manera de vivir nuevas formas de cultivo, servicios más responsables, éticos y respetuosos con el medioambiente, es llamado el comercio ecológico.

Cuando mencionamos “eco-comercio”, nos referimos a organizaciones o marcas que venden productos orgánicos. Pero no todos los comercios que venden productos ecológicos lo son, sería más correcto decir que la oferta consiste únicamente en productos orgánicos.

Es importante tener esto en cuenta, ya que cada vez más comercioslanzan kits ecológicos mientras que otras no. No está mal, pero es un pequeño paso hacia un comercio más sostenible (Gallego A. , 2019). Previo a describir todas las ventajas y beneficios hay que entender que los productos orgánicos, son productos que se cultivan, crían y procesan usando metodos naturales y son productos vegetales, animales o sus derivados, también hay productos orgánicos de cuidado personal como lo son jabones o cremas hechos con sustancias naturales en muchos casos de forma artesanal.Importante rescatar que en la agricultura no se utiliza n pesticidas o o químicos, en la ganadería no se le administran al animal hormonas ni comidas sintéticas y a los productos que son procesados industrialmente no se añaden conservadores artificiales (Profeco, 2022).

Beneficios de los productos orgánicos:

Salud: estos alimentos cuentan con un mayor valor nutricional ya que poseen un alto valor en minerales y vitaminas. Además son productos libres de hormonas, antibióticos, colorantes y saborizantes artificiales. Medio ambiente: colabora significativamente al cuidado del medio ambiente y la tierra de cultivo (FAO, 2022).

Sociedad y economía: Este tipo de producción se ha vuelto una oportunidad de negocio que a su vez resuelve necesidades al generar fuentes de empleos y mejora las comunidades rurales y urbanas (FAO, 2022).

Aire: La agricultura orgánica reduce la utilización de energía no renovable al disminuir la necesidad de sustancias agroquímicas. Contribuye a mitigar el efecto invernadero y el calentamiento del planeta mediante su capacidad de retener el carbono en el suelo (FAO, 2022).

23
IMAGEN18,19,20Flaticon (2022) (Icono) Recuperado de:Flaticon.es

Además que los animales criados de esta manera, cuentan con menor cantidad de grasa, riesgo reducido de tener enfermedades y por lo tanto al alimento y una mejora en su salud.

Agua: La contaminación de las corrientes de agua subterráneas con fertilizantes y plaguicidas sintéticos es un problema común en varios países. Cómo está prohibido utilizar estas sustancias en la agricultura orgánica, se sustituyen con fertilizantes orgánicos, que mejoran la estructura del suelo y la filtración del agua. Los sistemas orgánicos bien gestionados, con mejores capacidades para retener los nutrientes, reducen mucho el peligro de contaminación del agua subterránea (FAO, 2022).

De acuerdo a la Organización de las Naciones Unidas para la Alimentación y la Agricultura (FAO) se tienen cuatro objetivos primordiales:

Seguridad Alimentaria.

Desarrollo Rural Medios de Subsistencia sostenibles

Integridad del Medio Ambiente

IMAGEN 21,22 Flaticon (2022) (Icono) Recuperado de:Flaticon.es

24
2 1 3 4

Gráfica 01 SAGARPA Servicio de información AgroalimentariayPesquera(2022) Participación porcentual de losprincipalescultivosporsuperficie sembrada.(Gráfica). Recuperadode:https://www. gob.mx/profeco/documentos/alimentos-organicos

Panorama del Mercado en México

México en el panorama general del mercado de alimentos orgánicos en el mundo, se encuentra en el cuarto lugar donde aproximadamente se destinan un millón de hectáreas solamente para la siembra de productos agrícolas.

El primer producto que más se produce por la superficie plantada es el café, seguido por el maíz en la gráfica 01 se puede observar los porcentajes de los cultivos plantados en el territorio nacional (Gobierno de México , 2022).

Gráfica 02 SAGARPA Servicio de información AgroalimentariayPesquera(2022) Principales alimentos orgánicos exportados a Estados Unidos.(Gráfica). Recuperado de: https://www.gob.mx/ profeco/documentos/alimentos-organicos

25

Precios de productos Orgánicos

A través de las gráficas 01 y 02 podemos observar la grandeza del mercado orgánico y la importancia que tiene México a nivel internacional así como el valor económico que tiene este mercado y no cabe duda que la comercialización de estos productos cada vez se va diversificando más. Aunque este mercado cada vez ha ido creciendo cada vez más el precio de los productos es alto (Gobierno de México , 2022). Se hizo una comparativa en la tabla 3 de los productos, su precio convencional y el precio del producto orgánico.

Tabla 03 Elaboración propia con datos de PROFECO (2015) Comparativa producto, precio de producto orgánico contra convencional (Tabla) Recuperado de: https://www.gob.mx/profeco/ documentos/alimentos-organicos

A través de la tabla X se analizó que si bien los productos tienen un costo adicional de un 10% a un 250% extra se estima que el comer comida orgánica saludable tiene afectaciones positivas a tu salud a futuro además del cuidado del medio ambiente y ayudar a la economía de pequeños productores mexicanos (IFOAM, 2018) , y de alimentarse con comida poco saludable misma que en el futuro te podría traer costos médicos extras, como el gasto en medicamentos u hospitalizaciones (OMS, 2015).

26

Definición del género arquitectónico II Comercio y Abasto

El género arquitectónico que engloba el presente proyecto de Tesis es el de Equipamiento.

Cuando hablamos de equipamiento se refieran a los espacios acondicionados y edificios de utilización pública, general o restringida, en los que se proporcionan a la población servicios de bienestar social. Considerando su cobertura se clasifican. (Gobierno del estado de Jalisco,2001)

IMAGEN 23 S/A. (2020). Imagen Ilustrativa EquipamientoeInfraestructuraIMIP. Recuperado de: https:// www.imipcajeme.org/planeacion-del-desarrollo/

Tipologías del género arquitectónico

Dentro de las tipologías del genero equipamiento encontramos los siguientes:

• Equipamiento vecinal

• Equipamiento barrial

• Equipamiento distrital

• Equipamiento central

• Equipamiento regional

Las intensidades de todas estas tipologías de igual manera son: Vecinal, barrial, distrital, central, regional.

En el proyecto se usara la tipología de Equipamiento barrial , “las zonas donde se ubica la concentración de equipamiento de educación, cultura, salud, servicios institucionales y culto para la totalidad del barrio, generando los centros de barrio y corredores barriales” (Gobierno del estado de Jalisco,2001).

27

Antecedentes Históricos

Se considera que el mercado tiene una única función la de comercializar y abordar transacciones entre dos personajes, el vendedor y comprador nos menciona Plazola (2000) que en el mismo debe de cumplir la función para que las acciones se puedan desempeñar de la mejor manera posible cuidando aspectos de estética y responda a métodos contemporáneos de construcción locales.

Como tal los mercados no existían remontándonos a los primeros años del hombre primitivo, de tal manera que el hombre confeccionaba sus productos según los iba necesitando. (Dolores, 2007) El “mercado” se fue generando en un inicio a manera de intercambio de bienes en un lugar y fecha específica. Para poder hacer esto posible las personas se agrupaban en lugares conocidos por todos como lo eran los templos, puesto que estos lugares ya tenían una afluencia importante de personas sobre todo en días de festividad religiosas. Desde luego que al principio los mercados no estaban delimitados por algún objeto arquitectónico y se reducían a “puestos” al aire libre. (Dolores, 2007)

En tiempos antiguos el mercado empezó como un lugar específico destinado a este uso dotando de un espacio al “mercado” como nos comenta Dolores (2007) en Grecia comienza a verse una tipología arquitectónica llamado la Estoa “era un pórtico que servía para protegerse de la lluvia y el sol, y que normalmente se encontraba en el ágora.” (Plazola, 2002, pág. 2) Y alrededor de este se disponían los comerciantes. Ya se podía empezar a ver la importancia del mismo y dotarlo de un espacio en específico se volvió relevante en la cultura de griega (Plazola, 2002).

Por su parte no podemos dejar de mencionar a la cultura que floreció a esta tipología arquitectónica, en Roma la gran cantidad de personas obligó a formar varios mercados en distintas partes del territorio los primeros se instalaron en las plazas con forma rectangular, confinada por pórticos que funcionaban como ingresos a los locales y para poder comercializar se tenía que pedir permiso al senado y/o emperador. (Dolores, 2007) En estos espacios se comerciaba productos de origen Agrario e Industrial. La importancia del mercado se podía ver debido que se celebraban en pueblos, ciudades, puertos en cualquier lugar de importancia económica, este intercambio de compra-venta se realizaba en el Foro, pero este se destinó a actividades políticas y un lugar distinguido. (Plazola, 2002)

IMAGEN 24 S/A. (2022). ReproduccióndelaEstoade Corinto.(Imagen)Recuperado de: ellegadodehipodamos. wordpress.com

28

IMAGEN 25 y 26 S/A. (2015) Planta y Sección de el mercado Trajano.(Imagen) Recuperado de: https://www.urbipedia.org/

Antecedentes Históricos

En Roma el primero mercado de la historia se llama el macellum. Un edificio sencillo que era una explanada sin techo, rodeado y con un pórtico en la parte final del mismo. También el mercado de Pompeya que con un patio central y dimensiones de 37 por 28 metros con una piscina central. Por otro lado los Mercados Trajaneos datan del (98-117 d.C.) una serie de edificios cubiertos por una gran terraza que servía de camino, dispuestos de manera irregular los edificios de varios pisos con tabernae (Plazola, 2002). Se comienzan a ver los distintos tipos de espacios que funcionan para un necesidad en específico y como el imperio romano dota estos espacios de características simples que ayudan a desempeñar la función del comercio y como estos ordenan los mercados dando una lógica a la disposición del edificio.

Durante el siglo V los mercados siguieron teniendo una misma tipología de organización conservando las características romanas pero cada vez con construcciones más adecuadas con muros de mampostería, arcadas sostenidas por columnas y techos de bóveda. (Plazola, 2002) Conforme pasa el tiempo los mercados se consolidan más como una construcción indispensable en las culturas.

En Europa los Mercados de alimentación se remontan al siglo XIX y se volvieron comunes en la región con la expansión de los mercados de hierro y vidrio siendo más populares hacía el final del siglo así siendo un claro ejemplo de orgullo, novedad arquitectónica, cambio urbano y de las nuevas formas comerciales de la urbe capitalista(Oyón, 2010).

En América después de la conquista de los españoles comenzaron a fundarse ciudades, estas contaban generalmente con un mercado que servía para realizar los cambios comerciales entre vendedores y compradores (Cordero, 2017).

IMAGEN 27 S/A.(2010) Palacio de Cristal, creado por Joseph Paxton y dedicado a albergar la Gran Exposición de 1851 (FOTO) recuperado de: https://alpoma.net/tecob/?p=485

29

Inicios del Comercio en México

En México autores afirman que los Olmecas a través de vestigios arqueológicos llegaron a partes mucho más allá de su territorio indicando que realizaban comercio siendo así los primeros en la época prehispánica. (Gobierno de México, 2009) Los antecedentes históricos de los Mercados Públicos en México se remontan al siglo XIII cuando la cuenca en México poseía cinco lagos que comunicaban a los antiguos pueblos Nahuas y Tecpanecas sosteniendo así la vida comercial (Ahuactzin, 2004) Los Aztecas con su fortaleza militar y política traían a su capital valiosos bienes como jade, el algodón, cacao, y preciosos metales. El comercio a través de los mercaderes logró un desarrollo inesperado en la cultura Azteca. (Gobierno de México, 2009) Fueron precisamente dos los mercados que se popularizaron y los más importantes del imperio mexica, el primero Tenochtitlan que hoy en día coincide donde se encuentra el zócalo y el segundo el mercado de Tlatelolco que se localizó en lo que conocemos como la plaza de las tres culturas. (Armella, 2014) Se inicia un fuerte comercio donde se cambia el tipo de transacciones de trueque a establecer un tipo de moneda como lo fueron las semillas de cacao. (Gobierno de México, 2009) Cuando los españoles llegaron aplicaron ciertas políticas para poder imponer su modelo de generación y abastecimiento de alimentos para los indígenas. El mercado en el preclásico (1800 – 100 a.c.) trajo varios beneficios lo que propicio intercambios en distintas culturas y zonas, así se detonaron rutas para la transportación y movimientos de mercancía (Armella, 2014).

Después de la conquista, se denominó otro tipo de nombre a este intercambio comercial denominándolo mercado, la llegada de productos de distintas partes del continente trajeron nuevos cambios en la alimentación de los habitantes, así como distintos hábitos y costumbres. Desde 1580 se crearon espacios llamados Pósito y la alhóndiga con una única función que era la de fungir como mercado, aunque estos eran pensados para el almacenamiento y comercialización de solo granos. En 1703 se inaugura el parían un mercado ubicado en el Zócalo de la ciudad de México y así se comenzó a especializar el mercadeo de productos principalmente en el centro del país (Gobierno de México, 2009).

Es impensable el desarrollo de la economía y la cultura sin espacios para este intercambio que sin duda va más allá de solo el fin mismo de conseguir los bienes, los historiadores los han descrito como lugares donde la misma historia se ha escrito y es a partir de esta que podemos afirmar donde estamos hoy en día, pero no podría ser posible sin un lienzo donde pintar la misma.

En el siglo XX muchos mercados se vieron obligados a cerrar sus puertas, sin embargo, solo aquellos que lograron imponerse ante las nuevas formas comerciales se mantuvieron en pie (Oyón, 2010).

30

IMAGEN 28 Instituto Nacional de Estudios Históricos sobre las Revoluciones de México (2015) Grabado del Parián, mercado ubicado en el Zocalo el mercado más bullicioso e importante de AmericaenelsigloXVIII,fue demolidoenelsigloXIX(Grabado)Recuperado de: www. elconfidencial.com/alma-corazon-vida/2015-08-08/

Antecedentes Históricos

En México, los productos orgánicos comienzan a partir de los años sesenta, gracias a la demanda de ciertos productos orgánicos por parte de empresas extranjeras. Las tierras cultivadas son de cultivo tradicional, zonas indígenas donde no se utilizan productos químicos. Los estados que iniciaron esta nueva forma de producción fueron Chiapas y Oaxaca. Hoy el cultivo está repartido por todo el territorio del país.

31

Antecedentes Históricos

En la figura 15 podemos observar a manera de línea del tiempo y de manera resumida cómo ha evolucionado a través de la historia este género en México y en el mundo.

IMAGEN 29 Elaboración Propia (2022)Cronología de la historia de los mercados (Gráfico).

32

Análisis de ejemplos análogos

Para desarrollar el análisis de los ejemplos análogos se desarrolló una tabla la cual compara los ejemplos. Esta tabla tiene por objeto comparar ejemplos nacionales, regionales e internacionales para poder comprender de mejor manera cada uno de los casos. La tabla desarrolla las siguientes categorías proyectuales:

Sitio: Comparar las características del mismo y cómo influyen en el diseño del proyecto, así como las condicionantes de clima, orientación, contexto, Medio físico natural, Vientos dominantes, topografía, vegetación existente, normatividad, Medio físico Natural, medio físico transformado, estructura urbana, usos de suelo, usos y costumbres.

Significante: Se refiere al concepto del proyecto, premisas por las cuales se desarrolló el caso análogo.

Forma: Análisis formal de la apariencia del edificio, serie de acciones que se hicieron para otorgar un carácter final al edificio, intenciones formales de diseño.

Función: Todo aquel elemento que sirve para otorgar la función final del edificio, es decir: vinculaciones, zonificación, dimensionamiento, amueblado, ergonomía, antropometría. A través de la descripción de estos elementos poder entender el mismo.

Espacio: Se refiere a los ejes de composición, uso de las escalas, proporción, vacío remates visuales, elementos no tangibles que fueron contemplados en el diseño del caso análogo para otorgar un cierto carácter al espacio.

Técnica: Materialidad y sistemas constructivos que se usan para el ejemplo que se está desarrollando, es decir; apariencia del material, acabados, estructura, cimentación columnas trabes, envolvente, cubierta, muros divisorios. Se analiza también como la selección de los materiales influye en el acabado final del edificio.

Sustentabilidad: Las ventajas que maneja el edificio descripción de las mismas como lo pueden ser criterios bioclimáticos, geotecnias, sostenibilidad.

Los ejemplos análogos seleccionados muestran de manera representativa el análisis que nos permitirá completar este capítulo. Para mayor detalle de los ejemplos análogos ver el ANEXO X en el cual se describe a profundidad cada uno.

33

Análisis de ejemplos análogos

• Arquitectos A|911

• Localización: Ciudad de México, México

• Año: 2018

“El mercado San Juan Ernesto Pugibet, es ampliamente reconocido a nivel nacional e internacional por su venta especializada de productos gastronómicos. Es punto de referencia para este tipo de turismo entre locales y foráneos, y provee de recursos a chefs y estudiantes de la materia. Está ubicado en el Centro Histórico de la Ciudad de México, junto a la Alameda Central, en lo que fuera la bodega de la antigua fábrica de cigarros El Buen Tono. Ha desarrollado actividades por casi 60 años dentro de un edificio que, en principio, no fue diseñado para operar como mercado. Antes de su intervención presentaba condiciones físicas y de infraestructura no óptimas para su funcionamiento, así como señales de deterioro temporal.” (Archdaily, 2018)

Programa Arquitectónico

El programa arquitectónico no cambió mucho desde la remodelación, pero se implementaron acciones para una correcta identificación del mobiliario y de las zonas del mercado en un proceso participativo que junto con los locatarios se definieron colores para los giros comerciales así mejorando en la funcionalidad del mismo. (Archdaily, 2018)

Materialidad

La materialidad juega un papel importante en el rescate del patrimonio edificado de la ciudad de México y los arquitectos supieron adaptar los materiales al contexto dado, así como la fachada que supieron adaptarse con el contexto pre-existente y generar un prototipo que se adapte a su contexto. Pero también podríamos decir que en cuanto a materiales no hubo una innovación.

Aporte a la propuesta

Este mercado se vuelve referente como resignificar los espacios en la ciudad y hacerlos que respondan a necesidades actuales. La manera que integran a los locatarios para la remodelación del inmueble es admirable debido que los arquitectos pudieron traducir sus opiniones al espacio y lenguaje arquitectónico como lo fue el mejoramiento del interior.

IMAGEN 30 Arquitectos A|911 (2022) Isométrico mercado Pugibet (Gráfico) Recuperado de: Archdaily. com/MercadoPugibet

34

Análisis de ejemplos análogos

IMAGEN31 Arquitectos A|911(2022)FotografíaexteriorMercadoPugibet(Foto)Recuperadode:Archdaily.com/ MercadoPugibet

IMAGEN32ArquitectosA|911(2022)Fotografíaexterior IngresoMercadoPugibet(Foto)Recuperadode:Archdaily. com/MercadoPugibet

IMAGEN33ArquitectosA|911(2022)FotografíaexteriorMercadoPugibet(Foto)Recuperadode:Archdaily.com/MercadoPugibet

35
36 Análisis de ejemplos análogos IMAGEN34ArquitectosA|911(2022)InteriorLocalesMercadoPugibet(Foto)Recuperadode:Archdaily.com/MercadoPugibet IMAGEN35ArquitectosA|911(2022)InteriorLocalesMercadoPugibet(Foto)Recuperadode:Archdaily.com/MercadoPugibet

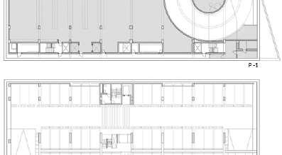
IMAGEN36,37,38,39(Dearribahaciaabajo)ArquitectosA|911(2022)Alzado,Sección01,Sección02,Sección03,(Levantamientos)Recuperadode:Archdaily.com/MercadoPugibet

37

PROGRAMA ARQUITECTÓNICO

1- Área de Locales 2-Cuarto de Máquinas 3-Basura 4-Bodega 5-Administración 6- Sanitarios 7-Lavaderos 8-Jardín 9-Área de carga y descarga 10 - Vestidores 11 - Anden de Descarga 12- Ingreso Público 13- Ingreso Servicio

38
13 12 12 12 6
B´ B
1 2 4 7 10 5 4 3 9 11 A A´
IMAGEN40ArquitectosA|911(2022) Planta (Planta Arquitectónica) Recuperado de:Archdaily.com/MercadoPugibet

IMAGEN 41 Colectivo C733(2020)

DiagramadeMaterialidad Recuperado de: Archdaily. com/Mercado público Matamoros

Análisis de ejemplos análogos

• Arquitectos: Colectivo C733

• Localización: Matamoros, Tamaulipas, México

• Año: 2020

“Un sistema de paraguas a base de estructura metálica prefabricados en módulos triangulares-trapezoidales a los que su forma misma da rigidez construyen un pórtico perimetral cubriendo claros de nueve metros de distancia con estructuras no mayores a 5 pulgadas capaces de resistir un huracán o inundación a pesar de su ligereza. El ángulo de inclinación, responde a la reducción de carga además del trabajo estructural a tensión, propiciando también los escurrimientos óptimos para el agua y la nieve. El sistema considera una piel inferior que funciona como aislante térmico, en este caso tabique de 2 cms de espesor, manteniendo en exterior una piel de lámina ideal para la intemperie y la captación pluvial, funcionando también como reflejante solar. Las linternillas facilitan el cruce de viento y la iluminación natural óptima para los otros 40 locales que se asientan en el corazón del pórtico de manera informal con áreas asignadas de 3x3mts que permiten mantener la flexibilidad espacial y uso para la gente de la comunidad.” (Archdaily , 2020)

Programa Arquitectónico

El edificio se remete un poco de los límites del terreno para rodearlo de espacios verdes y plazas para ingresos al mercado. El mercado que cuenta con 40 locales comerciales cerrado al exterior e únicamente con aberturas para generar tránsitos en tres direcciones y conectarlo con el espacio deportivo y el espacio recreativo. (Archdaily , 2020)

Materialidad

Dadas las condiciones del noreste del país con un clima agresivo se optaron por materiales que respondieran a las mismas con un sistema de paraguas base de estructura metálica se construye un pórtico que cubre claros de hasta nueve metros y una rigidez que son capaces de resistir un huracán o inundación a pesar del poco peso. (Archdaily , 2020)

Aporte a la propuesta

La manera que los arquitectos usaron usaron materiales locales para la construcción del mismo adaptándose a las características del sitio es un aporte significativo que sin duda puede ser trasladado a la propuesta mercado en Zapopan así como el diseño en el espacio abierto otorgando a la comunidad de Matamoros una identidad y apropiación del espacio.

39
40 IMAGEN42ColectivoC733(2020)ImagenExterior(Foto)Recuperadode:Archdaily.com/MercadopúblicoMatamoros IMAGEN43ColectivoC733(2020)ImagenInterior(Foto)Recuperadode:Archdaily.com/MercadopúblicoMatamoros

IMAGEN44,45,46,47(Dearribahaciaabajo)ColectivoC733(2020)Sección01,Sección02,Sección03,Sección04(Levantamientos)Recuperadode:Archdaily.com/MercadopúblicoMatamoros

41

PROGRAMA ARQUITECTÓNICO

1- Área de Locales 2-Cuarto de Máquinas 3-Basura 4-Bodega 5-Administración 6- Sanitarios 7-Lavaderos 8-Jardín 9-Área de carga y descarga

42
9 2 3 4 6 56 7 88 8
IMAGEN48ColectivoC733(2020)PlantaRecuperadode:Archdaily.com/MercadopúblicoMatamoros

Análisis de ejemplos análogos

Ejemplo Internacional

• Arquitectos: Carles Muro, Charmaine Lay

• Localización: Inca (Mallorca)

• Año: 2010

“El proyecto trata de conseguir la máxima cantidad posible de espacio público dando respuesta simultáneamente a las necesidades de un programa muy variado: aparcamiento, supermercado, locales comerciales, oficinas municipales y mercado. Un espacio público que sea el soporte de las actividades –presentes y futuras- de este lugar. El aparcamiento y el supermercado se sitúan bajo rasante, mientras el resto del programa emerge del suelo hasta llegar a su máxima altura en la zona de las oficinas municipales. Desde un extremo del solar, el pavimento de madera se levanta para cubrir el acceso al aparcamiento. Esta cinta de madera se prolonga en forma de pérgola horizontal paralela a la calle, envolviendo el principal espacio público de la propuesta, y se transforma más adelante, desplegándose en tres tramos inclinados, en la cubierta del nuevo mercado. Un último tramo horizontal se superpone al edificio que contiene los locales comerciales y las oficinas municipales. Esta cinta constituye el principal elemento de continuidad de todo el proyecto y hace visible el orden estructural del aparcamiento subterráneo.” (Soto-lay, 2009)

Programa Arquitectónico

El mercado al estar en una zona de patrimonio histórico en el centro de la ciudad intenta resolver las necesidades del mismo proyecto arquitectónico en la verticalidad. Situando el estacionamiento y el supermercado debajo del suelo después el mercado en primera planta así hasta llegar a las oficinas municipales.

Materialidad

En cuanto a la materialidad se optó por la funcionalidad de la estructura y del espacio con una estructura de concreto y madera unidos y tensionados con cables para obtener un resultado que otorgue permeabilidad de la luz y ventilación.

Aporte a la propuesta

El aporte de este proyecto arquitectónico al desarrollo del presente trabajo es la adaptabilidad del equipamiento a la zona y el espacio público que otorga a la comunidad, así como el sistema constructivo integral que genera espacios al interior bien iluminados con una adaptabilidad de la forma del mercado al espacio en el que fue concebido.

43
44
IMAGEN49 CarlesMuro,CharmaineLay (2020)FotodelConjunto(Foto)Recuperadode:https://afasiaarchzine.com/2010/06/ charmaine-lay-carles-muro-2/ IMAGEN50 CarlesMuro,CharmaineLay (2010)PerspectivaExterior(Foto)Recuperadode:https://afasiaarchzine.com/2010/06/ charmaine-lay-carles-muro-2/

IMAGEN51,52(Deizquierdaaderecha) CarlesMuro,CharmaineLay (2010)Perspectivasinteriores(Fotos)Recuperadode:https://afasiaarchzine.com/2010/06/charmaine-lay-carles-muro-2/

IMAGEN53CarlesMuro,CharmaineLay(2010)SecciónRecuperadode:https://afasiaarchzine.com/2010/06/charmaine-lay-carles-muro-2/

45

PROGRAMA ARQUITECTÓNICO

1- Área de Locales

2-Cuarto de Máquinas 3-Basura 4-Bodega 5-Administración 6-Estacionamiento 7-Área de carga y descarga 8- Circulaciones Verticales

IMAGEN54CarlesMuro,CharmaineLay (2010)PlantaRecuperadode:https://afasiaarchzine.com/2010/06/charmaine-lay-carles-muro-2/

46
6 8 8 2 5 1 3 4 7

TABLA04ElaboraciónPropia(2022)Tablacomparativa ejemplos Análogos resumen. (Tabla).

Tabla Análisis de ejemplos Análogos

Se realizó una tabla con cada uno de los ejemplos análogos y como estos aportan al proyecto en cada uno de los apartados pertinentes por analizar, a continuación un resumen de la tabla mostrando los apartados analizados.

TABLA05ElaboraciónPropia(2022)Tablacomparativa Dependencias resumen. (Tabla).

Tabla comparativa de Dependencias

El programa arquitectónico es una parte fundamental de los proyectos, sin un buen análisis en el programa arquitectónico los proyectos pueden quedar fuera un contexto dado y su función podría no ser cumplida por lo que para el correcto análisis e interpretación de la realidad se optó por realizar una tabla que compare los ejemplos análogos analizados, la Enciclopedia de Arquitectura Plazola (Plazola Cisneros, Plazola Anguiano, y Plazola Anguiano 1999) también el libro el Arte de proyectar Neufert (Neufert, 2013).

En el apartado de anexos la Tabla 05 podemos encontrar la comparativa y como esta comparativa nos aportó mayor claridad para poder realizar un programa arquitectónico a la medida.

47

Conclusiones

De acuerdo a la investigación realizada en los distintos apartados de este capítulo podemos concluir que Zapopan es una ciudad que ha tenido un desarrollo importante en las últimas décadas y su crecimiento económico como poblacional ha sido uno de los más importantes del país por lo que la demanda de equipamiento ha ido en aumento y los centros de abasto públicos se han mantenido. Por lo que los abastecimientos de alimentos han sido únicamente abastecimientos de carácter privado así dejando de lado los mercados públicos como equipamiento y espacios inter-dimensional que ofrezca espacio público y áreas verdes.

48

CAPÍTULOIIIMARCOCONTEXTUAL

MÉTODO

En el siguiente capítulo se empleo el metodo documental que consiste en cuatro pasos fundamentales para la correcta elaboración del capítulo. El primero consiste en la busqueda de información a través de distintas fuentes fideodignas que puedan ayudar a fundamentar la tesis de mejor manera. El segundo paso consiste en clasificar la información obtenida para cada uno de los apartados que se abarcan en el siguiente capitulo para odrenarlos posteriormente y convertirlos en graficos. El tercer paso consiste en la elaboración gráfica de documentos a traves de herramientas como Excel y Photoshop para poder desarrollar las tablas pertinentes y gráficos para poder explicar de mejor manera. Finalmente el ultimo paso concluir los aprendizajes del capítulo.

IMAGEN 55 Gobierno de Zapopan(2018).Imagenilustrativa dela estación Centro de Zapopan Recuperado de Zapopan.gob.mx

IMAGEN 56 Maradiaga R. (2015). Elaboración propia Gráfico de las fases y técnicas de la investigación documental Recuperado de: https://repositorio.unan.edu. ni/12168/1/100795.pd-

Planeación

Recolección

Análisis

Redacción

Seleccionar, plantear y delimitar el tema; elaborar plan, esquema y agenda de trabajo.

Lectura de documentos, acopio de información, elaboración de fichas. Clasificación de la información, de acuerdo con el esquema de trabajo.

Utilizar técnicas de redacción y estructura del trabajo.

50

LOCALIZACIÓN

IMAGEN57MapadeUbicación de Jalisco en México Fuente:ElaboraciónPropia

IMAGEN 58 Mapa de Ubicación del municipio de Zapopan en el estado de Jalisco Fuente: Instituto de Información. Estadística y Geografía del Edo. De Jalisco “Mapa Gral. Del estado de Jalisco 2012”

El municipio de Zapopan está localizado en la parte centro del estado de Jalisco en México. Colinda con los siguientes municipios Guadalajara, Ixtlahuacán Del Río, San Cristóbal de la Barranca,El Arenal, Amatitán, Tala, Tequila, Tlajomulco de Zúñiga y San Pedro Tlaquepaque (ver mapa X ). Tiene una extensión territorial de 1,017.24 kilómetros cuadrados. (IIEG, 2021)

Su cabecera municipal se localiza en las coordenadas 20°43 12.72  latitud norte y - 103°23 21.48  de longitud oeste, a una altura de 1,574 metros sobre el nivel del mar (msnm). El territorio municipal, tiene alturas entre los 740 y 2,270 msnm; y una pendiente predominantemente plana menores a 5 grados. (IIEG, 2021, pág. 7)

51

DEFINICIÓN DE USUARIOS

Las personas que visitaran el mercado municipal de Zapopan son personas de todas las edades, ya que el mercado municipal pretende ser un espacio familiar y ser un espacio público que promueva la comunidad en el distrito centro de Zapopan.

Se pretende que vayan usuarios con un estatus socio-económico medio-bajo. El Mercado Público es considerado como un elemento de servicio local y pretende dar servicio a unidades habitacionales de más de 5000 habitantes y tiene como población usuaria potencial el 100% de la población de Zapopan así pudiendo atender a 14, 500 personas por modulo en un radio de influencia de 750 metros (SEDESOL, 1999) (Gobierno del estado de Jalisco,2001).

POBLACIÓN OBJETIVO

Consumidores de todas las edades y sexos, así como personas en situación de discapacidad, también turistas de otros municipios, estados y países.

IMAGEN59Laescalalatina (2022).Imagenilustrativa delapoblaciónobjetivo Recuperado de: https://escalalatina.com/

52

MARCO NORMATIVO

En la siguiente tabla se engloba los distintos tipos de normativas para el género arquitectónico de los mercados públicos. Para poder entender de mejor manera las regulaciones de este género arquitectónico se elaboró el siguiente análisis dividiéndose de la siguiente forma:

• Internacional que son aquellos reglamentos que en distintos países regulan la construcción, elaboración y diseño del edificio.

• Nacional: Aquellas normativas que en México regulan la construcción, elaboración y diseño del edificio.

• Local: A nivel municipal aquellas regulaciones que en Zapopan regulan la construcción, elaboración y diseño del edificio.

La tabla con el total de la normatividad revisada y consultada para el proyecto se encuentra en el apartado de anexos al final del documento.

TABLA06ElaboraciónPropia (2022).ResumenNormatividad

53

MATRIZ DE SELECCIÓN DE PREDIO

El proyecto estará ubicado en el municipio de Zapopan dentro de la Zona Metropolitana de Guadalajara pero para poder decidir la mejor opción de terreno se desarrolló una matriz, en la cuál se optarón por tres predios que se apegaran a las recomendaciones de la Estretegia Territorial de Zapopan para el año 2030 y uno de los puntos más importante es que se ubicara dentro del territorio y cercano al centro de Zapopan para evitar la expansión de la mancha urbana y concentrar la población(ETZ2030, 2020).

Se elaboró la Tabla 07 para decidir cual es el predio mejor puntuado y que sea más correcto para la elaboración del mercado y con base en la matriz de selección de terreno el predio con el mayor puntaje fue el número 03.

TABLA07 ElaboraciónPropia (2022).ResumenMatriz deseleccióndePredio

54

IMAGEN60 Visor Urbano (2022).VistasatelitaldelpredioseleccionadocondelimitaciónCatastral.

Recuperado de https://visorurbano.jalisco.gob.mx/ mapa/Zapopan

PREDIO SELECCIONADO

El predio con el puntaje más alto según la matriz de selección de predio se encuentra en el municipio de Zapopan dentro del distrito Centro, en el estado de Jalisco; con una orientación Norte-Sur. Localizado en la vialidad principal Av. Avila Camacho. El área que comprende el predio es un total de 5119 m2 en una superficie regular. Un Terreno que debido a la ubicación que tiene cuenta una ventaja competitiva contra otros comercios de la zona, además de tener una accesibilidad unica debido a que esta localizado a menos de cien metros de distancia de la estación centro de Zapopan impulsando su radio de influencia ademas siendo un hito en la zona centro de Zapopan.

55

MARCO HISTÓRICO:

Entre 1160 y 1325 despues de cristo, un gran número de familias zapotecas, navajos y mayas ingresaron a estas tierras desde el sur, buscando refugio en las orillas del gran arroyo, ahora llamado el profundo. Los primeros pobladores finalmente se mezclaron con otras tribus, incluidos los aztecas, y gobernaron a los ticos. La gente Tzapopana es muy religiosa, y aunque principalmente veneran a un dios niño (Teopiltzintli), sus pueblos tienen lugares sagrados o hitos, el templo del sol. Tzapopan fue una ciudad poblada, pero las guerras con las tribus nómadas llevaron a su decadencia, convirtiéndola en una ciudad insignificante y dominada bajo Atimayac o Tlatuanazgo, que perteneció al Tonalá de Huitlatuanazgo cuando llegaron los los españoles.

En 1530, las tierras fueron conquistadas por Nuño de Guzmán, pero se estableció como ciudad ocupada en 1541, cuando se ganó la Batalla de Mixton; se llevaron 130 indios de Jalostotitlán para reconstruir Tzapopan; La tarea de crear y trasladar el Tzapopan fue realizada el 8 de diciembre de 1841 por Fray Antonio de Segovia, quien junto con Fray Miguel de Valencia, donó la imagen de la Virgen de la Concepción, quien lo acompaño durante sus viajes evangelizadores en Zacatecas y otros lugares. De este hecho se desprende el nombre de la localidad: Nuestra Señora de la Concepción de Tzapopan, la cual él llamaba “La Pacificadora” (IIEG, Instituto de Información de Estadística y Geografía del Estado de Jalisco, 2021).

Por decreto del 27 de marzo de 1824 Zapopan se convierte en cabecera de los 26 departamentos así llamados en ese entonces los limites territoriales en Jalisco , cuyos límites incluían la ciudad de Huentitán. Hacienda de la Calerilla (de Tonalá); Tala, Ocotan, Jocotán y Santa Ana Tepetitlán. Según el mismo decreto, a Zapopan se le dio el nombre de Villa. Pertenece al primer Canton de Guadalajara desde 1825, mantiene una jerarquía de cabecera desde 1822, y el ayuntamiento el primero desde 1821 (IIEG, Instituto de Información de Estadística y Geografía del Estado de Jalisco, 2021).

El 13 de marzo de 1837 fue nuevamente nombrado cebecera de departamento.Por decreto del 31 de octubre de 1991, se concedió el rango de ciudad a la Villa de Zapopan, dicha disposición fue dada a conocer mediante una ceremonia pública que se celebró el 8 de diciembre de 1991, con motivo del 450 aniversario de la fundación de esta población (IIEG, Instituto de Información de Estadística y Geografía del Estado de Jalisco, 2021).

IMAGEN61 Gobierno de Zapopan (2022).Escudode deZapopan

Recuperado de https: https://www.zapopan.gob.mx/ v3/

56

IMAGEN 62 Mapa topográfico Zapopan (2022). Mapa con la Altitud Recuperado de https://esmx.topographic-map.com/ map-62jkl/Zapopan/?cen-

Topografía: MEDIO FISICO NATURAL

En Zapopan la mayor parte de su superficie está conformada por zonas planas (58%), le siguen en proporción las zonas semiplanas (26%) y zonas accidentadas (16%), con alturas que van de los 1,500 a los 2,000 metros sobre el nivel del mar. Las principales elevaciones se localizan en la Sierra de La Primavera, destacan la mesa del Nejahuete con 2,110 metros, el cerro del Tajo o Pelón, con 2,050 metros y El Chapulín, con 2,020 metros (IIEG, Instituto de Información de Estadística y Geografía del Estado de Jalisco, 2021). (En el mapa X se puede observar como el terreno se ubica en una parte del municipio que va desde 1575 a 1560 metros sobre el nivel del mar obteniendo aproximadamente un desnivel de 15 metros en la zona centro. En la imagen X se puede observar que el terreno no cuenta con un denivel mayor a los dos metros.

IMAGEN 63 Elaboración propia(2022).

Mapatopográficodelpredio.

Recuperado de Geolocalización de Sketchup.

57

Sección de pendiente de terreno:

Continuando con el analisis del predio se hizo un analisis topografico que nos ayudará a tomar decisiones de diseño más adelante. En el analisis se optó por seccionar el terreno para poder entender el denivel de este y si la topografía era muy accidentada con las herramientas de Google Earth Pro.

Se seccionó en dos parte s las sección A y B perpendiculares entre si, así tambien como un corte transversal y longitudinal. La diferencia de alturas en la sección A no mayor a los dos metros de elevación y con una pendiente inclinada hacía avenida Avila Camacho importante para en un futuro considerar hacía donde corre el agua. Y en la sección B no se obtuvo un desnivel mayor a 1 metro por lo que el terreno se considera que tiene un desnivel excelente para edificar sobre el mismo.

IMAGEN 64 Elaboración propia(2022).

Mapatopográficodelpredio.

Recuperado de GeolocalizacióndeSketchup.

IMAGEN 65 Google Earth Pro(2022).

Perfiles Topograficos obtenidos de Googleearthpro. com

58
Sección
Sección
1564MSN 1563 MSN 11565MSN1566MSN 567MSN A A B B
A
B

IMAGEN 66 Edafología IIEG(2018).

MapaEdalfologíadeZapopan

Recuperado de: https:// iieg.gob.mx/contenido/ GeografiaMedioAmbiente/14120_EDAF.jpg

Subsuelo:

En el mapa superior se puede observar los distintos tipos de suelos que tiene zapopan y como la mayor parte este municipio cuenta con el suelo Regosol incluido el la parte donde se ubica nuestro predio que tiene una textura media en los primeros 30 centimetros superficiales del suelo. (Instituto de información y Estadistica del estado de Jalisco, 2016).

Los regosoles son suelos con pocos años que usualmente son el resultado de el depósito reciente de piedra y arena que fueron llevados por el agua; de ahí su localización que generalmente se hayan en la parte inferior de las sierras, donde se acumula por los ríos que bajan de las mismas cierras llenos de sedimentos. Se extienden por toda la Sierra Madre Occidental y la Sierra Madre Oriental . Sus variaciones más normales son los regosoles éutricos y calcáricos, que se caracterizan por tener una capa en la superficie llamada “Ocrica”, que, cuando remueven la vegetación, se vuelve dura y complicada de traspasar por el agua así ocasionado erosión.

59

Inundaciones:

Con datos del mapa renovado del Instituto de Planeación y Gestión del Desarrollo del Área Metropolitana de Guadalajara (Imeplan) se han identificado en el municipio 170 puntos vulnerables ubicando a las zonas del sur y norte como las más susceptibles a inundaciones(Gobierno de Zapopan, 2022).

Por lo que se puede ver en la imagen X el predio señalado y fuera de estas áreas de inundación que se encuentran marcados de azul en el mismo mapa.

IMAGEN 67 SIGMETRO (2016) Mapa de Inundaciones del municipio de Zapopan recuperado de: https:// sigmetro.imeplan.mx

Hidrografía:

Zapopan esta ubicado en la zona del Pacífico por lo que las corrientes de agua se destacan por ser de poca extensión y veloces. Las corrientes y cuerpos de agua pertenece a dos regiones: Lerma-Santiago y Amecea. La primer región esta abastecida con dos cuencas : laguna de Chapala y río Santiago-Guadalajara.

Por lo que se puede ver en la imagen X el predio señalado se encuentra lejos de estas áreas de escurrimientos que suceden en la ciudad estas áreas de escurrimeintos se encuentran marcados de azul en el mismo mapa.

IMAGEN 68 Gobierno de Zapopan (2018) Mapa de Hidrografía del municipio de Zapopan con zoom en el terrenorecuperado de: https://www. zapopan.gob.mx/wp-content/uploads/2017/10/PMDU-D5-Hidrografia.pdfsa

60

Asoleamiento:

IMAGEN 69 Sunearthtools (2022)MapadeAsoleamiento del municipio de Zapopan conzoomenelterreno recuperado de: https://www. sunearthtools.com/dp/tools/ pos_sun.php?lang=es#top

IMAGEN 70 Sunearthtools (2022) Gráfica Asoleamiento del municipio de Zapopan conzoomenelterreno recuperado de: https://www. sunearthtools.com/dp/tools/ pos_sun.php?lang=es#top

La grafica solar consiste en una representación gráfica en planta, que nos permite obtener la posición del Sol en el cielo con respecto a nuestra ubicación, considerando una latitud específica(UDLAP, 2018). El amanecer más temprano en el invierno en Zapopan es a las 7:13 el 1 de diciembre y el amanecer más tarde es 19 minutos más tarde a las 7:32 el 17 de enero.

La puesta del sol más temprana es a las 18:11 el 1 de diciembre y la puesta del sol más tarde es 46 minutos más tarde a las 18:57 el 28 de febrero.

Se observa el horario de verano en Zapopan en 2022, pero ni comienza ni termina durante el invierno, así es que toda la estación está en el horario estándar.

Como referencia, el 21 de junio, el día más largo del año, el sol sale a la(s) 7:13 y se pone 13 horas y 24 minutos después, a la(s) 20:37, mientras que el 21 de diciembre, el día más corto del año, sale a la(s) 7:25 y se pone 10 horas y 53 minutos después, a la(s) 18:18.(Sunearthtools, 2022)

61

Vegetación:

En Zapopan la vegetación se compone básicamente de pino y encino en la sierra de La Primavera, además de las especies cretón, jonote, madroño, ozote, retama, sávila y nopal en la parte norte y al oriente en la barranca (Gobierno de Zapopan, 2021).

En el predio podemos ubicar especies de arboles perennifolios y con la ayuda de herramientas como Google Maps y Google Earth Pro se pudo identificar los arboles dentro del predio y pastizales.

Macizo

Arbolado

Fresno Mexicano

Laurel de la India (Ficus)

Guayabo

Guamúchil

Casuarina

Pastizales

Penniseto

Pasto Africano Rosado

Cola de Ratón

Zacate de Escobilla

Matorrales Salvajes

IMAGEN 71 Google Earth Pro (2022) Macizo Arbolado señalado en el predio recuperadode:GoogleEartPro

IMAGEN 72 Elaboración Propia con datos de Gobierno de Zapopan (2022) Imagenes illustrativas de vegetacióndentrodelpredio

62
Fresno MexicanoLaureldelaIndiaGuayabo PastoAfricano Rosado Cola de Ratón Penniseto

IMAGEN 73 (2022) Basilica de Zapopan recuperada de: Milenio.com

La mayor parte del municipio tiene un clima cálido subhúmedo. La temperatura media anual es de 20.5°C, y su temperatura mínima y máxima promedio oscila entre los 8.4°C y 32.1°C.(Gobierno de Zapopan, 2021)

Clima: Tipo de clima:

Según la clasificación del sistema Köppen el clima que se tiene en Zapopan es Semicalido con verano calido a continuación se ilustra una tabla con los detalles del clima.

63

Temperatura:

En la siguiente tabla podemos observar los datos recabados por la estación metereológica en Zapopan por la Conagua la cual nos ilustra los meses del año y las temperaturas que se han registrado. De esta manera se nos muestra cual ha sido la Media Máxima , Media y Media Mínima de los meses a traves de un periodo de 38 años. Así podemos afirmar que Zapopan tiene una temperatura promedio de 20° una temperatura media minima de 13° y una temperatura media Máxima de 29° con una oscilación termica promedio de 16° durante el dia.

64

Humeda Relativa:

En la siguiente tabla podemos observar los datos recabados de Climate one Biulding la cual nos ilustra los meses del año y las humedades relativas alcanzadas en ese periodo de tiempo. De esta manera se nos muestra cual ha sido la humedad relativa máxima, media y mínima de los meses a traves de un periodo de 5 años.

Así podemos afirmar que Zapopan tiene un porcentaje promedio de Humedad Relativa máxima de 76% minima de 33% y media de 55% (Climate one biulding,2022).

65

Precipitaciones:

En la siguiente tabla podemos observar los datos recabados por la estación metereológica en Zapopan por la Conagua la cual nos ilustra los meses del año y los milimetros por metro cuadrado alcanzadas en ese periodo de tiempo.

De esta manera se nos muestra cual ha sido la precipitación promedio en cada uno de los meses a traves de un periodo de 38 años. Así podemos afirmar que Zapopan tiene una precipitación promedio anual de 1007 milimetros por metro cuadrado y el mes en el que más llueve es Julio teniendo 19 días promedio con lluvia en el mes.

66

Vientos Dominantes:

La velocidad y dirección del viento es importante saber estos datos para poder determinar ciertos estrategías de diseño arquitectónico en Zapopan.

La velocidad del viento y su dirección son datos que fueron recabados de la página Weather Spark 2022 y nos indica que la velocidad promedio anual es de 8.15 kilometros por hora y de el mes Enero a Junio la dirección del viento es al Oeste y de Julio a Diciembre la dirección es Este.

En la siguiente tabla podemos observar los datos recabados:

67

Radiación:

Es importante saber la radiación para poder saber cuales son los Kilowatts promedio por hora registrados en cada mes del año y de ahí poder determinar una estretegia adecuada para el diseño arquitectónico. Según la International Renewable Energy Agency (IRENA, 2015), México se encuentra entre 15° y 35° de latitud, región considerada la más favorecida en recursos solares, donde se recibe diariamente, en promedio, 5.5 Kwh/m2 (la unidad de medición de radiación solar).

En la siguiente tabla podemos observar los datos recabados de Weather Spark de ahí pudiendo afirmar que los mesesw que mayor radiación tienen en Zapopan son Abril y Mayo.

En el siguiente grafíco podemos observar como Zapopan tiene una incidencia solar promedio de 5.0 a 5.5 Kwh/m2 en el periodo registrado de 1999 a 2018. (Solargis, 2018).

68

Tabla de Normales climatológicas:

En la siguiente tabla se muestran las temperaturas normales climatológicas en los meses del año a partir del año 1972 a 2010.

69

Implicaciones en el proyecto:

En la siguiente tabla 14 se muestran las implicaciones en el proyecto.

70

MEDIO FÍSICO TRANSFORMADO:

IMAGEN 74 (2022) Basilica de Zapopan Elaboración Propia.

IMAGEN 75 (2022) Usos de suelo del entorno inmediato recuperado de: Visor Urbano

Enel siguienteapartadose describeen varios puntos elmedio físicotransformado del lugar en el que se desarrollará el presente proyecto de tesis.

Usos de suelo del entorno inmediato:

Los usos de suelo del entorno inmediato se caracterizan por ser Habitacional plurifamiliar Horizontal densidad media y por la avenida Manuel Avila Camacho Mixto distrital intensidad media y Alta.

71

Para comprender la morfología urbana se tiene que comprender que Zapopan se ecuentra dentro del área metropolitana de Guadalajara que a su vez se comprende por los municipios de San Pedro Tlaquepaque, Tonalá, Tlajomulco de Zúñiga, El Salto, Juanacatlán, Ixtlahuacán de los Membrillos, Acatlán de Juárez, Zapotlanejo, Guadalajara y el ya mencionado Zapopan (INEGI, 2018). El Distrito Urbano en el que se ubica es ZPN-1 “Zapopan Centro Urbano” se ubica al este del municipio de Zapopan. Colinda al sur y sureste con el municipio de Guadalajara; al noreste con el Distrito Urbano ZPN-2 “Arroyo Hondo”; al norte con el Distrito Urbano ZPN-3 “Los Robles”; al noroeste con el Distrito Urbano ZPN4 “La Tuzanía”Ayuntamiento de Zapopan (2012).(ver imagen X).

IMAGEN 76 Ayuntamiento de Zapopan (2012). Mapa del distrito Centro y sus colindancias [Mapa]. Recuperado de https:// www.zapopan.gob.mx/ transparencia/obras-publicas/distrito-zpn01/

72
Morfología Urbana:

Infraestructura:

El predio seleccionado esta equipado con la infraestructura básica necesaria para la edificación del mercado municipal que son los servicios de drenaje, servicio de hidráulico,servicio sanitario, servicio de eléctrico, voz y datos; .A continuación ser hará una evaluación de las banquetas, pavimentos y alumbrado público (Ver imágenes X, X, X).

PAVIMENTOS

El pavimento por la avenida Manuel Avila Camacho un concreto estampado se encuentra en una condición optima sin embargo el empedrado por la calle Prol. 20 de Noviembre y Sta. Martha se encuentra en estado regular.

BANQUETAS

Las banquetas por la avenida Manuel Avila Camacho se encuentra n en estado optima con una anchura de 3 mts. sin embargo por la calle Prol. 20 de Noviembre y Sta. Martha se encuentran en buen estado y cuentan con una anchura de 1 mt. (Ayuntamiento de Zapopan,2018).

ALUMBRADO

El alumbrado por la avenida Manuel Avila Camacho se encuentra n en estado optimo, sin embargo por la calle Prol. 20 de Noviembre y Sta. Martha se encuentran en un estado regular (Ayuntamiento de Zapopan,2018).

73
genes 77,78,79,80,81,82
hacia abajo
a derecha)
GoogleMaps(2022).Imá-
(De arriba
y de izquierda
de perimetro de predio indicando infraestructura[Foto]. Recuperado de :GoogleMaps.com

Equipamiento Urbano:

En la siguiente figura se ilustra el equipamiento más cercano al predio en la zona circundante.

IMAGEN83SIGMETRO(2022). Ilustracióndelequipamientoexistenteconmapabasedesigmetroy equipamientorecabadodeAyuntamientodeZapopan [Figura]. RecuperadodeSigmetro.com

EspacioVerde,recreativoyabierto

Tianguis

Hospital Primaria Secundaria Preparatoria Museo Mercado Iglesia

74
H H H H H H H EV EV EV EV EV EV EV EV S P P P P P P R R M M EV

IMAGEN 84 Elaboración propia (2022). figura elaboraciónpropiaconmapabase deCadmapperindicandovialidadesenlazona.[Mapa]. Recuperado de :Cadmapper.com

El predio se encuentra rodeado por tres vialidades la principal siendo Av. Manuel Ávila Camacho y dos vialidades locales por el norte Prol. 20 de Noviembre y por el Este la calle Santa Martha. Conforme al mapa mostrado en la figura X los sistemas de transporte más importantes es la Línea 03 del tren ligero que se localiza más cercana al predio es la estación Centro de Zapopan y por la Vialidad Av. Ávila Camacho llegan las rutas de los camiones que trae a muchas personas a trabajar al centro de Zapopan como tambien en el sentido de Av. Laureles las rutas de los camiones que pasan frente al predio son las siguientes: 631, 631-A, 634, 633 Parques de Tesistán, 633 Vía 3, 633 Vía Villas de la Loma, 633 Vía Praderas, 641 Vía Cucea, 641 A Vía Belenes, 24, 275 F, 275 Vía Tonaltecas, 706 A, 163 , 275 F Nextipac (Rutas GDL, 2022).

75
Vialidades y Sistema de transporte: MOVILIDAD VialidadPrincipal VialidadColectora VialidadLocal Víatransitable Línea3delTrenLigero

Colindancias:

Como tal el predio no cuenta con colindancias en el perimetro del predio ya que la manzana completa es el lote.

En el lindero Sur del predio por la calle Juan Pablo II se tiene la línea 03 y una vialidad con solamente un carril con sentido a Aurelio Ortega así como una ciclovía. Debajo de la linea 03 se desarrolló un parque andador lineal (Ver figura X).

En el lindero Este del predio por la calle Sta. Martha se cuenta con una vialidad local con un carril de estacionamiento y otro carril con sentido hacía Prol. 20 de Noviembre y en su mayoría vivienda con dos niveles(Ver imagen X).

En el lindero Norte del predio por la calle Prol. 20 de Noviembre se cuenta con una vialidad local con un carril de estacionamiento y doble sentido y tambíen en la mayoría vivienda de dos niveles (Ver imagen x).

Imágenes 85, 86, 87 (De arriba hacia abajo) Google Maps (2022). Imágenes de colindancias de predio [Foto].

Recuperado de :GoogleMaps.com

76

IMAGEN 88 Elaboraci[on Propia(2022).Contextodelazona [Foto].

Recuperado de : Google Maps

Análisis perceptual

El área de estudio se caracteriza por ser un zona segura ya que las acciones urbanísticas realizadas por el gobierno de Zapopan en los últimos años han causado que esta zona en la ciudad crezca y se desarrolle de manera positiva.

La infraestructura en la zona ha tenido un mantenimiento importante y prácticamente se encuentra en condiciones nuevas por el proyecto que se acaba de terminar hace unos meses la Línea 03 del tren eléctrico Urbano que conecta a Guadalajara con Zapopan precisamente la estación centro de Zapopan. Agregar también que el municipio con la menor percepción de inseguridad en la Zona Metropolitana de Guadalajara de acuerdo con datos del INEGI ha sido Zapopan (INEGI, 2018).

Zapopan presenta importantes niveles de inequidad que hay que atender siendo este el principal foco de atención de la percepción en el municipio debido a la división que esta puede generar debido que la equidad esta estrechamente vinculada con el territorio y una población dividida es una sociedad sin sentido comunitario y participativa en el bienestar de los mismos habitantes.

77

Evaluación del Impacto ambiental

El impacto ambiental se define como la “Modificación del ambiente ocasionada por la acción del hombre o de la naturaleza” (Gobierno de México , 2018). El gobierno de México lo define en tres tipos el primero: El aprovechamiento de recursos naturales el segundo; Contaminación y el tercero; Ocupación del territorio que se refiere a cuando un proyecto ocupa un territorio modifica espacialmente las condiciones naturales del mismo por acciones como movimientos de tierras y compactación del suelo (Gobierno de México , 2018).

Se ha realizado un análisis del medio físico natural del área de estudio dentro de Zapopan y el proyecto considerara todos los factores que puedan afectar al proyecto y viceversa. El proyecto pretende mejorar el lugar en el que estará emplazado e impulsar acciones para la prevensión de cualquier alteración en el ambiente y lograr el objetivo de crear un entorno positivo para la población objetivo del mercado municipal en Zapopan.

Este proyecto se ubica dentro del área metropolitana de Guadalajara y no se encuentra dentro de algún tipo de riesgo latente por su geografía , sino que por el contrario está en un lugar seguro además que el proyecto tendrá en cuenta medidas para la mitigación de riesgos de carácter ambiental.

IMAGEN89BonellsE.(2022). Proyecto de Bosco Verticale visto desdeabajodiseñadoporStefanoBoeri[Foto].

Recuperado de : https://cmykarq.es/

78

IMAGEN90Gob.Zapopan (2022).ProyectosEstrategicos Plan Maestro Zapopan Central[Mapa].

Recuperado de : https:// portal.zapopan.gob.mx/pez/ plan_maestro.html

Evaluación del Impacto urbano

El impacto urbano tiene el objetivo de hacer un analisis de las influencias postivas o negativas que tiene un proyecto en la ciudad así como de que manera altera al entorno inmediato y el área donde se vaya a edificar (PAOT,2018).

El proyecto deberá de ser analizado en tres rubros que se componen de :

Prevención: De que manera previene cierto tipo de sitaución que ha venido afectando al municipio de Zapopan y de que manera el proyecto pretende que no suceda en el futuro.

Integración:Cómo se integrará a la mancha urbana creando estrategias para la cohesión del proyecto con la ciudad.

Compensación: De que manera el proyecto compensa eso que “quitó” al municipio.

Así en cumplimiento para la elaboración de un PIU proyecto de Integración urbana en el municipio de Zapopan se deben de cumplir con los requisitos solicitados por el municipio y que esten alineados con los planes parciales del desarrollo, en este caso el proyecto tomó en cuenta también la Estrategia Territorial para la prosperidad Zapopan 2030 que plantea los objetivos en distintos ambitos incluyendo el urbano. (Ayuntamiento de Zapopan, 2016)(ETZ,2016). Por lo mismo acorde a estos documentos se elaboró una tabla con las deficiencias y las acciones de mitigación que el proyecto contendrá.

79

Estrategias Urbanas de mitigación de riesgos

Es importante la identificación de los riesgos para poder responder con soluciones pertinentes a los mismo riesgos. El gobierno de Zapopan busca a través de programas identificar y apoyar una gama de usos económicos, culturales, sociales, ambientales y políticos que confluyen en una misma zona a través de programas y proyectos que ayuden a consolidar la centralización para el bienestar de los habitantes.

El Plan Maestro de Zapopan tiene como objetivo hacer del centro histórico de Zapopan y sus alrededores un lugar para vivir, trabajar y visitar. Proteger la identidad de los ciudadanos y la conciencia de sus raíces y la cultura local mediante la introducción de nuevos equipamientos culturales, recreativos, comerciales y recreativos que aseguren la integración social y sean un ejemplo en la ZMG.

Es la creación de valor agregado protegiendo a los residentes, turistas, comercios y complementando la oferta cultural, comercial y de servicios existente para que más personas puedan disfrutar del valor de Zapopan (ETZ2030, 2020)

A través de estos objetivos planteados se implementaran las siguientes estrategias para poder moderar los riesgos que actualmente existen en Zapopan.

•Alumbrado Público alrededor del predio

•Fácil Acceso

•Movilidad Universal

•Parada de camión de tamaño optimo y ubicación optima

•Balizamiento Visible

•Mantenimiento de Ciclovía

•Creación de áreas verdes y mantenimiento de las mismas

•Flujo constante de habitantes en el equipamiento.

•Botones de auxilio y camaras de Seguridad.

80
IMAGEN91Elaboraciónpropia(2022).MitigaciónderiesgosUrbanos[Render].

Estrategias Ambientales de mitigación de riesgos

El gobierno de Zapopan tiene objetivos previamente planteados y así tomar acciones que se propone en el Programa municipal para la acción ante el cambio climático del Municipio de Zapopan 2020 para educar y comunicar a través de una estrategia de gestión y rendición de cuentas del programa planeado con el objetivo específico de reducir las emisiones de gases de efecto invernadero. Preparándose para los efectos del calentamiento global y el cambio climático Zapopan intenta aumentar el acceso a la energía sostenible y asequible según se vaya pudiendo implementar medidas pertinentes.

El plan fue desarrollado de acuerdo con la Visión 2030 y los Planes municipales de zonificación y ordenación del territorio. Por lo tanto, ambos instrumentos se complementan y hacen de la ciudad un referente en sostenibilidad y bienestar para prevenir el cambio climático (ETZ2030,2020) (Gobierno de Zapopan 2020).

Así las estrategias ambientales de mitigación de riesgos se apegan a estos documentos pretendiendo cumplir con los requerimientos que tendrán un impacto positivo en los habitantes y futuros compradores y vendedores del mercado.

•Creación de áreas verdes con vegetación endémica

•Sistemas de captación de agua

•Sistema de alarma y evacuación por terremoto

•Limpieza de alcantarillado y cunetas

•Longitud y capacidad a las redes de drenaje

•Uso de sistemas bioclimáticos, pasivos y sustentables

•Implementación de Puntos limpios

81
IMAGEN92Elaboraciónpropia(2022).MitigaciónderiesgosAmbientales[Render].

Tabla de mitigación de riesgos

Tabla 93 Elaboración propia(2022).Mitigaciónderiesgos[Tabla].

82
83

CAPÍTULO IV PROPUESTA

METODO:

El desarrollo de información del siguiente capítulo se hizo a través del método de investigación documental el cuál se desarrolla a partir de la consulta de distintos documentos como libros, revistas, periódicos, y registros.

En el apartado de la función se hizo referencia a otros apartados previamente mencionados en el documento como la investigación documental y los ejemplos análogos previamente consultados.

En el apartado de el requerimiento bioclimático se uso el programa Climate consultant 6.0 que nos ayuda a conocer y proponer estrategias para el proyecto. Por último para el desarrollo del concepto se utilizaron herramientas como AutoCAD, Photoshop , Sketchup.

FUNCIÓN:

El siguiente apartado pretende explicar de manera gráfica y sintetizada el programa arquitectónico, las vinculaciones a partir de un diagrama de Venn y el dimensionamiento de cada uno de las dependencias.

IMAGEN 93 Gobierno de Zapopan (2022). Proyectos EstratégicosPlanMaestroZapopanCentral[Imagen].

Recuperado de : https:// portal.zapopan.gob.mx/pez/ plan_maestro.html

84

PROGRAMA ARQUITECTÓNICO:

ZONA EXTERIOR

Plaza de Acceso Área de estacionamiento Público Punto Limpio Área de deposito de Basura

ZONA DE SERVICIOS EXTERIORES

Patio de Maniobras Área de carga y descarga

ZONA DE ALIMENTOS

Cafés Orgánicos Desayunos Gluten Free Desayuno Veganos Desayuno Vegetariano Alimentos libres de Azucares Conservas deshidratadas

ZONA DE ADMINISTRACIÓN Secretaría y sala de espera Sala Privado y Administrador Contabilidad y control Oficinas Baños

ZONA DE SERVICIOS INTERIORES

Cuarto de Maquinas Área de suministros Oficina de Supervisor Área de bodega seca Área de Sanitarios Públicos Área de preparación (Lavado de vegetales) Anden de Carga/Descarga Área de estacionamiento Público Área de circulación Áreas verdes y espacio Libre interior

ZONA DE LOCALES

ZONA DE PASAJE

Zona de mesas Flores y plantas

Locales de productos a Granel Locales de productos Biodegradables Locales de productos Compostables Locales de productos Veganos Locales de productos Reciclables y Reciclados Locales de productos Orgánicos Locales de productos Cero huella de Carbono Locales de productos Cruelty Free Locales de productos hechos a mano Locales de productos Reciclarte Sala de preparación Locales de Abarrotes Ecológicos Locales de Lácteos Estantería de verduras y frutas Camara de congelados y carne Cámara de refrigeración y fruta Camara de congelados Gral. Cajas electrónicas Expositor Frigorífico Expositor de congelados Sección de carritos de compra y canastas

85

DIAGRAMA DE VINCULACIONES:

El diagrama de vinculaciones nos ayuda a entender claramente algo y darnos una idea de como será la solución espacial al problema planteado.Para el siguiente organigrama con ayuda del programa arquitectonico se escribieron los espacios que el mercado contendrá y como sería la relación más óptima de los mismos. En la figura X se realizo un diagrama de vinculaciones del Mercado municipal de Zapopan así como su relación con los espacios dentro del mismo y como esta organización ayudaría a la correcta construcción y funcionamiento de los mismos. El diagrama se realizó con la ayuda de la herramienta virtual Lucidchart.

DIAGRAMA01Elaboración Propia (2022). Diagrama de vinculaciones en el mercado municipal de Zapopan (Diagrama)

Conlaayudadelaherramienta obtenida de : Lucidchart.com

86

IMAGEN 94 (Aresta M., 2015)

Morfología de la vivienda en función del clima y del lugar (Imagen) recuperada de: Libro Arquitectura Biológica la vivienda como organismo Vivo.

DIMENSIONAMIENTO:

En el anexo X se encuentra la tabla de dimensionamiento. El dimensionamientoincluyeelvalornúmericodadoenunidadesdemedidaapropiadas para poder entender el espacio que se esta proponiendo y un estimado del área. El estimado del área es dado por medidas preliminares dadas en reglamentos del municipio, reglamentos de seguridad o bien medidas antropológicas con criterios base para el espacio. Es decir para el dimensionamiento del mercado se tomaron las normas de Sedesol para el criterio del espacio de los locales (SEDESOL, 1999) y así sucesivamente. Para el diseño y la planeación de la cantidad de metros cuadrados a edificar y cada espacios se utilizaron las normas de control de edificación de Equipamiento propuestas por Sedesol así obteniendo un coeficiente de ocupación del suelo (C.O.S.) del 60% lo que es equivalente a 3072 metros cuadrados de construcción y un coeficiente de utilización del suelo (C.U.S.) del 60% que es igualmente 3072 metros cuadrados, por lo que la construcción considerando esto se hizo el dimensionamiento.

ANÁLISIS DE REQUERIMEINTOS BIOCLIMATICOS:

El ser humano tiene una temperatura interior de 37° C y una cutánea de 35° C por lo que partiendo de estas premisas podemos analizar como el ser humano se autorregula, y sucede a partir de cuarto procesos: radiación, convección, conducción y evaporación a través de la piel así cuando estos procesos son realizados en condiciones eficientes y óptimas con el mínimo gasto de energía, se puede experimentar una sensación de confort térmico A todo esto el diseño bioclimático tiene como propósito equilibrar térmicamente los espacios de los que se integran un proyecto para de esta manera evitar la perdida de calor en invierno y el sobrecalentamiento en verano (Aresta M., 2015).

Para poder llegar a las estrategias bioclimáticas se hizo un análisis con la ayuda del programa Climate consultant 6.0 y a través de la estaciones meteorologicas ubicadas en el municipio de Zapopan que han recabado información por 38 años se llegó a la siguiente carta bicolimática que nos indica cuales pueden ser las estrategias más adecuadas para el proyecto.

87

DIAGRAMA BIOCLIMÁTICO DE GIVONI

El siguiente diagrama bioclimático parte de la premisa que la edificación tiene un efecto directo sobre el ambiente interno de la edificiación y se interpone entre las condiciones exteriores e interiores y el objetivo fundamental es que a través de diversas variables que influyen en el clima dentro de la edificación podamos obtener estrategias bioclimaticas adecuadas al clima de Zapopan. En el diagrama se distinguen unas zonas asociadas a sus respectivas tecnicas bioclimatas las cuales nos permitiran alcanzar la zona de confort. En la parte inferior podemos identificar la temperatura de bulbo seco y también tenemos un conjunto de lineas curvas que nos indicaran los datos de humedad relativa. La zona de confort por definición es aquella que tiene cierto rango de temperatura y humedad relativa que propicia que el cuerpo humano requiera el mínimo gasto de energía para ajustarse al ambiente, en esta zona no se necesita ninguna estrategia térmica para la obtención del bienestar.

A través de esta herramienta se buscó tener la mayor cantidad de horas 8760 horas al año en el confort térmico admisible siendo que aún así con el clima de Zapopan ya se tienen 1430 horas el 16.3% en confort térmico sin embargo con las siguientes estrategias se pretende alcanzar el 100%.

IMAGEN 95 Climate consultant 6.0 (2017) Carta de Givoni (Diagrama)

88

IMAGEN 96 Climate consultant 6.0 (2017) Carta de Givoni con estrategias Bioclimáticas(Diagrama)

POTENCIAL BIOCLIMÁTICO:

Las estretegias de diseño son para mantener el confort térmico ,sin embargo no todos los métodos usados son amigables con el medio ambiente de tal manera que los metodos seleccionados en su mayoría son metodos pasivos que tienen que ver directamente con el Sol y su incidencia en el proyecto. Es importante iniciar con las estrategias de diseño y prescindir del mínimo el uso de tecnologías sofisticadas y recursos energéticos y valernos de lo básico. Asumiendo que el total de horas en el año se quiere tener el confort térmico se propusieron las siguientes estrategias:

-Protección solar de Ventanas -Masa Térmica -Masa Térmica de Noche -Enfriamiento evaporativo Directo -Refrigeración por ventilación natural -Refrigeración por ventilación natural a través de ventilador -Ganancia de calor interna -Energía solar Pasiva -Deshumidificación -Calefacción

89

Ejemplos de estrategias Bioclimáticas

De acuerdo al análisis de los requerimientos bio climáticos para el municipio de Zapopan es controlar la cantidad de luz debido que esta significa calor y mientras más luz incide en el proyecto más calor hace, así también como en los meses más fríos mantener el calor, pero para eso primero se debe de aislar y tener un buen aislamiento en paredes, techos y pisos. A continuación en las siguientes imágenes se ilustran los diferentes tipos de estrategias utilizadas.

PATIOS CENTRALES

Tener patios con una buena sombra con una fuente ayuda a la ventilación del proyecto, así como humedificar el mismo.

ESTRUCTURA LIGERAS

Una losa sobre el terreno es un tipo de cimentación poco profunda en la que una losa de hormigón descansa directamente sobre el suelo debajo de ella.

TECHOS PLANOS

Los techos planos funcionan bien en climas secos y calurosos especialmente si estan pintados de colores claros.

PARASOLES

Los voladizos de las ventanas (diseñados para esta latitud) o los parasoles operables (toldos que se extienden en verano).

CIRCULAR EL VIENTO

Epecialmente en el mes de Mayo es necesario tener ventiladores o algún tipo de tecnología que ayude a la circulación del viento, incluso puede llegar a bajar la temperatura dos grados.

IMAGEN97-101(Dearriba haciaabajo)Climateconsultant6.0(2017)Imágenesde estrategiasparaelconforttér-

90

IMAGEN102-105(Dearribahaciaabajo)Climateconsultant 6.0 (2017) Imágenes deestrategiasparaelconfort

PROTECCIÓN SOLAR POR MEDIO DE VEGETACIÓN

Evitar el calentamiento por medio de la protección solar tanto en fachadas, a través de vegetación y de la elección de colores claros.

SELLADO HERMÉTICO

El sellado hermético evita la perdida de calor y la ganancia de calor de las luces, las personas y los equipos reduce en gran medida las necesidades de calefacción, por lo tanto, mantener el edificio en los meses de Diciembre a Febrero de una manera que se pueda cerrar sin necesidaded de tener calefacción.

VENTILACIÓN CRUZADA

Tomando en cuenta el análisis del viento proponer una orientación de la edificación que corresponda a los flujos del viento en el municipio de Zapopan de Este a Oeste y viceversa así ubicando las aberturas de puertas y ventanas en lados opuestos del edificio con aberturas más grandes orientadas contra el viento si es posible.

VENTILACIÓN PASIVA

El aire caliente tiende a subir y para producir ventilación de chimenea, en los meses más calientes incluso cuando la velocidad del viento sea baja, maximizar la altura vertical entre la entrada y la salida de aire para obtener una circulación optima del aire.

91

CONCEPTO

Para el concepto del “Mercado orgánico y ecológico del municipio de Zapopan” se tomo como premisa el rigor geométrico, así como conceptualmentemente los espacios que encontramos en la naturaleza biológica, habitados por otros seres vivos y como otros animales a partir de los elementos que encuentran en la naturaleza logran proveerse eso que necesitan refugio y protección. A través del proceso de observar, entender y aplicar soluciones procedentes de la naturaleza a los problemas humanos, en forma de principios bioclimáticos, y que correspondan a los problemas y necesidades humanas planteados anteriormente.

Forma

La forma busca un equilibrio entre la estética que exige una obra, el espacio que se adecúe al ser humano que lo habita, la estructura durable, la energía que se optimiza y se renueva, todo esto con un proyecto que permita hablando en terminos economicos materializar. El diseño servirá como traductor entre las geometrías de la naturaleza y el proyecto arquitectónico. La eficiencia espacial es lo que se busca en una primer aproximación.

IMAGENXus,C.cientiae cres hosAn previribem perbit, cum horum, Patquemur quemul conteri senis viumus restari publicae tem o consultilicibuluremomnenotior acipienam in teris conerib erbenih iliquid etrit, quitum hos adhuit deme init fatu-

IMAGEN 106 Elaboración propia (2022).Diagrama de forma[Render].

En la imagen 106 se elaboró un diagrama que explica como a través de un volumen se segmenta, y a través de la elevación de la techumbre se logra proponer una forma que cumpla con las necesidades principales del proyecto que son; proteger, ventilar e iluminar.

92

IMAGEN 107 Elaboración propia (2022).PLANTA DE CONJUNTO[Render].

Envolvente

La forma depende directamente del entorno y también la envolvente. Uno de los grandes atractivos de los materiales naturales y de la construcción es precisamente el diseño y materialización de morfologías orgánicas con referencia a la naturaleza biológica.

En la imagen X las formas orgánicas que envuelven el proyecto intentan responder a la naturaleza y de esta manera a la vegetación que esta tendrá.

93

Estructura

En cuanto a la estructura se optó por una armadura de Abanico que este diseñada para soportar el peso del techo y así de esta manera poder tener grandes claro que ayuden a la distribución arquitectonica del mercado y pocos nodos en los cuales caeran el peso muerto de la estructura. Además las armaduras tienen un menor costo por metro cuadrado en la losa y en la ejecuación de obra, ya que no se necesita de mucha mano de obra para la construcción de la misma. Las armaduras se pueden construir en distintos tipos de materiales como: madera, acero y concreto armado siendo otra ventaja competitiva ante otros tipos de techumbres. (Coello A. , 2015)

IMAGEN 108 (2022).ARMADURATIPOENABANICO [RENDER]. Obtenido de: https://ingenieriareal.com/armaduras-techo/

Simbolismo

La importancia del Zapote en Zapopan viene desde un pictograma Náhuatl que representaba el árbol con una bandera a su costado. El nombre de Zapopan viene de ahí “lugar poblado de zapotes” (SEIGJal,2010) . De esta manera quieriendo retomar la fauna silvestre de Zapopan el proyecto prentende a través del paisajismo implementar este tipo de Árbol que es nativo de este lugar.

IMAGEN109y110(2022) ÁrboldeZapoteNativodeZapopan Obtenidode:https:// iteso.mx/web/general/detalle?group_id=19351125

94
95

CAPÍTULO V PROYECTO

METODO:

En el siguiente capítulo se elaboraron los gráficos pertinentes contemplando los apartados anteriores, para la expresión del partido arquitectónico.

Los gráficos se elaboraron tomando en cuenta la orientación del sol , del viento, así como el contexto en el que se emplaza el proyecto y con las herramientas virtuales de Autocad, Sketchup y Lumion se crearon los diagramas elaborados en el siguiente capítulo.

IMAGEN 107 Elaboración propia (2022). Isométrico [Render].

IMAGEN 108, 109, 110 Flaticon(2022).[Iconos].Obtenidosde:Flaticon.com

1.

Trazado en AutoCad

Se hace el trazado en vectores así como las lineas guía del modelado.

2. Modelado en SketchUp

Se hace un modelado en tres dimensiones para poder entender de mejor manera el espacio y la volumetría.

3. Renderizado en Lumion

Se hace un renderizado con estilo personalizado de lo que se quiere mostrar para una mejor comprensión.

96

PARTIDO ARQUITECTÓNICO:

Se elaboró un partido arquitectónico con medidas base para poder entender el espacio y los modulos dibujados. Se contemplaron los espacios de la zona exterior, zona de servicios exteriores, zona de servicios interiores, zona de alimentos, zona administrativa y la zona de locales contemplando cada local con 16 metros cuadrados y aproximadamente 80 locales comerciales.

IMAGEN 111 Elaboración propia(2022).Plantaconceptual[Render].

97

PLANTA DE CONJUNTO:

Se elaboró una planta de conjunto que ilustra como se emplaza el proyecto en el predio remetiendo la construcción 10 metros para así de esta manera poder generar una banqueta amplia que sirva como espacio público además de combinarlo con áreas verdes e integrar el proyecto con el contexto existente.

IMAGEN 112 Elaboración propia(2022).Plantaconjunto[Render].

98

VOLUMETRÍA

IMAGEN 113 Elaboración propia (2022). Isométrico [Render].

En cuanto a la volumetría propuesta se optó por un volumen que no fuera constrastante con el contexto existente y que no generara sombras en las viviendas colindantes al predio, por lo que la altura no sobrepasa los 5 metros de altura apegandonos a la normatividad existente.

99

PERSPECTIVAS

La imagen 114 muestra el ingreso lateral peatonal por la avenida Juan Pablo II y su relación con el exterior así como la estructura ligera y el fácil acceso al mercado.

IMAGEN 114 Elaboración propia(2022).PerspectivaExterior[Render].

100

IMAGEN 115 Elaboración propia(2022).PerspectivaExterior[Render].

La imagen 115 muestra la perspectiva en el cruce de las calles Av. Juan Pablo II y la calle 20 de Noviembre mostrando como se vería el proyecto volumetricamente. Esta perspectiva muestra como se vería el proyecto si los visitantes vinieran desde la línea 03 desde la estación de Zapopan Centro.

101

La imagen 116 ilustra la accesibilidad universal y como el proyecto se emplaza sobre un solo nivel así haciendo mucho más sencillo la integración del proyecto a la sociedad.

IMAGEN116 Elaboración propia(2022).PerspectivaExterior[Render].

102

SECCIÓN

IMAGEN 117 Elaboración propia(2022).PerspectivaExterior[Render].

La imagen 117 muestra la relación del proyecto con el exterior del mismo contexto existente y como las personas dentro del proyecto se relacionan con el exterior. La sección muestra de manera conceptual los tres elementos más importantes que constituyen al proyecto la estructura liviana, el muro y los taludes exteriores junto con la vegetación.

103
104
105
ANEXOS TABLA DIMENSIONAMIENTO
TABLA COMPARATIVA DEPENDENCIAS

TABLA COMPARATIVA EJEMPLOS ANÁLOGOS

MATRIZ DE SELECCIÓN DE PREDIO

TABLA DE NORMATIVIDAD

BIBLIOGRAFIA

115
116

Turn static files into dynamic content formats.

Create a flipbook
Issuu converts static files into: digital portfolios, online yearbooks, online catalogs, digital photo albums and more. Sign up and create your flipbook.