SACSAYHUAMÁN

Page 1

LA

DEL
FLORES
JAZMIN CELINE PAYANO
NICOLLE
FORTALEZA DE SACSAYHUAMÁN REALIZADO POR: AYRA MARTINEZ, JESSICA
AGUILA LAZARO, MARISABEL
TUNANTE,
MORA,
DIGITAL DEL SITIO
POR:
Jessica
UNIVERSIDAD CÉSAR VALLEJO Facultad de Arquitectura CÁTEDRA: Mg. Arq. Acevedo Colina, Sheila ASIGNATURA: Abstracción de la Arquitectura Peruana GRUPO: 4 2022-I
PORTAFOLIO
ARQUEOLÓGICO SACSAYHUAMÁN PREPARADO
Ayra Martinez,
Del Aguila Lazaro, Marisabel Flores Tunante, Jazmin Celine Payano Mora, Nicole Nelly
INTRODUCCIÓN 4 1 HISTORIA 6 2. DATOS ARQUITECTÓNICOS 7 2 1 Ubicación 2 2 Características 2.3. Elementos ornamentales 3.ANÁLISIS ARQUITECTÓNICO 10 3 1 Composición 4.TECNOLOGÍA DE CONSTRUCCIÓN 12 4 1 Construcción 4.2. Diseño 4.3. Materiales y herramientas de construcción 4.4. Los torreones CONCLUSIONES 17 ANEXOS (INFOGRAFÍA) 18 BIBLIOGRAFÍA 20 ÍNDICE

INTRODUCCIÓN

Para examinar e interpretar este complejo se necesita considerar la organización Se entiende por organización a las pruebas de jerarquización usadas en diferentes puntos, como arquitectónico y social, donde se solían realizar las ocupaciones diarias Asimismo, uno de los complejos arquitectónicos más imponentes heredados de la Sociedad Inca es justamente Saqsayhuaman, que gracias a algunas de sus cualidades es considerado como uno de los superiores monumentos que la raza humana construyó en el área de la tierra.

Una vez que los colonizadores españoles llegaron primero a estas tierras; no podían explicarse cómo los "indios" de Perú podrían haber construido tal grandeza Su fanatismo religioso los llevó a creer que todo aquello era sencillamente trabajo de demonios o espíritus maliciosos Y esa creencia perdura hasta el día de hoy, muchas personas creen en la incapacidad de los antiguos quechuas para producir tal maravilla, pues creen que fueron hechos por seres de otros universos, seres extraterrestres con tecnología preeminente que hicieron todo lo viable

El centro arqueológico de Sacsayhuaman es un misterio hasta esta época, por otro lado, Antonio de la Calancha en 1635 al referirse a esta fortaleza en el Cusco, dice: «Los incas construyeron un camino por abajo, terrestres, de más de 10 cuadras, todo labrado que comunicaba esa fortaleza con el santuario del Sol» Asimismo, Garcilaso de la Vega en 1609 explica que era: «Una red de pasajes subterráneos, tan extenso como las propias torres que estaban todos conectados, el sistema era compuesto de calles y alamedas partiendo en cada una de las direcciones, cada una de con puertas idénticas»

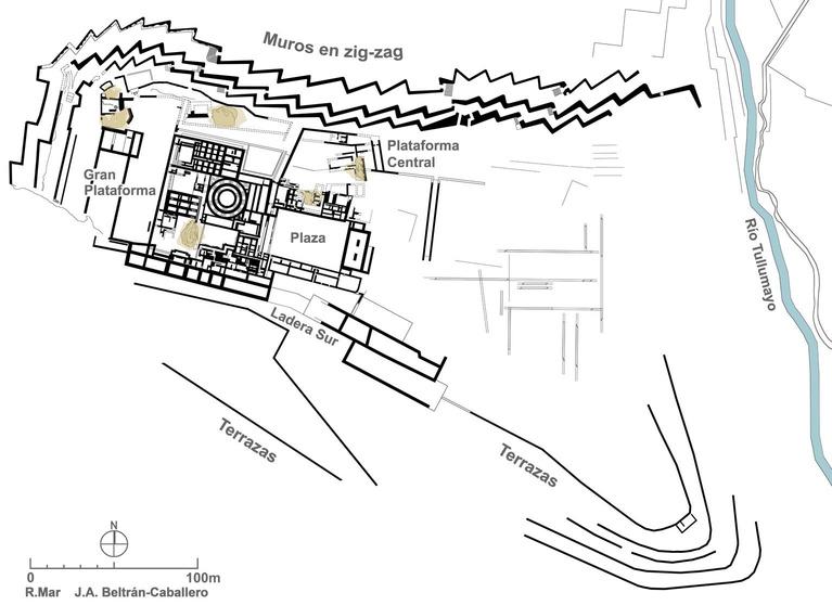
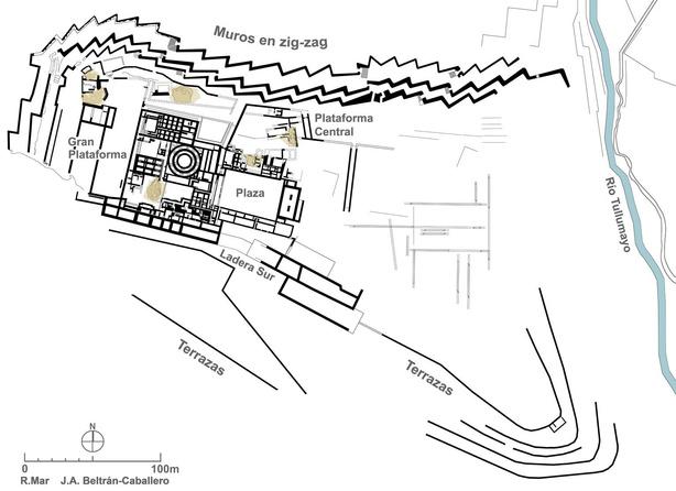
Las propiedades primordiales de este complejo arqueológico son la manera de repartición y localización que va conforme a la arquitectura y el paisaje, donde esta está determinada por muros en zig zag paralelos en 3 niveles y conteniendo en ellos recorridos subterráneos

No obstante, nuestra historia y arqueología demuestran que aquellos objetos de admiración son un trabajo innegable de los incas, los quechuas, los pueblos andinos o sea como sea, se nombraría a los pobladores prehispánicos de este rincón de todo el mundo

SACSAYHUAMÁN PÁGINA | 04

LA FORTALEZA DE SACSAYHUAMÁN

SACSAYHUAMÁN

Sacsayhuamán es una de las edificaciones más extraordinarias del incanato El término Sacsayhuamán, en quechua saqsay, significa “lugar donde se sacia el halcón” El nombre seguramente se debe a la presencia de estas aves

Historia

Su construcción inició durante el gobierno del noveno inca Pachacútec en el siglo XV, esta construcción duró alrededor de unos 50 años, y fue en el periodo de Huayna Cápac que se culminó (siglo XVI)

Se piensa que fue necesaria la mano de obra de más de 20 mil hombres procedentes de diversas partes del imperio Fueron 4 mil de ellos los que se encargaron de la extracción y tallado de las piedras, 6 mil las transportaron con ayuda de gruesas cuerdas de cáñamo y cuero, el resto excavó el foso y sentó los cimientos, mientras que otros cortaron palos y travesaños para los armazones de madera

Sacsayhuamán por su arquitectura corresponde a una fortaleza militar, en donde se entrenaba a los guerreros o también, pudo haber sido construido para un fin religioso como un gran templo templo al Dios Sol Sin embargo, durante la época de la conquista, mostró su eficacia como fortaleza para defender la ciudad

PÁGINA | 06 SACSAYHUAMÁN
Fig 1: Fortaleza de Sacsayhuamán a 4 km de plaza principal del Cusco Fig 2: Celebración inca en Sacsayhuamán Fig 3: Ceremonia inca en Sacsayhuamán

DATOS ARQUITECTÓNICOS

Se encuentra ubicado a 2 kilómetros de la ciudad del Cusco, a 3,700 m s n m

Ubicación

El conjunto arquitectónico logra mezclarse con la naturaleza del entorno, se

Características

Simetría: sus construcciones parten desde su eje simétricamente

Monumentalidad: es generada por la inmensidad de las piedras con las que se construyó, y por lo grande que es a comparación de la escala humana

Sencillez: carece de decoraciones complicadas, pero aun así tiene alto impacto visualmente.

Solidez: por las enormes piedras unidas fijamente sin necesidad de algún material externo

Armonía: se fusiona armónicamente con la naturaleza

SACSAYHUAMÁN PÁGINA | 07
Fig 4: Ubicación de la fortaleza de Sacsayhuamán Fig 5 : Fortaleza de Sacsayhuamán

Cortes

Monumentalidad

Armonía Solidez

En estos cortes pueden llegar a apreciar mejor las características ya mencionadas

La arquitectura generada en sacsahuaman se adapta al terreno debidoa la visión cosmológica del mundo

La orientación de el área en zig zag produce un juego de luz y sobra intercalado en la fortaleza

Sencillez

Escala y Proporción

5M SACSAYHUAMÁN PÁGINA | 08
6M Las dimensiones de las piedras llegan hasta 5m de alto y 2 50 de ancho el peso de las piedras esta en el rango de 90 a 120 tns
6:
de
7: Piedras
8:
Fig
Cortes de Fortaleza
Sacsayhuamán Fig
de Fortaleza de Sacsayhuamán Fig
Estructura de Fortaleza de Sacsayhuamán
Simetría

Elementos Ornamentales

Iconografía: los bastiones poseen una forma en zig zag, formadas para representar al dios Illapa, el cual se constituye en tres elementos: el rayo, el trueno y el relámpago

Símbolos: En las rocas de los muro pueden identificar que los incas al mom de unir las rocas formaron diversos símb de animales característicos de esas zonas

HANA PACHA (ARRIBA) KAY PACHA (MEDIO) UKJU PACHA (ABAJO)
SACSAYHUAMÁN PÁGINA | 09
PUMA SERPIENTE Los tres bastiones representan los tres niveles del mundo religioso andino Fig 9: Bastiones de Sacsayhuamán Fig 10: Bastiones de Sacsayhuamán (cada nivel repr Forma de Llama Forma de Puma Fig 13: Muro con el símbolo del Puma Fig 12: Muro con el símbolo de la garra del Puma CÓNDOR

Composición

Caminos formando subterráneos y labrados pasajes

No se necesito ningún material para la unión de las piedras

Se hace uso de piedras y arcilla rojiza para la cimentación

SECTOR RELIGIOSO

Plantas cuadriculadas con subdivisiones que servía para los guardias del complejo Existen pasadizos subterráneos que servían de unión para las torres

Parte de las piedras son de Huaqoto y Rumiqolqa

Su forma cuadrada permitía observar desde su interior a través de sus ventanas todo Cusco

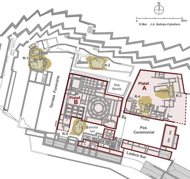
I I I I I I I I I I I I 4 3 2 1 7 6 5 I I I I I I I I I I I I I I I 3 13 1 2 11 5 4 12 I I I I I I I I I I I I I I I I I I I I I I I I I I I I I I I I I I I I I I I I I I I I I I I I I I I I I I I I I I I I I I I I I I SACSAYHUAMÁN PÁGINA | 10 ANÁLISIS ARQUITECTÓNICO
LEYENDA 1 Patio 1 2
3 Vest 4 Patio 2 5 Plaza ceremonial
Plaza romboidal
Fig
14: Fortaleza de Sacsayhuamán
1. Muros zig zag 2. Explanada de Chukipampa 3 Torreón Muyumarca 4 Torreón Paucamarca 5 El Rodadero 6 Puerta Rumi Punku SACSAYHUAMÁN PÁGINA | 11
La obra empleada en su arquitectura inca es la técnica de escala más grande, haciendo uso en las esquinas bloques de rocas que servían como columnas para ser sismorresistentes
DATO
Dentro de su arquitectura se caracterizó por contar con extraordinarias obras, entre ellas se encuentran:
Fig 16: Bastiones de Sacsayhuamán Fig
15:
Fortaleza de Sacsayhuamán

TECNOLOGÍA DE CONSTRUCCIÓN

Construcción

Sacsayhuamán es una edificación con enormes piedras talladas y colocadas con una precisión asombrosa La tecnología antigua usaron los incas para construirla fue un completo enigma

La construcción en sí es algo fuera de lo común, ya que algunas de las piedras que se encuentran ahí son gigantes y rodeadas con el enigma de como es que fueron transportadas

Características

La construcción es típica de la arquitectura inca, aunque es el lugar donde esta técnica se usó a mayor escala

Este santuario posee muros megalíticos, citadelas y cámaras subterráneas

El método de su construcción es enigmático pero demuestra la maestría arquitectónica de los incas

La fortaleza contiene el Muyuqmarka («Ojo del jaguar»), una hipnótica edificación con muros circulares concéntricos

Lo más llamativo arquitectónicamente son los tres largos muros construidos con piedras gigantescas

Algunas alcanzan los 9 metros de altura y llegan a pesar entre 120 y 300 toneladas, aproximadamente

Medición de los cortes de las piedras

Según estudios, las piedras mas pequeñas se transportaron arrastrándose sobre suelos naturales preparados y las más pesadas se movieron sobre ''trineos'' de madera

Las piedras fueron encajadas con una precisión casi inimaginable También hay especie de toboganes o llamados rodaderos de piedra

SACSAYHUAMÁN PÁGINA | 12
1 2 3 4 5 6
Fig 17: Muyuqmarka (Ojo del jaguar)
15:
Fig
Piedras
gigantes de Sacsayhuaman Fig 16: Bloques de piedra de las ruinas del Inca

En los espacios vacíos entre las piedras, los ingenieros incas colocaban tablones de madera, para formar un modelo o armazón (esto tenía que estar muy bien medido) Este armazón de madera entonces se llevaba a la siguiente roca para que ésta fuera cortada con las medidas exactas Los albañiles entonces la tallaban con los cortes precisos que se necesitaban para los espacios vacíos de los muros

Sacsayhuamán demuestra el muy desarrollado nivel de intuición e ingeniería que poseían los incas Su método de construcción fue impecable, aunque necesitó mucha cautela, además de una numerosa mano de obra (y su buen tiempo, ya que tomó 50 años, aproximadamente)

Diseño

El glorioso diseño de una inmensa fortaleza

La estructura esta constituida por una estrecha murallas a base de piedras megalíticas, un recinto interno que incluye un templo y un conjunto de torreones A pesar de que más de la mitad de la edificacion se daño con el paso de los años, los restos i d d i

Bloques superpuestos con extraordinaria exactitud

Lo que llama mucho la atencion es la precisión con que las rocas están colocadas una sobre otra En la superficie del complejo emplearon rocas de hasta 9 metros de altura, finamente superpuestas sobre otras dibujando líneas rectas perfectas Bloque por bloque fueron precisamente encajados sin la utilidad de un mortero

SACSAYHUAMÁN PÁGINA | 13
Fig 16: Pasos del proceso de medición y cortes de las piedras Fig 21: Mecanotecnia: Ingeniería de los Incas Fig 18: Las murallas de Sacsayhuaman

Sacsayhuamán contaba con puertas y torres

Sacsayhuamán contaba con diversas zonas de acceso que comunicaban los distintos niveles a través de escalera

Puerta de Tiu Punco (tiu significa arena)

Puerta de Acahuana Puncu

Puerta de Huiracocha Puncu (en honor al dios Huiracocha)

Torre de Cahuide

La Torre de Muyumarca más conocida como la torre de Cahuide, tenía forma cilíndrica, gracias a la información contenida en las crónicas y a excavaciones posteriores, sabemos que se habría tratado de un edificio de cuatro cuerpos superpuestos El primer cuerpo habría tenido una planta cuadrada; mientras que los tres últimos habrían tenido forma cilíndrica Muyu Marca debió alcanzar una altura total de 20 metros

Entre las torres de Muyu Marca y Sallac Marca existió una plaza alargada desde donde se tiene actualmente una magnífica vista de la Ciudad del Cusco

En la terraza más alta de todo el conjunto se puede observar una poza circular, que pudo ser un reservorio de agua, y un edificio rectangular de una sola puerta

En el extremo sureste del complejo se pueden observar andenes curvos y dos alineamientos de colcas

En conclusión, en la totalidad de Sacsayhuaman hay rastros de un sistema muy bien estructurado de aprovisionamiento de agua para sus habitantes en aquella época, así como un sistema de drenaje del agua de las lluvias

SACSAYHUAMÁN PÁGINA | 14
2 3
1
Fig 19: Puerta de Sacsayhuaman Fig 25: Fotos de Muyucmarca Fig 20: Ubicación de las torres de Sacsayhuaman

Materiales y Herramientas de Construcción

La piedra es el elemento predominante en la construcción del conjunto arquitectónico

Las piedras más usadas para la construcción eran la andesita, diorita y caliza

La piedra cuarcita, granito o basalto eran las empleadas para ser labradas

Para subir o bajar bloques de piedra se construyeron rampas o planos inclinados La roca se cortaba en la cantera de forma tosca con la forma aproximada requerida Luego era arrastrada con cuerdas por cientos de hombres hasta el lugar de construcción donde se le daba el tallado definitivo Para ello emplearon:

SACSAYHUAMÁN PÁGINA | 15
Piedra cuarcita Piedra granito Piedra basalto Piedra andasita Piedra diorita Piedra caliza Cincel de bronce Hacha de cobre Martillo de piedra Fig 27: Puerta de Sacsayhuaman

Los Torreones

Los torreones están ubicados sobre los muros en zigzag Son denominados Muyucmarca, Paucamarca y Sallaqmarca Se sabe que en este lugar había abundante agua

Muyucmarca

Conocida también como ‘La torre de Cahuide’ Se trata de un enorme edificio (hoy solo queda la base) con un valor histórico importante Ya que el general inca Titu Cusi Huallpa saltó desde la parte más alta para no caer prisionero por los españoles durante la resistencia inca de 1536

Paucamarca

Los restos de esta torre se ubican al este del recinto arqueológico Según los cronistas, servían para guardar agua Actualmente está cubierto de tierra y es probable que tuviera una forma cuadrada

Sallaqmarca

Los restos de este torreón se ubican al centro de Sacsayhuaman. Se intercomunicaba con las demás torres por túneles Actualmente solo quedan los cimientos de los torreones, pues durante la colonización fueron destruidos por los españoles

SACSAYHUAMÁN PÁGINA | 16
Fig 28 : Muros zigzag de Sacsayhuamán Fig 29: Ciudad de Sacsayhuamán Fig 30: Ciudad de Sacsayhuamán en planta Fig 31: Ciudad de Sacsayhuamán en planta

CONCLUSIONES

En conclusión, el presente informe trata de abarcar todos los aspectos respecto al complejo de Sacsayhuaman Aquí abarcamos mas que todos el aspecto arquitectónico y todo lo que tenga relacion a como esta estructurado En cuanto a las características se puede deducir que el lugar en donde se encuentra el recinto se enlaza con la adoración al sol en todo momento debido a su altitud y es por esa razón que se puede observar con detenimiento la puesta de sol Con respecto a la arquitectura dada en este complejo, es una muy solida, simétrica, monumental y a la vez sencilla, por lo que se hace muy vistoso sus grandes muros, sus detallados componentes gracias a su anchura y altura

Así, en base a la información del complejo brindada por diferentes paginas web confiables, analizamos de una manera profunda la estructuración y dentro de ella, su construcción, su composición, su tecnología constructiva, su diseño, sus materiales de construcción, sus elementos ornamentales, etc Su principal característica es la forma en que fue construida ya que cuenta con grandes bloques de piedra, alcanzando los más altos los 9m

Gracias a este informe queda mas que claro que este centro histórico, será una de las representaciones que mas nos muestran como la arquitectura peruana fue muy avanzada para las epocas en la que fueron elaboradas estas edificaciones

SACSAYHUAMÁN PÁGINA | 17

ANEXOS

SACSAYHUAMÁN PÁGINA | 18

construcción inició con el inca Pachacútec (siglo XV), hasta el siglo XVI, fue necesaria la mano de obra de más de 20 mil hombres procedentes de diversas partes del imperio Sacsayhuamán era una fortaleza militar, en donde se entrenaba a guerreros

HANA PACHA (ARRIBA) KAY PACHA (MEDIO) UKJU PACHA (ABAJO) DOR MA SERPIENTE
SOLIDEZ SIMETRIA MONUMENTALIDAD SENCILLEZ ARMONIA Muyucmarca Paucamarca Sallaqmarca SACSAYHUAMÁN SACSAYHUAMÁN PÁGINA | 19 Sacsayhuamán es una de las edificaciones más extraordinarias del
en quechua saqsay, significa “lugar donde
Se encuentra ubicado a 2 kilómetros de la ciudad del Cusco, a 3,700 m s n m
CARACTERÍSTICAS
ORNAMENTALES Animales Mundo religioso andino Forma de Llama forma de puma COMPOSICIÓN Piedra diorita Piedracuarcita Piedragranito Piedrabasalto Piedra andasita Piedra caliza Cinceldebronce Hacha de cobre Martillo de piedra Pasadizos bajo tierra que servían de unión para las torres 5 I I I I I I I I I I I I I I I I I I I I I I I I I I I 4 3 2 1 5 3 13 1 2 11 5 4 12 I I I I I I I I I I I I I I I I I I I I I I I I I I I I I I I I I I I I I I I I I I I I I SECTOR REliGIOSO Subdivisiones que servía para los guardias del complejo Permitía observar todo Cuzco desde su interior a través de sus ventanas Formando caminos bajo tierra y labrados pasajes Se uso piedras y arcilla rojiza para la cimentación No se uso nada para la unir las piedras Las piedras son de Huaqoto y Rumiqolqa Patio 1 Plaza romboidal Vest Patio 2 Plaza ceremonial LEYENDA : 1 2 3 4 5 I I I I I I I I I I I I I I 7 6 TORREONES
A dios del rayo, el trueno y el relámpago
HERRAMIENTAS DE CONSTRUCCIÓNY LES
incanato El término Sacsayhuamán,
se sacia el halcón” UBICACIÓN
Su
ELEMENTOS

BIBLIOGRAFÍA

Arquitectura Sacsayhuman (s/f) Scribd Recuperado el 13 de mayo de 2022, de https://es scribd com/document/390609525/arquitectura sacsayhuman GrupoRPP (2013, mayo 18) La fortaleza de Sacsayhuamán: una magnifica construcción pétrea RPP https://rpp pe/peru/actualidad/la fortaleza de sacsayhuaman una magnifica construccion petrea noticia 595836?ref=rpp Jon (s/f) Sacsayhuamán Web Megaconstrucciones Recuperado el 15 de mayo de 2022, de https://megaconstrucciones.net/? construccion=sacsayhuaman marijuli (s/f) Arquitectura forma, espacio y orden Slideshare net Recuperado el 13 de mayo de 2022, de. https://es slideshare net/marijuli9/arquitectura forma espacio y orden Misterio arquitectónico sacsayhuamán (2021, julio 12) Issuu https://issuu com/ilaided23/docs/caracteristicas arquitectonicas de sac sayhuaman ef Nielssen, E (2019, noviembre 20) Sacsayhuamán y la misteriosa tecnología detrás de sus muros megalíticos Mystery Science https://www mysteryscience net/sacsayhuaman y la misteriosa tecnologia detras de sus muros megaliticos/ Oculto, R C , Sumoza, E , & Lugo, L (2020, noviembre 16) Fortaleza ciclópea de Sacsayhuamán: Tecnología «imposible» en el antiguo Perú. CODIGO OCULTO https://codigooculto com/civilizaciones antiguas/sacsayhuaman tecnologia antigua imposible antiguo peru/ Qosqo, Inkas’ Sacred Capital Inca, Cusco, Cuzco. (s/f). Qosqo.com. Recuperado el 15 de mayo de 2022, de http://www qosqo com/saqsaywa shtml Surhone, L. M., Timpledon, M. T., & Marseken, S. F. (Eds.). (2010). Sacsayhuaman Betascript Publishing Zavaleta, W M (s/f) 135542139 sacsayhuaman Slideshare net Recuperado el 15 de mayo de 2022, de https://es slideshare net/jhostin /135542139 sacsayhuaman

SACSAYHUAMÁN PÁGINA | 20
2 3
7 8
1
4 5 6
9 10

Turn static files into dynamic content formats.

Create a flipbook
Issuu converts static files into: digital portfolios, online yearbooks, online catalogs, digital photo albums and more. Sign up and create your flipbook.
SACSAYHUAMÁN by JAZMIN FLORES - Issuu