Jack Talifaferro Portfolio

Page 1


The Harlan Company

Construction | May 2022 - August 2022

Worked on a job site of a one million dollar project. Doing any tasks asked of me, digging for utility lines, breaking concrete, remodeling spaces, etc.

BLDD Architects

Intern | May 2024 - August 2024

Actively participating as a member of the studio to complete assignments in relation to an addition / renovation of a 100 million dollar Middle School project

EDUCATION

Fort Zumwalt West High School

Public High School | August 2018 - May 2021

While at school I played baseball and was in national honor society. This is also where I was able to find my passion for design that pushed me towards architecture

Kansas State University

College of Architecture Masters Program | August 2021 - Present

3.7 GPA

I have been able to take on a great amount of vastly different projects while gaining experience and advice from well versed professors as well as the ability to be in a collaborative space

SKILLS

Hard Skills

Soft Skills

Modeling Rendering

ACHIEVEMENTS

Vice President : Pi Kappa Alpha Fraternity 2022 - 2023

American Institute of Architects St. Louis Student Scholarship award winner 2023

Architecture Visualization through AI honorable Competition: Honorable Mention

1. The Platform - Theatre - Chelsea, New York

- Culture Center - Topeka, Kansas

1. Emergence
Parallels

1. Confluence - Library - Council Grove, Kansas

Nexus - Community Hub - LA. California

1.
Parallels

PLATFORM THEATRE

CHELSEA, NEW YORK | STUDIO WORK | SPRING 2024

PLATFORM THEATRE

Chelsea, New York

Like the rest of New York Chelsea has a rich history of music. It has been a haven of creativity for as long as it has existed. Places like Carnegie Hall, Lincoln Center, New York Philharmonic, and Radio City Music Hall are spaces where the talents of New York come to life. But in these cases, only the wealthy can afford to appreciate these performances.

Yet these are not the only performances that are the backbone of the entire industry. All of these performers are constantly fighting for attention. When you start to give these people a platform like their counterparts. It not only allows them a place to express their music but is a place where people

who would not be able to afford a musical experience to have one in their front yard. Allowing a chance for all forms of expression to live and thrive at a single site.

Programs Used: Rhino, Revit, Adobe Suite

Identifying noise impacting the site

Amplifying public spaces out to noise making space known to the public

Extrusion for public and program space

Amplifying the highline into the theatre space with circulation by creating a continuous nature connection

.04

Enclosing the main program spaces yet maintaining views out to the surroundings

.06

.01 .03 .05 .02

Deafening the interior spaces with an undulating screen designed to keep noise out of certain spaces

The Platform is more than just a theatre it is a space to engage the community and invite all walks of performance creativity to the site making it a hub for musical innovation.

Interior Render : Lobby

TwinMotion / Photoshop

Interior Render : Theatre

TwinMotion / Photoshop

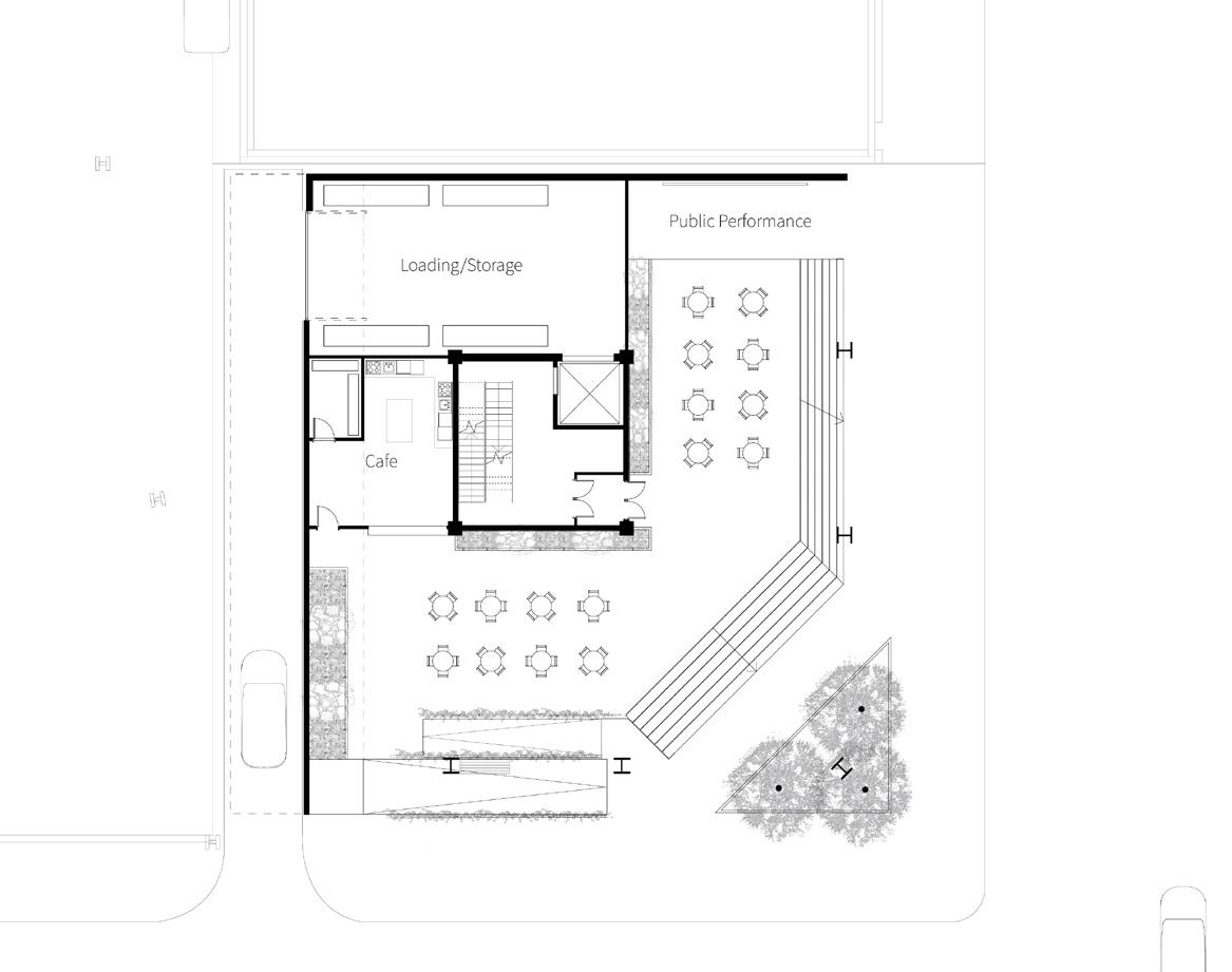
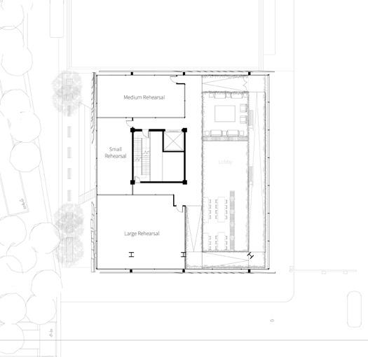
Floor Plans Third - Seventh

Revit / Photoshop

East West Section

Revit / Illistrator / Photoshop

Model Photo : East West section

North South Section

Revit / Illistrator / Photoshop

This section exemplifies the connection between the highline and the exterior spcades of my builidng. As well as the assension of the ramp throughout the buildings public spaces to the theatre

EMERGENCE CULTURE CENTER

TOPEKA, KANSAS | STUDIO WORK | FALL 2024

EMERGENCE

Topeka, Kansas

This project is for the Indigenous tribes that used to thrive and reside in a one point in time or another the area along the Kaw river.

My main goal was in this project was to reintroduce the connection between the indigenous tribes and the the land in which they inhabited. In order to do that I focused on the building being not only a place of vast interior spaces for them to encompass but a volume that is able to reform the land into a space of permanence and surrounding the unbuilt site in a way that facilitates the togetherness that the culture strives for.

The building was pulled up from the ground in a way that allows it to be accessible for all walks of life and shows how two opposing forms can build a connection. The connection being between the massive sheer wall and the cantilevering shell giving the community a continuous flowing space to further push the merging of the indigenous peoples and those who came later.

Programs Used: Rhino, Revit, Adobe Suite

OLDESTMAPOFKAWRIVERFLOWCURRENTMAPOFKAWRIVERFLOW

PANORAMICVIEWOFRIVER

CIRCULATIONFROMCITYTOSITE/BUILDING

Model Photo East West Section Lightroom

Site Plan

This plan shows the connection from the roof to the Rhino / Illistrator / Photoshop surrounding site and how a path follows to the alternate side of the river creating a continuous flow to a area dedicated to camping and indiginous statues

North South Section

Revit / Illistrator / Photoshop

This section exemplifies the connection between the highline and the exterior spaces of the building. As well as the ascension of the ramp throughout the buildings public spaces to the theatre

First Floor
Second Floor

Floor Plans

Revit / Illistrator / Photoshop

These plans show the progressive nature of the form contorting to the needs brought about by the river front. Those needs being exterior space and views.

Third Floor

SIDE OF AUSTRALIA | COMPETITION | SUMMER 2024

PARALLELS MUSEUM

CLIFF

PARALLELS

Cliffs of Australia

With this project the intention was to be able to encapsulate the human emotions within architecture itself. It led me to divide the program into two main forms and to use those forms to represent one of the most emotionally bearing issues of our generation, climate change.

With that in mind I wanted to give the people a perceived reality of a future where we have taken control of our emissions and a future where we have left our planet to parish.

I leaned on the use of materials, lighting, and nature to get the points across. in the posistive emotion form you have a tiered garden space with cascading water in the center creating a warm and relaxing environment. In the other form the use of itemized light along with concrete and thin pools of water in the exibits are there to push the idea of what will come to be without proper action.

Programs Used: Rhino, Revit, Adobe Suite

Interior Render: Positive Space

TwinMotion / Photoshop

Interior Render: Negative Space

TwinMotion / Photoshop

North South Section
This section exemplifies contrasting forms tied together yet Rhino / Illistrator /

Section exemplifies the two forms and how they are vastly seperate

CONFLUENCE LIBRARY

COUNCIL GROVE, KANSAS | STUDIO WORK | SPRING 2023

CONFLUENCE

Council Grove, Kansas

For the library the initial ideas where taken from my time visiting the site and learning about its history. I was able to find the town of Council, Grove was a main stopping point for those embarking on the Oregon trail. WIth this in mind the building took the form of a wagon circle in order to protect what is sacred inside being community.

The building was then centered around a central hub of circulation and conversation. Leaving space to express and be loud and engage in conversation in an otherwise quiet library.

Surrounding the center are the multiple wings of the library, adult section, teen section, childern section, and cafe/admin spaces. all of the wings are able to come together and force collaboration in order to move up in the library but also life itself.

Programs Used: Rhino, Revit, Adobe Suite

Stretching the East and West bars to provide space for program

Slicing the ends of the North and South bars to form to the site

Condensing the space to fit program

Expanding the Central space to allow for an occupied center .01 .02 .03 .04 .05 .06

Orienting the North and South bars to true North and South to frame to entry

Creating in between spaces for interesting areas in the program

First Floor Plan
Interior Render: Second floor
Rhino/ Illistrator / Photoshop
Rhino/ Illistrator / Photoshop
Interior Render: Second floor TwinMotion / Photoshop
Interior Render: First Floor Childrens wing
TwinMotion / Photoshop

HUB

LOS ANGELES, CALIFORNIA | COMPETITION | SUMMER 2023

NEXUS HUB

Los Angeles, California

The Nexus Hub in Los Angeles, California is an architectural marvel that exemplifies the harmonious integration of modern design and the surrounding natural environment. With its innovative features and eco-friendly approach, it stands as a beacon of sustainable development and a testament to the city’s commitment to a greener future.

At first glance, the Nexus Hub is a visually stunning structure that seamlessly blends with the beauty of its surroundings. Taking the land that it was built on top of and incorperating it back into the building itself creating a seperation of program through stunning vertical gardens.

Its design incorporates elements inspired by nature, utilizing sustainable materials, and employing techniques that minimize its ecological footprint. The building’s facade incorporates living walls covered in lush vegetation, helping to reduce carbon emissions, improve air quality, and provide a habitat for local flora and fauna.

Programs Used: MidJourney, Rhino, Adobe Suite

1. The soil is removed from the site to in order for it to be integrated back in later

2. A base level of soil for the integration of nature is placed along with the first floors of public space.

3. The second level of soil for the integration of nature is placed along with the middle floors of retail space

4. The third level of soil for the integration of nature is placed along with the upper business spaces

5. A fluid atrium is integrated to create a collective space throughout the building

Interior Render: Conference Room MidJourney / Photoshop
Interior Render: Circulation
MidJourney / Photoshop

Interior Render: Atrium MidJourney / Photoshop

This image gives you the ablility to visulaize the flowing atruim thoughout the builiding that is able to connect all of the spaces through a naturous landscape

Thank You For Your Time

Turn static files into dynamic content formats.

Create a flipbook
Issuu converts static files into: digital portfolios, online yearbooks, online catalogs, digital photo albums and more. Sign up and create your flipbook.
Jack Talifaferro Portfolio by Jack Taliaferro - Issuu