ARCHITECTURAL PORTFOLIO-ISHITA

Page 35

PORTFOLIO ISHITA ACHARYA 5th year student Bachelors of Architecture Delhi Technical Campus GGSIPU Ph. No.: +91 93371 86993 Email Id: i.acharya2001@gmail.com

CONTACT

+91 93371 86993

i.acharya2001@gmail.com

Delhi Technical Campus, UP

EDUCATIONAL QUALIFICATIONS

2019-2024 | Guru Gobind Singh Indraprastha University

Bachelors of Architecture(Pursuing)

CO-CURRICULAR ACTIVITIES

Diploma holder in Odissi dance form | 2013

Pen sketching and fluid artist

Awarded Rajyapuraskar by Bharat Scouts

and Guide | 2015

Finalist at Young Astronomer Talent Search | 2015

Won Zonal award in Sceince Olympiad

VOLUNTEER WORK

NSS | 2022-23

Stationary donation drive for under privileged children

Old Age home Diwali celebration Plantation drive

RUCHIKA SOCIAL SERVICE ORGANISATION | 2014

LANGUAGE PROFICIENCY

2017-2019 | Mother’s Public School

All India Senior School Certificate Examination(CBSE)

2007-2017 | Ruchika High School

Indian Certificate of Secondary Education(ICSE)

SKILLS

COMPETITIONS

ANDC

1.

EXPERIENCE

2021-22(Designing a portable building for construction workers )

2022-23(Redesigning a public space with cultural context) Acted as the leader for the group ANDC109

1.2021-22(Documentation of a sustainable building)

2. 2022-23(Documentation amd design of public building at least 100 years old with civic, institutional, administrative, leisure, religious or historic characteristics with minimum 300 sq.mt. built up area.)

COLLEGE

1.

NASA day(Partcipated in various events)

Architecture day(Won the entire competitionLeader)

Logo design(Achieved first place-the School of Architecture)

CELEBRARE-Wedding Card Designer(Dec 2022 - Feb 2023)

Creative Arts · Adobe Photoshop · Graphic Arts · Sketching · Visual Arts

ROPAN-Social media infographics(Jul 2021 - Sep 2021)

Adobe Illustrator · Canva · Graphic Design · Adobe Photoshop · Graphic Arts

KHOJ CITY-Illustrator(Apr 2021 - Jul 2021)

Creating graphic illustrations and social media infographics for the social media handles.

Skills: Graphic Design · Social Media · Graphic Arts

BAREFOOT TRUST-Brand developer(Apr 2021-Jul 2021)

Creating Brand kit , Rebranding existing logo and visiting cards, forming brochures and posters

PORTFOLIO
Ishita Acharya Architecture Intern, Graphic designer, Logo designer
1. a. 2. a. 3. a. b. 4. a.
2. LIK
2. 3.
Auto desk Autocad MS PowerPoint Adobe Photoshop 3D Modelling Canva Adobe Illustrator
English | Hindi | Odia
PORTFOLIO
2.CITY CENTER 4.ARCHITECTURAL DESIGN 3.LANDSCAPE DESIGN 5.BUILDING CONSTRUCTION
CONTENT
6.MISCELLANEOUS 1.CHANDIGARH SECTOR 17
PORTFOLIO
PORTFOLIO URBAN DESIGN
PORTFOLIO URBAN DESIGN
PORTFOLIO

URBAN DESIGN

THEABODEOF CULTURE,PEACE,HARMONY

Asphericalbuildingactsasa mandalorglobesurrounded bywaterfeatures.

Thecityisvisitedbypeopleof severalethnicitiesfromotherparts ofIndiaandabroad.

Thereareabout19culturalcentersand mueseumsinDelhiNCR,witha maximumsiteareaof4.6acres

Thegoalistocreateaculturalhubof250 acrestoactivateandimproveDelhiNCR's urbanmileaubyenhancingsocial,cultural andeconomicstanding

SAHASRARA

AJNA

VISHUDHA

ANAHATA

MANIPURA

SWADISHTHANA

MULADHARA

THEREARE7CHAKRASFOUNDINOURBODYAS OURMAINENERGYJUNCTIONS

ThestepwellsandghatsinIndia aretheoldestformofriverside developmentsinindia.

Vernaculararchitecture ofIndiafocusesonalot ofbrickfacade

MULTILEVEL CIRCULATION

Theroad connectsdirectly toDelhionone sideandGreater Noidaonthe other,makingit theprime accessible location

Theideabehindorganicarchitectureis toputhumanlife,natureandthebuilt environmentonthesamelevel

Thezoneshavebeendividedaccordingtothe7mainenergyjunctionsof thebodyfollowingitsmainrepresentationstartingfromtheredtoviolet movingparallelwiththemainvehicularroutethroughthesite

CONNECTIONOFSPACESTHROUGHOUTTHESITE

Amusementparkactsasthecrownchakra whilethestreamgoingthroughthesite showcasestheflowofenergyandtheculturalcenteractsasthefocalpoint

Amusementparkactsasthecrownchakra whilethe streamgoingthroughthesiteshowcasestheflowof energyandtheculturalcenteractsasthefocalpoint

Thecirculationhasbeendoneinordertodivide theareaintospacessuchthatitformsaphases accordingtothe7chakras

Greenbelts providedalong thesite boundaryand asbufferzones aroundthesite toimprove waterandair qualityinthe area

Noisebufferzones provideatthe edgesby providing evergreentrees alsobecominga modeofprivacy fortheviewer's perspective

MAJOR DESIGN PROBLEM
Jaliisthetraditionalversionofanairconditioningcompressor.
SPIRITUAL CONNECTION INSPIRATION PHYSICAL IDENTITY CREATIVITY IDENTITY RELAXATION EXPRESSION
MOVABLE LANDSCAPE AMUSEMENT PARK

URBAN DESIGN

SITEAREA=250ACRES(1011714SQM)

ACHIEVEDFAR=3.9

GIVENGROUNDCOVERAGE=232864SQM

GROUNDCOVERAGEACHIEVED=231911SQM

GIVENBULTUP=4046856SQM

BUILTUPACHIEVED=4045240SQM REMAININGBUILTUP=1616SQM

CANOPYSEATING

PAVILIONABOVETHE

BRIDGEONTHESTREAM

SITELANDSCAPINGINVIEW OFPLAZA,TOCREATE RECREATIONALANDLEISURE SPACESINTHEAXISOFTHE CULTURALCENTER

ENTRANCETOSITEBFROMSITEA CREATINGACENTRALVISIONAXIS REACHINGDIRECTLYTOTHE AMUSEMENTPARKVIASUB ARTERIALROAD

CONNECTORROADUSEDFOR FORMINGCUL-DE-SACACTINGAS DROPOFFFORCENTRALPLAZAOF

CULTURALCENTERPARKINGBEHIND LOGIXMALLINTEGEGRATEDBOTH THEEXISTINGANDPROPOSEDAREA

CANALDETAILALONG THEPATHWAYAND CATCHMENTAREA THESECTIONDETAIL BETWEENTHEGUEST HOUSEANDEXISTING COMMERCIALZONE

DIVISIONOFAREAACCORDINGTOTHEGROUNGCOVERAGE

MAJOR DESIGN PROBLEM SUBMITTED BY- GROUP 5 FACULTY INC H A R GE - AR. PREETI NAIR AR. ABHINAV KESARVANI AR. SWATI PUNYAL AR. KIRTI SHARMA ADOBEOFFICE MIXEDUSEBUILDING MODIMALL MIXEDUSE AMUSEMENTPARK COMMUNITYCENTRE RESIDENTIALCOMPLEX OFFICE PUBLICPLAZA HOTEL LEISURECENTER LOTUSGARDEN PLANETERIUM LIBRARY APARTMENTBUILDING GUESTHOUSE RESORT CULTURALCENTER LOGIXMALL MIXEDUSEDESTINATION CULTURALVILLAGE OPENAMPHITHEATRE ICONICBUILDING COMMERCIALCENTER 1. 2. 3. 4. 5. 6. 7. 8. 9. 10. 11. 12. 13. 14. 15. 16. 17. 18. 19. 20. 21. 22. 23. 24.
SECTIONA-A' POINTX POINTY
TOCREATEAHOLISTICUSER EXPERIENCE
LANDSCAPEPROVIDEDALONGTHE ENTRANCEFROMTHEMETROSIDE
THESITE KIOSKSANDSHADED SEATINGALONGTHE PATHWAY
ZONEDETAIL LEGEND PROPOSEDBUILDINGS A A' +/-00 G+40 +/-00 +/-00 +/-00 G+16 G+16 G+40 +300 +300 +300 +300 G+30 G+25 +300 +180 +180 +180 +00 G+6 G+2 G+2 G+13 G+3 G+44 G+2 G+45 G+49 G+35 G+30 G+2 G+2 G+35 +/-00 +750 +/-00 +750 +750 -2000 -2000 -2000 -2000 -2000 -2000 -2000 C D
OPENSPACES
SPACES HOSPITALITY CULTURAL CENTER FACADE IDENTITY FLUIDSPACES POINTD POINTC ENTRANCE TOTHESITE PEDESTRIAN ENTRANCETOPLAZA
FENCING,PEDESTRIAN PATHWAYANDGREEN
THROUGH MATERIAL
WITHPAVILIONS MIXEDUSE

LEGEND

ENTRANCETOTHESITE

ARTERIALROAD

COLLECTER'SROAD

CONNECTORROAD

PEDESTRIANPATHWAY

CYCLETRACK

METROLINE

COLLECTORROADWITHBOULEVARD PEDESTRIANPATHWAY+CYCLETRACK

8.5mwidthroad

SHARED STREETS

PINCHPOINTSNARROWTHEROADWAYATAMIDBLOCKPOINT.THEYCANBECOMBINEDWITH SPEEDTABLESTOCREATEHIGH-QUALITY PEDESTRIANCROSSINGS.

ROADSECTION

FOLLOWINGTHEDIRECTIONSOFTHE HINDUSHILPASHASTRA,WIDTHOFTHE MAINSTREETS&OTHERLANESWERE FIXED.THUS,

MAINSTREETSWERE24M.WIDE

SECONDARYSTREETS18M.WIDE THESMALLERONES8.5M.WIDE

PEDESTRIANPATHWAY2MWIDE CYCLETRACK2MWIDE

PEDESTRIANPATHWAY+CYCLETRACK 3.5MWIDE

PORTFOLIO URBAN DESIGN MAJOR DESIGN PROBLEM SUBMITTED BY- GROUP 5 FACULTY INC H A R GE - AR. PREETI NAIR AR. ABHINAV KESARVANI AR. SWATI PUNYAL AR. KIRTI SHARMA
COLLECTORROADWITHPARKINGLANE 18mwidthroad
SECTIONA SECTIONB SECTIONC
24mwidthroad
PARKINGLANEALONG
SEGREGATIONFROM PATHWAY SHADED PATHWAYS KIOSK SITTING SPACES SPEED TABLES
THECARRAIGEWAY STREETFURNITURE
GATEWAY TREATMENTS CORNER RADII RAISEDCENTERMEDIANSAND PEDESTRIANREFUGEISLANDS CANBEUSEDTOREDUCE LANEWIDTHFORVEHICLES, EVENONRELATIVELY NARROWSTREETS.
5000mm 2000mm1000mm2000mm 6000mm 2000mm 6000mm 2000mm1000mm2000mm 5000mm +/-00 +/-00 +180 +/-00 +300 +/-00 +/-00 +180 +/-00 FRONTSETBACK CYCLE TRACK SIDEWALK CARRAIGE WAY MEDIAN CARRAIGE WAY SIDEWALK CYCLE TRACK BOULEVARD 4000mm 3500mm FRONTSETBACK CYCLETRACK+PATHWAY 2000mm PARKING LANE CARRIAGE WAY 7000mm 2000mm PARKING LANE 3500mm CYCLETRACK+PATHWAY 4000mm FRONTSETBACK +/-00 +180 +/-00 +/-00 +/-00 +180 +/-00 +/-00 FRONTSETBACK PATHWAY CYCLETRACK MEDIAN MEDIAN PATHWAY FRONTSETBACK +180 +/-00 +180 +/-00 +/-00 +/-00 2000mm 2000mm 3000mm 1000mm 2500mm 1000mm 3000mm C A A B
PEDESTRIANANDCYCLE TRACKCROSSINGSFOR VEHICULARROADS

BENCHPROVISIONONTHEEDGESOFTHE WALKWAYWHILEMATERIALDIFFERENCE DONEACCORDINGTOUNIVERSALDESIGN

INTEGRATEDSEATING SPACESDESIGNED FORUSERS

WORKINGOFTHESTREAM WATERWILLBEGENERATEDFROM:

SURFACERUNOFF GREYWATERTREATEMENT

WATERFROMHINDONRIVER DIRECTEDFROMTHE PERPENDICULARSECTIONOFTHE RIVERAT7KMRADIUS

KIOSKSALONGSIDETHE

PEDESTRIANPATHWAY WITHSITTINGAREAS

CREATINGPUBLICSPACESISAKEY ASPECTOFWATERFRONTDEVELOPMENT. THESESPACESMAYINCLUDEPARKS, PROMENADES,PLAZAS,ORBOARDWALKS THATALLOWPEOPLETOENJOYTHE SCENICVIEWS,ENGAGEINRECREATIONAL ACTIVITIES,ORSIMPLYRELAXBYTHE WATER.

SLOPEGIVENONTHE CONSTRUCTIONOFTHE WATERBODYFORTHERAINWATER SURFACERUNNOFFTOBE COLLECTEDINIT

VIEWINGDECKFOR REVENUEGENERATION ANDCREATING CHARACTEROFTHESPOTS

WATERSIDEGHAT DEVELOPEMENTFOR SOCIO-INTERACTIVESPACE

KIOSKSALONGSIDETHE

PEDESTRIANPATHWAY WITHSITTINGAREAS

PUBLICSPACESOFTENINCORPORATE LANDSCAPING,SEATINGAREAS,AND AMENITIESLIKEFOUNTAINS, PLAYGROUNDS,ORSPORTSFACILITIES.

STREAMSECTION SHOWCASINGTHE TREATEMENTOFSURFACE ONTHEBANKS

DISTINGUISHED MATERIAL DIFFERENCE

CATCHMENTAREANEAR THESTREAMFOR RESTORATIONOF WATERLEVEL

PARKSALONGTHESTREAMFOR CREATINGUSEFULPATCHESAND CONNECTINGPOCKETSTOTHE STREAM

STREAMPROVIDEDWITH BRIDGESTOCONNECTTHE EITHERSIDEOFTHEAREA

SEGREGATEDPATHWAY ANDCYCLETRACKALONG THESTREAM

TREESPROVIDEDONTHESIDES OFTHECIRCULATIONPATHTO PROVIDESHADEANDPASSIVE COOLING

ELEVATED PEDESTRIAN ALONGWITH SMALLER VIEWINGDECKS ANDRESTING AREASTHOUGH STRECHESOF STREAM

SEATINGSPACESGIVENONTHEOFFSIDE OFTHEEXISTINGRESIDENTIAL BUILDINGTOCREATEAHOLISTIC INTEGRATEDDESIGN

DECKSFORSITTINGNEAR THEWATERTOHAVEA CALMINGEFFECTONMIND

WATERFRONTDEVELOPMENTSOFTEN INCORPORATEICONICLANDMARKSOR ATTRACTIONSTHATBECOMEFOCAL POINTSFORTHEAREA.

INFRASTRUCTUREINVOLVESCREATING PEDESTRIAN-FRIENDLYWALKWAYS, BICYCLELANES,BRIDGES,ORTUNNELS, ANDINTEGRATINGPUBLIC TRANSPORTATION

ACTIVITIESALONGTHESTREAM INCLUDING DECKS,BRIDGES,KIOSKS,SEATING,SH ADEDRESTINGAREAS

MAXIMIZINGVIEWSOFTHEWATERAND ENHANCINGTHEVISUALAESTHETICS THROUGHTHOUGHTFULLANDSCAPING AREIMPORTANTASPECTSOF WATERFRONTDEVELOPMENT.

PROVIDENEW RECREATIONALAND LIFESTYLEOPPORTUNITIES

LOWSTREAM

DEPTH

SLOPENEARTHE WATERPROVIDEDWITH STEPSALONGTHE RIVER

PORTFOLIO ARCHITECTURE DESIGN VII , AP- 402 MAJOR DESIGN PROBLEM FACULTY INC H A R GE - AR. PREETI NAIR AR. ABHINAV KESARVANI AR. SWATI PUNYAL AR. KIRTI SHARMA
PORTFOLIO

CLUBHOUSE

TERRACE GARDEN HELPS PEOPLE LIVE HEALTHY LIVES DUE TO CLEAN AIR THAT IS FREE FROM POLLUTION CAUSED BY CARS AND OTHER VEHICLES.

RAINWATER HARVESTING IS A MODERN URBAN CONCEPT, AND THE WATER SO COLLECTED COULD BE USED FOR PLANT IRRIGATION

NIGHT PURGE SYSTEM

Terrace gardens serve as artificial air purifiers

Enhances the building's overall aesthetic value

DOUBLE GLAZING SYSTEM

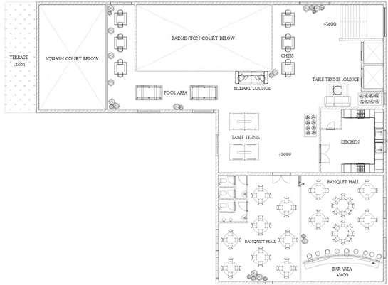
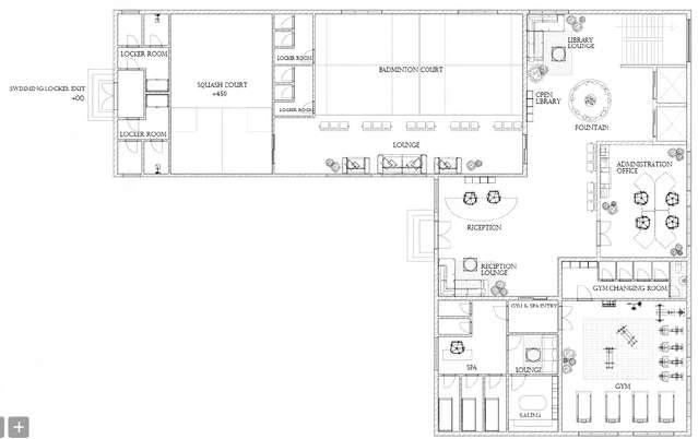
PORTFOLIO ENTRANCE RECEPTION RECEPTIONLOUNGE GYM SPAANDSAUNA ADMINISTRATIONOFFICE OPENLIBRARY LIBRARYSEATING BADMINTONCOURT VIEWERLOUNGE SQUASHCOURT LOCKERANDCHANGINGROOMS SWIMMINGPOOLLOCKERAND SHOWERROOM LEGEND: 1. 2. 3. 4. 5. 6. 7. 8. 9. 10. 11. 12. 13. CHESSTABLES BILLIARDLOUNGE BILLARDS SQUASHCOURTATRIUM BADMINITONCOURTATRIUM TABLETENNIS TABLETENNISLOUNGE KITCHEN BANQUETHALL BARAREA LEGEND: 1. 2. 3. 4. 5. 6. 7. 8. 9. 10.
The terrace garden keeps the building cool
N
PORTFOLIO

HOSPITAL

Patients, with views from their windows overlooking trees, often have shorter hospital stays and need less pain medication than patients with views of buildings or concrete.

Keeping the mental health of the human ratio present in mind,atriums have been provide in order to provide natural lighting

By stack effect, Air flows towards the atrium from different spaces in the building. Then air reaches to the outlets at the top of the atrium.

SITE PLAN

AMENETIES:

Circulation has been provided such that the OPD,physiotherapy,radiology are well connected, and the emergency,radiology,cafeteria are connected to each other on the ground floor.

In the site,the vehicular movement has been Kept uni-directional that is clockwise so that there is no traffic during emergencies and has a free flow movement.

PORTFOLIO
Cafeteria Pharmacy Emergency Physiotherapy Radiology General OPD
1. 2. 3. 4. 5. 6.
N
PORTFOLIO
PORTFOLIO
PLAN
TERRACE GARDEN
PORTFOLIO
PORTFOLIO
LANDSCAPE DESIGN
PORTFOLIO LANDSCAPE
DESIGN
PORTFOLIO LANDSCAPE
DESIGN
12MS 1 e 2 rv M ic S er r o v a c d e i eroad PORTFOLIO LANDSCAPE DESIGN
PORTFOLIO

MIVAN FORMWORK (ALUMINIUM FORMWORK)

MIVAN-ALUMINIUM FORMWORK SYSTEM DEVELOPED BY ONE OF THE CONSTRUCTION COMPANY FROM EUROPE THE APPROACH OF ALUMINIUM TECHNOLOGY PROMOTES SPEED, QUALITY, AND CONSTRUCTION ASPECTS WHICH IS REQUIRED FOR A SUCCESSFUL COMPLETION OF MASS HOUSING PROJECT.

FORMWORK COMPONENTS

1. WALL COMPONENTS

2. DECK COMPONENTS

3. OTHER COMPONENTS

1. WALL COMPONENTS:

WALL PANEL - THESE ARE THE MAIN PANELS WHICH FORM THE MOULD FOR THE WALLS

F

STUB PIN AND WEDGE-IT HELPS IN JOINING TWO WALL PANELS. IT HELPS IN JOINING TWO JOINTS

2. DECK COMPONENTS:

DECK PANEL-IT FORMS THE HORIZONTAL SURFACE FOR CASTING OF SLABS

DECK BEAM BAR -IT IS THE DECK FOR THE BEAM. THIS COMPONENT SUPPORTS THE DECK AND BEAM.

3. OTHER COMPONENTS:

EXTERNAL SOFFIT CORNER: IT FORMS THE EXTERNAL CORNER BETWEEN THE COMPONENTS.

INTERNAL CORNER: IT CONNECTS TWO PIECES OF VERTICAL FORMWORK PIECES AT THEIR EXTERIOR INTERSECTIONS

BEAM BOTTOM SLAB PANEL: IT FORMS THE BEAM BOTTOM OF THE FORMWORK SYSTEM.

KICKER-IT FORMS THE WALL FACE AT THE TOP OF THE PANELS AND ACTS AS A LEDGE TO SUPPORT

DECK PROP-SUPPORT’S DECK

INTERNAL SOFFIT CORNER: - IT FORMS THE VERTICAL INTERNAL CORNER BETWEEN THE WALLS AND THE BEAMS, SLABS, AND THE HORIZONTAL INTERNAL CORNICE BETWEEN THE WALLS AND THE BEAM SLABS AND THE BEAM SOFFIT

LONG PIN BOLTS NUTS AND WASHERS. TIE-ROD

FEATURES-ALUMINIUM FORMWORK

LIGHT WEIGHT

FASTER CONSTRUCTION

SIMPLICITY

QUALITATIVE CONSTRUCTION

HIGH REPETITIONS MONOLITHIC

ROCKER-IT IS A SUPPORTING COMPONENT OF WALL

DECK MID–BEAM: IT SUPPORTS THE MIDDLE PORTION OF THE BEAM

EXTERNAL CORNER: - IT FORMS THE EXTERNAL CORNER OF THE FORMWORK SYSTEM

THE FORMWORK SYSTEM IS PRECISELY-ENGINEERED SYSTEM FABRICATED IN ALUMINIUM. USING THIS SYSTEM, ALL THE ELEMENTS OF A BUILDING NAMELY, LOAD BEARING WALLS, COLUMNS, BEAMS, FLOOR SLABS, STAIRS, BALCONIES ETC CAN BE CONSTRUCTED WITH CAST IN PLACE CONCRETE.

THE MODULAR NATURE OF THE FORMWORK SYSTEM ALLOWS EASY FIXING AND REMOVAL OF FORMWORK AND THE CONSTRUCTION CAN PROCEED SPEEDILY WITH VERY LITTLE DEVIATION IN DIMENSIONAL TOLERANCES.

PORTFOLIO
SHUTTERING REPORT SUBMITTED BY: ISHITA ACHARYA 08818001619 4TH YEAR-A
BUILDING CONSTRUCTION MIVAN
AR.SWATI PUNYAL AR.SHYAMAL MISHRA SHEET NO. 1
SUBMITTED TO: AR.SANDEEP KUMAR
ECONOMICAL
2.
1.
3. 4. 5. 6. 7.
PORTFOLIO

2000MMTHICKSTEINING

BUILDING

CONSTRUCTION-VII

STIRRUP

FOUNDATIONPLAN

SCALE-1:50

CONCRETECOVER

WELLCAPANDPIERCONNECTION

2400MMRCCPIER

WELLCAP

1000MMTHICKTOPPLUG

STEINING

40MMBAR

30MMDEPTH

KEYDETAIL

SCALE-1:20

DETAILA

SCALE-1:30

2400MMRCCPIER

WELLCAP

TOPPLUG

SANDFILLING

STEINING

40MMBAR

ISHITA ACHARYA 4TH YEAR,SEC A 08818001619

25MMSTIRRUP

STEINING

ANCHOR

WELLCURB

CUTTINGEDGE

STIFFENER

BOTTOMPLUG

TOPIC: CAISSON

FOUNDATION

GENERALNOTES:

1.ALLDIMENSIONS AREINMMOTHERWISE NOTED

SANDFILLING

40MMBAR

CONCRETECOVER

CAISSONFOUNDATIONS,ALSOKNOWNASPIER FOUNDATIONS,AREPREFABRICATEDHOLLOW SUBSTRUCTURESDESIGNEDTOBECONSTRUCTEDONOR NEARTHESURFACEOFTHEGROUND,SUNKTOTHE DESIREDDEPTHANDTHENFILLEDWITHCONCRETE,THUS ULTIMATELYBECOMINGANINTEGRALPARTOFTHE PERMANENTSTRUCTURE

2.PLEASECOORDINATE ARCHITECTURE DRAWINGWITH STRUCTUREDRAWING BEFOREEXECUTION

WELLCURB

CUTTINGEDGE

STIFFENERMILDSTEEL

BOTTOMPLUG

DETAILB

SCALE-1:50

WELLCAP

STEINING

25MMSTIRRUP

TYPESOFCAISSONFOUNDATIONS

BOXCAISSONS EXCAVATEDCAISSONS FLOATINGCAISSONS OPENCAISSONS

PNEUMATICCAISSONS SHEETEDCAISSONS

CAISSONFOUNDATION

NOTE:DRAWINGSTOBEREADNOT MEASURED

PORTFOLIO BUILDING CONSTRUCTION G 1 5 F F
F 2
SECTIONX-X' X X'
DETAILA DETAILB KEY
30⁰

WAFFLESLAB:

WAFFLESLABORRIBBEDSLABISASTRUCTURALCOMPONENTWHICH ISPLAINONITSTOPANDCONTAINSGRIDLIKESYSTEMONITS BOTTOMSURFACE.THETOPOFRIBBEDSLABISNORMALLYTHINAND THEBOTTOMGRIDLINESAREGENERALLYRIBSWHICHARELAID PERPENDICULARTOEACHOTHERWITHEQUALDEPTH.WAFFLESLAB HASTWODIRECTIONALREINFORCEMENT.

CHARACTERISTICS

WAFFLESLABSAREGENERALLYSUITABLEFORFLATAREAS. VOLUMEOFCONCRETEUSEDISVERYLESSCOMPAREDTO OTHERS.

THEREINFORCEMENTINTHEWAFFLESLABISPROVIDEDINTHE FORMOFMESHORINDIVIDUALBARS.

SEPARATEEXCAVATIONFORBEAMSISNOTREQUIREDINCASEOF WAFFLESLAB.

THEBOTTOMSURFACEOFSLABISLOOKSLIKEWAFFLEWHICHIS OBTAINEDBYUSINGCARDBOARDPANELSORPODSETC.

THETHICKNESSOFWAFFLESLABRECOMMENDEDIS85TO100MM WHILETHEOVERALLDEPTHOFSLABISLIMITEDTO300TO600 MM.

THEWIDTHOFBEAMSORRIBSPROVIDEDINWAFFLESLABARE GENERALLY110TO200MM. SPACINGOFRIBSRECOMMENDEDIS600TO1500MM. REINFORCEDWAFFLESLABSCANBECONSTRUCTEDFORTHE SPANUPTO16METERSWHILEBEYONDTHATLENGTH PREFABRICATEDWAFFLESLABISPREFERABLE. WAFFLESLABISGOODAGAINSTSHRINKAGEANDITISLOWER THANSTIFFENEDRAFTSANDFOOTINGSLABS.

WAFFLESLABREQUIRESONLY70%OFCONCRETEAND80%OF STEELFROMTHECONCRETEANDSTEELUSEDFORSTIFFENED RAFT.

SLAB

GENERALNOTES:

1.ALLDIMENSIONS AREINMMOTHERWISE NOTED

2.PLEASECOORDINATE ARCHITECTURE DRAWINGWITH STRUCTUREDRAWING BEFOREEXECUTION

PORTFOLIO BUILDING CONSTRUCTION G 5 F ISHITAACHARYA 4THYEAR,SECA 08818001619 BUILDING CONSTRUCTION-VII TOPIC:WAFFLE
NOTE:DRAWINGSTOBEREADNOT MEASURED 2 MOULDDETAILS
DETAIL

MODULARRESIDENCE

MODULARANDMANUFACTUREDHOMESAREPREFABRICATEDSTRUCTURES,MEANINGTHEYAREPARTIALLY ORFULLYCONSTRUCTEDINANOFF-SITEFACTORY..

SHORTBUILDTIME.ONAVERAGE50-60%QUICKERTHANTRADITIONALHOMECONSTRUCTION. HIGHQUALITY.BUILDINGPRODUCTSAREMASSPRODUCEDINAFACTORYSETTINGWITHQUALITY CONTROLANDPRE-DESIGNOFSIMILARMODULES

LOWWEIGHT.IT’S30%LIGHTERTHANAHOUSEBUILTOFTRADITIONALMASONRY. ECO-FRIENDLY PRODUCTIONOFTHEMODULESISMOREEFFICIENTANDLESSWASTEFULINAFACTORY SETTING.INSTALLATIONOFTHECOMPONENTSCAUSESLESSDISRUPTIONTOTHEENVIRONMENT. INFILL PARTICULARLYUSEFULINSMALLURBANSITES,INFILLANDEXTENSIONSONTHEROOF.

LABOURREDUCES.PUTTINGTOGETHERANDFINISHINGOFFREQUIREFARLESSMANPOWERANDTHENEED FORSPECIALISTDESIGNINPUTISREMOVED.

COSTREDUCTION.THEFACTORSMENTIONEDABOVEHELPTOREDUCETHEOVERALLCOSTOFTHISTYPEOF BUILDING.

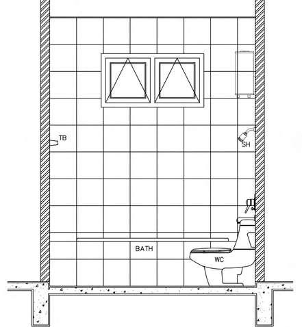
PORTFOLIO
B BED ROOM 4200x3350 KITCHEN+ DINING3600X3600 FOYER 1500X135 TOILET 1150x90 BATH 900x180 DRG ROOM 4200x4200 U BED ROOM 3650X3900 BATH 2700X270 BED ROOM 4200x3350 KITCHEN+ DINING3600X3600 FOYER 1500X1350 TOILET 1150x900 BATH 900x1800 DRG ROOM 4200x4200 UP BED ROOM 3650X3900 BATH 2700X2700 BED ROOM 4200x3350 KITCHEN+ DINING3600X3600 FOYER 1500X1350 TOILET 1150x900 BATH 900x1800 DRG ROOM 4200x4200 UP BED ROOM 3650X3900 BATH 2700X2700 300 150 3000 150 300 1 50 150 3000 PLAN FLOORINGPLAN
BUILDING CONSTRUCTION
SECTIONA-A'
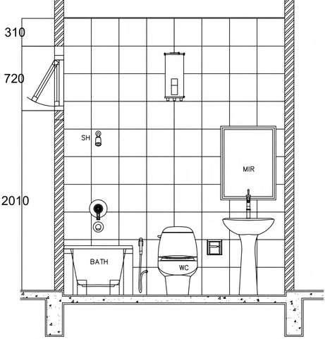
TILE WALLTILE FLOORTILE COMPANY MYTYLES KAJARIA THICKNESS 8MM 12MM MATERIAL CERAMIC CERAMIC SIZE 200X200 600X600 FINISH MATTE MATTE COLOR MOROCCANTILE BROWN PRODUCT KITCHENTILESPECIFICATIONS TILE WALLTILE FLOORTILE COMPANY KAJARIA KAJARIA THICKNESS 7.80MM 12MM MATERIAL CERAMIC CERAMIC SIZE 300X300 300X300 FINISH SATINMATT MATTE COLOR AQUARIUSSKYBLUE WHITE
TILE BEDROOM DRAWINGROOM COMPANY KAJARIA KAJARIA THICKNESS 12MM 12MM MATERIAL CERAMIC CERAMIC SIZE 600X600 600X600 FINISH MATTEWOOD MARBLEGLOSSY COLOR CEDARBROWN WHITE
SECTIONB-B'
BATHROOMTILESPECIFICATIONS

A B

SECTIONALELEVATIONX

SECTIONALELEVATIONY

SANITARYSPECIFICATIONS

ITEMS COMPANY DESCRIPTION

TILESPECIFICATIONS

CLOSET JAQUAR

RIMLESS WALLHUNG WCWITHUF SOFTCLOSE SEATCOVER, HINGES, ACCESSORIES SET,SIZE: 390X570X365 MM

WASHBASIN JAQUAR

WALLHUNG BASINWITH FIXING ACCESSORIES, SIZE:620X480X 185MM

INSTANT WATER HEATER. SUITABLEFOR KITCHEN/BUC KETBATH X Y

PLUMBINGLAYOUT

ELECTRICALLAYOUT

PLUMBINGSPECIFICATIONS

COLDWATER HOTWATER

WASTEPIPELINE

SYMBOL REPRESENTATION OF HWSC

HOTWATERSUPPLY CONTAINER

CEILINGLIGHT

PORTFOLIO
CONSTRUCTION
BUILDING
SIZE
FINISH
COLOR
PRODUCT
TILE WALLTILE FLOORTILE COMPANY KAJARIA KAJARIA THICKNESS 7.80MM 12MM MATERIAL CERAMIC CERAMIC
300X300 300X300
SATINMATT MATTE
AQUARIUS SKYBLUE WHITE
WATER
GEYSER JAQUAR DETAILA DETAILB PLAN FLOORINGPLAN

BUILDING CONSTRUCTION

SYMBOL REPRESENTATION OF

COLDWATER

HOTWATER

WASTEPIPELINE

HOTWATERSUPPLY

HWSC

CONTAINER

CEILINGLIGHT

TILE WALLTILE FLOORTILE

COMPANY MYTYLES KAJARIA

THICKNESS 8MM 12MM

MATERIAL CERAMIC CERAMIC

SIZE 200X200 600X600

FINISH MATTE MATTE

COLOR MOROCCANTILE BROWN

PRODUCT

PORTFOLIO
PORTFOLIO

ABSTRACT: ABSTRACT:

The approach of critical regionalism doesn’t limit itself to a particular set of The approach of critical regionalism doesn’t limit itself to a particular set of criteria of design, instead opens up to all segments of function, scale and criteria of design, instead opens up to all segments of function, scale and contexts. It could not only be administered while designing wide-ranged contexts. It could not only be administered while designing wide-ranged public buildings but also while designing something as elementary as a public buildings but also while designing something as elementary as a house, opening up to various possibilities and experiences which differ as per house, opening up to various possibilities and experiences which differ as per the site. the site.

INTRODUCTION: INTRODUCTION:

There is a problem in today’s world of modern architecture. A region losing There is a problem in today’s world of modern architecture. A region losing its fabric due to urbanisation is the biggest problem in today’s its fabric due to urbanisation is the biggest problem in today’s time.Integrating local architecture while respecting the region’s history, time.Integrating local architecture while respecting the region’s history, with newer buildings can keep the identity of the place intact. with newer buildings can keep the identity of the place intact.

Odisha is a land of 16 types of art forms and very deeply rooted culture in Odisha is a land of 16 types of art forms and very deeply rooted culture in its people residing there. Its architecture is one of the oldest form dating its people residing there. Its architecture is one of the oldest form dating back to its ancient times, and the art forms also having high values in Indian back to its ancient times, and the art forms also having high values in Indian history and culture as well. history and culture as well.

Regionalism in Odisha is an architectural and social movement that Regionalism in Odisha is an architectural and social movement that advocates for incorporating culture and vernacularity in public buildings, advocates for incorporating culture and vernacularity in public buildings, including offices, recreational spaces & institutional buildings. including offices, recreational spaces & institutional buildings.

AIM: AIM:

OBJECTIVE: OBJECTIVE:

To study the art and culture of Odisha

To study the art and culture of Odisha

To search for unique middle ground for regional architectire while To search for unique middle ground for regional architectire while capturing Odisha’s essence capturing Odisha’s essence

To understand the need of critical regionalism in public buildings of

To understand the need of critical regionalism in public buildings of Odisha Odisha

To know the design aspects required for designing a public building in

To know the design aspects required for designing a public building in Odisha Odisha by incorporating its local artforms by incorporating its local artforms

NEED: NEED:

The purpose of the study is to bring attention to the need of the time in The purpose of the study is to bring attention to the need of the time in architecture where we need to design in context of the region and how architecture where we need to design in context of the region and how important it is for the users of those public buildings. important it is for the users of those public buildings.

LIMITATION: LIMITATION:

It will only cater to reviving the essence of Odisha

It will only cater to reviving the essence of Odisha

While handling material and user needs to be taken care of

While handling material and user needs to be taken care of

SCOPE: SCOPE:

This movement can be taken into account by government for further

To bridge the gap between local and global architecture while respecting the region’s identity. region’s

To bridge the gap between local and global architecture while respecting the

This movement can be taken into account by government for further design ideas design ideas

Fast and accurate implementation due to being valid regionally Fast accurate implementation due to being regionally

PORTFOLIO DISSERTATION REVIVING THE ESSENCE OF ODISHA IN PUBLIC BUILDINGS
1 1. . 2 2. . 3 3. . 4 4. .

CONTEXT OF THE BUILDING CONTEXT OF THE BUILDING

GEOLOGICAL GEOLOGICAL

CULTURAL CULTURAL

SOCIAL SOCIAL

CONCEPT & PHILOSOPHY CONCEPT & PHILOSOPHY

FUNCTIONALITY FUNCTIONALITY

FORM AND GEOMETRY FORM AND GEOMETRY

VERNACULAR ELEMENTS:

VERNACULAR ELEMENTS:

PLANNING PRINCIPLES

PLANNING PRINCIPLES

CLIMATIC RESPONSE CLIMATIC RESPONSE

MATERIAL USAGE MATERIAL USAGE

LANDSCAPING LANDSCAPING

USER INTERACTION WITH THE USER INTERACTION WITH THE SPACE SPACE

SUSTAINABLE

PORTFOLIO
DISSERTATION
KRUSHI BHAWAN KRUSHI BHAWAN 7RFH+R63, KESHARI NAGAR, 7RFH+R63, KESHARI NAGAR, BHUBANESWAR, ODISHA BHUBANESWAR, ODISHA 751001 751001
BHUBANESWAR,
BHUBANESWAR, ODISHA
KALABHOOMI
KALABHOOMI
GANDAMUNDA, POKHARIPUT, GANDAMUNDA, POKHARIPUT,
ODISHA 751020
751020
IMI IMI IDCO PLOT NO. 1, IDCO PLOT NO. 1, GOTHAPATNA, CHANDAKA, GOTHAPATNA, CHANDAKA,
BHUBANESWAR, ODISHA 751003 BHUBANESWAR, ODISHA 751003
SUSTAINABLE MEASURES 1 1. . A A. . B B. . C C. . 2 2. . 3 3. . 4 4. . 5 5. . A A. . B B. . C C. . D D. . 6 6. . 7 7. .
MEASURES

Odisha is known for its magnificent temples, especially the famous Jagannath Temple in Puri, which is one of the Char Dham pilgrimage sites for Hindus.

The temples of Odisha are known for their intricate carvings and architectural brilliance, with the Kalinga style of architecture being prominent. The Sun Temple in Konark, a UNESCO World Heritage Site, is another remarkable example of Odisha's architectural prowess.

The official language of Bhubaneswar is Oriya. The language found its origin from the Indo-Aryan section of the Indo-European language family. Oriya language shares a resemblance with Assamese and Bengali. The original inhabitants of the city are Adivasis, who still uses some of the lesser known tribal languages to communicate.

Odissi, one of the eight classical dance forms of India, originated in Odisha and is known for its graceful movements and expressive storytelling.

PORTFOLIO
DISSERTATION

DISSERTATION

Metal gallery: Dhokra artefacts, brass artefacts, aluminium, silver filigree, etc.

Natural material craft gallery: applique paddy craft, sea-shell craft, cow dung crafts, bamboo coated with lacquer, etc.

CONCEPT AND PHILOSOPHY CONCEPT AND PHILOSOPHY

Kala Bhoomi has the panache to take us back to the future. The bandwidth needs to be built. The civil society organisations of Odisha should lend hand to the management of Kala Bhoomi. In many ways Kala Bhoomi can contribute to the ‘Look East’ policy of the governments.

The vernacular landscape of Odisha was studied as a means to understand the key factors that could be used as an ‘essence’ for approaching landscape design for the Museum. For this, the landscape architecture team visited places including Puri. Cuttack, Baripada, Similipal and Old Bhubaneshwar to seek cues.

The experience of seeing the Jagganath Puri Rathas being built provided a key point of reference regarding the blurred boundaries between craft, folklore, tradition and natural resources.

Tribal gallery: tribal photographs, textiles, weapons, house-hold implements, agricultural implements, tribal jewelleries, musical instruments, etc.

Handlooms: 114 sarees from different districts of Odisha and modern gallery.

Spanning across 12.68 acres at Pokhariput, Kala Bhoomi features 10 galleries, 8 of which are open. The galleries cover terracotta, traditional paintings, stone and wood carving, metal crafts, natural crafts, tribal crafts, pre-weaving techniques and sericulture and handlooms. A unique feature of the museum is the outdoor display sections in the form of courtyards.

Terracotta: votive horses, grain containers, lacquer dolls, roof tiles, etc.

Traditional painting: Pattachitra, palm leaf engraving, wooden toys, etc.

Stone and wood gallery: royal doors, treasury box, stone artefacts, fragmented stones, wooden panel, bamboo hand cover, wooden pieces of different gods, etc.

GEOLOGICAL CONTEXT GEOLOGICAL CONTEXT

International Management Institute, Bhubaneswar is a business school located in Bhubaneswar, the capital of eastern Indian state of Odisha.

The site is located in an extreme tropical climate on the outskirts of Bhubaneswar, about 14 kms from the city centre. The campus is to be built in three phases. The planning is done such that phase II & III construction, will not interfere with the daily happenings of the institute or residential facilities.

CULTURE CONTEXT CULTURE CONTEXT

The sculptures of these caves form a landmark in the history of Indian art. They present a vivid picture of the contemporary society and occupy an important place in rock-cut architecture in India.

Orissan sculpture has majesty, grace and beauty rarely to be found elsewhere. Caves of Khandagiri and Udayagiri represent Orissan cave architecture dating back to the first century B.C. These caves were cut out in the solid rock and are decorated with sculptural motifs, noted for their majesty, beauty and attention to detail.

Orissa is a state widely known for its opulent cultural heritage and rich architecture. It is full of archaeological treasure dating back from the prehistoric times. As a state, it possesses soaring grandeur unequalled anywhere in India.

PORTFOLIO
DISSERTATION

ANDC

2021-22(Designing a portable building for construction workers )

2022-23(Redesigning a public space with cultural context)

Acted as the leader for the group ANDC-109 LIK

2021-22(Documentation of a sustainable building)

2022-23(Documentation amd design of public building at least 100 years old with civic, institutional, administrative, leisure, religious or historic characteristics with minimum 300 sq.mt. built up area.)

LOGO DESIGN

2022(Designing for the School of Architecture of Delhi Technical Campus)

THE LOGO IS A REPRESENTATIVE ICON OF ARCHITECTURE AND STUDENTS, SHOWN BY THE HOUSING COMPLEX AND GRADUATION HAT RESPECTIVELY. THE BLACK AND WHITE COLOURS ARE INSPIRED FROM THE NASA LOGO TO SHOWCASE BALANCE BETWEEN BOTH THE SIDES,WHILE THE SUN SHOWCASES OPTIMISM AND CLARITY ,IN WHICH THE SOCIETY DIRECTS FORWARD TO.

PORTFOLIO COMPETITIONS
1. a. b. 2. a. b. 3. a. SSA-Student Society of Architecture

WORK EXPERIENCE

https://www.khoj.city

GRAPHIC DESIGNER AND SOCIAL MEDIA INFOGRAPHICS CREATOR

-KHOJ CITY

GRAPHIC DESIGNER AND SOCIAL MEDIA DEVELOPER - ROPAN

barefoottrust.home.blog

BRAND DEVELOPER AND GRAPHIC DESIGNER

-BAREFOOT TRUST

PORTFOLIO
LOGO
DESIGNER -FREELANCE

GRAPHICS

A photomontage in order to create foreground and background focusing on the cultural aspect of the city representative

LOGO DESIGN FOR ART AND GRAPHICS

RENDERS

Hand-made logo designing for Kumbh-mela having a main mascot logo and with a background enhancing the work

PORTFOLIO
WALL MURAL SILHOUETTE ART

SKETCHES AND PHYSICAL MODEL

PORTFOLIO
PORTFOLIO CONTACT ME: +91 93371 86993 i.acharya2001@gmail.com

Turn static files into dynamic content formats.

Create a flipbook
Issuu converts static files into: digital portfolios, online yearbooks, online catalogs, digital photo albums and more. Sign up and create your flipbook.