

ISABELLA CAPUTO
Interior Design Portfolio

ISABELLA CAPUTO INTERIOR DESIGN
Profile
ISABELLA CAPUTO
INTERIOR DESIGN
CONTACT
Interior Design student focused on developing innovative, sustainable, and human-centered solutions that enhance connection and experience
Caputoim@mail.uc.edu
Contact
Email | Caputoim@mail.uc.edu
EXPERIENCE
Hyperquake | Storybuilding Intern | Cincinnati, OH
August 2024 - December 2024
Designed and developed 3D models and construction documents for immersive
• Managed design revisions based on feedback from senior designers and clients, project completion
• Produced quality design visuals and presentations to communicate ideas effectively
• Researched and proposed innovative design ideas to senior designers, contributing
• solutions and concepts for various project elements.
Perkins & Will | Corporate Interiors Intern | Chicago, IL
January 2024 - April 2024
• Collaborated on the creation and refinement of construction documents
Experience
• Developed comprehensive color and material palettes to align with project requirements preferences.
• Facilitated the organization and exporting of presentations and PDF documents
HKS Architects | Commercial Interiors Intern | Chicago, IL
Phone | 630 841 1967
SKILLS
Illustrator | Lightroom | Photoshop | InDesign |
Premiere Pro
Awards
May 2025 - August 2025
• Edited Revit models for test-fit plans based on program needs
• Applied material finishes to floor plans and created diagrams to effectively communicate intent and project details
• Selected and ordered materials to assemble a client presentation, ensuring design intent
Cincy Gormuet Deli | Inshop Employee | Cincinnati, OH
• Produced detailed elevations and sections for documentation
October 2021 - April 2022
Education
Phone
630 841 1967
University of Cincinnati Cincinnati, Ohio
College of Design, Architecture, Art, and Planning
Interior Design class of 2027
3.7 GPA | Bachelor of Science
EDUCATION
Deanʼs List | 2022 - Present
Naperville North Highschool
Naperville North Highschool
Naperville, Illinois
Naperville, Illinois
Class of 2021 3.5 GPA
Class of 2021 3.5 GPA
Software
University of Cincinnati Cincinnati, Ohio
College of Design, Architecture, Art, Planning
Adobe Suite
SketchUp
• Best Design Solution | HKS Intern Charrette (2025)
• Peopleʼs Choice | HKS Intern Charrette (2025)
Rhino V Ray
• Led senior co-workers on a summer design project. directing tasks and presentation
Provided excellent service and recommendations to guests on menu options through menu knowledge
IRiS Ignite Expo | Selected Presenter (2025)
Revit
IDEC Design Competition | Selected Works (2025)
Enscape
ACTIVITIES
Leadership & Activities
Hyperquake | Story Building Intern | Cincinnati, OH
August 2024 - December 2024
• Lead co-workers to success through organizational skills and time management orders
• Took initiation on cleaning procedures and sanitizing prep area
• Developed 3D models and construction documents for immersive exhibition spaces
• Managed design revisions based on feedback from senior designers and clients
Jimmy Johns | Inshop Employee | Woodridge, IL
October 2020 - August 2021
• Produced design visuals and presentations to communicate ideas to clients
• Graduation photographer
• Fashion portfolio model | FIT
Senior Graduation photographer
• Sewing
Fashion design portfolio
• Painting
model | FIT
• Feed My Starving Children | Volunteer
• Researched a proposed innovative ideas and contributed creative solutions
Trained new employees on sandwich making and cleaning procedures
Perkins & Will | Corporate Interiors Intern | Chicago, IL
• Served approximately $2,000 worth of items to customers during each shift
January 2024 - April 2024
• Maintained inventory and followed the 20 cleaning procedures after lunch and
Sewing
• NNHS Youth Lacrosse Coach
Painting
Interior Design class of 2027
• AutoCAD
3.7 GPA
• Enscape
Deanʼs List | JAN 2022 - DEC 2023
• Rhino
• Revit
VRay
Collaborated and refined construction documents for a large energy complex using Revit
BaseCamp: Four Lakes Resort | Cashier | Lisle, IL
• Developed material and color palettes to align with client preferences
December 2018 - February 2019
• Managed the organization and exporting of presentations for client presentations
• Applied material finished to floor plans and created diagrams to effectively communicate design intent
Played a integral role in customer service and overall sales when understaffed
• Accommodated customers with food and beverages from the 25 menu items
• Worked daily opening and closing procedures including counting the $200 bank






Mass
Atlas of Active Art
Green Energy
PARASITE OF COLOR



The Site
The intervention is located at the American Can Lofts parking garage in Cincinnatiʼs Northside neighborhood, part of a former industrial canning factory now adapted into residential and commercial use. The garage, with its exposed concrete structure and utilitarian design, serves as a neutral backdrop ready to be transformed


The project creates a vibrant market and casual dining destination that prioritizes movement, variety, and community. Layers of the space expand vertically, offering diverse seating experiences, from intimate nooks to elevated overlooks, that invite visitors to explore as they eat or enjoy a quick drink. Exhibition areas showcase local artists and vendors, blending food, culture, and gathering into one dynamic environment The Experience








Perforated Panel Detail

Dynamic Threshold
This entry hall is defined by rotating colored perforated metal panels that frame the space on all sides. The panels can pivot a full 360 degrees, creating flexible thresholds into the adjacent areas. As visitors move through, overlapping layers of color shift and blend, producing a dynamic sensory experience that changes with every step


Exhibition Space
Outdoor Patio




Physical Model
This model was built beam by beam using materials such as wood, perforated metal, and museum board. Throughout the process, I experimented with spray paint application, particularly how it interacts with perforated metal. I also explored layering painted metals to observe how overlapping hues create new color effects
ATLAS OF ACTIVE ART





Bellevue Park in Cincinnati was chosen for its rich cultural diversity and panoramic views of the city. Shaped by waves of immigration and migration, the site reflects the mosaic of communities that define Cincinnati today. Its location symbolizes interconnectedness and provides an ideal backdrop for a pavilion dedicated to cultural exchange and shared learning. The Site
Design Concept
This pavilion blends cultural studies and art to create a multi-sensory, inclusive learning environment. Using art-based Learning methods enhanced by AI, it fosters intergenerational and intercultural exchange through shared creative experiences. Reconfigurable pods offer interactive activities, such as projection, soundscapes, textiles, and workshops, encouraging collaboration across age, language, and ability. The pavilion transforms art into a communal language that connects people and turns cultural history into a living classroom.



Different Typologies
Different configurations shape circulation within the structure. Grouping pods creates a continuous multi-sensory journey, while separating them highlights individual senses or paired experiences.


Touch & Sound - Human Vibrations
This pod uses a scaled-up Playtronica device to turn vibrations into visuals and sand patterns. Sensors detect human touch, translating it into shifting colors and textures for an interactive sensory experience.

Sound
- Cultural Song & Dance
This pod teaches sound and rhythm through dance. Paired users follow a cultural tutorial on digital walls, with AI visuals tracking their movements to encourage coordination and collaboration.


A second-story deck overlooking the Cincinnati skyline. AR binoculars identify buildings and layer digital projections with cultural and historical content.


and

Large textile hangings invite visitors to walk through and touch. Each textile includes a QR code linking to its history and community-submitted photos, blending tactile learning with storytelling.

A VR archive where visitors explore cultural stories through immersive projection. Users experience visual storytelling in a virtual world while also connecting with others in the physical space.
Sight - Lookout Deck
Sight & Sound - Digital Archive
Touch & Sight - Textile Exhibit
Touch - Art Studio & Trade
An art studio
market where visitors can create, trade, or sell their work. Tables, supplies, and trading stations encourage communication and community exchange.
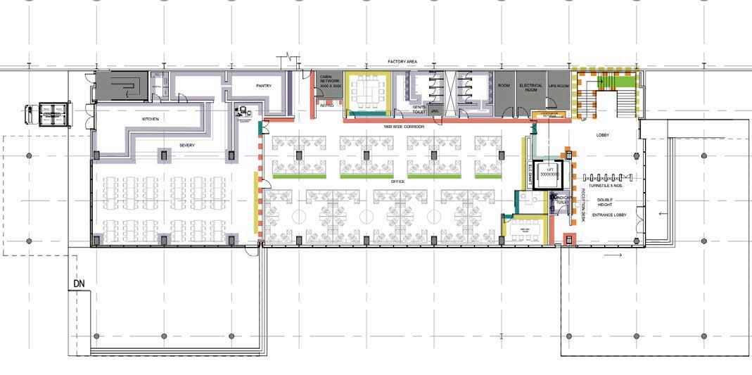
GREEN ENERGY COMPLEX


The lobby is the main entry and reception area for visitors, employees, and deliveries. It typically features a welcoming and functional design, with comfortable seating, informational signage, and often a reception desk or check-in area. Depending on the building layout, there may be multiple lobbies situated in different wings of the structure. Lobby



offer users a designated space for individual close access to colleagues and amenities. Open offce close proximity to collaboration spaces such as more acoustically private work spaces such as rooms. These workstations can be personalized for one desk” that allows many users to comfortably use the their work schedule.

The dining area serves as a collaborative space designed to facilitate employeesʼ breaks by providing a convenient eating place. It features a servery station aimed at simplifying the dining experience for employees.
Open office workstations offer users a designated space for individual focused work. The workstations are usually in close proximity to collaboration spaces such as meeting rooms as well as phone rooms or focus rooms.

The employee pantry offers a space where all employees can eat and socialize. When possible, locate pantries in a centralized space on a floor for easy access but far enough from focused or quiet working spaces to not disturb others.




LIVING INTELLIGENCE


The Site
Located at San Jacinto and St. Paul Streets in downtown Dallas, the site offers high visibility, pedestrian access, and a dynamic mix of culture, commerce, and infrastructure, an ideal setting to explore the intersection of technology, architecture, and public experience. Within this context, our work investigates AI-driven spatial storytelling engines, automation scripts for responsive environments, generative form-finding linked to visitor interaction patterns, and data-driven emotion mapping for visitor journey design.

Axis
A vertical and horizontal
Form
The dome as a void becomes a vessel of though, grounding the mind, becoming a space of wonder and learning
axis become the drivers, as the users journey both across and beneath the surface

A Subtle Presence Above Ground
From the exterior, the design remains intentionally understated. Rather than competing with the surrounding towers in scale, the form is kept compact yet striking. This restraint shifts the emphasis to the immersive spaces located below ground, where the true experience unfolds






Below Ground
The journey descends from the surface through a sequence of experiences: enlightenment, reflection, engagement, imagination, perception, and ultimately awakening. At each stage, AI plays a central role, shaping interactivity, multisensory immersion, and emotional resonance. Guided by the projectʼs design drivers, the underground progression becomes both a discovery of space and a dialogue with intelligence itself.

05 MASS TIMBER EXHIBITION

Site + Key Plan
Located in Cincinnatiʼs historic Brewery District, the exhibition occupies a barrel-vaulted brewing tunnel that provides an immersive backdrop for showcasing Mass Timber production. The spaces are arranged in a connected sequence, with my exhibition positioned at the center for easy movement between stages


Typologies
This diagram shows the different buildings surrounding the site, highlighting the diversity of the area


Greenery
The greenery of the surrounding areas is highlighted in green, emphasizing the vegetation within the urban site.

Accessibility
This diagram illustrates the various ways visitors can access the site, including by car, on foot, or by bus.








Plan, Section & Elevation
In my design, I focused on the central tree, creating layers around it. The center tree symbolizes the core of the trunk, while the outer walls represent tree rings, becoming more porous as you move inward. At the beginning of the exhibition space, there is a forest that illustrates the tree growth pattern for harvesting. This method, known as cross-section cutting, involves selectively cutting down every other tree in a pattern, allowing new trees to grow in between.
Production Explorations

Harvesting
Showcases tree harvesting patterns before manufacturing, immersing visitors in a forest-like experience

Tree Walk
An elevated walkway through the treetops, offering closer connection to nature and a deeper forest understanding

Manufacturing
Suspended beams illustrate the board footage from a single Douglas Fir, showing timberʼs scale and construction potential

Reuse & Recycle
Highlights woodʼs afterlife, showing how it can be recycled or repurposed for sustainable second uses

COMMUNITY CENTER


Site Plan
This community center, situated in the vibrant Over-The-Rhine neighborhood of Cincinnati, serves as a vital hub for the local community. It fosters positive social change by providing versatile spaces for various activities, fostering community engagement and empowerment, enriching urban life in Cincinnati.

Spatial Layers
The program of the community center unfolds in spatial layers: a welcoming reception, communal dining and lounge areas, and flexible spaces for library, study, and collaboration. Together, these layers build a framework for interaction, learning, and shared experience
This is the main lobby level. This features a reception, lounge and dining space, serving as the main hub of the building
1. Reception
Located at the main entrance of the buidling, the reception area is there to guide and help vistors among entry

2. Lobby & Lounge
The lounge area is centrally positioned on the first floor, providing guests with a space to relax or serve as a waiting area while awaiting assistance.

3. Dining
The dining area is situated on the East side of the building, directly across from the communal pantry space. Visitors can relax and enjoy their meals in this designated area.

Second Level
This main level is designed for studying and library usage, featuring a library, quiet study spaces, and open collaboration areas. Additionally, it provides computer stations for communal use
1. Library
The library, situated on both the East and West sides of the level, serves as a space where visitors can check out public books.

2. Quiet Study
Positioned at the center of the second level, this space is equipped with study tables and acoustic paneling on the walls and ceiling.

3. Open Collaboration
Situated at the South end of the building, the open collaboration space offers communal tables and computer stations
