Martyna Giniotytė "SIGULDOS KULTŪROS CENTRO INTERJERO PROJEKTAS"

Page 1

SIGULDOS KULTŪROS CENTRO INTERJERO PROJEKTAS

VILNIAUS DAILĖS AKADEJIMOS VILNIAUS FAKULTETO

INTERJERO DIZAINO KATEDRA

Martynos Giniotytės

SIGULDOS KULTŪROS CENTRO INTERJERO PROJEKTAS

Baigiamojo bakalauro darbo aiškinamasis raštas

Interjero dizaino studijų programa, valstybinis kodas 612PX017

Bakalaurantas (-ė): Martyna Giniotytė (parašas) (data)

Darbo vadovas (-ė): prof. Alvydas Šeibokas (parašas) (data)

Tvirtinu, katedros vedėjas (-a): doc. Rokas Kilčiauskas (parašas) (data)

Vilnius, 2018

4

TURINYS

KULTŪROS CENTRAS

LOKACIJA

MIESTO ISTORIJA

KONTEKSTAS

ESAMA SITUACIJA IR PROBLEMATIKA

SIEKIAI IR TIKSLAI

TURIZMAS

IDĖJA IR PAGRINDINIS TIKSLAS

PASTATO STRUKTŪRA

ANALIZUOJAMOS PATALPOS

REKONSTRUKCIJOS PROJEKTAS

RŪSIO PLANAS

SANITARINIO MAZGO DETALIZACIJA PIRMO AUKŠTO PLANAS

KONCERTŲ SALĖS DETALIZACIJA

PJŪVIS A - B

ANTRO AUKŠTO PLANAS

BIBLIOTEKOS PLANAS

BIBLIOTEKOS LENTYNOS IR STALO DETALIZACIJA

BIBLIOTEKOS BALDŲ IR APŠVIETIMO PARINKTYS

GALERIJOS ERDVĖ

GALERIJOS IŠKLOTINĖ TREČIO AUKŠTO PLANAS

BIBLIOTEKOS PLANAS

PJŪVIS C - D

BIBLIOTEKOS IŠKLOTINĖ

BALDŲ IR MEDŽIAGŲ PARINKTYS

APŠVIETIMO PARINKTYS

RŪSIO APŠVIETIMO PLANAS

PIRMO AUKŠTO APŠVIETIMO PLANAS

ANTRO AUKŠTO APŠVIETIMO PLANAS TREČIO AUKŠTO APŠVIETIMO PLANAS

ANOTACIJA

ŠALTINIAI

5
7 9 11 12 13 14 16 18 20 21 23 27 30 34 37 38 42 44 45 47 49 50 54 56 58 60 62 64 66 67 68 69 71 72
6

KULTŪROS CENTRAS – TAI KULTŪROS ĮSTAIGA, KURIOS VEIKLOS TURINYS ATSPINDI NACIONALINĖS

KULTŪROS SAMPRATĄ. ŠIANDIEN ŠI SAMPRATA APIMA: BENDRUOMENĖS GYVENTOJŲ KULTŪRINIŲ IR LAIS

VALAIKIO POREIKIŲ TENKINIMĄ, KŪRYBINĖS INICIATYVOS UGDYMĄ, KIEKVIENO KRAŠTO SAVITUMO ATSPIN

DĖJIMĄ, VIEŠŲ KULTŪROS PASLAUGŲ TEIKIMĄ, KUO DAUGIAU IR KUO ĮVAIRESNIO AMŽIAUS ŽMONIŲ Į MĖGĖ

JIŠKĄ KŪRYBĄ TRAUKIMĄ, PROFESIONALAUS MENO SKLAIDĄ, ETNINĖS KULTŪROS PUOSELĖJIMĄ IR KT.

7

AIKŠTĖ

8 PARKAS MIESTO
PAMINKLAS

LOKACIJA

SIGULDA YRA VIDŽEMĖS MIESTAS, ĮSIKŪRĘS ANT GAUJOS KRANTŲ, NUTOLĘS 53KM NUO RYGOS. TAI SVAR BUS TURIZMO CENTRAS LATVIJOJE.

KULTŪROS CENTRO SKLYPAS YRA SIGULDOS MIESTE PILIES GATVĖ 10. ŠALIA SKLYPO, DIDŽIULIS MIŠKINGAS PARKAS, MIESTO AIKŠTĖ BEI PAMINKLAS. KULTŪROS CENTRO LOKACIJA LABAI PATOGI, KADANGI PASTATAS

PROJEKTUOJAMAS BEVEIK PAČIAME MIESTO CNETRE, PUIKUS SUSIEKIMAS TIEK SAVO AUTOMOBILIU, TIEK VIEŠUOJU TRANSPORTU.

MIESTELIO SIENOS TAIP PAT APIMA ISTORINIŲ VIETŲ TURAIDOS IR KRIMULDOS CENTRUS. SIGULDOS APY LINKĖS YRA GAUJOS NACIONALINIO PARKO DALIS, TODĖL MIESTELĮ SUPA MIŠKAI, O BALTI GAUJOS UPĖS KRANTAI NUSĖTI SMĖLĖTŲ UOLŲ.

9
10

MIESTO ISTORIJA

SIGULDA - TAI TURISTŲ LANKOMIAUSIA VIETA LATVIJOJE. ČIA GALIMA NE TIK PASIGROŽĖTI GAUJOS UPE, BET IR APLANKYTI ISTORIJOS BEI KULTŪROS PAMINKLUS. SIGULDOS APYLINKES ANKSČIAU VADINO VIDŽEMĖS ŠVEICARIJA. MIESTO PARKE, PER KURĮ TEKA GAUJOS UPĖ, AUGA DAUGIAU KAIP 250 ĄŽUOLŲ, KURIŲ SKERSMUO SIEKIA 2-3 METRUS, IR DAUG KITŲ UNIKALIŲ EGZOTIŠKŲ MEDŽIŲ. MIESTO ISTORIJA PRASIDĖJO VIENUOLIKTAME AMŽIUJE, KAI FINOUGRU GENTYS - LIVONIEČIAI - VIETINIAI LATVIJOS ŽMONĖS ĮSIKŪRĖ DABARTINĖJE SIGULDOS TERITORIJOJE. ŠIOJE SRITYJE STIPRĖJO LIVONIEČIŲ TRADICIJOS IR KILTŪRA, O SIGULDA PALAIPSNIUI TAPO VIENU IŠ MODER NIAUSIŲ LATVIJOS MIESTŲ. TARPUKARYJE SIGULDOS, TURAIDOS IR KRIMULDOS TERITORIJOJE BUVO ĮKURTAS LATVIJOS NACIONALINIS PARKAS (649,9 HA). ŠIANDIEN SIGULDA - TURIZMO, POILSIO IR SPORTO CENTRAS. MIESTE, KAD TURISTAMS BŪTŲ PATOGIAU, PASTATYTA NE TIK AUTOBUSŲ STOTIS, BET IR PĖSČIŲJŲ TILTAS PER GAUJĄ, KELT AS, APŽVALGOS RATAS. 1953 METAIS PRADĖTA RESTAURUOTI TURAIDOS PILIS. 1985 METAIS, MININT LATVIŲ FOLKLORISTO KRIŠJANIO BARUONO 150 GIMIMO METINES, SIGULDOS PARKE BUVO ATIDENGTAS PAMINKLAS. SIGULDĄ VISAME PASAULYJE GARSINA BOBSLĖJAUS TRASA IR SPORTO KOMPLEKSAS.

11
12

KONTEKSTAS

• SIGULDOS KULTŪROS CENTRAS ĮKURTAS 1973 METAIS.

• KULTŪROS NAMAI DIRBO IKI 1996 METŲ VASARIO 2 DIENOS

• KAI BUVO PRIVATIZUOJAMAS OBJEKTAS VALSTYBĖS MOKSLINIŲ TYRIMŲ ŪKIO

“SIGULDA” PIRKIMO - PARDAVIMO SUTARTIMI KULTŪROS NAMAI BUVO IŠPIRKTI

IR TAPO SIGULDOS PARAPIJOS KULTŪROS NAMAIS.

• NUO 2015 METŲ TAPO SIGULDOS RAJONO SAVIVALDYBĖS “SIGULDOS KRAŠ

TO KULTŪROS DEPARTAMENTO” STRUKTŪRINIS PADALINYS.

13

ESAMA SITUACIJA IR PROBLEMATIKA

DABARTINIS PASTATAS YRA PASENĘS IR NEGALI KOKYBIŠKAI VYKDYTI SAVO FUNKCIJŲ.

SIGULDOJE ŠIUO METU NĖRA ERDVIŲ SALIŲ, KURIOSE TILPTŲ PAKANKAMAI ŽMONIŲ NORINČIŲ RENGINIUS BEI KONCERTUS. MIESTE YRA RENGINIŲ SALĖ, KURI TALPINA TIK 250 ŽIŪROVŲ. IKI ŠIOL SIGULDOJE NEPAVYKO PRITRAUKTI KELIŲ PAGRINDINIŲ PRAMOGINIŲ RENGINIŲ OR GANIZATORIŲ DĖMĖSIO, TIK DĖL NETINKAMŲ PATALPŲ IR JŲ DYDŽIO.

PASTATAS, KURIAME ĮRENGTAS KULTŪROS CENTRAS, BUVO PASTATYTAS 1962 METAIS IR NUO TO LAIKO, JAME NEBUVO ATLIKTA JOKIŲ REIKŠMINGŲ RENOVCIJOS DARBŲ.

14

SIEKIAI IR TIKSLAI

SUKURTI ERDVĘ, KURI SUKURTŲ SIGULDOS MIESTUI BENDUOMENIŠKUMO JAUSMĄ

MODERNUS IR ŠIUOLAIKIŠKAM ŽMOGUI PATRAUKLUS INTERJERAS

FUNKCIONALIOS ERDVĖS

GALIMYBĖ EKSPONUOTI ĮVAIRAUS FORMATO MENO KŪRINIUS

GALIMYBĖ UŽSIIMTI EDUKACINE VEIKLA

RENGINIŲ SALĖS IŠSAUGOJIMAS IR MODERNIZAVIMAS

15

VEIKSNIAI, TRAUKIANTYS TURISTUS BEI NAUJUS GYVENTOJUS Į SIGULDOS MIESTĄ

PLATUS KULTŪRINIŲ RENGINIŲ PASIRINKIMAS

ŠVIETIMO ĮSTAIGOS

NUOLAT AUGANTIS GYVENTOJŲ SKAIČIUS

AUKŠTAS GYVENIMO KOKYBĖS LYGIS

SPORTO IR AKTYVAUS POILSIO ĮVAIROVĖ

SOCIALINĖS PASLAUGOS

TURIZMAS POILSIS AKTYVI GYVENSENA

16
17 PER METUS LANKOSI APIE 600 000 LANKYTOJŲ GAMTA ISTORIJA KULTŪRA IR LAISVALAIKIS

PAGRINDINIS PROJEKTO TIKSLAS - SUKURTI PALANKIĄ IR VISIŠKAI IŠVYSTYTĄ APLINKĄ NAUDINGAM LAISVALAIKIO PRALEIDIMUI, KULTŪROS SKLEIDIMUI BEI EDUKACIJAI. ATGAIVINTI SUVOKIMĄ APIE KULTŪROS CENTRĄ BEI PERKELTI JĮ Į AUKŠTESNĮ LYGMENĮ, SUKURTI MODERNŲ, GERAI FUNKCIONUOJANTĮ OBJEKTĄ, KURIS KIEKVIENAM LANKYTOJUI SUTEIKTŲ GALIMYBĘ MĖGAUTIS. NAUJŲ SPRENDINIŲ DĖKA KULTŪROS CENTRAS TAPTŲ TRAUKOS CENTRU NE TIK SIGULDOS GYVENTOJAMS, BET IR MIESTO SVEČIAMS. KULTŪROS CENTRE KURIAMA GALIMYBĖ UŽSIIMTI EDUKACINE VEIKLA, KADANGI ĮRENGIAMA BIBLIOTEKOS ERDVĖ PER DU AUKŠTUS, TAIP

PAT PARODŲ RENGIMAS BEI KONCERTŲ IR TEATRO PASIRODYMAI. ČIA PAT IR RESTORANO ERDVĖ SU LAUKO TERASA.

18

PROJEKTO KONCEPSIJOS ĮDĖJA KILO NUO PASTATO LOKACIJOS. KADINGI KULTŪROS CENTRAS ĮSIKŪRĘS MIŠKINGOJE BEI ŽALIOJE ZONOJE, ĮDĖJĄ SIEJU SU ŽEMIŠKUMU BEI GAMTA. INTERJERE DOMINUOJA ŽEMĖS PALETĖS SPALVOS. PAGRINDINĖS IR AKCENTINĖS - ŽALIA BEI RUDA. TAIP INTERJERAS TAMPA ŠV ELNUS IR ŽEMIŠKAS, RAMINANTIS BEI ATPALAIDUOJANTIS.

19

PASTATO STRUKTŪRA

20
KULTŪROS CENTRO PASTATAS VIZUALIAI ATRODO, JOG SUSIDEDA IŠ KETURIŲ AT SKIRŲ, TŪRIŲ, TAČIAU JIS YRA VIENTISAS. VISĄ PASTATĄ SUDARO MENO MOKYK LOS BLOKAS, KONCERTŲ SALĖS BLOKAS, GALERIJOS ERDVĖ BEI BIBLIOTEKOS ERDVĖ PER DU AUKŠTUS.

ANALIZUOJAMOS PATALPO

ŠIAME PROJEKTE ANALIZUOJU EKSPOZICIJŲ SALĘ, KON CERTŲ SALĘ, RECEPSIJĄ SU PAGRINDINE ERDVE, RESTORANO, KARTU IR BARO ERDVĘ, TAIP PAT LAUKO TERASĄ BEI BIBLI OTEKOS ERDVES PER DU AUKŠTUS. NELIESTA LIEKA ŠIAURĖS VAKARUOSE SUPROJEKTUOTA PASTATO DALIS, KURIOJE NU MARYTOS MENO MOKYKLOS ERDVĖS.

21

INTERJERO PROJEKTAS

24 BENDROJI ERDVĖ
26
27 RŪSIO PLANAS M 1:500TECHNINĖS PATALPOS TECHNINIS KORIDORIUS ĮRAŠŲ STUDIJA ĮRAŠŲ STUDIJA POILSIO ZONA SANITARINIS MAZGAS TAMBŪRAS TECHNINĖS PATALPOS TAMBŪRAS AUDITORIJA AUDITORIJA AUDITORIJA AUDITORIJA AUDITORIJA ŽALIA ZONA SALĖ RŪBINĖ SANITARINIS MAZGAS SANITARINIS MAZGAS SANITARINIS MAZGAS SANITARINIS MAZGAS TARNYBINĖS PATALPOS 024 025 026 027 028 029 030 031 032 033 034 035 036 037 038 039 040 041 042 043 044 045 SAUGYKLA SALĖ KORIDORIUS SANITARINIS MAZGAS SANITARINIS MAZGAS SANITARINIS MAZGAS SALĖ REPETICIJŲ ZONA KORIDORIUS TECHNINĖS PATALPOS TECHNINĖS PATALPOS KINO SALĖ TAMBŪRAS SAUGYKLA GARSO - ŠVIESŲ PATALPOS GARSO - ŠVIESŲ PATALPOS TAMBŪRAS TAMBŪRAS TARNYBINĖS PATALPOS TECHNINĖS PATALPOS SALĖ TECHNINĖS PATALPOS 167.08 M2 39.06 M2 56.78 M2 30.82 M2 12.50 M2 1.90 M2 7.56 M2 19.56 M2 8.98 M2 29.38 M2 29.38 M2 29.38 M2 29.38 M2 27.79 M2 161.93 M2 372.51 M2 113.36 M2 43.52 M2 33.40 M2 6.56 M2 6.56 M2 6.49 M2 001 003 004 005 006 007 008 009 010 011 012 013 014 015 016 017 018 019 020 021 022 023 85.14 M2 19.96 M2 69.17 M2 10.15 M2 4.86 M2 10.15 M2 20.44 M2 162.16 M2 81.25 M2 106.90 M2 626.22 M2 270.52 M2 7.96 M2 5.45 M2 15.14 M2 7.49 M2 6.07 M2 5.71 M2 16.30 M2 153.35 M2 123.03 M2 177.60 M2
BENDRASIS
SANITARINIS MAZGAS HOLAS SU VIDINIU KIEMU

COKOLINIAME AUKŠTE PROJEKTUOJAMA RŪBINĖS ERDVĖ, TAIP PAT BENDRŲJŲ SAN. MAZGŲ BLOKAS. ŠIAME AUKŠTE ĮRENGTA KINO SALĖ IR PERSONALO PATALPOS. ŠIO AUKŠTO LYGYJE SUPROJEKTUOTAS VIDINIS KIEMELIS, KURIS PUIKIAI MATOMAS PER VISUS PASTATO AUKŠTUS PAGRINDINĖJE ZONOJE. ERDVUS PRAĖJIMAI PADEDA IŠVENGTI SPŪSČIŲ RENGINIŲ, KONCERTŲ

BEI PARODŲ METU.

29
30 SANITARINIO MAZGO DETALIZACIJA / SPRENDINIAI
31
32
33 UNITAZAS VILLEROY & BOCH “O.NOVO VITA” PRAUSTUVAS “ORB” SIENINIS MAISYTUVAS “STILL ONE” PISUARAS “STARCK 3”
34 PIRMO AUKŠTO PLANAS SALĖ KORIDORIUS LAUKO KAVINĖ PAGRINDINIS ĮĖJIMAS SAUGYKLA SANITARINIS MAZGAS SANITARINIS MAZGAS LIFTAS MOKYTOJŲ KAMBARYS SEKRETORIATAS VADOVO KAMBARYS SAUGYKLA SAUGYKLA APSAUGA LAUKIAMASIS RŪBINĖ - LAUKIAMASIS VAIKŲ KAMBARYS KORIDORIUS TAMBŪRAS 124 125 126 127 128 129 130 131 132 133 134 135 136 137 138 139 140 141 142 FOJĖ KAVINĖ SALĖ SAUGYKLA SANITARINIS MAZGAS SANITARINIS MAZGAS SANITARINIS MAZGAS SALĖ REPETICIJŲ ZONA SALĖ SAUGYKLA KORIDORIUS PAGRINDINĖ SALĖ UNIVERSALI SALĖ TAMBŪRAS TARNYBINĖS PATALPOS VIRTUVĖS PATALPOS VIRTUVĖ SANITARINIS MAZGAS BARO ZONA 11.57 M2 6.12 M2 102.61 M2 17.69 M2 17.69 M2 19.05 M2 15.53 M2 22.28 M2 32.13 M2 12.70 M2 10.75 M2 29.63 M2 57.42 M2 55.77 M2 134.88 M2 5.86 M2 101 102 103 104 105 106 107 108 110 111 112 113 114 117 118 119 120 121 122 123 107.20 M2 90.64 M2 20.34 M2 68.64 M2 10.15 M2 4.86 M2 10.15 M2 20.59 M2 128.79 M2 22.80 M2 44.73 M2 76.96 M2 548.37 M2 288.49 M2 7.44 M2 6.44 M2 34.65 M2 66.95 M2 14.37 M2 15.52 M2 M 1:500 RESTORANO, BARO IR LAUKO TERASOS ERDVĖ KONCERTŲ SALĖ

PIRMAME PASTATO AUKŠTE PROJEKTUOJAMA RESTORANO ERDVĖ, ŠALIA KURIOS BARAS, TAIP PAT LAIUKO TERASA. IŠ ŠIO AUKŠTO ATSIVERIA PUIKUS VAIZDAS Į VIDINĮ ŽALIĄ KIEMELĮ, KURIS MATOMAS VISOJE PAGRINDINĖJE ERDVĖJE. TAIP PAT ŠIAME AUKŠTE PROJEKTUOJAMA MULTIFUNKCINĖ KONFERENCIJŲ SALĖ BEI KONCERTŲ SALĖ.

35

KONCERTŲ SALĖS SIENŲ APDAILOS TVIRTINIMO DETALIZACIJA

AKUSTINĖS PLOKŠTĖS BRIAUNOS YRA GAMINAMOS IŠ MEDIENOS MASYVO, JOS SUTEIKIA PLOKŠTEI TVIRTUMO MONTAVIMO VIETOSE. TURI A2-S1, D0 DEGUMO KLASĖS SERTIFIKATĄ.

37 AKUSTINĖ FIBROGIPSO PLOKŠTĖ MEDŽIO LENTOS LAMINUOTA MEDIENOS DROŽLIŲ PLOKŠTĖ LMPD
38 PJŪVIS A - B
39
40 RESTORANO IR BARO ZONA

KORIDORIUS

ADMINISTRACIJA

ADMINISTRACIJA

ADMINISTRACIJA

KORIDORIUS

SANITARINIS

SANITARINIS

42 ANTRO AUKŠTO PLANAS BIBLIOTEKOS PATALPA BIBLIOTEKOS PATALPA BIBLIOTEKOS VADOVAS SANITARINIS MAZGAS POILSIO ZONA SALĖ EKSPOZICIJŲ SALĖ SALĖ SANITARINIS MAZGAS SANITARINIS MAZGAS LIFTAS SKULPTŪROS KLASĖ SKULPTŪROS KLASĖ TECHNINĖS PATALPOS GRAFIKOS KLASĖ NUOTRAUKŲ LABORATORIJA MENO KLASĖ TECHNINĖS PATALPOS STIKLO LABORATORIJA ŚILKO LABORATORIJA TECHNINĖS PATALPOS KORIDORIUS ATVIRA ERDVĖ 225 226 227 228 229 230 233 234 235 236 237 238 239 240 241 242 243 244 245 246 247 248 251 FOJE GARSO - ŠVIESŲ PATALPOS
ADMINISTRACIJA ADMINISTRACIJA ADMINISTRACIJA ADMINISTRACIJA SALĖ
MAZGAS
MAZGAS SANITARINIS MAZGAS TARNYBINĖS PATALPOS SALĖ KORIDORIUS TAMBŪRAS REGISTRATŪRA VAIKŲ SKAITYMO KAMBARYS NAUJIENŲ ZONA KORIDORIUS KORIDORIUS 23.90 M2 20.86 M2 34.26 M2 14.37 M2 14.80 M2 11.87 M2 316.53 M2 102.61 M2 17.69 M2 17.69 M2 19.05 M2 25.04 M2 12.76 M2 32.13 M2 18.32 M2 39.03 M2 17.53 M2 32.41 M2 35.72 M2 18.15 M2 135.16 M2 201 202 203 204 205 206 207 208 209 210 211 212 213 214 215 216 217 218 219 220 221 222 223 224 106.40 M2 36.57 M2 33.88 M2 26.68 M2 15.88 M2 15.88 M2 15.88 M2 20.34 M2 13.74 M2 13.74 M2 19.42 M2 31.35 M2 10.15 M2 4.86 M2 10.15 M2 14.04 M2 2.19 M2 76.95 M2 5.44 M2 14.87 M2 217.68 M2 46.90 M2 27.77 M2 6.20 M2 M 1:500 GALERIJOS ERDVĖ BIBLIOTEKA

ANTRAME PASTATO AUKŠTE PROJEKTUOJAMA BIBLIOTEKOS ERDVĖ, KURI IŠPLANUOJAMA

PER DU AUKŠTUS. ŠIAME BIBLIOTEKOS AUKŠTE ĮRENGTOS PATOGIOS SKAITYMO VIETOS, TAIP

PAT STALAI SKIRTI DARBUI SU KOMPIUTERIU BEI VAIKŲ ŽAIDIMŲ ZONA. ŠIAME AUKŠTE TAIP

PAT ĮRENGTA GALERIJOS ERDVĖ, KURIOJE YRA GALIMYBĖ EKSPONUOTI NE TIK PAVEIKSLUS, BET IR SMULKESNIUS MENO KŪRINIUS, TOKIUS KAIP SKULPTŪRAS, JUVELYRIKĄ, RANKRAŠČIUS

IR PANAŠIAI. ERDVĖ KINTANTI, TODEL PRIKLAUSOMAI NUO PARODOS TIPO IR KŪRĖJO NORŲ, ERDVĖ GALI BUTI PERSTUMDOMA. ŽYDRA SPALVA EKSPOZICIJŲ SIENAI PASIRINKTA REMIANTIS KONTEKSTU, KURIS SIEJAMAS SU ŽEMĖS SPAVOMIS. TAČIAU JI TAIP PAT KINTANTI IR GALI BŪTI

LENGVAI PERDAŽOMA PAGAL MENININKO NORUS.

43
44 BIBLIOTEKOS PLANAS M 1:100
45 BIBLIOTEKOS STALO BEI LENTYNOS DETALIZACIJA

LAPALMA

APŠVIETIMO IR BALDŲ PARINKTYS

TORŠERAS

47 MICROLINE 60 151 LM DELTALIGHT
PALO MICHAEL RAASCH E15 KĖDĖ CATCH JAIME HAYON &TRADITION BARO KĖDĖ CATCH JAIME HAYON &TRADITION
ACCA MDD ULTRA P8

GALERIJOS TRANSFORMACIJOS SPRENDINIAI

LAIPTINĖ / EVAKUACINIS IŠĖJIMAS

LENGVAI TRANSFORMU OJAMOS EKSPOZICIJŲ SIENOS

EKSPOZICIJA SKIR TA SKULPTŪROMS IR

KITIEMS SMULKIEMS MENO DIRBINIAMS

ATSISĖDIMO VIETOS

49
50 GALERIJOS IŠKLOTINĖ
51

GALERIJOJE EKSPONUOJAMI SABRINA GARRASI DARBAI

52
53

ATVIRA ERDVĖ

GARSO - ŠVIESŲ PATALPOS

KORIDORIUS

ATLIKĖJŲ KAMBARYS

ATLIKĖJŲ

ATLIKĖJŲ KAMBARYS

ATLIKĖJŲ KAMBARYS

TAMBŪRAS

KORIDORIUS

ATLIKĖJŲ KAMBARYS

ATLIKĖJŲ KAMBARYS

ATLIKĖJŲ KAMBARYS

SANITARINIS MAZGAS

SANITARINIS MAZGAS

SANITARINIS MAZGAS

REPETICIJŲ

TAMBŪRAS

REGISTRATŪRA

PRIVATŪS

SKAITYMO ZONA

NAUJIENŲ

SANITARINIS MAZGAS

KORIDORIUS

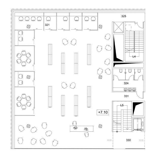
54 TREČIO AUKŠTO PLANAS TARNYBINĖS PATALPOS SAUGYKLA KONFERENCIJŲ SALĖ GARSO ZONA SALĖ KORIDORIUS ATVIRA ERDVĖ ATVIRA ERDVĖ SANITARINIS MAZGAS SANITARINIS MAZGAS LIFTAS TECHNINĖS PATALPOS TEKSTILĖS KLASĖ KOMPOZICIJOS KLASĖ SAUGYKLA KOMPIUTERIŲ KLASĖ PARENGIAMOJI KLASĖ PIEŠIMO TAPYBOS TAPYBOS KORIDORIUS ATVIRA ERDVĖ 326 327 328 329 330 331 334 335 336 337 338 339 340 341 342 343 344 345 346 347 348 251
KAMBARYS
ZONA
DARBO KAMBARIAI
ZONA
18.74 M2 25.99 M2 34.34 M2 14.93 M2 11.44 M2 6.20 M2 17.69 M2 14.69 M2 19.05 M2 25.04 M2 26.91 M2 17.98 M2 21.61 M2 35.68 M2 35.71 M2 32.43 M2 36.35 M2 135.16 M2 301 302 303 304 305 306 307 308 309 310 311 312 313 314 315 316 317 320 321 322 323 324 325 18.48 M2 21.84 M2 11.04 M2 11.04 M2 10.80 M2 4.59 M2 47.10 M2 15.57 M2 15.75 M2 15.57 M2 10.15 M2 4.86 M2 10.15 M2 156.81 M2 9.23 M2 14.86 M2 30.10 M2 184.23 M2 44.07 M2 14.37 M2 33.09 M2 M 1:500 BIBLIOTEKA

TREČIAME PASTATO AUKŠTE PROJEKTUOJAMA BIBLIOTEKOS ERDVĖ. ŠIAME BIBLIOTEKOS AUKŠTE ĮRENGTOS PATOGIOS SKAITYMO VIETOS, TAIP PAT UŽDAROS DARBO VIETOS BEI NEDIDELĖS KONFERENCIJŲ BEI SUSITIKIMŲ ERDVĖS. ŠIAME AUKŠTE TAIP PAT MATOMA VIDINIO KIEMO AUGMENIJA.

55
56 BIBLIOTEKOS PLANAS M 1:100
58 PJŪVIS C - D
59
60 BIBLIOTEKOS IŠLOTINĖ
61

- DOUBLE DIP

BALDŲ PARINKTYS

KĖDĖ

APVALUS STALAS PORRO

KĖDĖS SU PORANKIAIS BEA FABRIC

FOTELIS

62 BARO
TON MERANO
ELLIPSE
TABLE
KĖDĖS SU PORANKIAIS ANTONIO CITTERIO BB ITALIA
CLOUD LUCA NICHETTO &TRADITION
DIP
CHRIS HOWKER B&B ITALIA PROJECT
63
VILNOS KILIMINĖ DANGA DAŽYTA PLOKSTĖ MEDŽIO PLAUŠO PLOKŠTĖ LIETAS EPOKSIDAS TERASOS LENTOS MEDVILNĖS AUDINYSMEDVILNĖS AUDINYS SINTETINIS AUDINYS MEDVILNĖS AUDINYS MEDVILNĖS AUDINYS BETONO PLOKSTĖS BETONO PLOKŠTĖS MEDŽIAGŲ PARINKTYS

APŠVIETIMO PARINKTYS

64 BOXY R 973 LM IP20 2700K - 33° CRI 80 DELTALIGHT MICROLINE 60 151 LM DELTALIGHT TORŠERAS PALO MICHAEL RAASCH E15 SPY TRIMLESS 93033 3000K 1075 LM IP20
ŠVIESTUVAS 1x 8w - LED 3000k 800Lm
65

TECHNINĖS

RŪSIO APŠVIETIMO PLANAS SAUGYKLA SALĖ KORIDORIUS SANITARINIS MAZGAS SANITARINIS MAZGAS SANITARINIS MAZGAS SALĖ REPETICIJŲ ZONA KORIDORIUS TECHNINĖS PATALPOS TECHNINĖS PATALPOS KINO SALĖ TAMBŪRAS SAUGYKLA GARSO - ŠVIESŲ PATALPOS GARSO - ŠVIESŲ PATALPOS TAMBŪRAS TAMBŪRAS TARNYBINĖS PATALPOS TECHNINĖS PATALPOS SALĖ TECHNINĖS PATALPOS 024 025 026 027 028 029 030 031 032 033 034 035 036 037 038 039 040 041 042 043 044 045
PATALPOS TECHNINIS KORIDORIUS ĮRAŠŲ STUDIJA ĮRAŠŲ STUDIJA POILSIO ZONA SANITARINIS MAZGAS TAMBŪRAS TECHNINĖS PATALPOS TAMBŪRAS AUDITORIJA AUDITORIJA AUDITORIJA AUDITORIJA AUDITORIJA ŽALIA ZONA SALĖ RŪBINĖ SANITARINIS MAZGAS SANITARINIS MAZGAS SANITARINIS MAZGAS SANITARINIS MAZGAS TARNYBINĖS PATALPOS 167.08 M2 39.06 M2 56.78 M2 30.82 M2 12.50 M2 1.90 M2 7.56 M2 19.56 M2 8.98 M2 29.38 M2 29.38 M2 29.38 M2 29.38 M2 27.79 M2 161.93 M2 372.51 M2 113.36 M2 43.52 M2 33.40 M2 6.56 M2 6.56 M2 6.49 M2 001 003 004 005 006 007 008 009 010 011 012 013 014 015 016 017 018 019 020 021 022 023 85.14 M2 19.96 M2 69.17 M2 10.15 M2 4.86 M2 10.15 M2 20.44 M2 162.16 M2 81.25 M2 106.90 M2 626.22 M2 270.52 M2 7.96 M2 5.45 M2 15.14 M2 7.49 M2 6.07 M2 5.71 M2 16.30 M2 153.35 M2 123.03 M2 177.60 M2 M 1:500
PIRMO AUKŠTO APŠVIETIMO PLANAS SALĖ KORIDORIUS LAUKO KAVINĖ PAGRINDINIS ĮĖJIMAS SAUGYKLA SANITARINIS MAZGAS SANITARINIS MAZGAS LIFTAS MOKYTOJŲ KAMBARYS SEKRETORIATAS VADOVO KAMBARYS SAUGYKLA SAUGYKLA APSAUGA LAUKIAMASIS RŪBINĖ - LAUKIAMASIS VAIKŲ KAMBARYS KORIDORIUS TAMBŪRAS 124 125 126 127 128 129 130 131 132 133 134 135 136 137 138 139 140 141 142 FOJĖ KAVINĖ SALĖ SAUGYKLA SANITARINIS MAZGAS SANITARINIS MAZGAS SANITARINIS MAZGAS SALĖ REPETICIJŲ ZONA SALĖ SAUGYKLA KORIDORIUS PAGRINDINĖ SALĖ UNIVERSALI SALĖ TAMBŪRAS TARNYBINĖS PATALPOS 6.44 VIRTUVĖS PATALPOS 34.65 VIRTUVĖ 66.95 SANITARINIS MAZGAS BARO ZONA 11.57 M2 6.12 M2 102.61 M2 17.69 M2 17.69 M2 19.05 M2 15.53 M2 22.28 M2 32.13 M2 12.70 M2 10.75 M2 29.63 M2 57.42 M2 55.77 M2 134.88 M2 5.86 M2 101 102 103 104 105 106 107 108 110 111 112 113 114 117 118 119 120 121 122 123 107.20 M2 90.64 M2 20.34 M2 68.64 M2 10.15 M2 4.86 M2 10.15 M2 20.59 M2 128.79 M2 22.80 M2 44.73 M2 76.96 M2 548.37 M2 288.49 M2 7.44 M2 6.44 M2 34.65 M2 66.95 M2 14.37 M2 15.52 M2 M 1:500

FOJE GARSO - ŠVIESŲ PATALPOS

ADMINISTRACIJA

ADMINISTRACIJA

SANITARINIS

68 ANTRO AUKŠTO APŠVIETIMO PLANAS BIBLIOTEKOS PATALPA BIBLIOTEKOS PATALPA BIBLIOTEKOS VADOVAS SANITARINIS MAZGAS POILSIO ZONA SALĖ EKSPOZICIJŲ SALĖ SALĖ SANITARINIS MAZGAS SANITARINIS MAZGAS LIFTAS SKULPTŪROS KLASĖ SKULPTŪROS KLASĖ TECHNINĖS PATALPOS GRAFIKOS KLASĖ NUOTRAUKŲ LABORATORIJA MENO KLASĖ TECHNINĖS PATALPOS STIKLO LABORATORIJA ŚILKO LABORATORIJA TECHNINĖS PATALPOS KORIDORIUS ATVIRA ERDVĖ 225 226 227 228 229 230 233 234 235 236 237 238 239 240 241 242 243 244 245 246 247 248 251
KORIDORIUS ADMINISTRACIJA ADMINISTRACIJA ADMINISTRACIJA ADMINISTRACIJA SALĖ
ADMINISTRACIJA KORIDORIUS
MAZGAS SANITARINIS MAZGAS SANITARINIS MAZGAS TARNYBINĖS PATALPOS SALĖ KORIDORIUS TAMBŪRAS REGISTRATŪRA VAIKŲ SKAITYMO KAMBARYS NAUJIENŲ ZONA KORIDORIUS KORIDORIUS 23.90 M2 20.86 M2 34.26 M2 14.37 M2 14.80 M2 11.87 M2 316.53 M2 102.61 M2 17.69 M2 17.69 M2 19.05 M2 25.04 M2 12.76 M2 32.13 M2 18.32 M2 39.03 M2 17.53 M2 32.41 M2 35.72 M2 18.15 M2 135.16 M2 201 202 203 204 205 206 207 208 209 210 211 212 213 214 215 216 217 218 219 220 221 222 223 224 106.40 M2 36.57 M2 33.88 M2 26.68 M2 15.88 M2 15.88 M2 15.88 M2 20.34 M2 13.74 M2 13.74 M2 19.42 M2 31.35 M2 10.15 M2 4.86 M2 10.15 M2 14.04 M2 2.19 M2 76.95 M2 5.44 M2 14.87 M2 217.68 M2 46.90 M2 27.77 M2 6.20 M2 M 1:500

ATVIRA

GARSO -

KORIDORIUS

ATLIKĖJŲ KAMBARYS

ATLIKĖJŲ KAMBARYS

ATLIKĖJŲ KAMBARYS

ATLIKĖJŲ KAMBARYS

TAMBŪRAS

KORIDORIUS

ATLIKĖJŲ KAMBARYS

ATLIKĖJŲ KAMBARYS

ATLIKĖJŲ KAMBARYS

SANITARINIS MAZGAS

SANITARINIS MAZGAS

SANITARINIS MAZGAS

REPETICIJŲ ZONA

TAMBŪRAS

REGISTRATŪRA

PRIVATŪS DARBO KAMBARIAI

SKAITYMO ZONA

NAUJIENŲ ZONA

SANITARINIS MAZGAS

KORIDORIUS

69 TREČIO AUKŠTO APŠVIETIMO PLANAS M 1:500 TARNYBINĖS PATALPOS SAUGYKLA KONFERENCIJŲ SALĖ GARSO ZONA SALĖ KORIDORIUS ATVIRA ERDVĖ ATVIRA ERDVĖ SANITARINIS MAZGAS SANITARINIS MAZGAS LIFTAS TECHNINĖS PATALPOS TEKSTILĖS KLASĖ KOMPOZICIJOS KLASĖ SAUGYKLA KOMPIUTERIŲ KLASĖ PARENGIAMOJI KLASĖ PIEŠIMO TAPYBOS TAPYBOS KORIDORIUS ATVIRA ERDVĖ 326 327 328 329 330 331 334 335 336 337 338 339 340 341 342 343 344 345 346 347 348 251
ERDVĖ
ŠVIESŲ PATALPOS
18.74 M2 25.99 M2 34.34 M2 14.93 M2 11.44 M2 6.20 M2 17.69 M2 14.69 M2 19.05 M2 25.04 M2 26.91 M2 17.98 M2 21.61 M2 35.68 M2 35.71 M2 32.43 M2 36.35 M2 135.16 M2 301 302 303 304 305 306 307 308 309 310 311 312 313 314 315 316 317 320 321 322 323 324 325 18.48 M2 21.84 M2 11.04 M2 11.04 M2 10.80 M2 4.59 M2 47.10 M2 15.57 M2 15.75 M2 15.57 M2 10.15 M2 4.86 M2 10.15 M2 156.81 M2 9.23 M2 14.86 M2 30.10 M2 184.23 M2 44.07 M2 14.37 M2 33.09 M2

SIGULDOS KULTŪROS CENTRAS

ŠIAME PROJEKTE SIEKIAMA SUKURTI ERDVĘ, KURI SIGULDOS MIESTUI SUKURTŲ BENDRUOMENIŠKUMO JAUSMĄ. KOKYBIŠKAI FUNKCIONUOTŲ KAIP EDUKACIJĖS VEIKLOS BEI KULTŪROS BLOKAS.

PROJEKTO TIKSLAS - ATGAIVINTI SUVOKIMĄ APIE KULTŪROS CENTRĄ BEI PERKELTI JĮ Į AUKŠTESNĮ LYGMENĮ. SUKURTI MODERNŲ, GERAI FUNKCIONUOJANTĮ OBJEKTĄ. KULTŪROS CENTRAS TAPTŲ TRAUKOS CENTRU NE TIK SIGULDOS MIESTO GYVENTOJAMS, BET IR MIESTO SVEČIAMS. SIGULDOS CULTURAL CENTRE.

THE PURPOSE OF THIS PROJECT IS TO CREATE A SPACE WHICH WOULD GIVE SIGULDA CITY A COMMUNITY SPIRIT FEEL ING. IT WOULD QUALITATIVELY FUNCTION AS A EDUCATIONAL ACTIVITY AND CULTURAL BLOCK. THE AIM OF THIS PROJECT IS

TO REVIVE THE PERCEPTION ABOUT CULTURAL CENTRE AND TRANSFER IT TO A HIGHER LEVEL. TO CREATE A MODERN, WELL FUNCTIONING OBJECT. THE CULTURAL CENTRE WOULD BECOME AN ATTRACTION CENTRE NOT ONLY TO SILGULDA`S CITY RESIDENTS BUT ALSO TO CITY GUEST.

71

ŠALTINIAI:

HTTP://WWW.ENTERGAUJA.COM/EN/ENTER-GAUJA/ABOUT-REGION/ SIGULDA#OVERVIEW

HTTP://CYBERKNIFE-SIGULDA.COM/EN/WHY-SIGULDA/ HTTP://WWW.VISITS4U.EU/WP-CONTENT/UPLOADS/2016/09/SIGULDAEASY-READ-FINAL-ENGLISH.DOCX.PDF

HTTP://NRA.LV/LATVIJA/REGIONOS/126646-MITREVICS-TURISMS-SIGUL DA-IR-AKTIVS-AUGU-GADU.HTM

HTTPS://WWW.SIGULDA.LV/PUBLIC/ HTTP://WWW.LATVIA.TRAVEL/LT/CITY/SIGULDA-8 HTTPS://WWW.MYTRIPS.LT/PASAKOJIMAS/PASIVAIKSCIOJIMAI-PO-SIGUL DA-IR-NE-TIK/733/ HTTPS://LT.WIKIPEDIA.ORG/WIKI/SIGULDA

HTTPS://WWW.DEZEEN.COM

HTTPS://WWW.ARCHDAILY.COM

72

Turn static files into dynamic content formats.

Create a flipbook
Issuu converts static files into: digital portfolios, online yearbooks, online catalogs, digital photo albums and more. Sign up and create your flipbook.