Elina Kirjakulova "Inkliuzinės erdvės kūrimas. Darželio rekonstrukcija"

Page 1

Inkliuzinės erdvės kurimas

Darželio rekonstrukcija

VILNIAUS DAILĖS AKADEMIJOS

VILNIAUS FAKULTETAS

Interjero dizaino katedra, valstybinis kodas 6121PX017

Elinos Kirjakulovos

Bakalauro baigiamasis darbas

INKLIUZINES ERDVES KURIMAS DARZELIO REKONSTRUKCIJA

Darbo vadovas: doc. Saulius Vingras

parašas

data

Aiškinamojo darbo konsultantė: doc. dr. Eglė Bazaraitė

parašas

data

Tvirtinu, katedros vedėjas: doc. Rokas Kilčiauskas

parašas

data

Vilnius, 2024

. . . . . . . . . . . . . . . . . . . . . . . . .
. . . . . . . . . . . . . . . . . . . . . . . . .

Prieš pasinerdami į įtraukiojo darželio spalvų, formų ir erdvių pasaulį, aš noriu pradėti nuo pagrindų - nuo smulkmenų, kurios daro mūsų pasaulį atviresnį ir suprantamesnį kiekvienam. Šioje knygelėje naudoju Atkinson Hyperlegible - šriftą, sukurtą unikaliu tikslu: padaryti skaitymą prieinamą visiems, įskaitant žmones, turinčius regos sutrikimų ir skaitymo sunkumų.

Tai ne tik simbolių rinkinys - tai tiltas, jungiantis teksto pasaulį su skaitytojo pasauliu, todėl bendravimas tampa sklandesnis ir natūralesnis. Kiekviena šios knygos raidė ir žodis tampa aiškesnis ir aiškesnis, taip pabrėžiant įsipareigojimą siekti įtraukties kiekviename žingsnyje - nuo mažiausių detalių iki svarbių idėjų.

Atkinson Hyperlegible yra daugiau nei šriftas. Tai mūsų įsipareigojimo kurti pasaulį, kuriame kiekvienas gali laisvai mokytis, žaisti ir tobulėti, simbolis. Naudodami šį šriftą tarsi primename, kad dizainas gali būti ne tik gražus, bet ir itin funkcionalus, galintis griauti barjerus ir atverti naujas galimybes kiekvienam.

Šiuolaikinėje sparčiai besivystančioje visuomenėje įtraukiojo ugdymo aplinkos poreikis neabejotinas, kadangi daugelis esamų darželių neatitinka įvairiapusių visų vaikų poreikių. Savo diplominiame projekte sprendžiu šios spragos problemą, pertvarkydama pakrantės miesto vaikų darželį į prieinamą, patrauklią ir visiems priimtiną erdvę. Ši iniciatyva grindžiama tvirtu mokslinės literatūros pagrindu, nuodugnia esamų darželių analize ir išsamiomis konsultacijomis su šios srities ekspertais. Visi šie elementai sutelkti į sovietmečiu pastatytos struktūros pertvarkymą, pritaikant ją šiuolaikiniams ugdymo poreikiams. Į pertvarką ne tik integruoti svarbiausi pažintinio ir emocinio vystymosi elementai, bet ir užtikrinta, kad visi vaikai, nepriklausomai nuo jų unikalių poreikių, turėtų vienodas galimybes mokytis ir tobulėti.

Rezultatas - novatoriškas prototipas būsimoms ugdymo įstaigoms, kurios propaguoja visapusišką įtrauktį ir suteikia galimybę kiekvienam vaikui jaustis vertinamam ir susijusiam su savo bendruomene.

SANTRAUKA / SUMMARY

In today's rapidly evolving society, the need for inclusive educational environments is undeniable, given that many existing nurseries do not meet the multifaceted needs of all children. My diploma project addresses this gap by redesigning a coastal city nursery into an accessible, engaging, and universally welcoming space. This initiative is grounded in a robust foundation of scholarly literature, thorough analysis of existing nurseries, and extensive consultations with field experts. These elements coalesce to inform the transformation of a structure originally built in the Soviet era, adapting it to meet contemporary educational demands. The redesign not only integrates crucial elements for cognitive and emotional development but also ensures that all children, regardless of their unique needs, have equal opportunities for learning and growth.

The result is a pioneering prototype for future educational settings that champion comprehensive inclusivity, enabling every child to feel valued and connected within their community.

TURINYS

TYRIMAS

1 Sutrikimų analizė

1.1 Autizmo paplitimas pasaulyje ir Lietuvoje

1.2 Autizmas: problemos atsiradimo istorija

1.3. Kas yra autizmas?

1.4 Sensorinio suvokimo sutrikimai esant autizmui

1.5 Sensorinių sistemų klasifikacijos

1.6 Sensorinio suvokimo ypatumai

1.7 Klausos sutrikimai esant autizmui

1.8 Kaip mato vaikai su autizmu

1.9 Autizmo supratimas

2 Metodika

3 Literatūros apie dizaino autistiškiems vaikams metodus apžvalga

3.1 Dizainas autizmo spektro sutrikimą turintiems naudotojams: sensorinis požiūris

3.2. Arhitektai, dirbantys autistinio dizaino srityje: įvadas ir apžvalga.

3.3 „Neurotipinis“ požiūris į projektavimą asmenims su autizmo spektro sutrikimais

3.4 Dviejų projektavimo metodų palyginimas

4. Sensorinis kambarys ir sensorinės iškrovos zona

5. Vaikams skirtas sensorinis sodas

6. Autizmo spektro sutrikimų turinčių vaikų ugdymo aplinkų įtraukiojo dizaino analizė: vaikų darželių, mokyklų ir sveikatos centrų tyrimas

6.1 Išvada: Autizmo spektro sutrikimų turinčių vaikų ugdymo aplinkų įtraukiojo dizaino analizė

7. Rekomendacijų apibendrinimas ir pagrindinės išvados dėl projektavimo autizmo spektro sutrikimą turintiems vaikams

LOKACIJA

1 Lokacija-Klaipėda

PROJEKTAS

1 Struktūriniai pakeitimai

2 Planai

3 Situacijos analizė

4 Pjūvis

5 Interjero vizualizacijos

BIBLIOGRAFIJA

ĮVADAS

Šis darbas skirtas vaikų darželio interjero projektavimui, atsižvelgiant į autizmo spektro sutrikimą turinčių vaikų poreikius, pagal šiuolaikinius reglamentus ir standartus. 2024 m. Lietuvoje įsigaliojo naujas įstatymas, reikalaujantis, kad visi darželiai priimtų specialiųjų ugdymosi poreikių turinčius vaikus ir užtikrintų jiems deramą ugdymą. Ši taisyklė taip pat atitinka Lietuvos tarptautinius įsipareigojimus žmogaus teisių srityje ir JT vaiko bei neįgaliųjų teisių konvencijų principus. Atsiradus naujoms normoms ir standartams ugdymo srityje, įskaitant prieinamumo užtikrinimą specialiųjų poreikių vaikams, atnaujinti vaikų darželius tampa būtina užduotimi, siekiant atitikti šiuolaikinius vaikų ugdymo ir priežiūros reikalavimus.

Norėdama suprasti pagrindines problemas ir jų sprendimo būdus, gilinausi į autizmo spektro sutrikimo (ASS) ypatumus, tyrinėjau architektų, besispecializuojančių kuriant aplinką autistiškiems vaikams, darbus, taip pat analizavau rekomendacijas ir tyrimus, atliktus įgyvendinant šiuos projektus. Konsultavausi su VšĮ „Lietuvos aklųjų ir silpnaregių ugdymo centro“ ir VšĮ „Saulužės vaikai“ darbuotojais, kad geriau suprasčiau, kaip sukurti visiems vartotojams prieinamesnę ir suprantamesnę aplinką.

Pagrindiniai iššūkiai vaikų darželyje rodo, kad svarbu kurti aplinką, kuri būtų tinkama ir autistiškiems vaikams. Jie reikalauja struktūrizuotos, nuspėjamos aplinkos ir specialių erdvių atsipalaidavimui bei savireguliacijai. Šie vaikai turi skirtingus individualius poreikius, įskaitant bendravimą, socializaciją ir savireguliaciją, ir dažnai jautriai reaguoja į pernelyg intensyvius dirgiklius, pvz., ryškias spalvas ar triukšmą.

Todėl svarbu, kad aplinka jiems suteiktų saugumo ir patogumo jausmą.

Pasiūlymų tyrimas: Esamų sprendimų ir praktikų, taikomų kituose projektuose vaikams su specialiais poreikiais, analizė padės nustatyti veiksmingiausius sprendimus ir pritaikyti juos konkrečioms vaikų darželio sąlygoms. Tai apima geriausios praktikos erdvės organizavimo ir mokymo programų tyrimą. Svarbu atsižvelgti į kiekvieno vaiko individualias savybes, sumažinti dirgiklių poveikį ir užtikrinti optimalias sąlygas mokymuisi, vystymuisi ir socializacijai. Nors kai kurie sprendimai gali būti naudingi visiems vaikams, būtina siekti dizaino, kuris atitiktų vaikų autizmo spektre poreikius ir būtų naudingas visiems

TIKSLAS

Šio darbo tikslas – parengti įtraukiojo vaikų darželio, skirto autistiškiems vaikams, koncepciją, kuri atitiktų šiuolaikinius ugdymo standartus ir sudarytų optimalias sąlygas jų mokymuisi, vystymuisi ir gerovei.

UŽDAVINIAI

Atlikti autizmo problemų, įskaitant jo pagrindines charakteristikas, poveikį vaikams ir jų gyvenimo būdui, tyrimus.

Išstudijuoti architektų ir dizainerių, kurie specializuojasi kuriant aplinką autizmo spektro sutrikimą turintiems vaikams, darbus siekiant suprasti pagrindinius šios srities principus ir metodus.

Išanalizuoti esamus tyrimus ir rekomendacijas, kuriant įtraukią aplinką autistiškiems vaikams vaikų ugdymo įstaigose.

Pasikonsultuoti su autistiškų vaikų ugdymo ekspertais ir specialistais, siekiant nustatyti pagrindinius poreikius ir rekomendacijas.

Parengti vaikų darželio koncepciją, kurioje būtų atsižvelgta į autistiškų vaikų poreikius ir ypatumus, susijusius su architektūros, interjero dizaino ir erdvės organizavimo aspektais.

Suformuluoti rekomendacijas, kaip toliau įgyvendinti ir įdiegti įtraukiojo vaikų darželio koncepciją praktikoje.

TYRIMAS

1. Autizmas

1.1 Autizmo paplitimas pasaulyje ir Lietuvoje

Pastaruoju metu tiek mokslininkai, tiek gydytojai atkreipia dėmesį į augantį autizmo atvejų skaičių, nors šio reiškinio priežastys vis dar nėra iki galo išaiškintos. Pasaulio sveikatos organizacija pažymi, kad per pastaruosius dešimtmečius autizmo atvejų skaičius padidėjo visame pasaulyje, o kai kuriose šalyse – net dešimt kartų. Remiantis įvairiais šaltiniais, autizmas diagnozuojamas 1 iš 68 ar net 1 iš 59 vaikų. Tai reiškia, kad maždaug 1,7 proc. visų vaikų turi autizmo spektro sutrikimą.

Lietuvoje taip pat pastebima autizmo atvejų didėjimo tendencija nuo 2017 iki 2022 metų. Vaikų, sergančių įvairiapusiais raidos sutrikimais, skaičius augo visose amžiaus grupėse. Didžiausias sergamumas pastebimas tarp 4–6 metų vaikų, o mažiausias – tarp 15–17 metų paauglių. Didžiausi pokyčiai užfiksuoti 4–6 metų amžiaus grupėje, kur sergamumas įvairiapusiais raidos sutrikimais nuo 2017 metų padidėjo apie 2,4 karto.1

1 SVEIKATOS NETOLYGUMAI 2023, NR. 1(47)

2

1

1.2 Autizmas: problemos atsiradimo istorija

Autizmas tikriausiai lydėjo žmoniją per visą istoriją, nes daugelis istorinių asmenybių ir personažų pasižymėjo elgesio ir socialiniais bruožais, panašiais į šiuolaikinį ASS supratimą. Tačiau dėl mokslinio sąmoningumo ir diagnostikos metodų stokos šie bruožai galėjo likti nepastebėti arba klaidingai interpretuoti, paslėpti po kitomis diagnozėmis. Tokių specialistai kaip Paulis Eugenas Bleuleris (Paul Eugen Bleuler), Leo Kanneris (Leo Kanner), Hansas Aspergeris (Hans Asperger), Leonas Eisenbergas (Leon Eisenberg), Eugenas Bleuleris (Eugen Bleuler) ir daugelis kitų apibūdino ir tyrė simptomus, kurie dabar siejami su autizmu, ir tai padėjo suformuoti dabartinį mūsų supratimą apie šį sutrikimą. 1

Šiuo metu DSM-52 įtvirtinta autizmo sutrikimo „spektro“ diagnozės koncepcija, kuri sujungia atskiras autizmo diagnozes kaip daugybę spektrų, atspindinčių simptomų įvairovę, sunkumo laipsnius ir individualius skirtumus. Šis požiūris pripažįsta įvairias autizmo spektro apraiškas, įskaitant: autizmo spektro sutrikimą, Kannerio sindromą, Aspergerio sindromą, netipinę formą ir dezintegruotą ankstyvo amžiaus sutrikimą. Retto sindromas nebepriskiriamas ASS kategorijai, nes jis laikomas atskiru neurologiniu sutrikimu.3

checked
A History and Timeline of Autism By Vincent Iannelli, MD Updated on December 11, 2023. Fact
by James Lacy
Diagnostic
Statistical
Of Mental Disorders, Fifth Edition
And
Manual
3 Transl Pediatr. 2020 Feb; 9(Suppl 1): S55–S65. doi: 10.21037/tp.2019.09.09

1.3. Kas yra autizmas?

Glaustos autizmo apibrėžties tiesiog neįmanoma pateikti, bent jau dabartiniame mokslinių tyrimų etape. Kadangi autizmas apima tokį platų ir įvairialypį simptomų rinkinį, joks vienas apibrėžimas negali patenkinamai atspindėti šios įvairovės. „Akivaizdu, kad nepakanka vien tik išvardyti simptomus, nes simptomai tėra specifinio minčių pasaulio atspindys“ (Riviere, 1996). 1

Autizmo spektro sutrikimas (ASS) yra nervų sistemos raidos būklė, turinti įtakos trims „pagrindinėms“ funkcionavimo sritims: socialinei sąveikai, socialiniam bendravimui ir pasikartojančiam elgesiui ar pomėgiams. ASS prasideda labai ankstyvame (vaisiaus) vystymosi etape ir išlieka visą gyvenimą.2

Ligų prevencijos ir kontrolės centro duomenimis (2018), nėra vienos konkrečios autizmo priežasties. Yra daugybė priežasčių, galinčių prisidėti prie autizmo atsiradimo: aplinkos, biologiniai ir genetiniai veiksniai, vyresni tėvai, infekcijos ir kt. Nors autizmo atsiradimą daugiausia gali lemti paveldimi veiksniai, akivaizdu, kad genetiniai nukrypimai negali visiškai paaiškinti visų autizmo atvejų.

1 Bogdashina O. Autizmas: apibrėžimas ir diagno

2 Shifting brain inhibitory balance and connectivity of the prefrontal cortex of adults with autism spectrum disorder.Published online 2017 May 23. doi: 10.1038/tp.2017.104

Autizmas yra kompleksinis neurologinis sutrikimas, kuris turi įtakos asmens bendravimui, socialinei sąveikai ir elgesiui. Autistiškiems asmenims gali būti sunku bendrauti su kitais, suprasti socialines normas ir reikšti savo emocijas. Tai spektrinis sutrikimas, t.y. jo apraiškos gali svyruoti nuo lengvų iki sunkių formų, o kiekvienas autistiškas asmuo yra unikalus, turintis savitų poreikių ir gebėjimų.

Autizmas beveik keturis kartus dažniau pasireiškia berniukams nei mergaitėms, tačiau daugelis gydytojų ir mokslininkų mano, kad tai gali tik iš dalies atspindėti tikrąją padėtį. Spėjama, kad tikrasis autizmo atvejų santykis tarp berniukų ir mergaičių gali būti beveik toks pat. Tyrimai rodo, kad autizmas berniukams ir mergaitėms gali pasireikšti skirtingose smegenų srityse, o jam atsirasti reikia skirtingų genetinių veiksnių. Todėl berniukų ir mergaičių autizmo požymiai ir apraiškos gali skirtis.

Reikėtų pažymėti, kad terminas „aukšto funkcionavimo“ arba kartais „lengvas“ autizmas yra labai subjektyvus. Nėra klinikinių apibrėžimų, tokių kaip „aukšto funkcionavimo“, „žemo funkcionavimo“, „lengvas“ ar „sunkus“ autizmas. Kadangi autizmas yra spektro sutrikimas, specialistai gali vartoti tokius terminus norėdami apibūdinti, kokią vietą, jų manymu, autistiškas vaikas užima kontinuume. 1

Bendrieji autizmo požymiai:

- Socialinių įgūdžių stoka;

- Akių kontakto vengimas;

- Kalbos problemos;

- Sunkumai suprasti emocijas;

- Riboti interesai;

- Nuolatinis tų pačių judesių, gestų ar elgesio kartojimas;

- Reakcijos nebuvimas arba, atvirkščiai, perdėta reakcija į šviesą, garsą, skonį, tekstūrą ar kvapus.

1 Bogdašina O. Autizmas: apibrėžimas ir diagnozė

1.4 Sensorinio suvokimo sutrikimai

esant autizmui

Sensorinė sistema yra jutimų sistema, apimanti skonį, kvapą, regą, klausą ir lietimą. Nervų sistema taip pat perduoda informaciją apie judesius ir kūno padėtis, leidžiant mums suvokti savo kūną. Informacija, kurią gauname per šią sistemą, siunčiama į smegenis, kur ji yra apdorojama ir interpretuojama. Kadangi kiekvienas asmuo tą pačią informaciją gali suvokti skirtingai, atsakas į ją taip pat gali būti nevienodas. Šį procesą vadiname sensorine integracija. Sensorinė integracija yra centrinės nervų sistemos gebėjimas organizuoti, sujungti ir apdoroti jutimų informaciją, gaunamą iš kūno ir aplinkos. Tai neurologinis procesas, kurio tikslas – sukurti tinkamą atsaką į aplinkos dirgiklius.

B. Nasonas (B. Nason) informacijos apdorojimo kognityvinių ypatumų tyrime teigia, kad neurotipinių žmonių smegenys informaciją apdoroja greitai ir pasąmoningai, akimirksniu ją filtruoja ir integruoja. Sąveika tarp skirtingų jų smegenų sričių vyksta sklandžiai, todėl jie gali greitai prisitaikyti prie greitai kintančios informacijos. O autizmo spektro sutrikimą turinčių žmonių smegenys informaciją apdoroja nuosekliai, žingsnis po žingsnio, tarsi dėliotų dėlionę po vieną detalę, todėl tam reikia daugiau pastangų ir protinės energijos.1

Tai reiškia, kad jie suvokia per daug arba per mažai informacijos iš aplinkos. Autistiški vaikai taip pat gali būti ypač jautrūs arba nepakankamai jautrūs tokiems dirgikliams kaip triukšmas, šviesa, medžiagų tekstūra ir temperatūra (Nacionalinė autistų draugija, 2016). Šis jautrumas gali tapti problema, kai šie pojūčiai slopinami, ir gali sukelti nerimą ir baimę, savęs žalojimą ir agresyvų elgesį.

1.5 Sensorinių sistemų klasifikacijos

Dauguma ASS turinčių vaikų turi įvairių nukrypimų sensorinėje srityje. Egzistuoja kelios sensorinių sistemų klasifikacijos.

1 Nason B. Pagrindinės autizmo problemos. Autizmas ir raidos sutrikimai = Autism and Developmental Disorders, 2015. 13 tomas, Nr. 4, 33-38 psl. DOI: 10.17759/autdd.2015130404

- Regos – gebėjimas matyti

- Klausos – gebėjimas suvokti garsus

- Vestibulinė jutimo sistema – vidinėje ausyje esanti struktūra, kuri aptinka judesius ir galvos padėties pokyčius.

- Olfaktorinė (uoslės) – gebėjimas suvokti kvapus.

- Gustatorinė (skonio pojūtis) – gebėjimas suvokti tirpios medžiagos pojūtį burnoje ir gerklėje esant sąlyčiui su ta medžiaga

- Taktilinė – gebėjimas suvokti prisilietimą, spaudimą, skausmą ir temperatūrą

- Propriocepcinė – gebėjimas suvokti organizmo viduje kylančius dirgiklius, ypač susijusius su kūno judesiais ir padėtimi.

Mūsų pojūčiai ir pasaulio suvokimas priklauso nuo šių sensorinių sistemų veiklos. Šie jutimo organai reaguoja į išorinius dirgiklius, tokius kaip šviesa, garsas ir šiluma, ir perduoda gautą informaciją apdoroti smegenims. Nuo to, kaip ir kokią informaciją gauname, priklauso mūsų pojūčiai. Pavyzdžiui, malonumas ar skausmas, skonio ar kvapo pomėgiai. Tai patvirtina, kad mūsų žinios ir supratimas apie pasaulį formuojasi sensorinių sistemų veiklos ir jų perduodamos informacijos pagrindu. 1

1.6 Sensorinio suvokimo ypatumai2

Hiperjautrumas\ Hipojautrumas

1 National Library of Medicine. Physiology, Sensory Receptors. Authors: Anna Marzvanyan1; Ali F. Alhawaj2. \ Bogdashina, Sensory Perceptual Issues in Autism and Asperger Syndrome : Different Sensory Experiences, Different Perceptual Worlds. 2 Sensory Abnormalities in Autism Spectrum Disorders: A Focus on the Tactile Domain, From Genetic Mouse Models to the Clinic. Published online 2020 Jan 28. doi: 10.3389/ fpsyt.2019.01016 Luigi Balasco

Svarbu suprasti, kad vaikai su autizmu gali turėti skirtingą jautrumą įvairiems pojūčiams, tokiems kaip garsai, šviesa, kvapai ir kt. Kai kurie vaikai gali būti hiperjautrūs, tai reiškia, kad jie per stipriai reaguoja į išorinius stimulus. Pavyzdžiui, ryški šviesa ar garsus triukšmas gali sukelti jiems diskomfortą ar net skausmą. Kita vertus, kai kurie vaikai gali būti hipojautrūs, tai yra, jie nepakankamai reaguoja į tuos pačius pojūčius ir gali ieškoti daugiau stimuliavimo, siekdami pasiekti norimą pojūčių lygį.

Hiperjautrūs vaikai gali patirti diskomfortą nuo įprastų dalykų, tokių kaip ryški šviesa ar garsus triukšmas. Pavyzdžiui, vaikas gali užsidengti ausis ar užsimerkti, bandydamas išvengti nepatogių pojūčių. Kita vertus, hipojautrūs vaikai gali rodyti poreikį daugiau stimuliacijos, pvz., jie gali dažniau ieškoti fizinio kontakto ar būti labiau linkę į intensyvesnę veiklą

1.7 Klausos suvokimo sutrikimai esant autizmui

Klausa ir klausos suvokimas nėra tas pats. Klausos suvokimas, tiksliau, klausos apdorojimas, yra gebėjimas interpretuoti garsus, kuriuos girdime. Tai ne gebėjimas girdėti, o gebėjimas suprasti, ką būtent girdėjome. Turint klausos suvokimo sutrikimų, gali būti nenustatyta jokių problemų atlikus klausos tyrimą, tačiau kyla problemų apdorojant tai, kas išgirsta, nes smegenims sunku apdoroti klausos informaciją.

Autizmo spektro sutrikimą (ASS) turintys žmonės gali pasižymėti padidėjusiu arba sumažėjusiu jautrumu įvairiems sensoriniams dirgikliams, o tai gali lemti labai įvairias elgesio apraiškas ir adaptacijos sutrikimus . Asmeniui, patiriančiam sensorinę perkrovą, kasdieniai garsai gali būti slegiantys ir nemalonūs, tai gali tapti prastos emocinės ir socialinės reguliacijos priežastimi (Wilson et al. 2017). Todėl klausos apdorojimo sutrikimai gali paveikti elgesį, daryti didelę įtaką gyvenimui, ypač aukštesnio lygio įgūdžių, pavyzdžiui, socialinio bendravimo vystymuisi.

Autistiški vaikai prasčiau atlieka daugelį užduočių, susijusių su klausos dėmesiu: paskirstytu dėmesiu (gebėjimas vienu metu atkreipti dėmesį į du ar daugiau dirgiklių), ilgalaikiu dėmesiu (gebėjimas atkreipti dėmesį į dirgiklį ilgesnį laiką), selektyviu dėmesiu (gebėjimas ignoruoti dirgiklio detales, į kurias nebuvo atkreiptas dėmesys) ir erdviniu dėmesiu (dirgiklio pasirinkimas pagal jo vietą erdvėje).

1.8 Kaip mato vaikai su autizmu

Kalbant apie regėjimą, autizmo atveju regėjimo suvokimas gali būti ypatingas – nuo paprastų ir suprantamų iki sudėtingų ir painių, kurie, atrodo, neturi jokio akivaizdaus ryšio su rega, nes regimosios informacijos apdorojimas yra smegenų funkcija.

Smegenų žievės regos sritis ir jos veikimas yra susijęs su tuo, kaip suvokiame ir matome mus supantį pasaulį. Tarp neuronų ir neuromediatorių vyksta sudėtinga sąveika, kuri galiausiai formuoja žievės regos sritį ir jos gebėjimą apdoroti ir perduoti informaciją.

Tipiški autistų gebėjimai ir (arba) sutrikimai1

– Geštaltinis suvokimas- nesugeba atskirti pagrindinę ir šalutinę informaciją – vienu metu suvokiama visa scena kaip visuma, o visos detalės yra suvokiamos (bet ne apdorojamos).

– Fragmentinis suvokimas. Kai reikia apdoroti per daug informacijos vienu metu, autistai labai dažnai nesugeba suskaidyti visumos į atskirus reikšmingus vienetus, todėl jie apdoroja tik tas dalis, kurios patraukė jų dėmesį. Pavyzdžiui, kai normalus žmogus mato kambarį, autistas mato durų

-Į detales orientuoti .Linkę matyti daugiau detalių nei neurotipiniai žmonės, nes jie apdoroja didesnį jutiminės informacijos kiekį. Neurotipiniai žmonės sutelkia dėmesį į veidus, o autistai yra linkę apsižvalgyti aplink ir matyti detales. «Kai neurotipiniam ir autistiškam žmogui rodote mišką, jie tikrai mato medžius... Tačiau autistai taip pat mato vabzdžius, gėles, samanas ir t. t., jų sudedamąsias dalis ir subtilybes».

Tai ne visi regos suvokimai, jų yra ir daugiau.

Jų išvardijimas užimtų nemažai laiko. Aš tik bandau paaiškinti, kokia sudėtinga ir nenuspėjama yra visa ši sistema.

1 Bogdashina,

Perceptual Issues in Autism
Asperger Syndrome : Different Sensory Experiences, Different Perceptual Worlds.
Sensory
and

Šiuose paveikslėliuose parodyta, kaip pasaulį mato vaikai, turintys ASS. Vaikui nuo pat gimimo sunku susikoncentruoti į kažką konkretaus, į vieną žmogų ir sukurti natūralią kontakto atmosferą. Todėl „tas, kuris nori bendrauti su autistiškų vaiku, turi labiau sutelkti dėmesį, kad sukurtų šią kontakto atmosferą“ (pav. 1).

Nuotraukoje pateikiami pavyzdžiai, kaip ASS mato pasaulį. Raudoni taškai vaizduoja tai, į ką žiūri akys.2

ADS – taip pasaulį mato autistai. Controls – taip pasaulį mato įprasti žmonės.

1 Pav. Kuo skiriasi „įprasto“ žmogaus ir ASS turinčių žmonių bendravimo schema (Johansson I. Ypatinga vaikystė / iš anglų kalbos vertė O. B. Rožanskaja, М. Terevinf, 2014. 20-22 psl.)

2 Pav. Žurnale “Neuron” paskelbto tyrimo (4 psl.) Atypical Visual Saliency in Autism Spectrum Disorder Quantified through Model-Based Eye Tracking

Štai kodėl kartais taip sunku ką nors paaiškinti autistiškam žmogui. Jie savaip suvokia tai, ką mato. Iš tikrųjų asmuo su autizmo bruožais koncentruojasi į „savo požiūrį“ į informaciją, jie turi „savitą“, kitokį supratimą.

Autistiški vaikai negali sutelkti dėmesio į objektų visumą, o tik į atskiras detales. Jiems sunku matyti šviečiančius objektus, taip pat judančius objektus. Jis matys visai ne tai, ką jam nori parodyti.

1.9 Autizmo supratimas

Autizmo supratimas yra labai svarbus kuriant palankią aplinką šį sutrikimą turintiems vaikams. Kūdikiams ir suaugusiems, kurių individualus suvokimas daro įtaką jų bendravimui su aplinkiniu pasauliu ir socialinei sąveikai ir kuriems būdingi įvairūs elgesio ir pomėgių variantai, ypač reikia paramos ugdant socialinius įgūdžius ir komfortiškos aplinkos, pirmiausia ankstyvame amžiuje, kai jie dar tik pažįsta pasaulį ir save jame.

Tyrimo metodiką sudaro duomenų rinkimas ir analizė, apimanti kelis šaltinius ir metodus. Pirmiausia buvo atlikta išsami literatūros apžvalga, apimanti mokslinius straipsnius ir kitus su tema susijusius leidinius. Taip pat buvo bendraujama su VšĮ „Lietuvos aklųjų ir silpnaregių ugdymo centro“ ir VšĮ „Saulužės vaikai“ centro specialistais, kurie suteikė vertingų įžvalgų ir rekomendacijų. Be to, buvo lankomi specializuoti kursai, skirti geriau suprasti tyrimo temą. Siekiant gauti praktinių įžvalgų, buvo atliekamos žodinės apklausos su darželio darbuotojais ir tėvais. Gautų duomenų analizė leido išryškinti pagrindines rekomendacijas, kurios pateikiamos išvadose.

3. Literatūros apie dizaino autistiškiems vaikams metodus apžvalga

Tikslas – pasitelkus straipsnius, literatūros apžvalgą ir žymiausių architektų bei specialistų, dirbančių su autizmo spektro sutrikimų turinčiais asmenimis, tyrimus, apibrėžti aplinkos kūrimo projektavimo strategiją, atsižvelgiant į įvairias architektūros ir dizaino teorijas ir požiūrius, pagrįstus autizmo spektro sutrikimą turinčių žmonių suvokimo problemų supratimu. Yra du pagrindiniai, vienas kitam priešingi, požiūriai į dizainą, turintys savo ypatybes ir principus. Tai sensorinis dizainas, kurio pagrindinis tikslas – sukurti kontroliuojamą sensorinę aplinką, kurioje autistiški vaikai galėtų jaustis patogiai ir lavinti įgūdžius, ir neurotipinis metodas, kuriuo siekiama integruoti autistiškus asmenis į tipines miesto ir visuomenės situacijas.

2.

3.1 Dizainas autizmo spektro sutrikimą turintiems naudotojams: sensorinis požiūris

Sensorinis požiūris interjero dizaine ir architektūroje reiškia, kad kuriant erdvę reikia atsižvelgti

į visus penkis žmogaus pojūčius – regą, klausą, uoslę, lytėjimą ir skonį. Šis požiūris siekia sukurti aplinką, stimuliuojančią ir tenkinančią skirtingus žmonių jutiminius poreikius, atsižvelgiant

į jų suvokimą ir komfortą. Jis apima medžiagų, tekstūrų, spalvų, kvapų ir garsų parinkimą bei pojūčių ir įspūdžių, kuriuos jie sukelia žmonėms, įvertinimą. Stengiamasi sukurti aplinką, kurioje būtų kuo mažiau dirgiklių, su galimybe persikrauti prireikus.

3.2. Arhitektai, dirbantys autistinio dizaino srityje: įvadas ir apžvalga.

Pastaruoju metu architektūros ir dizaino srityje pastebima tendencija kurti erdves, pritaikytas vaikams su autizmu. Nemažas skaičius žinomų architektų ir dizainerių dirba kuriant naujus architektūrinius projektus ir požiūrius, atitinkančius skirtingų žmonių grupių poreikius. Šiame skyriuje pristatysiu architektus, kurie specializuojasi kuriant erdves autizmo spektre esantiems asmenims.

Dauguma architektūros ir dizaino specialistų laikosi panašių požiūrių ir principų savo veikloje. Todėl atliksiu trumpą jų metodikų apžvalgą ir apibendrinimą, išskirdama bendras rekomendacijas ir tendencijas, kurios gali būti naudingos kuriant įtrauktines erdves.

3.2.1 Magda Mostafa 1

Magda Mostafa yra dizaino profesorė. Ji yra dizaino gairių „Autism ASPECTSS™ Design Index“ autorė. „Autism ASPECTSS™ Design Index“ yra pirmasis pasaulyje įrodymais pagrįstų dizaino gairių rinkinys, skirtas kurti dirbtinę aplinką autizmo spektro sutrikimą turintiems žmonėms. Jis buvo sukurtas po dešimt metų trukusių mokslinius tyrimų ir susideda iš septynių kriterijų, pasiūlytų siekiant palengvinti ASS projektavimą.

Jis naudojamas kaip dizaino vertinimo ir kūrimo priemonė. Jos darbe pateikiamos išsamios rekomendacijos apie dizainą ir projektavimą autizmo spektro sutrikimą turintiems žmonėms.

Ši teorija grindžiama sensoriniu (jutiminiu) požiūriu, nes joje teigiama, kad naudingi sensorinės aplinkos pokyčiai gali paskatinti teigiamą ir konstruktyvų autistų elgesį. Pasak Mostafos, „sensorinio projektavimo teorija yra lanksti ir lengvai pritaikoma priemonė, kuri veikia kaip katalizatorius kuriant architektūrinės aplinkos projektavimo kriterijus, pagrįstus jos sensorinėmis savybėmis ir atsižvelgiant į autistų sensorinius poreikius“.

2013 m. paskelbtas Magdos Mostafos „Autism ASPECTSS Autism Design Index“ – tai moksliniais tyrimais pagrįsta 7 dizaino koncepcijų sistema, padedanti kurti autistams skirtą architektūrą. Šios 7 koncepcijos yra akustika, erdvės nuoseklumas, pabėgimas, skirstymas dalimis, perėjimas, sensorinis zonavimas ir saugumas.

3.2.2 Rachna Khare and Abir Mullick

2

Tyrėjai Khare ir Mullickas daugiausia dėmesio skyrė edukacinių erdvių autistiškiems vaikams universalaus dizaino kūrimui. Remiesi išsamiais tyrimais, abu autoriai siekė parengti autistiškų vaikų ugdymo įstaigų projektavimo gaires, pagrįstas eksperimentiniais aplinkos projektavimo sumetimais.

Įtraukimo galimybės : aplinką, kuri leistų vaikams bendrauti su neurotipiniais bendraamžiais.

-Sukurkite asmeninę erdvę

-Numatykite vietas atsiskyrimui

-Maksimalus supratimas: turi būti aiškus patalpų išdėstymas ir tiesioginiai keliai į jas ir iš jų, be jokios sumaišties.

-Sumažinkite sensorinį blaškymą

1 1.Mostafa, “ARCHITECTURE FOR AUTISM: Autism ASPECTSSTM in School Design.”

2. https://www.autism.archi/aspectss

3. Architecture for autism: Built environment performance in accordance to the autism ASPECTSS™ design index

1.INCORPORATING THE BEHAVIORAL DIMENSION IN DESIGNING INCLUSIVE LEARNING ENVIRONMENT FOR AUTISM

2 .EDUCATIONAL SPACES FOR CHILDREN WITH AUTISM; DESIGN DEVELOPMENT PROCESS\ CIB W084 “Building Comfortable and Liveable Environments for All” International Meeting ‘Education and Training” Georgia Tech University, Atlanta, USA 15-16 May 2008

-Maksimaliai išnaudokite vizualinę struktūrą: organizuokite vizualinę aplinką naudojant konkrečius vizualinius ženklus.

3.2.3 Simon Humphreys 1

Humphreys kūrė autizmo spektro sutrikimą turintiems vaikams ir suaugusiesiems, jo brolis turėjo autizmui būdingų bruožų.

Svarbu naudoti kuo daugiau natūralios šviesos, tačiau akinanti saulė, gilūs šešėliai ar pernelyg didelis kontrastas sukelia perdėtą regos stimuliavimą. Stoglangiai ir cokoliniai aukštai gali padėti išsklaidyti šviesą.

ASS turintys žmonės yra jautresni triukšmui, jiems dažnai tenka dėti milžiniškas pastangas, kad atskirtų garsus. Būtina atsižvelgti į medžiagų, konstrukcinių elementų ir sistemų akustines savybes.

Ramybė, tvarka ir paprastumas

Reikėtų vengti bet kokių nereikalingų detalių. Naudotina minimali vizualinė fono stimuliacija.

3.2.4 Christopher Beaver2

Jis teigė, kad norint sužinoti, kaip pastatas funkcionuos, reikia gerai žinoti, kas ir kaip juo naudosis. Jis paaiškino savo konkrečias strategijas projektuojant gyvenamosios ir mokslo paskirties pastatus, kurias galima apibendrinti šiais pagrindiniais punktais;

Jis teigė, kad norint sužinoti, kaip pastatas funkcionuos, reikia gerai žinoti, kas ir kaip juo naudosis. Jis paaiškino savo konkrečias strategijas projektuojant gyvenamosios ir mokslo paskirties pastatus, kurias galima apibendrinti šiais pagrindiniais punktais;

- Reikia atsižvelgti į akustiką, t. y. vengti kietų poliruotų medžiagų, nes jos geriausiai atspindi garsą. Beaveris taip pat teigė, kad nors tokios medžiagos kaip kiliminė danga yra geresnės akustikos požiūriu, jas sunkiau valyti ir prižiūrėti.

- Spalvų paletė turėtų būti parinkta taip, kad sukurtų palankią, bet ne pernelyg stimuliuojančią aplinką. Prislopintos ir šaltos spalvos gali turėti raminamąjį poveikį.

- Pirmenybė teikiama grindiniam šildymui ir natūraliam vėdinimui, nes pastato vėdinimo sistemos gali kelti pernelyg didelį triukšmą.

- Langai turėtų būti su spynomis arba mechanizmais, neleidžiančiais jų atidaryti. Stiklas turi būti saugus, apriboti moksleiviui galimybę išdaužti stiklą.

- Apšvietimas gali būti nekrentantis į akis siekiant, kad šviesa būtų netiesioginė ir išsklaidyta. Beaveris rekomenduoja vengti naudoti tradicines liuminescencines lemputes, nes ASS turintys asmenys jautriau reaguoja į tokių lempučių mirgėjimą. Visuose šviestuvuose taip pat turėtų būti įrengti reguliatoriai, kad būtų galima reguliuoti šviesos lygį.

ARCHITECTURE and AUTISM BRUSSELS 2008

SIMON HUMPHREYS: UNIVERSAL DESIGN

2 Designing environments for children and adults on the autism spectrum

1

- Ypač svarbūs yra ramūs kambariai, nes tai yra erdvė, į kurią vaikas gali pabėgti, jei jį ima slėgti aplinka. Tai padeda išvengti nepageidaujamo elgesio plitimo tarp kitų mokinių, nes vienas vaikas gali sutrikdyti kitus.

- Reikėtų įrengti sensorinius kambarius ir sodus, kurie sukelia kelių rūšių dirgiklius.

3.2.5 Richer & Nicoll1

Richeris ir Nichollas 1971 m. paskelbė straipsnį apie autizmą, kuriame, projektuodami žaidimų kambarį, bandė pasiekti du pagrindinius tikslus: sumažinti frustraciją ir pabėgimo elgesį.

Sumažinti frustraciją

- Erdvės padalijimas į mažas zonas padeda išvengti per didelės stimuliacijos ir per didelės socialinės sąveikos. Taip pat buvo numatyta dėžė atsiskyrimui, kurioje vaikas galėjo pasislėpti nuo dirgiklių.

- Buvo numatyta erdvė tokiai veiklai, kaip laipiojimas, riedėjimas, slydimas ir kt.

- Stereotipai nebuvo panaikinti, žaidimų kambaryje buvo žaislų, su kuriais buvo galima lengvai žaisti kartojant judesius.

Elgesio skraidant mažinimas

- Konstrukcijos ir įrenginiai buvo tvirti ir saugūs, todėl nereikėjo nutraukti vaikų žaidimo įspėjimais apie saugumą ar auklėtojų nurodymais.

1 a playroom for autistic children, and its companion therapy project —a synthesis of ideas from ethology, psychology, nursing and design 2 architectural principles of sensorial stimulating spaces design for children’s preschool institutions doi: 10.24412/1998-4839-2021-2-320-336

- Buvo numatytos zonos, kuriose vaikai galėjo patirti du socialinės sąveikos tipus: glaudų taktilinį kontaktą ir grumtynes.

- Kai kuriose zonose fizinės ribos privertė socialiai sąveikauti. Eksperimente taip pat buvo pateikta nemažai instrukcijų, skirtų globėjams.

Svarbiausia buvo suteikti vaikams daugiau laisvės, todėl eksperimento metu padaugėjo vaikų socialinės sąveikos atvejų.

3.2.6 L. Sadykova, I. Akhtiamov, R. Akhtiamova2 Specialistai teigia, kad vaikai jaunesnio amžiaus pasaulį suvokia daugiausia per sensorinius pojūčius. Manoma, kad autistiškų vaikų vystymui lytėjimo pojūčiai yra svarbiausias veiksnys. Prieš tai, kai susiformuoja vaikui sudėtingi įgūdžiai, jam reikia išsiugdyti pagrindinius sensorinius gebėjimus. Patarimai yra skirti aplinkos kūrimui, kuri palaiko ir skatina sensorinį suvokimą, tai yra pagrindinis vaikų vystymosi etapas. Jie taip pat rekomenduoja atkreipti dėmesį į infografiką , spalvas, akustinę aplinką, apšvietimą ir lytėjimą.

3.3 „Neurotipinis“ požiūris į projektavimą asmenims su autizmo spektro sutrikimais

Neurotipinis požiūris į dizainą orientuotas į daugumos žmonių poreikius ir pageidavimus, neatsižvelgiant į jų neurologines savybes. Šis metodas siekia sukurti aplinką, kurią lengvai suvoktų ir naudotų platus naudotojų ratas, remiantis tipiniais lūkesčiais ir pageidavimais. Neurotipinio dizaino tikslas – integruoti žmones, turinčius neurologinių sutrikimų, į kasdienes situacijas. Jame siūloma pažįstama aplinka, kad autistams būtų lengviau prisitaikyti prie įprastų viešųjų vietų. Šio požiūrio teorija siekia pagerinti autistų gebėjimą suvokti ir apdoroti informaciją apie erdvę ir jos funkcijas, sukurdamas aplinką, pasižyminčią įvairiomis sensorinėmis savybėmis, bet funkciškai panašią.

Yra nuomonė, kad geriausias ugdymo būdas autistiškam vaikui yra įvedimas į neurotipinę aplinką, kurioje jis gali bendrauti su kitais vaikais ir lavinti savo socialinius įgūdžius. Mokyklos „Celebrate the Children“, kurioje mokosi autistiški vaikai, koridoriai yra puošiami mokinių nuotraukomis, spalvingais plakatais ir meno kūriniais. Šios mokyklos direktorė Monica Osgood mano, kad jos mokiniams reikia mokytis „realiomis“ sąlygomis, jei jie kada nors turės galimybę panaudoti išmoktus įgūdžius už klasės ribų. „Neurotipinio“ požiūrio šalininkai mano, kad autizmo spektro sutrikimą turintiems vaikams sunku pritaikyti anksčiau išmoktas sąvokas naujose situacijose. Tyrimai rodo, kad tai gali būti susiję su jų polinkiu į detales ir sunkumais apibendrinant. Tai apriboja jų gebėjimą prisitaikyti prie įvairių aplinkybių ir palieka juos priklausomus nuo ribotos aplinkos, kurioje jie įgijo įgūdžių.

„Neurotipinėje“ aplinkoje stengiamasi imituoti tikrąjį pasaulį, kad autistiškiems žmonėms niekada nereikėtų apibendrinti įgūdžių. Iš to išplaukia, kad šis projektavimo metodas turi įtakos ne mokymosi procesui, o bendram įgūdžių ugdymui. 1

3.4 Dviejų projektavimo metodų palyginimas

Neurotipinio projektavimo metodas orientuotas į aplinkos, primenančios įprastas miesto ir viešąsias erdves, kūrimą, siekiant padėti asmenims, turintiems autizmo spektro sutrikimą, prie jų prisitaikyti. Šis požiūris akcentuoja gebėjimą apibendrinti informaciją apie erdvę ir jos funkcijas, tačiau labiau prisideda prie bendrųjų įgūdžių ugdymo nei tiesioginio mokymosi.

Priešingai, sensorinis dizainas siekia sukurti kontroliuojamą sensorinę aplinką, kuri skatintų asmenų, turinčių autizmo spektro sutrikimą, komfortą ir padėtų lengviau įgyti įgūdžių bei mokytis, netrukdomiems išorinių dirgiklių.

Kiekvienas metodas turi teisę egzistuoti. Tačiau vaikų darželio užduotis – sukurti kontroliuojamą ir palankią aplinką, kuri padėtų įvairių poreikių turintiems vaikams prisitaikyti ir įgyti reikiamų įgūdžių, kad jie galėtų pasirengti naujam gyvenimo etapui – mokyklai.

1 Henry, “Designing for Autism: The ‘Neuro-Typical’ Approach

Tokiame vaikų darželyje vaikai, turintys autizmo spektro sutrikimą, gali palaipsniui prisitaikyti prie socialinių ir ugdymo sąlygų, pasiruošti sudėtingesniems mokyklos gyvenimo iššūkiams. Žaidimai ir užsiėmimai padės jiems bendrauti ir palaikyti gerą nuotaiką.

Išvada: Neurotipinis dizainas skatina prisitaikymą prie įprastų erdvių ir ugdo bendruosius įgūdžius, tuo tarpu sensorinis dizainas teikia saugią ir kontroliuojamą aplinką, padedančią lengviau mokytis ir įgyti specifinių įgūdžių. Kiekvienas iš šių metodų turi savo privalumų ir gali būti tinkamai taikomas priklausomai nuo vaikų poreikių ir ugdymo tikslų.

6. Autizmo spektro sutrikimų turinčių vaikų ugdymo aplinkų įtraukiojo dizaino analizė: vaikų darželių, mokyklų ir sveikatos centrų tyrimas

Celebrate the Children

„Neurotipinis“ požiūris. Vaikai mokosi „realiomis“ sąlygomis, kad įgytus įgūdžius galėtų panaudoti ne mokykloje. Mokykla įgyvendina sensorinį ir subtilų metodą, atsižvelgdama į specialiuosius mokinių poreikius ir kurdama kontroliuojamą aplinką mokykloje.

„Realus pasaulis“ uždaroje patalpoje, pavyzdžiui, pagrindinis koridorius suprojektuotas kaip tiksli tipiškos Amerikos pagrindinės gatvės kopija, kurioje yra įvairios parduotuvės, bankas, kirpykla, užkandinė ir kiti objektai. Šis požiūris skiriasi nuo kitų tyrimų precedentų, nes juo ne skatinami mokinių poreikiai, o supažindinama su tipiška aplinka, su kuria jie gali susidurti realiame pasaulyje.

https://www.archdaily.com/181402/designing-for-autism-the-neuro-typical-approach

One of the Kids

Auklėjant autizmo spektro sutrikimą turinčius vaikus, Austine įsikūrusi „One of the Children“ natūralų dizainą naudoja kaip terapiją.

Pagrindiniai aspektai yra pagarba ir rūpestis, komanda „Runa Workshop“ stengėsi pabrėžti unikalius būdus, kuriais kiekvienas vaikas žaisdamas mokosi orientuotis gyvenime.

Projektuojant vaikams -autistams reikia jautraus požiūrio, todėl komanda tyrė ir studijavo ypatingų vaikų poreikius, kad juos kruopščiai patenkintų kurdama aplinką. Dėl padidėjusio autizmo spektro sutrikimą turinčių vaikų jautrumo jutiminiams dirgikliams visose dizaino strategijose vyrauja jutiminė gerovė. Buvo naudojamas su gamta susijęs biofilinis dizainas.

Pirmoji įtraukioji mokykla Tel Avive; Bikurim

Tel Avive esanti mokykla „Bikurim” remia ribotų galimybių moksleivių integraciją: joje yra bendrojo lavinimo klasės ir specialios patalpos, skirtos kineziterapijai, jogai ir meditacijai bei individualiam mokymui. Mokyklos dizainas skatina bendradarbiavimą ir pabrėžia mokinių įvairovę. Ypatingas dėmesys buvo skiriamas viešosioms erdvėms tarp klasių, kurios buvo suprojektuotos taip, kad skatintų mokytis žaidžiant. Grupės rato koncepcija buvo panaudota siekiant sukurti apskritą sėdimąjį suolą, kad būtų galima įvairiai išdėstyti sėdimąsias vietas bet kuriam norinčiam prisijungti vaikui, pavyzdžiui, vaikui neįgaliojo vežimėlyje. Dėlionės formos motyvas kartojasi visame dizaine, atspindėdamas kiekvieno vaiko unikalumą ir tai, kad susirinkę visi kartu jie sudaro visumą. Emocinei perkrovai išvengti naudotos ramios spalvos ir medinės medžiagos. Projektavimo proceso metu jie kalbėjosi su pedagogais, kurie specializuojasi įtraukiojo mokymosi srityje. Šis projektas laimėjo 2020 m. FAME apdovanojimą už indėlį į visuomenę ir aplinką.

Vaikų darželis „Futaba“ - tai vaikams skirta jutiminė architektūra. Įsikūręs Abiko mieste, esančiame už 40 km nuo Tokijo centro (Japonija), „Jakuetsu“ ir „2id Architects“ įgyvendino ekologišką projektą, kuriame medžio plokštės tapo projekto simboliu, sukuriančiu jutiminę patirtį.

Dviejų aukštų pastate išnaudojamas pirmojo aukšto pranašumas, kad vidaus erdvė būtų sujungta su išore per didelius stumdomus stiklinius langus, esančius išilgai koridoriaus, kuris jungiasi su kiemeliu, šaligatviai yra tame pačiame lygyje.

Erdvė išnaudojama po tvirtais šlaitiniais stogais, paremtais atviromis medinėmis santvaromis, kurios ne tik užtikrina konstrukcijos stabilumą, bet ir suteikia erdvei šilumą bei jaukumą.

Naudojamos natūralios medžiagos, daugiausia mediena, kurios yra ne tik pastato konstrukcijoje, bet ir pertvarose bei vidaus apdailoje - tiek pertvarose, tiek grindyse.

Vertikalios sienos padengtos perforuotomis medinėmis plokštėmis su augalų motyvu - lapu su keturiais žiedlapiais, kurių vidinis kraštas skirtingai nuspalvintas, todėl priklausomai nuo žiūrovo padėties pano matymas sukuria skirtingą suvokimo įspūdį.

Ne tik apdaila sukurta atsižvelgiant į vaikų poreikius, bet ir visame pastate esantys ženklai, kuriuose tekstas derinamas su piktogramomis, kad vaikučiai galėtų lengvai atpažinti kiekvieną erdvę.

Futaba

Išvados: Autizmo spektro sutrikimų turinčių vaikų ugdymo aplinkų įtraukiojo dizaino analizė

Lyginant įtraukiuosius autizmo spektro sutrikimų turinčių vaikų ugdymo aplinkų projektus, verta atkreipti dėmesį į tai, kad visi siekia užtikrinti, jog vaikų erdvės būtų saugios, prieinamos ir atviros visiems vaikams. Turi būti erdvės žaidimams, kūrybai ir tyrinėjimams. Ekologiškos medžiagos ir jų patikimumas, natūrali šviesa ir nedirginanti aplinka.

LOKACIJA

Mano pasirinkta vieta – tai ne tik lokacija, bet ir gyva istorija, įkūnijama Klaipėdos vaikų darželyje „Traukinukas“. Įkurtas pokario metais, šis darželis tapo geležinkelio darbuotojų vaikų prieglauda, simbolizuojančia viltį ir atgimimą. Savo egzistencijos pradžioje darželis veikė paprastame gyvenamajame name, kuriame šildymas buvo organizuotas naudojant krosnį. Tai ne tik suteikė šilumą šaltomis dienomis, bet ir sukūrė jaukią, beveik namų atmosferą.

Laikui bėgant darželis tapo įstaiga, išugdžiusia ne vieną Klaipėdos kartą. Nepaisant modernizacijos ir infrastruktūros pokyčių, kai kurie senojo dizaino elementai, tokie kaip siauri koridoriai, išliko nepakitę, primindami apie praeities laikus. Tačiau būtent šios architektūrinės ypatybės gali apsunkinti gyvenimą vaikams su specialiaisiais poreikiais.

Šiandienos užduotis – transformuoti darželį

į įtraukiantį ugdymo įstaigą, atitinkančią šiuolaikinius reikalavimus ir visų vaikų poreikius, įskaitant tuos, kurie susiduria su ypatingais iššūkiais, pavyzdžiui, autizmu. Rekonstrukcija apima patalpų plėtrą ir gerinimą, kad kiekvienas vaikas jaustųsi čia kaip namuose, o ugdymo aplinka skatintų vystymąsi ir socializaciją.

Būtent taip, gerbiant praeitį ir žvelgiant į ateitį, vaikų darželis toliau yra švyturys Klaipėdos švietimo gyvenime, atveriantis naujas perspektyvas ateinančioms kartoms.

PROJEKTAS

demontuojama projektuojama esama

1.1 1.1 1.3 1.4 1.6 1.5 1.7 1.8 1.12 1.11 1.17 1.16 1.19 1.20 1.21 1.18 1.15 DEMONTUOJAMA ESAMA PROJEKTUOJAMA 1.13 1.10 1.9 1.2

1.1 HOLAS

GRUPĖS

1.2 GRUPĖ

1.3 GRUPĖ

UŽSIĖMINAI

1.4 SENSORINIS KAMBARYS

1.5 LOGOPEDO KAB.

1.6 PSICHOLOGO KAB.

1.7 SPORTO/AKTŲ SALĖ

1.8 UŽSIĖMIMO KAB.

1.9 UŽSIĖMIMO KAB.

1.10 UŽSIĖMIMO KAB.

ADMINISTRACIJA

1.11 BUHALTĖRIO KAB.

1.12 DIREKTORIAUS PAV. KAB.

1.13 DIREKTORIAUS KAB.

1.14 PERSONALAS

1.15 VIRTUVĖ

1.16 LAIPTINĖ

1.17 FOJĖ

1.18 POKALBIŲ KAMBARYS

1.19 SANMAZGAS

1.20 LIFTAS

1.21 TECH. PATALPOS

ATSIRADO UŽSIĖMIMO KAMBARIAI BEI TRANSFORMUOJAMA SPORTO SALĖ

KEIČIAMA ADMINISTRACINIŲ KABINETŲ VIETA, DABAR ARČIAU PAGRINDINIO ĮĖJIMO

NAUJA FOJĖ ZONA SU ATSIVERIANČOMIS LUBOMIS PER DU AUKŠTUS

PERPROJEKTUOJAMAS ĮĖJIMAS, NUTIESIAMI PANDUSAI

ATSIRADO POKALBIU KAMBARYS TĖVAMS

ĮRĖNGTAS SANMAZGAS NEĮGALIESIEMAS

PIRMO AUKŠTO PLANAS - STRUKTŪRINIAI PASTATO PAKEITIMAI

demontuojama projektuojama esama

2.1 2.2 2.3 2.4 2.11 2.12 2.5 2.8 2.6 2.7 2.1 DEMONTUOJAMA ESAMA PROJEKTUOJAMA

2.1 HOLAS

GRUPĖS

2.2 GRUPĖ

2.3 GRUPĖ

2.4 GRUPĖ

2.5 GRUPĖ

2.6 GRUPĖ

UŽSIĖMINAI

2.7 SENSORINIS SODAS

2.8 NUSIRAMINIMO KAMBARYS

2.9 LAIPTINĖ

2.10 FOJĖ

2.11 LIFTAS

2.12 TECH. PATALPOS

AUKŠTO PLANAS - STRUKTŪRINIAI PASTATO PAKEITIMAI
ANTRO
ATSIRADO PAPILDOMA ERDVĖ
0.1

RUSIO PLANAS

0.1 TECH. PATALPOS

PJŪVIS 1-1
1-1 1-1

EKSPLIKACIJOS LENTELĖ

1.1 HOLAS

1.2 RUBINĖ

1.3 GRUPĖ 85,7

1.4 SANMAZGŲ BLOKAS 13,3

1.5 VIRTUVĖLĖ 2

1.6 RUBINĖ 15

1.7 GRUPĖ 85,7

1.8 SANMAZGŲ BLOKAS 13,3

1.9 VIRTUVĖLĖ 2

1.10 LOGOPEDO KAB. 10,4 1.11 PSICHOLOGO KAB. 10,4 1.12 SENSORINĖ ERDVĖ 26,1

1.13 TRANSFORMUOJAMA AKTŲ/SPORTO SALĖ 143,2

1.14 SANDĖLIUKAS 9,3

1.15 UŽSIĖMIMŲ KAMBARYS

1.16 UŽSIĖMIMŲ KAMBARYS

1.17 UŽSIĖMIMŲ KAMBARYS

1.18 BUHALTERĖS KAB. 13,9

1.19 DIREKTORIAUS PAV. KAB. 14,6

1.20 DIEREKTORIAUS KAB. 15,6

1.21 PERSONALO KAMBARYS 15,5

1.22 SANMAZGAS 2,9

1.23 DUŠAS 2,7

1.24 VIRTUVĖ

1.25 LIFTAS 3,2

1.26 TECH. PATALPA 1

1.27 SANMAZGAS 3,9

1.28 POKALBIŲ KAMBARYS 8,2

1.29 FOJĖ 109,9

1.30 LAIPTINĖ 21,8 2

PIRMO AUKŠTO PLANAS
m
145,4
15
32,2
31,8
30,2
27,8

1. SANDĖLIUKAS

2. HAMAKŲ ZONA

3. SLĖPINIŲ MIŠKAS

4. ŽAIDIMŲ AIKŠTELĖ

5. SUPYNĖS

6. SANDĖLIUKAS, LAUKO WC

7. AMFITEATRAS

8. STOGINĖS

9. TEKSTŪROS TAKAI

10. SMĖLIO DĖŽĖ

11. BALA

12. SUPYNĖS

13. BATUTAI, KALNĖLIAI

1. 2. 3.

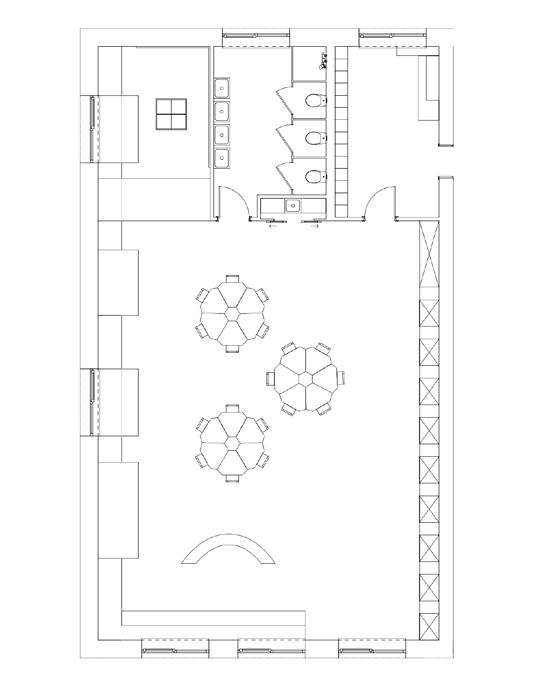
Pagrindinis įėjimas veda į erdvų holą, kuris yra centrinė pastato dalis. Holas suprojektuotas taip, kad būtų lengva pasiekti visas svarbiausias zonas ir paslaugas. Ypatingas dėmesys skirtas saugumui ir patogiam judėjimui.

Čia yra administracijos kabinetai, kambarys tėvams, kur jie gali aptarti svarbius klausimus, taip pat kūrybos ir bendravimo kabinetai. Netoliese yra sporto ir aktų salės bei virtuvė.

Holas įrengtas taip, kad tėvai galėtų ramiai spręsti savo reikalus, kol vaikai užsiima žaidimais. Erdvė kruopščiai apgalvota, kad būtų užtikrintas vaikų saugumas: numatytos minkštos dangos, apsaugos ir stebėjimo zonos.

Hole taip pat yra laiptai, vedantys į antrą aukštą, o už jų — liftas žmonėms su negalia. Tai užtikrina, kad visos pastato zonos būtų prieinamos visiems lankytojams, nepriklausomai nuo jų fizinių galimybių.

AKUSTINĖS LUBOS
HOLAS BERŽINĖ FANERA
Beam IP20 GU10 PAR16 WH 3P Led panelė su reguliuojama spalvos temperatūra 24W
VINILINE DANGA
MESH
VINILINE
TINKAS BALTI AKUSTINIAI DAŽAI
GRINDŲ DANGA

POKALBIŲ KAMBARYS

Į darželiį įtraukta nauja funkcinė detalė - nedidelis pusiau stiklinis kambarys, esantis tiesiai hole. Ši erdvė su stalu ir kėdėmis skirta tėvų ir mokytojų susitikimams. Čia galima diskutuoti apie vaikų vystymąsi ir ugdymą privačiai, nesiblaškydami nuo išorinių dirgiklių ir palaikydami vizualinį kontaktą su žaidžiančiais vaikais dėl stiklinių sienelių.

Siekiant užtikrinti privatumą ir sukurti nuošalesnę atmosferą patalpoje, stiklines sienas galima uždaryti užuolaidomis. Tai leidžia pokalbius palaikyti intymesnėje aplinkoje, jei reikia, paslėpti nuo bendros erdvės vaizdų ir triukšmo. Šis sprendimas prisideda prie komforto tiek tėvams, tiek darbuotojams, todėl bendravimo procesas tampa kuo efektyvesnis ir malonesnis.

BERŽINĖ FANERA VINILINE GRINDŲ DANGA AKUSTINĖS LUBOS
Beam
PAR16
spalvos
IP20 GU10
WH 3P Led panelė su reguliuojama
temperatūra 24W
GRINDŲ BALTI AKUSTINIAI DAŽAI

Vaikų darželyje suprojektuota unikali daugiafunkcinė patalpa, jungianti sporto (kurios anksčiau įstaigoje nebuvo) ir aktų sales. Dėl akustinių pertvarų ši erdvė gali lengvai transformuotis: prireikus ji gali būti padalinta į dvi atskiras sales, leidžiant vaikams vienu metu užsiimti skirtinga veikla.

Kai reikia sutalpinti visus norinčius, erdvė sujungiama į vieną erdvią salę, idealiai tinkančią rytmečiams, koncertams ir kitiems dideliems renginiams. Abi salės aprūpintos nepriklausomomis paslėptomis laikymo vietomis, užtikrinančiomis patogumą ir tvarką, leidžiančiomis greitai ir lengvai organizuoti bet kokius renginius.

BERŽINĖ FANERA LAKUOTA

BERŽINĖ FANERA

AKUSTINĖS LUBOS

apvalus lubinis LED šviestuvas “BOSTON”

SPORTO SALĖ
MESH TINKAS VINILINE GRINDŲ DANGA

SENSORINIS KAMBARYS

Mažiems vaikams pažinimo procesas vyksta ne per loginius pastatymus ir racionalizavimą, o per pojūčių patirtį ir sensorinę informaciją. Siekiant vaiko vystymosi ikimokyklinėse įstaigose, jiems įrengiamos sensorinės patalpos.

Kuo daugiau sensorinės informacijos bus pateikta, tuo geriau vaikų gebėjimai lyginti ir analizuoti, pažinti tikrovę ir tobulinti kognityvines gebėjimas. Šios patalpos skirtos psichologiniam atpalaidavimui ir emocinės būsenos harmonizavimui. Jos suteikia galimybę saugiai mokytis tvarkytis su stresu ir neigiamomis emocijomis, taip pat su agresija ir hiperaktyvumu.

Sensoriniai kambariai yra šiuo metu labai populiarūs visame pasaulyje. Šiuolaikinis sensorinis kambarys – tai ypatingai sutvarkyta ir įrengta aplinka: lavinamoji įranga, įvairūs žaidimai, raminanti muzika ir specialus apšvietimas. Kambario sienos ir grindys padengtos minkštomis plokštėmis arba kilimėliais, užpildytos minkštais pufais ir pagalvėlėmis.

Relaksacijos zona skirta vaikui nuraminti. Šiuo tik slu vaikui galima pasiūlyti pasėdėti sausame ba seine, pripildytame specialių kamuoliukų ir puikiai atpalaiduojančiame visas raumenų grupes. Šioje zonoje yra minkšta danga, sienų ir grindų kilimėliai.

Čia yra pufų ir pagalvėlių, supamasis krėslas, sau sas baseinas su saugiais veidrodžiais. Šviestuvai ir šviesolaidinės skaidulos sukuria išsklaidytą šviesą ir šviesolaidinį efektą (žvaigždėtas dangus, žvaigždžių lietus ,veidrodinis rutulys). Šią zoną papildo aromat erapijos įrenginys ir muzikos sistema.

Aktyvinimo zona sukurta priešingu tikslu: ji skatina vaiką judėti. Šiam tikslui naudojama interaktyvioji įranga, jutikliniai skydeliai, pakabinamos ir judančios konstrukcijos, taip pat įvairūs ryškių ir neįprastų formų daiktai.

Kambaryje įrengti jutikliniai skydeliai rankoms ir ko joms: specialūs sensoriniai takai kojoms, oro bur bulų vamzdeliai, kurie palietus sukuria vibraciją. Pa talpoje yra apšvietimo įranga su šviesos bei garso efektais (interaktyvūs skydai, prožektorių sistemos). Taip pat yra muzikos arba garsų rinkinių atkūrimo sistema. Gali būti masažinių kamuoliukų ir kitų panašių daiktų.

Vaikų darželiams. Vaikų darželiuose kambariai skirti vaikų vystymuisi, „pasaulio paveikslo“ formavimui. Užsiėmimai vyksta žaidimo principu, kaitaliojant ak tyvų skatinimą ir atsipalaidavimą.

Vaikų darželiuose sensoriniuose kambariuose įrengti sausi baseinai su spalvotais kamuoliukais, oro burbulų kolonos, interaktyvūs skydai su lietimo jutikliais, minkštos dėlionės, konstruktoriai, garso įranga ir berėmiai baldai.

EKSPLIKACIJOS LENTELĖ

2.1 HOLAS

2.2 RUBINĖ

2.3 GRUPĖ

2.4 SANMAZGŲ BLOKAS

2.5 VIRTUVĖLĖ

2.6 RUBINĖ

2.7 GRUPĖ

2.8 SANMAZGŲ BLOKAS

2.9 VIRTUVĖLĖ

2.10

2.11 RUBINĖ

2.12 GRUPĖ

2.13 SANMAZGŲ BLOKAS

2.15 LIFTAS

2.16

2.17 NUSIRAMINIMO

2.18

2.19

2.20

2.22 SANMAZGŲ BLOKAS

2.23 VIRTUVĖLĖ

2.24 RUBINĖ

2.25 GRUPĖ

2.26 SANMAZGŲ BLOKAS

2.27 VIRTUVĖLĖ

m
150,6
13,4
110,6
13,8
2
16,6
107,1
14,8
2
21,8
LAIPTINĖ
16,2
89,6
13,8
2.14 VIRTUVĖLĖ 2
3,2
TECH. PATALPA 1
12,3
KAMBARYS
SODAS 112,9
SENSORINIS
HOLAS 27,9
15
RUBINĖ
85,7
2.21 GRUPĖ
13,3
2
15
85,7
13,3
2
ANTRO AUKŠTO PLANAS
2

Darželio persirengimo kambarys suprojektuotas minimalistiniu stiliumi ir ramiais tonais, kurie sukuria jaukią ir malonią atmosferą. Vietoj spintelių viršutiniams drabužiams naudojami kabliukai, kad drabužiai geriau džiūtų esant blogam orui.Kiekvienam vaikui skirta ištraukiama dėžė batams ir mažas spintelė asmeniniams daiktams laikyti.

Priešais spinteles yra specialiai suprojektuoti baldai tėvams, leidžiantys jiems patogiai padėti vaikams persirengti. Baldų konstrukcija sukurta taip, kad būtų užtikrintas maksimalus komfortas ir patogumas be būtinybės stipriai lenktis ar klauptis.

RUBINĖ
BERŽINĖ FANERA BALTI AKUSTINIAI DAŽAI VINILINE GRINDŲ DANGA AKUSTINĖS LUBOS

Šioje vaikų grupėje sukurta erdvė, kuri atitinka visus vaikų poreikius, užtikrinant jiems komfortą ir saugumą. Patalpoje vizualinis triukšmas yra sumažintas iki minimumo: visi daiktai tvarkingai sudėti į individualias spinteles ir dėžutes, ant kurių piešiniais parodyta jų turinys. Rami spalvų gama be ryškių atspalvių padeda sukurti harmonijos ir ramybės atmosferą.

Sienos centre yra dienotvarkės lenta, kurioje su paveikslėliais žingsnis po žingsnio parodyta, kaip praeis diena. Specialūs laikrodžiai informuoja vaikus, kiek laiko liko iki dabartinės veiklos ar žaidimo pabaigos.

GRUPĖ
LAKUOTA
BERŽINĖ FANERA BERŽINĖ FANERA MESH TINKAS VINILINE GRINDŲ DANGA AKUSTINĖS LUBOS

Aktyviems žaidimams ir fizinei veiklai

patalpoje yra numatyta daugiafunkcinė sienelė su čiuožykla, laipteliais ir nameliu. Šis kampelis leidžia vaikams stebėti, kas vyksta aplinkui ir tobulėti fiziškai. Taip pat grupėje yra jaukios zonos poilsiui ir atsipalaidavimui, aprūpintos taktilinėmis plokštėmis su įvairiomis tekstūromis, kurios padeda sumažinti stresą ir skirtos žaidimams.

Taip pat ypatingas dėmesys skiriamas apšvietimo sistemai, kuri suprojektuota taip, kad palaikytų įvairią kasdienę vaikų veiklą – nuo miego iki mokymosi ir žaidimų.

Apšvietimas yra reguliuojamas: jis gali skirtis nuo šiltų iki vėsių tonų ir nuo ryškios iki blankesnės šviesos. Šis funkcionalumas leidžia sukurti optimalias sąlygas kiekvienai veiklos rūšiai, skatinant geresnę koncentraciją studijų užsiėmimų metu ir atsipalaidavimą poilsio metu.

Vaikai gali savarankiškai pasirinkti, kuo užsiimti laisvalaikiu: tyrinėti spintelių turinį, išsitraukti mėgstamus žaislus ar užsiimti kūryba. Grupėje esanti virtuvėlė gali pasislėpti už nepastebimų durų, kai jos nereikia, atlaisvindama erdvę kitoms veikloms ir užtikrindama funkcionalumą ir patogumą.

Patalpoje yra įvairių tipų langai: įprasti ir stoglangiai, kurie praleidžia šviesą ir leidžia stebėti aplinkinį pasaulį.

Toks požiūris ne tik pagerina regėjimo komfortą visiems vaikams, įskaitant ypač jautrius šviesai, bet ir sukuria prisitaikančią bei palaikančią mokymosi aplinką, atitinkančią kiekvieno vaiko individualius poreikius.

apvalus lubinis LED šviestuvas “BOSTON”

Noriu išsamiau papasakoti apie sienelę, kuri skirta įvairioms vaikų veikloms ir vystymuisi.

Joje yra laipteliai laipiojimui ir čiuožykla nusileidimui, kas padeda lavinti fizinį aktyvumą ir judesių koordinaciją. Užlipę laipteliais, vaikai patenka į namelyje, kur yra taktiliniai elementai sensoriniam vystymuisi.

Taip pat yra kelios ramybės ir persikrovimo zonos. Šios zonos aprūpintos užuolaidomis, kad sukurtų ramesnę atmosferą. Ant sienų šiose zonose pritvirtintos medžiagos stresui mažinti. Vienoje iš zonų yra langas, kurį vaikai gali naudoti stebėdami aplinkinį pasaulį.

Įmontuotos ištraukiamos konstrukcijos gali būti naudojamos kaip dėžutės ar pufai sėdėjimui. Sienelėje taip pat yra įvairių žaidimo elementų, leidžiančių vaikams kurti ir realizuoti įvairius žaidimus, atsižvelgiant į jų fantaziją ir norus.

Ši sienelė padeda lavinti vaikų fizinius ir sensorinius įgūdžius, suteikdama jiems galimybę kartu žaisti ir bendrauti, skatindama bendrą veiklą ir socialinius įgūdžius

GRUPĖ BERŽINĖ FANERA LAKUOTA BERŽINĖ FANERA
MESH TINKAS BALTI AKUSTINIAI DAŽAI VINILINE GRINDŲ DANGA AKUSTINĖS LUBOS

Norėta sukurti jaukią ir patrauklią erdvę vaikams, kurioje jie galėtų visapusiškai tobulėti. Vaikų darželyje yra specialus

žaidimų kampelis, apimantis įvairius elementus aktyviai ir kūrybinei veiklai.

Viena iš sienelių turi magnetinį paviršių, ant kurio galima pritvirtinti įvairias figūras, kuriant vaizdus ir kompozicijas.

Kita sienelė yra pagaminta iš medžio ir turi taktilinius elementus sensoriniam vystymuisi. Žaidimų zonoje taip pat numatyta vieta, kur vaikai gali laipioti, lavindami savo fizinį aktyvumą.

Šis kampelis suteikia vaikams galimybę

užsiimti įvairia veikla – nuo kūrybinės iki fizinės, skatindamas jų visapusišką vystymąsi ir tarpusavio bendravimą.

Vaikai gali kurti įvairius žaidimus, tobulinti savo įgūdžius ir tiesiog mėgautis laiku, praleistu kartu

AKUSTINĖS

GRUPĖ BERŽINĖ FANERA LAKUOTA BERŽINĖ FANERA
MESH TINKAS
BALTI AKUSTINIAI DAŽAI VINILINE GRINDŲ DANGA LUBOS

Vaikų darželio grupėje yra stalai ir kėdės, kurių aukštis reguliuojamas pagal kiekvieno vaiko ūgį. Šiuos stalus galima lengvai perkelti ir išdėstyti bet kokia tvarka, leidžiant organizuoti darbą tiek individualiai, tiek porose, mažose grupėse ar visoje grupėje.

Visi stalai turi užapvalintus kampus, todėl jie yra saugūs vaikams. Baldų kojelės suprojektuotos taip, kad nesukeltų triukšmo ir neslystų. Matinis stalų paviršius apsaugo nuo blizgesio ir suteikia komfortą dirbant.

Baldai pagaminti iš tvirtų ekologiškų medžiagų, todėl yra ilgaamžiai ir lengvai prižiūrimi. Stalus ir kėdes galima lengvai valyti, kas padeda palaikyti švarą ir higieną patalpoje.

Darbas po viena

Darbas kartu

Darbas grupėse

GRUPĖ
STALO FORMA STALO AUKŠTIS REGULIUOJAMAS SUMONTUOTI SPECIALŪS NESLYSTANTYS ELEMENTAI, UŽTIKRINANTYS STABILUMĄ IR SAUGUMĄ. STALO APAČIOJE KLIJUOJAMOS LYTĖJIMO MEDŽIAGOS STALO PAVIRŠIUS MATINIS

Vaikų darželyje baldai skirstomi į dvi kategorijas, kad būtų užtikrintas komfortas įvairaus amžiaus vaikams, atsižvelgiant į vaikų augimo statistiką.

1. Amžiaus grupė (2-4 m.): Šio amžiaus vaikams stalai ir kėdės projektuojami atsižvelgiant į vidutinį ūgį:

Būdamas 2 metų, vidutinis vaiko ūgis yra apie 85-95 cm.

Sulaukus 3 metų, vidutinis ūgis padidėja iki 95-105 cm.

4 metų amžiaus vidutinis ūgis yra apie 100-110 cm.

Stalų aukštis yra 46-53 cm, o kėdžių - 26-30 cm.

2. Antra grupė (5-7 m.): Baldai pritaikyti vyresnio amžiaus grupės vaikų ūgiui:

5 metų amžiaus vaikų vidutinis ūgis yra maždaug 105–115 cm.

6 metų ūgis padidėja iki 110-120 cm.

7 metų amžiaus vidutinis ūgis siekia 115–125 cm.

Stalai pastatyti 54-62 cm, o kėdės - 30-34 cm.

300 260 530 460

Erdvės panaudojimo koncepcija darželyje buvo permąstyta išimant atskirus miegamuosius, o lovas integruojant tiesiai į grupių kambarius. Toks sprendimas priimtas siekiant optimizuoti erdvę: iš kokybiškų medžiagų pagamintos lovos, įmontuotos į spintas, lengvai išlankstomos ir padedamos, todėl kambarį galima pertvarkyti pagal esamus vaikų poreikius.

Dieną, kai lovos yra sulankstytos, kambarys tampa erdvia ir daugiafunkcine žaidimų ir užsiėmimų erdve, išlaikančia dinamišką ir skatinančią edukacinę erdvę. Patogios ir saugios baldų transformavimo sistemos dėka greitai ir efektyviai vyksta pasiruošimo miegui ir vėlesnio erdvės valymo procesas, sudarant reikiamas sąlygas vaikų poilsiui ir poilsiui, nepažeidžiant patalpų funkcionalumo.

BERŽINĖ FANERA AKUSTINĖS LUBOS

GRINDŲ

GRUPĖ
BALTI AKUSTINIAI DAŽAI VINILINE DANGA

SAN MAZGAS

Vaikų darželio sanmazgas suprojektuotas minimalistiniu stiliumi ir atliktas ramioje spalvų paletėje. Jame įrengti vaikams patogūs veidrodžiai. Ant sienų yra vizualinės užuominos, padedančios vaikams orientuotis ir savarankiškai atlikti higienos procedūras. Ypatingas dėmesys skirtas saugumui ir higienai: visi paviršiai lengvai valomi, o medžiagos parinktos atsižvelg ant į jų ekologiškumą ir ilgaamžiškumą.

BERŽINĖ FANERA

BALTOS PLYTELĖS BALTI AKUSTINIAI DAŽAI EPOKSIDINĖ GRINDŲ DANGA LED VONIOS LUBINIS ŠVIESTUVAS

SENSORINIS SODAS

MEDINĖS GRINDYS

BERŽINĖ FANERA

BALTI AKUSTINIAI DAŽAI

Sensorinis sodas - specialiai sukurta erdvė, skirta stimuliuoti visus penkis vaikų pojūčius. Čia kiekvienas elementas padeda pagerinti regėjimą, lytėjimo pojūčius, skonį, klausą ir uoslę.

Sąveika su gamta, paliečiant skirtingas tekstūras, ošiančių lapų ar fontanų garsus, gėlių aromatus ir šviežių vaisių bei daržovių skonį, pagerina visų vaikų, taip pat ir specialiųjų poreikių, savijautą.

Sensorinis sodas ne tik tobulina pažintinius ir fizinius įgūdžius per žaidybinę veiklą, bet ir padeda sumažinti stresą, agresiją ir nerimą, pasiūlydamas vaikams ramią ir saugią vietą atsipalaiduoti ir atsigauti. Ši erdvė tampa idealia ergo ir sensorinės terapijos aplinka, kur kiekvienas vaikas gali eksperimentuoti ir tyrinėti palankioje ir stimuliuojančioje aplinkoje.

apvalus lubinis LED šviestuvas “BOSTON”

Vinilinės homogeninės grindų dangos iQ Natural Acoustic

Akustinės grindys su biologišku vinilu, kuris tradicinę iškastinęžaliavą pakeičia atsinaujinančia biomasės žaliava. Ši tvari vinilo grindų danga yra grindų sprendimas, leidžiantis sumažinti šiltnamio efektą sukeliančių dujų išmetimą, užtikrinant sklandų ugdymą.

Mesh / akustinis tinklelis - Serge Ferrari

Ši naujoviška danga pagerina akustiką ir užtikrina aukštą saugos lygį, nes neleidžia daiktams įstrigti. Tinklelis gali atlaikyti kelių tonų apkrovas, todėl tai idealus pasirinkimas vietoms, kuriose būna aktyvūs vaikai

Akustiniai balti dažai

Baltos spalvos akustiniai dažai naudojami ramiam ir švariam fonui sukurti, sumažinant vizualinį triukšmą. Šis sprendimas ne tik pagerina patalpų akustines savybes, bet ir palaiko vaikų susikaupimą bei savijaut

ĮVAIZDŽIO ŽEMĖLAPIS

Beržinė fanera

Panaudota natūralaus žalsvo atspalvio lakuota beržinė fanera. Ši medžiaga suteikia subtilų akcentą, praturtindama erdvę, nebūdama per šviesi. Lako danga ne tik pabrėžia natūralų medžio grožį, bet ir padidina medžiagos ilgaamžiškumą, todėl

Beržinė fanera

Ši medžiaga buvo pasirinkta dėl jos universalumo ir gebėjimo harmoningai įsilieti į įvairius interjero dizainus, nenaudojant ryškių spalvų. Beržinė fanera ne tik estetiškai patraukli, bet ir leidžia kurti įvairių formų baldus bei dekoraty-

Akustinės lubos - Rigitone

Šios plokštės gali būti naudojamos tiek lubų, tiek ir sienų aptaisymui. Dėka perforacijos per visą plokštės paviršių, RIGITONE gaminiai pasižymi aukštomis garso sugerties sąvybėmis, kas lemia aidėjimo trukmės mažinimą patalpoje.

Iš antrojo aukšto atsiveria įspūdingas vaizdas į holą, kurio viršuje ištemptas Serge Ferrari kompanijos tinklas. Šis tinklelis ne tik pabrėžia erdvės atvirumą, bet ir yra itin patvarus, atlaiko kelias tonas, o tai užtikrina saugumą.

Natūrali šviesa iš stoglangių daro erdvę šviesią ir jaukią, o specialus tinklelio kraštų apdirbimas užtikrina vaikų saugumą žaidžiant.

HOLAS
BERŽINĖ FANERA MESH TINKAS BALTI AKUSTINIAI DAŽAI VINILINE GRINDŲ DANGA AKUSTINĖS LUBOS Beam IP20 GU10 PAR16 WH 3P Led panelė su reguliuojama spalvos temperatūra 24W
BIBLIOGRAFIJA

1. Sveikatos netolygumai“ 2023, nr. 1(47)

2. Diagnostic and statistical manual of mental disorders, fifth edition

3. Transl pediatr. 2020 Feb; 9(suppl 1): s55–s65. Doi: 10.21037/Tp.2019.09.09

4. A history and timeline of autism By vincent iannelli, md updated on december 11, 2023

Fact checked by james lacy

5. Bogdashina o. Autizmas: apibrėžimas ir diagnozė (Bogdasina o. autizm opredelenie i diagnostika)

6. Understanding autism, hearing loss and auditory processing disorder symptoms can overlap, making diagnosis tricky in kids. Contributed by debbie clason. Ast updated may 31, 2023

7. Shifting brain inhibitory balance and connectivity of the prefrontal cortex of adults with autism spectrum disorder. Published online 2017 may 23. Doi:10.1038/Tp.2017.104

8. Environmental factors in autism. Published online 2013 jan 18. Doi:10.3389/Fpsyt.2012.00118

9. 20211122_Ankstyvoji-pagalba-vaikams-su-a.Pdf

10. Nason b. Pagrindinės autizmo problemos. Autizmas ir raidos sutrikimai = autism and developmental disorders, 2015. 13 Tomas, nr. 4, 33-38 Psl. Doi:10.17759/Autdd.2015130404

11. Bogdashina, sensory perceptual issues in autism and asperger syndrome : different sensory experiences, different perceptual worlds.

12. National library of medicine. Physiology, sensory receptors. Authors: anna marzvanyan1; ali f. Alhawaj2. \ Bogdashina, sensory perceptual issues in autism and asperger syndrome : different sensory experiences, different perceptual worlds.

13. Sensory abnormalities in autism spectrum disorders: a focus on the tactile domain, from genetic mouse models to the clinic. Published online 2020 jan 28. Doi: 10.3389/Fpsyt.2019.01016 Luigi balasco

14. Deep dive confusion at the crossroads of autism and hearing loss by jyoti madhusoodanan 12 august 2020

15. Autism spectrum disorder and auditory sensory alterations: a systematic review on the integrity of cognitive and neuronal functions related to auditory processing, published online 2023 mar 14. Doi: 10.1007/S00702-023-02595-9

16. Dr. Natalie engelbrecht nd rp/ heightened sensory perceptions published: may 27, 2018 last updated on september 14, 2023

17. Johansson i. Ypatinga vaikystė / iš anglų kalbos vertė o. B. Rožanskaja, М. Terevinf, 2014. 20-22 Psl.

18. Atypical visual saliency in autism spectrum disorder quantified through model-based eye tracking . November 4, 2015

19. 20211122_Ankstyvoji-pagalba-vaikams-su-a.Pdf

20. Designing for clients with kids on the autism spectrum. Experts share insights into how to serve your asd clients best. By jaime joyce. April 13, 2021

21. Mostafa, “architecture for autism: autism aspectsstm in school design.”

22. Https://www.Autism.Archi/aspectss

23. Architecture for autism: built environment performance in accordance to the autism aspectss™ design index

24. Architectural principles of sensorial stimulating spaces design for children's preschool institutions doi: 10.24412/1998-4839-2021-2-320-336

25. Incorporating the behavioral dimension in designing inclusive learning environment for autism

26. Educational spaces for children with autism; design development process\ cib w084 “building comfortable and liveable environments for all” international meeting ‘education and training” georgia tech university, atlanta, usa 15-16 may 2008

27. Architecture and autism brussels 2008

28. Designing environments for children adults with asd pdf

29. A playroom for autistic children, and its companion therapy project —a synthesis of ideas from ethology, psychology, nursing and design

30. Autizmo spektro sutrikimų turinčių vaikų jutimo ypatybės. Pagalbos strategijos. Metodinė priemonė / manelis n. G., Nikitina j. V., Feroi l. M., Komarova o. P. / Pagal red.A. V. Haustova, n. G. Manelis. M.: Frc fgbou mgppu, 2018. Psl .70

31. On the formation of values of social behavior in children with autism spectrum disorder through translation of a fairy tale in the tomatis method

32. Brett D. „Kartą gyveno tokia mergina kaip tu...“. Psichoterapinės istorijos vaikams. M.: Nepriklausoma įmonė „Klass“, 1996 - 143 psl.( Brett D. “Zila-bila devocka,pohozajanatebia...”. Psichoterapevticheskie istorii dlia detej))

33. Paskelbta: 2021 10 11\Tiurmorezova Olesia Vasiljevna\ Pasakų terapija kaip psichologinio korekcinio darbo su vaikais, turinčiais ASS, kryptis.

34. Khukhlaev O. E. „Sielos labirintas: terapinės pasakos“ / Khukhlaev O. E., Khukhlaeva O. V. Sankt Peterburgas: Akademinis projektas, 2013 - 176 psl.] iš (Pasakų terapija kaip darbo su nerimastingais neįgaliais vaikais metodas Lvova Marina Aleksandrovna

35. The Positive Impacts of Fairy Tales for Children Leilani VisikoKnox-Johnson English 345 / University of Hawai‘i at Hilo HOHONU 2016 Vol. 14

36. Barbora Suisse, Jurgita Žalgirytė-skurdenienė “Autizmas- dalis manęs”2024, baltos rankos

37. Lietuvos respublikos sveikatos apsaugos ministras Įsakymas dėl lietuvos higienos normos hn 75:2016 „ikimokyklinio ir priešmokyklinio ugdymo programų vykdymo bendrieji sveikatos saugos reikalavimai“ patvirtinimo

„...aš

neturiu sutrikimų – turiu iššūkių. Mano keistumas neišnyks, jei validuosiu

save įsirašydama diagnozę, autizmas – tai aš, tai mano asmenybės dalis, tai nėra kažkas, ką dabar įsidėjau į kišenę, o paskui galėsiu išmesti.“

citata iš knygos “autizmas- dalis manęs”

Turn static files into dynamic content formats.

Create a flipbook
Issuu converts static files into: digital portfolios, online yearbooks, online catalogs, digital photo albums and more. Sign up and create your flipbook.
Elina Kirjakulova "Inkliuzinės erdvės kūrimas. Darželio rekonstrukcija" by VAA Interior design department / VDA Interjero dizaino katedra - Issuu