Ieva Armonavičiūtė "SENJORŲ IR STUDENTŲ REZIDENCIJA"

Page 1

SENJORŲ IR STUDENTŲ REZIDENCIJA

VDA Interjero dizaino katedra

2017m. bakalauro studijų baigiamasis darbas

SENJORŲ IR STUDENTŲ REZIDENCIJA

IV kurso stud. Ieva Armonavičiūtė

Darbo vadovė prof. D.Adomonienė

„Senatvė priklauso prie tų sąvokų, kurių kasdieniška prasmė visiems akivaizdi, bet kurias moksliškai apibrėžti sunku ar net neįmanoma. Klasikinis tokios moksliškai sunkiai apibrėžiamos sąvokos pavyzdys yra gyvenimas, kurio dar niekas nesugebėjo apibūdinti be išlygų. Senatvė yra paskutinė gyvenimo fazė, po jos ateina tiktai mirtis. Kadangi nėra gyvenimo apibrėžimo, negalime nediskutuodami apibrėžti ir vieno iš jo periodų.“ 1

1 - A.Kepinski “Gyvenimo ritmas”, 2008

1 2

TURINYS

Įvadas

Užduotis

Apklausos tyrimas Lokacija

Funkcinės schemos Tūriniai pokyčiai Planai Pjūviai

Senjorų numerių detalizacija (vienvienis, 1 tipas) Senjorų numerių detalizacija (vienvienis, 3 tipas) Senjorų numerių detalizacija (dvivietis, 1 tipas)

Studentų kambario detalizacija (dvivietis, 1 tipas)

4 aukšo studentų poilsio/virtuvės erdvė 2 aukšto polifunkcinė erdvė 1 aukšto bendrosios erdvės

Lauko problematikos sprendinių pasiūlymas

Neįgalieji rezidencijoje

anketa Šaltiniai

3 4
Tyrimo
5 9 10 15 19 22 23 31 35 37 39 43 45 49 55 61 63 65 68

Visame pasaulyje vyksta dideli demografiniai pokyčiai, dėl kurių mažėja vaikų, tačiau vystantis medicinai ir ilgėjant gyvenimo trukmei daugėja vyresnio amžiaus žmonių. Šis reiškinys apibūdinamas kaip gyventojų senėjimas – procesas, kurio metu didėja vyresnio nei 65 metai amžiaus žmonių dalis bendroje populiacijoje.

Lietuvos statistikos departamento duomenimis, 2016 metais iš viso 548 527 Lietuvos gyventojai priklausė 65 m. ir vyresnio amžiaus grupei. Iš jų net 86266 gyvena Vilniaus mieste. Apie 95 proc. Lietu vos senjorų gyvena savo namuose. Dauguma jų patys rūpinasi savimi ar sulaukia pagalbos iš artimųjų. Ypač vieniši jaučiasi senoliai, kurių vaikai gyvena toli, o draugų ratas vis retėja.

Lietuvos statistikos departamento duomenimis, dauguma senų žmonių pasisako už gyvenimą atskirai nuo savo vaikų: 66,8% 60-69 metų ir 61,3% 70-79 metų žmonių gyvenimą atskirai nuo savo vaikų vertina palankiai. Vilniaus mieste įkurtos 8 senjorų apgyvendinimo įstaigos ir 2 dienos centrai. Vis dėlto, pastebima, kad gyvenimas tipiniuose senelių globos namuose gali ir neigiamai paveikti žmogų, nes mažinamas asmens autonomiškumas, mažėja fizinis aktyvumas ir saviraiškos galimybės. Dažnai globos namai „persistengia” besirūpindami ir neskatina pačių senolių aktyvumo.

Dar vienas neigiamas veiksnys: kadangi senelių namuose didelė senų žmonių koncentracija, čia ypač dažnai susiduriama su mirtimi.

„Jausmas, kad „išsipildė“, kad nieko daugiau nebegali būti, kad jau žengiama keliu karšatį ir mirtį, yra bene tragiškiausias senatvės išgyvenimas. Senas žmogus ginasi nuo jausmo, kad jau viską yra padaręs. O ginasi irgi menkučiais tikslais ir kasdieniais rūpesčiais, skųsdamasis silpstančio kūno negalavimais, ieško damas malonumo dalykuose, kuriuos seniau nekreipdavo dėmesio („kad šviečia saulelė, kad rytą bus šviežio pienelio“ ir pan.). Tačiau po tuo margu kadienybės koloritu slypi tamsi nuojauta, kad viskas baigta.“

1 - A.Kepinski “Gyvenimo ritmas”, 2008

ĮVADAS 5 6

Nagrinėjant senyvo amžiaus žmonių padėtį ir problemas, tyrimai atskleidžia, jog sveikatos sutrikimus ir ligas, kurių atsiranda senatvėje, dažnai sukelia ir įtakoja psichologinės problemos. Pasak amerikiečių mokslininkės B. Hansen Lemme1 psichologinių problemų senatvėje atsiranda dėl istorinių, socialinių ir individualių veiksnių sąveikos, o senyvo žmogaus neprisitaikymui visuomenėje ir nei giamam savo amžiaus vertinimui mokslininkė priskiria šiuos pagrindinius faktorius: išėjimą į pensiją, sutuoktinio ir draugų netektis, tikslo kasdienybėje praradimą, beprasmybės jausmą ir diskriminacinį visuomenės požiūrį į senus žmones.

Ilgesnė gyvenimo trukmė neužtikrina galimybės pilnavertiškai juo džiaugtis išlaikant ir socialinę nepriklausomybę.

Anot Pasaulio sveikatos organizacijos programos, pagyvenusių žmonių sveikata gali būti pagerinta, jei jiems bus užtikrintas tolesnis aktyvus gyvenimas, pasikeis neigiamas požiūris į senėjimą, piliečiai bus skatinami gyventi sveikai. Pasaulio sveikatos organizacija ne tik siūlo suaktyvinti informacijos sklaidą apie sveiko senėjimo svarbą, bet ir konkrečiai veikti, t. y. skatinti visus žmones vertinti vyresnio amžiaus žmones kaip neįkainojamą turtą, sudaryti jiems sąlygas būti aktyviems, padėti ir sudaryti sąlygas visą gyvenimą iki senatvės saugoti ir stiprinti sveikatą, supažindinti kuo daugiau asmenų su pagyvenusiais žmonėmis, jų patirtimi, naudinga veikla bei supažindinti su užsienio senjorų patirtimi, kokiomis veiklomis jie užsiima, kaip bendrauja.2

Demografinis gyventojų senėjimas sukelia ne tik iššūkius visuomenei, bet ir naujas galimybes.

Dizainas atlieka itin svarbų vaidmenį žmogui augant ir senstant: jis turi įtakos, kaip mes įsikuriame savo namuose, kaip mes dirbame ir keliaujame, kokius produktus ir paslaugas naudojame ir naudosime ateityje.

Nuotraukose pateikiami gaminių pavyzdžiai iš dizainerių Francesca Lanzavecchia ir Hunn Wai (Lanzavecchia + Wai)sukurtos kolekcijos „No Country For Old Men“ ir Zhang Yuqian kolekcijos „Accompany“. Šios kolekcijos skirtos padėti vyresnio amžiaus žmonėms lengviau prisitaikyti prie savo fizinių poreikių pokyčio buitinėje kasdienybėje.

7 8 1 - Hansen Lemme B. Suaugusiojo raida. 2003 2 - G. Šurkienė, R. Stukas, V. Alekna, A. Melvidaitė, Populiacijos senėjimas kaip visuomenės sveikatos problema. Gerontologija 2012; Nr 13(4), P. 235–239

SENJORŲ IR STUDENTŲ REZIDENCIJOS

projekto pagrindinis tikslas yra sukurti kitokią gyvenamąją vietą vyres nio amžiaus gyventojams, skatinančią jų integraciją į socialinę ir kultūrinę visuomenės veiklą, užtikrinančią jų saviraišką bei tobulėjimą, emocinį ir fizinį gerbūvį ir kartų integracijos pagalba plėtojančią teigiamą senėjimo proceso įvaizdį visuomenėje

9 10

TYRIMAS

TAIP NE

SENJORŲ POŽIŪRIS Į KARTŲ INTEGRACIJĄ

Projektas pradėtas apklausa, parengta kartu su Vilniaus dailės akademijos Interjero dizaino ketvirtojo kurso studente Emilija Bučyte, atliekančia bakalauro pakopos studijų baigiamąjį darbą gimininga tema. Į mūsų pateiktus klausimus atsakė 71 responden tas iš Vilniaus (ypač aktyviai apklausoje dalyvavo Vilniaus Medar do Čoborto trečiojo amžiaus universiteto klausytojai), Klaipėdos, Joniškio, Marijampolės ir Panevėžio miestų.

Ar kaip alternatyvą vienišam gyveni muijaučiantnuolatinėspagalbossty giųpasirinktumėtegyvenimąsenjorų namuose su medicininėmis ir social inėmispaslaugomis?

Ar sutinkate, jog bendravimas tarp skirtingų kartų daro teigiamą psi chologinįpoveikį?

Ar manote, kad senjorų rezidencijos gyventojus teigiamai veiktų artima jaunesniųžmoniųkaimynystė?

Armanote,jogregliarusbendravimas su vaikais turi pozityvų psichologinį poveikį?

Ar galimybė bendrauti su iš užsienio šalių atvykusiais studentais-prakti kantaispraskaidrintųkasdienybę?

11 12

RESPONDENTŲ INTERESAI VEIKLAI SENJORŲ REZIDENCIJOJE

Tyrimo metu paaiškėjo, jog dauguma re spondentų pirmenybę teiktų didesnei veiklų įvai rovei senjorų rezidencijoje, nei aplinkos esteti kai, maitinimo kokybei.

Vis dėlto, svarbu paminėti, jog būtent aplinka atlieka svarbų vaidmenį stimuliuodama fizinio ir intelektualinio pobūdžio veiklas. Tam projektuo jamos erdvės, kurios savo estetika ir funkciona lumu turi būti „kviečiančios“ rezidencijos gyventojus jose susitelkti ir užsiimti kuo įvairesnėmis veiklomis.

13 14

PROJEKTO LOKACIJA

Apklausos dalyvių paklausus apie prioritetus naujajai gyvenamajai vietai paaiškėjo, jog net 75% respondentų rinktųsi aktyvaus gyvenimo būdo scenarijų kuo arčiau miesto centro. Taip pat svarbu, jog netoliese būtų parkas.

Naujajai senjorų ir studentų rezidencijai pasirinkta M.K.Čiurlionio gatvė Vilniuje.

Ši gatvė vertinama kaip viena iš jaukiausių ir prestižiškiausių Vilniaus miesto vietų, kurioje dominuoja privatūs prestižiniai namai, kuriuose įsikūrę Lietuvos inteligentijos atstovai. Čia įsikūrusios Japonijos, Lat vijos ir Vokietijos ambasados. Visai greta - Vilniaus miesto centras, Gedimino prospektas ir Senamiestis su kultūros ir pramogų objektais, kavinėmis ir restoranais, kuriuos galima pasiekti pėsčiomis arba vos per porą minučių viešuoju transportu (pagr. jo kelias ir stotelė pažymėta pateiktoje schemoje). Netoliese esantis Vingio parkas suteikia visas galimybes aktyviam laisvalaikiui gamtoje ir užtikrina šviežų gaivų orą miesto centro aplinkoje. Tai puiki lokacija gyventi senjorams ir studentams, norintiems išnaudoti visus gyvenimo miesto centre privalumus, nenutolstant nuo gamtos suteikiamos ramybės.

Pateikiamoje schemoje pažymėtos lankytinos vietos bei paslaugos 2 km spinduliu.

15 16

Pastato statybos laikotarpis 1940 - 1959, taip pat žinomas kaip „stalinistinės“ architektūros laikotarpis. Socialistinio istorizmo pastatai šiuo laikotarpiu projektuoti panaudojant klasikinės, orderinės architektūros komponavimo principus. Tokio tipo pastatas šiandien puikiai tinka sen jorų ir studentų rezidencijai įkurti, išlaikant ir sustiprinant jo didingumo, reprezentatyvumo įspūdį. Klasikinės architektūros elementai padiktuoja ilgalaikio prabangaus viešbučio koncepciją, kuri galėtų kompensuoti vyresnės kartos gyventojų ribotas galimybes išvykti keliauti. Šiuo metu pastatas priklauso Vilniaus Universiteto gamtos ir medicinos mokslų fakulteto ben drabučių kompleksui.

M.K.ČIURLIONIO G. 27
17 18

PASTATO PLANAI IR FUNKCINĖS SCHEMOS

Projekte nagrinėjami keturi pastato aukštai, kurių kiekvieno plotas yra 1219 m2 .

Schemose vaizduojamos naujai planuojamos funkcinės schemos.

Šiame projekte siūloma išlaikyti esamą kolonų tinklą, jį pabrėžiant, taip pat išardyti kuo mažiau esamų pertvarų, išlaikyti esamą laiptų struktūrą.

Pirmo aukšto planas

Antro aukšto planas

grožio ir medicinos paslaugos kavinė/baras sporto salė

restoranas/valgykla virtuvė, techninės patalpos administracija senjorų numeriai fototerapijos patalpa kino kambarys

senjorų numeriai biblioteka/skaitykla polifunkcinė erdvė holo erdvė per du aukštus

Pagrindinis numatomas pastato struktūros pokytisdalies perdangos išardymas tarp pirmojo ir antrojo aukštų, siekiant suteikti reprezentatyvumo, erdvumo bei didingumo įspūdį, sustiprinti ryšį tarp svarbių pir mojo ir antrojo aukšto visuomeninių zonų.

liftas

minimali architektūrinė rekonstrukcija - vestibiulio erdvė per 2 aukštus liftas liftas liftas

Trečio aukšto planas Ketvirto aukšto planas

studentų kambariai virtuvė/poilsio zona

kolektyvinio darbo kambarys meditacinė erdvė

Rūsio aukšto planas

Vertikalieji ryšiai pastate

senjorų numeriai

studentų kambariai visuomeninės erdvės

Pastatas taip pat turi ir dar vieną potencialų rūsio aukštą, kurio panaudojimas nepakeistų projekto koncepcijos, tačiau prirei kus papildomos komercinės funkcijos čia būtų galima įterpti dar paslaugų.

19 20

PAGRINDINIAI TŪRINIAI POKYČIAI

1 AUKŠTAS

1. Stiklinis liftas, jungiantis visus keturis pastato aukštus

2. Vertikalieji sodai, jungiantys pirmus du aukštus

3. Kolonų tinklą pabrėžianti įstiklinta polifunkcinė erdvė konferenci joms, kūrybinėms dirbtuvėms, šventėms, mokymams, susirinkimams ir t.t.

4. Dalinai uždara atsipalaidavimo erdvė

2 AUKŠTAS

5. Jungtis su pirmuoju aukštu per atvertą perdangos dalį

6. Išardant pertvaras sukuriama didelė bendroji erdvė

3 AUKŠTAS

7.Formuojama nedidelė vestibiulio erdvė

4 AUKŠTAS

8. Sukuriama virtuvės ir poilsio erdvė studentams

1 2 3 4 5 6 7 8 21 22

Pirmo aukšto planas M 1:250

DETALIZUOJAMOS ERDVĖS (žiūrėti 55psl.)polifunkcinė erdvė atsipalaidavimo erdvė

valgykla baras

PIRMO AUKŠTO EKSPLIKACIJA:

1-01 Tambūras 1-02 Laiptinė 1-03 Valgykla / restoranas 1-04 Atsipalaidavimo zona 1-05 Virtuvė 1-06 Sandėliavimo patalpa 1-07 Virtuvės personalo san.mazgas 1-08 Virtuvės personalo drabužinė 1-09 Tambūras 1-10 Mokomoji virtuvė 1-11 Virtuvės personalo poilsio kambarys 1-12 Sandėliavimo patalpa 1-13 San. mazgas 1-14 Bendrabučio būdėtojo kabinetas 1-15 Vestibiulis 1-16 Administracijos darbuotojų kabinetas 1-17 Administracijos darbuotojo kabinetas

3,57 m2 20,44 m2 171,35 m2 17,25 m2 55,97 m2 9,18 m2 5,74 m2 5,84 m2 4,63 m2 66,67 m2 8,60 m2 22,16 m2 4,90 m2 8,92 m2 39,79 m2 13,50 m2 13,72 m2

1-18 Drabužinė

1-19 Administracijos darbuotojo kabinetas 1-20 Administracija

1-21 Susirinkimų kambarys

1-22 Treniruoklių salė 1-23 Grupinių treniruočių salė

1-24 Drabužinė

1-25 San mazgas

1-26 Psichologo kabinetas

1-27 Parduotuvė / vestibiulis

1-28 Šeimos gydytojo kabinetas

1-29 San. mazgas

1-30 Grožio salonas

1-31Masažo kabinetas

1-32 Slaugytojo kabinetas

1-33 Polifunkcinė erdvė 1-34 Kavinė / baras

IŠ VISO

8,46 m 15,18 m 9,92 m 15,19 m 52,73 m 75,12 m 10,6 m 5,58 m 16,19 m 71,24 m 14,95 m 3,06 m 32,01 m 14,73 m 19,44 m 31,40 m 163,15 m 1031,84 m

23 24

ANTRO AUKŠTO EKSPLIKACIJA:

Antro

DETALIZUOJAMOS ERDVĖS:

senjorų numeris (vienvienis, 3 tipas) (žiūrėti 37 psl.)

senjorų numeris (vienvienis, 1 tipas) (žiūrėti 35 psl.)

senjorų numeris (dvivietis, 1 tipas) (žiūrėti 39 psl.)

biblioteka (žiūrėti 49 psl.)

polifunkcinė erdvė (žiūrėti 49 psl.)

M

2-01. Polifunkcinė erdvė

2-02. Nr. 3 tipo numeris

2-03. Nr. 3 tipo numeris

2-04. Nr. 4 tipo numeris

2-05. Nr. 1 tipo numeris

2-06. Valytojos patalpa 2-07. Koridorius

2-08. Nr. 3 tipo numeris

2-09. Koridorius

2-10. San. mazgas 2-11. Koridorius

2-12. Nr. 5 tipo numeris

2-13. Koridorius

141,67 m2 30,93 m2 31,79 m2 44,06 m2 37,13 m2 5,66 m2 15,83 m2 27,80 m2 11,09 m2 9,62 m2 12,88 m2 33,80 m2 12,38 m2

2-14. Nr. 5 tipo numeris

2-15. Nr. 3 tipo numeris

2-16. Koridorius

2-17. Nr. 5 tipo numeris

2-18. Koridorius

2-19. Nr. 3 tipo numeris

2-20. Biblioteka/skaitykla

2-21. Valytojos patalpa

2-22. Nr. 1 tipo numeris

2-23. Nr. 2 tipo numeris

2-24. Nr. 3 tipo numeris

2-25. Nr. 3 tipo numeris

IŠ VISO:

34,27 m2 32,83 m2 12,38 m2 33,80 m2 12,88 m2 35,52 m2 209,92 m2 5,73 m2 39,95 m2 44,07 m2 33,52 m2 33,45 m2 981,33 m2

aukšto planas
1:250
25 26

Trečio aukšto planas M 1:250

DETALIZUOJAMOS ERDVĖS:

senjorų numeris (vienvienis, 3 tipas) (žiūrėti 37 psl.)

senjorų numeris (vienvienis, 1 tipas) (žiūrėti 35 psl.)

TREČIO AUKŠTO EKSPLIKACIJA:

3-01. Vestibiulis

3-02. Nr. 3 tipo numeris

3-03. Nr. 3 tipo numeris

3-04. Koridorius

3-05. Nr. 3 tipo numeris

3-06. Nr. 3 tipo numeris

3-07. Koridorius

3-08. Nr. 4 tipo numeris

3-09. Nr. 1 tipo numeris

3-10. Valytojos patalpa 3-11. Koridorius

3-12. Kino kambarys

3-13. Koridorius

3-14. Nr. 3 tipo numeris

3-15. San mazgas

3-16. Koridorius

3-17. Nr. 5 tipo numeris

3-18. Koridorius

3-19. Nr. 5 tipo numeris

3-20. Nr. 5 tipo numeris

20,83 m2 30,93 m2 31,79 m2 13,45 m2 36,51 m2 34,73 m2 12,68 m2 44,06 m2 37,13 m2 5,66 m2 25,92 m2 31,44 m2 11,93 m2 27,80 m2 8,94 m2 12,78 m2 33,80 m2 12,38 m2 34,27 m2 33,80 m2

3-21. Koridorius

3-22. Nr. 5 tipo numeris

3-23. Koridorius

3-24. Nr. 3 tipo numeris

3-25. Nr. 3 tipo numeris

3-26. Koridorius

3-27. San mazgas

3-28. Tambūras

3-29. Fototerapijos kambarys

3-30. Koridorius

3-31. Valytojos patalpa

3-32. Nr. 1 tipo numeris

3-33. Nr. 2 tipo numeris

3-34. Koridorius

3-35. Nr. 3 tipo numeris

3-36. Nr. 3 tipo numeris

3-37. Koridorius

3-38. Nr. 3 tipo numeris

3-39. Nr. 3 tipo numeris

IŠ VISO:

12,38 m2 32,83 m2 12,80 m2 34,19 m2 30,49 m2 10,81 m2 2,38 m2 1,70 m2 24,82 m2 25,78 m2 5,73 m2 39,95 m2 44,07 m2 12,62 m2 35,53 m2 33,52 m2 13,68 m2 38,14 m2 33,45 m2 946,15 m2

27 28

DETALIZUOJAMOS ERDVĖS: studentų virtuvės/poilsio erdvė (žiūrėti 45 psl.) dvivietis studentų kambarys (1 tipas) (žiūrėti 43 psl.)

KETVIRTO AUKŠTO EKSPLIKACIJA:

4-01. Vestibiulis 4-02. Dvivietis studentų kambarys (1 tipo) 4-03. Dvivietis studentų kambarys (1 tipo) 4-04. Trivietis studentų kambarys 4-05. Koridorius 4-06. Trivietis studentų kambarys 4-07. Dvivietis studentų kambarys (1 tipo) 4-08. Dvivietis studentų kambarys (1 tipo) 4-09. Dvivietis studentų kambarys (1 tipo) 4-10. Dvivietis studentų kambarys (1 tipo) 4-11. Mot. tualetai ir dušai 4-12. Vyr. tualetai ir dušai 4-13. Dvivietis studentų kambarys (2 tipo) 4-14. Privatus dviejų kambarių san. mazgas 4-15. Koridorius 4-16. Prieškambaris 4-17. Vienvietis studento kambarys 4-18. Meditacinė erdvė 4-19. Koridorius 4-20. Bendri tualetai ir dušai 4-21. Bendrabučio darbuotojo patalpa 4-22. Koridorius 4-23. Skalbykla 4-24. Dvivietis studentų kambarys (1 tipo) 4-25. Dvivietis studentų kambarys (1 tipo) 4-26. Koridorius 4-27. Dvivietis studentų kambarys (1 tipo) 4-28. Dvivietis studentų kambarys (1 tipo)

20,09 m2 16,05 m2 18,45 m2 29,72 m2 24,25 m2 31,25 m2 15,89 m2 15,61 m2 17,42 m2 18,87 m2 17,87 m2 16,86 m2 21,88 m2 2,96 m2 16,33 m2 4,28 m2 12,44 m2 31,33 m2 13,28 m2 26,65 m2 8,19 m2 12,58 m2 13,89 m2 15,12 m2 20,90 m2 12,05 m2 16,56 m2 15,88 m2

4-29. Dvivietis studentų kambarys (1 tipo)

4-30. Dvivietis studentų kambarys (1 tipo)

4-31. Dvivietis studentų kambarys (1 tipo)

4-32. Dvivietis studentų kambarys (1 tipo)

4-33. Koridorius

4-34. Dvivietis studentų kambarys (1 tipo) 4-35. Dvivietis studentų kambarys (1 tipo) 4-36. Koridorius

4-37. Dvivietis studentų kambarys (1 tipo)

4-38. Dvivietis studentų kambarys (1 tipo) 4-39. Bendri tualetai ir dušai 4-40. Koridorius

4-41. Kolektyvinio darbo kambarys 4-42. Vienvietis studento kambarys 4-43. Prieškambaris

4-44. Koridorius

4-45. Dvivietis studentų kambarys (2 tipo) 4-46. Privatus san. mazgas

4-47. Vyr. tualetai ir dušai 4-48. Mot. tualetai ir dušai 4-49. Dvivietis studentų kambarys (1 tipo) 4-50. Dvivietis studentų kambarys (1 tipo) 4-51. Virtuvė ir poilsio erdvė

4-52. Dvivietis studentų kambarys (1 tipo)

4-53. Dvivietis studentų kambarys (1 tipo)

IŠ VISO

15,34 m2 15,34 m2 15,88 m2 16,71 m2 12,05 m2 17,23 m2 15,91 m2 12,58 m2 13,28 m2 17,03 m2 28,07 m2 13,18 m2 25,86 m2 12,84 m2 5,55 m2 15,29 m2 22,05 m2 3,06 m2 16,86 m2 15,82 m2 17,72 m2 18,25 m2 126,77 m2 17,78 m2 20,22 m2 997,22 m2

Ketvirto aukšto planas M 1:250
29 30
PASTATO PJŪVIS 31 32 Pastato pjūvis 1-1 M 1:250 Pastato pjūvis 2-2 M 1:250

NUMERIAI/KAMBARIAI

DETALIZACIJOS
33 34

VIENVIETIS SENJORO NUMERIS (TIPAS

Senjorų rezidencijoje planuojami 4 šio tipo apartamentų tipo numeriai: 2 antrajame ir 2 trečiajame aukšte.

Plotas:

Gyvenamasis kambarys su virtuvėle - 18.3m2

Miegamasis - 12.85m2 Vonios kambarys - 7.26m2 Iš viso: 38,41m2 ŠVIESTUVŲ PARINKTYS:

Numerio planas M 1:75

šviestuvas „North“ (Vibia)

kėdė „No Country For Old Men“ (Lanzavecchia + Wai)

Pjūvis-išklotinė 3-3 M 1:50

sofa „Raglan“ (Forza)

mobilus stalelis „No Country For Old Men“ (Lanzavecchia + Wai)

sieninis šviestuvas „Sconce 2“ (Serge Mouille)

sieninis šviestuvas „Sconce 2“ (Serge Mouille)

fotelis „Agnese“ (Tacchini)

sieninis šviestuvas „Ombre sconce“ (Pouenat)

stalinis šviestuvas „Cocotte“ (Serge Mouille) integruotas liuminescencinis apšvietimas

DIRO SBL S 83 į lubas įleidžiami šviestuvai (gamint. DELTALIGHT)

DIRO TRIMLESS LED IP į lubas įleidžiami šviestuvai (gamint. DELTALIGHT)

UNILINE TRIMLESS LED profilis (gamint. DELTALIGHT)

MICRO - K Extrusion po spintele įmontuojamas LED profilis (gamint. Klus)

SP.FR500.S1 Veidrodis su integruotu LED apšvietimu (gamint. Alape)

NORTH pakabinamas šviestuvas (gamint. Vibia)

COCOTTE stalinis šviestuvas (diz. Serge Mouille)

SCONCE sieninis šviestuvas (diz. Serge Mouille) SCONCE 2 sieninis šviestuvas (diz. Serge Mouille) SCONCE sieninis šviestuvas (gamint. Pouenat)

Numerio lubų planas M 1:75

LMPD plokštė

Pjūvis-išklotinė 4-4 M 1:50

integruotas liuminescencinis apšvietimas

mini šaldytuvas, integruojamas patogiame aukštyje

integruotas LED apšvietimas MICRO K LED profilis (Klus)LMPD plokštė

1)
3 4 3 4 35 36 Vinilinė grindų danga - ąžuolo parketlenčių imitacija Vinilinė grindų danga - akmens masės plytelių imitacija

VIENVIETIS SENJORO NUMERIS

Senjorų rezidencijoje planuojami 19 šio tipo aparta mentų tipo numerių: 7 antrajame ir 12 trečiajame aukšte.

Detalizuojamo numerio plotas: Gyvenamasis kambarys su virtuvėle - 13,9m2 Miegamasis - 12,4m2 Vonios kambarys - 5,6m2 Iš viso: 31,9m2

Tai dažniausiai pasikartojantis standartinis numeris, tači au dėl pastato struktūros įtakos jo bendras plotas svyruoja nuo 27,80 m2 iki 38,14 m2 .

Numerio planas M 1:75

Pjūvis-išklotinė 5-5 M 1:50

ŠVIESTUVŲ PARINKTYS:

DIRO SBL S 83 lubas įleidžiami šviestuvai (gamint. DELTALIGHT)

DIRO TRIMLESS LED IP lubas įleidžiami šviestuvai (gamint. DELTALIGHT)

UNILINE TRIMLESS LED profilis (gamint. DELTALIGHT)

COCOTTE stalinis šviestuvas (diz. Serge Mouille)

MICRO - K Extrusion po spintele įmontuojamas LED profilis (gamint. Klus)

SCONCE sieninis šviestuvas (diz. Serge Mouille)

SCONCE OMBRE sieninis šviestuvas (gamint. Pouenat)

SP.FR500.S1 Veidrodis su integruotu LED apšvietimu (gamint. Alape) NORTH pakabinamas šviestuvas (gamint. Vibia)

Pjūvis-išklotinė 6-6 M 1:50

Numerio lubų planas M 1:75

(TIPAS 3)
mini šaldytuvas, integruojamas patogiame aukštyje MICRO - K LED profilis (Klus) kėdė „No Country For Old Men“ (Lanzavecchia + Wai) šviestuvas „North“ (Vibia) stalinis šviestuvas „Cocotte“ (Serge Mouille)
LMPD plokštė integruotas liuminescencinis apšvietimas MICRO K LED profilis (Klus) MICRO K LED profilis (Klus) 6
6 5 5 37 38 Vinilinė grindų danga ąžuolo parketlenčių imitacija Vinilinė grindų danga - akmens masės plytelių imitacija sieninis šviestuvas „Sconce Ombre“ (gamint. Pouenat) veltinis

DVIVIETIS SENJORŲ NUMERIS (TIPAS 1)

Senjorų rezidencijoje planuojami 2 šio tipo apartamentiniai numeriai: po vieną antrajame ir trečiajame aukštuose. Numeriai pritaikyti poroms, tačiau su galimybe lovas atskirti esant poreikiui.

Plotas:

Gyvenamasis kambarys su virtuvėle - 17,8m2

Miegamasis - 18,7m2

Vonios kambarys - 7.17m2

ŠVIESTUVŲ PARINKTYS:

DIRO SBL S 83 lubas įleidžiami šviestuvai (gamint. DELTALIGHT)

DIRO TRIMLESS LED IP lubas įleidžiami šviestuvai (gamint. DELTALIGHT)

UNILINE TRIMLESS LED profilis (gamint. DELTALIGHT)

MICRO - K Extrusion po spintele įmontuojamas LED profilis (gamint. Klus)

TUYAUX sieninis šviestuvas (diz. Serge Mouille)

SCONCE 2 sieninis šviestuvas (diz. Serge Mouille)

SP.FR500.S1 Veidrodis su integruotu LED apšvietimu (gamint. Alape) NORTH pakabinamas šviestuvas (gamint. Vibia)

Numerio planas M 1:75

Alternatyvus lovų išdėstymas M 1:100

sieniniai šviestuvai „Tuyaux “ (Serge Mouille)

Pjūvis-išklotinė 9-9 M 1:50

LMPD plokštė

integruotas liuminescencinis apšvietimas mygtukas medicinos darbuotojo iškvietimui

Numerio lubų planas M 1:75

8 7 9 9 8 7 39 40 Vinilinė grindų danga ąžuolo parketlenčių imitacija Vinilinė grindų danga akmens masės plytelių imitacija

Kiekviename numeryje projektuojama minkštoji zona bei virtuvėlė, siekiant sustiprinti namų atmosferą ir išlaikyti savarankišką gyvenimo būdą kiekvienam senjorui. Vis dėlto, numeriai projektuojami patenkinti minimalius poreikius nedidelėje erdvėje, skatinant senjorus praleisti daugiau laiko bendrosiose erdvėse komunikuojant su ki tais rezidencijos gyventojais.

Kambarių apdailoje dominuoja medienos motyvai. Grin dims naudojama ąžuolo parketlenčių imitacijos vinilinė danga, vonios kambariuose akmens masės plyteles imituojanti taip pat vinilinė danga.

ąžuolo parketlenčių imitacijavinilinė grindų danga

mini šaldytuvas, integruojamas patogiame aukštyje integruotas LED apšvietimas UNILINE TRIMLESS profilis (gamint. DELTALIGHT) šviestuvas „North“ (Vibia) Pjūvis-išklotinė 8-8 M 1:50 Pjūvis-išklotinė 7-7 M 1:50 LMPD plokštė sieniniai šviestuvai „Tuyaux (Serge Mouille) sofa „Saari“ Arper) sieniniai šviestuvai „Sconce“ (Serge Mouille) stalelis „Fiorile“ (Forza) fotelis „Agnese“ (Tacchini) 41 42
veltinis

DVIVIETIS STUDENTŲ KAMBARYS (TIPAS 1)

LMPD plokštė (klevas)

LMPD plokštė (su audinio imitacija)

Bendrabučio aukšte planuojami 18 šio tipo dviviečių kambarių studentams.

Tai dažniausiai pasikartojantis standartinis nu meris, tačiau dėl pastato struktūros įtakos, jo bendras plotas svyruoja nuo 13,28 m2 iki 20,90 m2.

ŠVIESTUVŲ PARINKTYS:

11 10 11

DIRO SBL S 83 į lubas įleidžiami šviestuvai (gamint. DELTALIGHT)

Vinilinė grindų dangabetono imitacija

UNILINE TRIMLESS LED profilis (gamint. DELTALIGHT)

Kambario planas M 1:75 Kambario lubų planas M 1:75

FLEX stalinis šviestuvas (gamint. Vibia)

RISE sieninis šviestuvas (gamint. Normann Copenhagen)

Kiekviename kambaryje projektuojamos individualizuotos darbo vietos, atsižvelgiant į medicinos studijų pobūdį ir poreikį mokytis savarankiškai. Kolektyviniam darbui ir mokymuisi ketvirta jame pastato aukšte įrengiama atskira patalpa.

Pjūvis-išklotinė 10-10 M 1:50

spalvinis akcentas- deko ratyvus radiatorius „Ron“, gamint. Eskimo

Vinilinė grindų danga betono imitacija

Pjūvis-išklotinė 12-12 M 1:50

Pjūvis-išklotinė 11-11 M 1:50

LMPD plokštė integruotas liuminescencinis apšvietimas sieninis šviestuvas „Rise“ Normann Copenhagen) stalinis šviestuvas „Flex“ (Vibia) vienspalvė LMPD plokštė sieninis šviestuvas „Rise“ ( Normann Copenhagen) LMPD plokštė (klevas) LMPD plokštė audinio imitacija LMPD plokštė dekoratyvus ra diatorius „Ron“ (Eskimo)
10
12 12 43 44

DETALIZACIJOS

VISUOMENINĖS ERDVĖS

4-OJO AUKŠTO STUDENTŲ

VIRTUVĖS

Beveik 127 m2 ploto erdvė ketvirtajame aukšte skiriama bendros veiklos zonoms sukurti ir sustiprinti komunikacijai tarp rezidencijos stu dentų.

Šiaurinėje erdvės dalyje skiriama zona valgymui su dviem baro aukščio stalais, kurie prireikus gali būti sustumiami, tokiu būdu transformuojant erdvę įvairioms funkcijoms. Pietinėje patalpos dalyje planuojama poilsio ir žaidimų zona.

Plano fragmentas M 1:100

POILSIO IR
ERDVĖ
Lubų plano fragmentas M 1:100 45 46 Vinilinė grindų danga - tamsaus ąžuolo parketlenčių imitacija GSEducationalVersion +2 55 +2 90 +2 55

sofa„Connect“ (gamint. Muuto)

BALDŲ PARINKTYS:

baro kėdė „Nam nam“ (gamint. 8000c)

baro aukščio stalas „Bykato“ (gamint. Andersen Furniture) kėdė „Catena“ (gamint. Robert Chipman)

stalas„PP75“ (diz. Hans Wegner, gamint. PP Mobler)

MEDŽIAGIŠKUMAS:

1 baltas tinkas

2 juoda spalva dažyta gipso kartono plokštė

3 tamsaus ąžuolo parketą imituojanti vinilinė grindų danga

4 klevo medienos faneruotė

5 betono imitacijos akustinės garsą sugeriančios plokštės (gamint. thermatex)

6 akustinės garsą sugeriančios plokštės (gamint. baux)

DIRO SBL S 83 lubas įleidžiami šviestuvai (gamint. DELTALIGHT)

UNILINE TRIMLESS integruojamas LED profilis (gamint. DELTALIGHT)

stalo futbolo žaidimas (gamint. Opendesk)

MICRO - K Extrusion

spintele įmontuojamas LED profilis (gamint. Klus)

lubinis šviestuvas (gamint. MUUTO)

ŠVIESTUVŲ PARINKTYS:
MHY pakabinamas
po
48
1 2 3 5 6 4

mos zonos

Vakarinėje dalyje -

dalyje

kompiuterinio

liams, mokymams, biliardo

skiriama bibliotekai

formuojamos

suformuoti.

Polifunkcinės erdvės plano fragmentas M 1:150 Rytinėje pastato
210 m2 ploto antrojo aukšto erdvė
ir skaityklai
Sukuria
lavinti
raštingumo įgūdžius.
142 m2 erdvė veikia kaip polifunkcinė. Joje
zonos įvairioms veikloms - būre
ir pokerio žaidimams. 2-OJO AUKŠTO BENDROSIOS ERDVĖS 1 2 3 49

ŠVIESTUVŲ PARINKTYS:

BALDŲ PARINKTYS:

MINI DIRO R TRIMLESS įleidžiami šviestuvai (gamint. DELTALIGHT)

SPY TRIMLESS 3033 į lubas įleidžiami kryptiniai šviestuvai (gamint. DELTALIGHT)

SPLITLINE 29 Įleidžiamas profilis Integruojami kryptiniai šviestuvai ir LED juostos (gamint. DELTALIGHT)

fotelis „Mamy blue“ (gamint. Poltrona Frau)

staleliai „Billy Wood“ (gamint. Cattelan Italia) fotelis„Queens“ (gamint. Kare) sofa „Metropolitan“ (gamint. Poliform)

stalas „Slim“ (gamint. Sovet) kėdė „Hiroshima“ (gamint. Maruni)

SMITHFIELD pakabinamas lubinis šviestuvas (gamint. FLOS)

HERE COMES THE SUN pakabinami lubiniai šviestuvai (gamint. DCW editions)

TOLOMEO PARETE sieniniai šviestuvai (gamint. ARTEMIDE)

Polifunkcinės erdvės plano fragmentas M 1:150

Ryški antrojo aukšto interjero detalė - vertikalusis sodas, pra sitęsiantis iš pirmojo aukšto. Kartu su stikliniu liftu ir išardyta perdangos dalimi sukuriami ir pabrėžiami ryšiai tarp pirmojo aukšto ir antrojo aukšto bendrųjų erdvių, sustiprinamas jų reprezentatyvumas.

51 52
53 54 MEDŽIAGIŠKUMAS: 1 baltas tinkas 2 auksinio alksnio faneruotė 3 balintos pušies parketą imituojanti vinilinė grindų danga 4 HPL plokštė feniks, juoda 21 3 4

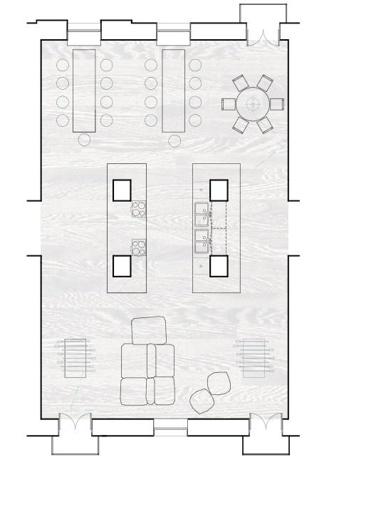
Pirmojo aukšto visuomeninėje erdvėje formuojami du atskiri tūriai. Baro/ kavinės zonoje - stiklinėmis durimis įrėminta kon ferencijų patalpa (pirmojo a. plane žym. nr. 1). Sukurta erdvė tinkama šventėms, kūrybinėms dirbtuvėms, mokymams, susirinkimams. Rytinėje pastato dalyje, restorano/valgyklos zonoje, formuojama dalinai uždara atsipalaidavimo erdvė (pirmojo a. plane žym. nr. 2).

PIRMOJO AUKŠTO BENDROSIOS ERDVĖS

Didžioji dalis pirmojo pastato aukšto skiriama bendrosioms erdvėms, t.y., valgyklai/restoranui, kavinei/barui. Siekiama pirmojo aukšto sąryšio su viešbučio koncepcija, reprezentatyvumo, kviečiančio rezidencijos gyventojus bendrose erdvėse praleisti kuo daugi au laiko bendraujant bei užsiimant įvairiomis veiklomis. Plotas: valgykla/restoranas- 171,35m2 , kavinė/baras - 163,15m2. Šias erdves, išsidėsčiusias priešingose pastato pusėse, atskiria centre žaliuojantys vertikalieji sodai. Prasitęsę per išardytą perdangą jie sukuria ryšį su antruoju aukštu ir jame vykstančiomis veiklomis.

Pirmojo aukšto plano fragmentas M 1:150

1 2 55 56

Pjūvis-išklotinė 13-13 M 1:50

Pjūvis-išklotinė 14-14

M 1:50 Sofa „Metropolitan“ (gamint. Poliform) Pakabinami šviestuvai „Here comes the sun“ (gamint. DCW editions) Toršeras „Tolomeo mega“ (gamint. Artemide) Baro kėdė „Cherner“ (gamint. N.Cherner) LMPD plokštė (tamsus riešutmedis) Betono imitacijos akustinės garsą sugeriančios plokštės Akmens imitacijos akustinės garsą sugeriančios plokštės integruotas liuminescencinis apšvietimas LMPD plokštės (Šviesus riešutmedis)
Auksinio alksnio faneruotė LMPD plokštė (tamsus riešutmedis) Betono imitacijos akustinės garsą sugeriančios plokštės Kėdė „Charlotte“ (gamint. B&B Italia) Pakabinami šviestuvai „Here comes the sun“ (gamint. DCW editions) integruotas liuminescencinis apšvietimas 57

BALDŲ PARINKTYS:ŠVIESTUVŲ PARINKTYS:

SPY TRIMLESS 3033 lubas įleidžiami kryptiniai šviestuvai (gamint. DELTALIGHT)

SPLITLINE 29 Įleidžiamas profilis Integruojami kryptiniai šviestuvai ir LED juostos (gamint. DELTALIGHT)

fotelis „Mamy blue“ (gamint. Poltrona Frau)

sofa „Metropolitan“ (gamint. Poliform)

stalas „Slim“ (gamint. Sovet) kėdė „Hiroshima“ (gamint. Maruni) staleliai „Amande“ (gamint. Maisons du Monde)

HERE COMES THE SUN pakabinami lubiniai šviestuvai (gamint. DCW editions)

GRID IN TRIMLESS 1 QR lubas įleidžiami šviestuvai (gamint. DELTALIGHT)

sofa „Michel“ (gamint. B&B Italia)

stalelis „Diesis“ (gamint. B&B Italia)

stalas „Slim“ su keramikos danga (gamint. Sovet) kėdė „Charlotte“ (gamint. B&B Italia)

LORA pakabinamas šviestuvas (gamint. Weplight)

TOLOMEO MEGA toršeras (gamint. Artemide)

60

LAUKO PROBLEMATIKOS SPRENDINIAI

Pastato sklypo problematika - triukšmas, kylantis dėl riboji mosi su itin aktyvaus eismo Geležinio vilko g. keliais.

Siūlomas sprendinys: išnaudoti sklypo plotą, besiribojantį su šlai tu, akustinei užtvarai statyti ir šiltnamiui įrengti. Triukšmo barjerui sukurti tiktų betoninė akustinė užtvara, iš abiejų pusių apželdinta vertikaliaisiais sodais, sudarančiais ritminę kompoziciją. Prie jos formuojamas papildomas tūris - šiltnamis, skatinantis rezidencijos gyventojų užimtumą bei sveiką gyvenimo būdą.

Siekiant sutaupyti žaliojo ploto ir sukurti estetišką vaizdą pro langą šiaurinės pastato dalies gyventojams, siūloma įrengti požeminę mašinų stovėjimo aikštelę su eksploatuojamu stogu.

Schemose pateikiami galimi estetiniai šiltnamio sprendiniai: su betonine siena vizualiai apjungiami įvairių dydžių tūriai, kuriuose patogiame aukštyje auginami augalai ir daržovės.

61 62 Aksonometrinė schema Plano schema

NEĮGALIEJI SENJORŲ REZIDENCIJOJE

Anot Pasaulio sveikatos organizacijos programos, pagyvenusių žmonių sveikata gali būti pagerinta, jei jiems bus užtikrintas tolesnis aktyvus gyvenimas, pasikeis neigiamas požiūris į senėjimą, piliečiai bus skatinami gyventi sveikai. Svarbu sudaryti jiems sąlygas būti ak tyviems, padėti visą gyvenimą saugoti ir stiprinti fizinę ir psicholog inę sveikatą, supažindinti kuo daugiau asmenų su pagyvenusiais žmonėmis taip pakeičiant visuomenės požiūrį juos. Taip pat svarbu pakeisti visuomenės požiūrį ir senjorų rezidencijas. Tai turėtų tapti laisvas senjoro pasirinkimas aktyvesniam ir džiugesniam gyvenimo būdui.

Plano fragmentas, vaizduojantis pandusą

pirmas aukstas 17)Projektuojamas naujas įėjimas į pastatą, su cen truotais laiptais ir pandusais iš abiejų pusių. Dekoruojamas augalais. Simetrinė įėjimo kompozicija atkartoja klasikinius stalinistinės architektūros įvaizdžius.

Pastate projektuojamas liftas, tinkamas neįgaliesiems, taip pat visose trijose laiptinėse projektuojami keltuvai, kuriais, neįgalieji rezidencijos gyventojai gali patekti kitą aukštą. Nuotraukose pateikiamas gamintojų pavyzdys.

Atsižvelgiant į saugumo poreikius, interjere naudoja mos vinilinės grindys.

Iššūkis, su kuriuo susiduriama projektuojant senjorų ir studentų rezidenciją – pastato ir jo erdvių pritaikymas neįgaliųjų poreikiams. Svarbu pabrėžti, jog rezidencijoje, (vardan aktyvaus gyvenimo būdo ir pozi tyvumo skatinimo) neplanuojama paliatyvi intensyvio ji slauga, tad neįgaliųjų proporcija gali būti šiek tiek mažesnė, nei įprastos tipologijos senjorų rezidenci jose.

GSEducationalVersion 1 01 1 02 1 04 1 03
63 64
TYRIMO METU PATEIKTOS IR UŽPILDYTOS ANKETOS PAVYZDYS 65 66

ŠALTINIAI

G. Šurkienė, R. Stukas, V. Alekna, A. Melvidaitė, Populiacijos senėjimas kaip visuomenės sveikatos problema. Gerontologija 2012; Nr 13(4)

Hansen Lemme B. Suaugusiojo raida. 2003

Kanopienė V, Mikulionienė S. Gyventojų senėjimas ir jo iššūkiai sveikatos apsaugos sistemai. Gerontologija. 2006; 7(4)

A.Kepinski “Gyvenimo ritmas”, 2008

Aistė Pranckevičienė Psichikos sveikata senatvėje, Klinikinė psichologija 2008m. www.astrameda.com www.std.lt http://www.stat.gov.lt http://www.ideasconsultinginc.com

67 68

VDA Interjero dizaino katedra

2017m. bakalauro studijų baigiamasis darbas

SENJORŲ IR STUDENTŲ REZIDENCIJA

IV kurso stud. Ieva Armonavičiūtė Darbo vadovė prof. D.Adomonienė

Turn static files into dynamic content formats.

Create a flipbook
Issuu converts static files into: digital portfolios, online yearbooks, online catalogs, digital photo albums and more. Sign up and create your flipbook.