Margarita Petrovskaja "Gydančios aplinkos. Valgymo sutrikimų priežiūros centro Elektrėnuose atvejis'

Page 1

Gydančios aplinkos. Valgymo sutrikimų priežiūros centro Elektrėnuose atvejis.

VILNIAUS DAILĖS AKADEMIJOS

VILNIAUS FAKULTETO

VILNIAUS FAKULTETAS

Interjerodizainokatedra studijųprograma,valstybinis kodas6121PX017

MargaritaPetrovskaja

Bakalaurobaigiamasisdarbas

Gydančios aplinkos. Valgymo sutrikimų priežiūros centro Elektrėnuose atvejis.

Darbovadovai:doc.SauliusVingras, .................................................. (parašas)

.................................................. (data) Aiškinamojodarbokonsultantė:dr.EglėBazaraitė .................................................. (parašas) .................................................. (data) Tvirtinu,katedrosvedėjas:doc.dr.RokasKil iauskas

.................................................. (parašas) .................................................. (data)

Vilnius,2024

TURINYS Turinys

Įvadas

Problema

Tyrimo klausimas

Santrauka

Santrauka anglų kalba

1. Reabilitacijos centrų trūkumas

1.1 Reabilitacijos centrų skai ius ir prieinamumas Lietuvoje

1.2 Reabilitacijos prieinamumo problemos

2. Valgymo sutrikimo sindromo gydymo metodai

2.1 Valgymo sutrikimo pradžia ir priežastys

2.2 Gydymo tipai ir metodai

2.3 Pagrindiniai valgymo sutrikimų gydymo būdai, taip pat aplinkos poveikis

kliento būklei

3. Reabilitacijos centrų sprendimai užsienyje ir Lietuvoje

3.1 Reabilitacijos centrų Lietuvoje analizė – aplinka, bei gydymo metodai

3.1.1 „Les Alpes“ Klinika

3.1.2 „Machon Dvir“ Institutas

3.2 Reabilitacijos centrų užsienyje analizė – gydymo metodai

3.2.1 „Vasaros“ Ligoninė

3.2.2 „Vievio“ sanatorinė misko mokykla

3.3 Reabilitacijos centro, skirto jauniems žmonėms, ken iantiems nuo valgymo sutrikimų, sprendimas

Lokacija

Lokacijos planas

Pjūvis

Aksonometrija

I a. Planas

II a. Planas

III a. Planas

Išvada

Naudotos literatūros, šaltinių ir elektroninių duomenų sąrašas

Iliustracijų sąrašas

5-6 7-8 9-10 11-12 13-14 15-16 17-18 19-20 21-22 23-26 27-28 29-30 33-38 39-40 41-42 43-44 45-46 47-76 77-92 93-100 103-104 105-106 107-108

Įvadas

Valgymo sutrikimai - tai rimta psichikos sveikatos būklė, kuriai būdingi dideli valgymo elgesio sutrikimai ir didelis psichologinis stresas. Jungtinių Amerikos Valstijų Nacionalinės valgymo sutrikimų asociacijos (angl. - National Eating Disorders Association, NEDA) duomenimis, apie 20 mln. moterų ir 10 mln. vyrų visame pasaulyje tam tikru gyvenimo laikotarpiu patiria valgymo sutrikimų (Yager et al., 2014). Šie sutrikimai, įskaitant nervinę anoreksiją, nervinę bulimiją ir persivalgymo sutrikimus, neproporcingai dažnai pasireiškia jaunoms paauglėms mergaitėms, o moterys 10-20 kartų dažniau ken ia nuo valgymo sutrikimų nei vyrai.

Šių sutrikimų rimtumą akivaizdžiai parodo su jais susijęs mirtingumas; ypa mirtina nervinė anoreksija, nuo kurios miršta iki 10 % žmonių. Nors nervinės bulimijos sukeliamas tiesioginis mirtingumas yra mažesnis, jis kelia rimtą pavojų gyvybei, o persivalgymo sutrikimas, anks iau laikytas ne tokiu sunkiu, dabar siejamas su rimtomis somatinėmis ligomis, tokiomis kaip antrojo tipo diabetas, širdies ir kraujagyslių ligos ir tam tikri vėžiniai susirgimai (Yager et al., 2014).

Pažymėtina, kad maždaug 40 % nervine anoreksija sergan ių asmenų vėliau išsivystonervinėbulimijaarbapersivalgymosutrikimas.

5

Valgymo sutrikimų poveikis neapsiriboja vien fizine sveikata, bet turi įtakos mokymosi rezultatams, darbui ir socialiniams santykiams (Baks et al., 2023).

Nervine anoreksija sergantys jaunuoliai dažnai susiduria su kognityviniais sutrikimaisirsunkumaissusikaupti,otaigalisutrikdytijųakademiniuspasiekimus.

Dažnai kartu su valgymo sutrikimais pasireiškia tokie gretutiniai sutrikimai kaip socialinė fobija, obsesinis-kompulsinis sutrikimas ir depresija. Genetiniai polinkiai, psichologiniai veiksniai ir socialinė bei kultūrinė įtaka, įskaitant socialiniuose tinkluose paplitusius lieknumo idealus, labai prisideda prie jų vystymosi (Andersen et al, 2021). Šis socialinis ir kultūrinis spaudimas gali sustiprinti nepasitenkinimą kūnu ir gėdą, ypa tarp moterų, kurios pakeitė gyvenimo aplinką, vietą, šalį ir susiduria su naujomis kultūrinėmis normomis, kurios gali pabrėžti kitokius kūno idealus.

Atsižvelgiant į minėtos problemos įtaką visuomenei bei kritinę besigydan ių jaunų žmonių specializuotos priežiūros / pagalbos svarbą, tampa vis aiškiau, kad būtina užtikrinti net tik pačių specializuotų reabilitacijos centrų buvimą, bet, atsižvelgiant į sutrikimo pobūdį novatoriškai pažiūrėti į besigydančių žmonių specifinį aplinkos sutvarkymą bei jos dizainą.

6

Problema

Atsižvelgiant į minėtos problemos įtaką visuomenei bei kritinę besigydan ių jaunų žmonių specializuotos priežiūros / pagalbos svarbą, tampa vis aiškiau, kad būtina užtikrinti net tik pa ių specializuotų reabilitacijos centrų buvimą, bet, atsižvelgiant į sutrikimo pobūdį novatoriškai pažiūrėti į besigydan ių žmonių specifinį aplinkos sutvarkymą bei jos dizainą. Naujo projekto aktualumas kyla iš būtinybės sukurti dvigubos paskirties prieglobstį, kuris ne tik puoselėtų jaunų besigydan ių žmonių fizinį ir psichologinį atsigavimą, bet ir užtikrintų nenutrūkstamą jų mokymosi pažangą. Projektuojant reabilitacijos įstaigą šiai amžiaus grupei, svarbi ne tik pastato architektūra, bet ir holistinį gydymą bei visapusišką raidą palaikanti aplinka. Erdvę, kurioje terapinė priežiūra derėtų su moksline raida, turėtų būti ne tik siekiamybė, bet ir būtinybė.

Išnagrinėjus faktų ir argumentų visumą dėl valgymo sutrikimų problemos aktualumo darytiną išvada, kad Lietuvoje reikia neatidėliotinai spręsti klausimą dėl specializuotos reabilitacijos įstaigos sukūrimo, pritaikytos išskirtiniams valgymo sutrikimų turinčių asmenų poreikiams tenkinti. Pabrėžtina, kad tokios specializuotosįstaigosLietuvojenėra.

Mūsų valstybėje šios problemos sprendimą apsunkina specializuotos pagalbos trūkumas, pla iai paplitusi stigmatizacija ir nepakankamas visuomenės informuotumasapievalgymosutrikimusirjųgydymogalimybes.

Sveikatos priežiūros specialistų, Specialistų trūkumas reiškia, kad daug valgymo sutrikimų turin ių žmonių gali būti neištirti tinkamai arba gauti neoptimalią priežiūrą, o tai mažina bendrą gaunamo gydymo veiksmingumą, vėliną klientų sveikimoprocesą,irilgainiuijųbūklėgalidarlabiaupablogėti.

Valgymo sutrikimus lydinti stigma visuomenėje gali pasireikšti per klaidingais įsitikinimus, kad valgymo sutrikimai yra pa io žmogaus sąmoningas pasirinkimas, arba kad šie sutrikimai susiję tik su maistu. Toks požiūris labai kenkia šių būklių, kaip rimtų psichikos sveikatos problemų, supratimui bei sudaro stiprų psichologinį barjerą sergantiems asmenims kreiptis pagalbos. Be to, minėtiems asmenims ir jų šeimoms trūksta informacijos apie ankstyvosios apžiūros svarbą, gydymo galimybes bei turimus valstybės išteklius šioje srityje. Dėl informuotumo spragos daugelisliekanegydomiarbagydominetinkamai,kasdarlabiauapsunkinasveikatos priežiūrosproblemasšiojesrityje.

8

Klausimas

Problemos „specializuotos reabilitacijos įstaigos sukūrimo, pritaikytos išskirtiniams valgymo sutrikimų turin ių asmenų poreikiams tenkinti“ sprendimui keliamitokieklausimai:

– Ar šiuolaikiniai aplinkos / supan ios erdvės sutvarkymo sprendimai pritaikyti specializuotai reabilitacijos įstaigai gali pagerinti žmonių, turin ių maisto sutrikimoproblemų,reabilitacijosrezultatus?

Ar šiuolaikiniai aplinkos / supan ios erdvės spalvos sprendimai pritaikyti specializuotai reabilitacijos įstaigai gali pagerinti žmonių, turin ių maisto sutrikimoproblemų,reabilitacijosrezultatus?

Ar šeimyninės aplinkos sukūrimas, specializuotoje reabilitacijos įstaigoje taikant šiuolaikinius aplinkos sutvarkymo metodus ir sprendimus, gali pagerinti žmonių, turin iųmaistosutrikimoproblemų,reabilitacijosrezultatus?

Ar šiuolaikiniai aplinkos / supan ios erdvės sutvarkymo sprendimai pritaikyti specializuotai reabilitacijos įstaigai gali pritraukti darbui joje naujų specialistų, beiįtikintistojan iuosiuspasirinktiatitinkamąspecializaciją?

Ar specializuotos reabilitacijos įstaigos aplinkos ir spalvos sprendimai vizualizacijos galėtų prisidėti prie visuomenės informavimo bei jos požiūrio į valgymosutrikimųpakeitimą?

9
10
1 pav. Abstrakcinis kūno paveikslas tinkamas temai valgymo sutrikimas (autorės iliustracija, nupiešta iArtbook programėlyje, 2024)

SANTRAUKA

Santrauka

Darbe išnagrinėta reabilitacijos centro, skirto asmenims su valgymo sutrikimais, svarba ir poveikis. Darbe pabrėžiama, kad valgymo sutrikimai yra rimti psichikos sveikatos sutrikimai, turintys didelį psichologinį ir fizinį poveikį asmenims. Lietuvoje trūksta specializuotų reabilitacijos centrų, todėl klientams sunku laiku gauti reikalingą pagalbą. Pabrėžiama, kad būtina gerinti paslaugų prieinamumą ir kokybę, kovoti su stigma ir švietimo trūkumu, ir suteikti daugiadalykį gydymą, atsižvelgiant į kiekvieno kliento individualius poreikius; pasitelkiant interdisciplininę komandą ir modernius gydymo metodus, tokie kaip kognityvinė elgesio terapija ir mitybos terapija, šeimos bei žemdirbystės terapijos, galima pasiekti gerų rezultatų. Taip pat pabrėžiamas terapinės aplinkos ir specializuotų centų infrastruktūros tobulinimas, siekiant sukurti palankias sąlygas klientų sveikimui. Yra išanalizuoti Lietuvos ir užsienio reabilitacijos centrai. Tuo tarpu, pasiūlytasautoriaussprendimas-reabilitacijoscentroprojektas,skirtasjaunimui.

12

Summary in English Summary in English

The paper examines the importance and impact of a rehabilitation center for people with eating disorders. The paper highlights that eating disorders are serious mental health disorders that have a significant psychological and physical impact on individuals. There is a lack of specialized rehabilitation centers in Lithuania, so it is difficult for patients to get the necessary help in time. The paper emphasizes the need to improve the availability and quality of services, to combat stigma and lack of education, and to provide multidisciplinary treatment, taking into account the individual needs of each patient; with the help of an interdisciplinary team and modern treatment methods, such as cognitive behavioraltherapyandnutritionaltherapy,familyandagriculturaltherapies,good results can be achieved. It also emphasizes the improvement of the therapeutic environment and the infrastructure of specialized centers in order to create favorable conditions for the recovery of patients. In the paper, Lithuanian and foreign rehabilitation centers have been analyzed. Meanwhile, the author has proposedthesolutionofarehabilitationcenterprojectforyoungpeople.

14

Reabilitacijos centrų trūkumas

1.1 Reabilitacijos centrų skaičius ir prieinamumas Lietuvoje.

Lietuvoje valgymo sutrikimų reabilitacijos srityje labai trūksta specializuotų centrų. Šis trūkumas labai apriboja būtino gydymo prieinamumą asmenims, sergantiems šiais sunkiais sutrikimais. Remiantis naujausiais vertinimais, tikslus specializuotųvalgymosutrikimųreabilitacijosįstaigųskai iusLietuvojenėragerai dokumentuotas, o tai rodo specializuotos sveikatos priežiūros infrastruktūros spragą. Nuo 2007 m. Lietuvoje pradėti steigti psichiatrijos dienos stacionarai (dienos centrai). 2016 m. veikė 40 psichiatrijos dienos stacionarų (dienos centrų) prie psichikos sveikatos centrų ir stacionarias psichikos sveikatos priežiūros paslaugas teikian ių įstaigų (LRV, 2017). Šis trūkumas yra dalis platesnės sveikatos priežiūros sistemos problemos, kai psichikos sveikatos tarnyboms, ypa toms,kuriosspecializuojasivalgymosutrikimųsrityje,trūkstalėšųirdarbuotojų.

15

1 pav. Dienos stacionarų skai ius savivaldybėse. Šaltinis – Teritorinės ligonių kasos

Ribotas specializuotų centrų prieinamumas reiškia, kad tiems, kuriems reikia pagalbos, dažnai tenka laukti ilgose eilėse, o daugelis klientų dėl gydymo keliauja didelius atstumus. Keletas esamų centrų daugiausia yra įsikūrę didžiuosiuose miestuose, todėl kaimo gyventojai turi dar mažiau galimybių rinktis. Dėl šio geografinioskirtumodaugeliuiligonių,kurieneturilėšųargalimybiųkeliauti,kyla didelių kliūčių. Todėl tik nedidelė dalis tų, kuriems reikia gydymo, gauna tinkamą priežiūrą,kuriyralabaisvarbiveiksmingampasveikimui.

Beto,dabartinėsegydymoįstaigosedažnaitrūkstavisapusiškopožiūrio,reikalingo tokiems sudėtingiems sutrikimams gydyti. Veiksmingam valgymo sutrikimų gydymui reikalinga daugiadalykė komanda, kurią sudaro psichologai, psichiatrai, dietologai ir gydytojai, o daugelis centrų neturi visų darbuotojų. Šis trūkumas išryškina esminį poreikį strategiškai peržiūrėti valgymo sutrikimų gydymo finansavimo, struktūros ir paslaugų teikimo būdus visoje Lietuvoje. Reabilitacijos centrų tinklo stiprinimas, aprūpinant juos tinkamais ištekliais ir kvalifikuotais specialistais, turi būti prioritetas, siekiant patenkinti didėjantį specializuotos pagalbosporeikįšiojesrityje.

16

1.2 Reabilitacijos prieinamumo problemos

Reabilitacijos dėl valgymo sutrikimų prieinamumą Lietuvoje, kaip ir daugelyje pasaulio šalių, apsunkina keletas sisteminių kliū ių, turin ių įtakos tiek paslaugų prieinamumui, tiek kokybei. Pirma, gydymo įstaigų geografinis pasiskirstymas yra netolygus, dauguma centrų sutelkti miestuose. Šis geografinis netolygumas labai apriboja galimybes gauti pagalbą kaimo ar atokiose vietovėse gyvenantiems asmenims, kuriems gali tekti įveikti didelius atstumus, kad gautų pagalbą. Dėl logistiniųsunkumųirišlaidų,susijusiųsukelionėmis,asmenysgalivėluotiarbavisai negautigydymo,kuriojiemsskubiaireikia.

Be to, negalima pamiršti ir ekonominių kliū ių. Valgymo sutrikimų gydymas dažnai reikalauja ilgalaikės, įvairiapusės priežiūros, įskaitant psichologinį konsultavimą, medicininę stebėseną ir kartais hospitalizaciją, o tai gali būti pernelyg brangu. Lietuvoje, kur ekonominiai suvaržymai yra daugelio žmonių realybė, didelė specializuoto gydymo kaina gali būti didelė kliūtis. Psichikos sveikatos paslaugų, įskaitant valgymo sutrikimus, draudimo apsauga ne visada yra visapusiška, todėl didelędalįgalimųišlaidųklientaiirjųšeimosnariaituripadengtiišsavokišenės.

17

2 pav. Žmogaus abstrakcinis (autorės iliustracija, nupiešta iArtbook programėlyje, 2024)

18
19
3 pav. “Aš stora. Manęs niekas nesupras. Aš esu šitam pasaulyje viena” (autorės iliustracija, nupiešta iArtbook programėlyje, 2024)

Valgymo sutrikimo sindromo gydymo metodai

2.1 Valgymo sutrikimo pradžia ir priežastys

Pastebėta, kad pagrindinė kognityvinio pobūdžio psichopatologija - svorio, kūno formų ir valgymo kontrolės pervertinimas - būdinga visiems valgymo sutrikimams (Fairburn, 2008). Ryšys tarp kūno formų ir svorio pervertinimo bei siekio juos kontroliuoti pastebimas su įvairiomis valgymo sutrikimų (PSĮ) apraiškomis. Pavyzdžiui, šis ryšys pasireiškia bandymais laikytis mitybos apribojimų, taip pat nuolatiniu svorio ir kūno formų tikrinimu. Pervertinimas taip pat turi įtakos kognityviniams aspektams, pasireiškiantiems susirūpinimu svorio ir kūno formų klausimais.

Dėlsvorioirkūnoformųpervertinimoklientaidaugelįneigiamųemociniųbūsenųar nepatogumų interpretuoja kaip asmeninio pilnumo jausmą, kartais vadinamą "storumo jausmu". Šių aspektų fiksavimas gali lemti tai, kad kiti gyvenimo aspektai, pavyzdžiui, akademinė sėkmė, pomėgiai, asmeninės savybės ir socialiniai santykiai,tampamažiausvarbūsirantraeiliai.

20

2.2 Gydymo tipai ir metodai:

Valgymo sutrikimų gydymas ir gydymo metodai priklauso nuo sutrikimų sunkumo ir gretutinių sutrikimų. Ambulatoriniuose centruose dirbantys specialistai įvertina, ar konkre ių valgymo sutrikimų atveju reikalinga aukštesnio lygio priežiūra, ir prireikusnukreipiaįatitinkamolygiogydymoįstaigą.

a) Intensyvi ambulatorinė priežiūra: ši gydymo forma geriausiai tinka asmenims,kuriųmedicininėirpsichiatrinėbūklėyrastabili.

b) Dalinė hospitalizacija. Ši valgymo sutrikimų gydymo forma geriausiai tinka asmenims, kurių medicininė būklė stabili, ta iau vis dar yra funkcinių sutrikimų ir kuriems reikalinga kasdienė priežiūra. Dalinė hospitalizacija taip pat naudinga žmonėms, kurie kasdien užsiima sutrikusiuvalgymu,pavyzdžiui,žarnynovalymuarbadavimu.

c) Stacionarinė priežiūra: ši priežiūros forma geriausiai tinka žmonėms, kurių sveikatos būklė yra stabili, ta iau jie turi psichikos sveikatos problemųirjiemsreikiadaugiau,neigalisuteiktiambulatorinėpriežiūra.

d) Stacionarinis gydymas: ši priežiūros forma geriausiai tinka žmonėms, kurieturipsichikosirfiziniųsutrikimųirkuriuosreikiaatidžiaistebėti.

21

Kad valgymo sutrikimų gydymas būtų veiksmingas, derinant individualizuotą terapiją ir individualias mitybos konsultacijas, atsižvelgiama į unikalius kliento poreikius. Paramą dar labiau sustiprina teminės grupės, kuriose sprendžiamos konkre ios valgymo sutrikimų problemos, taip pat šeimos paramos grupės, kuriose artimiesiems suteikiama supratimo, reikalingo palaikan iai sveikimo aplinkai sukurti. Be to, meditacijos užsiėmimai padeda mažinti stresą, o socializacijos iniciatyvos padeda reintegruoti asmenis į visuomenę, užtikrindamos visapusišką sveikimoprocesą.

22

2.3 Pagrindiniai valgymo sutrikimų gydymo būdai, taip pat aplinkos poveikis kliento būklei

Gydant valgymo sutrikimus taikomi įvairūs terapijos metodai, kurių kiekvienas pritaikytas spręsti daugialypę šių sutrikimų problemą. Kognityvinė elgesio terapija (KET) ir dialektinė elgesio terapija (DBT) išsiskiria savo veiksmingumu kei iant žalingą valgymo elgesį ir emocinį reguliavimą. Mitybos terapija, įskaitant medicininės mitybos terapiją (MNT), yra labai svarbi atkuriant sveikos mitybos įpro ius ir koreguojant mitybos disbalansą. Kiti naujoviški metodai, tokie kaip priėmimo ir įsipareigojimo terapija (ACT), meno terapija ir šokio judesio terapija, siūlo kūrybines išraiškos ir emocinio apdorojimo priemones. Be to, arklių terapija, poveikio ir reakcijos prevencija (ERP) ir įrodymais pagrįstas gydymas, pavyzdžiui, Maudsley metodas, suteikia unikalių galimybių pasveikti. Šeimos terapija ir tarpasmeninė psichoterapija (IPT) taip pat labai svarbios, nes jose pabrėžiamas asmeniniųsantykiųvaidmuogijimoprocese.

Ta iau,negalimapamiršti,kadgydymopatalpųaplinkairdizainasyralabaisvarbūs valgymo sutrikimų turin ių klientų psichologiniam komfortui ir sveikimui. Švelnūs, neutralūsatspalviai

23

iršvelnūsžaliirmėlynitonai,primenantysgamtą,skatinaramybėsjausmą,ošiltos pastelinės spalvos, tokios kaip persikinė ir rožinė, gali sukurti puoselėjan ią ir guodžian ią aplinką. Prislopintas apšvietimas padeda išvengti aštrių ryškių šviesų ir padeda sukurti ramią, gydymui palankią atmosferą. Natūralios medžiagos, tokios kaip medis ir tekstilė, kartu su švelniomis tekstūromis suteikia terapinei aplinkai šilumos ir natūralaus pasaulio pojūtį. Ramios pilkos ir smėlio spalvos sienos sukuria ramų foną, kad nebūtų per daug stimuliuojan ios. Naturali spalvų gama ir augalai užtikrina, kad aplinka vizualiai keltu kuo mažiau streso ir skatintų gaivumo bei harmonijos su gamta pojūtį. 1 lentelėje pateikiami rezultatai atlikto 30 pasaulio šalyse tyrimo dėl spalvų ir emocijos asociacijų. Procentai rodo, kiek žmonių priskyrėatitinkamaispalvaiatitinkamąemocinęasociaciją.

1 lentelė. 30šaliųžmoniųdažniausiosspalvųiremocijųasociacijos. Šaltinis: Domicelė Jonauskaitė ir Christine Mohr (2019)

24
25
4 pav. “Aš ne vienas, bet bijau priimti pagalbos” (autorės iliustracija, nupiešta iArtbook programėlyje, 2024)

Įrodytą, kad spalva turi didelę įtaką kvapų suvokimui – taip pat ir apetitui (Österbauer, 2005). Pavyzdžiui, braškių skonio gėrimai kvepia maloniau, kai yra raudonos spalvos, o ne žalios, o vyno "nosies" apibūdinimas labai priklauso nuo jo spalvos. Tiriamieji buvo skenuojami veikiami atskirų kvapų ar spalvų arba spalvų ir kvapų derinių, kurie buvo vertinami pagal tai, kaip gerai jie sutampa. Naudojant funkcinį magnetinio rezonanso vaizdavimą, buvo įrodyta, kad ši tarpmodalinė vizualinėįtakauoslėssuvokimuiyraneurofiziologiškaisusijusi.

Terapinės architektūros srityje suapvalintų formų įtaka pasąmonei vaidina svarbų vaidmenį kuriant gydomąją aplinką (Janutauskas, E., 2021). Suapvalintos formos sukelia psichologinį švelnumo ir saugumo jausmą, sukuria jaukią erdvę, kuri gali prisidėti prie psichologinio komforto gerinimo. Dėl aštrių kampų nebuvimo struktūros tampa ne tokios agresyvios, todėl sumažėja vizualinė įtampa ir sukuriamaramesnėatmosfera,naudingasveikstantiemsžmonėms.Lygūsperėjimai, kuriuos palengvina lenktos formos, skatina harmoningesnį erdvės tekėjimą, todėl sukuriamanatūraliirsubalansuotaatmosfera.Beto,šiosformossuteikiasupan iai erdvei emocinį palankumą, kuri spinduliuoja draugiškumu ir suteikian užslėptą rūpes io ir apsaugos jausmą, kuris gyvybiškai svarbus klientams, susiduriantiems suvalgymosutrikimųproblemomis.Pabrėžtina,kadarchitektūriniodizainopoveikis žmogaus psicho-emocinei savijautai priklauso nuo individualių savybių ir poreikių.

Idealiu atveju aplinkos pusiausvyra, derinant paprastas formas su kitais dizaino elementais,galipalaikytistabiliąpsichologinębūsenąarbanetjągerinti.

Išnagrinėjęs valgymo sutrikimo priežastys, bei gydymo metodus, darytina išvada, kad aplinka, architekturiniai, dizaino bei spalviniai sprendimai turi ženklios įtakos klientųsavijautai.

26

Reabilitacijos centrų sprendimai užsienyje ir Lietuvoje

3.1 Reabilitacijos centrų užsienyje analizė – gydymo metodai

3.1.1 „Les Alpes“ Klinika "Les Alpes" klinika įsikūrusi Šveicarijoje, atokioje vietoje, netoli Ženevos ežero, gydomajai atmosferai išnaudoja įspūdingus kraštovaizdžius. Natūralus vietovės grožis padeda sukurti raminan ią, atpalaiduojan ią aplinką, kuri labai svarbi klientams, susiduriantiems su valgymo sutrikimų sukeltu stresu. Ši aplinka ne tik ramina protą, bet ir skatina klientus užsiimti veikla gryname ore, kuri yra neatsiejamanuoholistiniosveikimo.GaivusAlpiųorasirvaizdingipeizažaisuteikia

natūralų atokvėpį nuo emocinių ir psichologinių iššūkių, su kuriais susiduriama sveikstant, skatina atsipalaidavimą ir proto aiškumą, kurie būtini veiksmingam gydymui.Natūraliosgamtosdvelksmas pagerinaklientųsavijautą.

Be vien vaizdo terapijos, taikoma ir judesio terapija - sodininkystė ir fizinė veikla lauke gerina psichinę sveikatą ir savigarbą. Sąveika su gamta ugdo aplinkos sąmoningumą, praturtina juslinę patirtį ir skatina socializaciją. Taip pat, taikomas kolektivinės veklos terapija, kaip maisto gaminimas kartu su virėju, kuris padeda atkurti ryšį su mityba ir išsiugdyti sveikus įpro ius. Terapijoje neužmiršta ir apie supan ios aplinkos spalvų ir formų svarbą, kuri turi įtakos apetitui ir emocinei būsenai.

Taipogi Šveicarijoje ir šioje klinikoje yra labai paplitusi ir efektyviai taikoma šeimos terapija. Tai yra reabilitacijos metodas, atsižvelgiantis į šeimos kultūrines ypatybes, padedantis pagerinti tarpusavio santykius bei sprendžiantis ir kitas susijusias problemas. Šis metodas taikomas nustatyti problemų šaltinį, kuri dažniausiaibūnaklientošeimojearjoartimojeaplinkoje.

27

3.1.2 „Machon Dvir“ Institutas

Machon Dvir - Dviro institutas: Šis Jeruzalėje (Izraelyje) įsikūręs institutas teikiaambulatorinespaslaugasįvairiomsproblemoms,įskaitantvalgymosutrikimus, spręsti.Gydymometodas-dialektinėelgesioterapija(DBT).

Dialektinėelgesioterapija(DBT)-taipsichoterapijosforma,kuriojestandartinės kognityvinės elgesio technikos, skirtos emocijų reguliavimui ir realybės tikrinimui, derinamos su streso toleravimo, priėmimo ir sąmoningo įsisąmoninimo koncepcijomis,daugiausiakilusiomisišbudistinėsmeditacinėspraktikos.DBTypa veiksminga gydant asmenybės ribinio tipo sutrikimu sergan ius asmenis, ta iau ji pritaikytairkitiemssudėtingiemssutrikimams,pavyzdžiui,valgymosutrikimamsir priklausomybeinuopsichoaktyviųjųmedžiagų.

DBT privalumai - tai gebėjimas padėti asmenims išsiugdyti geresnius streso įveikimo mechanizmus, reguliuoti emocijas ir pagerinti santykius su kitais žmonėmis.Jipadedavystytiįgūdžiusketuriosepagrindinėsesrityse:sąmoningumo, streso toleravimo, emocijų reguliavimo ir tarpasmeninio veiksmingumo. Sąmoningumas skatina klientus visiškai įsisąmoninti ir būti dabarties akimirkoje, distresotolerancijaskatinaskausmotoleravimosudėtingosesituacijosetechnikas, emocijų reguliavimas - strategijas, kaip valdyti ir keisti intensyvias emocijas, sukelian ias problemas asmens gyvenime, o tarpasmeninis veiksmingumas sutelkia dėmesįįbūdus,kaipramiaiiružtikrintaibendrautisukitaisžmonėmis.Šieįgūdžiai kartu padeda žmonėms gyventi lengviau valdomą ir emociškai subalansuotą gyvenimą.

28

Reabilitacijos centrų sprendimai užsienyje ir Lietuvoje

3.2. Reabilitacijos centrų Lietuvoje analizė – aplinka, bei gydymo metodai

3.2.1 „Vasaros“ Ligoninė

„Vasaros“ reabilitacijos centre valgymo sutrikimų gydymui taikomas daugiadisciplininis požiūris, kuris apima psichiatrinį įvertinimą, individualią psichoterapiją, grupinę terapiją ir mitybos konsultacijas. Centre taip pat pabrėžiamašeimosdalyvavimogydymoprocesesvarba.Kognityvinėelgesioterapija (KET) ir dėmesingo įsisąmoninimo praktika yra pagrindiniai metodai, taikomi sprendžiant psichologinius valgymo sutrikimų aspektus, o medicinine ir mitybos pagalbasiekiamaatkurtifizinęsveikatą.

Kognityvinė elgesio terapija (KET) turi daug privalumų, ypa gydant įvairias psichikos sveikatos būkles. Ji padeda žmonėms nustatyti ir įveikti neigiamus mąstymo modelius, siūlo praktines strategijas, kaip pakeisti nepageidaujamą elgesį.KETveiksmingaipadedaįveiktinerimą,depresijąirvalgymosutrikimus,nes padeda geriau pažinti save ir reguliuoti emocijas. Be to, ji suteikia klientams daugiau galių, nes moko kasdienėse situacijose pritaikomų įveikos įgūdžių, didina atsparumąirgerinabendrąpsichikossveikatosstabilumą.

29
30
5 pav. Abstrakcija (autorės iliustracija, nupiešta iArtbook programėlyje, 2024)

3.2.2 „Vievio“ sanatorinė miško mokykla „Vievio” sanatorinė miško mokykla įkurta 1969 m. Dvaro gatvėje esan iame buvusiame Panerių dvare, priklausan iame Elektrėnų rajono savivaldybei. Jis buvo įrengtas vaikams, sergantiems įvairiomis ligomis, įskaitant širdies problemas, reumatą ir smegenų pažeidimus, ta iau prieš penkerius metus buvo uždarytas dėl finansavimo trūkumo. Neries regioniniame parke esantis pastatas šiuo metu yra apleistas.

6 pav. „Vievio” sanatorinė miško mokykla fotofiksacija (autorės iliustracija, 2024)

Tokia vieta pasirinkta todėl, kad pastatas yra apsuptas beribės gamtos, kur yra parkai, specialūs miško takai pasivaikš iojimui, nacionalinis parkas ir galimybė pasivaikš iotišaliaNeriesupės.

31

Mokykloje buvo įrengta priėmimo zona, skirta naujų klientų registracijai ir pirminėmskonsultacijoms.Gydytojųkabinetaibuvoįrengtimedicininiamstyrimams irgydymui,opsichoterapijoskabinetaiskirtiindividualiemsirgrupiniamsterapijos seansams. Mitybos patalpos, įskaitant virtuvę ir valgomąjį, buvo specializuotos specifiniams dietiniams patiekalams ruošti ir pateikti. Gydymo ir reabilitacijos laikotarpiu klientai apgyvendavo patogiose miegamosiose patalpose. Fiziniams pratimamsirlaisvalaikioužsiėmimamsbuvoskirtasportosalė.Taippatbuvopoilsio kambariai, skirti atstatomosioms procedūroms ir klientų laisvalaikiui. Siekiant palengvinti mokymąsi ir asmeninį tobulėjimą, buvo įrengtos erdvės edukacinėms programoms ir savipagalbos užsiėmimams. Centre yra erdvės, skirtos šeimos terapijai ir konsultacijoms su artimaisiais, kad klientų palaikymo tinklai būtų įtraukti į gydymo procesą. Be to, klientų priežiūrai, procedūroms ir nuolatinei sveikatosstebėsenaibuvoįrengtimedicininiaikabinetai.

32

3.3 Reabilitacijos centro, skirto jauniems

žmonėms, kenčiantiems nuo valgymo

sutrikimų, sprendimas:

3.3.1 Projekto Vizija

Mano vizija apie reabilitacijos centrą, skirtą sergantiesiems valgymo sutrikimais, yra pagrįsta visapusiškos medicininės ir emocinės pagalbos, pritaikytos individualiems poreikiams, teikimu. Centre, kurio pagrindas yra „Vievio” sanatorinė miško mokykla, bus teikiamos stacionarios paslaugos, taip pat ambulatorinės konsultacijos tiems, kurie nori gydytis namuose. Jame bus įrengtos būtiniausios gydymo ir sveikimo zonos, įskaitant priva ias erdves specialistams ir gydytojams, kuriekruopš iaistebėsirkoordinuosklientųpriežiūrą.

Mano reabilitacijos centro koncepcija yra pritaikyta specialiai 9-18 metų jaunuoliams,todėl iasukurtaunikaliaplinka,kuriojederinamasveikatospriežiūra ir ugdymas - terapinė mokykla. Šis centras sukurtas siekiant užtikrinti, kad vaikai ir paaugliai, turintys sunkių sveikatos sutrikimų, ypa valgymo sutrikimų, galėtų tęsti mokslą, kol jiems taikomas intensyvus gydymas. Pripažįstant, kad svarbu kuo mažiau trikdyti jų mokymosi pažangą, įstaiga veikia semestro principu, mokiniai joje būna nuo vieno iki trijų mėnesių. Viešnagės metu jie gauna individualią medicininę priežiūrą ir dalyvauja struktūruotose švietimo programose, kurios atitinka jų sveikatos poreikius. Centro metodas užtikrina, kad kiekvienas jaunas žmogus gautų paramą, būtiną tiek jo sveikatai, tiek mokymosi pažangai, taip palengvinantholistinįsveikimoirvystymosiprocesą.

33
34
7 pav. Abstrakcinis kūno paveikslas tinkamas temai valgymo sutrikimas (autorės iliustracija, nupiešta iArtbook programėlyje, 2024)
35
8 pav. “Saugumas” (autorės iliustracija, nupiešta iArtbook programėlyje, 2024)

Įstaigoje bus įrengtos klientų gyvenamosios zonos, psichologų ir psichoterapeutų konsultacijų erdvės, taip pat specializuotos fizinio ir psichologinio vystymosi zonos, kurie bus prižiūrimi įstaigos specialistų. Taip pat bus įrengtos patogios poilsio erdvės bei virtuvė, skirtos puoselėti palankią atmosferą, skatinan ią sveikimoprocesą.

Remdamasi architektūros ir dizaino elementais, kurie gali turėti naudos valgymo sutrikimų turintiems klientams, savo principus grindžiau ergonomišku saugumu. Natūralios medžiagos, tokios kaip medis ir tekstilė, suteiks interjerui šilumos ir prisilietimo prie gamtos pojūtį. Pagrindinis dėmesys bus skiriamas emocinei paramai, naudojant dizaino elementus, kurie perteikia rūpestį, saugumą ir padrąsinimą. Galiausiai bus įrengtos specializuotos zonos grupinėms ir individualioms terapijoms, taip pat patogios erdvės atsipalaidavimui ir apmąstymams, kurias bus galima lanks iai pritaikyti prie besikei ian ių reabilitacijosprogramosirjosklientųporeikių.

Taip pat siūlau kreipti demėsį į šeimos terapiją, kuri gali būti labai svarbi gydant valgymo sutrikimus, nes į gydymo procesą įtraukiami artimieji. Minėta terapija padeda šeimos nariams suprasti sudėtingus sutrikimo aspektus, todėl jie gali padėti gydymui, atitinkamai pakoreguoti namų aplinką, kuri galėjo turėti įtakos sutrikimo atsiradimui bei vystymui. Šis bendradarbiavimo metodas ne tik padeda ištaisyti disfunkcinę šeimos dinamiką, bet ir įgalina šeimos narius palengvinti ir įtvirtinti sveikos mitybos modelius ir elgseną, išmoktus individualios terapijos metu.

36

Kita vertus, gydomoji sodininkystė ir maisto gaminimas su asmeniniu virėju yra naudingi valgymo sutrikimų reabilitacijai. Sodininkystės ir daržininkystės terapija, kai šiltnamiuose ir soduose auginamos daržovės, suteikia gydomąjį ryšį su gamta, suteikia laimėjimo jausmą ir skatina sąmoningumą, kuris gali sumažinti streso ir nerimo simptomus. Panašiai ir kulinarinė terapija su asmeniniu virėju leidžia klientamstiesiogiaiirpozityviaibendrautisumaistu,mokytisapiemitybąirmaisto gaminimo malonumus praktiškoje ir palankioje aplinkoje. Tai ne tik padeda normalizuoti su maistu susijusį elgesį, bet ir didina savigarbą bei savarankiškumą.

Abi praktikos gali būti papildytos reabilitacijos centre teikiamomis švietimo galimybėmis, pavyzdžiui, korepetitoriaus paslaugomis, siekiant užtikrinti, kad klientai viešnagės metu ir toliau mokytųsi ar asmeniškai tobulėtų, taip kartu su fizinesveikatasprendžiantkognityviniusirsocialiniussveikimoaspektus.

Visas reabilitacijos centras suprojektuotas su dideliais langais, kad į vidų patektų daug natūralios šviesos. Šis architektūrinis sprendimas užtikrina, kad patalpos būtų šviesios ir jaukios, taip sukuriama teigiama sveikimo aplinka. Gausus saulės šviesos srautas ne tik pagerina atmosferą, bet ir palaiko reabilitacijos procesą, ypa valgymosutrikimųturin iųvaikų.Įrodyta,kadnatūrališviesagerinanuotaiką ir savijautą, o tai gali būti labai svarbu padedant šiems vaikams sveikti (Nilsson, 2021).

37

9 pav. Laiko abstrakcija (autorė iliustracijos, iArtbook programėlyje, 2024)

38

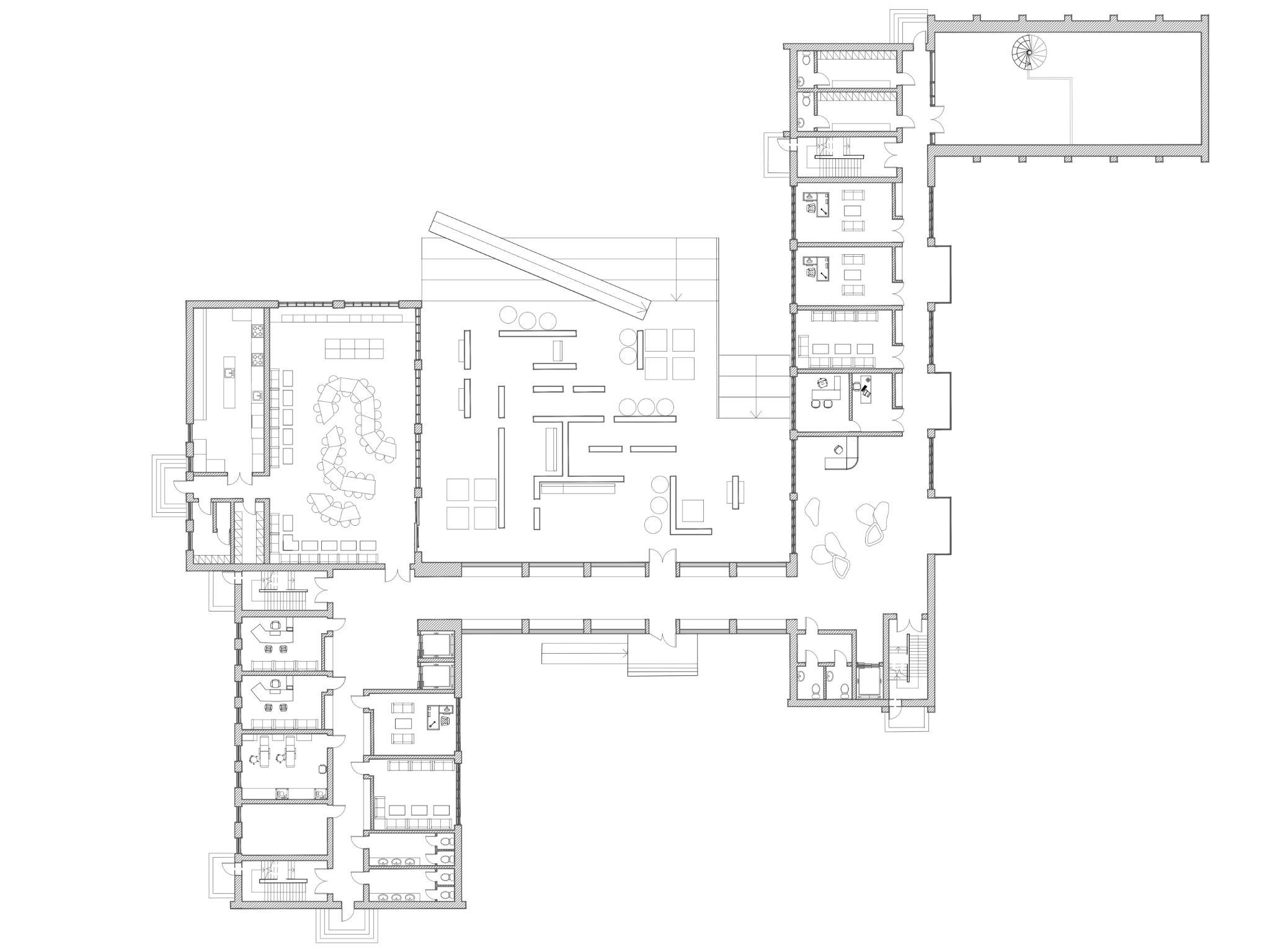
Lokacija

„Vievio“ sanatorinė misko mokykla; Dvaro g. 1, Paneriai, 21367 Elektrėnų sav. Lokacija

10 pav. „Vievio“sanatorinėmiskomokykla;Dvarog.1,Paneriai,21367Elektrėnųsav.

40
11
(autorės iliustracija, suproektuota SketchUp programėlyje, 2024)
pav. Lokacijos išdėstymas

PAVĖSINĖS

SPORTO AIKŠTĖ PARKAVIMO VIETAS

Pjūvis

0.00 3600 6300 9800 43
12 pav. „Vievio“ sanatorinė misko mokykla; Dvaro g. 1, Paneriai. Pjūvvis naujo pastato išdėstymas (autorės iliustracija, suproektuota SketchUp programėlyje, 2024)
9800 44

Pastato architektūra buvo pilnai perprojektuota, kad atitiktų pateiktą kraštovaizdį. Kadangi vienas pagrindinių gydymo būdų darbe yra buvimas gryname ore, buvo pakeisti pastato fasadai, pakeisti visi langai į panoraminius. Tai buvo padarytasiekiantpadidintinatūraliosšviesoskiekįkiekvienamepastatokampe.Šie poky iai taip pat vizualiai padidina erdvę ir nedaro spaudimo pasąmonei. Be to, balkonaibuvosuprojektuotitrijuoseaukštuose,siekiantnetikpadidintierdvę,bet irišvengtiklasikinėsviešbu iokoridoriauskoncepcijos.

Taip pat suprojektuotos dvi naujos erdvės: antrame aukšte darbo/mokslo zona ir tre iame – bibliotekos erdvė. Šie pokei iai buvo įvesti siekiant suteikti visus patogumusilgalaikiamgyvenimuicentre.

45

Aksonometrija

46
13 pav. „Vievio“ sanatorinė misko mokykla; Dvaro g. 1, Paneriai. Aksonometrija naujo pastato išdėstymas (autorės iliustracija, suproektuota SketchUp programėlyje, 2024)

Planas

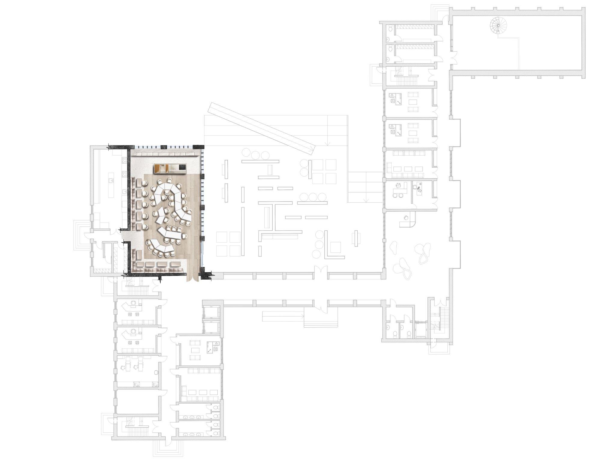
Patalpų išdėstymas:

1. Koridorius

2. Informacijos centras

3. Administracija

4. Grupinės konsultacijos kab.

5. Individualaus konsultacijos

6. Kineze Terapijos sale

7. Rubinė (vyr.)

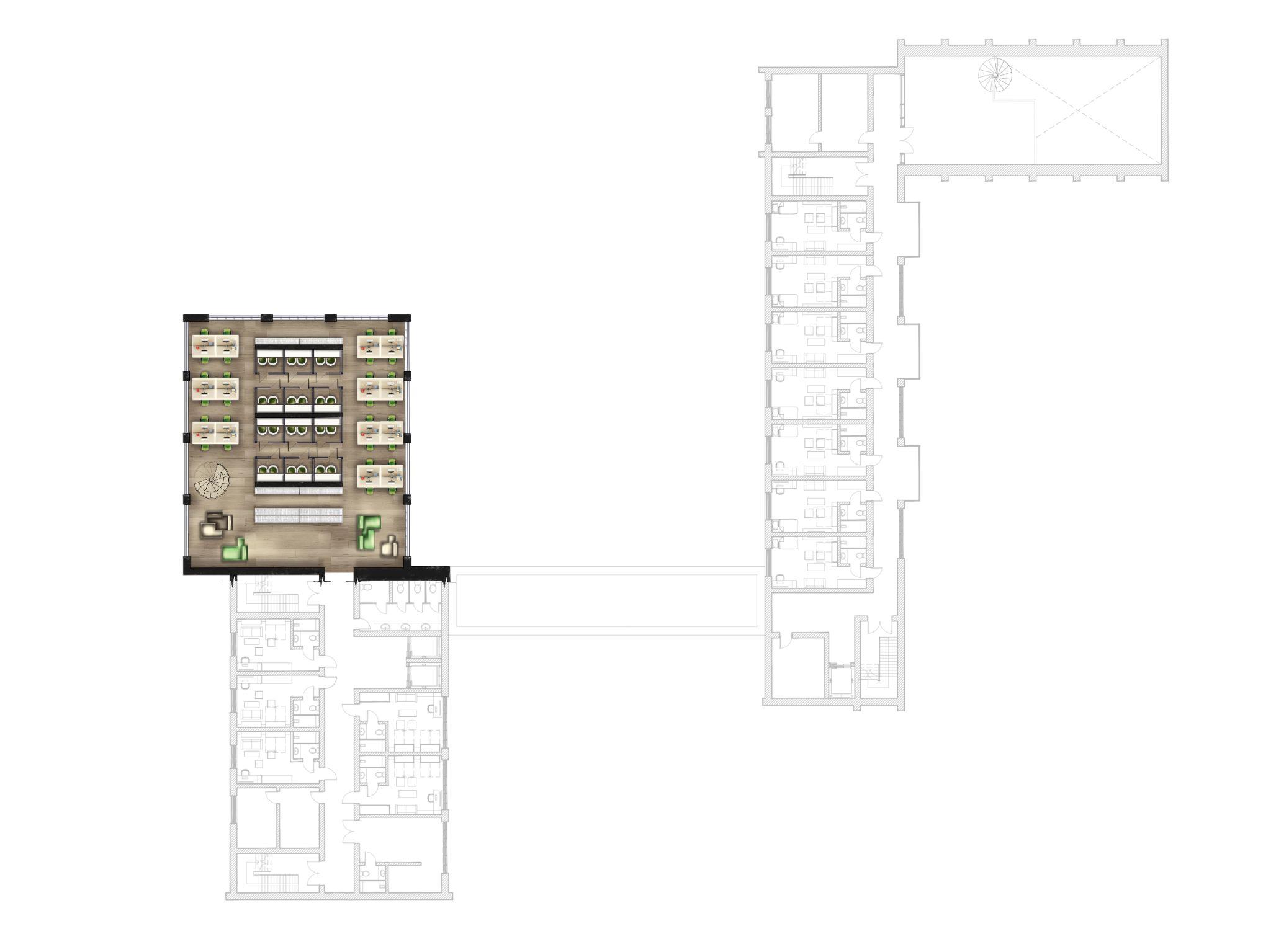
14 pav. „Vievio“ sanatorinė misko mokykla; Dvaro g. 1, Paneriai. Ia. Planas naujo patalpų išdėstymas (autorės iliustracija, suproektuota SketchUp programėlyje, 2024)

8. Rubinė (mot.)

9. Terasa

10. Valgomasis

11. Virtuvė

12. I Tech. patalpa

13. Maisto sandelis.

14. Daktaro kab.

15. Pshiterapeuto kab.

16. Pirmos pagalbos palata

17. Tech. patalpa

18. I Bendras san.mazgas

19. II Bendras san.mazgas

1 kv/m 258.21 70.11 27.59 30 27.6 144 17.47 17.47 562.38 179.86 57.65 11.69 8.95 21.8 21.8 27.6 21.6 12,6 12,65 1 2 3 4 4 5 5 5 6 7 8 9 10 11 12 13 14 15 16 17 18 19 47

Pirmasisreabilitacijoscentroaukštaspadalintasįketuriaspagrindineszonas.

Pirmojizona:įėjimogrupėirbiurai

Pagrindinisįėjimas:

Apa iojeyraintegruotisuolai-palangissulaukobatųlaikymovietomis.

Dešinėje nuo įėjimo yra informacijos centras, kuriame klientai gali užsiregistruoti reabilitacijai.

Administracijoskabinėtasyrašaliaregistracijos.

Kabinėtai:

Grupiniaikonsultacijoskambariaisupsichoterapeutu.

Priva iųkonsultacijųkambariai.

Vyriausiojoterapeutoirpsichoterapeutoasmeniniaipatalpos.

Apžiūros kambarys, kuriame teikiama pirmoji pagalba ir kasdieninis sveikatos patikrinimas.

Antrojizona:Terasa

Terasa suprojektuota su labirinto elementų, leidžian ių klientams leisti laiką gamtojeirprivatumątiekvienam,tieksuartimaisiais.

Amfiteatromotyvassuteikiasklandųperėjimąpriekraštovaizdžio.

Terasojeįrengtossūpynės,suolai,pufaiirbatutai.

Tre iojizona:valgomasis

Pagrindinėkoncepcija:Valgomasisegzistuojakaipbendruomenėserdvė.

Zonospadalijimas:

Pirmasistipas:Sofoslinksienossustalais.

Antrasistipas:stalaipatalposcentre,kurklientaigalibendrautivalgydami.

Valgomojo zonoje taip pat suprojektuota antra virtuvė-maisto gaminimo pamokoms.

Šaliavalgomojoyra:

Pagrindinė virtuvė dirbantiems darbuotojams, maisto sandelys ir asmeninis kambaryspersonalui.

Ketvirtoji zona – kineziterapijos sale. Klientams svarbu stebėti ne tik savo moralinę,betirfizinębūklę

48

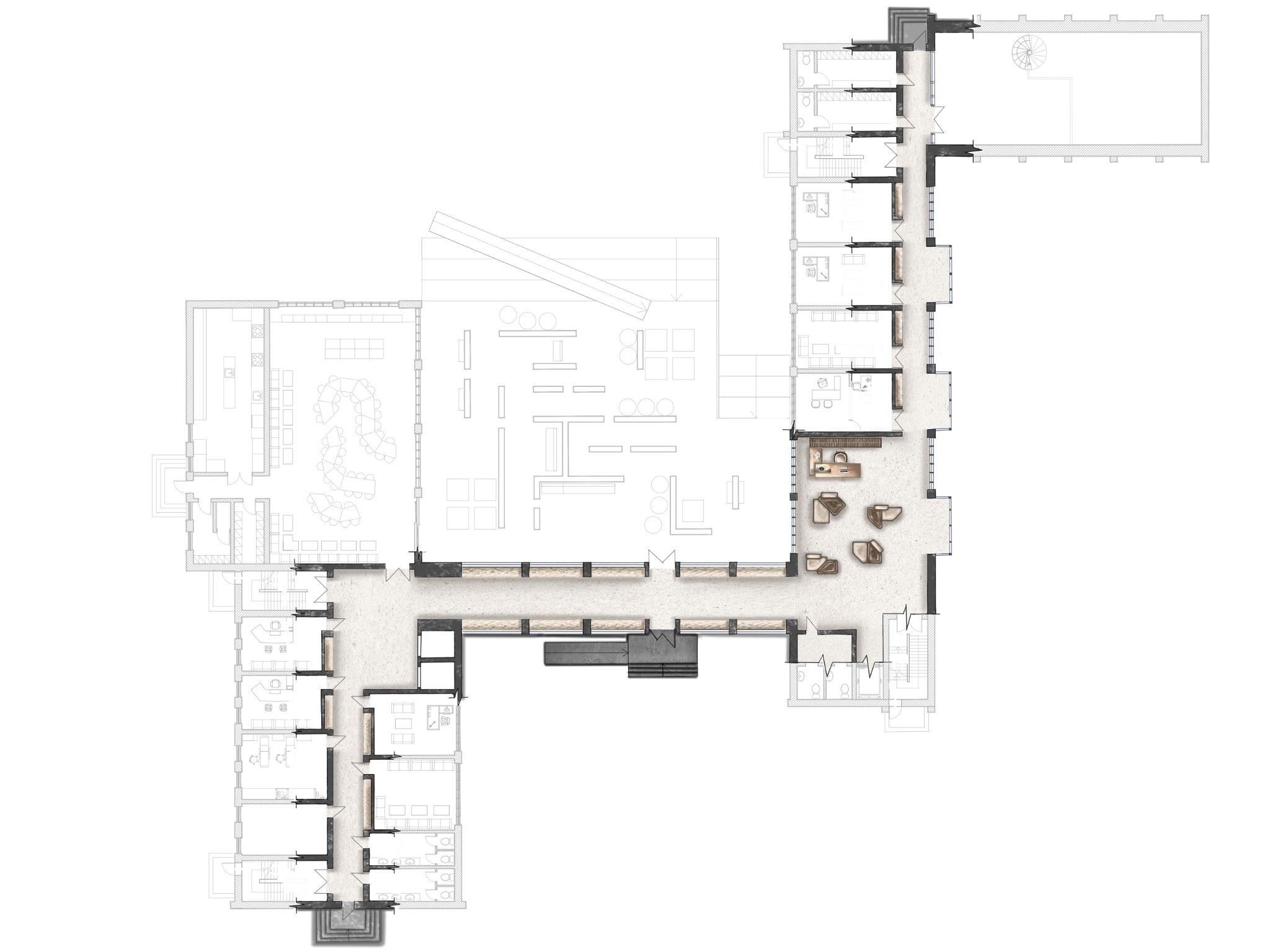
Planas

I aukštas

49
15. Ia. Planas. Koridorius. Medžiagos išdėstimas (autorės iliustracija, suproektuota SketchUp ir iArtbook programėlyje, 2024)

Sienos apdaila Medžiaga: RIGATO ribbed timber veneer in Oak choco

Sienos apdaila Medžiaga: PROFESSION AL P6 NCS S 0804-Y10R

Grindų apdaila Medžiaga: Ceppo Di Gres

Sėdėjimo zona Medžiaga: Apmuštas BOUCLE audiniu

Sėdėjimo zona Medžiaga: Apmuštas BOUCLE audiniu

50

KORIDORIAUS VIZUALIZACIJA

16. Ia. Planas. Koridorius. (autorės iliustracija, suproektuota SketchUp ir iArtbook programėlyje, 2024)

Baldų ir dizaino aprašymas

53

Mano reabilitacijos centro koridoriaus vizija buvo sukurti atvirą, jaukią ir su gamtine aplinka deran ią erdvę, kuri būtų ryškus kontrastas griežtiems koridoriams, būdingiems 1960-ųjų Lietuvos mokykloms. Tose mokyklose dizainas pirmiausia buvo funkcinis, mažai dėmesio skiriant psichologiniam erdvės poveikiui. Jose buvo griežtas fluorescencinis apšvietimas, nelankstūs suolai, trūko įdomių vizualiniųelementų,kuriegalėjoslėgtiirriboti.

Mano centre koridorius išklotas šiltomis medinėmis plokštėmis, kurios suteikia natūralios ramybės pojūtį ir atkartoja ramų lauką, matomą pro didelius langus, užpildan ius erdvę natūralia šviesa. Grindys padengtos faktūriniu, žvirgždo paviršiumi, kuris suteikia organiškumo po kojomis, o aidas būtų nuslopintas. Sėdimos vietos yra funkcionalios, ta iau atitinka bendrą koncepciją - jos yra įdiegtos sienoje tam, kad koridorius neturėtų tiesios geometrijos. Taip pat priešingoje pusėjė įkurti balkonai. Vietoje griežtų liuminescencinių lempų virš galvos įrengtas minkštas, išsklaidytas apšvietimas, sukuriantis švelnią atmosferą, padedan iąterapiniamprocesui.

54

Grindų apdaila Medžiaga: Parketlėntė Modelis: 59-083

Sienos apdaila Medžiaga: PROFESSION AL P6 NCS S 0804-Y10R

Kėdžių apdaila Medžiaga: Odinė apdailanubukas

Stalviršis "FIGURE WOOD DARK" Matinis (065M) 600-2440-19-1 Y ant aukštos kokybės MDF KILIMAS BREZE OF OBESSION 1.60*2.30 TAUPE

Kėdės apdaila Medžiaga: F1926 Quartz

55

Planas

I aukštas

56
17. Ia. Planas. Administracijos detalizacija.. Medžiagos išdėstimas (autorės iliustracija, suproektuota SketchUp ir iArtbook programėlyje, 2024)

Grindų apdaila Medžiaga: Parketlėntė Modelis: 59-083

Sienos apdaila Medžiaga: PROFESSION AL P6 NCS S 0804-Y10R

Sėdėjimo zona Medžiaga: Mikrofibra

Sėdėjimo zona Medžiaga: Apmuštas BOUCLE audiniu

Stalviršis "FIGURE WOOD" Matinis (065M) 600-2440-19-1 Y ant aukštos kokybės MDF KILIMAS MAORI 1.20*1.70 TAUPE

57

Planas

58
18. Ia. Planas. Individualios ir grupines konsultacijos kabinetų detalizacija.. Medžiagos išdėstimas (autorės iliustracija, suproektuota SketchUp ir iArtbook programėlyje, 2024)

INFORMACIJOS CENTRO VIZUALIZACIJA

19. Ia. Planas. Administracija. (autorės iliustracija, suproektuota SketchUp ir iArtbook programėlyje, 2024)

Baldų ir dizaino aprašymas

61

Reabilitacijos įstaigos informacinio centro vizija– sukurti jaukią ir raminan ią atmosferą, kuri itin svarbi pacientams ir lankytojams pirmą kartą patekusiems į patalpas. Vienoje patalpos pusėje yra langai nuo grindų iki lubų, pro kuriuos patenkanatūrališviesąiratsiveriavaizdasįlaukožalumą.Šissprendimasužtikrina oroirlengvumopojūtįirįleidžiaeksterjerožalumąįvidinęerdvę.Viršujeįrengtas bėginis apšvietimas, kuris užtikrina pakankamą apšvietimą, bet neužgožia natūralios šviesos. Grindų dangai parinktą - šviesios spalvos tekstūrinė medžiaga, primenantinatūralųakmenį,garantuojailgaamžiškumąirlengvąpriežiūrą.Priėmimo zonosfrontalinėjedalyjestovielegantiškasmedinisstalas–registracijoszona,už jos medinę sieną iš medžio plokš ių su įmontuotomis lentynomis. Toliau nuo registratūros priešais vitrininius langus išsidėstė laukimo ir poilsio zona. Poilsio zona- tai minkštų baldų kombinacija. Baldai pagaminti iš šiuolaikiškos ativandalinės, švelnios,atspariospurvuiirdeformacijosmedžiagos.Spalvųgamaneutrali.

62

Planas

63
20. Ia. Planas. Valgomoji zona detalizacija.. Medžiagos išdėstimas (autorės iliustracija, suproektuota SketchUp ir iArtbook programėlyje, 2024)

Grindų apdaila Medžiaga:

Parketlėntė Modelis: 59-083

Grindų apdaila Medžiaga: Ceppo Di Gres

Sienos apdaila Medžiaga: RIGATO ribbed timber veneer in Oak choco

Sienos apdaila Medžiaga: PROFESSION AL P6 NCS S 0804-Y10R

Sofos apdaila Medžiaga: F1926 Quartz

Stalviršio apdaila Medžiaga: Akmens masėLiceo

64
VALGYKLOSVIZUALIZACIJA
21. Ia. Planas. Valgomoji zona. (autorės iliustracija, suproektuota SketchUp ir iArtbook programėlyje, 2024)

Baldų ir dizaino aprašymas

67

Reabilitacijos centro valgykla. Numatyta, kad ši erdvė apjungs funkcionalumas ir estetiką.

Tikslas- sukurti patogia ir svetinga aplinka maisto priėmimui ir gaminimui. Patalpa taip pat jį bus skirta bendriems grupiniams užsiimamas gaminant maistą kartu su mokytojų. Panoraminiai langai leidžia patekti į patalpas dideliui natūralios šviesos kiekiui, pro langus atsiveria vaizdas į eksterjerą. Valgyklos erdvėje įrengta atviro plano virtuvė su aukštos kokybės įrenginiais ir paviršiais, skirtais maisto ruošimui.

Virtuvės zonoje įrengtos dujinės virykles ir integruotos orkaitės. Atvira virtuvė skirta maisto gamybos pamoku demonstravimui ir mitybos seminarams, kurie taps neatsiejamąja terapijos dalimi. Valgomojoje zonoje įrengti stilingi ir ergonomiški stalai ir kėdės. Vietų išdėstymas yra lankstus, baldai -mobilus. Parinkta neutralių spalvų gama, natūralių medžiagų akcentais balduose užtikrina jaukumo ir gamtos pojūtį.Grindysišnatūraliospatvariosmedžiagospabrėžiaminimalizmoestetiką.

68
Grindų apdaila Medžiaga: DARKSIDEWOO D NATURAL mediena Sėdmaišio apdaila Medžiaga: Polyester Batuto apdaila Medžiaga: PP (polypropylene)
69
Suoliuko apdaila Medžiaga: WPC kompozitas

Planas

I aukštas

70
22. Ia. Planas. Terasos zona detalizacija.. Medžiagos išdėstimas (autorės iliustracija, suproektuota SketchUp ir iArtbook programėlyje, 2024)

TERASOS VIZUALIZACIJA

23. Ia. Planas. Terasa. (autorės iliustracija, suproektuota SketchUp ir iArtbook programėlyje, 2024)

Baldų ir dizaino aprašymas

73

Projektuojantreabilitacijoscentroterasą,tikslasbuvosukurtiramiąirpatrauklią laukoerdvę.

Terasa pagaminta iš patvarių medinių lentų, kurie sukuria šiltą, natūralią aplinką, skatinan ią pacientus leisti laiką lauke. Terasa suprojektuota keliais lygiais todėl atsiveria įvairūs apžvalgos kampai ir sukuriama dinamiška lauko erdvė. Į projektą įtrauktos vešlios žalios sienos ir augalu kompozicijos ir pavieniai augalai, kurie ne tik suteikia privatumo ir nuošalumo. Skulptūriniai sėdmaišiai išdėstyti per visa terasąirsiūlopatogiaspoilsiovietas.

74

Apšvietimo planas

I aukštas

75

1.Koridorius

2.Inform. centras

3.Valgykla

1. Balkonas

2.San.mazgas

3. Dartaro kab

4.Pshihoterapeuto kab.

5.Pirmos pagalbos palata

6.Administracija

Integrated Driver Adapter Round Led Track Light AT10840

Tipas: 35W integruotas

vairuotojo adapteris apvalus LED bėgių žibintas

Modelis AT10840

Galia 30W / 35W

LED CITIZEN

CCT 3000K

Matmenys Ø75*L157mm

EN-SUITE R 93018 W KCT 3000K

Montavimo angos dydis (mm) 48

Min. Montavimo gylis (mm) 50 IP20

Reguliuojamumas nereguliuojamas

Informacija REFLECTOR SP-18°

BE.LED MAITINIMO 250mA-DC

1.Virš gaminimo zonos

ONE-AND-ONLY P12 DOWN-UP 930 W-W

404 12 93 W-W KCT 3000K

IP20

Reguliuojamumas nereguliuojamas

Informacija ŽEMYN

ĮSKAI IUOTA.LED MAITINIMAS

ĮSKAI IUOTA.2 x KABELIŲ PAKABA

VIENA AUTO. 1,6 m

ĮSKAI IUOTA 1 x KABELIS 3 x 0,75 mm²

Šviesos srautas 2 600 lm

1.Sporto sale

2.Virtuvė

SP570P LED26S 4000

PSU W12L120 OD SI

Šviesos efektyvumas (vardinis) (nomin.)

120 lm/W

Koreliuota spalvų temperatūra (nomin.)

4000 K

Spalvų perteikimo indeksas (CRI) >80

Galios koeficientas (frakcija) 0,95

Įtampa (nomin.) 120-277, 347 V

UL tipas TLED_Type A; UL sąraše esantis HF

1.Koridorius

2.Inform. centras

CoreLine panel

1.Grupinės konsul.

2.Individualios konsul.

CIRCLE SET

600x600 mm, Plieninis, Baltas, Interact

SNS210 jutiklis, 4300 lm, 36 W, 119 lm/W, 4000 K, (0,38, 0,38) SDCM≤3, UGR19, Spindulio kampas 90°, Apsaugotas nuo pirštų, saugos klasė 0. II, Įstumiama jungtis 3 polių

Medžiaga aliuminis, PMMA

Spalva Balta

Matmenys Ø,600 + Ø,800 mm x A,2500 mm

Įėjimas 104W

Spalvos temperatūra 2CCT 3000/4000K

Liumenų galia 9260 lm

Spindulio kampas 160°

Valdykite TRIAC

Tinklo įtampa 220-240V/50-60Hz

Išėjimo tvarkyklės srovė 2x 750 + 1050 mA

Žymėjimas Patalpa Šviestuvas Specifikacija Nuotrauka
76

Planas

KORPUSAS C

Patalpų išdėstymas: 1. Darbo/ mokslo zona 2. Dviviečiai kambariai 3. Personalo patalpos 4. Sanitarine patalpa 5. Nešvarių skalbinių patalpa

Bendras san. mazgas

KORPUSAS D

Patalpų išdėstymas:

24 pav. „Vievio“ sanatorinė misko mokykla; Dvaro g. 1, Paneriai. IIa. Planas naujo patalpų išdėstymas (autorės iliustracija, suproektuota SketchUp programėlyje, 2024)

Jogo terapijos zona

Dviviečiai kambariai (su tėvais)

Sanitarine patalpa

Nešvarių skalbinių patalpa

1 kv/m 275 24.4 32.25 9.8 9.8 22.6
6.
II aukštas KORPUSAS C KORPUSAS D 1 2 2 2 2 2 3 4 5 6
7. 8. 9. 10. 1 kv/m 72 26.6 9.8 9.8 8 8 8 8 7 8 8 8 9 10
77

Antrasaukštas:CirDkorpusai

Cpastatas

Dvivie iaikambariaivaikams:

Įranga:

Mobilūs baldai: integruotos lovos į spintą, pufai, sofos, kurios virsta lovos atramomis.

Darbovieta.

Poilsiozona.

Asmeniniaidušokambariai.

Šiospatalposskirtosvaikams,atvykusiemsįcentrąbetėvų.

Gydytojųkambarys: Sukurtassaugumuiirpirmajaipagalbai.

Darbozona:

Asmeninėsdvivietėssėdynėsonlineskambu iams. Yradaugbendrųdarbovietų,aprūpintųreikiamatechnika. Minibibliotekoszona.

Dpastatas

Šeimyniniaikambariai:

Įranga:

Mobilūs baldai: integruotos lovos į spintą, pufai, sofos, kurios virsta lovos atramomis.

Darbovieta.

Poilsiozona.

Asmeniniaidušokambariai.

Šiekambariaiskirtišeimomssudviemvaikais.

Jogosterapijossritis: Erdvė, kurioje vaikai ir tėvai gali užsiimti joga, kad pagerintų savo fizinę ir emocinęsavijautą.

Techniniaipatalpos: Sandėliukas.

Skalbiniai. Sanitarinėspatalpos.

78

Planas

II aukštas

79
25. IIa. Planas. Darbo/Mokslo zona detalizacija.. Medžiagos išdėstimas (autorės iliustracija, suproektuota SketchUp ir iArtbook programėlyje, 2024)

Grindų apdaila Medžiaga: Parketlėntė Modelis: 59-083

Stalviršis Home4you Ergo

Table Top, balta, 200 cm x 70 cm

Sofos apdaila Medžiaga: Viliūras Rudas

Sofos apdaila Medžiaga: Viliūras Žalias

Sienos apdaila Medžiaga: PROFESSION AL P6 NCS S 0804-Y10R

Sėdėjimo zona Medžiaga: Mikrofibra

Planas

II aukštas

26. IIa. Planas. Vaikų kambaris be tėvų. Medžiagos išdėstimas (autorės iliustracija, suproektuota SketchUp ir iArtbook programėlyje, 2024)

Grindų apdaila Medžiaga: SPC laminatas Aberhof Carmelita 1682

Sofos apdaila Medžiaga: Viliūras Raudonas

Sofos apdaila Medžiaga: Viliūras Garsty ių spalva

Stalviršis Hickory, ruda, 140 cm x 70 cm

Kriauklės apdaila Medžiaga: Lavabo Light Calacatta

Grindų apdaila vonioje Medžiaga: 1900 BLANCO PLYTELĖS

MOKYKLOS VIZUALIZACIJA
27. IIa. Planas. Darbo/Mokslo zona (autorės iliustracija, suproektuota SketchUp ir iArtbook programėlyje, 2024)
1 KAMBARIO VIZUALIZACIJA
28. IIa. Planas. Vaikų kambaris be tėvų. (autorės iliustracija, suproektuota SketchUp ir iArtbook programėlyje, 2024)

Baldų ir dizaino aprašymas

83

Reabilitacijos centro biblioteka. Projekte pabrėžiamas erdvumas ir natūralus apšvietimas.

Sukurta patraukli ir mokymosi skatinanti aplinka. Bibliotekoje dideli ir platūs langai atveria vaizdą į centro teritoriją bei rajono apylinkes. Patalpos išplanavimas sudaro kelis lygius, biblioteka randasi antresolėje, virš mokyklos erdves. Iš bibliotekos, atsiveria vaizdas į mokyklos aukštą, abu aukštai sujungti- spiraliniais laiptais.

Mokyklos patalpų zonavimas turi daug konfigūracijų ir mobilumo, atitinkan ius skirtingus pageidavimus, nesvarbu, ar norima ramaus kampelio giliam susikaupimui, aratviresnėsaplinkosbendrammokymuisi.

Modernaus dizaino ir ryškių spalvų baldai, pvz. žalios spalvos kėdės ir turkio spalvos akcenta suteikia gyvybės ir energijos. Aptakios formos knygų lentynos ir stalaiužtikrina,erdvėsjausmairtarpjųlengvaorientuotis.Lentynomsirskydams panaudota mediena suteikia aplinkai šilumos ir taip subalansuoja stiklo ir metalo konstrukcijųderinį.

Reabilitacijos centro vaiko kambario viziją. Tikslas sukurti modernią ir jaukią erdvę,kurilabiau

primintų namus nei klinikos aplinką. Pirmo tipo kambarys suprojektuotas taip, kad jame tilptų du vaikai, yra daugiau asmeninės erdvės nei paprastai 1960-ųjų metų Lietuvos mokyklų bendrabu ių kambariuose, kuriuose panašiame plote dažnai gyveno iki keturių mokinių. Sumažėjus žmonių skai iui viename kambaryje, sukuriamaerdvesnėaplinka.Dizainaspasižymišiuolaikineestetika,funkcionaliaisir kartu stilingais baldais, atitinkan iais be tėvų gyvenan ių vaikų poreikius. Erdvėje vyrauja švelni, neutrali spalvų paletė, kurią papildo modernūs ir žaismingi baldai, suteikiantysjaunatviškumo,betneprarandantysfunkcionalumo.

Kambaryje įrengta patogi poilsio zona su minkštomis sofomis. Pro didelius langus vienoje kambario pusę, patenka daug saulės šviesos, kambarys atrodo erdvus. Tai ryškus kontrastas anks iau buvusiems griežtesniems ir utilitariškesniems bendrabu iams,kuriuosedažnaitrūkoapšvietimoirbuvoankšta.

84

Grindų apdaila Medžiaga: SPC laminatas Aberhof Carmelita 1682

Sofos apdaila Medžiaga: Viliūras Raudonas

Sofos apdaila Medžiaga: Viliūras Garsty ių spalva

Stalviršis Hickory, ruda, 140 cm x 70 cm

KILIMAS BREZE OF OBESSION 1.60*2.30 TAUPE

Kėdžių apdaila Medžiaga: Odinė apdailanubukas

85

Planas

II aukštas

86
29. IIa. Planas. Šeimos kambaris, tėvai + vaikai.. Medžiagos išdėstimas (autorės iliustracija, suproektuota SketchUp ir iArtbook programėlyje, 2024)

Baldų ir dizaino aprašymas

89

Antro tipo kambarys pritaikytas vaikams, gyvenantiems su tėvais reabilitacijos centre. Daugiausia dėmesio skirta daugiafunkcinei erdvei, kurioje būtų galima gyventi su šeima, ta iau būtų išlaikytas šiuolaikinio stiliaus ir komforto jausmas. Šiame kambaryje integruotos lanks ios miegamojo vietos su tėvams skirtomis spintelėmis ir (arba) sulankstomomis lovomis ir specialiai vaikams skirtomis dviaukštėmis lovomis, užtikrinant, kad kambarys galėtų būti prisitaikytas prie šeimos poreikių, nesumažinant erdvės dienos metu. Estetika yra lakoniška ir moderni, neutrali spalvų gama suteikia ramybės ir komforto jausmą. Įrengta daiktu laikymo sistemą, kurį tarnauja kaip kambario pertvarą, užtikrinanti privatumą ir erdvės zonavimą. Šiame bloke integruotos vietos stalui ir lentynoms, padedantisužsiimtiįvairiaveikla-nuomokymosiikilaisvalaikio.

Kambaryje įrengtas didelis langas, pro kurį patenka daug natūralios šviesos ir pro kurį atsiveria vaizdai į apylinkes, padedantis sukurti erdvumo ir atvirumo įspūdį. Šiuolaikiniai šviestuvai, įskaitant stilingus pakabinamus šviestuvus, sustiprina atmosferą, suteikdami švelnų apšvietimą, kuris papildo natūralią dienos šviesą. Poilsiozonojeyrapatogūs,elegantiškibaldai,kuriuosgalimalengvaiperstatyti,kad jietiktųįvairiomsšeimosveikloms.

90

Apšvietimo planas

II aukštas

91

1.Koridorius

Integrated Driver Adapter Round Led Track Light AT10840

1. Balkonas 2.San.mazgas EN-SUITE R 93018 W

Tipas: 35W integruotas vairuotojo adapteris apvalus

LED bėgių žibintas

Modelis AT10840

Galia 30W / 35W

LED CITIZEN

CCT 3000K

Matmenys Ø75*L157mm

KCT 3000K

Montavimo angos dydis (mm) 48

Min. Montavimo gylis (mm) 50

IP20

Reguliuojamumas nereguliuojamas

Informacija REFLECTOR SP-18°

BE.LED MAITINIMO 250mA-DC

1.Vakarinis kambario apšvietimas

Solara - large aged brass and layered natural linen pendant

1.Sporto sale

2.Mokykla

SP570P LED26S 4000

PSU W12L120 OD SI

Įėjimas 136W

Spalvos temperatūra 2CCT 2000/3000K

Liumenų galia 12104 lm

Spindulio kampas 100°

Valdykite TRIAC

Tinklo įtampa 220-240V/50-60Hz

Išėjimo tvarkyklės srovė 3x 750 + 1050 mA

IP reitingas 20

Šviesos srautas 2 600 lm

Šviesos efektyvumas (vardinis) (nomin.)

120 lm/W

Koreliuota spalvų temperatūra (nomin.)

4000 K

Spalvų perteikimo indeksas (CRI) >80

Galios koeficientas (frakcija) 0,95

Įtampa (nomin.) 120-277, 347 V

UL tipas TLED_Type A; UL sąraše esantis HF

1.Koridorius 2.Technines pat.

CoreLine panel

1..Poilsio zona CIRCLE SET

600x600 mm, Plieninis, Baltas, Interact

SNS210 jutiklis, 4300 lm, 36 W, 119 lm/W, 4000 K, (0,38, 0,38) SDCM≤3, UGR19, Spindulio kampas 90°, Apsaugotas nuo pirštų, saugos klasė 0. II, Įstumiama jungtis 3 polių

Medžiaga aliuminis, PMMA

Spalva Balta

Matmenys Ø,600 + Ø,800 mm x A,2500 mm

Įėjimas 104W

Spalvos temperatūra 2CCT 3000/4000K

Liumenų galia 9260 lm

Spindulio kampas 160°

Valdykite TRIAC

Tinklo įtampa 220-240V/50-60Hz

Išėjimo tvarkyklės srovė 2x 750 + 1050 mA

Žymėjimas Patalpa Šviestuvas Specifikacija Nuotrauka
Šviestuvų parengtis 92

Planas

31 pav. „Vievio“ sanatorinė misko mokykla; Dvaro g. 1, Paneriai. IIIa. Planas naujo patalpų išdėstymas (autorės iliustracija, suproektuota SketchUp programėlyje, 2024)

KORPUSAS E

Patalpų išdėstymas:

1. Skaitmenines zona

2. Dvivie iai kambariai (tik vaikams)

3. Personalo patalpos

4. Sanitarine patalpa

5. Nešvarių skalbinių patalpa

6. Bendras san. mazgas

KORPUSAS F

Patalpų išdėstymas:

Dvivie iai kambariai (su tėvais) Sanitarine patalpa Nešvarių skalbinių patalpa

1 kv/m 95 24.6 32.1 9.8 9.8 22.6
III aukštas KORPUSAS F KORPUSAS E 1 2 2 2 2 2 3 4 5 6
7. 8. 9. 1 kv/m 72 9.8 9.8 7 7 7 7 7 7 7 8 9 93

Antrasaukštas:EirFkorpusai

Epastatas

Dvivie iaikambariaivaikams:

Įranga:

Mobilūs baldai: integruotos lovos į spintą, pufai, sofos, kurios virsta lovos atramomis.

Darbovieta.

Poilsiozona.

Asmeniniaidušokambariai.

Šiospatalposskirtosvaikams,atvykusiemsįcentrąbetėvų.

Gydytojųkambarys:

Sukurtassaugumuiirpirmajaipagalbai.

Atskira biblioteka su poilsio zona: Vieta skaitymui ir poilsiui.

Fpastatas

Šeimyniniaikambariai:

Įranga:

Mobilūs baldai: integruotos lovos į spintą, pufai, sofos, kurios virsta lovos atramomis.

Darbovieta.

Poilsiozona.

Asmeniniaidušokambariai.

Šiekambariaiskirtišeimomssudviemvaikais.

Techniniaipatalpos: Sandėliukas.

Skalbiniai.

Sanitarinėspatalpos.

94

Planas

III aukštas

95
32 IIIa. Planas. Biblioteka.. Medžiagos išdėstimas (autorės iliustracija, suproektuota SketchUp ir iArtbook programėlyje, 2024)

Grindų apdaila Medžiaga: Parketlėntė Modelis: 59-083

Stalviršis Home4you Ergo

Table Top, balta, 200 cm x 70 cm

Sienos apdaila Medžiaga: PROFESSIONA

L P6

NCS S 0804-Y10R

Sofos apdaila Medžiaga: Viliūras Rudas

Sofos apdaila Medžiaga: Viliūras Žalias

Sėdėjimo zona Medžiaga: Mikrofibra

96
VIZUALIZACIJA
BIBLIOTEKOS
33. IIIa. Planas.Biblioteka. (autorės iliustracija, suproektuota SketchUp ir iArtbook programėlyje, 2024)

Baldų ir dizaino aprašymas

99

Reabilitacijos centro biblioteka. Projekte pabrėžiamas erdvumas ir natūralus apšvietimas.

Sukurta patraukli ir mokymosi skatinanti aplinka. Bibliotekoje dideli ir platūs langai atveria vaizdą į centro teritoriją bei rajono apylinkes. Patalpos išplanavimas sudaro kelis lygius, biblioteka randasi antresolėje, virš mokyklos erdves. Iš bibliotekos, atsiveria vaizdas į mokyklos aukštą, abu aukštai sujungti- spiraliniais laiptais.

Mokyklos patalpų zonavimas turi daug konfigūracijų ir mobilumo, atitinkan ius skirtingus pageidavimus, nesvarbu, ar norima ramaus kampelio giliam susikaupimui, aratviresnėsaplinkosbendrammokymuisi.

Modernaus dizaino ir ryškių spalvų baldai, pvz. žalios spalvos kėdės ir turkio spalvos akcenta suteikia gyvybės ir energijos. Aptakios formos knygų lentynos ir stalaiužtikrina,erdvėsjausmairtarpjųlengvaorientuotis.Lentynomsirskydams panaudota mediena suteikia aplinkai šilumos ir taip subalansuoja stiklo ir metalo konstrukcijųderinį.

100

Apšvietimo planas

III aukštas

101

1.Koridorius

Integrated Driver Adapter Round Led Track Light AT10840

1. Balkonas 2.San.mazgas EN-SUITE R 93018 W

Tipas: 35W integruotas vairuotojo adapteris apvalus

LED bėgių žibintas

Modelis AT10840

Galia 30W / 35W

LED CITIZEN

CCT 3000K

Matmenys Ø75*L157mm

KCT 3000K

Montavimo angos dydis (mm) 48

Min. Montavimo gylis (mm) 50

IP20

Reguliuojamumas nereguliuojamas

Informacija REFLECTOR SP-18°

BE.LED MAITINIMO 250mA-DC

1.Vakarinis kambario apšvietimas

Solara - large aged brass and layered natural linen pendant

1.Sporto sale

2.Mokykla

SP570P LED26S 4000

PSU W12L120 OD SI

Įėjimas 136W

Spalvos temperatūra 2CCT 2000/3000K

Liumenų galia 12104 lm

Spindulio kampas 100°

Valdykite TRIAC

Tinklo įtampa 220-240V/50-60Hz

Išėjimo tvarkyklės srovė 3x 750 + 1050 mA

IP reitingas 20

Šviesos srautas 2 600 lm

Šviesos efektyvumas (vardinis) (nomin.)

120 lm/W

Koreliuota spalvų temperatūra (nomin.)

4000 K

Spalvų perteikimo indeksas (CRI) >80

Galios koeficientas (frakcija) 0,95

Įtampa (nomin.) 120-277, 347 V

UL tipas TLED_Type A; UL sąraše esantis HF

1.Koridorius 2.Technines pat.

CoreLine panel

1..Poilsio zona CIRCLE SET

600x600 mm, Plieninis, Baltas, Interact

SNS210 jutiklis, 4300 lm, 36 W, 119 lm/W, 4000 K, (0,38, 0,38) SDCM≤3, UGR19, Spindulio kampas 90°, Apsaugotas nuo pirštų, saugos klasė 0. II, Įstumiama jungtis 3 polių

Medžiaga aliuminis, PMMA

Spalva Balta

Matmenys Ø,600 + Ø,800 mm x A,2500 mm

Įėjimas 104W

Spalvos temperatūra 2CCT 3000/4000K

Liumenų galia 9260 lm

Spindulio kampas 160°

Valdykite TRIAC

Tinklo įtampa 220-240V/50-60Hz

Išėjimo tvarkyklės srovė 2x 750 + 1050 mA

Žymėjimas Patalpa Šviestuvas Specifikacija Nuotrauka
Šviestuvų parengtis 102

Išvada

Aplinka atlieka lemiamą vaidmenį formuojant valgymo sutrikimų turin ių asmenų nesąmoningą elgesį ir dirgiklius. Psichologiniai tyrimai rodo, kad streso, didelių lūkes ių ar estetinę išvaizdą pabrėžianti aplinka gali turėti didelę įtaką valgymo sutrikimų atsiradimui ir paūmėjimui (Pa ešiūnaitė, A., & ekuolienė, D., 2010).

Tokia aplinka kaip itin konkurencingos mokyklos, į įvaizdį orientuotos darbovietės ar net tam tikra šeimyninė aplinka gali nesąmoningai stiprinti nesveiką požiūrį į maistąirkūnoįvaizdį.Tokiaaplinkagalisubtiliaiskatintitokįelgesį,kaipbesaikės dietos ar kompulsyvus valgymas, atvirai nekreipiant dėmesio į jų psichologinį poveikį.

Be to, socialinė ir kultūrinė aplinka, kuriai didelę įtaką daro žiniasklaida, taip pat prisideda prie nesąmoningo požiūrio į kūno vaizdą formavimo (Montvelaitė, 2016). Nuolatinis idealizuotų kūno tipų vaizdavimas per reklamą, televiziją ir vis dažniau per socialinės žiniasklaidos platformas gali nustatyti nerealius kūno standartus. Į valgymo sutrikimus linkusių asmenų pasąmonėje šie standartai gali giliai įsišaknyti, skatindami netvarkingą valgymo elgseną, kai bandoma atitikti šiuos idealus. Žiniasklaidos perpildymas sukuria normatyvinius kūno dydžio ir formų lūkes ius, kurie dažnai yra nepasiekiami ir biologiškai netinkami daugumai žmonių, taip sustiprindamasnepilnavertiškumoirprievartosjausmą.

103

Fizinė aplinka, įskaitant galimybę naudotis viešosiomis erdvėmis, sporto salėmis ir laisvalaikioįstaigomis,taippatgaliturėtiįtakosvalgymosutrikimųturin iųasmenų nesąmoningiems motyvams. Pavyzdžiui, galimybė naudotis viešosiomis erdvėmis, kuriose skatinama sveika, nekonkurencinė fizinė veikla, gali paskatinti teigiamą kūno įvaizdį ir padėti sušvelninti svorio metimo maniją. Ir atvirkš iai, aplinka, kurioje trūksta tokių išteklių, gali skatinti sėslų gyvenimo būdą ar nesveiką fizinį aktyvumą,otaigalidarlabiauįtvirtintinetvarkingovalgymoįpro ius.

Galiausiai sveikimo procesui labai svarbi terapinė aplinka. Reabilitacijos centrai ir terapijos įstaigos, kuriose vyrauja draugiškumas, nesmerkimas ir palaikymas, gali teigiamai paveikti pasąmonę, skatinti sveikimą ir padėti žmonėms pakeisti savo santykį su maistu ir kūnu. Tokių erdvių dizainas dažnai apima ir nerimo mažinimo bei dirgiklių, galin ių paskatinti atkrytį, vengimo aspektus, taip sudarant saugią erdvę, kurioje asmenys gali tyrinėti ir spręsti savo nesąmoningus netvarkingo valgymoveiksnius.

Apibendrinant, galima teigti, jog Lietuvoje susiduriama su dideliu iššūkiu teikiant būtiną pagalbą asmenims, ken iantiems nuo valgymo sutrikimų, dėl trūkstamų specializuotų reabilitacijos centrų ir pakankamos visuomenės informuotumo. Nauji architekturiniai sprendimai, bei geresnis reabilitacijos centrų tinklo plėtojimas ir resursų, kvalifikuotų specialistų prieinamumo užtikrinimas, taip pat visuomenės švietimas ir stigmatizacijos mažinimas yra būtini veiksmai, siekiant užtikrinti efektyvų ir laiku suteiktą pagalbą šiems klientams. Toks požiūris ne tik gerintų gydymorezultatus,betirsumažintųsuvalgymosutrikimaissusijusiąmirtingumąir pagerintųklientųgyvenimokokybę.

104

Naudotos literatūros, šaltinių ir elektroninių duomenų sąrašas

Naudotos literatūros, šaltinių ir elektroninių duomenų sąrašas

Andersen,S.T.,Linkhorst,T.,Gildberg,F.A.,&Sjögren,M.(2021).Whydo womenwitheatingdisordersdeclinetreatment?Aqualitativestudyofbarriersto specializedeatingdisordertreatment. Nutrients, 13(11),4033.

Baks,B.,Narmontas,G.,Šekštelienė,E.,&Laukytė-Gaulė,I.(2023).Valgymo sutrikimai.

Fairburn,C.G.(2008). Cognitive behavior therapy and eating disorders.Guilford Press.

Jonauskaitė,D.(2021).UniversalityofColour-EmotionAssociations.

Janutauskas,E.(2021). Architektūros projektavimo sprendiniai, didinantys psichikos sveikatos gydymo efektyvumą; Psichikos sveikatos centras, Kaune, Baltijos gatvėje (Doctoraldissertation,Vilniausdailėsakademija.).

Montvilaitė,R.(2016). Vyresnių klasių mokinių valgymo sutrikimų rizikos ir su ja susijusių veiksnių vertinimas (Doctoraldissertation,Lietuvossveikatosmokslų universitetas).

Nilsson,S.(2021).Healingspaces:howcanarchitecturehelpintherecoveryfrom eatingdisorders?.

Pa ešiūnaitė,A.,& ekuolienė,D.(2010).Sergan iųjųvalgymosutrikimais asmenybėskonstruktai.Psichologija,42,74-84.

Österbauer,R.A.,Matthews,P.M.,Jenkinson,M.,Beckmann,C.F.,Hansen,P.C., &Calvert,G.A.(2005).Colorofscents:chromaticstimulimodulateodor responsesinthehumanbrain.Journalofneurophysiology.

Yager,J.,Devlin,M.J.,Halmi,K.A.,Herzog,D.B.,MitchellIII,J.E.,Powers,P., &Zerbe,K.J.(2014).Guidelinewatch(August2012):practiceguidelineforthe treatmentofpatientswitheatingdisorders. Focus, 12(4),416-431.

106

Iliustracijų sąrašas

Iliustracijų sąrašas

1 pav. Dienos stacionarų skai ius savivaldybėse. Šaltinis – Teritorinės ligonių kasos; Lietuvos Respublikos Vyriausybė. (2017). Dėl psichikos sveikatos strategijos įgyvendinimo 2007–2016 metų ataskaitos pateikimo Lietuvos Respublikos Seimui (Nr. 639)

1 lentelė. Dažniausios spalvų ir emocijų asociacijos 30 šalių. Procentai rodo, kiek žmonių pasirinko kiekvieną asociaciją. Šaltinis: Domicelė Jonauskaitė ir Christine Mohr (2019)

Tyrimo dalies pav. (autorės iliustracijas, 2024):

1 pav. Abstrakcinis kūno paveikslas tinkamas temai valgymo sutrikimas (autorės iliustracija, nupiešta iArtbook programėlyje, 2024)

2 pav. Žmogaus abstrakcinis (autorės iliustracija, nupiešta iArtbook programėlyje, 2024)

3 pav. “Aš stora. Manęs niekas nesupras. Aš esu šitam pasaulyje viena” (autorės iliustracija, nupiešta iArtbook programėlyje, 2024)

4 pav. “Aš ne vienas, bet bijau priimti pagalbos” (autorės iliustracija, nupiešta iArtbook programėlyje, 2024)

5 pav. Abstrakcija (autorės iliustracija, nupiešta iArtbook programėlyje, 2024)

6 pav. „Vievio” sanatorinė miško mokykla fotofiksacija (autorės iliustracija, 2024)

7 pav. Abstrakcinis kūno paveikslas tinkamas temai valgymo sutrikimas (autorės iliustracija, nupiešta iArtbook programėlyje, 2024)

8 pav. “Saugumas” (autorės iliustracija, nupiešta iArtbook programėlyje, 2024)

9 pav. Laiko abstrakcija iArtbook programėlyje, 2024)

Lokacija

10 pav. „Vievio“ sanatorinė misko mokykla; Dvaro g. 1, Paneriai, 21367 Elektrėnų sav.

Planas, pjūvis, aksonometrija, planų detalizacija, projekto vizualizacijas:

11 pav. Lokacijos išdėstymas (autorės iliustracija, suproektuota SketchUp programėlyje, 2024)

12 pav. „Vievio“ sanatorinė misko mokykla; Dvaro g. 1, Paneriai. Pjūvvis naujo pastato išdėstymas (autorės iliustracija, suproektuota SketchUp programėlyje, 2024)

13 pav. „Vievio“ sanatorinė misko mokykla; Dvaro g. 1, Paneriai. Aksonometrija naujo pastato išdėstymas (autorės iliustracija, suproektuota SketchUp programėlyje, 2024)

14 pav. „Vievio“ sanatorinė misko mokykla; Dvaro g. 1, Paneriai. Ia. Plnas naujo patalpų išdėstymas (autorės iliustracija, suproektuota SketchUp programėlyje, 2024)

15. Ia. Planas. Koridorius. Medžiagos išdėstimas (autorės iliustracija, suproektuota SketchUp ir iArtbook programėlyje, 2024)

16. Ia. Planas. Koridorius. (autorės iliustracija, suproektuota SketchUp ir iArtbook programėlyje, 2024)

17. Ia. Planas. Administracijos detalizacija.. Medžiagos išdėstimas (autorės iliustracija, suproektuota SketchUp ir iArtbook programėlyje, 2024)

18. Ia. Planas. Individualios ir grupines konsultacijos kabinetų detalizacija.. Medžiagos išdėstimas (autorės iliustracija, suproektuota SketchUp ir iArtbook programėlyje, 2024)

19. Ia. Planas. Administracija. (autorės iliustracija, suproektuota SketchUp ir iArtbook programėlyje, 2024)

20. Ia. Planas. Valgomoji zona detalizacija.. Medžiagos išdėstimas (autorės iliustracija, suproektuota SketchUp ir iArtbook programėlyje, 2024)

21. Ia. Planas. Valgomoji zona. (autorės iliustracija, suproektuota SketchUp ir iArtbook programėlyje, 2024)

22. Ia. Planas. Terasos zona detalizacija.. Medžiagos išdėstimas (autorės iliustracija, suproektuota SketchUp ir iArtbook programėlyje, 2024)

23. Ia. Planas. Terasa. (autorės iliustracija, suproektuota SketchUp ir iArtbook programėlyje, 2024)

24 pav. „Vievio“ sanatorinė misko mokykla; Dvaro g. 1, Paneriai. IIa. Planas naujo patalpų išdėstymas (autorės iliustracija, suproektuota SketchUp programėlyje, 2024)

25. IIa. Planas. Darbo/Mokslo zona detalizacija.. Medžiagos išdėstimas (autorės iliustracija, suproektuota SketchUp ir iArtbook programėlyje, 2024)

26. IIa. Planas. Vaikų kambaris be tėvų. Medžiagos išdėstimas (autorės iliustracija, suproektuota SketchUp ir iArtbook programėlyje, 2024)

27. IIa. Planas. Darbo/Mokslo zona (autorės iliustracija, suproektuota SketchUp ir iArtbook programėlyje, 2024)

28. IIa. Planas. Vaikų kambaris be tėvų. (autorės iliustracija, suproektuota SketchUp ir iArtbook programėlyje, 2024)

29. IIa. Planas. Šeimos kambaris, tėvai + vaikai.. Medžiagos išdėstimas (autorės iliustracija, suproektuota SketchUp ir iArtbook programėlyje, 2024)

30. IIa. Planas.Šeimos kambaris, tėvai + vaikai. (autorės iliustracija, suproektuota SketchUp ir iArtbook programėlyje, 2024)

31 pav. „Vievio“ sanatorinė misko mokykla; Dvaro g. 1, Paneriai. IIIa. Planas naujo patalpų išdėstymas (autorės iliustracija, suproektuota SketchUp programėlyje, 2024)

32 IIIa. Planas. Biblioteka.. Medžiagos išdėstimas (autorės iliustracija, suproektuota SketchUp ir iArtbook programėlyje, 2024)

33. IIIa. Planas.Biblioteka. (autorės iliustracija, suproektuota SketchUp ir iArtbook programėlyje, 2024)

108
109
110
111
112

Turn static files into dynamic content formats.

Create a flipbook
Issuu converts static files into: digital portfolios, online yearbooks, online catalogs, digital photo albums and more. Sign up and create your flipbook.