Monika Valuntaitė "Žirgyno komplekso interjero projektas"

Page 1

Žirgyno komplekso interjero projektas

VILNIAUS DAILĖS AKADEMIJOS VILNIAUS FAKULTETO

INTERJERO DIZAINO KATEDRA

Monikos Valuntaitės

Žirgyno komplekso interjero projektas Baigiamojo bakalaurinio darbo aiškinamasis raštas

Interjero dizaino studijų programa. Valstybinis kodas Bakalaurantė: Monika Valuntaitė

2019-05-30

Darbo vadovas: doc. Dalius Striukas 2019-05-30

Tvirtinu. Katedros vedėjas doc. Rokas Kilčiauskas 2019-05-30

Vilnius. 2019

TURINYS

UŽDUOTIS

LOKACIJA

SITUACIJOS PLANAS PIRMO AUKŠTO PLANAS ANTRO AUKŠTO PLANAS INSPIRACIJOS KONCEPCIJA GARDAI SU UŽDARU PRAĖJIMO TAKU Į MANIĖŽĄ

GARDO DETALIZACIJĄ GARDŲ AKSONOMETRIJA IR VIZUALIZACIJOS BALNOJIMO ZONOS PAGRINDINĖ ARENA MANIEŽO SIENELĖS DETALIZACIJA UŽDAROS ARENOS AKSONOMETRIJA MANIEŽO VIZUALIZACIJA TRIBŪNŲ ZONA PIRMAS AUKŠTAS. PLANAS TRIBŪNŲ ZONA ANTRAS AUKŠTAS. PLANAS TRIBŪNŲ ZONOS IŠKLOTINĖ IR VIZUALIZACIJOS TEISĖJŲ ZONA

VIP ZONA RAITELIAMS REISĖJŲ IR VIP RAITELIŲ ZONOS PJŪVIS IR PARINKTYS RAITELIŲ PERSIRENGIMO ZONA APARTAMENTŲ PIRMAS AUKŠTAS APARTAMENTŲ ANTRAS AUKŠTAS APARTAMENTŲ BENDRAS PJŪVIS ŠALTINIAI

Baigiamajam darbui pasirinktau šiuo metu ruošiamą architektūrinį projektą - žirgyno kompleksą, indvidu alų užsakymą, kuris bus statomas Alytaus rajone. Šią krypti pasirinkau, dėl ilgos praktikos žirgų sporte, meilės šiems gyvūnams ir noru populiarinti šį nuos tabų sportą Lietuvoje. Interjero projekto tikslas - suprojektuoti funkcines erdves, skirtas žirgų laikymui ir priežiūrai, žirgo bei rait elio treniravimui, pramoginiam pasijodinėjimui bei nacionalinių ir tarptautinių varžybų organizavimui.

UŽDUOTIS

Nemunas

Ulonųg

Žirgyno komplekso statyboms numatyta ypatingai graži lokacija apsupta miškų, laukų, ežerų ir šalia esančio nemuno. Aplinka tinkanti poilsiautojams, turistams pritraukti bei žinoma žirgams laikyti, kurie natūraliai auga ir gyvena gamtoje.

LOKACIJA
.
10km Alytus

Aikštelė žirgų sunk vežimiams

Automobilių aikštelė žiūrovams

Apšiliminė lauko arena Pagrindinė lauko arena

Automobilių aikštelė privatininkams, raite liams

Žirgyno komplekse numatyti keli patekimai į pagrindines erdves: du į arklides, 5 į apartamentus, 2 į uždarosios arenos tribūnas ir vienas į raiteliams bei teisėjams skirtas patalpas. Numatytos automobilių parkavimo vietos - trys atskiros stovėjimo aikštelės: žiūrovams, raiteliams - pri vatinkams, kurie nuomuoja gardus savo žirgams ir varžybų metu atvykstanties specialiems žirgų sunk vežimiams. Apartamentų svečiams įrengti požeminiai garažai. Šalia sunkvežimių aikštelės numatyta lauko pagrindinė ir apšiliminė arenos vasaros sezono metu.

Į arklides Į arklides Į teisėjų ir VIP raitelių zoną
Į apartamentus SITUACIJOS PLANAS ( SKLYPAS )

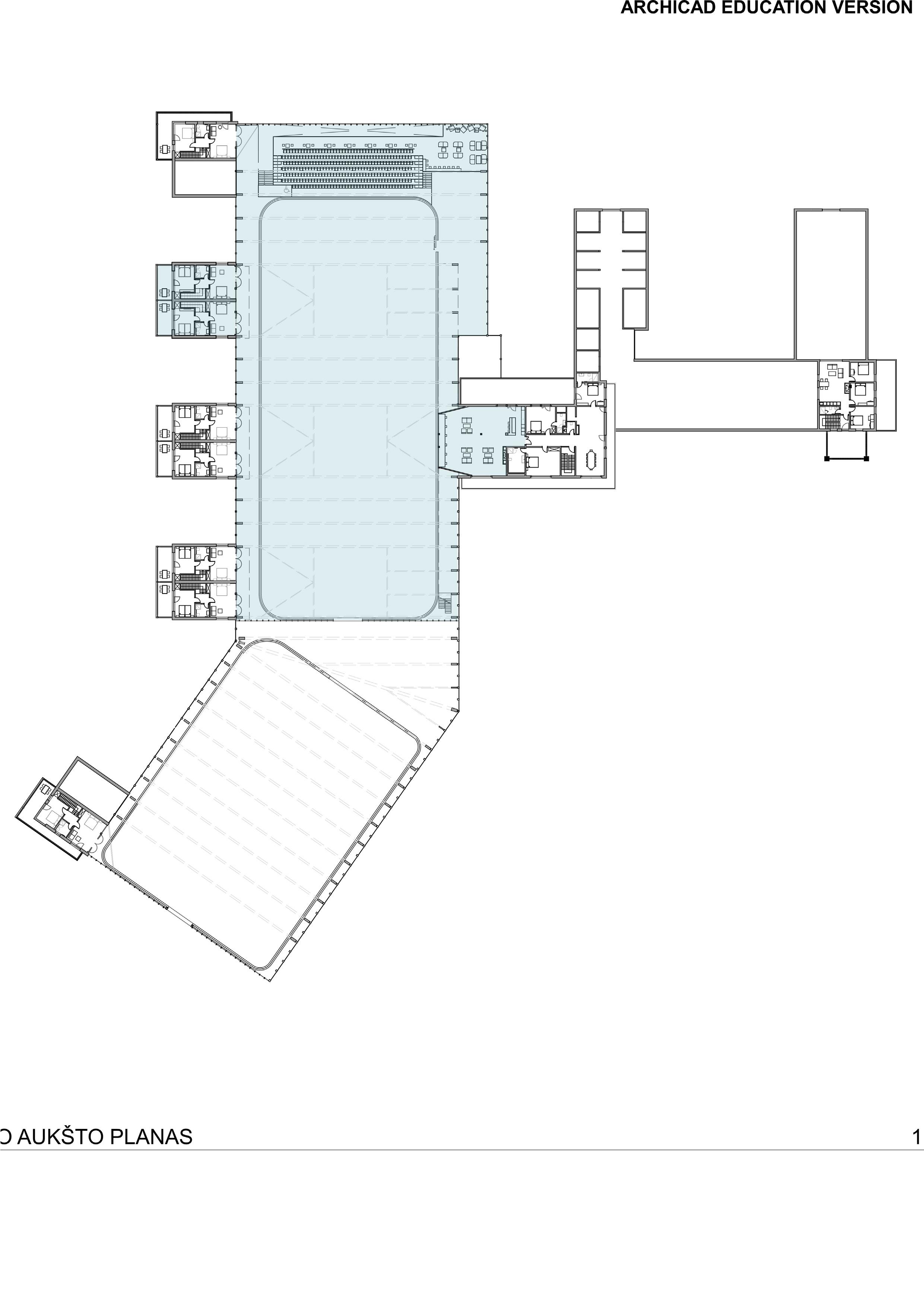
1 AUKŠTO PATALPU EKSPLIKACIJA

Nr. Pavadinimas

1-1 Laiptinė

1-2 Holas

1-3 Raitelių zona

1-4 Teisėjų zona

1-5 San. mazgas

1-6 1-ma arklidė

1-7 2-ra arklidė

1-8 Gūnių skalbimo ir džiovinimo patalpa

1-9 San. mazgas

1-10 Laiptinė

1-11 Personalo darbo kambarys

1-12

1-13

1-14 1 Balninė

1-15 2 Balninė

1-16 Koridorius

1-17 Pasiruošimo - balnojimo erdvė

1-18 Pašarinė

1-19 Avižų skaldymo įranga

1-20 Uždaras praėjimo takas iš arklidžių į maniežą.

1-21 Holas

1-22 Koridorius

1-23 Tribūnos

1-24 San mazgas

1-24 Rūbinė

1-25 Kavinė - baras

1-26 Apartamentai

1-27 Apartamentai

1-28 Apartamentai

1-29 Apartamentai

1-30 Apartamentai

1-31 Lounge terasa

1-32 Pagrindinė arena

1-33 Apšiliminė arena

Plotas

PIRMO AUKŠTO PLANAS

2 AUKŠTO PATALPU EKSPLIKACIJA

Nr. Pavadinimas

2-1 Laiptinė

2-2 Sportininkų apgyvendinimo kambarys

2-3 Sportininkų apgyvendinimo kambarys

2-4 Teisėjų apgyvendinimo kambarys

2-5 Salionas

2-6 VIP raitelių zona su virtuvėle

2-7 Personalo kambarys

2-8 Personalo kambarys

2-9 Personalo kambarys

2-10 Laiptinė

2-11 San. mazgas

2-12 Tribūnų zona

2-13 Lounge zona

2-14 Apartamentai

2-15 Apartamentai

2-16 Apartamentai

2-17 Apartamentai

2-18 Apartamentai

Plotas

ANTRO AUKŠTO PLANAS

Olandų architekto Hans van Heeswijk namas.

Architekto Mecanno “Keukenhof” parkas Olandijoje.

“Carpe Diem” žirgyno centras Olandijoje.

Savo projektui inspiravausi Olandų architektūra ir interjerais, kurie perteikia šiuolaikiškumą ir modernumą. Kadangi pasirinkau naujai projektuojamą pastatą - vienas iš tiklų: įnešti į projektą šiuolaikiškų interjerinių sprendimų, naujovių ir šviežumo.

INSPIRACIJOS

Pastato paskirtis ir lokacija jau duoda savo koncepciją ir autentiškumą:

Žirgų sportas pasižymintis elegantiškumu, tikslumu ir tobulėjimu - projekte perteikiamas per subtilumą, prabangą ir modernumą.

Sukuriama švari ir rami aplinką sportininkų bei sportinių žirgų ruošimui ir treniruotėmis - kuriama min imalistinė estetika, kuri atsispindi organiškomis formomis, saikingu interjerinių elementų naudojimu, neutraliomis spalvomis.

Lokacija, kurioje pastatas įsikūręs, apsuptas gamta pabrėžia - natūralumą. Interjero projekte naudojamos natūraliomis medžiagos - betonas, natūralus akmuo, medis, akmuo, oda.

SUBTILUMAS ODAPRABANGA MODERNUMASNATŪRALUMAS
KONCEPCIJA

Planas. M 1:300

Virš praėjimo tako pakabinamas Deltalight švi estuvas. Modelis: Super - Oh! 120 SBL DIM5

“Deltalight” paka binamas šviestuvas virš balnojimo erdvių. Modelis: SUPERNOVA LINE SR 25483 DIM5

“Deltalight” sie ninis šviestuvas. Modelis “HEDRA 62 W DOWN-UP Hi”, baltas.

“Deltalight”LED ileidžiami šviestuvai lubose virš praėji mo tako. Modelis: “STREAMLINER TRIMLESS profile”

Stoglangiai “LAMI LUX Glass Roof PR60”

100% perdirbta guma. Grindų dan ga. Praėjimo takui į maniežą, žirgų gardų grindų danga - viduje ir lauke.

Planas. M 1:100

Projektuojamas žirgo gardas atsižvelgiant į žirgo poreikius ir saugumą. Gardo konstrukcijos užapvali namos, nepaliekami aštrūs kampai - taip sumažinda mi tikimybę žirgui susižeisti. Į gardus integruojami karštai cinkuoti ir milteliniu būdu padengti plieno elementai. Naudojama HPL ąžuolo plokštė, kuri yra atspari braižymui, aukštomis bei žemomis tem peratūromis, cheminėms medžioagoms, kuriomis yra dezinfekuojami gardai. Vidaus gardai (3500 X3700mm) taip pat turi išėjimą į lauko aptvarą. (5000 X 3400mm). Tiek viduje tiek išorėje dengia ma 100% perdirbta guma, kuri neperleidžia šalčio ir suteikia žirgui komfortabilų stovėjimą ant minkštos dangos. Gardas formuojamas su nuolydžiu į trapą skirtą vandeniui subėgti. Įmontuojama automatinė žirgo girdykla bei atsukamos ėdžios, kurios sudaro galimybę personalui pašerti žirgus iš išorinės gardo fasado pusės, neįėjus į vidų. Gardo fasade įmontu ojamas metalinis laikiklis skirtas gūnioms ir pobal niams pasikabinti bei suprojektuojama niša žirgo galvai iškišti - suteikiant galimybę jam socializuotis.

Gardo pertvaros priekinėje dalyje montuojama 1m HPL plokštė, kuri uždengia šalia esančio kaimyno matomumą - taip sustabdydamą galimybę pulti ar kąsti šalia esantį kaimyną dėl pašaro.

Grindinio trinkelė “GTB 12-8” “Truk mė”

GARDAI SU UŽDARU PRAĖJIMO TAKU Į MANIEŽĄ
GSPublisherVersion 99.0.95.100 GSEducationalVersion A5 Automatinė girdykla Atsukamos ėdžios Durys išėjimui lauką Lauko aptvaras (5500 X 3400mm.) Gardas (3500 x 3700mm) 2 0o Guminė danga Laikiklis gūnioms 3250 1100 Gardo fasadas 0. 1:100 A5 Automatinė girdyklaAtsukamos ėdžios. Laikiklis inventoriui. GSPublisherVersion 99.0.95.100 GSEducationalVersion A5 Automatinė girdykla Atsukamos ėdžios Durys išėjimui į lauką Lauko aptvaras (5500 X 3400mm.) Gardas (3500 x 3700mm) 2 0o Guminė danga Laikiklis gūnioms 3770 Gardo1050 pertvara 3250 1100 Gardo fasadas 0. 1:100 A5 1 50 1:50 GSPublisherVersion 99.0.95.100 GSEducationalVersion A5 Automatinė girdykla Atsukamos ėdžios Durys išėjimui lauką Lauko aptvaras (5500 X 3400mm.) Gardas (3500 x 3700mm) 2 0o Guminė danga Laikiklis gūnioms 3770 Gardo1050 pertvara 3250 1100 Gardo fasadas 0. 1:100 A5 1 50 1:50 100% perdirbta guma. Grindų danga. Milteliniu būdu padengti spalva RAL 9004 plieno ele mentai HPL plokštė gardo fasadui ir pertvar oms.
Išklotinės.
M 1:50

Gardo su išėjimu

Vidaus gardo aksonometrija
į
lauko aptvarą aksonometrija

Virš praėjimo tako pakabinamas Del talight šviestuvai.

Modelis: “Super - Oh! 120 SBL DIM5”

“Fagerhult” įmon tuojami į lubas šviestuvai virš žirgo pasiruošimo, balno jimo vietų. Modelis: Notor recessed LED Delta

Išklotinė. M 1:100

“Deltalight” sie ninis šviestuvas. Modelis “HEDRA 62 W DOWN-UP Hi”, baltas.

“Deltalight” įleidžia mas į lubas apšvi etimas balninėse.

Modelis : GYN

1 FRAME + GYN

SNAP-IN 9-SOFT DIM

Grindinio trinkelės GTB 128: prėjimo takams.

Lubų apdaila dekoratyvinėmis baltomis medžio lentutėmis.

“Caparol” Ekologiš ka, skiedžiama vandeniu, poliuretaninė medžio dažyvė. Balta spalvamedžio kolonom.

Raudonų plytų sienelė balnojimo zonų perskyrimui dažoma taip pat baltai.

100% perdirbta guma. Grindų danga balnoji mo zonose.

Stoglangiai “LAMI LUX Glass Roof PR60”

Pakabinamas žirgų soliariumas

Planas. M 1:150

4 1:150

Balnojimo zona skirta žirgam pasiruošti ir prižiūrėti prieš ir po treniravimo. Priskiriamos trys vietos - žirgų pa siruošimui, viena vieta - žirgų soliariumui ir dvi - žirgų dušui.

Kadangi ši zona funkciškai reikalauja daug šviesos, apšviet imas parenkamas taip, kad visos zonos būtų pakankamai apšviestos. Virš praėjimo tako pakabinami prabangūs bei modernūs “deltalight” šviestuvai, virš pasiruošimo vietų į lubas montuojama LED “Fagerhult” apšvietimo sistema, o jaukumui suteikti ant dažytų kolonų pritvirtinami “Del talight” sieniniai šviestuvai. Žirgų stovėjimo vietos dengiamos specialia 100% perdirb ta guma, tam kad žirgas neslydinėtų, stovėtų stabiliai ir minkštai. Įrengiama dušo sistema žirgams maudyti, taip pat šalia pakabinamas žirgų soliariumas, kuris atlieka džiovinimo, šildymo, tuo pačiu raumenų atpalaidavimo funkciją.

Jaukiai ir ramiai atmosferai sukurti, naudojami neatralūs atspalviai, dominuoja: balta ir pilka spalvos, paliekama autentiška mūro sušildanti aplinkos atmosferą.

Laikiklis kamanoms montuojamas į sieną

Atlenkiamas laikiklis balnams montuoja mas ant kolonų.

Žirgo dušo prausimo sistema. Montuoja ma prie sienos.

“Horsemarket” Ilgi metaliniai pariši mai žirgui. Metalas aptrauktas skaidriu, minkštu plastiku. Su spec. užsegimu.

GSPublisherVersion 125.0.93.100 GSEducationalVersion 2 0 o 2 0 o 2 0 o 2 0 o 2 0 o 2 0 o
BALNOJIMO ZONOS

Arenos paka binamas švi estuvas:“Thorn lighting “LED švi estuvas “Glacier

“Deltalight” paka binamas šviestuvas virš terasos. Mod elis: SUPERNOVA

SR 25483

Planas. M 1:500

Projektuojama pagrindinė uždaroji arena, skirta žie mos sezonui treniruotis ir rengti varžybas. Matme nys bei dydis nustatytas pagal tarptautinių varžybų arenos standartą: Su maniežu yra sujungti apartamentai, per kurių vitrininius langus yra galimybė matyti maniežą, bei patekti į terasą, kurioje apartamentų svečiams yra įrengti minkštasuoliai su kavos staliukais. Priešais apartamentus suprojektuojama vitrininė zona skirta teisėjams bei raiteliams - privatininkams - laikanties žirgus šioje bazėje.

Arenai yra parenkamas Spec gruntas, skirtas žirgų sportui. Jis sumažina dulkių kiekį, palaiko drėgmę - taip pat ir sumažindamas vandens poreikį. Puikus stabilumas. Tinkamas gruntas ir idealus amortiza vimas sumažina krūvį žirgo kojoms. Idealiai tinka sportinių žirgų ruošimams - treniruotėms, aukšto lygio varžyboms, didelėms apkrovoms. Profesiona liai sukonstruota bazė ir drenažo sistema optimi zuoja specialų gruntą.

Arenos apšvietimui naudojami galingi 135 lm/W Thorn lighting LED pakabinami šviestuvai, aplink arena - maniežo sienelės apačioje projektuojamas slystantis apšvietimas: įmontuojami LED profiliai, kurie paryškina arenos kontūrą bei dydį. Virš ter asos įrengiami pakabinami Deltalight šviestuvai ir pakabinmos šildymo lempos.

Pjūvis.

Pjūvis.

Stoglangiai “LAMI LUX Glass Roof PR60” Aliuminiai LED Profiliai STOSAlu. naudoja mas maniežo sienelės, akcentiniam ir apšvietimui kurti.

“cliff sofa”. Gamintojai “Modloft”. Tamsiai mėly nos odos

“Menu” kavos staliukas. Modelis: “Plinth cubic”

PAGRINDINĖ ARENA
II LED”
LINE
DIM5
M 1:25
M 1:25 Detalė ,,A”. M 1:10

Pagrindinė

Tamsiai

Apšiliminė arena „ProTex“ gruntas yra pagamintas iš 70% tekstilės ir 30% pluošto ir sumaišytas su spe cialiu smėliu mišiniu. Geriausia yra smulkus silicio dioksidas su dalinėmis kampinėmis dalelėmis. (Speciali smėlio gradacija)
arena
pilki aliu minio profiliai Teisėjų ir VIP rait elių zona UŽDAROS ARENOS AKSONOMETRIJA Loung’e zona Tribūnos
ARENOS VIZUALIZACIJA

Planas. M 1:250

Projektuojamas naujadaras - tribūnų erdvė, kuri įtraukia į projekto siužetą dar vieną veikėją - žiūrovą. Pirmame aukšte įrengiama rūbinė, san. mazgas ir kavinė - mini baras skirtas aprūpinti žiūrovą gėrimais ir užkandžiais. Norint kavinės zonai suteikti lengvumo ir skaidrumo įspūdį, vienoje pusėje montuojama vitrina, kitoje - iškertama anga sudarydama galimybę žiūrovoj prieiti prie baro ne tik iš vidinės bet ir iš išorinės pusės.

Naudojami modernūs, subtilumu pasižymintys “Menu” baldai, o siena iš abiejų pusių dekoruojama gar saus menininko Bénédicte Gelé’s paveikslų “ALERT VIII” ir “Equi nude 38 t” fototapetais.

TRINŪNŲ ZONA II - AUKŠTAS

Planas. M 1:250

Išlaikant vientisumą pagrindinis apšvietimas projektuojamas nuo lubų LED šviestuvais kaip ir virš arenos, o jaukesniam zoniniam apšvietimui pastatomi toršerai ir pakabinami “west elm” šviestuvai. Įrengiamas specialus laiptų apšvietimas. LED šviestuvai nešvaisto elektros energijos ir neskleidžia mūsų akimis nematomų ir net kenksmingų spin dulių, o taip pat neskleidžia šilumos.

TRIBUNU PLANAS 2 AUKSTO

Menu pa kabinamas šviestuvas virš baro

Pašvietimas laiptams Sieniniai šviestuvai Apšvietimas san. mazgam LED įgilintas lu bose. Rūbinės ir ir kavinės apšvietimas

Bénédicte

Gelé’s: “Equi nude 38 t”

Bénédicte Gelé’s: “ALERT VIII”

“West Elm” paka binamas šviestuvas. virš loung’e zonos.

“ARTEMIDĖ” švi estuvas. Modelis: “Tolomeo”. Pastato mas loung’e zonoje

Arenos apšvietimas Glacier II LED. Iki 135 lm/W

Pašvietimas laiptams

“cliff sofa”. Gamintojai “Modloft”. Tamsiai mėlynos odos

“Plinth, cubic” kavos staliukas “Menu”

“Menu” baro stalas. “Harbour Column Bar Table”

“Menu” baro kėdė

“Menu” kėdė

“Menu” stalas. “Snaregade Ta bles, Oval”

“cliff sofa”. Gamintojai “Modloft”. Tamsiai mėlynos odos

“Menu” lounge kėdė

“Menu” stalo kėdė “Menu” kavos staliukas.

10 ++0,00+0,50 1,60 TRIBUNU 1 AUKSTO PLANAS 1:250
TRINŪNŲ ZONA I- AUKŠTAS
GSPublisherVersion 134.0.92.100 GSEducationalVersion
Pjūvis. M 1:100

“Menu” paka binamas šviestuvas virš teisėjų stalo.

Pendant”

Deltalight pakabinamas šviestuvas “Su perdrome”

Deltalight paslėptas apšvietimas.

Planas.

Teisėjų zona - skirta varžybų metu vykstančiam teisėjų darbui. Fasadas įstiklinamas iš priekio ir šonų, patalpa įsikiša į maniežo pusę, tad matomumas teisėjams puikiai pritaikomas iš įvairių rakursų.

Įrengiami ne tik darbo stalai su ofiso kėdėmis, bet taip pat odinės gaminto jų “Modloft” sofos su staliukais poiliui pertraukų metu.

Dominuoja minimali estetika: lengvi atspalviai, natūralios medžiagos bei subtilios formos. Autentiškos pušies kolonos dažomos baltai, grindys kloja mos “Linea” akmens masės plytelėmis, o židinio sienos apdailai ir atmosferai sušildyti naudojamos rūdinto metalo plytelės.

Erdvės akcentas - skultūriški spiraliniai laiptai, projektuojami iš nerūdijančio plieno, o jo sienelė išperforuojama bėgančių žirgų siluetais.

“Menu” kavos staliukas.

“cliff sofa”. Gamintojai “Mod loft”. Rudos odos

“Menu” lounge kėdė “Menu” kėdė: “Harbour swivel”

Projektuojami nerūdi jančio plieno spiraliniai laiptai, išporfuruoti be gančių žirgų siluetais.

GSPublisherVersion 130.0.93.100 GSEducationalVersion 1:100
M 1:100
“Task
“GYN 1”
TEISĖJŲ ZONA +4,00 0,00+

Menu pa kabinamas šviestuvas virš baro

Pašvietimas laiptams

Deltalight pakabinamas šviestuvas “Su perdrome”

Planas. M 1:100

Naudojami atspindintys vitrininiai stiklai. Stiklų paviršius yra padengtas pirolitine atspindinčia danga. Tokio tipo danga atspari atmosferos poveikiui. Atspindin tis arba dar kitaip vadinamas veidrodi nis stiklas suteikia klientams privatumo pastato viduje ir kartu apsaugo nuo nepageidaujamo perteklinio patenk ančio matomos šviesos srauto. Nau dojami Glass.lt Super Silver (sidabrinis neutralus atspindys) atspindintys stiklai.

“Menu” kavos staliukas.

Deltalight paslėptas apšvietimas.

“GYN 1”

“cliff sofa”. Gamintojai “Mod loft”. Rudos odos

“Menu” baro kėdė

“Menu” lounge kėdė

DW F F F
VIP ZONA RAITELIAMS

Išklotinė. M 1:100

Perforuotas metalas - laiptų konstruk cijai.

Planas. M 1:100

Projektuojama rūbinės - vyrų ir moterų . Rūbinėse suprojektuojamos spintelės rūbams bei avalynei susidėti, įrengiami dušai ir san. mazgai. Ant vienos laisvos sienos montuoja mas didžiulis veidrodis.

Išlaikydama vientisą stilistiką, naudojamas ramus koloritas pabrėžiamos struktūriškos, aiškios linijos. Vientisa kryptimi lubose įmon tuojamas “deltalight” LED profilis patalpos apšvietimui. Grindys taip pat iš spintelių apačios LED profiliais.

Išklotinė. M 1:50

“Deltalight” įmontuojami į dušo erdves šviestuvai. Modelis: “Supernova line trimless”

“Deltalight” įmontu ojami į dušo erdves šviestuvai. Modelis: “Supernova line”

“Deltalight”LED ileidži ami šviestuvai lubose. Modelis: “STREAMLINER TRIMLESS profile”

Marazzi ak mens masės plytelės

Akriliniai dažai sienai Natūrali medžio faneruotė ąžuolas

Kronospan šviesiai pilkas laminatas spintelėms

TEISĖJŲ IR RAITELIŲ VIP ZONA GSPublisherVersion GSEducationalVersion 660 30 1 1
RAITELIŲ PERSIRENGIMO KAMBARYS

Planas. M 1:100

APARTAMENTAI 1 AUKSTAS

Deltalight pakabinamas šviestuvas “Su perdrome”

Menu pa kabinamas šviestuvas virš baro

LED įgilintas lu bose. Rūbinės ir ir kavinės apšvi etimas

“Deltalight” įmontuo jami į lubas šviestuvai, pakreipiami norima kryptimi. Modelis: “SP LITBOX SPOT”

Bénédicte Gelé’s dailininkės paveiks las sienos apdailai

Akmens masės plytelės sienos apdailai

HPL Krono spam: ąžuo las virtuvės baldam.

HPL Krono spam Dark grey

Projektuojama zona numatyti svečiams apgyvendinti. Numatyti 5 apartamentų namai su įstiklintu fasa du į žirgų arenos pusę. Pirmame aukšte: salionas su virtuve ir san. mazgu. Apartamentuose išlaikoma vientisa stilistika: minimalizmas ir struktūriškos aiškios linijos. Naudojami atspindintys vitrininiai stiklai. Stiklų paviršius yra padengtas pirolitine atspindinčia danga. Tokio tipo danga atspari atmosferos pov eikiui. Atspindintis arba dar kitaip vadinamas veidrodinis stiklas suteikia klientams privatumo pastato viduje ir kartu apsaugo nuo nepageidaujamo perteklinio patenkančio matomos šviesos srauto. Naudojami Glass. lt Super Silver (sidabrinis neutralus atspindys) atspindintys stiklai.

1:100

GSPublisherVersion 120.0.93.100 GSEducationalVersion 1 2 3 4 5 6 7 8 9 14 15 16 17 18 250 18 181 = 3 250 1 2 3 4 5 6 7 8 9 10 11 12 13 14 250 14 196 2 750 1 2 3 4 5 6 7 8 9 14 15 16 17 250 17 191 = 3 250 1 2 3 4 5 6 7 8 9 10 11 12 13 25014 14 196 2 750
APARTAMENTŲ 1 AUKŠTAS

Antrame aukšte nu matyti du miegamieji ir san. mazgas su dušu. Naudojamos neutralios švelnios spalvos: balta ir pilka, natūralios medžia gos: akmuo, medispadaro erdvę šviesią bei jaukią - kuri asocijuojasi su ramybės oaze.

Planas. M 1:100

APARTAMENTAI AUKSTAS 1:100

“Menu” pastatomas šviestuvas “Menu” pastatomas šviestuvas

“Deltalight” įmontu ojami į dušo erdves šviestuvai. Modelis: “Supernova line”

“Deltalight” įmontuo jami į lubas šviestuvai, pakreipiami norima kryptimi. Modelis: “SP

LITBOX SPOT”

Kronospam

White matt laminatas spintai

Nat. ąžuolo apdaila

„Kone“ keraminių ir akmens masės plytelių kolekcija blizgiu paviršium.

GSPublisherVersion 120.0.93.100 GSEducationalVersion 1 2 3 4 5 6 7 8 9 10 11 12 13 14 15 16 17 1 2 3 4 5 6 7 8 9 10 11 12 13 14 15 16 17 18
APARTAMENTŲ 2 AUKŠTAS

https://www.fagerhult.com https://www.deltalight.com http://www.svt.lt http://www.thornlighting.com https://premierequestrian.com http://roewer-rueb.com https://us.kronospan.com http://www.cooperindustries.com http://www.corton.eu https://www.architonic.com www.trukme.lt http://www.linea.lt https://menu.com https://www.vitra.com www.artemide.com http://www.sunamus.lt https://www.saatchiart.com www.alfako.pl exterus.lt https://www.rubisolis.lt

Anelogų analizė: https://www.archdaily.com/ https://www.dezeen.com/ https://www.carpediemeqt.com/ https://horsemarket.lt/lt/jojimo-prekes https://www.pinterest.com

ŠALTINIAI

Turn static files into dynamic content formats.

Create a flipbook
Issuu converts static files into: digital portfolios, online yearbooks, online catalogs, digital photo albums and more. Sign up and create your flipbook.
Monika Valuntaitė "Žirgyno komplekso interjero projektas" by VAA Interior design department / VDA Interjero dizaino katedra - Issuu