G.Lebednykaitė "Kaip tinkamas interjeras gali padėti pagerinti vaiko emocinę būseną gydymo įstaigoj"

Page 1

Vilniaus dailės akademijos Vilniaus fakulteto interjero dizaino katedra

Kaip tinkamas interjeras gali padėti pagerinti vaiko emocinę būseną gydymo įstaigoje.

Vaikų reabilitacijos centro „Pušyno kelias“ atvejis

Gabrielės Lebednykaitės baigiamojo bakalauro darbo aiškinamasis raštas Inerjero dizaino studijų programa, Valstybinis kodas 6121PX017

VILNIAUS DAILĖS AKADEMIJOS

VILNIAUS FAKULTETAS

INTERJERO DIZAINO KATEDRA

GABRIELĖ LEBEDNYKAITĖ

KAIP TINKAMAS INTERJERAS GALI PADĖTI PAGERINTI VAIKO EMOCINĘ BŪSENĄ GYDYMO ĮSTAIGOJE. VAIKŲ REABILITACIJOS CENTRO „PUŠYNO KELIAS“ ATVEJIS

BAKALAURO BAIGIAMASIS DARBAS

Interjero dizaino studijų programa, valstybinis kodas 6121PX017

Bakalaurantė: Gabrielė Lebednykaitė (parašas) (data)

Darbo vadovas( ė): doc. Saulius Vingras (parašas) (data)

Tvirtinu, katedros vedėjas: doc. Rokas Kilčiauskas (parašas) (data) Vilnius, 2022

SANTRAUKA

Reabilitacijos centro „Pušyno kelias“ vaikų skyriaus erdvių humanizavimas. Siekiama kuo labiau pritaikyti pastato erdves jauniesiems pacientams iki 18 metų. Projektuojant gydymo įstaigos interjerą yra atsižvelgiama į šiuos kriterijus: personalizuotų erdvių trūkumas, funkcinis mastelis, kvapas, apšvietimas, spalvos, medžiagiškumas bei forma.

Humanising the spaces of the children's rehabilitation centre "Pušyno kelias". The aim is to make the building as accessible as possible for young patients up to 18 years old. The following criteria are taken into account when designing the interior of the facility: lack of personalised spaces, functional scale, smell, lighting, colours, material and form.

TEORIJA

ERDVĖS

Aktualumas Streso priežastys Straipsniai Analogai Vaikų ligoninė OBJEKTAS Tikslas ir uždaviniai „Pušyno kelias“ Lokacija Esama situacija Pakeitimai Pastato zoavimas Planai Pjūvis
Idėja Registratūra Koridoriai Baseinas Žaidimų kambarys Palata San.mazgas Vidinis kiemelis Išvados šaltiniai 5 6-7 8-9 10 11 12 13 14 15 16 17 18 23 24 27 28-30 31 33 34 37 38 39 40 41 42 49 50 55 56 61 62 67 68 77 78 83 84 85 86-87 88-89

AKTUALUMAS

Lankymasis gydymo įstaigose – viena nemaloniausių procedūrų, keliančių baimę ir nerimą nuo pat vaikystės. Dažniausiai šią baimę sukelia neigiamos asmeninės arba kitų patirtys. Suauge blogus prisiminimus, mintis slopina. Vaikams emocijas slėpti yra sunku. Norėdami išvengti stresą keliančio įvykio, jie ima gintis: verkti, rėkti, spyriotis ar dar kitaip rodyti nepasitenkinimą ir nenorą. Jaučiamas stiprus nerimas ir baimė gydymo įstaigoms gali suformuoti lankymasį kaip traumuojantį įvykį. To pasekoje, suaugus nors ir slopinsime emocijas ir neigiamas mintis, stengsimės atidėlioti lankymąsį pas gydytoją ir nesikreipsime dėl mums atrodančių mažų ir nereikšmingų problemų. Kas gali sukelti traumų ar ligų paūmėjimą.

5

DAŽNIAUSIAI STRESĄ KELIANČIOS PRIEŽASTYS:

Nepažįstama aplinka

Buvimas be tėvų/ globėjų

Aplinkoje esantis vizualinis chaosas Mintys apie skausmą gydymo/ procedūrų metu Akivaizdžiai matoma gydymo įranga Poilsio zonų nebuvimas Nepasiekiamumas aukštesni ir didesni tūriai erdvėje

6 7

Sušvelninti neigiamą požiūrį į gydymo institucijas padeda tinkamas supažindinimas su gydymo procesu, jo svarba bei tinkamas atmosferos sukūrimas. Šį teiginį paremia analizuoti straipsniai, kuriuose aprašomi tyrimai, skirti išsiaiškinti dizaino svarbą medicininėms įstaigoms ir poveikį pacientams. Anot HERD (Health Enviroments Research & Design Journal) straipsnio “Influence of Positive Distractions on Children in Two Clinic Waiting Areas” tinkamai suprojektuotas interjeras, parinkti dirgikliai ne tik padės vaikui jaustis jaukiau, bet taip pat padės tėvams nuraminti vaiką, jį užkalbėti ar dar kitaip nukreipti mintis kuo toliau nuo vyraujančios baimės. Taip streso mažiau patirs tėvai, personalas bei patys vaikai.

Remiantis Today straipsniu, kuriame buvo aptariama Schneider vaikų medicinos centras Izraelyje buvo paminėta, jog nusiraminusiems vaikams reikia naudoti mažiau vaistų nuo skausmo, jie rečiau blogai reaguoja į chemines medžiagas, reikalingas įvairiems tyrimams atlikti

8 9

PEDIATRIJOS KLINIKA „Doctor U.“ KIJEVAS, UKRAINA

ARCHITEKTAI: Arter. architects 2019

VAIKŲ LIGONINĖ

MELBURNAS, AUSTRALIJA INTERAKTYVI SIENA DIZAINERIS: ENESS ARCHITEKTAI: DesignInc 2016

DANTŲ KLINIKA

ARCHITEKTAI: Font Arquitectura, Vitale METAI: 2021 LOKACIJA: CASTELLÓN DE LA PLANA, ISPANIJA

EKH VAIKŲ LIGONINĖ

ARCHITEKTAI: IF METAI: 2019

LOKACIJA: SAMUT SAKHON, TAILANDAS

Tyrimui buvo pasirinkta dešimt gydymo įstaigų, kurios kreipė didelį dėmesį į patalpų dizainą ir dizaino emocinį poveikį pacientams (ypač vaikams). Analizuojant šiuos analogus buvo išgrynintos esminės gairės, kuriomis vadovaujantis buvo projektuojami medicininių institucijų interjerai. Kuriant tokio tipo erdves specialistai atsižvelgė į vaiko aukščių ir tūrių suvokimą, naudojo pastelines spalvas, stengėsi sudominti pacientą ir nukreipti jo dėmesį nuo nemalonių minčių integruojant interaktyvius sprendinius ar žaidimą interjere.

ANALOGAI 10 11

VAIKŲ SKYRIAUS INTERJERAS

Analizuojant vaikų ligoninės patalpas svarbiausia buvo išsaiškinti kokie interjeriniai sprendiniai yra taikomi vaiko emocinei būklei sušvelninti. Buvo pastebėta, jog daugiausiai šių sprendinių pasitaikydavo koridoriuose. Procedūriniai išlikdavo santūrus, be išskirtinio dizaino elementų. Koridoriuose vaikams buvo padėti ryškūs spalvoti staliukai su piešimo priemonėmis, skirti užimti vaiką kol ateis jo eilė patekti į procedūrinį. Keliuose koridoriuose taip pat atsirasdavo ir vaikiškų piešinių ant sienų, norint įvesti žaismingumo. Patraukti vaikų dėmesį buvo bandoma ir įvairiais gyvūnais: žuvytėmis, vėžliais, gyvalazdėmis ar aksoločiu. Žaidimų kambariai vizualiai nesiskyrė nuo kitų patalpų, jame vaiko užimtumą skatino įvairiais užsiėmimais su auklėtoja, televizoriumi ir aplinkui išdėliotais žaislais.

VILNIAUS UNIVERSITETO LIGONINĖS SANTAROS KLINIKOS
12 13

TIKSLAS IR UŽDAVINIAI

TIKSLAS: Sukurti emociškai malonesnę aplinką gydymo įstaigoje

UŽDAVINIAI:

▪ Naudojantis įvairiais šaltiniais išsiaiškinti kokios priežastys lemia nenorą lankytis medicininėse institucijose

Analizuojant analogus išskirti gaires, kuriomis vadovaujantis yra kuriami gydymo įstaigų erdvių dizainai

Šias gaires taikyti kuriant interjerą pasirinktame objekte

Galutinius interjerinius sprendimus aptarti su specialistu ir padaryti išvadas

OBJEKTAS: reabilitacijos centras „Pušyno kelias“ vaikų skyrius

AMŽIAUS GRUPĖ: pacientai iki 18 metų

14 15

„PUŠYNO KELIAS“, TAI REABELITACIJOS CENTRAS TEIKIANTIS TIEK AMBULATORINES, TIEK STACIONARINES MEDICININĖS REABILITACIJOS PASLAUGAS ASMENIMS IKI 18 METŲ.

SIŪLOMOS PROCEDŪROS:

Haloterapija (druskų kambarys)

Fizioterapija

Kinezoterapija

Ergoterapija

Psichoterapijos užsiėmimai

Krioterapija (šalčio terapija)

Alergologinis

Parafino terapija

Gydomasis masažas

Poliarizuota šviesa (bioptrono lempa)

16 17
MIESTO PLANAS 18 19
PUŠYNO KL. 23 SUAUGUSIŲJŲ SKYRIUS PUŠYNO KL. 25 VAIKŲ SKYRIUSVAIKŲ SKYRIAUS VALGYKLA KALVARIJŲ KRYŽIAUS KELIAS LOKACIJA 20 21
GENPLANAS
KOPLYTĖLĖ PRIKLAUSANTI
KALVARRIJŲ KRYŽIAUS KELIUI
PAGALBINIS
ĮVAŽIAVIMAS Į TERITORIJĄ PATEKIMAS Į PASTATĄ PASIVAIKŠČIOJIMO
TAKAS
22 23

KELIAS“

APLINKA

Vaikų sanatorija įsikūrusi miškingoje aplinkoje, netoli miesto. Lokacija labai tinkanti įstaigai teikiančiai sveikatingumo pasaugas. Ramuma bei gamtos apsuptis emociškai ramina, kelia teigiamas emocijas.

riboja keletas pastatų. Vienas iš jų atskira valgykla, skirta vaikų skyriaus pacientams. Kiti šalimais esantys pastatai yra nenaudojami ir apleisti.

reabilitacijos centro pastato yra vaikų žaidimo aikštelė.

VAIKŲ REABILITACIJOS CENTRO „PUŠYNO
▪ Sanatoriją
▪ Už
.
VALGYKLA
NENAUDOJAMI PASTATAI
VAIKŲ ŽAIDIMŲ AIKŠTELĖ PAGR. ĮĖJIMAS
24 25

VAIK

REABILITACIJOS CENTRO „PUŠYNO KELIAS“

INTERJERAS

Interjere nevengiama ryškių spalvų, jų deriniai naudojami tiek bendrosiose erdvėse, tiek procedūriniuose, bet nors ir patalpos turi spalvos, nėra jokių dėmesį patraukiančių elementų.

Koridoriai siauri ir uždari, minimaliai turintys sėdimų vietų prie kabinetų.

Baldiniai sprendimai paprasti ir neturintys jokio išskirtinio dizaino.

Žaidimo kambario erdvės neišnaudotos. Vaikams nėra kuriama jokia žaisminga struktūra. Paliekamas didelis tuščias plotas.

Pastate trūksta patalpų papildomiems procedūriniams, to pasekoje tenka naudotis suaugusiųjų skyriumi, kas nėra patogu.

Ų
26 27

Atsižvelgiant į iškilusias problemas kaip laisvų erdvių trūkumas bei patalpų procedūriniams nepakankamumas prie esamo pastato projektuojamas papildomas korpusas. To pasekoje dabartinės patalpos taps erdvesnės, susikurs patogesnės ir privatesnės poilsio zonos, atsiras galimybė suprojektuoti trūkstamus procedūrų kabinetus.

PAKEITIMAI
28 29
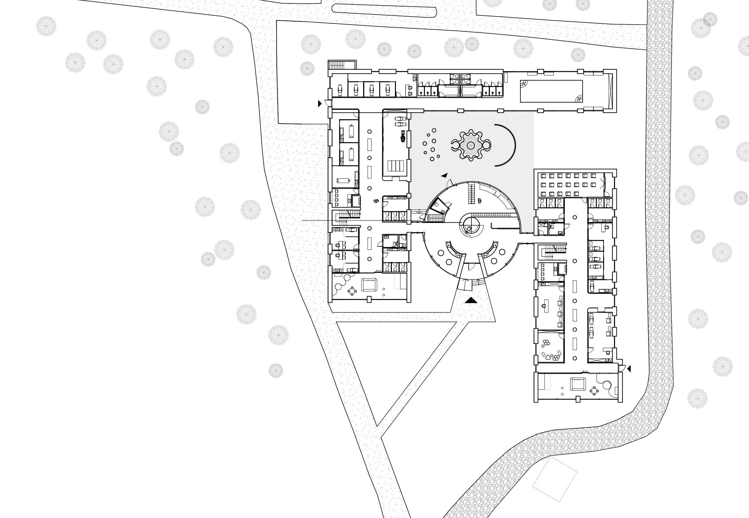
FUNKCINĖ SCHEMA PIRMAS AUKŠTAS KABINETAI SANITARINIAI MAZGAI ŽAIDIMŲ KAMBARYS REGISTRATŪRA POILSIO ZONOS RŪBINĖ BASEINAS KELTUVAS PERSONALO KAMB. M 1:250 M 1:100 TECHNINĖS PATALPOS ESAMO PASTATO RŪSYS RŪSYSIO PATALPOS NAUJAI SUPROJEKTUOTO KORPUSO 30 31

FUNKCINĖ SCHEMA ANTRAS AUKŠTAS

PALATOS

MAZGAI

SAN.
KLASĖS KELTUVASS VIRTUVĖLĖ SKALBYKLA SLAUGYTOJOS KAB. 32 33
PIRMAS AUKŠTAS P1 P1 M 1:200 1 2 3 4 65 7 8 9 10 11 12 13 14 15 16 17 18 19 20 21 22 23 24 25 26 27 28 29 30 31 32 33 Oro užuolaida 34 35
ANTRAS AUKŠTAS M 1:200 1 2 3 4 5 6 7 8 9 10 11 12 13 14 1615 17 18 19 20 21 22 23 24 25 26 27 28 29 30 31 32 33 36 37
M 1:50 PJŪVIS 38 39

FORMA – naudojamos suapvalintos formos, kurios simbolizuoja saugumą, jaukumą bei vizualiai sušvelnina erdvę.

IDĖJA

APŠVIETIMAS be bendro apšvietimo, skirto tinkamai apšviesti patalpas, naudojamas akcentinis bei budintis apšvietimas patalpose, siekiant padaryti erdvę malonesne.

FUNKCINIS MASTELIS vaikui yra suteikiamas pasiekiamumas. Vaikiškam ūgiui yra projektuojami baldai patogiam naudojimuisi.

PERSONALIZUOTA ERDVĖ kuriama daugiau obcijų, susijusių su vaiko veikla laisvu laiku.

KVAPAS naudojant kvapų difuzorius, tinkančius naudoti gydymo įstaigoje yra šalinamas nemalonus kvapas, keliantis neigiamas asociacijas

MEDŽIAGIŠKUMAS naudojamos garsą slopinančios medžiagos

SPALVA kuriamas gamtiškų atspalvių interjeras, vengiama ryškių spalvų.

ĮVAIZDIS bandoma kuo toliau nutolti nuo įprasto „institucinio“ įvaizdžio, kuris kelia neigiamas asociacijas

40 41

REGISTRATŪRA

Registratūros patalpoje naudojami švelnūs ir šilti spalvų tonai, kurie asocijuojasi su jaukumu.

Poilsio vietos šioje patalpoje projektuojamos lanku vaizdu į lauką.

Tai tampa ramia vieta tėvams laukti savo vaikų, kol jie atlikinėja procedūras.

Šalia registratūros stalo, ant šalia esančios sienutės kabo ekranas.

Per jį tiek tėvai, tiek patys pacientai gali daugiau sužinoti apie procedūras, jų laiką ir kitą svarbią informaciją.

42 43
REGISTRATŪRA 44 45
REGISTRATŪRA M 1:25 M 1:20 M 1:25 M 1:25 46 47

REGISTRATŪRA APŠVIETIMAS

LED juostos profilis B01/ lankstus/ baltas

Pakabinamas šviestuvas GRANT Ø35/ 25W/ IP20

Į lubas montuojamas šviestuvas DIRO SBL S 82/ LED FLEX 5.9W/ CRI >80/baltas/ 130x63

48 49

KORIDORIAI

Koridoriai erdvūs, turintys įvairias poilsio erdves. Atviresni atsisėdimai projektuojami tarp kolonų, privatesni nišose. Procedūrinių kabinetų kamapai suapvalinti, jog teiktų saugumo ir pasitikėjimo jausmą. Šiais sprendiniais taip pat norima atsikratyti nemalonaus „institucinio“ įvaizdžio. O jog koridorių patalpose nesijaustume užspausti, dangaus iliuzijai sukurti yra naudojami Faux Window light šviestuvai. Koridoriuose taip pat projektuojamas keltuvas, geresniam susisiekimui.

50 51
KORIDORIAI 52 53

KORIDORIŲ

LED juostos profilis B01/ lankstus/ baltas

Faux Window Light

Įmontuojamas šviestuvas ELECTRA II/ pasisuka 30 laipsniu kampu

Į lubas montuojamas šviestuvas DIRO SBL S 82/ LED FLEX 5.9W/ CRI >80/baltas/ 130x63

Gram sconce hardwired/ 2700K/ 4.5W/ 450 Lumens

APŠVIETIMAS
54 55

BASEINAS

Baseino patalpos yra perkeliamos į naujai suprojektuotą korpusą. Didžiąją patalpų dalį sudaro matiniai vitrininiai langai, kurie baseino patalpą pripildo natūralia dienos šviesa. Gale baseino projektuojama didelė spinta reikalingam inventoriui susidėti, o ant kitoje pusėje esančios sienutės įvairaus aukščio kabyklos, pritaikytos tiek vaikui, tiek paaugliui patogiai jomis naudotis.

56 57
58 59
BASEINAS APŠVIETIMAS Šviečiančios įtempiamos lubos ALP132 LED
JUOSTOS PROFILIS
60 61

ŽAIDIMŲ KAMBARYS – PASYVIOJI ZONA

Žaidimo kambario erdvė yra padalinta į dvi zonas: pasyvią ir aktyvią. Abejuose zonose yra kuriamos struktūros suteikiančios vaikui daugiau veiklos obcijų. Pasyviojoje pusėje vaikas turi keletą galimybių ramiai praleisti savo laisvalaikį. Patogiam žaidimui ant grindų suprojektuotas organinės formos laiptelis iš perdirbtos gumos, kurio viršuje yra dar aukštesnis apvalios formos atsisedimas. Patalpos viduryje esanti medinė struktūra ne tik tarnauja kaip vieta laikyti žaislus, bet pro šonuose esančias angas galima įlįsti ir susikurti savo privačią erdvę žaidimams.

Kadangi žaidimų kambarys yra didžiausią triukšmą turinti patalpa, dėl šios priežasties yra atkreipiamas dėmesys į garsą slopinančias medžiagas. Luboms yra naudojamos Knauf Danoline akustinės gipso plokštės, o grindims vinilinė grindų danga.

62 63

ŽAIDIMŲ KAMBARYS – AKTYVIOJI ZONA

Projektuojama struktūra, nuo kurios vaikas gali nučiuožti, pralįsti ar užlipti.

64 65

KAMBARIO APŠVIETIMAS

Į lubas montuojamas šviestuvas DIRO SBL S 82/ LED FLEX 5.9W/ CRI >80/baltas/ 130x63

ŽAIDIMŲ
66 67

PALATA

Palata viena iš patalpų, kurioje pacientai praleidžia daugiausiai laiko, ypač besigydantiems ambulatoriškai. Dėl šios priežasties stengiamasi šią patalpą padaryti kuo jaukesne ir patogesne būti. Prie vitrininių langų su vaizdu į pušyną yra projektuojamas ilgas staliukas su nusileidžiančiu stalviršiu. Nužemintas stalviršis tarnauja kaip patogus atsisėdimas.

Patalpoje naudojamos medžiagos: Grindų danga: terrazzo PVC kartu su viniline grindų danga. Sienos: naudojama linijinės akustinės/ dekoro medienos plokščių sistemos.

68 69

Šviečiantis gyvūnas ant sienelės, tai ne tik žaismingas dekoro elementas. Jis taip pat identifiuoja pačią palatą. Durys išorinėje pusėje, taip pat turi šį gyvūno simbolį, esantį ant sienutės, juo vaikas vadovaujasi ieškodamas savo kambario.

PALATA
70 71

Kiekvienoje palatoje yra suprojektuotas mažas kambarėlis, kuriame yra spintos bei praustuvas. Po praustuvu yra išvažiuojantis laiptelis, tam kad vaikas galėtų patogiai jį pasiekti.

PALATA
72 73
Paslėpta
LED juosta
74 75
PALATOS APŠVIETIMAS Įmontuojamas šviestuvas ELECTRA II/ pasisuka 30 laipsniu kampu Gram sconce hardwired/ 2700K/ 4.5W/ 450 Lumens PALLA 16 RAIN 3 BLACK von Tobias Grau/ 2700 2200 K Duo Flat Ceiling Light/ 2700K 5127lm Įfrezuojamas LED profilis/ baltas 76 77

SAN. MAZGAS

Projektuojamas pažemintas praustuvas, taip pritaikomas mažiesiems sanatorijos pacientams.

78 79
80 81
San. Mazgo apšvietimas REO 9-SOFT S1 1 x LED 9,5W/ CRI>90/ 2700 1800K/ 760lm 82 83

VIDINIS KIEMELIS

VIDINIS KIEMELIS

Projektuojama nedidelė vidinio kiemelio žaidimo aikštelė. Suprojaktuojamos supynės, laiptuotas atsisėdimas bei laipiojimui skirti kuoliukai

84 85
IŠVADOS 86 87

https://www.dezeen.com/2015/06/09/assemble-brutalist-playgroundclimbable landscape modernist shapes riba london simon terrill foam/ https://www.dezeen.com/2020/08/20/artemide integralis uv light coronavirus/ https://healthcaresnapshots.com/projects/8295/doctor u/ https://www.archdaily.com/932317/ekh children hospital s csb?ad_medium=gallery https://www.eness.com/projects/cabrini https://www.jasonbruges.com/art#/nature trail/ https://www.archdaily.com/973403/pediatric-dentistry-clinic-isabelcadroy-vitale-plus-fontarquitectura?ad_source=search&ad_medium=projects_tab https://www.archdaily.com/793964/a warm clinic rigi design?ad_source=search&ad_medium=projects_tab https://www.buildings.com/articles/33814/11 elements best childrens hospitals share https://www.archdaily.com/965386/animal adventure island fenhom star uro?ad_medium=gallery https://journals.ashs.org/hortsci/view/journals/hortsci/44/1/article p102.xml

Kopec, D., 2018. Environmental psychology for design. Bloomsbury Publishing USA.

ŠALTINIAI
88 89

Turn static files into dynamic content formats.

Create a flipbook
Issuu converts static files into: digital portfolios, online yearbooks, online catalogs, digital photo albums and more. Sign up and create your flipbook.
G.Lebednykaitė "Kaip tinkamas interjeras gali padėti pagerinti vaiko emocinę būseną gydymo įstaigoj" by VAA Interior design department / VDA Interjero dizaino katedra - Issuu