Žaneta Kristina Levkovič "ADAPTYVUS PASTATO PRITAIKYMAS MIESTUI"

Page 1

ADAPTYVUS PASTATO

MIESTUI KLAIPĖDOS TEISMO IR KALĖJIMO RŪMAI

PRITAIKYMAS

VILNIAUS DAILĖS AKADEMIJOS VILNIAUS FAKULTETO

INTERJERO DIZAINO KATEDRA

Žanetos Kristinos Levkovič ADAPTYVUS PASTATO PRITAIKYMAS MIESTUI | KLAIPĖDOS TEISMO IR KALĖJIMO RŪMAI

Baigiamojo bakalauro darbo aiškinamasis raštas

Intrejero dizaino studijų programa, valstybinis kodas 6121PX017

Bakalaurantė: Žaneta Kristina Levkovič

(parašas) (data)

Darbo vadovas doc.: Dalius Striukas

(parašas) (data)

Tvirtinu, katedros vedėjas doc.: Rokas Kilčiauskas (parašas)

(data)

GSEducationalVersion
Vilnius, 2022
4

ADAPTYVUS PANAUDOJIMAS - pastato atnaujinimas, pakeičiant pradinę paskirtį. Pavyzdžiui konvertuojant seną bažnyčią į restoraną arba seną stotį į ofisus.

Pastato humanizavimas miesto poreikiams. Šio projektu bandoma įrodyti, kad seni turto paveldo pastatai gali būti sugražinti naujam gyvenimui netgi pakeičiant pradinę paskirtį. Atnaujinamas ne tik pastatas, bet ir bandoma patenkinti trūkstamus miesto poreikius. Kaip vietinė Klaipėdietė analizuoju miesto problemas ir bandau jas išspręsti šiame projekte.

GSEducationalVersion
65

TURINYS

5-6 8 9-10 11-12 13-14 15-18 19-22 23-24 25-26 27-28 29-30 31-32 33-34 35 36 37-38 39-40 41-42 43-44 45-56 57-60 61-64 65-68 69-72 73-76 77-82 83

ĮŽANGA

TURINYS

TYRIMAS:

ŽEMĖLAPIS

DEMOGRAFINIAI RODIKLIAI, STATISTIKA

APIE OBJEKTĄ ŽINIASKLAIDOJE

OBJEKTAS

ISTORIJA SKLYPO ANALIZĖ ANALOGAI

PROBLEMA, TIKSLAI, UŽDAVINIAI

KONCEPCIJA, MEDŽIAGIŠKUMAS

PARINKTYS

ZONAVIMAS

SRAUTAI/TECHNINIAI SPRENDINIAI SRAUTŲ SPRENDIMAI

PIRMO AUKŠTO PLANAS

ANTRO AUKŠTO PLANAS

TREČIO AUKŠTO PLANAS

RŪSIO PLANAS

DETALIZACIJOS: RECEPCIJA IR HOLAS

LAIPTAI

GYVENAMOSIOS ERDVĖS: KORIDORIUS

VIENVIETIS KAMBARYS

DVIVIETIS KAMBARYS DVIVIEČIO KAMBARIO SAN MAZGAS KAVINĖ

ŠALTINIAI

GSEducationalVersion
87

TYRIMAS

Atlikdama šį projektą derinau miesto problematiką su pasirinktu objektu.

Nors Klaipėda yra trečiasis miestas pagal dydį Lietuvoje, čia itin trūksta kultūros erdvių, ypač jaunimui. Pagrindinė to priežastis, kad kultūros sfera nėra itin vystoma, seni kultūros objektai yra uždaromi, o nauji - nestatomi. Apsilankius kituose miestuose, akivaizdžiai jaučiasi Klaipėdos miesto kultūros erdvių stoka. Šiame žemėlapyje bandžiau surasti ir pažymėti visas net ir mažiausias kultūros lavinimosi ir laisvalaikio erdves. Rezultatai nebuvo gausūs, kas tik dar kartą įrodo sopią miesto problemą

Taip pat Aktuali problema yra netolygus socialinių paslaugų pasiskirstymas Klaipėdos mieste bei priemiesčio teritorijose. Daugiausiai socialinių paslaugų infrastruktūros objektų - lopšelių, darželių, mokyklų, neformaliojo ugdymo įstaigų ir pan. sutelkta pietinėje miesto dalyje, o šiaurinėje miesto dalyje jaučiamas minėtos infrastruktūros trūkumas

"Klaipėdoje senamiestis merdi, pristatyta didžiulių prekybos centrų, biurų, tačiau miestui reikia gyvasties. Trūksta kultūrinių erdvių visame mieste - kur žmonės turėtų kur nueiti ir atsiskleisti. Juk neužtenka vien sutvarkyti šaligatvius."

Klaipėdoje trūksta aiškaus kultūrinio ploto, kuriame vietos atrastų kultūros žmonės, profesionalūs menininkai, miestiečiai ir turistai. Klaipėdoje esą nėra tikro kultūrinio lauko, kuris formuotų miesto mentalitetą ir žiūrovų skonį

Pažymėti objektai: Kultūros fabrikas Arlekinas

AUK centras Forum Cinemas Švyturio arena Žvejų kultūros rūmai Skatepark Wake in

AJE + Skatepark Klaipėods pilies muziejus Lėlių teatras Dramos teatras

Jaunimo centras

Laikrodžių muziejus Muzikinis teatras Koncertų salė Sporto rūmai

Skatepark

Poilsio parkas Klaipėdos centrinis stadionas Delfinariumas

Jūrų muziejus

GSEducationalVersion
109

Taip pat labai aktuali problema - Klaipėdos miestas "senėja". Ne tik prastėja demografiniai rodikliai, išvyksta iš miesto žmonės, bet ir auga pensininkų amžius, jaunimo mažėja. Daugiausią Klaipėdą sudaro vaikai ir paaugliai iki 18 metų ir vyresnio amžiaus žmonės, pradedant nuo apytiksliai 40-ies ir toliau skaičiai tik kyla. Išvados tokios, kad dauguma jaunimo, baigę mokyklą, išvyksta studijuoti į kitus miestus arba į užsienį, o vėliau ir nebegrįžta į gimtajį miestą. Pagrindinės to problemos yra aukštųjų mokyklų trūkumas Klaipėdoje, prasta studijų kokybė, mažas darbo pasirinkimas. O taip pat ir neišlavinta kultūros struktūra, dėl ko jaunimui paprasčiausiai Klaipėdoje yra nuobodu

Kiek domėjausi šaltiniais, įsitikinau, kad Klaipėdos savivaldybė yra įvardinusi šią problemą ir bando ją spręsti: (citata iš KLAIPĖDOS MIESTO SAVIVALDYBĖS 2018-2020 METŲ STRATEGINIO VEIKLOS PLANO):

"Ypač aktualus miestui yra jaunimo pritraukimo ir išlaikymo mieste klausimas, dėl to įgyvendinamos ir planuojamos įgyvendinti įvairios priemonės - bendradarbiaujama su mieste veikiančiomis profesinėmis ir aukštosiomis mokyklomis, siekiant kuo plačiau išviešinti miesto, Vakarų Lietuvos regiono ir visos šalies jaunimui galimybes mokytis Klaipėdoje, organizuojamas jaunimo ir su jaunimo dirbančių NVO projektų rėmimas, planuojama atverti naują erdvę, skirtą prasmingam jaunimo laisvalaikiui, miesto tikslinėje teritorijoje. Klaipėdos miestas, siekdamas suaktyvinti jaunimo politiką, planuoja teikti paraišką tapti Europos jaunimo sostine 2021 m."

GSEducationalVersion 1211

Labai daug kalbama apie objektą žiniasklaidoje

Savivaldybės tarybai pritarus buvusių policijos pastatų (Jūros g. 1) perėmimui iš valstybės įmonės Turto banko ir jo įveiklinimo koncepcijai, planuojama parengti šio pastato pritaikymo kultūros reikmėms galimybių studiją Ateityje bus siekiama likviduoti tam tikrų pastato dalių avarinę būklę ir užtikrinti tolimesnę komplekso eksploataciją kultūros reikmėms

Norima įkurti kultūros centrą Buvusiame policijos pastate norima įkurti kultūros centrą, rengti projektus

"Projektą pristatęs Kultūros skyriaus vedėjas Narūnas Lendraitis sakė, kad su prašymu skirti minėtą pastatą menininkų reikmėms, buvo pateikta apie 300 menininkų parašų tiek žmonių matytų buvusią pareigūnų buveinę kaip jų kūrybai tinkamą vietą." Numatoma dalį patalpų skirti kavinių, barų ar viešbučių veiklai vykdyti Įkurti ir rezidencijas menininkams

T. Kiauka teigė, kad tarp “ Kultūros fabriko” ir komisariato planuojamos veiklos yra 4 esminiai skirtumai: “ Kultūros fabrikas” eina kultūrinių industrijų keliu, naujoje vietoje būtų priešingai; valdyme turėtų būti meno ir kultūros atstovai, kūrėjai patys įsirengtų erdves, kainos būtų mažesnės nei “ fabrike”, o komisariate norinčių įsikurti menininkų tikslas yra ne verslumas, o menas, kultūra ir kūryba Tarp suplanuotų priemonių meninėmis priemonėmis atskleisti ir įveiklinti rekreacines, uosto ir kitas teritorijas prie vandens, įkurti atvirą urbanistikos muziejų, moksleivių ir jaunimo kultūrinių iniciatyvų inkubatorių, mokymo, konsultavimo, kvalifikacijos kėlimo bei gebėjimų ugdymo centrą, vykdyti rezidentų programą, sukurti inovatyvias ir patrauklias kultūros erdves ir kt

Norima, kad buvusiuose policijos pastatuose atsirastų renginių erdvės, muziejai, galerijos, jaunimo kultūrinių iniciatyvų inkubatorius, įsikurtų reziduojantys ir visuomenei kūrybą pristatantys menininkai, o šalia ir nedidelės autorinių darbų parduotuvėlės, kavinė, muzikos klubas Norima teikti ir išskirtinio apgyvendinimo paslaugos

"Norime mieste sukurti gyvybingą, atvirą kultūrinį centrą", viziją trumpai pristatė T. Kiauka

"Miestas nyksta, jaunimas išvažiuoja, talentai nuteka Situacija paradoksali Poreikis yra"

"Šis objektas aprėptų visas "Mėlynojo proveržio" idėjas Tai istorinis objektas, kuris taptų turistų traukos centru, taip pat pritrauktų kuriantį jaunimą iš visos Lietuvos Čia galėtų veikti jaunimo koncertų salė, vykti "underground" muzikos koncertai, šokio, kino, teatro, šiuolaikinio meno, kūrybinių industrijų projektai Galėtų būti sukurtos ir rezidentų kūrybinės veiklos programos Ši erdvė taip pat turėtų edukacinę paskirtį", A. Baroti

J. Pardo teigė, kad pastatas yra unikalus ir galimybės įveiklinti objektą yra milžiniškos Tikėtina, ateityje jis atneštų ir didelių investicijų

Klaipėdos "Kultūros fakrikas"

Klaipėdos senasis kalėjimas, buvęs policijos komisariatas

GSEducationalVersion
1413

LOKACIJA

Adresu Jūros g. 1 Klaipėdos senasis kalėjimas arba buvę teismo rumai/ Policijos komisariatas

Dviejų trijų aukštų raudonų plytų mūro pastatas, turintis neogotikos elementų, dengtas šlaitiniu stogu. Pastatytas 1862 m. Praplėstas 1898 m.

PASTATO

GSEducationalVersion OBJEKTAS/
IŠORĖ 1615

PASTATO VIDUS

Pastato vęrtingi architektūriniai elementai: skliautai, arkos, autentiškos kamerų durys, grotos, aukštos lubos, sena statyba

GSEducationalVersion
1817

ISTORIJA

Pirmasis Klaipėdoje teismas ir kalėjimas buvo įkurti pilyje Pilyje, anot J. Tatorio, veikė ir provincijos, žinybinis (Amtsgefängnis) bei moterų kalėjimai. Nedidelės daboklės (Bürgergehörsam) buvo miesto sargybinėse ir vartuose. XIX a. per. Teismas dirbo Turgaus gatvėje. Po 1854 m. Klaipėdos gaisro, Teismo ir kalėjimo kompleksui naujai nutiestoje tuometėje Malkų gatvėje 1857 m. nupirktas sklypas, o 1862 m. pastatytas šis U raidės konfigūracijos pastatas. Didžiulis 5000 m2 ploto raudonų plytų pastatų kompleksas, esantis Jūros g. 1 (buv. Malkų g. 2), laikomas svarbiausiu Naujosios Uosto gatvės senosios architektūros akcentu. Kaip ir būdinga tokios paskirties statiniams, pastatų fasaduose vyrauja griežti ir oficialūs elementai. Rūstumo statiniui suteikia akmeninis cokolis, langai su grotomis ir pastatą juosianti plytų bei kaltinio metalo tvora Pagrindinį neogotikos stiliaus bruožų turintį fasadą puošia laiptuotas frontonas su apskritu raštuotu langeliu. Pastatą horizontaliai į dvi dalis dalina puošnus karnizas tarp pirmo ir antro aukštų.

2019

Simetriškos kompozicijos pastato centrinėje dalyje įsikūrė prisiekusiųjų teismas, dešinėje - teismo įstaigos, o kairiame šone buvo įrengtos kalėjimo kameros. Nuo 1885 m. pastate veikė Karališkasis apygardos teismas. Pastato vidus buvo paprastas: rūsių, koridorių ir kabinetų lubos dengtos metalinėmis sijomis, laikančiomis mūrinius segmentinius skliautus. 1898 m. kompleksas išplėstas pristatant priestatą, kuriame buvo įrengti butai prižiūrėtojams su kanalizacija ir kitais patogumais, atskiras sektorius moterims, aikštelė kaliniams pasivaikščioti, pastatytos dirbtuvės 1945 m. kalėjimo kompleksą perėmė sovietai: netrukus Klaipėdos kalėjimas buvo įtrauktas į bendrą sovietinių kalėjimų sistemą ir gavo „ garbingą“ 2ąjį numerį - 1-asis buvo Lukiškės. Pastate 19451960 m. veikė LSSR MGB kalėjimas Nr. 2, kuriame 1945- 1953 m. buvo kalinami ir tardomi suimti partizanai, jų ryšininkai ir rėmėjai, civiliai gyventojai. Klaipėdos kalėjimas veikė iki 1960 m., po to pastate įsikūrė milicija, o atgavus nepriklausomybę Klaipėdos apskrities vyriausiasis policijos komisariatas.

2221

SKLYPO ANALIZĖ

Objektas randasi šiaurinėje miesto dalyje, prie pat senamiesčio, kultūros centro. Taip pat šalia yra jūrų uosto teritorija, perkėla, itin aktyvi gatvė. O iš kitos pusės gyvenamieji namai ir kiemai. Pastato lokacija labai kontrastinga, todėl ir funkcijos bei zonos pastate irgi projektuojamos atsižvelgiant į aplinką - labiau aktyvi, triukšminga ir ilgai trunkanti veikla projektuojama pastato šiaurinėje vakrinėje dalyje (kavinės, restoranai, renginiai...). O rytų ir pietų daly - tylesnės veiklos su laiko apribojimu, kaip pavyzdžiui, jaunimo erdvės, užsiemimai ir būreliai vaikams.

GSEducationalVersio
PASTATYMO METAI: 1862 m. 1898 m. Sovietinių laikų statyba, data nežinoma
Naujoji uosto
g
Jūros g. Gyvenamieji namai
Judri ir tr ukšminga gatvė Š 2423

ANALOGAI

Taip pat, verta paminėti jau sukurtų analogų tiek pasaulyje, tiek Lietuvoje ir kuo puikiausiai veikiančių: (kairėje) Stocholmo viešbutis "Langholmen" įkurtas kalėjime. (Apačioje) Lukiškių kalėjimas Vilniuje - kultūros ir renginių erdvė

GSEducationalVersio
2625

PROBLEMA

Klaipėdoje trūksta veiklų, kultūrinių, saviraiškos erdvių jaunimui. Kūrybos erdvių menininkams trūkumas.

Taip pat miestas sparčiai "sensta" ir nyksta, išvažiuoja jaunimas.

Apleistas ir neįveiklintas, lėtai nykstantis kultūros paveldo pastatas, jūros g. 1, Klaipėdos senieji teismo ir kalėjimo rūmai.

TIKSLAI, UŽDAVINIAI

Išsiaiškinti kokie yra miesto poreikiai?

Humanizuoti kalėjimo paskirties pastatą ir pritaikyti miesto veikloms

"Atgaivinti" pastatą, o tuo pačiu ir Klaipėdos miestą bei jaunimą

GSEducationalVersio
2827

KONCEPCIJA

Kadangi, pastatas yra avarinės būkės ir nepavyko jo apžiūrėti, išvados daromos, remiantis turimomis fotofiksacijomis Po daugybės paieškų, panašu, kad pastatas tik iš išorės yra plytų mūro, interjere jo nėra, dėl to pasirinkta palikti nuvalytas istorines sienas, tuo pačiu bandant pritaikyti neapdirbto betono imitaciją Interjero stilistika - brutalizmas, industrializmas, modernizmas ir šiek tiek jaukumo. Interjere stengiamasi palikti kuo daugiau autentiškumo, o atnaujinimui pasitelkti baldus ir daugiausia, apšvietimo sprendinius. Koncepto akcentai: stiklo plytų blokai, juodas metalinis tinklas, augalai, žalios ir oranžinės spalvos kontrastai ir deriniai, plytelės ir šiek tiek šiltumo suteikiantis medis. Kadangi tai meno/ kultūros vieta - šaltumas, atšiaurumas ir "kalėjimo dvasia" itin tinkami, ypač jaunatviškoje erdvėje, todėl jų nebandoma atsisakyti, o tiksliau - pabrėžiama Bet taip pat bandoma įrodyti, kad tokia aplinkairgi gali būti jauki Stikliniai blokeliai tarsi simbolizuoja naujovę, šviesą, naują gyvybę, kurią bandoma įkvėpti šiam pastatui. Tarsi iš senos plytų sienos išimant vieną seną plytą ir ją pakiečiant nauja.

GSEducationalVersion
MEDŽIAGIŠKUMAS 3029

PARINKTYS

GSEducationalVersion
3231

Išnagrin

ZONAVIMAS

3

JAUNIMO ERDVĖ

MENININKŲ DIRBTUVĖS

PARODINĖ ERDV

OFISAI MIESTO ERDVĖ

MAITINIMAS

APGYVENDINIMAS

MULTIFUNKCNINĖ ERDV

2

1

GSEducationalVersio -1
S
Ė
S
Ė
ėjus visus šaltinius, buvo stengtasi apgalvoti visas būtinausias miestui ir tinkamiausias šiame pastate funkcijas ir tinkamai humanizuoti šį pastatą 3433

Po labai ilgos pastato planų ir fotofiksacijų analizės, nuspręsta dėl funkcijų ir jų išdėstymo, ypaš atsižvelgiant į sudėtingą pastato struktūrą, kuri buvo suprojektuota kaip tik atvirkščiai - būti nefunkcianalia, uždara ir komplikuota Veiklų zonos pritaikytos, atsižvelgiant į žmonių judėjimo srautus ir lokaciją Įrengti du liftai skirtinguose korpusuose ir bandant kuo efektyviau išspręsti blogą pastato susisiekimą, ypač atsižvelgiant į tai, kad vidurinysis pastatas yra žemesnis ir baigiasi ties antruoju aukštu, visiškai atkirsdamas kitus du pastatus vienas nuo kito

GSEducationalVersio TECHNINIAI SPRENDINIAI
SRAUTAI 1 2 4 3 5 6 7 8 9 10 11 12 JAUNIMO ERDVĖS MENININKŲ DIRBTUVĖS PARODINĖ ERDVĖ OFISAI MIESTO ERDVĖS APGYVENDINIMAS MULTIFUNKCNINĖ ERDVĖ MAITINIMAS: Darbuotojų srautai Restorano lankytojų Kavinės lankytojų 3635
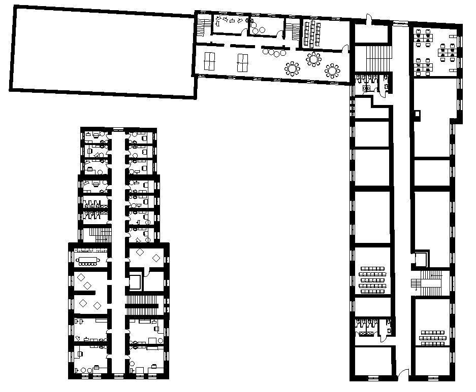
GSEducationalVersion PIRMAS AUKŠTAS1 PIRMO AUKŠTO EKSPLIKACIJA 1 KAVINĖ 2 RESTORANAS 3 VIRTUVĖ 4 DARBUOTOJŲ KAMBARIUKAS 5 DARBUOTOJŲ RUBINĖ, DUŠAI, WC 6 WC 7 LAUKO KAVINĖ 8 RECEPCIJA 9 HOLAS 10 WC 11 KULTŪROS ERDVĖS 12 JAUNIMO ERDVĖS 13 MULTIFUNKCINĖ ERDVĖ 1 2 3 4 5 6 7 8 9 10 11 1312 3837
GSEducationalVersion ANTRAS AUKŠTAS2 ANTRO AUKŠTO EKSPLIKACIJA 1 OFISŲ DARBO ERDVĖS 2 WC 3 POKALBIŲ KAMBARIUKAI 4 VIRTUVĖ 5 POILSIO ZONA 6 KONFERENCIJŲ SALĖS 7 JAUNIMO ERDVĖS 1 2 3 4 5 6 7 4039
GSEducationalVersion TREČIAS AUKŠTAS3 TREČIO AUKŠTO EKSPLIKACIJA 1 MENININKŲ DIRBTUVĖS 2 WC 3 VIRTUVĖ 4 TRUMAPLAIKĖ EKSPOZICINĖ ERDVĖ 5 EKSPOZICIJŲ, PARODŲ ERDVĖS 6 JAUNIMO ERDVĖS 1 2 3 4 1 5 6 4241
GSEducationalVersion RŪSYS0 RŪSIO EKSPLIKACIJA 1 GYVENAMOSIOS PATALPOS 2 WC, DUŠAI 3 LAISVALAIKIO ERDVĖ 4 TARYBINĖS PATALPOS 1 3 1 2 4 4443
GSEducationalVersion RECEPCIJOS IR HOLO DETALIZACIJA 4645

Kadangi tai pagrindinė pasitikimo ir laukimo zona, norėta sukurti jaukumo įspūdį, bet tuo pačiu išlaikant kalėjimo dvasią, todėl čia daugiau naudojama žalsvos spalvos bei jaukumo elementų, negu kitose pastato zonose. Jaukumas derinamas su brutalizmu ir idustrializmu. Daugelyje vietų paliekamos autentiškos plikos, nuvalytos sienos, kai kur bandoma sukurti neapdoroto betono imitacija. Išliejamos tamsaus pilko atspalvio šildomos grindys. Kadangi pastatas pasižymi arkomis, lubos neliečiamos, o visa vėdinimo ir elektros sistema paliekama atvira, tapdama interjero dalimi, taip prisidėdama prie industrinio stiliaus. Taip pat, naudojami stabilizuoti augalai. O kad labiau atverti uždaras erdves, pragriaunami papildomi praėjimai, įleidžiant daugiau šviesos į patalpas, bet atskiriant metaliniu tinkleliu, suteikiant šiek tiek nuošalumo, bet netrukdnat šviesai.

Sienų tekstūros, kurių tikimasi išgauti

GSEducationalVersion RECEPCIJA IR HOLAS
Juodas metainis tinklelis
interjere 4847 SPY 66 92718 ADM

RECEPCIJOS DETALIZACIJA

Interjere nuspręsta panaudoti, kaip vieną pagrindinų vyraujančių akcentų stiklo blokus, kiek primenančius plytos formą Tarsi užuominą į tai, kad iš didelės plytų sienos išimu vieną seną plytą ir pakeičiu ją nauja ir skaidria, tai yra į seną plytinį pastatą įleidžiu šviesos, naujos gyvybės.

Pagrindinė recepcijos dalis sudaryta iš suklijuotų permatomų stiklo blokų (SEVES GLASS BLOCK clear 1919/80 wave/ corner) Parametrai 190x190x80 ir 190x132x80

GSEducationalVersion
5049

Vieta įvairiems augalams (gali būti tiek dirbtiniai, tiek natūralūs)

Oranžinė baldinė plokštė

Tamsintas metalas (anoduotas nerūdijantis plienas)

Balti stiklo blokai, suklijuoti klijais (190x190x80, (kampinis 190x132x80))

Recepcijos stalui naudojamas balto medžio imitacijos mdf plokštė

Betono blokelis, liejamas vietoje, į kurį įtaisoma kita dekoratyvinė detalė/vazonas augalams

GSEducationalVersion
5251
GSEducationalVersion 5453
GSEducationalVersion 5655
GSEducationalVersion LAIPTAI Į RŪSĮ (GYVENAMAS PATALPAS) 5857

Betono darinys, palydimas šviesos spindulio

6059

Charakteringiausia pastato lokacija - skliautuotas koridorius su autentiškomis kamerų durimis. Interjeras minimaistinis, brutalistinis, industrinis. Esama situacija kuo minimaliau keičiama, stengiamasi daugiausia atnaujinti interjerą apšvietimo sprendiniais, bet tuo pačiu nepersistengiant su stiprumu, pabrėžiant požeminio blankumo, mistiškumo atmosferą Naudojamas silpnas LED apšvietimas iš apačios ir minimalistiniai šviestuvai.

KORIDORIUS RUSYJE

Naudojams šviestuvas

GSEducationalVersion
Elesi luce - Air AP XS LEDCircle contemporary wall light
Fot
ofiksacijos iš
pastato pusrūsio kamerų erdvės
6261
6463

Vienviečiame kambaryje taip pat stengiamasi išlaikyti brutalistinę industrinę kalėjimo stilistiką,

tuo pačiu

jaukumo kambariui, panaudojant medį

papildomą akcentą - metalinį tinklą. Apšvietimo sprendiniais bandoma pabrėžti kambario vertingas sąvybes, kur viena iš jų - skliautas.

KAMBARYS (VIENVIETIS)

GSEducationalVersion HOSTELIO
Šviestuvas - Ogilvy, Swing Arm Wall Lamp, Matt Black and Antique Brass LED juostos, pašviečiančios skliautą Šviestuvas Elesi luce - Air AP XS LED - Circle contemporary wall light Šviestuvas: BOXY XL S 92720 DIM5 6665
bet
ir suteikiant
ir
6867

KAMBARYS (DVIVIETIS)

Dviviečiui kambariui parinkta didesnė erdvė/kamera su sudėtingesne skliauto struktūra Dėl didesnio ploto atsiranda ir santechninis mazgas, kuris išsprendžiamas vėlgi panaudojus stiklo blokus. Vonios kambarys įkomponuojamas kambaryje kaip atskiras architektūrinis elementas, taip pagyvyndamas kambario nuotaiką, visiškai nesugadinant kambario struktūros. Baldai išlieka neutralūs, mediniai, kambario akcentai - skliautai ir vonios kambarys - istorija, susipinanti su naujove.

Šviestuvas

Palei parametrą

GSEducationalVersion HOSTELIO
- Ogilvy, Swing Arm Wall Lamp, Matt Black and Antique Brass Šviestuvas Elesi luce - Air AP XS LED - Circle contemporary wall light Šviestuvas: BOXY XL S 92720 DIM5
LED juostos, apšviečiančios skliautus 7069
GSEducationalVersion 7271
GSEducationalVersion DVIVIEČIO KAMBARIO VONIOS KAMBARYS 7473

DVIVIEČIO

O VONIOS DETALIZACIJA

Vonios kambarys projektuojamas minimalistiškai, paliekamos originalios sienos, stiklo blokų pertvaros suteikia šviesos dienos metu ir netgi vakare, jei kambaryje jos pakankamai. Dominuoja juoda įranga, akcentai Įrengtas silpnas naktinis LED apšvietimas iš apačios palei sienas. Palei veidrodį taip pat įrengtas pašvietimas, skirtas naudojimuisi veidrodžiu

Naudojami objektai: Dornbracht maišytuvas; MERIDIAN IN-TANK Toilet back-to-wall; 120810BK UNITO praustuvas

Naktinis LED juostų apšvietimas palei sienas ir veidrodį

Šviestuvas: Elesi luce - Air AP XS LED - Circle contemporary wall light

GSEducationalVersion
KAMBARI
7675
GSEducationalVersio KAVINĖ 7877

Ši pastato dalis yra pati seniausia ir labiausiai komplikuota, su mažomis, sunkiai išsprendžiamomis erdvėmis, kurios kaip tik buvo pasirinktos kaip iššūkis Čia nuspręsta įkurti kavinę, su jaukiais ir privačiais pasisedėjimais Buvusios durys išimtos ir papildomai pragriauti praėjimai, stengiantis kuo labiau apjungti mažas smulkias erdves ir jas paversti į funkcionalesnę, atviresnę ir didesnę bendrą erdę

Nors čia vyraujantis dizainas panašus į viso pastato, šioje dalyje vyrauja kardinalesni ir drąsesni akcentai - žalsvos plytelės ir oranžiniai ryškūs baldai, derinami kartu su šviesiu medžiu Dažniau pasikartoja juodo metalinio tinkleli motyvas. Norint sukurti šiek tiek privatumo erdvėje kartu su atvirumu vėlgi, panaudojami stiklo blokai kaip pertvaros.

Šiame koridoriuje itin išryškėja architektūriškai vęrtingas skliautas, besitesiantis per visą koridorių. Atsiranda atviri vamzdžiai ir pakabinamas apšvietimas, norint kuo labiau pabrėžti skliauto grožį

LED jusotos pašvietimas prie baro ir laiptinėje

GSEducationalVersion MANTELLO GLASS E27 SPY 66 92718 ADM
8079
GSEducationalVersion 8281

ŠALTINIAI

https://www.atviraklaipeda.lt/zyma/turto-bankas/page/2/ https://www.atviraklaipeda.lt/2021/10/29/buves-komisariatas-sprendimo-visgi-dar-nera/ https://www.atviraklaipeda.lt/2021/11/30/laiko-naikinamo-komplekso-sansai-mazeja-bet-lieka/ https://www.atviraklaipeda.lt/2021/11/16/buves-komisariatas-imanomas-lukiskiu-variantas/ http://www.krastogidas.lt/en/objects/456-court-and-prison-building https://poshyk.info/en/klaipeda-zabroha/ https://www.google.com/search?channel=trow5&client=firefox-bd&q=klaipedos+senasis+kalejimas https://www.biblioteka.lt/paveldas/statiniai/66-30634 http://www.apleistazona.lt/klaipedos-teismo-rumai/ https://www.google.com/url?sa=t&rct=j&q=&esrc=s&source=web&cd=&ved= 2ahUKEwj9nuLSiPf3AhVh_rsIHQUiAjAQFnoECAgQAQ&url=https%3A%2F%2Fwww.klaipeda.lt% 2Fdata%2Fpublic%2Fuploads%2F2018%2F02%2Fd1_kontekstas20182020.docx&usg=AOvVaw1p4AF7fToHejjLKhj7BaRP (KLAIPĖDOS MIESTO SAVIVALDYBĖS 2018- 2020 METŲ STRATEGINIS VEIKLOS PLANAS) https://www.ku.lt/svmf/wp-content/uploads/sites/7/2016/05/STIMC PDF3.compressed.pdf https://mapijoziai.lt/lietuvos- miestai-gyventoju-skaicius- 1989- 2019-m/ https://lt.wikipedia.org/wiki/Klaip%C4%97da https://osp.stat.gov.lt/lietuvos-gyventojai- 2020/salies-gyventojai/gyventoju-skaicius-irsudetis https://osp.stat.gov.lt/statistiniu- rodikliu- analize?hash=e3463ef2-cf9d-45a7- 934ef80229a9c6d3#/ https://virtualios-parodos.archyvai.lt/lt/albumai/klaipedos- kalejimas/190 https://www.sciencedirect.com/science/article/pii/S1877705816327217 https://langholmen.com/en/ https://klaipeda.diena.lt/naujienos/klaipeda/miesto- pulsas/sunerimo- del-pastato- likimo829746 https://ve.lt/naujienos/klaipeda1/klaipeda/nuspresta-buves-policijos-pastatas menininkams- 1588061 https://ve.lt/naujienos/klaipeda1/klaipeda/buvusio-komisariato- peremimas-igaunapagreiti- 1596030 https://klaipeda.diena.lt/naujienos/klaipeda/miesto- pulsas/buvusi-komisariato-pastatukompleksa- tikisi- perimti- siemet- 849738 https://ve.lt/naujienos/klaipeda1/klaipeda/policijos-pastatas-netrukus-atiteks- klaipedai1619175

https://ve.lt/naujienos/klaipeda1/klaipeda/naujojo-kulturos-ir- meno-objekto- vizijapakibo-ore- 1654008 http://www.uostas.info/miestas/pasimatymai/pastataigatves/35- naujoji-uosto-gatve/133teismas.html

GSEducationalVersion
8483

Turn static files into dynamic content formats.

Create a flipbook
Issuu converts static files into: digital portfolios, online yearbooks, online catalogs, digital photo albums and more. Sign up and create your flipbook.
Žaneta Kristina Levkovič "ADAPTYVUS PASTATO PRITAIKYMAS MIESTUI" by VAA Interior design department / VDA Interjero dizaino katedra - Issuu