Alisa Korosteliova "TRANSFORMUOJAMŲ ERDVIŲ ĮTAKA UGDYMO IR EDUKACIJOS PROCESUOSE"

Page 1

TRANSFORMUOJAMŲ ERDVIŲ ĮTAKA UGDYMO IR EDUKACIJOS PROCESUOSE: ŠIAULIŲ UNIVERSITETINĖS GIMNAZIJOS ATVEJIS.

VILNIAUS DAILĖS AKADEMIJOS VILNIAUS FAKULTETO

INTERJERO DIZAINO KATEDRA

Alisos Korosteliovos

TRANSFORMUOJAMŲ ERDVIŲ ĮTAKA UGDYMO IR EDUKACIJOS PROCESUOSE: ŠIAULIŲ UNIVERSITETINĖS GIMNAZIJOS ATVEJIS Baigiamojo bakalauro darbo aiškinamasis raštas

Interjero dizaino studijų programa, valstybinis kodas 6121PX017

Bakalaurantė: Alisa Korosteliova (parašas) (data)

Darbo vadovas: lekt. Gabrielis Malžinskas (parašas) (data)

Tvirtinu, katedros vedėjas: doc. Rokas Kilčiauskas (parašas) (data) Vilnius, 2020

VADAS

Santrauka Aktualumas ir Problema Tikslas ir uždaviniai Įvadas Lokacija Esama situacija Funkcinės schemos Detalizuojamos erdvės

PROJEKTAS

Pirmo aukšto planas Rūsio planas Antro aukšto planas Trečio aukšto planas Pjūvis Medžiagiškumai

6-7 8 9 11 12-13 14-17 18-23 24-25 26-29 30-33 34-37 38-41 42-43 44-45

DETALIZUOJAMOS ERDVĖS

Vestibiulis Transformuojamų klasių blokas Gitaros studija Valgykla Kūno kultūros persirengimo kambariai Holas

ŠALTINIAI IR LITERATŪRA

46-49 50-55 56-57 58-63 64-67 68-69 70-71

TURINYS 4 5

Kiekviena mokymo įstaiga iš savo mokinių tikisi geriausių rezultatų. Ir nors mokymo programų kokybė yra labai svarbi, ji nėra vienintelis veiksnys. Tradicinės klasių erdvės neskatina geresnių mokymosi rezultatų ir geros mokinių bei mokytojų savijautos. Tad kyla klausimas - ar transformuojamos erdvės turi teigiamą poveikį ugdymo ir edukacijos procesams? Šio darbo tikslas yra naudojant moks nės literatūros analizės metodą šnagrinėti mokyk ų erdv ų poveikį mokymo (s ) procesui r sukurti Šiaulių un vers tetinės gimnazijos erdvių rekonstrukcijos projektą, kuris pagerintų ugdymo proceso kokybę. Apžvelgus tyrimus nustatyta, kad yra glaudus ryšys tarp žmogaus produktyvumo ir erdvės dizaino. Tyrimai aiškiai parodo, kad mokiniams ir mokytojams sekasi geriau, kai jų aplinka yra įvairiapusė, lanksti ir patogi – būtent tai, ko trūksta dabartinėms klasėms. O parengti transformuojamų klasių ir kitų mokyklos erdvių projektai pager ntų ugdymo (si) procesų kokybę be sudarytų v sapusišką aplinkos patogumą gimnazijos mokiniams ir mokytojams. Projektas yra rengiamas Šiaulių universitetinės gimnazijos atveju, tačiau ta pati sistema galėtų būti pritaikoma ir kitoms rekonstruojamoms arba naujai statomoms mokykloms.

Every educational institution expects the best results from its students. And although the quality of curricula is particularly important, it is not the only factor. Traditional classroom spaces do not encourage better learning outcomes and well-being of students and teachers. So, the question arises – do transformable spaces have a positive impact on the processes of education? e purpose of this work is to examine the impact of school spaces on the teaching / learning process by using the method of analysis of scientific literature and to develop a project for the reconstruction of Šiauliai University Gymnasium premises, which would improve the quality of the educational process. e review of research has found that there is a close relationship between a person’s productivity and space design. Research clearly shows that students and teachers do better when their environment is versatile, flexible, and comfortable – which is exactly what current classrooms lack. And the prepared projects of transformable classrooms and other school spaces would improve the quality of educational processes and create comprehensive environmental comfort for gymnasium students and teachers. e project is prepared in the case of Šiauliai University Gymnasium, but the same system could be applied to other schools under reconstruction or newly constructed schools.

SANTRAUKA 6 7
SUMMARY

PROBLEMA

Šiame darbe pristatomi ir aptariami siūlymai naujai mokyklos erdvių sistemai kaip pas naudo us apšvietimu, akustika, baldų išdėstymu ir naujomis technologijomis, galima žym ai pagerint klasės funkc ona umą r sukurt daugiafunkces transformuojamas edukacines ir poi sio erdves mokin ams ir mokytojams. Projektas yra rengiamas Šiaulių universitetinės gimnazijos atveju, tačiau ta pati sistema galėtų būti pritaikoma ir kitoms rekonstruojamoms arba naujai statomoms mokykloms.

Didžioji dalis Lietuvos mokyklų buvo pastatytos Lietuvos sov et nės okupacijos aikotarpiu o dabartinė švietimo sistema, kurios modelis išliko iki šių dienų, pradėjo formuotis XVIII-XIX a. vykstant pramonės perversmui. Kiekviena mokymo įstaiga iš savo mok nių tikis geriausių rezultatų Ir nors mokymo programų kokybė yra labai svarbi, ji nėra v enintelis veiksnys Trad cinės ir ne anksčios, stacionarios k asių erdvės neskatina geresnių mokymosi rezultatų ir geros mokinių bei mokytojų savijautos. Darbo problemą galima suformuluoti k ausimu ar transformuojamos erdvės turi teigiamą poveikį ugdymo ir edukacijos procesams?

Šio darbo tikslas yra išnagrinėjus mokyklų erdvių pove k mokymo (si) procesu sukurti Šiaulių universitetinės gimnazijos erdvių rekonstrukcijos projektą, kuris pagerintų ugdymo proceso kokybę.

Apžvelgti tyrimus, nagrinėjančius mokyklų erdvių dizaino poveikį mokinių rezultatams ir savijautai.

Parengti ir pristatyti gimnazijos transformuojamų erdvių kūrybinio projekto sprendinius.

AKTUALUMAS 8 9
TIKSLAS
UŽDAVINIAI

Mokyklų architektas, Prakash Nair, savo 2011 m. darbe „Klasės paseno: laikas naujovėms“ drąsiai ištarė, kad „(...) klasės jau pasenusios kelis dešimtmečius. Tai ne tik mano nuomonė. Tai pripažinta mokslo.“ Savo darbe jis kalba apie tai, kaip šiuolaikinis klasės dizainas yra pramonės perversmo relikvija, nuo tų laikų kai kaip įmanoma greičiau reikėjo apmokyti kaip įmanoma daugiau vaikų, tam, kad jie galėtų eiti dirbti. Beveik visos šiuolaikinės klasės yra vienodos – daugybė stacionarių suolų surikiuoti eilėmis, visi žiūri klasės priekį kur stovi lenta ir dirba mokytojas. Yra mažai įvairovės, lankstumo ar patogumo, ir tikimasi, kad kiekvienas mokinys tą patį mokysis vienodai. Šiais laikais yra daugybė tyrimų, kurie parodo, kad yra glaudus ryšys tarp žmogaus produktyvumo ir erdvės dizaino. (Susanne Colenberg, Tuuli Jylhä & Monique Arkesteijn (2020)), tokie tyrimai aiškiai parodo, kad mokiniams ir mokytojams sekasi geriau, kai jų aplinka yra įvairiapusė, lanksti ir patogi – būtent tai, ko trūksta šiuolaikinėms klasėms.

Šiame darbe pristomi ir aptariami siūlymai naujai mokyklos erdvių sistemai, kaip pasinaudojus apšvietimu, akustika, baldais ir naujomis technolog om s, galima žymia pagerint klasės funkcionalumą ir sukurti multifunkcines, transformuojamas edukacines ir poilsio erdves mokiniams ir mokytojams. Projektas yra rengiamas Šiaulių universitetinės mokyklos atveju, tačiau ta pati sistema galėtų būti pritaikoma ir kitoms rekonstruojamoms arba naujai statomoms mokykloms.

ĮVADAS 10 11

Šiaulių universitetinė gimnazija yra įsikūrusi Šiaulių miesto pietinėje dalyje. Pastatas orientuotas pietvakarius ir nuo centro yra nutolęs maždaug 4 kilomentrus.

Pastatas yra daugiabučių, prekybos centrų, darželių ir progimnazijų apsuptyje.

Dainų g. 33, Šiauliai

LOKACIJA 12 13
MOKINIAI MOKYTOJAI ADMINISTRACIJA KITAS PERSONALAS KLASĖS (I-IV) MOKINIŲ AMŽIUS ~400 47 5 13 14 14-19 Adresas: Dainų g. 33 Įsteigta: 2003m. ESAMA SITUACIJA 14 15

Gimnazijos pastatas yra trijų aukštų, su rūsiu, kuriame yra mokinių spintelės. Pagrindinis fasadas ir patekimas į pastatą yra orientuoti į pietvakarius. Pastato koridoriai sukasi aplink gimnazijos vidinį kiemą, kas sukuria platumo ir erdvumo įspūdį.

Tačiau tiek gimnazijos erdvėms tiek pačiai švietimo sistemai reikalingas atnaujinimas.

•Klasėse vis dar naudojamas pasenęs mokymo modelis, jose naudojami ne ergonomiški baldai ir mokoma per daug mokinių vienu metu.

•Valgykloje visada susidaro eilės, ir yra per mažai sėdimų vietų.

•Koridoriuose yra nepakankamai sėdimų vietų.

•Taip pat mokiniams po kūno kultūros pamokų nėra pakankamai dušų ir mokykloje nėra pakankamai sanitarinių patalpų.

ESAMA SITUACIJA 16 17

FUNKCINĖS SCHEMOS

Pro ektuojamoje situac oje prie pirmo aukšto kūno kultūros bloko yra prijungiamas nedidelis priestatas pers reng mo kambar ams ir tren ruoklių salei Menų kabinetai iškeliami pirmą aukštą Klasės išdėstomos pagal pobūdį. Išmėtytos įvairios pagalb nės patalpos sukoncentruojamos, arba iškeldinamos į rūsį.

PROJEKTUOJAMA SITUACIJAESAMA SITUACIJA

ias laiptai aiptai klasės WC tech patalpos pagalbinės patalpos sportas valgykla biblioteka/skaitykla

administracija aktų salė mokinių spintelės posėdžių salė

18
19

ESAMA SITUACIJA

PROJEKTUOJAMAS PRIESTATAS

Vienos pagrindinių problemų mokyklojedušų kabinų ir vietos joms trūkumas ir tai, jog treniruoklių salė yra rūsyje. Tam, kad išspręsti šias problemas - prie mokyklos projektuojamas nedidelis priestatas, kuris neišeina už mokyklos sklypo r bų Geresnės salygos kūno kultūros bloke skatina palankesnį požiūrį kūno kultūrą kaip visumą ir geresnius mokinių santykius su sportu

TŪRINIAI/ERDVINIAI SPRENDIMAI 20 esama situacija projektuojamas priestatas 2598m² +360m² Viso: 2958m²
21

FUNKCINĖS SCHEMOS

Suprojektuojamas lias, į kūrį galima tiesiogiai patekti iš vidinio kiemo arba per koridorių pirmame aukšte.

ias aiptai per visus aukštus aiptai per kelis aukštus

VERTIKALIEJI RYŠIAI

KLASIŲ KLASIFIKACIJA

Aa

Ąą

Бб

etikos/tikybos klasė fizikos klasė laboratorija chemijos/biologijos blokas papildoma klasė audinio technologijų klasė medžio technologiijų klasė maisto technologijų klasė dailės klasė matematikos blokas geografijos blokas muzikos klasė gitaros studija istorijos blokas gamtos mokslų klasė informatikos klasė savarankiško mokymosi klasė anglų kalbos blokas lietuvių kalbos blokas kitų užsienio kalbų blokas robotikos laboratorija šokių klasė

praktinio mokymo klasės teorinio mokymo klasės

22
23

Reng ant gimnaz jos atnauj nimo projektą ir atsižvelgiant pagrind nes mokyk os prob emas, išskir amos šios erdvės ho as, klas ų blokas, g taros studija, kūno ku tūros pers rengimo kambariai, valgykla, vestibiulis.

klasių blokas

gitaros studija persirengimo kambariai valgykla holas vestibiulis

DETALIZUOJAMOS ERDVĖS 24
25

1.1 Tambūras 10,5m²

1.2 Laiptų aikštelė 40,0m²

1.3 Recepcija 14,2m²

1.4 Koridorius 443,4m²

1.5 Istorijos klasė 52,2m²

1.6 Istorijos klasė 52,2m²

1.7 Gitaros studija 55,9m²

1.8 Mokytojo kabinetas 12m²

1.9 Laiptinė 10,1m²

1.10 Muzikos klasė 50,8m²

1.11 San. mazgas 8,4m²

1.12 San. mazgas 7,2m²

1.13 Valgykla 206,3m²

1.14 Virtuvė 103,4m²

1.15 Laiptinė 7,6m²

1.16 San. mazgas 3m²

1.17 Persirengimo kambarys 8.7m²

1.18 Dušai 3,8m²

1.19 Persirengimo kambarys 13,4m²

1.20 Tambūras 7.65m²

1.21 Treniruoklių salė 121,1m²

1.22 Koridorius 218,6m²

1.23 Mokytojų kabinetas 14,8m²

1.24 Persirengimo kambariai/dušai 67,7m²

1.25 Sporto salė 457,6m²

1.26 San. mazgas 14,5m²

1.27 San. mazgas 14,1m²

1.28 Sandėliukas 11,4m²

1.29 San. mazgas 7,3m²

1.30 Persirengimo kambarys 22,3m²

1.31 Laiptinė 26,3m²

1.32 Lias 3,6m²

1.33 Slaugytojo kabinetas 9m²

1.34 Administracijos kabinetas 9m²

1.35 San. mazgas 17,9m²

1.36 San. mazgas 15,9m²

1.37 Valytojo patalpa 4,8m²

1.38 Laiptinė 15,6m²

1.39 Direktoriaus kabinetas 35,6m² 1.40 Posėdžių kambarys 17,9m²

1.41 Matematikos klasė 35,8m²

1.42 Matematikos klasė 35,8m² 1.43 Matematikos klasė 36,1m²

1.44 Matematikos klasė 54,7m²

1.45 Paruošiamasis 16,5m²

1.46 Dailės klasė 54,1m²

1.47 Paruošiamasis 16,4m²

1.48 Maisto technologijų klasė 91m² 1.49 Paruošiamasis 20,4m²

1.50 Medžio technologijų klasė 152,4m²

1.51 Laiptinė 15,4m²

1.52 Audinių technologijų klasė 38,7m²

Viso: 2958m²

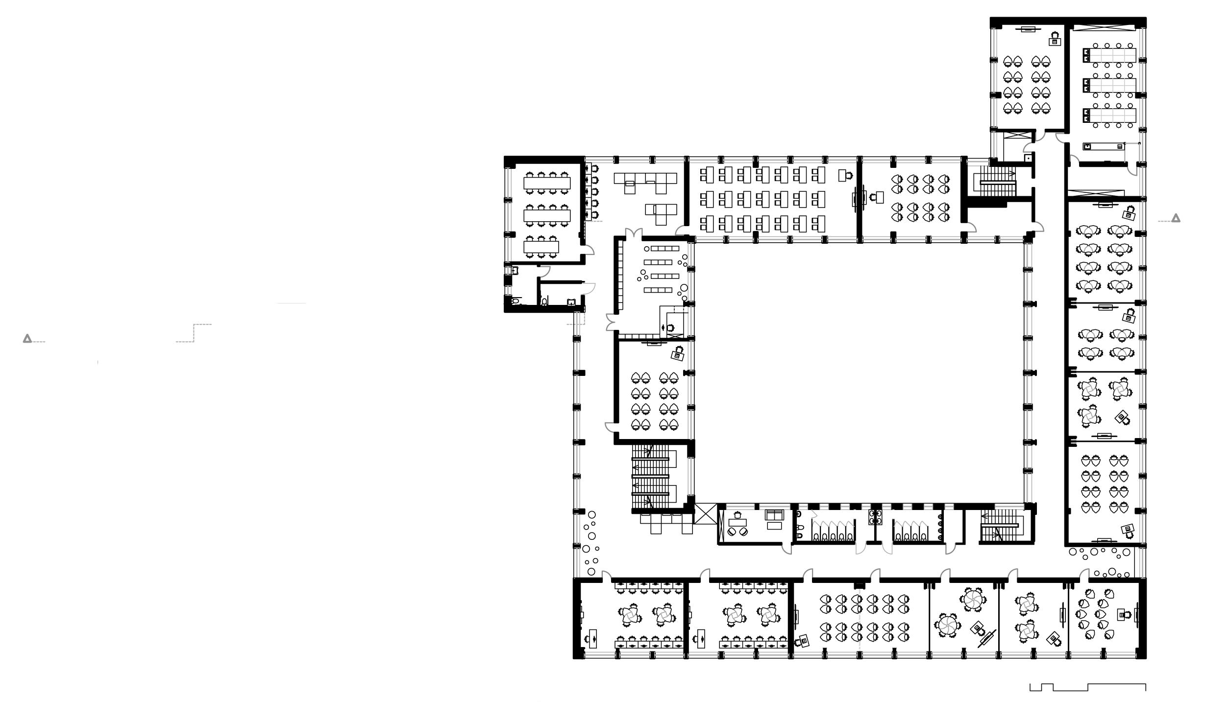
PIRMO AUKŠTO PLANAS 26
A A 0 1 2 5 10 27

Pirmame šio pastato aukšte įvyko daugiausia esminių patikimų.

• Vestibiulyje recepcija perkelta iš kampo prie laiptų patalpos centrą, kuris dabar matomas tik įėjus į pastatą. Šalia recepcijos įrengtas lias, kūrį galima patekti per vidinį kiemą ir pastato priekį.

• Valgykloje pakeista maisto atsiėmimo vieta, perprojektuotos pagalbinės patalpos ir virtuvės vieta.

• Kūno kultūros persireng mo kambariams, dušams ir treniruokl ų sa ei suprojektuojamas nedidelis priestatas o į buvusią jų vietą yra suprojektuojama daugiau sanitarinių mazgų ir persirengimo kambarys negalią turintiems žmonėms.

• Šiame aukšte yra projektuojama daugiau sanitarinių mazgų, bei sanitariniai mazgai skirti negalią turintiems žmonėms.

• Muzikos korpuse atveriama laiptinė lengvesniam susisiekimui su rūsiu.

• Vidiniame kieme yra demontuojami tambūrai.

• Dailės klasė iš trečio aukšto yra perkeliama į pirmą aukštą, į menų korpusą.

• Pertvaros tarp klasių yra perprojektuojamos į stumdomas, transformuojamas pertvaras

STRUKTŪRINIAI PASTATO PAKEITIMAI

ardomi elementai

naujai projektuojama nekinta

PIRMO AUKŠTO PLANAS 28
0 1 2 5 10
29

1.1 Laiptinė 5,2m²

1.2 Sandėliukas 6,5m²

1.3 Laiptinė 5,2m²

1.4 Sandėliukas 8,3m²

1.5 Koridorius 405m²

1.6 Laiptų aikštelė 21,3m²

1.7 Techninės/pagalbinės patalpos 1455m²

1.8 Laiptinė 15,6m²

1.9 Techninės/pagalbinės patalpos 620m²

Viso: 2564m²

RŪSIO PLANAS 30
A A 0 1 2 5 10 31

Rūsio esminiai pakitimai.

• Rūsyje projektuojamas lias.

• Spintelių erdvėje ardomos sienos suteikia daugiau vietos erdvesniam spintelių išdėstymui.

STRUKTŪRINIAI PASTATO PAKEITIMAI

ardomi elementai

naujai projektuojama nekinta

RŪSIO PLANAS 32
0 1 2 5 10
33

2.1 Koridorius 361,8m²

2.2 Laiptinė 27m²

2.3 Lias 3,6m²

2.4 San. mazgas 17,9m²

2.5 San. mazgas 15,9m²

2.6 Valytojo patalpos 4,8m²

2.7 Laiptinė 15,6m²

2.8 Užsienio kalbos klasė 55,5m²

2.9 Užsienio kalbos klasė 36,3m²

2.10 Užsienio kalbos klasė 36,2m²

2.11 Užsienio kalbos klasė 35,7m²

2.12 Mokytojų kambarys 53,5m²

2.13 Kuratorių kambarys 73m²

2.14 Poilsio erdvė 101,8m²

2.15 Mokinių seimo kambarys 54,4m²

2.16 Sandėliukas 54,4m²

2.17 Aktų salė 201,7m²

2.18 Tambūras 9,7m²

2.19 Laiptinė 10,6m² 2.20 Užkulisiai 19m²

2.21 Scena 65,9m² 2.22 Šokių salė 69m² 2.23 Geografijos klasė 52,2m² 2.24 Geografijos klasė 52,2m² 2.25 San. mazgas 8,4m² 2.26 San. mazgas 7,2m² 2.27 Papildoma klasė 50,8m² 2.28 Robotikos laboratorija 93,4m² 2.29 Mokytojo kabinetas 17,3m² 2.30 Gamtos mokslų klasė 93,7m² 2.31 Tambūras 15,7m² 2.32 Laiptinė 15,3m² 2.33 Sandėliukas 8,3m² 2.34 Papildoma klasė 54,3m² 2.35 Laboratorija 77m² 2.36 Paruošiamasis 17m² 2.37 Lietuvių kalbos klasė 53,8m² 2.38 Lietuvių kalbos klasė 36m² 2.39 Lietuvių kalbos klasė 37,4m² 2.40 Lietuvių kalbos klasė 55,3m² Viso: 2650m²

ANTRO AUKŠTO PLANAS 34
2 3 4 5 6 7 111098 12 13 14 15 16 191817 20 21 22 23 24 25 26 27 28 29 30 31 32 33 34 35 36 37 38 39 40 A A 0 1 2 5 10 35

Esminiai antro aukšto pakitimai.

• Antrame aukšte projektuojamas lias.

• Koridoriuje, poilsio erdvėje ir šokių salėje yra projektuojami langai į sporto salę.

• Aktų salėje pro ektuojami laiptai, kurie pap ldoma atl eka sėdimų vietų funkciją.

• Mokinių seimo kambario patalpa yra skiriama į 2 atskiras patalpas, į kurias galima patekti per aktų salė Apačioje projektuojamas aktų salės sandėliukas, o viršuje mokinių seimo kambarys.

• Šiame aukšte yra projektuojama daugiau sanitarinių mazgų, bei sanitariniai mazgai skirti negalią turintiems žmonėms.

• Pertvaros tarp klasių yra perprojektuojamos į stumdomas, transformuojamas pertvaras

STRUKTŪRINIAI PASTATO PAKEITIMAI

ardomi elementai

naujai projektuojama nekinta

ANTRO AUKŠTO PLANAS 36
37 0 1 2 5 10

3.1 Koridorius 349,5m²

3.2 Laiptinė 27m²

3.3 Lias 3,6m²

3.4 Psichologo kabinetas 18,4m²

3.5 San. mazgas 17,9m²

3.6 San. mazgas 15,9m²

3.7 Valytojo patalpos 4,8m²

3.8 Laiptinė 15,6m²

3.9 Chemijos klasė 55,3m²

3.10 Chemijos klasė 37,4m²

3.11 Biologijos klasė 36m²

3.12 Biologijos 53,8m²

3.13 Paruošiamasis 17m²

3.14 Laboratorija 77m²

3.15 Fizikos klasė 54,3m²

3.16 Sandėliukas 8,3m²

3.17 Laiptinė 15,3m²

3.18 Tambūras 15,7m²

3.19 Fizikos klasė 55,4m²

3.20 Posėdžių salė 93,5m²

3.21 Skaitykla 55,4m²

3.22 Savarankiško mokymosi kambarys 50,8m²

3.23 San. mazgas 8,4m²

3.24 San. mazgas 7,2m²

3.25 Biblioteka 51,6m²

3.26 Etikos/tikybos klasė 52,1m²

3.27 Informatikos klasė 55m²

3.28 Informatikos klasė 53,1m²

3.29 Anglų kalbos klasė 34,7m²

3.30 Anglų kalbos klasė 36,6m²

3.31 Anglų kalbos klasė 36,6m²

3.32 Anglų kalbos klasė 36,5m²

3.33 Anglų kalbos klasė 37,5m²

Viso: 1620m²

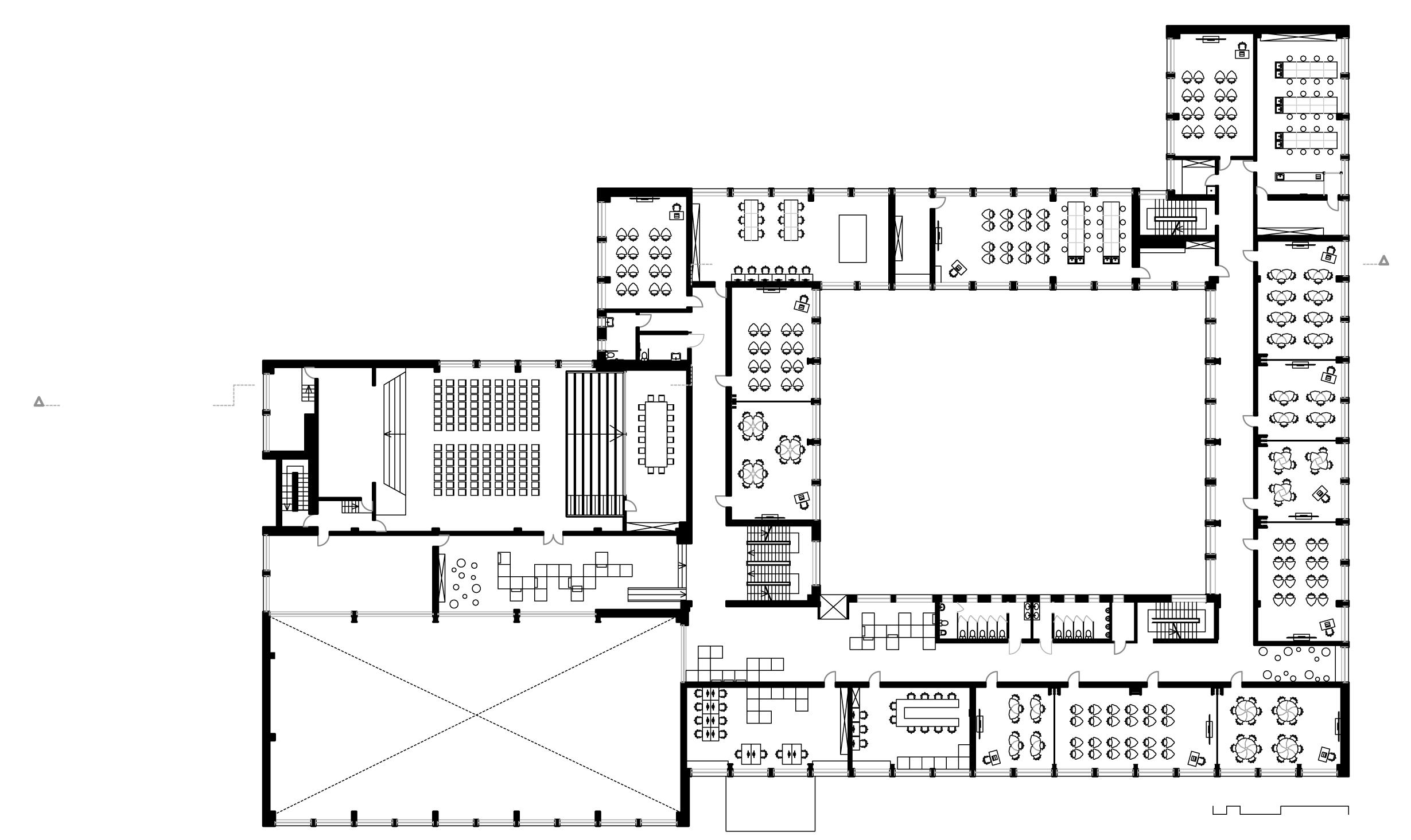
TREČIO AUKŠTO PLANAS 38
2 3 4 5 6 7 8 9 10 11 12 13 14 15 16 17 18 192120 22 23 24 25 26 27 28 29 31 32 33 30 A A 0 1 2 5 10 39

TREČIO AUKŠTO PLANAS

Pirmame šio pastato aukšte įvyko daugiausia esminių pakitimų.

• Trečiame aukšte projektuojamas lias.

• Šiame aukšte yra projektuojami sanitarianiai mazgai bei sanitariniai mazgai skirti negalią turintiems žmonėms.

• Pertvaros tarp klasių yra perprojektuojamos į stumdomas, transformuojamas pertvaras

STRUKTŪRINIAI PASTATO PAKEITIMAI

ardomi elementai

naujai projektuojama nekinta

40
0 1 2 5 10
41

Aktų salėje projektuojami laiptai, kurie veikia kaip sėdimos vietos ir užlipimas į mokinių seimo kambarį. Buvusi mokinių seimo kambario patalpa yra skiriama į 2 atskiras patalpas, kurias galima patekti per aktų salė. Apačioje projektuojamas aktų salės sandėliukas, o viršuje mokinių seimo kambarys.Treniruoklių salei projektuojamas priestatas, ji yra iške iama š rūsio Treniruok ių salė e yra projektuojamas didelis kiekis langų, taip į patalpą patenka daug natūralios šviesos Tai e džia mokiniams ne tik sportuoti, bet ir atsipalaiduoti žiūrint į besikeičiančius metų laikus.

naujai projektuojama

+10 80 +7 80 +4.50 +1.20 ±0 00 -1.80 +3.80 ±0 00 +8 70 +4 10 PJŪVIS A-A 42 1.21 TRENIRUOKLIŲ SALĖ 2.17 AKTŲ SALĖ 1.13 VALGYKLA 2.15 MOKINIŲ SEIMO KAMBARYS 1.7 GITAROS STUDIJA AUDINIO TECHNOLOGIJŲ KABINETAS 1.14 VALGYKLOS PAGALBINĖS PATALPOS 2.20 UŽKULISIAI 1.1 KORIDORIUS 2.28 ROBOTIKOS LABORATORIJA 3.20 POSĖDŽIŲ SALĖ 3.19 FIZIKOS KLASĖ 2.30 GAMTOS MOKSLŲ KLASĖ 2.37 LIETUVIŲ KALBOS BLOKAS 3.9 CHEMIJOS/BIOLOGIJOS BLOKAS 1.48 MAISTO TECHNOLOGIJŲ KLASĖ 0 1 2 5 10
43

Gimnazijoje siūlomo interjero tikslai yra padaryti interjerą, kuris pasižymėtų paprastumu ir lengvumu, o spalvoti akcentai suteiktų šiek tiek žaismingumo ir gyvumo.

Siūloma didžiąją dalį paviršių patalpose dažyti balta spalva, ant sienų naudoti akustinius dažus. Siūloma visose patalpose instaliuoti akustines lubas. Taip erdvės atrodys didesnės ir ryškesnės, taip pat bus mažiau aido ir bus juntamas akustinis komfortas. Grindų dangoms siūloma naudoti PVC dangas, kadangi jos pasižymi ilgaamžiškumu.

MEDŽIAGIŠKUMAI 44 45

PLANO FRAGMENTAS

Per pagrindinį įėjimą yra patenkama vestib ulį, kur galima eit aukštyn pirmą gimnazijos aukštą, arba žemyn, kur yra mokinių spintelės. Tik užėjus yra matoma suprojektuota recepcija ir šalia st k inis lias palengvinantis susisiek mą žmonėms, tur ntiems negalią, mokiniams bei personalui. Už recepcijos yra pagrindiniai laipta kuriais gal ma paki ti bet kurį k tą aukštą.

LUBŲ PLANAS

Deltalight STREAMLINER TR

Į akustines pakabinamas lubas yra montuo ami linijiniai šviestuvai

-1.50 +3.90 +4.20 +1.20 VESTIBIULIS 46 +0.00
Balti akustiniai dažai Juodai dažytas metalas MDF dengta medžio lukštu Oranžiniai sienų dažai
47

TRANSFORMUOJAMŲ KLASIŲ BLOKAS

Deltalight STREAMLINER TR

Pirmasis žingsn s nor nt mokyklose pagerinti pamokų kokybę yra sumažinti mokinių skaičių klasėje. Tyrimai (Schanzenbach, D.W. (2014)) rodo, jog mokinių skaičiaus mažinimas klasėse turi teigiamą poveikį tiek mokinių tiek mokytojų darbui, pradedant aukštesne pamokų kokybe ir geresniais rezultatais pamokų metu iki geresnių rezultatų vėlesniame gyvenime, tokių kaip universiteto baigimas

Mokymo klasės yra skirstomos į praktines ir teorines. Praktinio mokymo klasės yra tokios klasės, kurioms yra reikalinga specifinė įranga. Tarp šių klasių nėra stumdomų pertvarų ir jos yra atskirtos nuo teorinio mokymo klasių.

Teorinės klasės yra skirstomos į blokus. Viename klasių bloke vyksta panašaus pobūdžio pamokos, pvz.: kalbos. Viename klasių bloke yra nuo vienos iki trijų stumdomų pertvarų, kurios leidžia keisti klasių dydį bei skaičių. Taip pat visose teorinėse klasėse yra naudojami moduliniai, reguliuojamo aukščio baldai, kurie gali susidėlioti daug skirtingų formų ir būti šdėstomi k asėje ka p patogiau, pr k ausoma nuo pamokos formato Klasėse pro ektuo amos stumdomos išmaniosios lentos, kurios gali būti naudojamos kaip tradicinė lenta, televizorius ar liečiamas ekranas. Visi šie veiksniai klasių blokus paverčia transformuojamomis erdvėmis, kurios suteikia daug daugiau lankstumo pamokoms ir leidžia keisti klasės išdėstymą kiekvieną dieną. O moduliniai ir ergonomiški mokinių baldai suteikia daugiau patogumo mokiniams, kadangi mokiniai greitai gali susireguliuoti jiems patogų baldų aukštį.

PLANO FRAGMENTAS

HermanMiller Eames task chair

LUBŲ PLANAS

MOORECO Hierarchy creator table

STUMDOMŲ PERTVARŲ MONTAVIMAS

Interaktyvi lenta

Prie suolų taip pat yramontuojami šie priedai:

Dėkliukas knygoms Kabliukas kuprinei pakabinti Ratukai suolui

50
Į akustines pakabinamas lubas yra montuojami linijiniai šviestuvai
51
Grindys Garsą sugeriantis stiklo pluoštas Garso izoliacinė medvilnės ir poliesterio medžiaga Garso izoliacinė guma Pakabinamos lubos Guoliai 65 Aliuminio bėgeliai

Darbas mažose grupėse

Grupinis darbas

Darbas mažose grupėse

Klasikinio tipo pamoka

Egzaminas

Bendradarbiavimą skatinanti pamoka

Debatai

Žaidimo tipo grupinis

Darbas mažose grupėse

Grupinis darbas

Individualaus mokymosi pamoka

Individualaus mokymosi pamoka

Darbas mažose grupėse su galimybe tartis su kitomis grupėmis

Šiuose planuose yra parodoma, kaip ta pati klasė gali transformuotis į skirtingus klasių išdėstymus, pritaikytus įvairių mokinių skaičiui pamokoje, taip pat skirtingiems pamokų tipams. Kiekvieną dieną, net kiekvieną skirtingą pamoką baldus galima be didelių pastangų perstumdyti pagal poreikį. Tokiu būdu pasidaro lengviau rengti daugiau įvairaus pobūdžio pamokų, taip pat išlaikomas mokinių susidomėjimas, kadangi kiekviena pamoka gali būti visiškai skirtinga - nuo individualaus darbo pamokų, pamokų mažose ar didelėse grupėse, taip pat seminarų, praktinių pamokų ar kitokio pobūdžio pamokų.

+4.50 +7.35 +7.50 TRANSFORMUOJAMŲ KLASIŲ BLOKAS 52 IŠKLOTINĖ 1.
2.
3.
4.
5.
6.
7.
8.
darbas 9.
10.
11.
12.
13.
1 2 3 4 7 6 5 8 9 10 11 13 12 8 8
Balti akustiniai dažai Juodai dažytas metalas PVC grindų danga Oranžinės spalvos kėdžių tekstilė Pilkos spalvos stumdomų pertvarų tekstilė
53

GITAROS STUDIJA

Š oje g mnazijoje išskirtinis dėmesys skir amas meniniam ugdymui. Ir vienas pagrindinių menų krypties dalykų yra muzika. Kadangi gimnazijoje yra gitaros studija, mišrus choras, netradicinio folkloro grupė ir roko grupė - projektuojama atnaujinta gitaros studija jų repeticijoms ir gitaros pamokoms. Dėl šios klasės projektavimo buvo konsultuojamasi su muzikos ir gitaros mokytoju Ged minu Fursalovu.

56 +1.20 +4.35 +4.50
IŠKLOTINĖ PLANO FRAGMENTAS LUBŲ PLANAS Deltalight STREAMLINER TR AKSONOMETRIJA Balti akustiniai dažai Juodai dažytas metalas Pilkas plastikas Pilka kiliminė danga
57

PLANO FRAGMENTAS

Įprastoje maisto išdavimo linijoje per pertraukas visada susidaro spūstys, dėl to valgykloje yra projektuojama nauja maitinimo sistema. Siūlomas sprendimas eliminuoja šią problemą ir individualizuoja maitinimąsi.

Maistas yra užsakomas per programėlę ir yra pagaminamas pagal užsakymą, kuris generuojamas ir apmokamas skaitmeniniu būdu. Pietų pertraukos metu maistas būna jau paruoštas ir patalpintas išdavimo dėžutes Mokiniui nuskenavus savo moksleivio pažymėjimą atsidaro atitinkama dėžutė su jų maistu. Kad dėžutė užsidarytų užtenka tik pastumti stalčių atgal ranka, ar padėklu.

Valgykloje taip pat galima perstumdyti stalus pagal norą. Valgykloje naudojamos lengvos plastikinės kėdės ir sunkesni stalai, surinkti iš metalo konstrukcijos.

VALGYKLA 58
LUBŲ PLANAS IŠKLOTINĖ
Į akustines pakabinamas lubas yra montuojami linijiniai šviestuvai
Deltalight STREAMLINER TR
+1.20 +4.05 +4.20
KITAIP IŠDĖSTYTŲ STALŲ PLANAS
59

MAISTO ATSIĖMIMO SPINTELIŲ VEIKIMO PRINCIPAS:

Sp nte ė susideda iš dviejų pagrind n ų da ų: automatiškai atidaromų durelių ir štrauk amo stalčiaus. Durelės ir stalčius veikia nepriklausomi v enas nuo k to Mokin ui nuskenavus savo pažymėjimą arba telefoną, automatiškai atsidarys atitinkamos durelės su to mokinio maistu. Priėjęs mokinys išsitraukia stalčių tiek, kad jam patogu būtų išs traukt savo maistą štraukus ma stą mokinys pastumia stalčių atgal ir stalčius pilnai įstumtas sp ntelę paspaudž a mygtuką, kuris durelėms duoda signalą užsidaryti.

MAISTO ATSIĖMIMO SPINTELIŲ SCHEMOS

VALGYKLA 62 IŠKLOTINĖ +1.20 +4.05 +4.20
DURELĖS
C-DSKERSINIS
PJŪVIS C-D
PJŪVIS
A-D
550 20 535 5 560
63
MAISTO PAĖMIMAS MAISTO PADAVIMAS
A D
B c

KŪNO KULTŪROS PERSIRENGIMO KAMBARIAI/DUŠAI

LUBŲ PLANAS

Deltalight PARTOU IP

Balti

MDF dengta medžio lukštu

Deltalight STREAMLINER TR

Kiekvienas mokinys gauna asmenin pers rengimo kambarį ir dušą, į kurį įeinama nuskenavus moksleiv o pažymėjimą Kiekvienoje pers rengimo kabinoje yra pakabinta išlankstoma kėdė, kabliukai daiktams pakabinti, veidrodis ir mažas staliukas su dvejais elektros zdais Čia g a l i m a į u n g t i p l a u k ų dž ovintuvą, kurį galima pasiimti iš budinčio asmens.

dengta medžio lukštu

Kūno kultūros persirengimo kambariams ir dušams yra statomas nedidelis, vieno aukšto priestatas. Tokiu persirengimo kambarių modeliu norima paskatinti mokinius laikytis asmens higienos įpročių po kūno kultūros pamokų, kadangi kiekvienam mokiniui yra suteikiamas pilnas privatumas. Kiekvienas mokinys turi savo persirengimo ir dušo kabiną, į kurią jis įeina nuskenavęs savo moksleivio pažymėjimą.

64 IŠKLOTINĖ
PLANO FRAGMENTAS
Pilka tekstilė Pilkos grindų plytelės
akustiniai dažai
MDF
65 +1.20 +3.80 +4.20 A D B C IŠKLOTINĖ A-B IŠKLOTINĖ B-C IŠKLOTINĖ C-D IŠKLOTINĖ D-A PLANAS 2600 2600900 2300 720 30 250 700 980 580 400 1000 1200 400 2600 1080 970 440 980 70 840 900 700 2300 20 60 10 20 720 30 250 70 1380 2600840 450 20 410 2110 20 440 10 20 880 1000 1200 400 887 33

PLANO FRAGMENTAS

Deltalight STREAMLINER TR

LUBŲ PLANAS

Gimnazijoje yra projektuojama daugiau vietų poilsiui ir bendravimui. Baldai yra moduliniai, ir juos galima stumdyti - transformuojant erdves kaip mokiniams patogiau. Taip pat yra projektuojami langai į sporto salę, taip erdvė gauna daugiau natūralios šviesos ir taip pat iš čia galima stebėti varžybas. Projektuojami „Hammerglass Insulate“ langai yra atsparūs dūžiams, suteikia gerą garso izoliaciją ir apsaugo nuo UV spinduliuotės. Taip pat yra projektuojama „mini biblioteka“, kur mokiniai, mokytojai ir kiti darbuotojai gali dalintis savo turimomis knygomis, ar kitokiais leidiniais, vieni su kitais.

HOLAS 68
IŠKLOTINĖ
+4.10 +7.55 +7.70
Mėlyna tekstilė PVC grindų danga Oranžinė tekstilė Pilka tekstilė Balti akustiniai dažai Juodai dažytas metalas
69

ŠALTINIAI IR LITERATŪRA

KITI INFORMACIJOS ŠALTINIAI

Barrett, Peter & Davies, Fay & Zhang, Yufan & Barrett, Lucinda. (2015). e impact of classroom design on pupils’ learning: Final results of a holistic, multi-level analysis. Building and Environment 59. 10.1016/j.buildenv.2015.02.013.

Chapman, A., Randell-Moon, H., Campbell, M., & Drew, C. (2014). Students in Space: Student Practices in Non-Traditional Classrooms. Global Studies of Childhood, 4(1), 39–48. https://doi.org/10.2304/gsch.2014.4.1.39

Schanzenbach, D.W. (2014). Does Class Size Matter? Boulder, CO: National Education Policy Center. http://nepc.colorado.edu/publication/does-class-size-matter

Susanne Colenberg, Tuuli Jylhä & Monique Arkesteijn (2020) e relationship between interior office space and employee health and well-being – a literature review, Building Research & Information, DOI: 10.1080/09613218.2019.1710098

Leon Benade (2017) Is the classroom obsolete in the twenty-first century?, Educational Philosophy and eory, 49:8, 796-807, DOI: 10.1080/00131857.2016.1269631

HN 21:2011 „Mokykla, vykdanti bendrojo ugdymo programas. Bendrieji sveikatos saugos reikalavimai”

Ernst Neufert Architects’ data http://www.sugimnazija.lt https://www.soundproofcow.com https://www.cubiclesystems.co.uk https://www.hammerglass.com https://www.deltalight.com https://www.smm.lt https://www.archdaily.com

ELEKTRONINIAI DUOMENYS

Prakash Nair (2011) e Classroom Is Obsolete: It's Time for Something New https://www.edweek.org/ew/articles/2011/07/29/37nair.h30.html

Ingrid Velasquez e Psychology of Interior Design for the Learning Space https://www.fohlio.com/blog/psychology-interior-design-learning-space/

Mithun Sheth (2019) Importance of interior design in educational settings https://timesofindia.indiatimes.com/blogs/space-conception/importance-of-interior-design-in-educational-settings/

Paul Boyce (2019) Schools Are Outdated. It's Time For Reform https://fee.org/articles/schools-are-outdated-its-time-for-reform/

70 71

Turn static files into dynamic content formats.

Create a flipbook
Issuu converts static files into: digital portfolios, online yearbooks, online catalogs, digital photo albums and more. Sign up and create your flipbook.