Aistė Rutkauskaitė "Dienos užimtumo centras ir senelių namai Panevėžyje"

Page 1

Vilniaus Dailës Akademija, Vilniaus fakultetas, 2016m. Interjero dizaino katedra Bakalauro baigiamasis darbas Dienos uþimtumo centras ir seneliø namai Panevëþyje Stud. Aistë Rutkauskaitë Vad. prof. Dalia Adomonienë

Turinys

1.Tema

2.Tikslas

3.Veiklø schema

4.Projekto vizija

5.Lokacija

6.Situacija

7.Erdvinė struktûra ir rekonstrukcijos pasiûlymai

8.Stogo rekonstrukcijos pasiûlymas

9.Funkciniai blokai

10.Pirmo aukðto eksplikacija

11.Antro aukðto eksplikacija

12.Treèio aukðto eksplikacija

13.Interjero idëja

14.Medþiagiðkumas, spalvos

7 8-9 10 11 12-13 14-15 16-17 18-19 20-21 22-23 24-25 26-27 28-29 30-31

15.Holas / Valgykla / Skaitykla

15.1Iðklotinë-pjûvis A-A, parinktys

15.2Pirmo aukðto holo apðvietimo planas

16.Bendros Virtuvëles/ laisvalaikio zonos

16.1Iðklotinë-Pjûvis B-B, parinktys

16.2Antro aukðto holo apðvietimo planas

17.Ðeimynins kambarys / “liuksas”

17.1Iðklotinës-pjûviai E-E, F-F, parinktys

17.2Kambario apðvietimo planas

17.3Sanmazgo planas, iðklotinë-pjûvisi J-J ir parinktys

17.4Sanmazgo iðklotinës-pjûviai G-G, H-H, ir parinktys

18.Dvivietis kambarys

18.1Iðklotinës-pjûviai F-F, E-E, parinktys

18.2Kambario apðvietimo planas

19.Þiemos sodas / Ðiltnamis

19.1Iðklotinë-pjûvis G-G ir parinktys

19.2Vidinio kiemelio apðvietimas

20.Apðvietimas

21.Iðvados

22.Literatûra

32-33 34-35 36-37 38-39 40 41 42-43 44-45 46-47 48 49 50-51 52-53 54-55 56-57 58-59 60-61 62-63 64 65

6

Baigiamajam darbui pasirinkau dienos uþimtumo centro ir seneliø namø temà, nes ji įádomi man kaip projektavimo uþduotis ir aktuali, mano gimtojo, Panevëþio miesto plëtrai. Baigiamojo darbo uþduoties formavime projektuodama J. Biliûno g. 12 esantáį dienos uþimtumo centràą ir seneliø namus remiuosi Panevëþio miesto plëtros 2014-2020m. strateginiu planu ir regiono plëtros planu 2014-2020m. bei integruota teritorijos vystymo programa 2015m. Њiuo projektu siekiu pasiûlyti variantàąparemtà konkretaus uþsakovo planais kaip bûtø galima sutvarkyti buvusio karinio dalinio aviacijos dirbtuviø teritorijàą J. Biliûno g.12, jàąpritaikant smul kiajam verslui bei turizmo plëtrai pagal Panevëþio rajono plëtros vystymo planà. Њis projektas puikiai ásirašðytø á bendrà strategináį planà didinti socialiniæ paslaugø kokybæ bei prieinamumà mieste, gyventojø ekonomináįaktyvumà ir socialinæ átrauktá, kuriant bendruomenei atviras erdves, prieinamas socialines paslaugas ir skatinant bendruomeniná, viešðøjø institucijø ir verslo sektoriaus bendradarbiavimà.

7
Tema
Dienos uþimtumo centras ir seneliø namai Panevëþyje
8

Tikslas

Pasaulyje, ypaè išsivysèiusiose ðšalyse, vyksta didþiuliai demografiniai pokyèiai, dël kuriø maþëja vaikø ir didëja vyresnio amþiaus þmoniø skaièius bei ilgëja gyvenimo trukmû. Lietuvoje vyresni nei 60 m. gyventojai 1990 m. sudarë 16 proc., 2003 m. – 20 proc.; progno zuojama, kad 2030 m. tokie asmenys sudarys apie 27 procentus. Problema nëra kaþkas, kà reiktø eliminuoti : nuo senatvës nepabëgsi, tai yra normalus, laipsnišðkas procesas. Manoma, jog vienas svarbiausiø veiksniø, kuris ateityje ne tik galës pristabdyti slaugos ir palaikomojo gydymo paslaugø poreikio augimà, bet ir paskatins ak tyvesná paèiø pagyvenusiø žþmoniø dalyvavimàą teikiant neformalias paslaugas, yra sveiko ir aktyvaus senëjimo politikos įágyvendinimas. Sveikas senëjimas - tai pro cesas, įágalinantis vyresnio amþiaus þmones optimizuoti savo fizines, socialines ir dvasines sveikatos galimybes,

dþiaugtis nepriklausomu bei geros kokybës gyvenimu. Nekalbant apie tai, kad siekiant, jog žþmogus sentø sveikai, gerëtø vyresnio amþaus žþmoniø sveikata ir gyvenimo kokybëė pirmiausia reikia sveikai maitintis, mankšðtintis ir aktyviai naudotis profilaktinëmis sveikatos prieþiûros paslaugomis, ne maþiau svarbu yra senjorø sveikatos raðštingumo didinimas, jø aktyvus dalyvavimas sveikatos mokymo ir sveikatinimo renginiuose, bendruomenës veikloje yra sveikàą senëjimà nulemiantis veiksnys. Todël ir svarstomas tokio dienos centro įkûrimo planas, kuriame veiklûs ir entuziastingi garbaus amþiaus žþmones bûtø pilnaverèai visuomenës nariai. Tuo paèiu norima prisidëti prie Pasaulinës sveikatos organizacijos judëjimo “Draugišðkas pasaulis senatvei“ siekio, kad žþmogus gy ventø oriai, prasmingai, aktyviai ir sveikai: nelauktø mirties , o gyventø gyvenimà, kurá norisi gyventi.*

9

Veiklø schema

10

Projekto vizija

Projekto vizija - sukurti dienos centrà bei namus sen jorams su galimybe ir jauni mui naudotis bendro naudojimo patalpomis ir skatinti komuni kacijà tarp skirtingo amþiaus žþmoniø. Њiai idëjai atspindëti

siûlomas ir projekto pavadinimas „Kartð namai“.Kuriama dienos centro programa su pilnu dienos uþimtumu : áąjà áeina svei katingumo programos (mankðštos, judesio terapijos, joga, kalane tika ir pan.), lavinimasis (pas

kaitos, skaitykla, menø uþsiiemimai) bei pramoginës veiklos (šðventes, šðo kiai, išðvykos, teminiai uþsiëmimai, vie šiði ir atviri renginiai miestieèiams). Komplekse yra 3254.44 kv. metrø pa talpø, kuriose gyventojai ir lankytojai turëtø ávairias galimybes bendrauti

11
12

Lokacija

Pasirinktos situacijos pliusai: projektuojamas pas tatas, planine struktûra primenantis dvarelá, yra pastatytas apie 1940 m. gamtos aplinkoje, ðšalia „Skaistakalnio“ parko, „Nevëþio“ upës vingyje, ne toliese „Ekrano mariø” tvenkinio, toli nuo gatvës šðurmulio. Pagal Panevëþio miesto infrastruktûros planà planuojama sutvarkyti ir atnaujinti šðalia esantá parkà, prie „ Ekrano“ mariø sutvarkyti miesto paplûdimá su visa jam reikalinga infras truktûra. Minusai, jog ðšiai diena aplink esanèio se pastatuose ásikûrusios ávairaus smulkaus verslo gamyklos ir dirbtuvës, taip pat gana prastas susisiekimas viešðuoju transportu. Taèiau beveik visos ðšios įástaigos yra nuomininkai ir ðšalia jau kuriasi gyvenamieji rajonai, statomi kotedþai.

13

Projektuojamo pastato bûklë vizualiai ir fizišðkai ganëtinai prasta: viduje išðdauþytos sienos ir langai, nubyrëjæs tinkas, supuvusios kiauros grindys bei išplëðšti visi radiatoriai, vamzdþiai ir laidai. Priešðais pastato pietinæę daláį išðkastas kvadratinës formos priešðgaisrinis rezervuaras, ðšiai dienai naudojamas kaip tvenkinys žþvejybai. Visas statinys jau senai nenaudoja mas jokiai vienai paskirèiai, dabartinis savininkas nuomuoja jame patalpas dirbtuvëms ir norëtø jame įákurti dienos centrà bei seneliø namus, išðnaudojant pastato kaip senesnio laikotarpio objekto architektûrinæę vertæ, nors pastatas ir nëra paveldo objektas. Savininkas planuoja, jog ateityje galëtø prijungti ðšalia esantá irgi jam priklausantá pastatà ir sukurti daugiau gyvenamø vietø bei paslaugø turinti kompleksà.

Situacija

15

Dienos centro apimties didini mo schema Dienos centro rekonstrukcijos schema

Projektuojamo vertikalaus ryðio schema

16

Vertikaliø ir horizon taliø ryðiø schema

Erdvinë struktûra ir rekonstrukcijos pasiûlymai

Viso pastato projektuojamos gy venamosios, vieðšosios patalpos bei árangos elementai projektuojami at siþvelgiant áuniversalaus dizaino prin cipus, t.y. pritaikyti teik sveikiems, tiek žþmonëms su negalia. Taip komplekse garantuojama maþëjanti neágaliøjø socialinë atskirtis, sudary tos galimybës mokytis, dirbti, ilsëtis kartu su sveikaisiais. Projektuoja mi pandusai, specialûs sanitariniai mazgai, liftai, patogûs atitinkamo STR uþduoto ploèio koridoriai bei praëjimai atitinka ir judëjimo negalià turinèiø senjorø poreikius. Projektuojant viešðàsias erdves au tentiðško pastato charakterio ak centavimui taikomi centrinës kom pozicijos principai, formuojamas centruotas pagrindinis áëjimas su išðvystytos funkcijos holais visuose aukšðtuose, pastato centrinëje dalyje. Pirmo aukðšto erdvëse, išðlaikant aišðkø funkcináįzonavimà, bet tuo paèiu vizualiai ir fizišðkai siekiant

išðsaugoti ir pertvarø demontavimo pagalba gautos vientisos erdvinës struktûros privalumàą- „bendrumo jausmà“, tarp zonø atsisakoma bet kokiø naujø pertvarø, funkciniams epizodinio zonavimo poreikiams tenkinti árengiant tik stumdomas stiklintas pertvaras, o tambûràą árëminant bei funkcišðkai izoliuojant aptarnavimo zonas - grûdinto sti klo aþûrišðkas struktûras. Kuria mos atviros, švieðosios erdvës skirtos aktyvioms ir pasyvioms bendroms veikloms. Vizualûs ryšðiai kuriami tiek horizontaliai, tiek vertikaliai: horizontaliai - nuo ájëimo išsipleèiant á abi holo polifunkcines puses iki pat vidinio kiemelio su šðiltnamiu ir terasa, išvedanèia á parkà –naikinant pertvaras ir dalinai iš ðardant sienas pirmame aukšðte, vertikaliai - atveriant angas per dangose tarp visø trijø aukšðtø holø, kuriuos jungia vertikalø judëji mà ákûnijanti stiklinta lifto šðachta.

17

Stogo rekonstrukcijos pasiûlymo aksonometrinë schema

Stogo rekonstrukcijos pa siûlymo analogas “Svend borg Architects”

Pietvakarinis fasadas siûloma stogo rekonstrukcija

Pietvakarinis fasadas su nerekonstruotustogu

Nerekonstruoto treèio aukðto planas

18

Stogo rekonstrukcijos pasiûlymas

Atsiþvelgiant á pastato rekonstrukcijos ir fasado apðšiltinimo renovacijos projekto apimtyje siûloma kapitalinë stogo rekonstrukcija dël ðšiandieninëje situacijoje pastate esanèio aukšðio trûkumo treèiame aukšðte (2.25m), kurios dëka pastato plotas padidëtø ir išð esmës pagerëtø galimø treèiame aukšðte įárengti gyvenamø patalpø kokybë. Rekonstruoto pastoginio aukšðto patalpose atsiranda galimybë suformuoti balkonus kiekvienam kambariui. Taip padidinamas kokybinis kambariø variantiðšku mas komplekse bei sukuriami įávairûs kambariø tipai skirtingiems poreikiams.

19
20

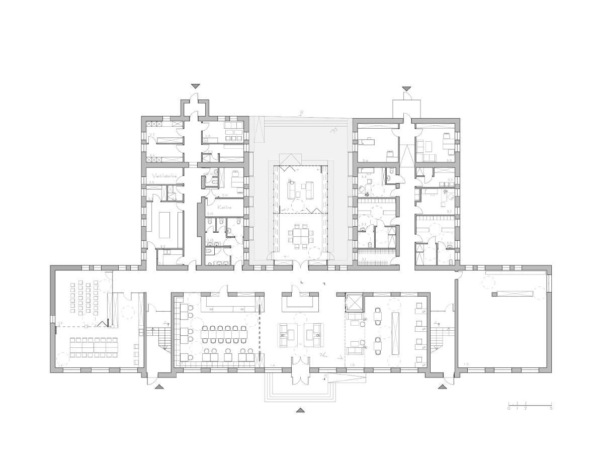
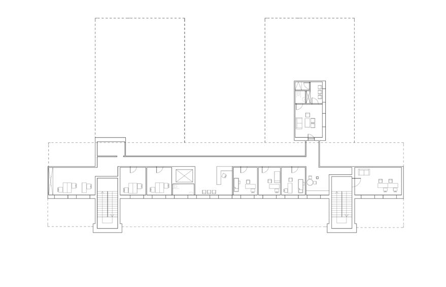
Funkciniai blokai.

Pirmo aukšðto funkcinë paskir tis - bendrosios aktyvios veiklos, antrasis aukšþtas skiriamas pasy vioms veikloms ir apgyvendinimui, o treèias - privaèiausias, atlie kantis tik gyvenamàjà funkcijà. Pirmo aukðšto vakariniame korpuse planuojamos technines patalpos bei valgyklos/kavinës virtuvë su visomis pagalbinëmis patalpomis darbuotojams. Rytiniame korpuse projektuojamas medicinos paslaugø blokas, kuriame kuriamos darbo vietos slaugëms, šðei mos gydytojui, psichologui ir kinezete rapeutui, bei persirengimo kambariai su dušðais dienos centro lankytojams

atëjusiems á renginius arba sportuo ti. Pietinio korpuso rytinëje pusëje projektuojama sporto salë, kurioje lankytojai ir gyventojai galës uþ siimti ávairiomis fizinëmis veiklomis (mankðštos, šðokiai, joga, kinezeterapija, kalanetika ir t.t). Vakarinëje dalyje planuojamos multifunkcišðkos patalpos konferencijoms ir ávairioms meninëms veikloms. Antrame aukšðte projek tuojamas erdvus ofisas dienos centro ir seneliø namø darbuotojams su atskirais kabinetais, centruota ben dra pasitarimø vieta ir virtuvële. Vidiniame kiemelyje, ðšiaurinëje pas tato pusëje projektuojamas „Þiemos

sodas“ su realaus ðšiltnamio ir re lakso jame funkcijomis. Jáįkuriant taip pat laikomasi centrines kom pozicijos, simetrijos, naudojami skai drûs paviršðiai, aþûras, slankiojanèios pertvaros ir mobili baldinë áranga. Tame paèiame pastate projektuo jamø seneliø namø pagrindinis tiks las sukurti jaukius, modernius ir patogius namus ávairaus amþiaus ir bûklës (išðskyrus klinikinës) senjo rams. Projektuojami keliø skirtingø tipø kambariai su galimybëmis ap sigyventi ðšeimai, ásikurti intensyvios globos kambaryje, gyventi vienam arba dviese viename kambaryje.

21

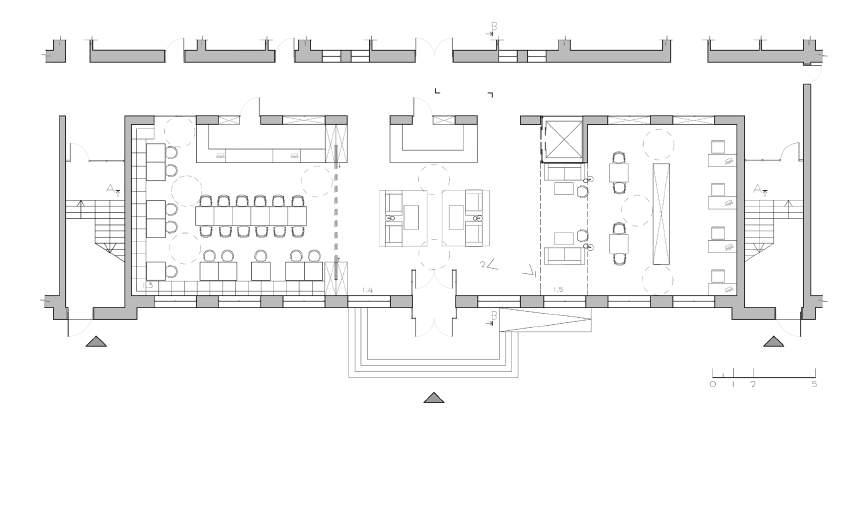
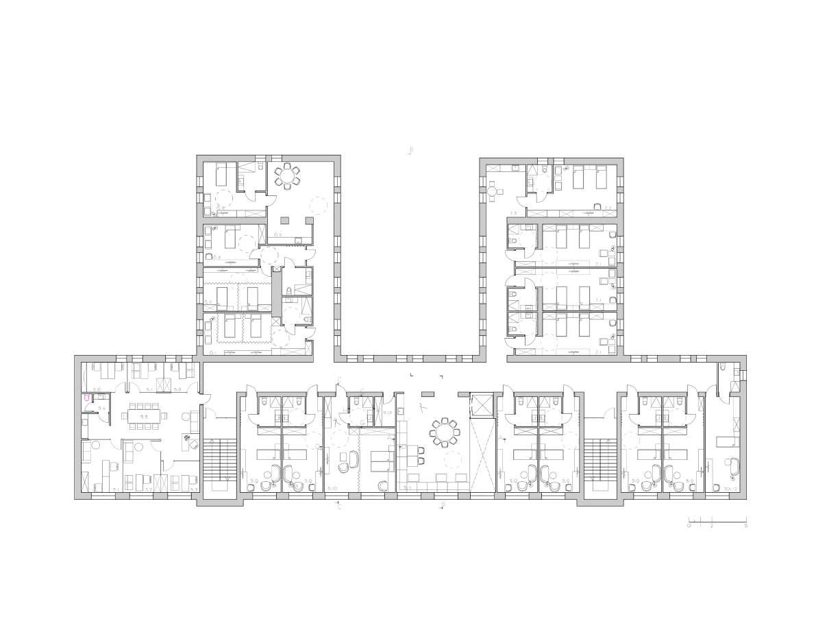
Pirmo aukðto planas

22

1.Pietvakariø korpusas (Dienos centras)

1.1 Menø uþsiiemimø klasëė

1.2 Konferencijø klasë

1.3 Valgykla / Kavinë

1.4 Holas

1.5 Skaitykla

1.6 Sporto sale

63.75m²² 44.00m² 87.44m² 84.38m² 80.20m² 117.11m²

2. Ðiaurës vakarø korpusas (Virtuvë ir tech. patalpos)

2.1 Indø plovykla 2.2 Valgyklos / Kavinës virtuvë

2.3 Virtuvës sandëlys 2.4 Valytojos kambariukas 2.5 Ventiliatorinë

2.6 Skalbykla 2.7 Dþiovykla

2.8 Darbuotojø kambarys 2.9 Darbuotojø persirengi mo kambarys

2.10 Darbuotojø WC

2.11 Kavinës / valgyklos ofisas

Pirmo aukðto eksplikacija

3. Ðiaurës rytø korpusas

3.1 Rûbinë

Viso pirmo aukðo plotas: 1132.31m²

2.12 Katilinë

2.13 Bendras WC

5.52m² 23.14m² 4.27m² 3.18m²² 8.27m² 8.94m² 10.97m² 12.36m² 10.22m² 3.33m²² 10.22m² 9.75m² 25.25m²

3.2 Vyrø persirengimo kabina

3.3 Psichologo kabinetas

3.4 Kinezeterapeuto kabi netas

3.5 Slaugø darbo r poilsio kabinetas 3.6 Darbuotojø persirengi mo kambarys

3.7 ŠÐeimos gydytojo kabinetas

3.8 Moterø persirengi mo kambarys 4. Þiemos sodas

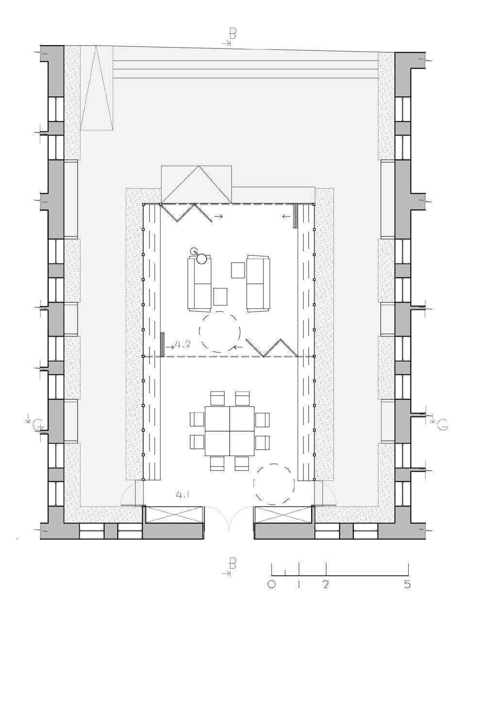
4.1 Sodinimo klasë

4.2 Relaksacijos vieta

8.41m² 25.78m² 13.19m² 21.63m² 20.73m² 12.60m² 13.00m²² 26.23m²² 38.35m² 35.01m²

23

Antro aukðto planas

24

5 Pietvakariø korpusas

5.1 Socialiniø darbuotojø kabinetas

5.2 Direktoriaus kabinetas

5.3 Pavaduotojo kabinetas

5.4 Darbuotojø virtuvële ir WC

5.5 Bendra erdvë/ Pasitarimø vieta/ Sekretorës darbo vieta

5.6 Dienos centro darbuotojø kabinetas

5.7 Seneliø namø darbuotojø kabinetas

5.8 Buhalterë

5.9 Venvietis kambarys

5.10 Liuksas / Ðeimyninis kambarys

5.11 Holas / bendra virtuvë

5.12 Budinèio slaugos darbuoto kambarys

5.13 Sandëliukas

16.49m² 14.98m² 9.24m² 9.90m² 37.50m² 10.55m² 8.28m² 8.15m² 29.60m² 50.86m² 74.11m² 30.52m² 4.63m²

6 Ðiaurës vakarø korpusas (Inten

syvios slaugos)

6.1 Tipo dvivietis kambarys

6.2 Dvivietis kambarys bloke

6.3 Vienvietis kambarys bloke

6.4 II Tipo vienvietis kambarys

6.5 Korpuso virtuvële

7. Ðiaurës rytø korpusas

7.1 I Tipo dvivietis kambarys

7.2 II Tipo dvivietis kambarys

7.3 Korpuso virtuvële

Antro aukðto eksplikacija 38.35m² 25.69m² 21.53m² 26.13m² 36.64m² 34.38m² 35.67m² 15.55m²

Viso antro aukðto plotas:

1050.45 m²²

25

Treèio aukðto planas

26

8.Pietvakariø korpusas

8.1 I Tipo venvietis kambarys bloke

8.2 Vienvietis kambarys 8.3II Tipo venvietis kambarys 8.4Liuksas / Ðeimyninis kambarys

8.5Bendra virtuvë / Fojë

8.6 Sandëliukas

22.99m² 25.83m² 24.49m² 38.05m² 58.98m² 3.72m²

9. Ðiaurës vakarø korpusas (Intensyvios slaugos su patogu mais)

9.1 I Tipo vienvietis kambarys 9.2 II Tipo Venvietis kambarys 9.3 II Tipo venvietis kambarys bloke 9.4 Bendra korpuso virtuvële

35.09m² 37.84m² 21.03m² 26.90m²

Treèio aukðto eksplikacija

10.Ðiaurës rytø korpusas

10.1 Dvivietis kambarys

10.2 III Tipo venvietis kambarys 10.3 IV Tipo venvietis kambarys

10.4 Bendra korpuso virtuvële

31.70m² 21.09m² 27.60m² 5.68m²

Viso treèio aukðto plotas: 1071.68 m²

Viso pastato plotas : 3254.44m²

27
28

Interjero idëja

Kuriant „Kartø namø“ interjerà pir miausia atsiþvelgta á lokacijà, pastato charakteristikas ir bûsimàą klientà. Atsiþvelgiant á pastato architektûrà bei laikotarpá- statybos data apie 1940m., kuriuo jis buvo pastatytas, stilistiniuose sprediniuose atsiremta á modernizmo architektûrà. Ketvirtojo dešðimtmeèio Lietuvos architektûroje galima rasti ávairiø tuometiniø skir tingai ávardijamø architektûros sroviø atspindþiø: racionalizmo, funkcionaliz

mo, / konstruktyvizmo, taip pat art deco / secesijos. To laikotar pio pastatø planuose daþnai naudota tradicinë simetrinë su išðryškinta cen trine ašðimi kompozicija, dekoruojama stilizuotais elementais, kartais visai abstrahuotomis detalëmis, iðryšðkëjo ir tendencija meninæę formà kur ti aišðkiais geometriniais tûriais bei tiesiomis linijomis.** Taigi Lietuvos modernizmui bûdinga tradicijø ir mo dernumo sàveika, šði idëja atsispindi

ir dienos centro interjero koncepcijos pagrindime - ryšðys tarp senjoro ir jauno žþmogaus, kartø skirtumø su derinimas, ta pati mintis rezonuoja net ir lokacijoje – gamtos ir industrijos apsuptis. Atsiþvelgiant á tai interjere jungiami tradiciniai / vintaþiniai elementai su ðšiuolaikišðko mis moderniomis detalëmis ir tech nologijomis, atliepiant gana plaèiai paplitusiam „Modernaus vintaþo“ (eng. “Modern Vintage“) stiliui.

29
30 MDF plokðtë su puðies faneruote Zazzle “Vintage Grey White Chevron” Kera mikines plyteles Akustines “Baux plytelës, SpalvosNCS S 2502- B ir NCS S 0300-N Mozaika Grey Glossy 25x25mm, keramika Grindø plytelë Caldero weis mat MT1515271 15x15 Tekstile mëlynaTekstile, pilka, 46% VI - 35% PL - 19% LI Tekstile pilkai rausva Grindø plytelë Technica grau porph, 15x15cm, keramikines Grûdintas stiklas Faneruota, pilkai tonuota àþuolinë mdf plokðtë Trisluoksnës parketle ntës, àþuolas, Deng tas natûralia alyvà. Balta spalva S 0300-N Pilka spalva S 1000-N Melyna spalva S 0505-B20G Persikinë spalva S 0505-Y40R Vinilo danga Wicanders àþuo las Rustic Limed Grey, surenkamos Grûdintas, matintas, faktûrinis stiklas

Siekiama kurti jaukiàą atmos feràą gyvenimui, kurioje vyrautø naujo ir seno jungtis. Renkantis medþiagiškumà ir kolorità atsiþvelgia ma á regëjimo bei klausos sutrikimø turinèius žþmones. Vengiama kontras tingø, ryškiø perdaug aktyvinanèiø ir dirginanèiø atspalviø, tiek agresyviai ðšiurkšðèià, tiek rezonuojanèiø ir blikuo janèiø blizgiø paviršðiø, viešðøjø erdviø akustiniam komfortui pagerinti naudo jamos akustinës medþiagos. Norint suteikti patalpoms šðiltumo, natûralumo ir jaukumo gausiai naudojama ávai ri mediena arba jàą imituojanèios dangos (àþuolinës parketlentës, medi nes parketlentes imituojanti surenka

ma vinilinë danga, MDF plokšðtëė su pušðies faneruote, faneruota, pilkai daþyta ąàþuolinëė mdf plokšðtë).

Faneruotomis apdailos plokðštëmis ir su integruotu apšðvietimu iðšryškinama pirmo aukšðto koridoriuje dalinai iš ðardytos sienos segmentø formuojama aliuzija á klasikinæ kolonadæ bei ap siuvamos konstruktyvinës betoninës si jos, tuo paèiu išðsprendþiant papildomo skaidyto apðšvietimo klausimàąir su minkðštinant grubiø sijø charakteráį. Holø sienos dengiamos akustinëmis, charakteringos iðšilginto stataus tri kampio formos „Baux“ plytelëmis. Њi medþiaga naudojama ne vien dël funkcionalumo – plyteliø konfi

Medþiagiðkumas spalvos

gûracija leidþia sukurti medþiø mo tyvà primenantáįrašðtà, kuris tarsi primena apie netoliese esantáįparkà, o jo vertikalumas vizualiai aukšðtina itin horizontalaus charakterio erdvæ. Kavinës su mini-parduotuve ir re gistratûros kontuarø apdailai naudo jamos analogišðkos formos ir dydþio keramikinës plytelës. Spalvinë gama vientisa, pastelinë, šávari. Dominuoja balti-pilki atspalviai su mëlynais, dus liai ðšiltai rausvais akcentais. Bûtent ðšios spalvos pasirinktos, nes balta spalva atpalaiduoja, suteikia šðvaros ir sterilumo įáspûdá, pilka - ramina arba yra neutrali ir subtiliai paryšðki na interjero ir architektûros detales.

31

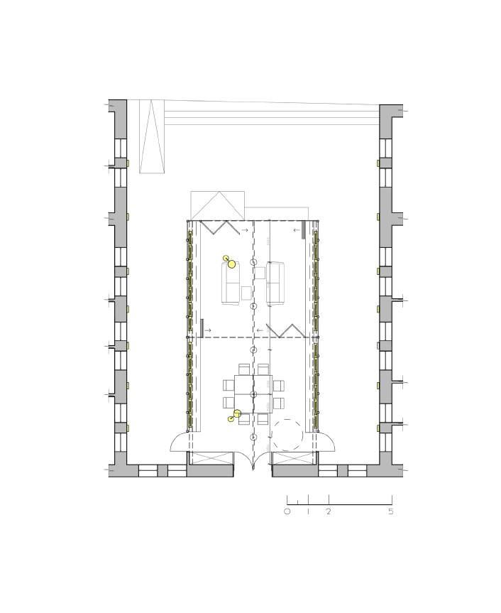
Holas / Valgykla / Skaitykla

Reprezentacinë, atvira dienos uþimtumo centro erdvë, skirta komunik acijai bei pasyviom ir bendrom veiklom. Kuriant interjerà stengiamasi iðryðkinti sijas ir susiprojektuota kolonada. Stacionariy lentyny dalin imas atkartoja pastato langy ritma. Horizontalioje erdvëje stengia masi iðryðkinti vertikalumà naudojant medþiy- augimo á virðy motyvà.

33

Iðklotinë-pjûvis A-A, parinktys

Parinktys, analogai remiantis

Kavos

gaminamas pagal spec. uþsakymà

vintage“

Raðoma

stalas, gaminamas

spec. uþsakymà

Lentynø estetikos analogas

Moroso

Saccaro

Sacca

35
staliukas,
sis
pagal
„Modern
stilistika
ro fotelis “50s Ar mchair“
sofa “50s Sofa“
këdë „Ma thilda “

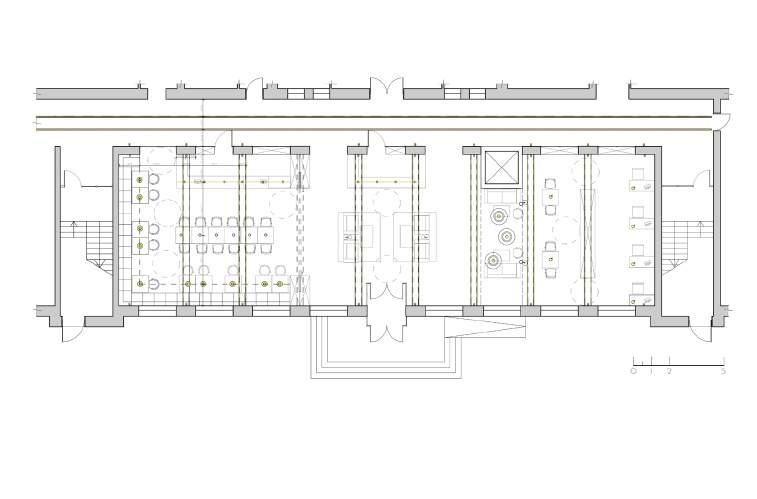
Pirmo aukðto holo apðvietimo planas

37

Bendros Virtuvëles/ laisvalaikio zonos

Visuose trijuose pastato aukðtose kuriamos bendros erd vës , kuriose gyventojai ir lankytojai galëtø bendrauti ir poilsi auti. Ðias erdves jungia bendras atriumas ir vientisa stilistika.

39

Iðklotinë-Pjûvis B-B, parinktys

Parinktys, analogai remiantis „Modern vintage“ stilistika

Stalai gamina mi pagal spec. uþ sakymà

Kavos sta liukas, ga minamas pagal spec. uþsakymà

Moroso këdë „Ma thilda “

Sofos gamina mos pa gal spec. uþsakymà

40

Antro aukðto holo apðvietimo planas

41

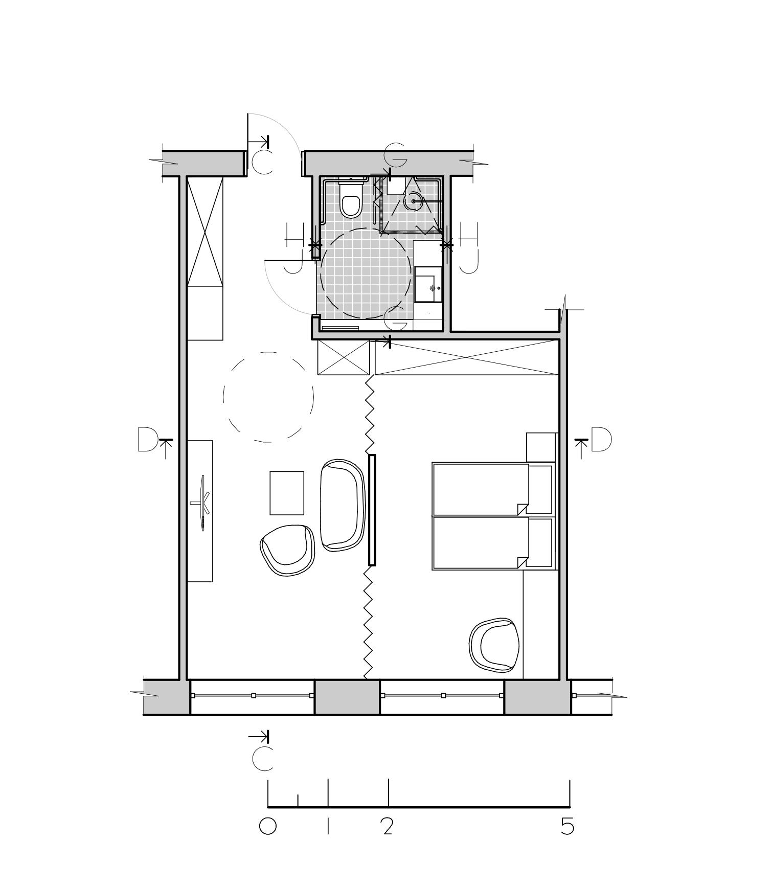
Ðeimynins kambarys / “liuksas”

Kamerinë, jauki erdvë skirta gyventi dviems su didesniais patogumais. Siûloma galimybë su uþuolaida atsiskirti miegamàja kambario dalá.

43
45 Iðklotinës-pjûviai E-E, F-F, parinktys HAY „About A Sofa“ HAY „About AAr mchair “ HAY Tray Table“ Baldasgami namos pa gal spec. uþsakymà

Kambario apðvietimo planas

47

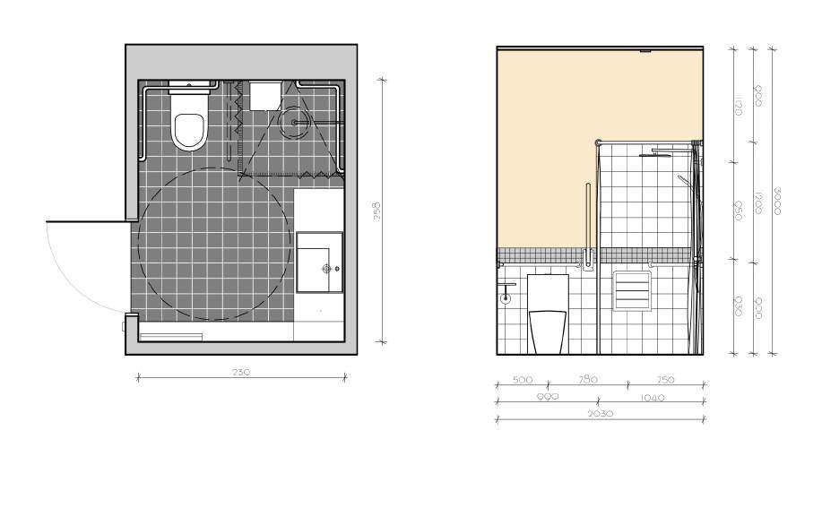
Sanmazgo planas, iðklotinë-pjûvisi J-J ir parinktys

`

Elonika, „EN 640 S“ vandeninis rankðluosèiø dþiovintuvas ið nerûdijanèio plieno, 600x400x65mm

Iðlankstoma duðo kë dute, gaminama pa gal uþsakymà, tvir tinama prie sienos

Laufen, Termos tatinis dušðo maið šytuvas „Citypro“

48

Kartell by Laufen, To letinio popieriaus lai kiklis ir kiti aksesu rai ið ðio kolekcijos

Sanmazgo iðklotinës-pjûviai G-G, H-H, ir parinktys

Kartell by Lau fen, praustuvas 900x 460x 120mm, balta keramika

Kartell by Laufen, pastatomas unitazas, 560x 370x 430mm, balta keramika

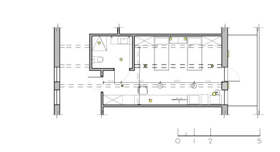
49

Dvivietis kambarys

Dviejy gyvenamy viety kambarys treèiame aukðte su balkonu ir stoglangiu. Stengiamasi sukurti ramià ir jaukia erdvæ gyvenimui ir poilsiui.Skatinant bendrumo jausmà kuriamos bendros lentynos ir stalas ir poilsio zona.

51

Parinktys, analogai remiantis „Modern vintage“ stilistika

Fotelis ga minamos pagal spec. uþsakymà

Lova gami nama pa gal spec. uþsakymà

Sointelë gaminama pagal spec. uþsakymà

Iðklotinës-pjûviai F-F, E-E, parinktys

53

Kambario apðvietimo planas

55

Þiemos sodas / Ðiltnamis

Vidiniame kiemelyje projektuojamas ðiltnamis ir terasa. Planuojama sukurti papildomà erdvæ dienos centro veikloms. Ðiame ðiltnam yje gyventojai ir lankytojai turëtø galimybæ auginti ir mokytis priþiûrëti augalus. Taip pat projektuojama jauki zona pasisedëjimui.

57

Daniðko dizaino sofa gaminama pa gal spec. uþsakymà

Mobilus stalas gaminama pagal spec. uþsakymà

Iðklotinë-pjûvis G-G ir parinktys

HAY

„Tray table“

59

Vidinio kiemelio apðvietimas

61

Ðviestuvø parinktys

62

Apðvietimas

Bendrø erdviø apšðvietimo schemà padiktavo pati lubø architek tûra. Lubø konstruktyvo sijø apdailoje integruojami išðilgin iai profiliniai LED šðviestu vai garantuoja erdvei slëptà iðsklaidytàą bendrà apšðvietimà. Kaip akcentai ir lokali funk cinë šðviesa visose detalizuojamose erdvëse naudojami torðšerai ir staliniai bei sieniniai ðšviestuvai. Valgykloje / kavinëje projektu ojami mobilûs baldai, todël ir

apðšvietimas siûlomas nestacionarus, naudojami pakabinami bëgeliai su paslankiais nuleidþiamais lokalios cen truotos šðviesos šðviestuvais virðš stalø. Vertikaliai erdvei per tris aukš tus apvaldyti ir išðryškinti pasirinkti „Flamingo“ Vibia šðviestuvai, sub tiliai apšðvieèiantys aplinkà ir patys savo išðraiškingu dizainu tampantys kaip interjero akcentas. Gyvenamu ose kambariuose apðšvietimo scenarijus formuojamas naudojant kelis ðšviestu vø tipus, kuriant skirtingø apðšvi

etimo charakterá skirtingoms kam bario zonoms. Naudojami taðškiniai, profiliniai, staliniai ðšviestuvai ir torðšerai. Vidiniame kiemelyje ben dram apšðvietimui sukurti naudojami ant sienø montuojami dekoratyviniai lauko šðviestuvai. Þiemos sode nau dojami pakabinami šðviestuvai bend rai šðviesai, toršðerai ir specialaus spektro augalø augimà stimuliuo jantys šðviestuvai. Dizaino aspektu visi ðšviestuvai parinkti minimalistiðš ki, lakoniðkø geometriniø formø.

63

Iðvados

Њiame projekte stengiamasi sukurti draugiðškàąkompleksà senatvei, kur kie kvienas, sulaukæs garbaus amþiaus, gali dalyvauti bendruomenës gyvenime, kur já gerbia, kur svarbûs ryšðiai su artimaisiais, draugais, kur lengva išðlik ti sveikam ir aktyviam. Planuojant funkcijà ir erdvinius sprendimus didelis dëmesys skirtas bendroms reprezentacinëms erdvëms. Kuriant interjerà pir miausia atsiþvelgta įpatá pastatà kaip duotybæ su jo autentiškos struktûros privalumais ir laikmeèio charakterio atspindþiais, išðstudijuoti pasaulyje esantys analogai, siekiant sukurti modernø centrà ir jaukius namus bendruomenei. ŠÐio projekto idëjai atskleisti interjere itin svarbios tapo smulkiosios parinktys – tekstûros, spalvos, baldai, projektuojama áranga, bei ðšviestuvø parinktys.

64

Literatûra:* http://etapLius Lt/sveika senatve ir vyresnio amziaus zmoniu sveikatos stiprinimas/ **10_Lithuanian arChiteCture_BetWeen the_Wa http://dementia poLyfLor Com/LaunCh aspx?pBid=8e79C8d9-754a-409a-89e0-318a934070e9 http://WWW anr Lt/Lt/verta zinoti http://netWork aia org/designforaging/home/designforagingrevieW

„Lietuvos higienos norma hn 125:2011 „suaugusiØasmenØ staCionarios soCiaLinËs gLoBos staigos: BendrieJi sveikatos saugos reikaLavimai“ str 2.02.02:2004 “visuomeninËs paskirties statiniai

65
Literatûra

Turn static files into dynamic content formats.

Create a flipbook
Issuu converts static files into: digital portfolios, online yearbooks, online catalogs, digital photo albums and more. Sign up and create your flipbook.
Aistė Rutkauskaitė "Dienos užimtumo centras ir senelių namai Panevėžyje" by VAA Interior design department / VDA Interjero dizaino katedra - Issuu