CV+Portfolio_DucAnhDang_M.Arch_6mo+_2025

Page 1


DUC ANH DANG

Architecture student | M.Arch

Online portfolio: http://tiny.cc/DucAnhDangPortfolio

Sydney, NSW 2000 | iamdanganh@gmail.com | (+61) 0432742979 | www.linkedin.com/in/ducanhdang195

SUMMARY

Vision-driven Master of Architecture student with 6+ months of experience at international design firms. Proficient in Revit modeling and BIM collaboration, with involvement in an 80.19-hectare resort masterplan at PTW Architects. Led a team of four students to win a university BIM award for a large-scale retrofit project. Passionate about transforming constraints into innovation and using visual storytelling to craft human-centred designs that leave a lasting, positive impact.

ACHIEVEMENTS

• Commendation in BIM Award - Swinburne University (2024): BIM Lead for a team of 4 students on the Advanced Manufacturing and Design Center (AMDC) Retrofit Project

• Finalist in A Building’s Essence - Education competition: Project Unbuilt (2021)

WORK EXPERIENCE

Little Wonder: Design intern; Melbourne, AU

• Collaborated with two principal designers to develop conceptual design iterations for Vertical Ark, a speculative project addressing habitat solutions for endangered species amidst severe global warming

• Produced hand-drawn and 3D visualisations using Rhino, Grasshopper, and Photoshop for an exhibition pitch

• Selected as 1 of only 2 interns, from a competitive group of 6, to be offered future collaboration

PTW Architects: Architecture intern; Hanoi, VN

• Managed a Revit Central Cloud model for an 80.19 Ha resort masterplan, collaborating with design architects to refine 12 options during the concept phase. Applied local urban regulations and council CAD plans to create an accurate site model, enabling seamless workflow among 3 teams

• Produced 6 3D and 9 2D renderings using Lumion and Adobe Photoshop for the concept presentation to client

• Collaborated with Project Architects to generate floor plan concepts for a mixed-use development

Palm Artspace: Gallery Assistant; Hung Yen, VN

• Created graphic designs for art exhibition and social media content (printed posters, standees, banners, and business cards) enhancing brand visibility and boosting public interaction

• Co-hosted opening ceremonies for 2 international group art exhibitions Melody of Nature (2022) and Beyond Expression (2023) (100+ attendees each), featuring 10+ international and 15+ local artists

EDUCATION

The University of Sydney: Master of Architecture

• Sydney International Student Award: 20% tuition fee scholarship

Swinburne University of Technology: Bachelor of Design (Architecture)

• Grade: 3.72/4. Top 15% highest scoring students in Final Architectural Design Studio

• International Student Excellence Scholarship: 50% tuition fee

OTHER INFO

Technical skills: 3D visualisation (D5, Enscape, Lumion, Twinmotion), 3D modelling/2D drafting (Rhino, Revit, Sketchup, Autocad, Grasshopper), Hand sketching, Adobe Creative Suite, Microsoft Office Suite

Languages: English - Advanced proficiency (IELTS 8.5/9) Vietnamese - Native or bilingual proficiency

Volunteering: Student Representative of Swinburne University: UniFair: UAVS - The United Associations of Vietnamese Students in NSW (2023), Event staff: GradX Evolve - Swinburne University (2022)

portfolio

ID 102851297 - Bachelor of Design (Architecture)
Swinburne University of Technology 2021-2024
Duc Anh Dang selected works

Duc Anh Dang

Email: iamdanganh@gmail.com

Mobile: (+61) 0432742979

Address: 4 Hay Street, Box Hill South, VIC 3128

LinkedIn: https://www.linkedin.com/in/ducanhdang195/ Issu: https://issuu.com/iamdanganh

GradX 2024: Commendation in BIM (sponsored by Architectus - GIRIH X)

English

The University of Sydney Master of Architecture Vietnamese

2025—present

Australia

Project Unbuilt: A building's essense competition

Architectural visualisation

V-ray, Lumion, Enscape, D5, Twinmotion

3D modelling and 2D drafting

Rhino, Revit, Sketchup, Autocad, Grasshopper

BIM Collaboration

Revit Collaboration, BIM 360

Conceptual Design Hand sketching

Critical thinking

Planning and coordination

Research and visualisation

Verbal and wrtitten communication

Swinburne University of Technology Bachelor of Design (Architecture)

2021—2024

Melbourne, Australia

Design intern at Little Wonder

March 2024 — June 2024

Melbourne, Australia

Architectural intern at PTW Architects

December 2023 — February 2024

Staff member at FOF Hotpot

January 2022 — May 2022

Hanoi, Vietnam Melbourne, Australia

Event specialist at Palm Artspace Education Work

May 2019 — January 2022

Hung Yen, Vietnam

Swinburne AMDC

Facade and interior redesign for Swinburne's - AMDC building that embraces the School of Design and Architecture "next gen" identity using BIM collaboration.

Dockland's newest mixed-use project by the waterfront

SWINBURNE AMDC RETROFIT

Class: Professional practice: BIM (2024)

Type: Education

Project: Group work

LATERLIER group's retrofit of Swinburne University's AMDC building (Hawthorn, VIC) for the School of Design and Architecture features a facade redesign addressing current shortcomings while retaining structural integrity, complemented by an interior renovation that harmonizes with the new facade, embodying the school's future "next gen" identity. The project is an opportunity to refine BIM collaboration and work-sharing skills using Revit to complete a large-scale project within six weeks.

View from Burwood road
Render by Quan Nguyen, post-production by myself

The façade features four extended balcony module typologies designed to utilise the existing concrete fins as size references and structural anchoring elements. Each typology corresponds to specific programs across the building's floors, addressing shortcomings of the original façade design: increased green and open spaces, unobstructed views, outdoor studios, and entertainment (music) corners.

Design by Nam Anh Nguyen, Quan Nguyen Drawing by myself
by Quan Nguyen

MUSEUM OF CHILDHOOD MEMORIES

Class: Architectural Design Studio 5 (2024)

Type: Cultural

Project: Group work

Located in Newport, Melbourne, the Museum of Childhood Memories celebrates the workingclass identity and industrial heritage of Melbourne's western suburbs. Focusing on immersive experiences rather than static displays, it captures the emotions and stories of growing up in the industrial West. The museum provides a fun, educational space where families connect through shared memories, as parents and grandparents recount experiences in local industries. Through role-playing, workshops, and interactive exhibits, children explore the area’s history while creating new memories, bridging past and present.

Inner street render Render by Nam Anh Nguyen, post-production by myself

Form-finding concept

The design envisions revitalizing Newport’s "Activity Centre," anchored by the arts and cultural hub, The Substation. Aligned with Hobsons Bay Council’s 2030 vision, it enhances the East-West connection with improved cycling and pedestrian links, upgraded amenities. The Museum of Childhood Memories aspires to become the precinct's vibrant heart, maximising public access, blending education and entertainment to invite the community in.

The museum’s massing reflects the fine-grain scale of the surrounding suburban neighborhood, while its form is inspired by a child’s perception of the industrial western suburbs. Drawing on diverse industrial building typologies as thematic landmarks, the design creates a dynamic narrative that bridges history and imagination.

1. The toy box
Site analysis: Newport's activity center
2. Scattered on site
3. Industrial elements & building typologies = A museum town
Drawing by Nam Anh Nguyen
Drawing by Nam Anh Nguyen
1. Amphitheater
2. Melbourne CBD building
3. Footscray brewery
4. Footscray food processing factory
5. Footscray flour mill
6. Foodscray steelwork and building material factory
Building legends
7. Altona tannery and textile factory
8. Altona oil refinery
9. Altona library
10. Newport automotive factory
11. Newport railway workshop and event hall
12. Giftshop and book cafe
13. North Laverton exhibition and office

Fast circulation

Museum town divided into different zones representing the Western suburbs, connected by a small train taking visitors from one theme to the next.

square

Slow circulation

Veritical and horizontal circulation for museum visitors. Skybridges and canopies facilitate smooth transition between most of the builidngs.

Entrance and amphitheater

Public porosity

Public squares within the museum can be accessed through multiple entry points

Public
Render by Nam Anh Nguyen, post-production by myself
Render by Nam Anh Nguyen, post-production by myself
Footscray food processing factory
Newport automotive factory Exhibition and immersive activities spaces
Render by Nam Anh Nguyen, post-production by myself
Drawings by Jack Caminiti
Design by myself, Nam Anh Nguyen
Exhibition and immersive activities spaces
Section B-B
Section A-A

Nexus Network Docklands

Class: Architectural Design Studio 4 (2023)

Type: Mixed-use

Project: Group work

Nexus Network is a response to the design unit's Waterfront Placemaking brief, which seeks to revitalize Docklands' Seafarer's Precinct by the Yarra River. This mixed-use development integrates a creative coworking hub with student accommodation, aiming to cultivate meaningful interactions between people and the waterfront. It offers a space where professionals and students can collaborate, exchange knowledge, and find inspiration, thereby further invigorating the Seafarer's Precinct and enhancing Melbourne's creative identity.

Activities on new promenade

Final perspective view from the river by Nam Anh Nguyen, modified by Duc Anh Dang
Glass offices on forest floor with waterfront view
Riverfront view from outdoor eateries
Streetfront cafe and shops
View from student residence terraces

WORK, LIVE, SHARE, PLAY: bridging academia and practice through PLAY

Site analysis shows there are many educational institutes and office towers within walking distance of the site, but a lack of a working space for students. To cater to the target demographic of young students and professionals, the theme of "playfulness" in both the design language and functions: playful spaces that support various work modes such as craft and fabrication, digital work, group work, exhibitions, and individual study. Moving through the building is reminiscent of entering a giant playground. By blending WORK, PLAY, and LIVE elements within the same space, Nexus Network seeks to foster a dynamic and fresh experience for occupants, thus enhancing productivity, relieving stress, and forming bonds between different demographic groups.

In this group project, I am responsible for the Student Residence located above the Creative Hub. The elements of LIVE, WORK, and PLAY are also repeated throughout, aiming to help students not only thrive academically but also form meaningful experiences and relationships with fellow student residents and young professionals.

Concept diagram by Nam Anh Nguyen, modified by Duc Anh Dang

Typical residence floor plan

4th floor plan

Perforated facade system detail

form-finding concept

A facade system consisting of perforated aluminum panels, inspired by the form-finding technique of observing how hot liquid wax adapt to a fabric formwork. Aluminum shell organically "adapts" to the building's massing, providing protection against direct sunlight, heat gain, and strong winds. The facade not only serves a functional purpose but also appears to grow naturally from the building’s environment.

wax rises
Facade
Physical model of creative hub @1:200 Design and assemble: Duc Anh Dang, Nam Anh Nguyen
Long perspective section - Key moments
Design: Duc Anh Dang, Nam Anh Nguyen
Section drawing: Nam Anh Nguyen, Interior scene render: Duc Anh Dang, Nam Anh Nguyen

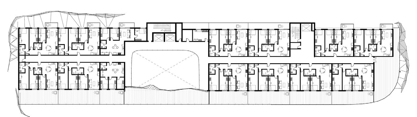
Swinburne Student Housing

Class: Interior Architecture Communication 2 (2022)

Type: Residential

Project: Individual work

Swinburne Student Village is an alternative to the conventional student housing. The site: part of car park at 4 Paterson Street, just off Burwood Rd near Swinburne Hawthorn campus. The Village provides short-term accomodation for students in a emergency or for attending academic events at the university. The project maximizes the effective use of basic housing module; each has the internal measurement ranging from 2400-2700 mm (Height); 2500-3300 mm (Width) and 6000-9000 mm (Length).

South East Final Perspective render
1. Student bedroom
2. Kitchen/dining
3. Living room
4. Study space
5. Bathroom
6. Laundry cabinet
Ground floor plan

section B Scale 1:20

1. 41mm KLIP-LOK® 406 corrugated steel cladding

2. 80mm rigid insulation

3. 92mm steel universal beam

4. OSB Sheathing

5. 40x40mm timber cavity batten

6. Mineral wool insulation

7. 10mm plasterboard

8. Vapour barrier

9. 80mm steel channel

10. Flashing

11. Perimeter insulation upstand to prevent thermal bridging

12. Foundation block

13. Concrete footing

14. Marble top

15. Laminated MDF board

16. 120x120mm Beaumont small wall tiles

17. 29mm laminated MDF board

18. Wood flooring

Kitchen cabinetry detail Scale 1:10

Wall

Living room/study space final render

Turn static files into dynamic content formats.

Create a flipbook
Issuu converts static files into: digital portfolios, online yearbooks, online catalogs, digital photo albums and more. Sign up and create your flipbook.