SPECIALIST IN VERKOOP EN VERHUUR

![]()





Dit charmant dorp maakt deel uit van de gemeente Stekene, waar je geniet van de rust van het platteland doch met de nabijheid van de nodige voorzieningen.
Woonproject Camasius heeft een goede aansluiting met de N403/E34/A11. Van hieruit bereik je dus vlot Gent, Antwerpen en Knokke. Een extra troef is de ligging nabij de Nederlandse grens. Kemzeke beschikt over diverse lokale voorzieningen, die het dagelijkse leven vergemakkelijken. In de nabijheid van het project vindt u meerdere supermarkten, bakkers, slagers alsook horecazaken en tal van winkels (modezaak, doe-het-zelf zaak, enzovoort). Cultuurliefhebbers kunnen genieten van het indrukwekkende Verbeke Foundation museum. Voor een nog meer uitgebreid aanbod van winkels kan u terecht in het dorpscentrum van de gemeente Stekene.
De natuurliefhebbers vinden hun gading in de talrijke wandel- en fietsroutes in en rond Kemzeke. Diverse evenementen, zoals markten, festivals en sportactiviteiten, dragen bij aan een hechte gemeenschap waar iedereen welkom is.

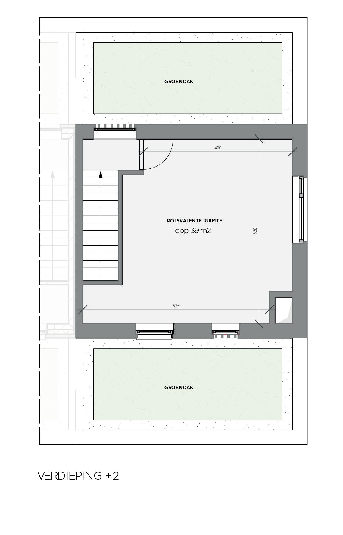
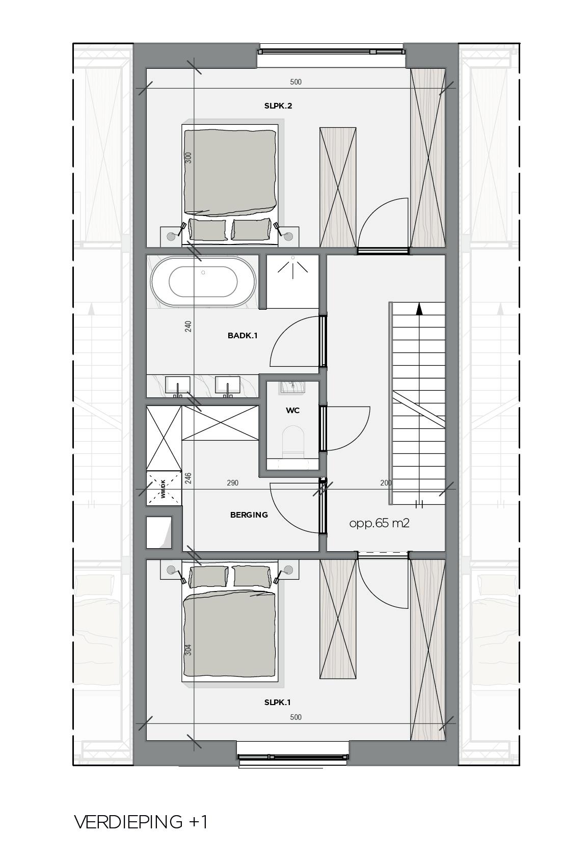
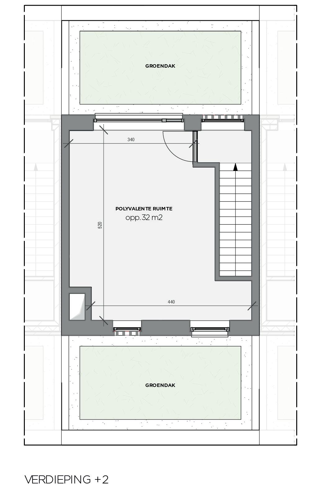
Nieuwbouwproject Camasius omvat 8 kwalitatief afgewerkte woningen en een 2-slaapkamerappartement. Het gebouw is ontworpen in een moderne, tijdloze architectuur. Elke woning beschikt over een privatieve tuin.
De halfopen en gesloten woningen beschikken over 3 of 4 slaapkamers, een lichtrijke living met eet- en zithoek en volledig geïnstalleerde, open keuken, twee goed uitgeruste badkamers, twee toiletten en twee bergingen. Dankzij de grote raampartijen geniet u van natuurlijk lichtinval. Een absolute troef is het uiterst gunstig (zuidwest) georiënteerd terras en het groendak.
Er bestaat de mogelijkheid om een autostaanplaats aan te kopen.
De nieuwbouwwoningen zijn bijna-energieneutraal (maximum E-peil 30) en voldoen dus aan de huidige normen qua energie en isolatie. Er wordt gebruik gemaakt van de nieuwste technologieën zoals akoestische isolatie, super-isolerend glas, een ventilatiesysteem type D, zonnepanelen en een lucht-waterwarmtepomp voor vloerverwarming/ sanitair water/passieve koeling.
De woningen worden duurzaam afgewerkt, in samenspraak met potentiële kopers en conform het lastenboek.
Heeft u interesse in deze knappe nieuwbouwwoningen?
VOOR MEER INLICHTINGEN :
Tanja Vanhauwe 0477 37 45 84 tanja@huyzen.be


Refr: Plan 0.5
Bewoonbare opp.: 195 m2
Tuin opp.: 300 m2



Refr: Plan 0.6
Bewoonbare opp.: 167 m2
Tuin opp.: 135 m2


AANNEMER
VERPLANCKE
Molenstraat 91, 9130 Kieldrecht 03 735 01 90 info@verplancke.be www.verplancke.be
KEUKENS
BOGAERT
Voorhout 69, 9190 Stekene 03 790 10 70 info@bogaertkokenenwonen.be www.bogaertkokenenwonen.be
SANITAIR
DESCO
Blijkhoevelaan, 2110 Wijnegem 03 326 33 33 info@desco.be www.desco.be
VLOEREN
RG TEGEL
Liersebaan 206, 2240 Massenhoven 03 485 50 35 info@rgtegel.be www.rgtegel.be

SPECIALIST IN DE VERKOOP VAN NIEUWBOUW

EEN PROFESSIONELE BEGELEIDING BIJ DE AANKOOP VAN UW NIEUWBOUWAPPARTEMENT IS EEN ABSOLUTE MUST. WIJ HEBBEN UITGEBREIDE ERVARING IN DE VERKOOP VAN NIEUWBOUW EN BEANTWOORDEN MET PLEZIER AL UW VRAGEN.

KANTOOR LOKEREN
Markt 35 9160 Lokeren
09 346 55 80 lokeren@huyzen.be