Work Platform

Page 1

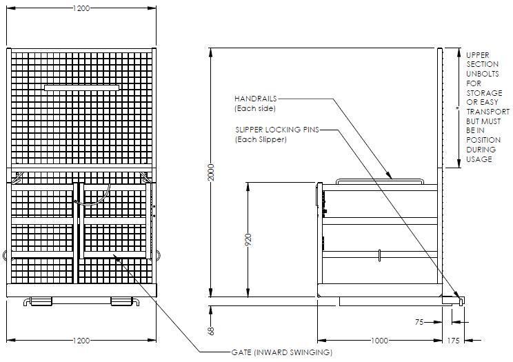
Type WP-N Work Platform

The type WP-N Work Platform has been designed for Forklift transport to safely carry out tasks of “short duration” and “occasional usage” such as maintenance or stocktake. This Work Platform is suitable for a maximum of two people.Unit is supplied standard as a “Flatpack” (1230 x 1150 x 200mm), or may be fully assembled upon request.

The use of a Work Platform on a Forklift truck should not be considered if the capacity of that Forklift is less than 1800kg for a Counterbalanced type or 1080kg for a Straddle type Forklift.

SPECIFICATIONS:

·Outer Frame Size:1154 x 1084 x2000(H)mm

·Safe Working Load (SWL) 250kg

·Load Centre 600mm

·Unit Weight 110kg

·Pocket Size 160 x 60mm

·Pocket Centres 640mm

·Horizontal C of G 550mm

·Vertical C of G 600mm

·Supplied with Slipper Locking Pins

·Zinc Plated Finish

www.huamaiattachments.com

attachments@huamaiglobal.com

Type WP-MS Working Platform

The type WP-MS Working Platform has been designed for Forklift transport to safely carry out tasks of “short duration” and “occasional usage” such as maintenance or stocktake. This Work Platform is suitable for a maximum of two people.Unit is supplied standard as a “Flatpack” (1230 x 1150 x 200mm), or may be fully assembled upon request. The use of a Work Platform on a Forklift truck should not be considered if the capacity of that Forklift is less than 1860kg for a Counterbalanced type or 1116kg for a Straddle type Forklift.

SPECIFICATIONS:

·Outer Frame Size:1154 x 1084 x2000(H)mm

·Safe Working Load (SWL) 250kg

·Load Centre 600mm

·Unit Weight 122kg

·Pocket Size 160 x 60mm

·Pocket Centres 640mm

·Horizontal C of G 530mm

·Vertical C of G 450mm

·Supplied with Slipper Locking Pins

·Zinc Plated Finish

attachments@huamaiglobal.com
www.huamaiattachments.com

Type WP Forklift Work Platform

The type WP Forklift Work Platform has been designed For Forklift transport to safely carry out tasks of “short duration” and “occasional usage” such as maintenance or stocktake. The type WP Forklift Work Platform is suitable for a maximum of two people.

The use of a Forklift Work Platform on a Forklift truck should not be considered if the capacity of that Forklift is less than 1825kg for a Counterbalanced type or 1095kg for a Straddle type Forklift.

SPECIFICATIONS:

·Outer Frame Size:1200 x 1000 x2000(H)mm

·Safe Working Load (SWL) 250kg

·Load Centre 600mm

·Unit Weight 115kg

·Pocket Size 160 x 65mm

·Pocket Centres 640mm

·Horizontal C of G 550mm

·Vertical C of G 600mm

·Supplied with Slipper Locking Pins

www.huamaiattachments.com

attachments@huamaiglobal.com

Type WP-F80 Access Platform

The type WP-F80 Access Platform has been designed For Forklift transport to safely carry out tasks of “short duration” and “occasional usage” such as maintenance or stocktake. The type WPAccess Platform is suitable for a maximum of two people.

The use of a Access Platform on a Forklift truck should not be considered if the capacity of that Forklift is less than 1825kg for a Counterbalanced type or 1095kg for a Straddle type Forklift.

SPECIFICATIONS:

Outer Frame Size:800 x 1200 x1800(H)mm

·Safe Working Load (SWL) 170kg

·Unit Weight 80kg

·Pocket Size 200 x 45mm

·Options: Casters,Toolbox

·Surface Treatment: Painted

Type

www.huamaiattachments.com

attachments@huamaiglobal.com
WP-F120 Access Platform

Type WP-F120 Access Platform

The type WP-F120 Access Platform has been designed For Forklift transport to safely carry out tasks of “short duration” and “occasional usage” such as maintenance or stocktake. The type WPAccess Platform is suitable for a maximum of two people.

The use of a Access Platform on a Forklift truck should not be considered if the capacity of that Forklift is less than 1825kg for a Counterbalanced type or 1095kg for a Straddle type Forklift.

SPECIFICATIONS:

Outer Frame Size:1200 x 1200 x1800(H)mm

·Safe Working Load (SWL) 240kg

·Unit Weight 110kg

·Pocket Size 200 x 45mm

·Options: Casters,Toolbox

·Surface Treatment: Painted

attachments@huamaiglobal.com
www.huamaiattachments.com

Type WP30 Fold Down Work Platform

● Designed for high place operation and maintenance with forklift compatibility

● Heavy-duty design with smart, simple and practical structure

● Load capacity of 300 kg

● Easy to disassemble and assemble, with small storage space

● Safety grid to protect operator from potential injury

● Long safety pin and chain, swing-in gate, and no sliding surface, to ensure safety

● Optional universal caster

● Specifications:

www.huamaiattachments.com

attachments@huamaiglobal.com
Model Load Capacity (kg) Platform Size (mm) Max. Height (mm) Single Fork Size (mm) WP30A 300 950*950 2000 200*100 WP30B 300 1200*1000 2000 200*100 WP30C 300 1000*1000 2000 200*100

Turn static files into dynamic content formats.

Create a flipbook
Issuu converts static files into: digital portfolios, online yearbooks, online catalogs, digital photo albums and more. Sign up and create your flipbook.
Work Platform by huamaiattachments.com - Issuu