Idaho Falls Magazine April 2025

Page 1


“COACH I WANTED TO MY SON’S TEAM.

What’s your WHY?

No matter your reason for wanting to lose weight, it starts with you—and Empower Weight Loss is here to help. With both medical and surgical weight loss options, we provide the support and solutions you need to achieve lasting results. Visit us today!

Aimee Ying Zhang, MD
Jamie Loggins MD, FACS, FASMBS

IDAHOME RENOVATION

PAGE 33

EDITOR’S NOTE PAGE 6

EVENTS PAGE 8

AROUND TOWN PAGE 10

EAST IDAHO OUTDOORS PAGE 14 — 29

FOOD FOR THOUGHT

SNOW EAGLE | PAGE 40

BUSINESS SPOTLIGHT CBI BIKES | PAGE 48

FRIENDLIEST OF IF TOPS KNIVES | PAGE 50

LISTABLE

BUDGET FRIENDLY ACTIVITIES

AROUND TOWN | PAGE 54

IN THE KITCHEN PAGE 56

CELEBRATE LIFE

PAGE 58

FIRST WORDS — TAKE THE DOG OUTSIDE PAGE 24

SPONSORED

BANK OF COMMERCE PAGE 38

FACES OF THE FALLS

SCOTT REIMER PAGE 42

TYSON BOWEN A Drive to Succeed PAGE 44 ON THE COVER Trent Fell — CBI Bikes

PHOTO BY: TAVIN MARLER — CBI BIKES

editor’s note

WALLS THAT SPEAK, STORIES THAT LAST

Maudie Heard

This time of year, the adventures you can find in and around Idaho Falls are endless. From hiking the Cress Creek Trail to fishing at the Snake River to exploring downtown, this city of ours is full of scenic views and not only that, but public artworks that are a pleasure to look at. Like all big cities, Idaho Falls has a number of murals created by talented local artists that hinder a great selfie opportunity.

Downtown Idaho Falls is a hot spot for public art and art enthusiasts, as they’ve completed many public art projects over the years. Throughout the historical streets, there are traffic cabinets wrapped in art, a handful of murals, Puggslane Art Alley and “Art You Can Sit On.” Each project displays the talent of local artists and brings the community together to celebrate the history and beauty of the city.

As Idaho Falls has grown over the years, the talent and creativity of the community have grown alongside it. The artworks throughout downtown have expanded and in turn, now offer many places to snap a pic.

The Idaho Falls Magazine is excited to introduce one of our own, featuring a stunning photo of the famous falls in the format of a magazine cover located at 190 E 1st St. The mural allows you to take a selfie or have your photo taken in front of the large-scale magazine cover. After you snap your photo, you can send it to us, and we will give you a printed version at no cost.

This spring, we encourage you to explore the murals around Idaho Falls, snap some selfies and admire the talent and creativity of local artists.

events

APRIL EVENTS

OPENING MONTH AT IDAHO FALLS ZOO

The zoo will be open starting this month, so bring the family or bring some friends. It’s zoo season!

LOCATION: Idaho Falls Zoo CONTACT: 208-612-8552 www.idahofallsidaho.gov

5

FREE ADMISSION DAY AT THE ART MUSEUM

The Art Museum offers free admission on the first Saturday of every month.

TIME:10 a.m.-4 p.m.

LOCATION: 300 S Capital Ave. CONTACT: 208-524-7777 | www.theartmuseum.org

11-12

TETON AUTO GROUP IDAHO FALLS PBR

Stellar bull riding comes to Idaho Falls with some of the toughest PBR bull riders in the world competing against 12-time PBR Stock Contractor of the Year, Chad Berger Bucking Bulls. This high-level professional bull riding event features a pyro rock show, family fun and full-throttle action that bull riding fans will leave wanting more of!

TIME: 7:30 p.m.

LOCATION: Mountain America Center

CONTACT: 986-497-0509 www.mountainamericacenter.com

IDAHO FALLS WINTER MARKET

The Idaho Falls Farmers Market is year-round for the first time ever! Throughout the winter season, there will be 6 indoor markets at the Snake River Event Center featuring many local vendors from 10 a.m. to 3 p.m.

TIME: 10 a.m.-3 p.m.

LOCATION: Snake River Event Center CONTACT: www.idahofallsfarmersmarket.org

19

FIND THE EASTER BUNNY

Go on a hide-and-seek adventure to find hidden bunnies around downtown. The bunnies have been hidden in downtown shops and participants are invited to come find them.

TIME: 12-3 p.m.

LOCATION: 500 Park Ave.

CONTACT: 208-535-0399 www.downtownidahofalls.com

DISCOVERY DAY

Kids ages 6-12, enjoy fun hands-on learning in a new STEM topic each month.

LOCATION: Museum of Idaho CONTACT: 208-522-1400 | www.museumofidaho.org

23

AWESOMENESS FOR AUTISM

Visit participating downtown businesses to support the Awesomeness of Autism Fundraiser. Funds raised go towards autistic students in the community.

LOCATION: Downtown Idaho Falls CONTACT: 208-535-0399 www.downtownidahofalls.com

18-19

EAST IDAHO HOME & GARDEN SHOW

The annual East Idaho Home and Garden Show celebrates all things home improvement and gardening. The 2025 Home and Garden Show will host over 200 diverse exhibitors, including stunning garden displays, home improvement solutions, sustainable living technologies, home builder contacts and DIY local businesses.

TIME: Fri. 12-8 p.m.; Sat. 9 a.m.-5 p.m.

LOCATION: Mountain America Center

CONTACT: 986-497-0509 www.mountainamericacenter.com

25

MUSEUM AFTER DARK

The Museum of Idaho is hosting Museum After Dark, a grownup night out! For ages 21+, enjoy a night of fun and unique education, drinks and prizes.

TIME: 7-9 p.m.

LOCATION: Museum of Idaho CONTACT: 208-522-1400 | www.museumofidaho.org

26

POP-IN PROGRAM

Join the Museum of Idaho for this fun interactive kids program, which is included with admission.

TIME: 12-4 p.m.

LOCATION: Museum of Idaho CONTACT: 208-522-1400 | www.museumofidaho.org

around town

The Art Museum of Eastern Idaho (TAM) invites the public to Community Day on Apr. 5 from 10 a.m. to 2 p.m., generously sponsored by the Idaho Environmental Coalition. This is a day dedicated to creativity, connection, and the celebration of young artists. Admission is free, and visitors of all ages are encouraged to take part in a handson art activity, constructing a collaborative community art piece that will be showcased at TAM’s Spring Fling fundraiser.

This special event also marks the opening of Young at ART, TAM’s annual exhibit showcasing artwork from schoolchildren across Eastern Idaho through the ARTworks education program. Running throughout the month of April, this exhibit highlights the incredible creativity of young artists. Museum admission is free to the public for the duration of the show.

Adding to the celebration, TAM is proud to feature the 2025 Congressional Art Competition, a prestigious showcase of outstanding high school artwork from Idaho’s 2nd Congressional District. Artists will have their work displayed in the exhibit, and the winning piece will be sent to Washington, D.C., to be displayed in the U.S. Capitol. This segment of the exhibit is sponsored by Congressman Mike Simpson.

TAM is excited to welcome Spanish-speaking visitors with onsite native Spanish speakers available to assist throughout the day.

“Community Day is a fantastic opportunity for families to experience the museum, explore our Young at ART exhibit and participate in a meaningful, collaborative project,” said Education Curator Jesslyn Low. “We invite everyone to come and be part of this exciting celebration of art, creativity and community!”

Dr. Thomas Heuser has announced that the upcoming 2025-2026 season will be his 15th and final season as Music Director of the Idaho Falls Symphony.

“The Idaho Falls Symphony has been my musical family for well over a decade,” said Dr. Heuser, “and this community has shaped me as a person and as a musician.”

The Idaho Falls Symphony will be hard at work for the next two seasons conducting a search that will culminate in a new music director starting in the 2027-2028 season. “Thomas is leaving big shoes to fill,” said board president Kim Carpenter. “His impact and legacy will long be felt in our orchestra and our community.”

The selection of Dr. Heuser to lead the artistic vision of the orchestra came at a significant point in the history of the Idaho Falls Symphony. Founded in 1949, the Idaho Falls Symphony had largely been a volunteer, community orchestra. During Heuser’s tenure, his artistic vision lifted the orchestra to new and greater levels of professionalism and experience.

“Our musical community has been elevated through the artistic vision, skill and expertise Thomas has brought over his dedicated tenure at the Idaho Falls Symphony,” said executive director Carrie Athay. “When Thomas steps on the podium, he guides us on magnificent musical journeys. We are very fortunate to share one more season with him.”

around town

Six exemplary Idaho Falls Fire Department firefighters were recognized in March for their efforts to provide professional life-saving services to the community.

Firefighter/Driver Adrian Russell received the American Legion Post 56 “Firefighter of the Year” award. Russell has been with IFFD for over 20 years, spending over a decade as a frontline paramedic before being promoted to driver. Russell is often behind the wheel of Ladder 1, which operates out of Station 1 in downtown Idaho Falls.

“Adrian approaches his responsibilities with exceptional diligence and a constant desire to improve,” the nomination from his peers reads. “On the fire scene, he is always the first to act and the last to leave, ensuring tasks are completed with precision and care. His exemplary service, mentorship, and unwavering dedication embody our department’s core values and inspire all who work alongside him.”

Additionally, a crew of five firefighters also received the

IFFD FIREFIGHTERS AWARDED FOR THEIR SERVICE

IFFD “Life Saving Award” for an incident in January where a man endured a cardiac arrest at a local gym. The responding engine and ambulance crew, consisting of Firefighter/Paramedic Ryan Taggart, Firefighter/EMT Anthony Lemons, Captain Cody Anderson, Driver Trevor Morgan and Probationary Firefighter/EMT Ty Earl responded swiftly to the report of the man who collapsed.

“Our Idaho Falls firefighters are consistently committed to our mission of providing ‘professional life-saving services’ to the residents of Idaho Falls and the surrounding communities we serve,” said Idaho Falls Fire Chief Duane Nelson. “Every day, our firefighters/ EMS personnel respond to difficult scenes, performing at the highest level to do much more than put out fires. It’s always an honor to present these awards to our firefighters who consistently demonstrate leadership, selflessness and teamwork.”

Source: www.idahofallsidaho.gov

VOTE FOR THE 2025 DINING AWARDS

Voting for the annual east idaho dining awards is now open! Each year, our readers vote for their favorite restaurants across 20 categories, and the winners are published in the July issue of Idaho Falls Magazine. The voting window will close May 15 , and the survey is on idahofallsmagazine.com.

east idaho outdoors

CONNECT

Sit. It’s the first word my pudelpointer puppy, Bruce, learned. I say it more than he does it, but he does know the word. The bigger he gets, the more relieved I am that he learned “sit” soon. Like me, his human, he has a lot of energy so when I tell him to sit, what I really want him to do is stop moving and concentrate. Even if it’s only for a moment.

I say “sit” often around the house, but not as often in the field. That’s probably because Bruce and I are bouncing here and there doing everything but sit. I have a hard time heeding the command myself because my idea of connecting with nature isn’t to sit in it. But maybe it should be.

SIT OUTSIDE TO FIND YOURSELF

Sometimes, when Bruce barks at me on the trail and I say, “No bark,” he barks again. I’m beginning to think he’s telling me to sit. And he’s right. I need to sit. I suggest you sit too. Our connection with Idaho’s outdoors is worthy of all our adventurous pursuits from hike and bike to hook and bullet, but the Gem State’s rivers and ridges are also worthy of sit. Connect with nature in a way that makes you stop moving and concentrate. Sit.

May we all connect this summer.

LOOKOUT: THE EDITOR SPEAKS

Photo credits: Tight Line Media

east idaho water stories

SOUTHBOUND PROTECTING THE SNAKE WITH

A FORK

We’re experiencing all 66 miles of Eastern Idaho’s South Fork of the Snake River as a family.

My husband rows our drift boat and our two boys tally wildlife on Day 1 while I fly fish. It’s easy to lose yourself in the trout lore of the South Fork with its gin-clear current in the summer, epic bug hatches on the hour and 3,000 wild fish per mile. But there’s more to this place than pescador pander.

“The South Fork has been the most successful landscape in this part of the state from a land protection aspect,” says Matthew Ward, The Nature Conservancy South Fork watershed manager. “We’re keeping that area ecologically intact for fish and wildlife and human enjoyment and it’s a lasting, forever thing.

COTTONWOOD

The pillars of this intact ecosystem are cottonwood trees. The South Fork contains the largest cottonwood gallery in the West. In the fall, the leaves on the tall-timbered giants lining the banks bounce in the breeze like gold coins exploding from the pot at rainbow’s end.

During our 3-day float, we’re seeing them in their green glory of summer heat with black

All Photos Courtesy of Kris Millgate/tightlinemedia.com

patches throughout. Those patches are bald eagles. The South Fork is the bird’s stronghold. They were listed as endangered in 1978 and delisted as recovered in 2007, but they were always nesting on the South Fork.

CUTTHROAT

The other constant is native Yellowstone cutthroat trout. Rainbow trout and brown trout introduced decades ago are pressuring their birthright, but cutties remain on the South Fork while many other Western watersheds

have lost them. Most of the cutthroats spawn in tributaries contributing to the main channel, but they are found throughout and the farther you float, the bigger they get.

CONSERVATION

On the second day of our family float, the water morphs from easy-to-read to a tangle of braided deadfall. It’s hard to find a place to camp. We overnighted in the canyon and had plenty of accessible, public-land camping spots to choose from. Now, on the lower stretch, we’re restricted to midstream gravel bars where the approach is sketchy and there’s development on both banks. In the canyon, the banks are mostly undisturbed. That’s no accident.

“I started with The Nature Conservancy in 1987,” says Mark Elsbree, The Conservation Fund senior vice president. “One of the first file folders on my desk was the proposed Hays Ranch development. Fifty-five homes with a jet boat marina and a golf course in the heart of the canyon. That’s what inspired conservation of the South Fork.”

The Nature Conservancy bought its first conservation easement on the South Fork in 1989. It was 177 acres neighboring the proposed ranch subdivision. Easements protect land from development while private ownership is

retained. Acquisitions are purchases of private land from willing sellers with easements added during the transaction so the managing entity, be it government or non-profit, can’t subdivide it either. In total, the two protective measures shield more than 26,000 acres of the South Fork from future development while also securing public access.

“Most people don’t know about that work and don’t realize that the reason they can float the canyon and not have so many homes up on the ridge is because of that work,” says Monica Zimmerman, Bureau of Land Management outdoor recreation planner. “There’s been decades of work done to keep the cottonwood gallery forest and wildlife movement intact.”

On the final day of our float, we launch early under the shading branches of cottonwoods. Our littles, tucked into the bow of the boat layered in long sleeves and lifejackets, are playing rummy with a deck of cards. Mist rises off the water under us. An eagle pair nests above us. My husband lifts the anchor. I shove the boat from the bank. We’re in our sweet spot, the South Fork, and we will always be southbound. Where my boys nap with the river’s sway. Where my husband rows with the river’s braid. Where I know I can always retreat to a river that is as it should be. Consistently wild.

east idaho land stories

RIGHT OF WAY

WILDLIFE CROSSINGS GAIN TRACTION IN IDAHO

There are more than 2 million people living in Idaho. All those people have places to go. Wildlife sharing the Gem State with us have places to go too, but giving animals right of way is easier said than done.

“Urban sprawl, rural development is the plague out here now,” says Chad Colter, Shoshone-Bannock Tribes fish and wildlife director. “Pushing animals around is what we do. It’s a sad thing. It’s not just being done here. It’s done all over the West. There’s a fence along every road.”

If wild herds do clear that fence, which is tagged with reflective markers so they see it before they hit it, they still have to dodge traffic on the road. That’s why Idaho Department of Fish and Game created a migration map for the whole state. It reveals

52 major movement corridors for elk, deer and antelope. Add Idaho Transportation Department (ITD) crash statistics to that map and the biggest zones of conflict are obvious.

Traffic accidents involving wildlife are among the highest in three places: Cervidae Peak between Boise and Idaho City with an average of 28 accidents. Rocky Point by Bear Lake averages 29, and Targhee Pass in Island Park averages 48. By comparison, the statewide average is two.

“Ultimately, one of the common denominators is nobody wants to hit a large animal. Right?” says Frank Edelmann, Idaho Department of Fish and Game technical services bureau chief. “Nobody wants to see large animals dead on the side of the road. That’s where we can work together and start to find those solutions that work for those local areas.”

photo credit: Idaho Public Television

Average number of traffic accidents involving wildlife in Idaho’s major migration corridors.

SOURCES: Migration corridors: Idaho Department of Fish and Game Accident statistics: Idaho Transportation Department

Cervidae Peak has Idaho’s first wildlife overpass. Costing $7 million, it opened in fall 2023. Up to 9,000 mule deer and more than 2,000 elk cross Highway 21 to reach the far end of Lucky Peak Lake where winter is mild compared to their higherelevation summer range. Now they’re crossing above the cars instead of through them.

“I think it’s major progress to see an overpass finally being built,” says Wendy Terlizzi, Idaho Transportation Department environmental services manager. “It is a very long time coming. It is 20 years in the making to be able to gather the data, secure the funding and to actually get it constructed.”

Crash statistics lead you to assume Targhee Pass in Island Park should be the next construction zone for a crossing, but it’s not. Locals pushed back on ITD’s plans.

EIO editor Kris Millgate produced an Outdoor Idaho episode titled Right of Way for Idaho Public Television in 2024.

Enhance what you read here by watching the half-hour show online at:

IDAHOPTV.ORG/SHOWS/ OUTDOORIDAHO

“It’s our Main Street. Island Park is a 30-mile-long Main Street,” says Ann Marie Anthony, Island Park resident. “We love the nostalgia of it. We don’t want to see that affected by fencing and massive interstate system.”

So instead, Rocky Point by Bear Lake is next. “It’s the largest number of animals crossing a narrow pathway to get to and from summer and winter range in the region,” says Zach Lockyer, Idaho Department of Fish and Game southeast regional wildlife manager. “Just the magnitude of that herd and the number of animals crossing a small bottleneck makes it the highest priority.”

A cattle ranch occupies both sides of Highway 30 where the deer have been genetically programmed to cross for centuries. Construction costing $20.8 million for three wildlife underpasses starts in 2026 to safely move those migrators under traffic instead of through it. The rancher welcomes the improvement.

“We’re proud and happy about it and hope it works out good. I’m sure it will,” says Dustin Skinner, Bear Lake County rancher. “I’m sure animals will end up using it and I’m sure it will make a big difference. Save a lot of people having a bad day on the highway.”

east idaho travel stories

PACKED HOUSE

DISCOVERING A PILE OF HISTORY

That towering mound of twisted and tangled limbs you just passed on the trail, isn’t a nest. It’s a treasure hunt time capsule built by rats rather than raptors. Packrats construct homes with dozens of cubbies for all the treasures they collect. Their lodging withstands weather for decades, sometimes centuries, so when you find one, realize you’re looking at something that contains eons of wild history.

Photos Courtesy of Kris Millgate/tightlinemedia.com

GEAR BOX

PACK THESE SUPPLIES FOR YOUR TREASURE HUNT.

BACKPACKER’S PANTRY FREEZE-DRIED MEALS BACKPACKERSPANTRY.COM

$7.99-$12.99

Add water for breakfast, lunch, dinner and even dessert. These freeze-dried meals are full of flavor that revives vividly with boiling water. Resealable bag. Pad Thai and coconut rice are both delightful. Gluten-free, peanutfree free and vegetarian options available.

PACKRAT TRIVIA:

SIMMS GLADES HOODY SIMMSFISHING.COM

$89.95

Flip this hood to protect your ears from sunburn. Quick-dry, breathable hoody made of recycled polyester. Elastic thumb loops secure long sleeves over hands for additional sun shield. UPF 30+.

• ALSO KNOWN AS BUSHYTAILED WOOD RATS

• WEIGH UP TO 1.5 POUNDS WITH HAIRLESS EARS AND WHITE FEET

• LARGE EYES AND LONG WHISKERS FOR NAVIGATING AT NIGHT

• SHINY OBJECTS ARE A COLLECTION FAVORITE

• CRYSTALIZED URINE ACTS AS CEMENT TO COAT TREASURES

• 40,000-YEAR-OLD MIDDENS EXIST

•HOUSES CAN BE 6 FEET TALL AND CONTAIN MANY CACHES OF TREASURES

• SCIENTISTS STUDY TREASURES (MIDDENS) FOR HISTORICAL REFERENCE ON CLIMATE, PLANTS AND BONES

SOURCE: Idaho Department of Fish and Game

east idaho adventure stories

GEAR BOX

RUGGED ESSENTIALS FOR YOUR FOUR-LEGGED TRAIL BUDDY.

GUNNER G1 KENNEL GUNNER.COM

$750

You know those heavy-duty coolers for storing food while you’re camping? This crate is like that, but made to protect your dog while traveling instead

It’s five-star, crash-tested, impact protection in case of an accident.

WATER DOG GEAR BIOTHANE COLLAR & LEAD

WATERDOG.ONLINE

$66

Got a tugger? No worries. This Teton Valley business produces a durable collar and leash set that endures all sorts of yanks without snapping. Waterproof and odor-proof. Comes with silver plated hardware for reduced glare and reliable wear.

FIRST WORDS

TAKE THE DOG TALK OUTSIDE

It’s exciting to have your dog in the field with you until your K-9 sees, or smells, something it wants that you don’t want them to have. That’s

when commands

are vital. Here are the first words dogs should learn as told by their human companions.

SIT

“Start teaching the ‘sit’ command as soon as your new dog moves in. Especially for retrievers, it’s the preeminent command that all other commands flow from. Sit makes them stop and think about what they’re supposed to be doing.”

GLEN CROPPER

River Dog Retrievers owner

Human companion for two Labrador retrievers, Jack and Nelli, plus a revolving door of dogs in training.

TOO FAR

“My dogs know to stop as soon they hear me say ‘too far.’ The dogs know they have to stop, look back and check in. That allows me to call them back to me or just keep them from straying too far out of range. A bird dog is no help on a hunt if he’s too far out in front of you.”

CHRISTINE PETERSEN

Human companion for two Labrador retrievers, Finn and Tuco.

HERE

“I prefer the command ‘here’ as opposed to ‘come.’ It emanates from deeper in the throat and sounds more like an order instead of a request.”

TOM CARNEY

The Upland Almanac editor Human companion for Ryman-type English setter, Jack.

LEAVE IT

“This command is your stop-all-action command to tell a dog they need to cease whatever bad activity they are initiating such as chasing a deer into traffic, eating a poisonous item or entering into an interaction with another person or animal that is not going to turn out well (think porcupines and rattlesnakes).”

HANNAH NIKONOW

Intermountain West Joint Venture communications coordinator Human companion for wirehaired pointing griffon, Rye, and pudelpointer, Bannack.

WHOA

“A solid ‘whoa’ can prevent a dog from flushing game out of range. It can also prevent the dog from moving forward in a situation that represents a risk to their safety like approaching a road, a barbed wire fence or a dangerous drop off. When

you need the dog to stop forward movement for any reason, ‘whoa’ is essential.”

GREG GUNTER

Rave Communications president

Human companion for pudelpointer, Elvis.

PLACE

“Beau’s ‘place’ is his bed. Whether it’s his crate at home or a blanket when we’re staying somewhere else. When I say ‘place’ he goes to that designated space and lays down. He knows that’s his safe spot.”

TRAVIS ZMAK

Teton Toyota general manager

Human companion for Labrador retriever, Beau.

MEET ELENA JOHNSON, WHO QUIT HER JOB TO PURSUE AN ENTREPRENEURIAL DREAM

For Elena Johnson, as a youngster, art was not her strong suit. In fact, she flunked out of high school art and once had a teacher tell her she didn’t have an artistic bone in her body.

“I remember we were doing pottery, and mine just kept collapsing,” Elena said. “My teacher pulled me outside, and she goes, ‘You don’t have an artistic bone in your body. You need to do something else.’”

Elena took those words to heart and went on to pursue a career in medicine, but many years later, she would prove she did in fact have a creative bone in her.

At age 15, she volunteered in an emergency room, and when she saw the paramedics come in, she thought to herself, ‘That’s what I want to do.’ At age 17, she attended an EMT school where she was certified as an emergency medical technician.

The following year, she got her first job in the medical field, and for the next 13 years, she worked in emergency medicine. But after a particularly difficult shift in 2020, everything was about to shift for her.

“I came home and I thought, ‘I need a creative outlet.’ I needed to do something that wasn’t this negative side of society,” she said. “I sat down and I sketched out a drawing of my dog, and looking back at it now, it’s mortifying, but I thought, ‘It’s not half bad.’”

That day, Elena found a passion for art she didn’t know she had. “I went out and bought a book on realistic drawing and just became obsessed.” From that point on, she was drawing everything from her family and friends to their pets.

After spending more and more time on art, she began taking on paid art projects, and art became her part-time job outside of her full-time job. Her friends and family placed orders, and with the help of social media, she landed work with police departments sketching illustrations of canines.

At one time, Elena loved working as a nurse, but in recent years at the hospital, she describes having a nagging feeling that she wasn’t fulfilling her purpose. “Healthcare was rewarding but it wasn’t the thing to

set my soul on fire,” she said.

In early 2024, she made the decision to turn her passion for art into a full-time career.

“One day, I sat down and looked at the numbers and said to myself, ‘This is going to be a gamble, but I’m going to bet on myself,’” she said. “I got up one day, wrote my two-week notice, and never looked back.”

Since pursuing art full-time, her art career has taken off. Elena now spends long days working on prints and sketches, travels to art expos around the country, and isn’t one to turn down a challenge.

Her art ranges from small landscapes to custom 6-foot wildlife drawings, primarily in charcoal powder. From day one, her natural knack for drawing was obvious, and with a lot of trial and error with charcoal, she’s perfected her craft.

Through finding her own groove as a self-taught artist, she’s become an inspiration to many to chase their dreams.

“It can be intimidating not to have a guaranteed outcome,” she says. “Most people will stop in fear of chaos, asking, ‘What if I fail?’ But I would encourage people to consider, but what if it works out? You don’t have to have everything figured out. You don’t even have to know exactly where you’ll end up. You just have to take a step and keep going.”

For more information, head to www.elenajohnsonart.com.

ER NURSE from

Professional Outdoor Artist

by maudie heard

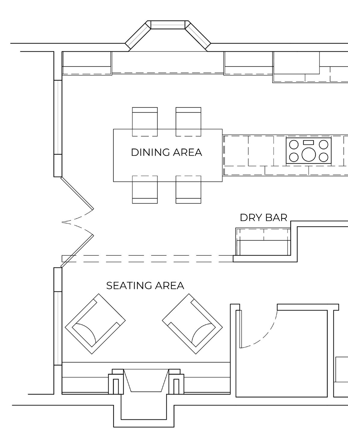
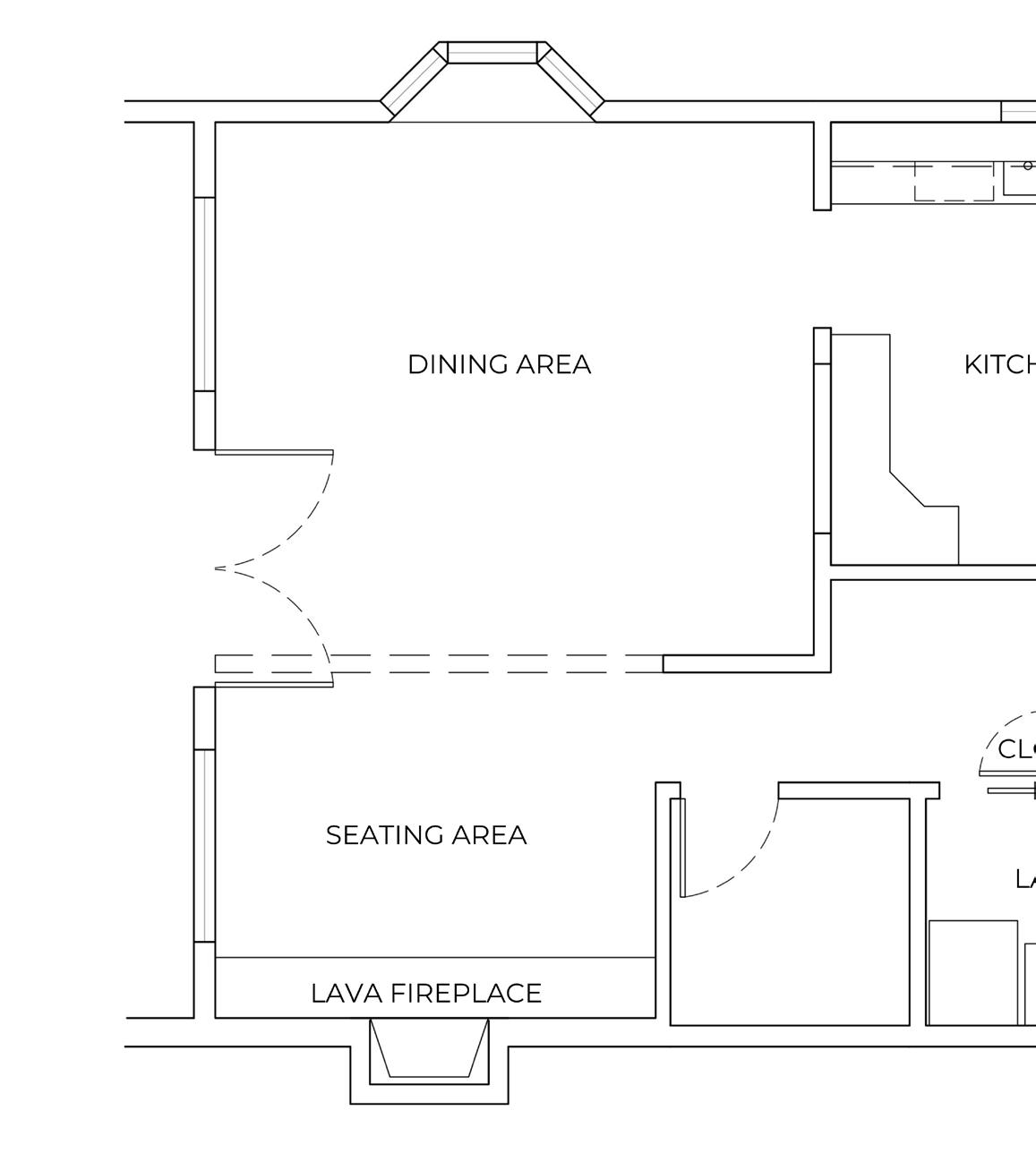
idaHOME renovation

Before

AND

KITCHEN-TOSITTING AREA REMODEL

story by sonia barney design, photos by altair productions, llc *

After:

This unique property had been in the family for decades. In fact, this was the owner’s childhood home. It was clear it was a home that was added to over time, but the exact number of additions and renovations is not fully known.

Through this renovation, we found layers of wallpaper and hidden framing indicating old window locations. What is now an interior wall was at one point likely an exterior wall. The lava fireplace–love it or hate it–is structural, meaning they built the entire chimney and wall out of the lava stone. We knew going in this would be a labor of love and would require creative space planning and patience as we did not know what we would uncover.

ABOUT SONIA BARNEY DESIGN

Sonia Barney Design, a 10-year-old company, specializes in interior planning and full-service design. We are self-proclaimed design nerds who love space planning, color, cabinetry and organized designs. We guide you through the design process to make intentional decisions that elevate your space to support your exceptional life. We serve East Idaho and beyond with top-notch service and the desire to make your home or business reflect your unique life.

DESIGNING A COMMUNITY

We are currently trying to build an East Idaho Interior Design Community that supports our local designers and industry partners. Through this group we desire to increase awareness of interior design services available to our region, provide learning opportunities to promote quality services and products, and build a collaborative community that supports one another. We are eager to include designers of all ages and experience. Please reach out to Sonia Barney Design if you would like to join this group.

*professional shots are by altair productions , before photos by sonia barney

As you can see from the “before” plan and pictures, the original kitchen had a tiny footprint. Appliances were shoved next to each other and there was very little storage. Our goal was of course to make the biggest kitchen we could with the client’s permission to extend into the garage. After showing our clients the various space planning options, we excitedly settled on the “mega island” plan (so much our favorite that we gave it a pet name).

Aptly named, this plan showcased a huge island that spread the entire length of the original kitchen into the dining area. The new dining table would butt right into it continuing the feel of the mega island. No longer would the kitchen be separate from the dining.

It would become one large entertaining space with easy access to the recessed refrigerator, dry bar, hidden pantry and dining window seat.

The kitchen was not the only area to get a facelift. The seating area, though small in actual size, feels much bigger. Why? Because we hid the dark lava rock behind a thin stud wall and incorporated lighter colors, accent lighting and recessed display cabinets.

Maybe not the showiest areas of the home, the pantry and laundry are now amazing workhorse spaces. By eliminating the entrance to the kitchen from the garage, we needed to make the laundry feel more open and accessible. This is where creative space planning came into play. By eliminating two small closets, we increased the laundry room size and added a mudroom bench area. Hidden behind what appears to be a tall cabinet is the new pantry that was built into the garage and is almost as big as the original kitchen. It boasts a large working countertop and lots of built-in cabinets. And you can’t go wrong with the “Costco” door so it’s easy to drop off groceries into the house.

Obviously, space planning is one of our favorite tools in kitchen design. But we can’t forget the use of color, lighting and style. Warm tones, moody colors and rich woods are back with a vengeance. We loved incorporating the oversized lighting and cozy. Although it is all new, we wanted to honor the history of the home with traditional farmhouse styling. Our goal is for people to walk in and think it was always meant to be this way.

sponsored content

FINANCING BUILDING AND PURCHASING REAL

As the CEO of The Bank of Commerce here in Idaho Falls, I understand that building or purchasing a home is a significant milestone, especially in eastern Idaho’s evolving real estate landscape. In 2025, prospective homeowners must navigate various factors, from market trends to financing options, to make informed decisions. This article delves into key considerations, emphasizing lending options for lots, mortgages and construction loans while highlighting the Bank of Commerce’s commitment to local decision-making and unparalleled service.

EASTERN IDAHO’S REAL ESTATE MARKET IN 2025

Eastern Idaho’s housing market has experienced notable shifts in recent years. In Idaho Falls, the median listing home price in February 2025 was approximately $399,900, reflecting a slight decrease of 1.6% year-over-year. The median listing price per square foot stood at $168, with homes typically remaining on the market for around 51 days. Realtor

Statewide, Idaho’s average home value reached $456,464, marking a 2.8% increase over the past year. These figures suggest a moderately appreciating market, offering both opportunities and challenges for buyers. Zillow

LENDING OPTIONS: LOTS, MORTGAGES, AND CONSTRUCTION LOANS

When considering building or purchasing a home in

Eastern Idaho, understanding the available financing options is crucial:

1. Lot and Land Loans: Acquiring land is the foundational step for those aiming to build. Unless you’re paying cash for the property, a lender may require a down payment of 20% or more, interest rates slightly higher than conforming home mortgages, and that the lot be developed with utilities such as power to the lot. There may be even more requirements for raw land purchases. This is where an experienced lender on your side can help you navigate your options, which can be the difference between closing the deal or losing it.

2. Construction Loans: Tailored for individuals planning to build, construction loans provide funds to cover building expenses, not the land itself. Features such as interest-only payments during construction and the option to convert the loan into a permanent mortgage upon completion are common. Among other considerations such as doing your due diligence on the contractor you select, make sure and check the number of draws your bank will allow without additional fees as well as the timeframes your lender requires for the structure to be built to ensure the loan meets your needs.

3. Traditional Mortgages: For those purchasing existing homes, conventional and FHA mortgages remain the primary financing methods. With interest rates remaining somewhat elevated from what we’ve seen in recent years, securing favorable mortgage terms is essential. Often, we just look at the advertised rate without considering all the costs and the service being offered. I’d encourage prospective buyers to

YOUR HOME ESTATE OPTIONS IN EASTERN IDAHO

explore various lenders to find competitive rates and terms that align with their financial goals.

THE BANK OF COMMERCE: YOUR TRUSTED PARTNER IN REAL ESTATE FINANCING

Many in our community may not be aware that The Bank of Commerce offers a comprehensive suite of real estate loan products. Our commitment to elevated service ensures that loan approvals and terms are tailored to the unique needs of Eastern Idaho residents. This localized approach allows for faster approvals and more happy customers.

Our construction loan offerings are designed to simplify the home-building process. We provide interest-only payments during the construction phase and the convenience of rolling the loan into a permanent mortgage upon completion, saving both time and money on closing costs. Our expertise in construction lending aims to streamline your custom home-building experience.

At The Bank of Commerce, we pride ourselves on delivering unmatched service. Our team of experienced lenders possesses an in-depth understanding of the local real estate market, ensuring that you receive guidance tailored to your specific circumstances. Whether you’re purchasing a lot, building a new home, or buying an existing property, our flexible programs and competitive rates are designed to meet your needs.

CONCLUSION

Building or buying a home in Eastern Idaho in 2025 requires careful consideration of market trends and financing options. With a moderately

appreciating housing market and projected increases in rental costs, homeownership presents a viable and potentially advantageous investment. The Bank of Commerce stands ready to assist you through every step of your real estate journey, offering local expertise, flexible loan options, and a commitment to unparalleled service. To contact our experienced real estate lending team and learn your best options, call (208) 525-9115.

food for thought

SNOW EAGLE

Snow Eagle Brewing & Grill brings a unique style restaurant to Idaho Falls, where there aren’t many others like it. Classified as a brewpub, this spot is unlike others in the area for its full-service restaurant combined with a brewery.

This hybrid model of casual dining is not the only thing that sets this restaurant apart. Its ideal location, diverse dishes, homemade sauces and traditional Japanese sushi make this brewpub one of a kind.

Owners Jerry and Sumiko Mitchell have been running the brewpub since it opened its doors in 2011. Prior to opening Snow Eagle Brewing & Grill, they owned and operated the Whitewater Grill, where they discovered a passion for running a restaurant.

At the time, they were running both restaurants simultaneously. Whitewater Grill was a fine dining restaurant, and Snow Eagle a casual dining restaurant. Today, Snow Eagle Brewing & Grill is casual dining, inviting families, friends and sports enthusiasts to 455 River Parkway.

“Snow Eagle is unique because there are no other restaurant breweries in the area,” Jerry said. “We go one step further by adding an extensive menu and sushi.”

Located on River Parkway, guests have a scenic view of the famous falls wh en they stop by. “This is one of the best locations in Idaho Falls,” Jerry said. “You look out the windows, and you think, ‘What a great view.’”

Along with its ideal location, this brewpub serves a wide variety of American pub food, traditional Japanese sushi and high-quality brews.

The sushi is made the traditional way, and many of the dishes come from Sumiko, who is originally from Tokyo. The traditional Japanese sushi is authentic, and Sumiko ensures each dish is perfect before it goes out.

Her roots have merged into Snow Eagle, where she crafts recipes the community loves. “My wife was born and raised in Japan, so it was important to us to include traditional sushi,” Jerry said. “She is a sushi aficionada, so when we have sushi, she likes it very traditional.”

While the owners emphasize the restaurant side of the business, the brewery is still well cared for. Inside of the brewpub is $500,000 worth of brewing tanks made of stainless steel that brew high-quality beers.

As soon as you step foot in the restaurant, the atmosphere is friendly and inviting. The restaurant is decorated with a number of different flags, which Jerry describes as a happy accident. “We didn’t start out saying, ‘Let’s put flags up,’” he said. “People would come in and say, ‘Hey, I’ve got a Kansas City flag, or I’ve got a Buffalo Bills flag, or how about a Navy flag?’”

Outside of the restaurant, Jerry and Sumiko are actively involved in the community, and they are a sponsor of Sister Cities of Idaho Falls, a non-profit dedicated to educational and cultural exchanges.

The cultural exchange between sister cities, Idaho Falls and Tokaimura, reflects inside of the Snow Eagle Brewing & Grill, where they tie the two cultures together through American pub food and traditional Japanese dishes.

Jerry and Sumiko started hanging up flags all around the restaurant from their patrons, and some people even made them flags to hang. “I enjoy interacting with the community and meeting new people,” Jerry said. The many flags that range from different countries and sports teams are accompanied by several TVs that routinely play sports games, something Jerry insists on as a fellow sports guy.

Reimer faces of the falls

Living in Eastern Idaho has some perks, primarily the access to nearby national parks and the beautiful aspects of nature. It’s fairly easy to hop in the car and drive to a quiet forest spot for some huckleberry picking, or to do a day trip to the mountains for some hiking or floating. Some folks are fortunate to be able to do those kinds of activities daily — and get paid for it.

One such person is Scott Reimer, the head guide at The Lodge at Palisades Creek.

Scott was born in Billings, Montana, and moved to Idaho when he was 12. Since then, he’s spent 26 years calling Idaho Falls home.

The main reason he’s remained in the area is family, as both he and his wife’s family are nearby.

“Every day is a workout, rowing the boat.”

As a fishing guide, Scott shows guests the beautiful scenery Idaho has to offer. The lodge is in Irwin, and the fishing tours go between Swan Valley to the Ririe area.

The lodge hosts guests from all around the world, anyone who wants to come to the peaceful valley and fish for trout.

In addition to having roots here, Scott says there’s another reason to stay: this part of Idaho is the mecca for fly fishing.

“It’s a good hub with fishing all around,” he said. “It’s great.”

Scott has been into fly fishing ever since he was 4 years old, and he’s been able to turn that lifelong hobby into his career.

His schedule is a bit unique since fishing depends on the weather, so usually Scott works every day for 6 months, then has 6 months off in the cold season. Even in the winter, Scott says he still tries to fish when it’s possible.

In the summer though, Scott is just happy as can be to be fishing on the South Fork of the Snake River. He does about 150 guided trips during those busy months.

“It’s awesome because I get to be outside every day,” he said.

Mostly, the guests that Scott guides are people he’s gotten to know, since they have been coming back for years and years.

Usually, Scott will chat with the guests about Yellowstone or Grand Teton, or restaurants in the area that he recommends.

The restaurant he recommends the most is the one at the lodge itself.

The 22-acre property has three different dinner options every night, with the menu always changing to feature dishes with fresh chicken, steak, and fish.

“It’s a fantastic restaurant,” Scott said. “These guys have been chefs for a long time, so it’s pretty fancy food.”

To book a trip and experience the great fishing and lodging for yourself, visit tlapc.com.

TYSON BOWEN FORGING A BRIGHT FUTURE FOR GOLF INSTRUCTION

IN IDAHO FALLS

For much of its history, golf has been more of a leisurely game than a true sport. Despite their dapper attire, the elite players of yore had no qualms about dragging a cigarette between shots or throwing back a Bloody Mary before a round. The athletic skill of these folks is not in question, but the activity itself did not emphasize fitness.

His love for other sports—especially baseball—had him traveling to Utah every weekend for games, but over time, the constant travel led to burnout. A high school friend and his family introduced him to golf, and he was hooked.

“I just kind of got sick of the whole team sport aspect and the politics that go into it,” he said.“Golf was an outlet. It’s an individual sport—there’s no politics, no outside influences. How good you get is entirely up to how hard you work.”

That personal accountability is what drew him deeper into the game, which soon spilled over to his development as a player and professional instructor.

In that regard, Tyson credits much of his early professional development to his first boss, Gaylen Denning.

“He taught me more about life, work, golf and business than probably anyone else has,” Tyson recalled. Galen emphasized the importance of punctuality, work ethic and the business side of the golf industry, including selling merchandise. “A lot of my instruction knowledge has been self-taught, just through a lot of studying and teaching tons of lessons,” he added, highlighting his hands-on approach to learning.

“I love watching people improve. Seeing them get excited about their progress is what keeps me going,” he said.

Over the last five years, he has worked with over 500 junior

golfers, many of whom have advanced to high school and even collegiate golf. His involvement in Operation 36, a structured development program for young golfers, has helped bridge the gap between learning and competition.

“We don’t just teach kids how to swing a club,” he said. “We teach them how to play and compete.”

Tyson’s transition to Tee Box represents an opportunity to further refine his teaching methods using swing analysis tools and customized fitness programs.

“Having access to this level of technology is going to be a game-changer,” he said. “We can break down every aspect of a golfer’s game and build them up in a way that’s personalized to their needs.”

RECOGNITION FOR YOUTH PLAYER DEVELOPMENT

Tyson’s dedication to junior golf has not gone unnoticed. In early 2025, he was named the recipient of the 2024 Youth Player Development Award for the Rocky Mountain Section PGA. This prestigious award recognizes PGA professionals who have made significant contributions to developing young golfers.

“Being recognized for something I’m so passionate about is an honor,” he said. “Through my work with the Mountain West Golf Academy, I’ve been able to help nearly 150 kids per week, ranging from beginners to elite players. Seeing them grow and succeed is what drives me.”

Tyson has also spent the last 10 years coaching Skyline High School’s boys’ and girls’ golf teams, leading them to multiple district championships and strong performances at the state level. As he transitions to Tee Box, his goal remains the same—helping young athletes love and excel at the game.

This is Tyson’s first time being recognized as a Section Award winner, and he will officially receive the 2024 RMSPGA Youth Player Development Award at the Section Annual Meeting in May.

PERSONAL GROWTH AND COMPETITION

In addition to his dedication to coaching, Tyson also remains committed to improving his own game. “I feel like my game keeps getting better year after year, which is pretty cool considering my age,” he said. So far, it seems to be working. Already a standout player within the regional professional circuit, Tyson has secured a spot to play in the 2025 PGA Professional Championship in May.

Without a swing coach, he relies on video analysis for self-diagnosis and correction. “If I’m struggling with something, I take video, figure out what’s going on, and adjust accordingly.”

Tyson is also excited about the added flexibility his new role at Tee Box will provide, allowing him to spend more time with his family while maintaining his competitive edge. “In the summer, I don’t get a lot of time with my wife and daughter, so this change will help me find a better balance. We can finally do things like camping, which we haven’t been able to do in years.”

Beyond instruction, Tyson has used golf as a means to give back to the community. In 2020, he organized a golf marathon fundraiser in memory of Bonneville County Deputy Sheriff Wyatt Maser, who was killed in the line of duty.

“I played 8 and a half rounds in one day, and we raised just shy of $20,000 for his family,” he said. The level of support was incredible.”

As Tyson embarks on this new chapter with Tee Box, his impact on instruction, junior development and the culture of golf in eastern Idaho continues to grow.

“This is an opportunity to elevate what we’re doing for golfers in this area,” he said. “Tee Box is about more than just swinging a club—it’s about building better golfers, better athletes, and a stronger golf community.”

business spotlight

cbi bikes

It’s a shop that opens with a chime reminiscent of a bike bell—a pleasant little ring to say you’ve arrived. Once you enter, you know that CBI Bikes on Iona Road is clearly the place to come for every style, size, and brand of bicycle. From brightly-colored children’s balance bikes to technology-laden E-Bikes, CBI is covered floor to ceiling with bicycles, tires, helmets, gear and yes, even bike bells for sale.

Opened in 2017 by longtime mountain biker Hal Wright, the shop named for the phrase, “Can’t Break It,” is run by people devoted to the sport of biking. Manager Trent Fell said he’s so passionate about biking that even when he tried to segue into another career, he rode right back into this one.

“Hal knew me as the ‘bike kid’ because growing up as his neighbor I was always riding around the dirt hills behind my house or tinkering with bikes on the sidewalk,” Trent said. “I’m passionate about bikes.” He believes that what sets CBI Bikes apart from other bike shops in the area is their devotion to the sport. “We live and breathe biking,” he said.

That fervor for biking is evident in the shop’s offerings. At both their Pocatello and Idaho Falls locations, CBI Bikes sells apparel and gear in addition to carrying top biking brands such as Pivot, Scott, Rocky Mountain, Yeti, Kona, Santa Cruz, Julianna, and Cervelo. They sell kids’, road, and mountain bikes. They have snow bikes with 4-inch tires that you can ride on sand dunes, too, especially after cold weather creates a crust as smooth as pavement.

And while they will always be a high-end road and

PROVIDING THE BEST GEAR AND SERVICE FOR BIKING ENTHUSIASTS

792 E Iona Road

208-360-9542

info@cbibikes.com www.cbibikes.com

HOURS

Monday - Friday 8 AM – 5 PM Saturday 10AM – 2 PM

mountain bike shop, their next big goal is to offer a huge selection of E-Bikes. With soaring popularity, E-Bikes are becoming the perfect option for distance biking or closing the gap of accessibility issues. “E-Bikes are perfect for older bikers as they’re able to exercise and enjoy the fresh air. I just sold a trike to an 83-year-old who can no longer ride a regular bike. Now he can stay active and pedal between his favorite fishing spots,” Trent said.

CBI Bikes also keeps on hand a cadre of bike mechanics, there to repair anything from a flat tire and severed brake cables to adding a dropper post to your bike seat or helping you create the full-on custom build of your dreams.

“We’re a full-service bike mechanic shop, and we can repair any brand or model,” Trent explained. “We fix wheelchairs and walkers because they use the same brake cables. We do full-service suspension systems, custom bike builds, and wiring for E-Bikes.”

Whether you want to upgrade components, change the aesthetics, or enhance your ride’s performance, CBI will work with you to create the bike you want. When you purchase a bike from CBI, you’ll not only get help customizing the bike so it’s positioned perfectly for your shoulders, hip, and hand positions, but also a free 1-year tune-up.

If you’re a biking guru seeking to ride competitively, CBI can help with technology upgrades that sound like

science fiction: electronically activated gear shifting with fine-tuned precision and zero lag time, transmission drive trains that sense the terrain and intuitively shift into the correct gear, or Bluetooth dropper posts that automatically raise and lower your seat for the best leg extension on your ride.

However, if you haven’t pedaled down the sidewalk since your childhood, CBI can also help you find your way back to the joy of biking. They offer rentals so you can try out a bike, and they also feature inspiration from their Ambassadors—local advocates who love all types of riding and share on their socials.

If you’re looking for a community to ride with, you can join CBI’s riders on summer Tuesday nights; they’ll announce their locations on their socials and you can meet them at the trailhead. And while Idaho Falls City is working to connect bike paths across the city all the way to the Greenbelt, there are local options such as free, well-marked trails at the Gem Lake Bike Park and dirt tracks with easy jumps at Ryder Bike Park on Sunnyside.

Open to all ages and skill levels, biking brings a therapeutic kind of freedom. “It’s fun, it’s challenging, and it’s awesome to be out in nature,” Trent said. “For me, it clears my head because I only have to think about what is in front and immediately around me. It gets me to that Zen-like state of flow.” So if you’re ready to balance on that bicycle seat again or maximize your carbon fiber ride with full suspension, ring that little bell on your way into CBI Bikes.

friendliest of IF

ON THE Cutting EDGE

TOPS KNIVES CELEBRATES A LEGACY OF EXCELLENCE

Located in the small town of Ucon is one of the biggest knife manufacturers in the United States. Its founder, Mike Fuller, was a special forces veteran with a vision of creating a high-quality knife, and that’s exactly what he did.

Tops Knives started as a small business but it wouldn’t be where it is today without the powerful friendship between Mike and current owner, Leo Espinoza.

“Mike didn’t have any kids of his own, so he took me under his wing,” Leo said. “When he introduced me, he introduced me as his kid, and people would look at him, with his bright blue eyes, and take a second glance at me, but they would never question it.”

In 1998, Mike and four others, all with extensive experience in military, law enforcement, outdoor professions and martial arts, founded Tops Knives with a shared mission ‘to create the highest-quality, rugged, unique, overbuilt and functional tools for service members and outdoorsmen of all kinds through our superior manufacturing, finishing processes and genuine field operators’ testing.’

Leo recollects Mike saying, “When I retire, I want to be able to

build a knife that won’t leave our guys stranded overseas.”

“He said he had a lot of issues where knives were breaking on him,” Leo said. “So he wanted to build something that wouldn’t let that happen. He would say, ‘You get into a situation where you need a knife, and the knife is the only thing that’s going to save you.’”

When Mike came back to the United States from Australia in 1998, he and his wife traveled to Yellowstone from Seattle and when traveling through Idaho, they found a place to call home. They packed up and moved to Idaho, and at that time, Mike was planning on working for Kirby Vacuum as a salesman when he met a teacher at the gym who made knives.

“They got together and they said, ‘If you can make them, I can sell them,” Leo said. “And that’s when the knife business started.”

The shop opened their doors in a small town in the Rocky Mountains, and 6 months later, 16-year-old Leo got his first job at Tops.

Like many other small businesses, Tops started out in a small garage. The two-bay garage was so small that the neighbors were kind enough to let them borrow the bathroom in their garage and it was Leo’s job to keep it clean. “When you’re grinding knives all day, you’re just covered in dust and so his wife said, ‘If you don’t keep that bathroom clean, you guys can’t use it again,’” Leo said. “And that was my job for a long time.”

After many years of cleaning the bathroom, Leo gradually began to try his hand at designing and creating knives, but at first, he was told to stick to what he knew. He persisted and eventually, Mike took him under his wing, taught Leo what he knows now and helped him get out of his comfort zone.

“There was a time when I started doing more with Tops and he would have me call our graphics lady that would do all our advertising and I would hide, or I would make up an excuse because I couldn’t talk to people,” Leo said. “He put me in situations where I had to talk to some of our biggest distributors. He sat me in a room with them and then he would leave.”

In 2010, Mike’s wife suffered a stroke and as her primary caregiver, he had to spend a lot of time away from the business. He approached Leo one day and he said, “Either we sell Tops, or you keep running it.”

“I told him we’ll figure it out, but we’re not selling this,” Leo said. “We’ve had big companies try to buy us out every year, but I’ll never sell as long as I’m here.”

From cleaning bathrooms to becoming a successful business owner, Leo says he wouldn’t be where and who he is today without Mike’s mentorship.

“Mike was a big father figure to me and sort of a guide. He guided me through problems with my family, through problems with work and through problems with money.,” Leo said. “Everything I know was taught to me by him.”

Since 1998, Tops Knives has grown into a successful

business that manufactures a variety of knives, creating over 50,000 knives a year with a failure rate of less than 1%.

“I learned from the best, and that’s why we still do what we do,” Leo said.

For more information, head to www.topsknives.com.

6Budget-Friendly Activities Around Town

STROLLING THE RIVERWALK

Walking along the Riverwalk is a timeless activity, and it’s even more enjoyable because it’s completely free. Surrounding the river are plenty of other things to explore, like the Japanese Friendship Garden, Idaho Falls Public Library, “Art You Can Sit On” in downtown, and plenty more to enjoy with friends and family.

FISHING AT RYDER PARK

For those who enjoy fishing, the Becker Pond at Ryder Park is a great spot to catch some trout, and kids under 12 fish for free. The pond is stocked in April, and fishing is open to the public from 5 a.m. to 11 p.m.

If you’re itching to get out of the house but on a budget, here are 6 budget-friendly activities around town that you can enjoy with family and friends.

DISC GOLF AT FREEMAN PARK

Taking up disc golf as a new hobby is an inexpensive way to spend more time outside. Located at Freeman Park is a disc golf course, featuring 18 holes. Whether you want to go pro at disc golf or just enjoy some time in the park, all you need is a frisbee if you don’t have the discs.

MUSEUM OF IDAHO

The Museum of Idaho is a main attraction around town for its rotating exhibits, programs and events. Admission at the museum is low-priced, and the family gets to have an experience that is educational and entertaining.

ARTTITORIUM ON BROADWAY

The ARTitorium on Broadway is a bang for your buck. The ARTitorium offers an abundance of fun activities for children 12 and under. A few favorites include the swirly slide, the magnetic wall and the light-up table. Admission is affordable and good all day, meaning you can keep the kids adventuring all day.

COLLECTOR’S CORNER

Collectors’ Corner Museum is a unique treasure to the community for its displays of collectible items from each and every era, and to explore the museum is a low admission cost. This museum is filled with nostalgia with over 130 displays, ranging from antiques, coins, dolls, tools, toys and much more. Both adults and kids will enjoy exploring the unique collectibles here, as there is a niche for everyone.

in the kitchen

Spring is one of those seasons that makes me excited about fresh, colorful salads. As Easter approaches, I find myself reaching for bright ingredients that remind me of warm sunshine and garden parties. This strawberry spring salad has become a regular at our family Easter gatherings, and I love how simple it is to put together.

INGREDIENTS

6 cups chopped romaine lettuce

1½ cups sliced fresh strawberries

1/2 cup chopped pecans

2 tablespoons optional dried cranberries

1/4 cup crumbled feta cheese

1/2 cup extra virgin olive oil

Zest and juice of 1 large lemon

2 teaspoons maple syrup

1 teaspoon dijon mustard

Salt and pepper to your liking

DIRECTIONS

Step 1

Chop the romaine lettuce into bitesized pieces. Slice the strawberries widthwise, or however you prefer. Roughly chop the dried cranberries and pecans.

Step 2

Place the chopped romaine lettuce in a large mixing or serving bowl. Add the sliced strawberries, chopped pecans, dried cranberries, and crumbled feta cheese to the bowl. Toss the ingredients together gently to combine them evenly.

Step 3

In a food processor, combine extravirgin olive oil, one tablespoon of lemon zest, one tablespoon of lemon juice, Dijon mustard, maple syrup, and a pinch of salt and pepper. Blend the mixture until it becomes smooth and emulsified, ensuring that the flavors are well combined.

Step 4

Remove the freshly prepared dressing from the food processor and drizzle it over the assembled salad ingredients in the bowl.

Toss the salad gently to incorporate the dressing evenly throughout. Serve immediately and enjoy the fresh flavors of this delicious salad!

JUICY

STRAWBERRY

EASTER SPRING STRAWBERRY SALAD

celebrate life

5 YEARS OF VALENTINES AND ROSES

The day was bitterly cold as volunteers loaded fresh roses into an enclosed trailer for the 5th annual Valentine’s for Seniors campaign. Two hundred and 10 dozen roses, donated by Teton Radiology, Holst Truck Parts, and other anonymous donors were transported to the sorting location where people from all over the Greater Idaho Falls Area picked up their requested number of roses and valentines for senior citizens in their neighborhoods.

To keep the delicate roses from freezing, volunteers hooked up a heater inside the trailer. Later that afternoon more roses arrived, 125 dozen to be exact–a gift from the Wish of a Lifetime Foundation, sent to Senior Solutions to deliver to more deserving seniors. Three hundred and thirty-five dozen roses, equating to 4,020 stems, were delivered one at a time to surprised and delighted recipients all over the community. The Smith Group once again generously turned one of their trailers into a flower shop for the project.

JustServe and Senior Solutions have partnered in this campaign focused on their goal to deliver hope, friendship and love to our senior community. In the 5 years since its inception, a total of 40,272 valentines and 7,370 flowers have been gifted.

For the fifth consecutive year, Idaho Falls Mayor Rebecca Casper issued a proclamation encouraging our community to support this program and express love and admiration for senior citizens by sending valentines. The mayors of the cities of Ammon, Iona, and Ucon also support this project. Students and staff at CEI encouraged their group to participate in creating messages of love and set up an area where anyone could create valentines to donate. Century 21 High Desert Realty offered to place a drop-off bin in their office and had many of their agents and families create valentines there one evening. Students in elementary and

JUST THE FACTS

5th Annual Valentine’s For Seniors 335 dozen roses delivered one at a time.

TOTAL NUMBERS

5 Years

40,272 Valentines

7,370 Flowers

secondary schools crafted messages of encouragement. Classrooms and kitchens all over the community served as workshops for creative valentines.

One devoted volunteer shared, “When delivering these gifts, it has been eye opening to see the people’s needs that have nothing to do with flowers or valentines. The flower has just been a reason to visit someone who may be lonely. We visited two different neighbors who were struggling with health problems and needed assistance. We saw another neighbor whose husband passed away a few years ago. When we gave her a red rose, we learned this gift made it so that she had received a rose on Valentine’s Day every year for 55 years. We were happy we kept the streak going for her. It was interesting to uncover these hidden needs that probably wouldn’t have made it to our awareness without these personal visits where our initial purpose was just to drop off a gift from the community”.

Another volunteer told us that when she was delivering roses and valentines one woman burst intO tears. This person was having a hard time feeling loved and loving herself. Those gifts reminded her she is loved.

Extra efforts to keep the roses warm enough not to freeze and cool enough to be fresh, untold hours of residents of all ages and walks of life creating heartfelt messages for the seniors, mailing and delivering valentines to the hub, untold hours of time sorting, picking up, and delivering the valentines and roses created the fifth annual Valentines for Seniors. Why would hundreds of people take time out of their busy lives to participate in this annual community tradition with donations of over 6,000 valentines? And why would so many people generously donate funds to ensure that thousands of seniors receive beautiful roses, a traditional symbol of love? Serving others builds ourselves and our community.

Was this campaign worth all of that effort to deliver the valentines and roses to one person at a time? Every single person involved answers a resounding “Yes!”

Plan to participate in next year’s Valentines for Seniors. For more information, visit justserve.org and click on the Projects page.

CATEGORIES:

Portraits | Nature & Wildlife | Scenics Sports & Leisure | Events | Birds Open Category | Black & White

GRAND PRIZE:

A weekend stay at Sawtelle Mountain Resort www.sawtellemountainresort.com

Valued at $500 Excludes July 4 -6

TOP 3 IN EACH CATEGORY:

Receive a custom plaque + a chance to be featured in the Idaho Falls Magazine August issue & the Yellowstone Teton Territory annual wall calendar!

Winning images will also be framed and displayed in local businesses, plus featured on our social media & in the magazine throughout the year plus own those major bragging rights.

Photo Credit: Adrian Murray

A heartfelt Thank You!

Two of Summit Orthopaedics original founders are retiring from medicine - Dr. Stan Griffiths and Dr. Greg West. We would like to thank them for their dedication and commitment to medicine and their patients. We wish them the best in retirement!

Doctors Rencher, Van Dyke, Johnson, Cooper, and Woodall are all fellowship trained specialists. They will continue to offer the same expert orthopedic care you've come

Greg West, M.D.
Stan Griffiths M.D.

Turn static files into dynamic content formats.

Create a flipbook
Issuu converts static files into: digital portfolios, online yearbooks, online catalogs, digital photo albums and more. Sign up and create your flipbook.