Houston All Kinds of Jewish

Facility Renovation Campaign 2025 - 2026

![]()

Facility Renovation Campaign 2025 - 2026

Houston Hillel engages undergraduates and graduate students in Jewish life and learning.
As the only egalitarian, inclusive, and pluralistic Jewish campus organization in Southeast Texas, we create a space of belonging for LGBTQ+ participants and those from interfaith backgrounds.
We do this in Houston and throughout Southeast Texas on more than a dozen campuses north and south from Stephen F. Austin State University to A&M Galveston, and east and west from Lamar University to Blinn College.

Engages undergraduates and graduate students at Rice University, the University of Houston and more than a dozen other schools throughout Southeast Texas.
Each year Houston Hillel engages more than 600 unique individuals in more than 4,000 interactions.



As a student at South Texas College of Law, I learned in a very personal way how Houston Hillel provides students with a welcoming and supportive home away from home.

During my first year at STCL my wife, Lily, and I received her stage 4 cancer diagnosis. Houston Hillel immediately became a source of emotional and practical support and comfort for us. Rabbi Kenny Weiss and his incredible staff went above and beyond to help us in any way they could.
Houston Hillel’s building also played an important role in our healing. Within its walls we found a space to pray, reflect, and connect with others. We attended Shabbat and holiday celebrations and other events that provided us with a sense of normalcy and joy during a very difficult and dark time.
After two years of careful consideration, Houston Hillel’s Board of Directors and I believe it is time to fully renovate our outdated and inadequate facility. A major renovation will provide a modern and welcoming space for students to gather, learn, grow, and receive emotional and spiritual support.
Houston Hillel is a home for Jewish students where they can find themselves and each other, and it is a source of support and comfort for those who experience difficulty. A renovated building will ensure that Houston Hillel continues to provide a welcoming and inclusive environment for all who seek it.
I believe that Houston Hillel plays a vital role in promoting Jewish life on campus and in the wider community. Lily and I are proud to be part of this important organization and capital project.
Grant Beiner
Houston Hillel Board President Capital Campaign Co-Chair

Houston Hillel introduced me to my bride when it opened its doors for Sangria in the Sukkah, an event celebrating the fall holiday of Sukkot.
Having a compelling physical space for young people to be and do Jewish is imperative. Events on campus or around the city are fine, but we need to create an updated communal space for Houston Hillel that shows our roots, looks fresh, and feels welcoming.
Houston Hillel’s Board of Directors recognized this goal and made a commitment to renovate our current facility for our students. From undergraduate and graduate students, current and former staff and other stakeholders we heard a shared energy around the prospect of an updated gathering place for today and the future.
Thank you for supporting a life-changing Sangria in the Sukkah evening, a pre-Shabbat challah baking meet up, and Houston Hillel’s next (and next and next) creative and inclusive initiatives.
Scott Friedman
Houston Hillel Immediate Past Board President Facility Renovation Committee Chair

“Houston Hillel has been part of my life for 16 years. When I was in college and then as a 20-something graduate student Houston Hillel was a place I could always go and feel safe and welcomed unconditionally.”
Kendall Toarmina
Rice University 2010, 2017
VP Houston Hillel Board of Directors
“As a student member of Houston HIllel’s Board of Directors I’ve had the privilege to be part of the planning for our renovated building. I cannot wait to bring my Hillel friends to our new home.”
Sammie Lorch University of Houston 2024
UH Hillel President (Pictured right)


“Engaging with Hillel programming, such as Shabbat dinners and bagel lunches with fellow medical students, provided the opportunity for me to develop closer relationships with my peers and helped ease the challenging transition to a new city for graduate school.”
Jared Imber
UT McGovern Medical School 2025
McGovern Hillel President
(Pictured second from left)
Stephen F. Austin State University 2023
SFA Hillel President

Houston Hillel requests your support for the renovation of the Houston Hillel Student Center. Your participation will have a lasting impact not only on the lives of Jewish students in Houston, but also for campus communities throughout Southeast Texas.
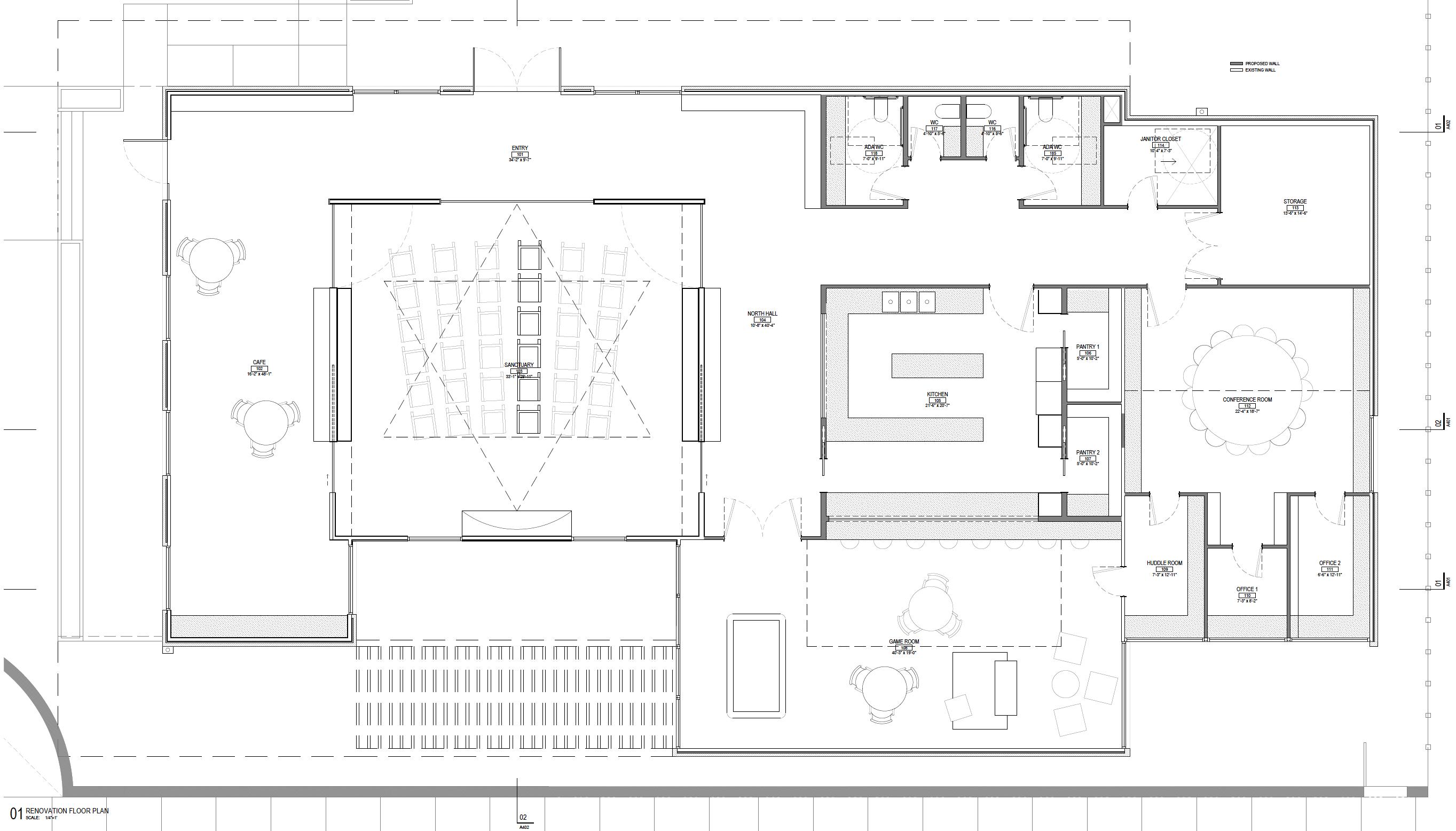
Since its establishment in 1997, the Houston Hillel Student Center has provided a home for generations of Jewish Houston-area college students, and in recent years the Houston Hillel Student Center has experienced additional use as a regional center for students engaged in Houston Hillel’s work throughout Southeast Texas.
However, generations of student use have taken a toll on Houston Hillel’s facility (a 1930s house enveloped by a 1980s addition) as maintenance and repair costs continue to mount. The consensus of Houston Hillel’s Board of Directors is that a major renovation of our facility is necessary to serve students, honor the legacy of those donors whose generosity enabled us to acquire our facility more than thirty years ago, and ensure Houston Hillel’s success in the future.
The deteriorating condition of Houston Hillel’s current building increasingly distances students who find the building run-down and unattractive. Among the challenges, Houston Hillel’s staff members must work remotely for much of the year because the air conditioning systems cannot sufficiently cool the facility during the summer and fall, and with each rainstorm leaks in the roof and HVAC ductwork make interior spaces unusable.
We plan to fully renovate the Houston Hillel Student Center’s interior spaces, including the floors, ceilings, and many walls. We will replace our leaking roof and HVAC systems. We will create beautiful exterior spaces that invite students to spend time with each other. We will add interior and exterior security features to provide a safe environment.
Our plans for a renovated facility have energized students, alumni, and community stakeholders, who shared their thoughts and opinions during focus group sessions our leadership held during the visioning phase of our project. Students tell our staff that they see a renovated facility as a welcoming place to gather and study, and feel that they will use our newly renovated Student Center with greater frequency than today.
Our renovation budget goal is $3.5 million, of which we have raised more than $1.95 million. We also have opportunities to build Houston Hillel’s endowment, which is currently more than $1 million.
A particularly meaningful donation came from our neighbors on the north side of Houston Hillel’s property. These homeowners offered the apartment above their detached three-car garage for Houston Hillel to use rent-free as its temporary office during renovation. The apartment is on the southern side of their lot and affords an unobstructed view from its windows into Houston Hillel’s property.
We are pleased to share that 100% of Houston Hillel’s Board of Directors and both of Houston Hillel’s senior professional staff members have made pledges to our Capital Campaign.
Thank you for considering a gift to Houston Hillel’s facility renovation.

Rabbi Kenny Weiss



Grant Beiner and Rozanne Rubin Scott Friedman Executive Director Capital Campaign Chairs Facility Renovation Committee Chair

Diverse gathering spaces and meeting rooms for a wide range of programs
Welcoming environment for off-campus studying and remote work
State of the art technology


Kosher teaching kitchen for cooking classes and pre-Shabbat challah baking
Inviting coffeehouse environment for casual socializing and studying
Comprehensive security enhancements

Officers
Grant Beiner, President (Rice ‘08, STCL ‘19)
Marcy Rothman, 1st VP (UH Law Ctr ‘88)
Sandy Jackson, VP
Lauren Kasoff, VP
Ido Machol, VP
Ethan Schultz, VP (Rice ‘99)
Armin Weinberg, VP
Rabbi Gideon Estes, Secretary
Jeff Berlat, Treasurer (SHSU ‘89, UH ‘94)
Paul Brokhin, Treasurer (UH ‘09, ‘13)
Scott Friedman, Past President
Directors
Jordan Argamany
Eric Bishop (UH ‘95)
Steve Block
Marvin Blum
Paul Brokhin (UH ‘09, ‘13)
Michael Burgower (UH ‘18)
Terry Cweigenberg
Andrea Falk
Flora Farago
Scott Friedman
Rachel Grady (Rice ‘18)
Abby Lestin
Jeremiah Leventhal
Lena Lieb (UH ‘12)
Lou Mizis
Daniel Pickelner (UH Law Ctr ‘97, UH ‘05)
Larry Reader
Chelsea Roy
Rozanne Rubin
Lauren Smith
Kari Stein
David Vener (BCM ‘89)
Cory Weinberg
Rabbi Kenny Weiss
Executive Director
Carly Fleck
Assistant Director
Ulrika Shragge
Springboard Innovation Fellow
Katia Sokolov
Jewish Agency Israel Fellow to Houston Hillel
Hannah Kass
QJews Program Director
Anna Ashburn
JFS Counselor for Houston Hillel
Zach Sachs
Campus Marketing and Development Manager




Grant Beiner and Rozanne Rubin Capital Campaign Cochairs
