Civil War in the Newarke

Page 1

CIVIL

WAR IN THE NEWARKE DE MONTFORT UNIVERSITY HERITAGE

THE ENGLISH CIVIL WAR

The English Civil War spanned from 1642 to 1651, reshaping politics, society, and the monarchy, leaving a lasting impact on the nation’s history.

Rooted in political, religious, and economic tensions, it pitted King Charles I’s Royalist army against government’s Parliamentarians over issues of power and governance. The war witnessed pivotal battles such as Edgehill, Marston Moor, Naseby and the Siege of Leicester.

Leicester’s stance was generally Parliamentarian, and in May 1645 the town was attacked, suffering one of the bloodiest sieges of the Civil War.

Evidence of the battle still exists on campus, with defensive ramparts found under the DMU Innovation Centre and gun ‘loop-holes’ (pictured) in the walls standing in Newarke Houses Museum garden.

This victory threatened the parliamentary presence in the Midlands, shifting the balance of power in the war.

However, their triumph was short-lived when Parliamentarian Lord Thomas Fairfax launched a counter offensive to recapture the town in June 1645 shifting the momentum back in favor of Parliament.

The Magazine Postcard | ©DMU Special Collections Players Cigarette Card | ©DMU Special Collections

SIEGE OF LEICESTER

30TH MAY 1645

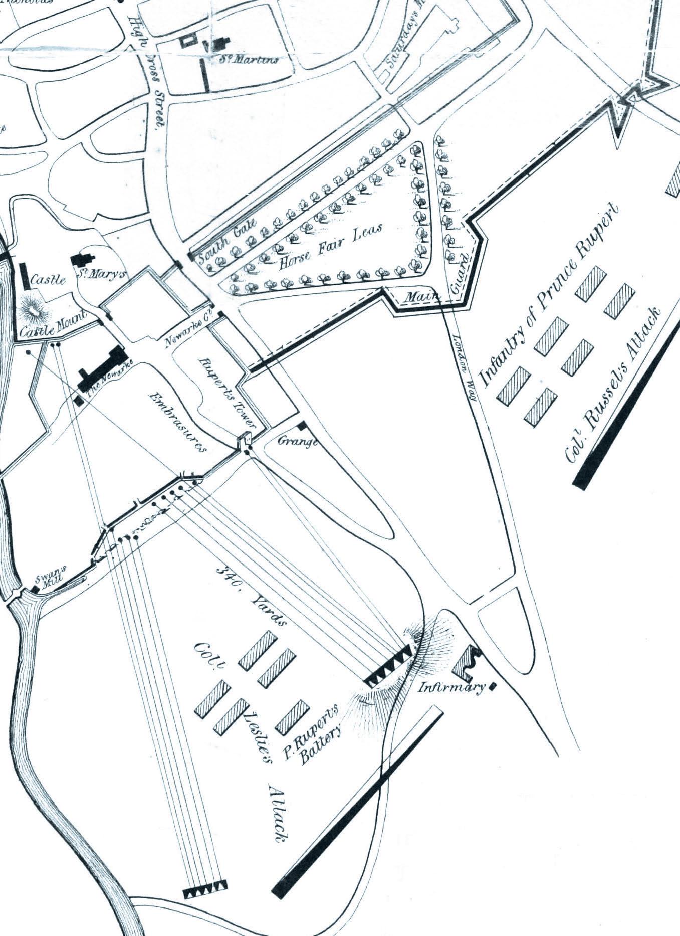
The Siege of Leicester lasted a relatively short time and at around three o’clock on 30th May 1645, the order was given to fire upon the Newarke. The attack was led by Charles I’s nephew Prince Rupert of the Rhine to gain a key position within the city.

Prince Rupert’s forces, consisting of seasoned cavalry and infantry, bombarded the Newarke’s defences with artillery from a position close to the Leicester Royal Infirmary. After only three hours a breach was made in the south wall, marked X on the map. The battle that ensued was marked by intense fighting, with both sides suffering heavy casualties.

Despite the valiant resistance of the Parliamentarians and Leicester locals, the overwhelming strength of the Royalist forces ultimately led to the fall of the Newarke. The precinct was an ideal location to defend Leicester but the walls were a medieval property boundary for the church that once stood at the centre of the site, not a military fortification.

The capture of Leicester allowed control of a crucial political and military centre as well as the cachet of munitions stored in the Magazine with its name originating from this time.

The Siege of Leicester was used as evidence during the trial of Charles I, proving his ‘blood guilt’ of waging war on his own people with many Leicester survivors petitioning for compensation.

BREACH IN THE NEWARKE WALL

Plan of Leicester during the Civil War, The Siege of Leicester, 1645: A 325th Anniversary History, J. Wilshere and S. Green, 1970 | ©DMU Special Collections

PRINCE RUPERTS TOWER

The Newarke has lost some of its architectural treasures, one such building was the Bishop’s Palace on Bonners Lane, locally referred to as Prince Rupert’s Tower.

Located at the south-east boundary of the Newarke, the building served as a gatekeeper’s house, was demolished to increase the width of Bonners Lane in 1935.

The appellation of ‘tower’ is strange as there was nothing to suggest a tower was present when the building was demolished according to the archaeological record. It is possible that a turret or tower stood further west toward the canal roughly at on the corner of Bonners Lane and Fairfax Street and this then became associated with the gatehouse.

Only two gatehouses to The Newarke survive today; The Magazine on Oxford Street and Turret Gateway on Castle View. After 1935 it would appear the name of Prince Rupert’s Tower was transferred to Turret Gateway. On the map image *E* is Turret Gateway and *K* is Prince Rupert’s Tower, which would roughly be where the Clephan Carpark entrance is today.

THE MAGAZINE

The Newarke Gateway, or The Magazine, was built in the early 1400s around the same time as the enclosing Newarke walls and served as the impressive grand entrance to visitors of the religious precinct.

Owned by Leicester City Council and operated by Newarke Houses Museum, the Magazine has played various roles throughout the centuries, including accommodation, a prison, military building, munitions store and now a heritage space open to the public on special occasions.

Built using locally sourced sandstone from the nearby Dane Hills quarry, the gateway has three floors and two entrance archways - the larger arch

allowing for carriage and cart access, the smaller being used by those on foot.

The ground floor was a lodge for the porter, who was responsible for controlling the access to the religious precinct and likely lived here with their family.

The first floor was an ‘en suite’ with a doorway leading to a garderobe or medieval toilet. The two rooms or apartments on the second storey were for visitors of the Collegiate Church of the Annunciation.

During the reign of Elizabeth I, the gateway was used to hold Catholics, who were imprisoned for their beliefs. The graffiti of two unfortunate locals can still be seen on the soft stone surface.

In 1642 the gatehouse became known as The Magazine when the county purchased the building to be used as a munitions store during the English Civil War. This military association continued throughout the years. In 1894 it was incorporated into a military barracks and during the First World War it was used as a recruiting station. The Magazine also housed for the Royal Leicestershire Regiment Collection before it was moved to Newarke Houses Museum.

Players Cigarette Card | ©DMU Special Collections The Magazine Postcard | ©DMU Special Collections

TOWN ARMOUR

The Town Armour Collection is part of the chattals of Trinity Hospital. The collection consists of breast plates, gorgets, helmets, buckler with small shield, a funerary sword, and halberds.

The armour was on display in the hospital chapel until 1960 before being loaned to the Leicester Museums Service. In 2016 it was rehomed again to DMU Special Collections, where it is accessible for research purposes; a selection is also on permanent display in the DMU Museum.

The collection dates from the mid-1600s and was perhaps worn when the town was attacked by Royalist soldiers in 1645.

It was recorded by Susannah Watts, author of Leicester’s first guide book as being worn by, residents of the hospital during the celebration of Michaelmas Fair:

“... the grotesque ceremony of the poor men of Trinity Hospital, arrayed like ancient Knights, having rusty helmets on their heads and breast-plates fastened over their black tabards”.

Engraving Trinity Hospital, The history and antiquities of the county of Leicester - Vol. 1, Part 2., John Nichols, 1815 | ©DMU Special Collections Photo of Trinity Chapel circa 1920s, A History of Leicester, S. H. Skillington, | ©DMU Special Collections

DMU Museum

Hawthorn Building 00.34

The Gateway

Leicester LE1 9BH, UK

T: +44 (0)116 207 8729

E: museum@dmu.ac.uk

W: dmu.ac.uk/museum

Cover Image: View of The Newarke from the South-West, after 1361, Illustration by John Cook | ©DMU Museum

Turn static files into dynamic content formats.

Create a flipbook
Issuu converts static files into: digital portfolios, online yearbooks, online catalogs, digital photo albums and more. Sign up and create your flipbook.
Civil War in the Newarke by DMU Museum - Issuu